Cornelia Lawrenz: Architektur und Herrschaftsanspruch
Architektur und Herrschaftsanspruch Die Baukunst Kaiser Lothars III. (1125-1137) und seiner Parteigänger
- ____
- 2
- ____
- 3
- Cornelia Lawrenz
- Architektur und Herrschaftsanspruch
- Die Baukunst Kaiser Lothars III. (1125-1137) und seiner Parteigänger
- Ein Beitrag zur sächsischen Architektur des 12. Jahrhunderts
- Wissenschaftlicher Verlag Berlin
- wvb
- ____
- 4
- Bibliografische Informationen Der Deutschen Bibliothek
- Die Deutsche Bibliothek verzeichnet diese Publikation in der Deutschen Nationalbibliografie; detaillierte bibliografische Daten sind im Internet über http://dnb.ddb.de abrufbar
- D 83
- ISBN 3-936846-61-8
- © 2003 Wissenschaftlicher Verlag Berlin
- Olaf Gaudig & Peter Veit GbR
- www.wvberlin.de
- Alle Rechte vorbehalten.
- Dieses Werk ist urheberrechtlich geschützt.
- Jede Verwertung, auch einzelner Teile, ist ohne Zustimmung des Verlages unzulässig. Dies gilt insbesondere für fotomechanische Vervielfältigung sowie Übernahme und Verarbeitung in EDV-Systemen.
- Umschlaggestaltung: Thomas Wienands
- Druck und Bindung: Schaltungsdienst Lange o.H.G.‚ Berlin
- Printed in Germany
- € 49,00
- ____
- 5
- Vorwort
- Die vorliegende Arbeit wurde im Juli 2002 als Dissertation vom Fachbereich I Geisteswissenschaft (Institut für Geschichte und Kunstgeschichte) der Technischen Universität Berlin zur Erlangung des akademischen Grades eines Doktors der Philosophie angenommen. Für die Drucklegung wurde sie geringfügig überarbeitet.
- Den Anstoß zu dieser Arbeit verdanke ich meinem Lehrer und Doktorvater Herrn Professor Doktor Robert Suckale, der meine Studien immer mit großem Interesse und viel Geduld unterstützte. Er hat gewissermaßen als „Vater des Gedankens“ meinen Blick auf die von der Kunstwissenschaft bislang wenig beachtete Herrscherpersönlichkeit Lothars III. gelenkt. Seiner fachlichen Betreuung, seiner Ideen und Anregungen konnte ich mir in vielen Gesprächen sicher sein. Besonders für sein stetes Bemühen, meine beständigen Zweifel an der Methode des interdisziplinären Arbeitens immer wieder zu zerstreuen, möchte ich ihm herzlich danken. Auch Herrn Professor Doktor Wolfgang Radtke (TU Berlin) danke ich für die Übernahme des Koreferates.
- Die finanzielle Unterstützung meiner Studien zur Baukunst Kaiser Lothars III. und seiner sächsischen Parteigänger verdanke ich einem zweijährigen NaFöG-Stipendium des Landes Berlin. Im Rahmen dieser Förderung konnte ich eine Vielzahl der Bau- und Kunstwerke vor Ort studieren und in den Landesämtern für Denkmalpflege in Niedersachsen, Schleswig-Holstein, Sachsen-Anhalt und Sachsen die Grabungsakten und Dokumente zu zahlreichen Denkmälern vorwiegend problemlos einsehen. Für seine spontane Hilfe und sein andauerndes Interesse an meinen Forschungen zu den Lotharstiftungen in Süpplingenburg und Königslutter möchte ich Herrn Dr. Volker Braun vom Landesamt für Denkmalpflege Niedersachsen in Hannover herzlich Dank sagen.
- Mein Dank geht in großem Maße an Freunde und Kollegen, die den Beginn, den Fortgang und vor allem den Abschluß meiner Arbeit mit fruchtbaren Gedanken und Gesprächen, mit Kritik und Anerkennung begleitet haben: Ich danke Sabine Bengel in besonderem Maße, Petra Marx, Wolfgang Seidel, Thomas Wienands und meiner Schwester Franziska Tews. Mein Mann Marco Lawrenz hat mein Vorhaben in vieler Hinsicht mitgetragen und mir durch seine stete Hilfe in technischen Fragen das mühevolle Einarbeiten in den Umgang mit Technik erspart.
- ____
- 6
- Den größten Anteil am Entstehen meiner Arbeit haben meine Eltern Heidemarie und Dr. Wolfgang Tews. Sie haben meine Ausbildung von Beginn an in großzügiger Weise gefördert, und meine Studien immer mit Neugier und Begeisterung begleitet. Mit ständig wachsendem Interesse an Lothar III. wurden sie schließlich nie müde, Mut, Kraft und Ausdauer zu schenken und in der Zielgeraden zum Tempo zu mahnen. Ihnen soll dieses Buch gewidmet sein.
- Cornelia Lawrenz Berlin, Dezember 2003
- ____
- 7
- I. Einleitung
- I.1. Einleitung und methodisches Vorgehen ...........................................9
- I.2. Zum Stand der Forschung ............................................................14
- II. Der historische Hintergrund
- II.1. Lothar III. zwischen Königtum und Reformpapsttum ....................20
- II.1.1. Investiturstreit und Gregorianische Reform:
- Zum Gebrauch zweier Topoi und deren Bedeutung ..............................21
- II.1.2. Die Gregorianische Kirchenreform in der Politik Lothars III.:
- Kaiser Lothar III. - ein Gregorianer? ...................................................29
- II.2. Aufbau und Ausbau der Herrschaftslegitimation Lothars III.:
- Der Umgang mit dem Erbe ..................................................................44
- II.2.1. Lothars Voraussetzungen ..........................................................45
- II.2.2. Die ottonischen Züge in Lothars Herrschaft ................................49
- II.2.3. Die salischen Züge in Lothars Herrschaft ...................................60
- II.3. Ergebnisse ...................................................................................63
- III. Architektur im Umfeld Kaiser Lothars III.
- III.1. Die sächsische (Reform-)Architektur im frühen 12. Jahrhundert.....67
- III.2. Lothar als Stifter und Bauherr ......................................................70
- III.2.1. Kaiserliche Stiftungen ...............................................................70
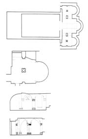
- III.2.1.1. Süpplingenburg, St. Johannes ................................................70
- III.2.1.2. Bad Segeberg, St. Marien .....................................................87
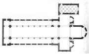
- III.2.1.3. Königslutter, St. Peter und Paul .............................................95
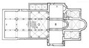
- III.2.l.4. Chemnitz, St. Marien ............................................................112
- III.2.1.5. Ergebnisse ...........................................................................121
- III.2.2. Umbauten im kaiserlichen Kontext ..........................................125
- III.2.2.1. Bursfelde, St. Thomas und St. Nikolaus ...............................125
- III.2.2.2. Goslar, St. Ulrich ................................................................130
- III.2.2.3. Altenburg, St. Bartholomäi ..................................................134
- III.2.3. Kaiserlich privilegierte Bauten .................................................137
- III.2.3.1. Drübeck, St. Veit ................................................................138
- III.2.3.2. Braunschweig, St. Ägidien ...................................................142
- III.2.3.3. Quedlinburg, St. Servatius ....................................................144
- III.2.3.4. Hochelten, St. Vitus .............................................................147
- III.2.3.5. Speyer, St. Maria ................................................................152
- III.3. Ergebnisse .................................................................................154
- ____
- 8
- IV. Architektur der kaiserlichen Parteigänger
- IV.1. Lothar III. und der sächsische Adel im frühen 12. Jahrhundert .....159
- IV.1.1. Die adeligen Parteigänger und ihre Kirchenbauten ....................162
- IV.1.1.1. Albrecht der Bär ..................................................................163
- IV.1.1.2. Friedrich II. von Sommerschenburg ......................................169
- IV.1.1.3. Otto von Rheineck ...............................................................174
- IV.1.1.4. Heinrich von Groitzsch .........................................................175
- IV.1.1.5. Siegfried IV. von Boyneburg ................................................178
- IV.1.1.6. Ludwig I. von Thüringen .......................................................183
- IV.1.1.7. Konrad von Wettin ..............................................................188
- IV.1.1.8. Widukind I. von Schwalenberg .............................................192
- IV.1.1.9. Konrad von Plötzkau ...........................................................196
- IV.1.1.10. Adolf II. von Berg ..............................................................205
- IV.1.1.11. Friedrich von Beichlingen ...................................................206
- IV.1.1.12. Grafen von Ammensleben(-Hillersleben) .............................210
- IV.1.1.13. Die Grafen von Katlenburg .................................................214
- IV.1.1.14. Burchard von Konradsburg ................................................216
- IV.1.2. Die kirchlichen Parteigänger und ihre Kirchenbauten .................221
- IV.1.2.1. Sigward von Minden ......................................................... ..225
- IV.1.2.2. Adalbert I. von Mainz ................................................... ......231
- IV.1.2.3. Gerhard von Riechenberg .....................................................237
- IV.1.2.4. Die Bischöfe von Halberstadt ...............................................240
- IV.1.3. Richenza und andere Familienmitglieder ...................................245
- IV.2. Ergebnisse .................................................................................251
- IV.3. Exkurs: Lothar III. und Bayern ...................................................256
- V. Resümee
- V.1. Lothar III. und die Folgen seiner Baukunst in Sachsen ..................265
- VI. Abkürzungen ...............................................................................272
- VII. Lexika ........................................................................................273
- VIII. Quellen .......................................................................................273
- IX. Regesten .....................................................................................274
- X. Inventare .....................................................................................275
- XI. Untersuchungen und Darstellungen ...............................................278
- XII. Abbildungsnachweis ....................................................................307
- XIII. Abbildungsverzeichnis .................................................................307
- XIV. Nachbemerkung..........................................................................307
- ____
- 9
- I. Einleitung
- I.1. Einleitung und methodisches Vorgehen
- Mit Lothar III. saß zwischen 1125 und 1137 ein Mann auf dem deutsch-römischen Herrscherthron, der Sachsen noch einmal zur Königslandschaft machte. Denn seit den Ottonen, die mit Quedlinburg und Magdeburg bedeutende sächsische Macht- und Kulturzentren hinterließen, hatte kein mittelalterliches Herrschergeschlecht diese Gegend mehr besonders geprägt. Für die Salier unter Heinrich III. wurde Goslar zwar erneut ein wichtiger Königsort, doch hatte die Regierung und vor allem die Baukunst Lothars III. eine ungleich nachhaltigere Wirkung auf die sächsische Architektur- und Königslandschaft insgesamt.
- Aus diesem Grunde verwundert es, dass in der Kunstgeschichte der Name Lothars III. vorwiegend für dessen Grablege steht, für die ab 1135 errichtete Klosterkirche St. Peter und Paul in Königslutter. Während die neuere historische Forschung viele politische und kirchenpolitischen Themen neu aufrollte und die Herrscherpersönlichkeit Lothars III. einer Neubewertung unterzog, fehlen in der Kunstgeschichte bislang Ansätze, die Person des Kaisers ins Licht der Forschung zu rücken. Die vorliegende Arbeit soll einen Teil dieser Lücke schließen. Dabei nähert sie sich den Stiftungen des Kaisers und seiner Parteigänger nicht ausschließlich mit Mitteln der vergleichenden Form- und Stilanalyse, sondern bezieht politische und persönliche Konstellationen in die Überlegungen mit ein.
- Den Anstoß zu dieser Vorgehensweise gab das Buch von Robert Suckale: Die Hofkunst Kaiser Ludwigs des Bayern, München 1993. Suckale legt hier einen umfassenden Katalog der Kunst des Bayernkaisers Ludwig und seiner Parteigänger vor. Durch diesen neuen Blickwinkel auf viele bekannte Bau- und Kunstwerke der ersten Hälfte des 14. Jahrhunderts wurden bisher unbekannte Zusammenhänge zwischen Kunst, Politik und gesellschaftlichen Strukturen der Zeit erfaßt.
- In eine ähnliche Richtung gingen in den 50er Jahren die Forschungen Günter Bandmanns, der in der Wahl bestimmter Formen auch eine geschichtliche Bedeutung sah. Bandmann bewertete bei jeder Architekturanalyse immer auch den Quellenwert eines Formenzitats und seine politische Dimension. In diesem Sinne legte er den Grundstein für eine weitere Kategorie der Kunstbetrachtung, nämlich die, neben Form, Stil und Funktion auch den Quellenwert eines Werkes in die Deutungsabsicht miteinzubeziehen.
- ____
- 10
- In einem seiner wichtigsten Texte zur mittelalterlichen Architekturikonologie schlägt Bandmann vier Methoden ihrer Anwendung vor:
- „Die literarischen Quellen können die allegorischen Bezüge mitteilen, über Kopieabsichten und vor allem über den Bauherrn aussagen. Die bildlichen Quellen (Buchmalerei, Münzen, Siegel, Elfenbeine) können über die Verwendung von Architekturformen in szenischem Zusammenhang berichten.
- Die Wahl oder Ablehnungen bestimmter Formen durch die Auftraggeber oder Bauherrn kann etwas über die geschichtliche Bedeutung der Formen aussagen.
- Eine dritte Quelle für die Erfassung der Bedeutung, die bestimmten Baugliedern innewohnt, sind die Beobachtungen in Bezug auf den Platz, an dem sie am Bauwerk erscheinen.
- (...)
- Die zeitliche und geographische Verbreitung der Formen kann etwas über ihre Bedeutung aussagen, wenn die Verbindung mit geschichtlichen Mächten, die in dieser Zeit und in diesem Raum herrschend waren, nachweisbar ist. ” 1
- Vor dem Hintergrund dieser methodischen Anleitung ist der folgende Überblick zur lotharischen Baukunst auch ein Versuch, Bandmanns Grundgedanken vom Nutzen mittelalterlicher Bau- und Kunstwerke als historische Quellen und ihrer darüber hinausgehenden Sinnträgerschaft nachzugehen. Dabei werden auf der Basis geistes- und familiengeschichtlicher Zusammenhänge zwischen Kaiser Lothar III., seinen Parteigängern und politischen Verbündeten, die Bauaufträge sowohl des Kaisers als auch die seiner engsten Vertrauten auf ihre Funktion und Bedeutung für eine kaiserliche Herrschaftskonzeption und -repräsentation hin untersucht. Ziel ist es, Kriterien und Prioritäten für eine bestimmte kaiserliche Baupolitik herauszuarbeiten und den Nachweis einer politischen Funktion einzelner Kirchenbauten zu führen.
- Bestimmend für diese Vorgehensweise, die mit den methodischen Schlagworten interdisziplinäres Arbeiten und gattungsübergreifender Ansatz zunächst am besten charakterisiert ist, hat sich eine intensive Beschäftigung mit der mittelalterlichen Geschichtswissenschaft erwiesen. Wo anders sollte man auch suchen, will man die Kunstgeschichte in ihrer Eigen-
- ___
- 1 G. Bandmann, Ikonologie der Architektur, in: Jahrbuch für Ästhetik und allgemeine Kunstwissenschaft 1, 1951, S. 67-109, ebd. S. 108.
- ____
- 11
- schaft als bloße Formengeschichte erweitern und überwinden? Dies gilt besonders für den Bereich der Mediävistik. In dem Maße, wie in historischen Fakultäten zunehmend Arbeiten entstehen, die Kunstwerke als historische Quellen heranziehen 2, sind in der Kunstwissenschaft die Beiträge zu einer - um einen Begriff von Robert Suckale (1993) aufzugreifen - „Rehistorisierung der Kunstgeschichte” 3 noch eher selten. Interdisziplinäres Arbeiten bedeutet für den Kunsthistoriker in diesem Falle zwar einerseits, den oft engen Blick auf Kunstwerke um eine Facette bereichert zu haben. Andererseits sucht man aber nicht selten die richtige Position auf dem schmalen Grad zwischen Kunstwissenschaft und Geschichtswissenschaft, und die Versuchung, inhaltlich zu vereinfachen, ist oft groß! So stellt diese Arbeit innerhalb der konkreten Aufgabenstellung, das Portrait eines der Kunstgeschichte noch weitgehend unbekannten Herrschers zu zeichnen, auch den Versuch dar, den Ansprüchen von Kunstgeschichte und Geschichtswissenschaft gleichermaßen gerecht zu werden.
- Den Studien zur Baukunst unter Kaiser Lothar III. sind in einem ersten Teil historische Fakten und Thesen zu Politik und Kirchenreform vorangestellt, ohne die eine Beurteilung Lothars und seiner Parteigänger als Stifter und Bauherren nicht möglich wäre. Die Architektur unter Lothar III. als Zeugnis kaiserlichen Anspruchsdenkens bewerten kann nur, wer Lothars Sonderstellung als sächsischer Wahlkönig, die Probleme seiner Wahl und Herrschaftslegitimation sowie sein diplomatisches Handeln zwischen Reformkurie und repräsentativem Königtum kennt und zu würdigen vermag. Zu diesem Zweck werden Erkenntnisse der historischen Mittelalterforschung zum Investiturstreit, zur Gregorianischen Reform und den Kirchenreformen des 12. Jahrhunderts in den Dienst der eigenen Thesen gestellt und vereinzelt durch Interpretationen und kunsthistorische Exkurse erweitert.
- Das komplexe Thema der Architektur im Umfeld Kaiser Lothars III. umfaßt im zweiten Teil dieser Arbeit Werke der Romanischen Architektur des 12. Jahrhunderts in Sachsen 4, die unter rein formgeschichtlichen Frage-
- ____
- 2 Stellvertretend für viele F. Matsche, Die Kunst im Dienst der Staatsidee. Kaiser Karl VI. Ikonographie, Ikonologie und Programmatik des Kaiserstils, Berlin 1981 und N. Staubach, Rex Christianus. Hofkultur und Herrschaftspropaganda im Reich Karls des Kahlen, Köln 1993.
- 3 R. Suckale, Die Hofkunst Kaiser Ludwigs des Bayern, München 1993, S. 12.
- 4 Der Begriff Sachsen, wie er im Folgenden benutzt wird, umfaßt das Gebiet des historischen Stammesherzogtums Sachsen im 12. Jahrhundert. Bestehend aus Teilen der heutigen Bundesländer Niedersachsen, Sachsen-Anhalt, Westfalen, Schleswig-Holstein, Sachsen und Thüringen ist der bezeichnete Bereich geographisch im Westen mit dem Rhein, im Norden mit der Grenze zum Königreich Dänemark, im Süden mit dem Main und im Osten mit der Elbe (teilweise auch der Oder im Nordosten) einzugrenzen.
- ____
- 12
- stellungen - zumeist durch klassische Baumonographien - bereits erschöpfend bearbeitet wurden. Dabei wurden oft wichtige historische, politische und geistesgeschichtliche Aspekte vernachlässigt, die als Quellen den Blick auf das einzelne Bauwerk erweitern und das Gesamtbild der sächsischen Architektur unter Lothar III. formen könnten. Diesem Desiderat versucht die folgende Arbeit zu entgegnen, jedoch ohne den Anspruch auf enzyklopädische Vollständigkeit. Im Vordergrund stehen dabei zunächst die kaiserlichen Stiftungen in Süpplingenburg, Bad Segeberg, Chemnitz und Königslutter, die einzeln und in chronologischer Reihenfolge unter kritischer Revision der Quellen und bauhistorischen Fakten vorgestellt werden. Mit den erarbeiteten Grundzügen lotharischer Baukunst werden anschließend die vom Kaiser mit besonderen Privilegien ausgestatteten Kirchenbauten sowie die Stiftungen seiner Parteigänger unter folgenden Fragestellungen untersucht:
-
Spiegeln bedeutende Bauvorhaben, Werke der Kleinkunst und der Wandmalerei ausgewählter Bauherren und Auftraggeber eine bestimmte politische und künstlerische Motivation wider?
-
Steht diese Motivation möglicherweise in direktem Zusammenhang zur Baupolitik Lothars III.?
-
Sind von dort Rückschlüsse auf eine bewußt inszenierte kaiserliche Herrschaftskonzeption und -repräsentation erlaubt?
- Die Auswahl der im dritten Teil behandelten Bauten geben in erster Linie die historischen Vorarbeiten Wolfgang Petkes in den Studien zur „Kanzlei, Kapelle und königlichen Kurie unter Kaiser Lothar III.“ (1985) vor. Eine vom Autor zusammengestellte Gruppe sächsischer Adliger, die aufgrund landschaftlicher Herkunft, politischen Interesses, kirchenpolitischer Stellung oder Verwandtschaft mit dem Kaiser eine Vertrauensposition am Hof Lothars einnahm, dient auch als inhaltliches Gerüst für die kunsthistorischen Studien 5. Denn ein Großteil dieser Personen war in Lothars Regierungszeit oder kurz danach als Stifter bedeutender sächsischer Kirchenbauten in Erscheinung getreten und hatte damit gleichermaßen die Kirchenreform und die Präsenz kaisertreuer Anhänger in Sachsen gestärkt.
- ____
- 5 W. Petke, Kanzlei, Kapelle und königliche Kurie unter Lothar III. (1125-1137), Köln 1985; zum methodischen Vorgehen S. 106-117 und S. 421-425.
- ____
- 13
- In welchem Maße die Stiftungen des hohen Adels an der Verbreitung lotharischer Bau- und ornamentaler Einzelformen insbesondere der von Königslutter Anteil haben, wird vor dem Hintergrund ihrer kunsthistorischen Stellung innerhalb der sächsischen Baukunst des frühen 12. Jahrhunderts erörtert. Dieser Vorgehensweise sind allerdings in dem Moment Grenzen gesetzt, wo der Zustand eines Bauwerks nur spekulative Bemerkungen zur Rezeption der Baukunst Lothars III. zuläßt oder eine umfassende Bearbeitung zu keinen neuen Ergebnissen führt. Aus diesem Grunde sind die einzelnen Bau- und Kunstwerke in essayistischer Form behandelt und thematisieren, mit Verweis auf den aktuellen Forschungsstand, jeweils nur die für die vorliegende Arbeit relevanten Fragestellungen.
- Auch ist bereits an dieser Stelle zu erwähnen, daß künstlerische Bezüge zwischen der Kaiserbaukunst und den sächsischen Adelsstiftungen nur selten anhand ausführlicher Stilvergleiche der Bauskulptur aufgezeigt werden. In erster Linie bilden die politischen und die kirchenreformerischen Strukturen, die sich gewissermaßen als Quellen für bestimmte künstlerische Leitbilder der lotharischen Baukunst herausstellen werden, auch den Maßstab für die Rezeption der Lothar-Baukunst durch die Parteigänger.
- Die aus dem historischen Ansatz dieser Arbeit erwachsende These, einer die kaiserliche Baukunst aus verschiedensten Motiven rezipierenden Parteigängerschaft, läßt die vielleicht naheliegende Möglichkeit in den Hintergrund treten, in dem gehäuften Auftreten bestimmter Bau- und Ornamentformen eine regionale Verbreitung durch wandernde Bauhütten und Werkstätten zu vermuten. Natürlich wird die Frage aufkommen, ob die kaiserliche Baukunst - insbesondere Königslutter - nicht einfach nur eine künstlerische Mode war, an der man sich in Sachsen um die Mitte des 12. Jahrhunderts in besonderem Maße orientierte. Doch soll gerade diese, die Forschung vorwiegend bestimmende, stil- und formenbezogene Herangehensweise an kunsthistorische Komplexe, in diesem Fall die sächsische Baukunst unter Lothar III.‚ zugunsten neuer und anderer Bewertungskriterien in den Hintergrund treten. Die hier aufgezeigten persönlichen Verbindungen und politischen Abhängigkeiten einiger Stifter zu Lothar III. sind die Voraussetzung für den Entwurf einer kaiserlich-sächsischen Baukunst, die in den Lotharstiftungen ihren Anfang nimmt.
- Die persönlichen und politischen Konstellationen fußten letztendlich selten auf schriftlichen Quellen und sind deshalb oft als Vermutungen formuliert. So darf der Leser keine endgültigen Antworten erwarten und ist aufgefordert, das Netz der persönlichen und politischen Bindungen zwischen Lothar und seinen Parteigängem als einen Vorschlag für die regionale Verbreitung ausgewählter künstlerischer Bau- und Ornamentformen der Lothar-Baukunst zu verstehen und kritisch zu bewerten.
- ____
- 14
- I.2. Zum Stand der Forschung
- In den älteren Standardwerken zur mittelalterlichen Geschichte von Giesebrecht (1877) und Ranke (1887) bis zu Kienast (1974), Fuhrmann (1978) und Seibt (1987) nimmt die Regierungszeit Kaiser Lothars III. (1125-1137) im Vergleich zu den Ottonen, Saliern und Staufern oft nur einen kurzen Abschnitt ein 6. Zuweilen beginnen auch Kapitel über das Zeitalter der Salier oder der Staufer mit dem Königtum Lothars, der aber nun einmal der sächsischen Adelsopposition gegen die Salier entsprang und einen Großteil seines politischen Kampfes auch gegen die Staufer führte 7.
- Als sächsischer Herzog stand Lothar auch in der Tradition der Ottonen, deren Herrschaftszentrum in Sachsen gelegen hatte, und war damit alles andere als ein Auftakt der staufischen Epoche. Allerdings wurden die vernichtenden Urteile der älteren Forschung, die in Lothars Herrschaft nur ein „Interregnum und schweren Zeitverlust für die Aufbauarbeit der Staufer“ 8 sahen oder Lothar III. „trotz der masslosen Bewunderung seiner Parteigenossen für keinen bedeutenden Mann“ 9 hielten, zuweilen auch revidiert: Franz-Josef Schmale (1968) holte das lotharische Königtum erstmals aus dem Schatten der staufischen Herrschaft Konrads III. und Friedrichs I. und würdigte den Weg, den Lothar III. als Territorial-, Missions- und Kirchenpolitiker nach dem Investiturstreit beschritt. Zugleich beschrieb er Lothars Bestreben, als Protege des Welfen Heinrichs des Stol-
- ____
- 6 W. v. Giesebrecht, Geschichte der deutschen Kaiserzeit Bd. 4, Leipzig 21877, S. 3-168; L. v. Ranke, Weltgeschichte Bd. 8, München/Leipzig 1887, S. 127-137; W. Kienast, Deutschland und Frankreich in der Kaiserzeit (900-1270), Stuttgart 1974, S. 196-98; H. Fuhrmann, Deutsche Geschichte im Hohen Mittelalter, Göttingen 1978, S. 132-141; F. Seibt, Glanz und Elend des Mittelalters. Eine endliche Geschichte, Berlin 1987, S. 261.
- 7 Ranke 1887, S. 127 und K. Hampe, Deutsche Kaisergeschichte in der Zeit der Salier und Staufer, Leipzig 81943, S. 102-123. Bei U. Knefelkamp, Das Mittelalter. Geschichte im Überblick, Paderborn 2002, S. 182-187 steht der Abschnitt zu Lothar III. unter der Kapitelüberschrift: Die Salier.
- 8 H. Mitteis, Die Krise des deutschen Königswahlrechts, in: Königswahl und Thronfolge in ottonisch-frühdeutscher Zeit, hrsg. von E. Hlawitschka, Darmstadt 1971, S. 216-302, ebd. S. 295.
- 9 A. Hauck, Kirchengeschichte Deutschlands, Bd. 4, Leipzig 1903, S. 116. Zu diesem Bild hat nicht zuletzt die Darstellung Lothars bei W. Bernhardi, Lothar von Supplinburg, Jahrbücher der deutschen Geschichte, Leipzig 1879, S. 790-802 beigetragen, die allerdings durch eine Fülle von Quellenmaterial wichtige Vorarbeiten für die Lothar-Forschung geleistet hat.
- ____
- 15
- zen, den er schon 1127 mit seiner Tochter Gertrud vermählte, ein „nach seinem Willen verwirklichtes Königtum“ vorzubereiten 10.
- Wichtiges Instrument bei diesem Vorhaben war auch der Besitz der seit den Saliern zwischen Papst und Königtum umstrittenen Güter der toskanischen Markgräfin Mathilde, die ein beträchtliches Territorium und damit eine Schlüsselstellung für die königliche Macht in Italien bedeuteten. Thomas Groß (1990) schildert neben der Geschichte der Mathildischen Güter und den damit verbundenen vielseitigen Lehensbeziehungen ausführlich die Versuche und das schließliche Gelingen der Inbesitznahme der Güter durch Lothar III. sowie die Übergabe der Markgrafenrechte an seinen Schwiegersohn Heinrich den Stolzen 1137 11. Zuletzt zeigt Werner Hechberger (1996) die Grenzen der - wie er es nennt - „kontrafaktischen Geschichtsschreibung“ auch in Bezug auf die Beurteilung des lotharischen Königtums auf. In einer kurzen Stellungnahme zur Bedeutung Lothars für das Selbstverständnis der Welfen überwindet auch er verbreitete Vorstellungen vom staufisch-welfischen Gegensatz als Kampf zweier Adelsgeschlechter, die unter Beteiligung Lothars lediglich das staufische Königtum verhindert hätten 12.
- So setzte sich als Tenor der neueren historischen Forschung durch, Lothar als Herrscherpersönlichkeit zu sehen, die nach den im Investiturstreit gipfelnden Auseinandersetzungen zwischen Kaisertum und Papsttum durch diplomatisches Geschick eine neue Epoche mittelalterlicher deutscher Königs- und Reichspolitik einleitete. Auch das Urteil über Lothar als einer nur von seinen kirchlichen Bündnispartnem abhängigen Marionette konnte von Lothar Speer (1983) korrigiert werden 13. Diese Bewertung bezieht sich in erster Linie auf das Verhältnis Lothars III. zu Adalbert I. von Mainz, dem damals mächtigsten und einflußreichsten deutschen Kirchenfürsten, der 1125 Lothars Wahl zum deutschen König maßgeblich beeinflußt hat. Die Umstände dieser Königswahl, insbesondere das enge Zusammenwirken und die teilweise Abhängigkeit Lothars von Adalbert bestimmten eine prostaufische und damit tendenziöse Geschichtsschreibung,
- ____
- 10 F.-J. Schmale, Lothar III. und Friedrich I. als Könige und Kaiser, in: Probleme des 12. Jahrhunderts 1965/67, Konstanz 1968, S. 33-52. Wiederabgedruckt in: G. Wolf (Hg.), Friedrich Barbarossa (Wege der Forschung 390), 1975, S. 121-148 (danach zitiert).
- 11 T. Groß, Lothar III. und die Mathildischen Güter, Frankfurt 1990, S. 42-137.
- 12 W. Hechberger, Staufer und Welfen (1125-1190). Zur Verwendung von Theorien in der Geschichtswissenschaft, Köln [u.a.] 1996, S. 218-226.
- 13 L. Speer, Kaiser Lothar III. und Erzbischof Adalbert I. von Mainz, Köln/Wien 1983.
- ____
- 16
- welcher Speer mit seiner Darstellung entgegnet, die Lothars weitgehende Eigenständigkeit im Verhältnis zwischen König und Erzbischof aufzeigt.
- Die beiden Beiträge zum Itinerar Lothars III. von Charlotte Kuck (1945) und Hans Oehler (1957) sowie die Arbeit Herbert Vogts (1959) zu Lothars Territorialgewalt in Sachsen haben weniger die geschichtliche Neubewertung Lothars III. vorangetrieben, vielmehr leisteten sie wertvolle Grundlagenforschung zu Fragen der lotharischen Herrschaftspraxis und zu den weitverstreuten familiären Besitzverhältnissen 14. Auch das jüngste Werk zum Itinerar Lothars III. von Oliver Hermann (2000) bezieht sich als interdisziplinäre Studie mit historisch-geographischer Fragestellung auf politische sowie territorial- und siedlungsgeschichtlich relevante Aspekte der Reichsstruktur, die den Wirkungsbereich des Königs markierten 15.
- Vom kunsthistorischen Schwerpunkt dieser Arbeit erscheint es wenig sinnvoll, tiefer in die umfangreiche historische Forschungsliteratur zu Kaiser Lothar III. einzudringen. Die komplexen Themenbereiche beispielsweise zur Ostseepolitik, zum Schisma von Rom 1130, zur Kolonisationsbewegung unter Lothar III. oder zu Lothars Verhältnis zum Erzbistum Köln 16 erarbeiten oft zu spezielle Einzelergebnisse, die den kunsthistorischen Blickwinkel selten berühren. Deshalb werden anschließend nur einige historische Publikationen vorgestellt, deren Material sich als grundlegend für den kunsthistorischen Teil dieser Arbeit erwiesen hat. In den darauffolgenden Abschnitten wird die für die historischen Themenbereiche Investiturstreit, Kirchenreform, Wahl Lothars, Mechanismen der Herrschaftslegitimation Lothars III. oder zum Sakralkönigtum wichtige Forschungsliteratur jeweils im Zusammenhang aufgeführt und um einige Gedanken zur Person und Herrschaft Lothars III. ergänzt.
- ____
- 14 C. Kuck, Das Itinerar Lothars von Supplinburg, Phil. Diss. (masch.) Greifswald 1945 und H. Oehler, Das Itinerar des Königs. Seine Ordnung und seine Beziehung zur Regierungstätigkeit in der Zeit Kaiser Lothars III., Phil. Diss. (masch) Freiburg 1957; H. W. Vogt, Das Herzogtum Lothars von Süpplingenburg 1106-1125, Hildesheim 1959.
- 15 O. Hermann, Lothar III. und sein Wirkungsbereich. Räumliche Bezüge königlichen Handelns im hochmittelalterlichen Reich (1125-1137), Bochum 2000.
- 16 H. Stoob, Gedanken zur Ostseepolitik Lothars III., in: Festschrift für Friedrich Hausmann, hrsg. von Herwig Ebner, Graz 1977, S. 531-551; H. Beumann, Das päpstliche Schisma von 1130, Lothar III. und die Metropolitanrechte von Magdeburg und Hamburg-Bremen in Polen und Dänemark, in: Deutsche Ostsiedlung in Mittelalter und Neuzeit (Studien zum Deutschtum im Osten 8), Köln/Wien 1971, S. 20-34; A. Hofmeister, Kaiser Lothar und die große Kolonisationsbewegung des 12. Jahrhunderts, in: ZGSHG 43, 1913, S. 353-371; F.-R. Erkens, Die Kölner Kirche und das Reich in der Regierungszeit Lothars von Supplinburg, in: Köln-Stadt und Bistum in Kirche und Reich des Mittelalters, Festschrift für Odilo Engels, Köln [u.a.] 1993, S. 283-321.
- ____
- 17
- So haben sich für die Zusammenstellung der Stiftungen Lothars, die von ihm privilegierten Bauten sowie die Erfassung seiner Parteigänger und deren Kirchenstiftungen das Studium der Edition der Regesta Imperii Kaiser Lothars III. (1994) und der begleitenden Vorarbeiten Petkes (1985) als grundlegend erwiesen 17. Beide Arbeiten identifizieren die in den Diplomen und Quellen genannten Ratgeber, Vertrauten und Helfer Kaiser Lothars III. und erfassen dabei auch die politischen Strömungen am kaiserlichen Hofe. Ergänzend zu den dort ausführlich kommentierten und mit umfangreichen Literaturverweisen versehenen Quellen boten die Studien von Lutz Fenske (1977) zur sächsischen Adelsopposition und Ruth Hildebrand (1986) zur Herzogenzeit Lothars wichtiges Material hinsichtlich genealogischer Verbindungen des sächsischen Hochadels 18. Ein vergleichbar wertvolles Hilfsmittel zur Bewertung der kirchlichen Parteigänger waren die Forschungen von Marie-Luise Crone (1982), die die Zusammensetzung des deutschen Reichsklerus nach dem Investiturstreit und dessen Beziehungen zu Kaiser Lothar III. analysieren 19.
- Gewissermaßen eine direkte Überleitung zur kunsthistorischen Forschung liefern die in Geschichte und Kunstgeschichte gleichermaßen vielbeachteten und bis heute maßgeblichen Arbeiten von Percy Ernst Schramm. In der Hauptsache sind es seine Ausführungen in Die deutschen Kaiser und Könige in Bildern ihrer Zeit 751-1190 (21983) und in dem gemeinsam mit Florentine Mütherich erarbeiteten Kompendium Denkmale der deutschen Könige und Kaiser (1962) 20. Dort sind alle bekannten bildlichen Darstellungen Lothars III. katalogartig versammelt und erstmals einer gründlichen Bearbeitung unterzogen. Auf ihnen basieren im Grunde alle nachfolgenden Forschungen zu bildlichen Darstellungen Lothars III. 21 In einem gleichfalls auf die Symbolfunktion von Herrschaftszeichen abzielenden Ansatz, Lothars Idee von dynastischer Herrschaft über politische
- ____
- 17 Petke 1985; J. F. Böhmer, Regesta Imperii, Die Regesten des Kaiserreiches unter Lothar III. und Konrad III.‚ 1. Teil: Lothar III. 1125 (1075)-1137‚ Neubearbeitung v. W. Petke, Köln [u.a.] 1994 (zitiert als Reg. Imp. Loth.).
- 18 L. Fenske, Adelsopposition und kirchliche Reformbewegung im östlichen Sachsen, Göttingen 1977; R. Hildebrand, Herzog Lothar von Sachsen, Hildesheim 1986.
- 19 M.-L. Crone, Untersuchungen zur Reichskirchenpolitik Lothars III. (1125-1137) zwischen reichskirchlicher Tradition und Reformkurie, Frankfurt a. M. 1982.
- 20 Schramm 21983, S. 124-127 und S. 253-259; Schramm/Mütherich 1962, Bd. 1 S. 179, 406.
- 21 G. B. Ladner, Images and Ideas in the middle ages, Bd. 1, Rom 1983, S. 356-366 und C. Walter, Prayer and power in Byzantine and Papal Imagery, Aldershot 1993, S. 166-69; H. Thümmler, Ein romanisches Königshaupt aus Freckenhorst (Westfalen), in: Miscellanea Bibliothecae Hertzianae, München 1961, S. 97-103, wiederabgedruckt in: Thümmler 1998, S. 357-363.
- ____
- 18
- Symbole (Königslutterer Grabbeigaben) zu definieren, gelingt auch Laudage (1993) eine kurze, aber dichte Skizze des sächsischen Kaisers 22.
- Den architektonischen Stiftungen Kaiser Lothars III. hat man sich indessen nur vereinzelt und mit begrenzten Fragestellungen gewidmet. Mit Ausnahme der im Braunschweiger Umkreis Martin Gosebruchs konzentrierten Königslutter-Forschung 23 findet sich in keiner Publikation zu den lotharischen Kirchenstiftungen in Süpplingenburg, Bad Segeberg oder Chemnitz eine Würdigung der kaiserlichen Bau- und Stiftungstätigkeit insgesamt. Desgleichen sind die Bauten der lotharischen Parteigänger nicht über monographische Bearbeitungen hinaus in den Kontext der kaiserlich-sächsischen Architektur der ersten Hälfte des 12. Jahrhunderts gestellt worden.
- Das kleine populärwissenschaftlich angelegte Büchlein von Hans Krumbholz, der einige sächsische Bauten der Zeit Lothars III. zusammenstellt, bleibt die einzige Ausnahme 24. Der Autor führt den Leser in dem als Reiseführer durch Niedersachsen und Sachsen-Anhalt angelegten Band zu lotharischen Wirkungsstätten, die er nach historischen und kunsthistorischen Gesichtspunkten auswählt und dortige, in die Regierungszeit Lothars III. fallende Baumaßnahmen, mit Schenkungen und finanziellen Zuwendungen des Kaisers in Verbindung bringt. Krumbholz berührt dabei im Grunde genommen die Methode der vorliegenden Arbeit, läßt jedoch den herrschaftspolitischen Aspekt und den besonderen Stellenwert der durch Lothar im Sachsen des 12. Jahrhunderts etablierten Rezeption antiker und italienischer Kunst außer acht.
- Das Bild von Kaiser Lothar III., sei es in der Historiographie oder der Geschichtswissenschaft entwickelt, ist seit langem ein zentrales Thema der historischen Forschung. Dagegen gab es seitens der Kunstgeschichtsschreibung bislang keine Ansätze, die Bauten des Kaisers und die Stiftungen seiner Parteigänger in einer kritischen Gesamtschau zusammenzustellen. So versteht sich diese Arbeit zuerst als Beitrag zur Kunstgeschichtsschreibung, unter Einbeziehung der Strukturen mittelalterlicher Politik, Kirche, Gesellschaft, Architektur und Kunst der ersten Hälfte des 12. Jahrhunderts, das Portrait Kaiser Lothars III. in seiner Zeit deutlicher zu umreißen. Inwieweit darüberhinaus die historische Mittelalterforschung
- ____
- 22 J. Laudage, Symbole der Politik - Politik der Symbole. Lothar III. als Herrscherpersönlichkeit, in: Luckhardt/Niehoff 1995, Bd. 2, S. 91-104.
- 23 Vgl. Kap. III.2.1.3
- 24 H. Krumbholz, Kaiser Lothar III. Auf den Spuren eines deutschen Kaisers. Ein Reiseführer, Hannover 1993.
- ____
- 19
- diese Arbeit auch als einen Beitrag zur modernen Lotharforschung anerkennt, bleibt abzuwarten.
- ____
- 20
- II. Der historische Hintergrund
- II.1. Lothar III. zwischen Königtum und Reformpapsttum
- Als Herzog Lothar von Süpplingenburg 1125 durch eine freie Wahl zum deutschen König gewählt und 1133 in Rom zum Kaiser gekrönt wurde, bestimmten die Folgen des Investiturstreits das politische Klima im Lande. Erst drei Jahre zuvor war der seit der Mitte des 11. Jahrhunderts schwelende Streit zwischen dem Papst und den salischen Kaisern um das Investiturrecht durch die Bestimmungen des Wormser Konkordats (1122) beigelegt worden 25. Mit der Anerkennung der rechtlich gesicherten Autonomie des Papsttums gegen die königliche Einflußnahme in Kirchenfragen hatten die Kirchenreformer einen ersten Etappensieg errungen. Der Kaiser, einst auch vicarius christi 26, wurde zum Laien herabgesetzt und mußte auch die Autorität des Papstes über das Königtum anerkennen.
- Für Lothar III. bedeutete dies ein Königtum zu übernehmen, das den seit Generationen geführten Kampf um die geistliche oder weltliche Vorherrschaft im Reich, das Ringen um Mit- oder Gegeneinander von regnum und sacerdotium, nicht mehr führen sollte, weil er verloren schien. Die Idee des Sakralkönigtums gehörte im Jahr von Lothars Regierungsantritt 1125 aufgrund der institutionellen Veränderungen durch die Kirchenreformer, die den Primat des Papstes propagierten, der Vergangenheit an. Zwar gelang es Lothar durch diplomatisches Geschick, ein den veränderten Erfordernissen der Zeit angepaßtes König- und Kaisertum zu schaffen, doch nicht ohne sich auf die kaiserliche Tradition seiner sächsisch-ottonischen Vorfahren zu berufen, in deren Kontinuität stehend er sich als Sachsenherzog sah.
- Bevor nun Lothars Weg der Herrschaftslegitimation skizziert wird, sollen nach einem kritischen Resümee zu dem historischen Gegenstand Investiturstreit und Gregorianische Reform zunächst Lothars bewußte Parteinahme
- ____
- 25 Quellen zum Wormser Konkordat bei G. Meyer v. Kronau, Jahrbücher des Deutschen Reichs unter Heinrich IV. und Heinrich V. 7, Leipzig 1890-1909, S. 205-215; zur verfassungsrechtlichen Bedeutung vgl. P. Classen, Das Wormser Konkordat in der deutschen Verfassungsgeschichte, in: Investiturstreit und Reichsverfassung 1973, S. 411-460.
- 26 Zur Vikariatsidee und der imago-Dei-Vorstellung des Königamtes vgl. G. Koch, Auf dem Wege zum Sacrum Imperium. Studien zur ideologischen Herrschaftsbegründung der deutschen Zentralgewalt im 11. und 12. Jahrhundert, Wien [u.a.] 1972, S. 69-72.
- ____
- 21
- für die römische Reformpartei, sein Bündnis mit der Reichsgeistlichkeit sowie die Kooperation mit dem sächsischen Hochadel im Vordergrund stehen.
- II.1.1. Investiturstreit und Gregorianische Reform: Zum Gebrauch zweier Topoi und deren Bedeutung
- Der Investiturstreit war zwar das zentrale aber keineswegs einzige Phänomen, mit dem die Kirchenreformen des 11. und 12. Jahrhunderts Gesellschaft, Königtum und Kirche gravierend veränderten 27. Vielmehr waren mit dem kaiserlichen Gnadenersuch Heinrichs IV. um die Lösung vom Kirchenbann (Canossagang 1077), den Papst Gregor VII. in Rom 1076 über ihn verhängt hatte, kirchenpolitische und herrschaftstheologische Grundsatzfragen in einem personellen Konflikt eskaliert, die schon lange das Machtgefüge zwischen Kaiser und Papst erschütterten.
- Der Terminus Investiturstreit war ein Bestandteil des kirchlichen Verfassungsrechts (Recht zur Vergabe von kirchlichen Ämtern durch Laien) und wurde zum Sinnbild einer kirchenreformerischen Bewegung, die das gesamte Mittelalter betraf und verschiedene Lebensbereiche berührte. Nicht allein die bekannten Schlagworte der Bekämpfung von Simonie und Priesterehe, die Ablehnung der Laieninvestitur, der subsumierende Begriff der Klosterreformen und die am Ende vom Papst geforderte Gehorsamspflicht des Kaisers zählten zu den Inhalten der Reform. Der gesamtgesellschaftliche Umbruch machte auch in Gebieten wie der Kanonistik, des Ordenswesens, der Scholastik, der biblischen und patristischen Traditionen und im Bereich von Landesadel und Ministerialität nicht Halt 28.
- Die Geschichtswissenschaft fand umfassende Beschreibungen für die allgemeinen Reformtendenzen, die zwar von der römischen Kurie gesteuert, aber nicht allein von ihr umgesetzt wurden. So spricht beispielsweise Johannes Laudage mit Pathos von einer „ekklesiologischen Wende von universalhistorischer Bedeutung” 29 und Stefan Weinfurter vom Umbruchcharakter
- ____
- 27 Vgl. dazu etwa R Schieffer, Die Entstehung des päpstlichen Investiturverbots für den deutschen König, Stuttgart 1981; U.-R. Blumenthal, Der Investiturstreit, Stuttgart [u.a.] 1982; noch immer grundlegend G. Tellenbach, Die westliche Kirche vom 10. bis zum frühen 12. Jahrhundert, Göttingen 1988, S. 208-225; S. Beulertz, Das Verbot der Laieninvestitur im Investiturstreit, Hannover 1991; T. Struve, Gregor VII. und Heinrich IV. - Stationen einer Auseinandersetzung, in: StudGreg 14, 1991, S. 29-60; zuletzt der komprimierte Überblick von J. Laudage, Gregorianische Reform und Investiturstreit, Darmstadt 1993.
- 28 Zu verschiedenen Aspekten vgl. die Beiträge in: Reformidee und Reformpolitik 1992 und in: Investiturstreit und Reichsverfassung 1973.
- 29 Laudage 1993, S. 3.
- ____
- 22
- einer Epoche, in der veränderte Rechtsnormen und Wertekategorien, wie der Wandel im Autoritätsdenken, Kräfte freisetzten, die in einer Art „Wirkverbund” verschiedene Ebenen von Staatlichkeit und Gesellschaft reformierten 30.
- Auch die gregorianische Reform war keine homogene, zeitlich begrenzte und schon gar nicht auf die Person und Politik Gregors VII. beschränkte Phase römischer Kirchenpolitik, sondern eine Bewegung, die von Adel, Klerus, Mönchtum und sogar dem Kaiser - wie diese Arbeit zeigen wird - gleichermaßen getragen wurde 31. Was aber nun die Inhalte und Ziele derer waren, die in Anlehnung an einen der radikalsten Verfechter der Kirchenreform, Papst Gregor VII.‚ von der historischen Forschung als Gregorianer bezeichnet werden, wird im Folgenden kurz skizziert.
- Ziele der Kirchenreform
- Ebensowenig, wie man der Kirchenreform als historisches Phänomen mit einer kategorisierenden Sichtweise gerecht würde, lassen sich die Ziele der Gregorianer programmatisch erfassen. Faßt man den Begriff der Gregorianischen Kirchenreform allerdings eng, kommt man nicht umhin, nach dem Anteil oder der Initialwirkung Papst Gregors VII. zu fragen. Zwar füllt dieser Themenkomplex ganze Abhandlungen zu Theologie, Politik, Publizistik und Kirchenrecht 32, doch sei zumindest sein mit weitreichender Wirkung
- ____
- 30 S. Weinfurter, Die Salier und das Reich. Einleitung, in: Die Salier und das Reich 1991, Bd. 1, S. 1-21, ebd. S. 2.
- 31 A. Fliche, La réforme grégorienne, 3 Bde., Paris/Louvrain 1924/37 (ND Genf 1978); O. Capitani, Esiste un età Gregoriana?, in: Rivista di storia e letteratura religiosa 1, 1965, S. 454-481; J. Gilchrist, Was there a Gregorian Reform Movement in the 11th. Century, in: Canadian Historical Association, English Section, Study Session 37, Ottawa 1970, S. 1-10; G. Tellenbach, „Gregorianische Reform“. Kritische Besinnungen, in: Reich und Kirche vor dem Investiturstreit, Sigmaringen 1985, S. 99-113; H. Fuhrmann, Gregor VII.‚ „Gregorianische Reform“ und Investiturstreit, in: M. Greschat (Hg.)‚ Das Papsttum 1, Stuttgart 1985, S. 155-175; W. Imkamp, Die „Gregorianische Reform“ in neuem Lichte, in: Römische Quartalschrift 81, 1986, S. 113-117; W. Goez, Riforma ecclesiastica - Riforma gregoriana, in: StudGreg 13, 1989, S. 167-178; H. Zimmermann, Die „gregorianische Reform“ in deutschen Landen, in: StudGreg 13, 1989, S. 263-279.
- 32 Zuerst W. Martens, Gregor VII.‚ Sein Leben und Wirken, 2 Bde., Leipzig 1894 und zuletzt J. Englberger, Gregor VII. und die Investiturfrage. Quellenkritische Studien zum angeblichen Investiturverbot von 1075, Köln [u.a.] 1996; s.a. A. Nitschke, Die Wirksamkeit Gottes in der Welt Gregors VII.‚ in: StudGreg 5, 1956, S. 115-219.
- ____
- 23
- auf das mittelalterliche Staatengefüge bedeutendstes Vorhaben, der Dictatus papae 33 von 1075, an dieser Stelle angeführt.
- In den dort formulierten kirchenrechtlichen Grundsätzen wurden das schon von den Päpsten Leo IX. (†1054) und Nikolaus II. (†1061) geforderte ausschließlich päpstliche Investiturrecht schriftlich fixiert und darüber hinaus umfassende Grundlagen für die Bildung einer päpstlichen Universalgewalt festgelegt. Neben theoretischen Prämissen, wie der Irrtumslosigkeit der römischen Kirche in Glaubensfragen, erschütterte vor allem die Forderung nach absoluter Autorität im Bereich der bischöflichen Binde- und Lösegewalt die alten päpstlichen und kaiserlichen Machttraditionen. Als letzte entscheidende und handelnde Instanz, die sich auf die Person des Apostelfürsten Petrus als obersten Richter im Gottesstaat stützte 34, beanspruchte der Papst alleinige Gewalt über die Errichtung und Teilung von Bistümern, die Umwandlung von Klöstern und Stiften, die Besetzung vakanter Bistümer und die Absetzung von Bischöfen und Kaisern. Diese Maximen schränkten in erster Linie den Einflußbereich der Bischöfe in ihren Diözesen erheblich ein, und mit der Forderung nach Abschaffung der Laieninvestitur war das Investiturrecht des Königs und dessen Position in der Reichskirche nicht nur angetastet, sondern wurde in nie dagewesene Grenzen verwiesen. Zum ersten Mal in der Geschichte formulierte und forderte der Papst eine Vorrangstellung gegenüber dem Kaiser, die das alte gelasianische Gleichgewicht von regnum und sacerdotium aus den Angeln zu heben drohte.
- Seit Papst Gelasius I. († 496) sah die Zweigewaltenlehre für Staat (regnum) und Kirche (sacerdotium) je einen Stellvertreter Gottes (vicarius Dei) auf Erden vor, die beide gleichberechtigt über die christliche Welt (ecclesia) regieren sollten 35. Dieses Ideal der Ausgewogenheit war seit
- ____
- 33 Originaltext mit Kommentar bei E. Caspar, Das Register Gregors VII.‚ Berlin 1920, Reg. Greg. VII.II, 55a. S. 202-208; vgl. dazu K. Hofmann, Der „Dictatus Papae“ Gregors VII. Eine rechtsgeschichtliche Erklärung, Paderborn 1933; K. Schatz, Das päpstliche Primat, seine Geschichte von den Ursprüngen bis zur Gegenwart, Würzburg 1990, S. 110-113; Tellenbach 1988, S. 241.
- 34 Zur Petrusbezogenheit in der Theologie Gregors VII. vgl. H. Fuhrmann, Über die Heiligkeit des Papstes, in: Jahrbuch der Akademie der Wissenschaften, Göttingen 1980, S. 28-43 und Tellenbach 1988, S. 238-240.
- 35 Im Westen auch von Ambrosius verbreitet, definierte die Zwei-Gewalten-Lehre des Papstes Gelasius` I. die Scheidung von geistlicher und weltlicher Gewalt: Niemand dürfe auf Erden beanspruchen, den rex et sacerdos christus allein zu repräsentieren. Vielmehr gebe es zwei Stellvertreter, jeweils einen für eines der beiden Ämter. Die Forderung des päpstlichen Primats bedeutete für den kaiserlichen rex et sacerdos die Beschneidung um dessen Priesteranteil und damit die Trennung von Priestertum und Königtum. Vgl. hierzu L. Knabe, Die gelasianische Zweigewaltentheorie bis zum Ende des Investiturstreits, Phil. Diss. Berlin 1936; W. Levison, Die mittelalterliche Lehre von den beiden Schwertern, in: DA 9, 1952, S. 14-43.
- ____
- 24
- Konstantin, Karl dem Großen und dem Ausbau der Reichskirche unter Otto I. bis Heinrich III. aber zugunsten eines weithin verkirchlichten, vergeistlichten und sakralen Kaisertums, das über die Träger des sacerdotium verfügte, niemals zustande gekommen. Gregors hierarchischer Anspruch, die Universalgewalt über alle Bereiche der Kirche (ecclesia) und die weltliche Sphäre auszuweiten, entsprach im Grunde genommen einem dem Papsttum seither zustehenden Recht. Warum also sollte der Papst nicht seinerseits auf der monarchischen und politischen Dimension der Herrschaft bestehen, im Gegenzug zu dem verkirchlichten regnum, das in der Person des Kaisers den sakralen wie auch den profanen Bereich beanspruchte? So jedenfalls sah Gregor seinen Vorstoß gegen die sakrale Eigenschaft des Kaisertums 36.
- Doch wie in der Vergangenheit der theoretisch geforderte Einklang nicht zu realisieren war, sondern sich der Kaiser als staatliche Instanz über den Papst stellte und die Kirche sogar für eigene Zwecke einsetzte (ottonische Reichskirche, Gottesgnadentum), ermöglichte auch die nunmehr radikale Forderung nach der allgemeingültigen auctoritas des Papstes kein harmonisches Gefüge. Vielmehr hatte Gregor VII. dem König das alleinige Regiment über das regnum streitig gemacht und ihm durch die Absage an dessen Gottunmittelbarkeit die sakrale Würde seiner Herrschaft entzogen. Der Dictatus Papae sprach diesbezüglich klare Worte 37:
- Quod solus possit uti imperialibus insigniis
- Er (der Papst) allein kann kaiserliche Zeichen tragen.
- Quod illi liceat imperatores deponere
- Er (der Papst) kann Kaiser absetzen.
- Wenn man nun tatsächlich von einer konzeptuellen Grundidee der Gregorianer sprechen möchte, dann ist dies wohl die Forderung nach der libertas ecclesiae. Das bedeutet, die Freiheit der Kirche vom weltlichen Einflußbereich zu erreichen (Investiturfrage) und damit die Autorität des Papstes über die des Kaisers zu stellen. Ein in erster Linie weltanschaulicher, intellektueller Ansatz, der erst in einem zweiten Schritt die kirchenpolitische Realität betraf. Diese Ansicht vertritt auch Tellenbach in einem kurzen Abschnitt über den gregorianischcn Libertasbegriff. Für ihn bedeutet die gregorianische libertas ecclesiae nicht den politischen Lösungsprozeß
- ____
- 36 Diese Tendenz im ideologischen Konzept Gregors VII. formulieren F.-J. Schmale, Papsttum und Kurie zwischen Gregor VII. und Innozenz II.‚ in: Probleme des 12. Jahrhunderts, S. 13-31 und Tellenbach 1936, S. 164-192.
- 37 Caspar 1920, S. 202-208.
- ____
- 25
- der kirchlichen von der weltlichen Verfügungsgewalt, sondern die Frage nach der „gerechten Priorität”: Freiheit der Kirche sei das, “was der Kirche (ecclesia) gerechterweise zukommt, also das Freisein von staatlichen Leistungen und Beeinflußungen, aber ebenso die Ausübung ihrer Mission, also auch die Leitung der Welt“ 38. Der so verstandene Begriff der libertas ecclesiae macht deutlich, daß hinter der Einschränkung der kaiserlichen Macht ein ideologischer Anspruch auf die wahre und gerechte Herrschaft über die gesamte mittelalterliche Gesellschaft stand, der erst im weiteren Prozeß konkret die Kirchenpraxis betraf. Um dort dann aber die päpstliche Autorität und Gerichtsbarkeit wirksam umzusetzen, wurden Kontrollinstanzen wie das Kardinalkollegium, das Legatenwesen sowie das Synodal- und Konzilienwesen eingerichtet, die in ihrer Gesamtheit als päpstliche Kurie agierten 39. Diese Einrichtungen waren in ihrer Funktion den Strukturen kaiserlicher Machtausübung wie beispielsweise der Hofkapelle, der Reichsversammlung oder dem Fürstenrat vergleichbar 40.
- Mit dem Weltbild Gregors VII., seine herrschaftstheoretische Idee und die kirchenpolitische Realität in Übereinstimmung zu bringen, ging natürlich auch eine neu verstandene Religiosität in der geistlichen Welt einher. Aus dem universalen Selbstverständnis des Papstes seinem Amt gegenüber erwuchs auch beim Reichsepiskopat und dem Weltklerus als Repräsentanten des römischen Reformpapsttums ein neues Selbstbewußtsein hinsichtlich ihrer priesterlichen Funktionen. Man ging beispielsweise mittels der Kanonikerreform energisch gegen die weitverbreiteten Mißstände innerhalb des Klerus vor. Ins Kreuzfeuer der Kritik waren vor allem die Priesterehe und die Simonie geraten 41. Hinter dem Verbot der Ehe für
- ____
- 38 Tellenbach 1936, S. 230-232.
- 39 Zur Ausbildung der päpstlichen Kurie vgl. H.-W. Klewitz, Die Entstehung des Kardinalkollegiums, in: ZRGKA 25, 1936, S. 115-221; C. G. Fürst, Gregorio VII, cardinali e amministrazione pontifica, in: StudGreg. 13, 1989, S. 1-32; K. Jordan, Die Entstehung der römischen Kurie. Ein Versuch, in: ZRGKA 28, 1939, S. 97-152; F. Kempf, Primatiale und episkopal-synodale Struktur der Kirche vor der gregorianischen Reform, in: Archivum historiae Pontificae 16, 1978, S. 27-66; H. J. Sieben, Die Konzilsidee des lateinischen Mittelalters, Paderborn 1984; J. Laudage, Priesterbild und Reformpapsttum im 11. Jahrhundert, Köln [u.a.] 1984; zusammenfassend Tellenbach 1988, S. 250-258.
- 40 Gegen Ende des 11. Jahrhunderts findet man sogar die Bezeichnung senatus, ein Begriff der antik-römischen Rechtssphäre, für das Kardinalkollegium vgl. I. Baumgärtner, Rombeherrschung und Romerneuerung. Die römische Kommune im 12. Jahrhundert, in: QFIAB 69, 1989, S. 44.
- 41 Zu Priesterehe und Simonie vgl. H. Meier-Welcker, Simonie im frühen Mittelalter, in: ZKG 64, 1952/53, S. 61-93; K. Benz, Job. 10,1-14 in der theologischen Argumentation Gregors VII. gegen Simonie und Laieninvestitur, in: Aus Archiven und Bibliotheken, Festschrift für Raymund Kottje, Frankfurt [u.a.] 1992, S. 239-269; allgemein zur Kanonikerreform vgl. S. Weinfurter, Die Kanonikerreform des 11. und 12. Jahrhunderts, in: 900 Jahre Stift Reichersberg, Augustiner Chorherren zwischen Passau und Salzburg, Katalog zur Ausstellung im Stift Reichersbach am Inn 1984, Linz 1984, S. 23-32 und Laudage 1984, S. 90-115, 285-303.
- ____
- 26
- die Weltgeistlichkeit und der Ablehnung der Sakramentenspendung (z. B. die Taufe) gegen Geld, Güter oder sonstige Abgaben stand in erster Linie die Anklage einer unsittlichen Priesterschaft. So bezweckte die Kanonikerreform die Rückbesinnung auf das Wesen des Priesteramtes als apostolische Nachfolge Christi und eine strengere Lebensführung der Weltgeistlichkeit. Zu den richtungsweisenden geistigen Idealen der kanonikalen Erneuerungbestrebungen gehörten der Ruf nach persönlicher Besitzlosigkeit im Sinne des monastischen Gedankens der vita vere apostolica, wie ihn die Bibel und die Schriften der Kirchenväter vorgaben 42. Gerade die Augustinerchorherren und später die Prämonstratenser forderten Besitzlosigkeit, lebten nach den asketischen Grundgedanken des apostolischen Lebens, waren wichtige Stützen der Missionspolitik und prägten auch die Klosterlandschaften durch zahlreiche Neugründungen.
- In diesem Punkt überschnitten sich die geistigen Ideale der Kanonikerreform mit denen der Ordens- und Klosterreformen. Während sich der reformierte Klerus in auffallender Weise der spirituellen Grundkonzeption des benediktinischen Mönchtums (vita communis) anglich, sind die Veränderungen im klösterlichen Bereich durch ein eher heterogenes Bild unterschiedlichster Reformausprägungen gekennzeichnet 43. Dabei stand nicht nur das Reformkloster Cluny im Vordergrund, das sich zuerst von der Bindegewalt durch den Vogt und den Diözesanbischof gelöst und sich direkt dem päpstlichen Schutz unterstellt hatte. Vielmehr konnten anhand von monastischen Consuetudines, Nekrologien und Verbrüderungsbüchern anderer bekannter Reformzentren wie Fruttuaria, Hirsau, Gorze und Siegburg so unterschiedliche Gewohnheiten, Verfassungen und Formen von Klosterfreiheit (libertas) festgestellt werden, daß von keiner einheitlichen Reformbewegung gesprochen werden kann 44. Die schwer zu fassende
- ____
- 42 Verschiedene biblische Texte, vor allem die Apostelgeschichte des Lukas 4,32-35 (Gütergemeinschaft der ersten Christen), die augustinischen Schriften, wie beispielsweise das Praeceptum und der Ordo monasterii wurden zu Leitbildem für das Leben nach dem Vorbild der Urkirche, dem exemplum primitivae ecclesiae, besonders für die regulierten Kanonikerorden, die sich ausdrücklich auf die Augustinusregel beriefen, wie die Augustiner-Chorherren, die Augustiner-Eremiten und die Prämonstratenser.
- 43 Eine dichte und kritische Zusammenfassung der Entwicklungen im Bereich des Ordenswesens mit differenzierten Verweisen auf Einzelprobleme der klösterlichen Erneuerungsversuche gibt Laudage 1993, S. 108-130.
- 44 Laudage 1984, S. 36-47.
- ____
- 27
- Gesamtsituation der monastischen Reformen veranlaßt Gerd Tellenbach sogar zu der radikalen, aber wohl zutreffenden Einschätzung, die Maximen klösterlicher Erneuerungen hätten nichts mit der gregorianischen Kirchenreform zu tun: „Klosterreform, bei der es um die Vervollkommnung monastischer Lebensformen geht, ist im allgemeinen etwas anderes als die sogenannte Kirchenreform (...). Sie beruht auf eigenen, spezielleren Voraussetzungen, die längst gegeben waren, bevor die von den Päpsten stammenden Impulse wirkten. Sie ist zwar von ihnen berührt und beeinflußt worden, behielt aber vielfach ihre Richtung bei“ 45.
- Die Reformen der Stifte und Klöster lassen sich vielleicht insofern in den allgemeinen Reformprozeß integrieren, als daß sie das vom Reformpapsttum so universal formulierte Ziel der libertas ecclesiae - pars pro toto - durchzusetzen versuchten. Politische und wirtschaftliche Selbständigkeit, die Freiheit von Diözesangewalten (freie Wahl von Abt und Vogt) und der Kampf gegen das Eigenklosterwesen hatten letztlich eine völlige Unabhängigkeit von weltlichen und geistlichen Einflüssen zur Folge und damit auch die konkrete libertas ecclesiae, die Freiheit des einzelnen Klosters. Die Forderung nach der Freiheit der Kirche war somit der gemeinsame Nenner, die einzige feststehende Größe in dem sonst so heterogenen Prozeß der Kirchenreformen.
- Der knappe Blick auf die Zeit der beginnenden Kirchenreformen hat gezeigt, daß zwischen den exklusiven Ansprüchen der Gregorianer auf die Zentralgewalt im Gottesstaat und den allgemeinen Kirchenreformen grundsätzlich zu unterscheiden ist. Die Auseinandersetzungen zwischen Papst und Kaiser, die in erster Linie das gesellschaftliche, politische und juristische Selbstverständnis der beiden Herrscher betrafen, berührten natürlich auch den spirituellen und religiösen Bereich der monastischen Welt. Dies brachte es mit sich, daß dort, wo der gregorianische Gedanke vorherrschte, die Beziehungen zur Königsgewalt gelöst wurden und die lokale Stärke aus der Bindung an die Kirchenreform gezogen wurde.
- So wundert es kaum, daß gerade in Sachsen, dem einstigen Zentrum ottonischer Königsgewalt, der Adel, nach andauernden Interessenkonflikten mit den salischen Königen, besonders beharrlich an den Vorstellungen der Kirchenreformer festhielt 46. Hier forderte eine im wesentlichen
- ____
- 45 Tellenbach 1988, S. 235, 264.
- 46 Die von Fenske 1977, S. 13-51 in einem einleitenden Kapitel zu den antiköniglichen Adelsstrukturen in Sachsen aufgeführten Gründe für den politischen Widerstand des sächsischen Adels gegen die letzten salischen Herrscher stützten sich auch auf die zwar stark parteiisch gefärbten Äußerungen bei Lampert von Hersfeld (ad anno 1073) und Brunos Buch vom Sachsenkrieg (Bruno c. 16 und c. 30), die Fenske folgendermaßen zusammenfaßt: „Der König arbeitete darauf hin, dem sächsischen Stamm unter Mißachtung des geltenden Stammesrechtes eine von ihm und seinen Beauftragten unmittelbar ausgeübte Form königlicher Herrschaft aufzuzwingen, den sächsischen Adel zu entmachten, Freie in die Unfreiheit herabzudrücken, Grundeigentümern ihren Besitz zu entreißen, breite Schichten mit Abgaben und Dienstleistungen zu belasten, zu denen keine rechtliche Verpflichtung bestand, und das Land mit Hilfe stammesfremder Elemente zu beherrschen. Ebd. S. 17 mit Anm. 12. Zweifellos standen hinter diesen verallgemeinernden Beschreibungen eine Fülle von speziellen Auseinandersetzungen einzelner sächsischer Adelshäuser mit den salischen Königen, wie beispielsweise der Orlamünder Erbschaftsstreit, bei dem Heinrich V. Angehörige des sächsischen Hochadels von der berechtigen Erbfolge ausschloß, um die umstrittenen Ansprüche auf den Besitz der Grafen von Weimar-Orlamünde dem Reich einzuverleiben. Vgl. Hildebrand 1986, S. 41-55 und Fenske 1977, S. 340-351.
- ____
- 28
- mit den Zielen des Reformpapsttums übereinstimmende Geistlichkeit (Burchard und Reinhard von Halberstadt, Hartwig von Magdeburg) die sächsischen Adligen mit ihrer antisalischen Grundhaltung geradezu heraus, zu Partnern der gregorianischen Kirchenreformer zu werden.
- In einer dieser Allianzen zwischen dem sächsischen Adel und den Gregorianern, die in Sachsen vorwiegend salische Königsgegner waren, hatte auch Lothar von Süpplingenburg seine politischen Wurzeln 47. Auseinandersetzungen mit Heinrich V.‚ der Lothar 1112 das Herzogtum Sachsen kurzzeitig entzogen hatte, sowie Verwandtschaftsbeziehungen zum sächsischen Hochadel, verbunden wahrscheinlich auch mit religiösen Motiven, hatten Lothar sogar an die Spitze dieser antisalischen Fürstenopposition in Sachsen gebracht. Als Gegner der Salier und Sympathisant der sächsischen Fürsten wurde Lothar 1125 sogar zum König gewählt. Von diesem Moment an stand er allerdings, vom ideologischen Standpunkt aus, auf der Gegenseite der Kirchenreformer, aus deren Mitte er eigentlich kam. Denn als König und zukünftiger Kaiser konnte er sein gregorianisches Selbstverständnis als politische Norm nicht ohne Einschränkungen beibehalten. Mit einem Januskopf unter der Krone stand er vor der Entscheidung, die einst mit seinen reformtreuen Parteigängern verteidigten Grundlinien fortzuführen und dabei gleichzeitig der Institution des Königtums, in Sachsen und in Rom, zu neuem Ansehen zu verhelfen.
- ____
- 47 Nicht nur in Sachsen formierten sich Adelskoalitionen gegen die Herrschaft der Salier. So bildeten beispielsweise die Welfen, Rheinfeldener und Zähringer in Schwaben vergleichbare Verbindungen zwischen Adel und Kräften der kirchlichen Reformbewegung, engagierten sich gegen die Politik der Salier und unterstützen süddeutsche Reformklöster. Vgl. K. Schmid, Adel und Reform in Schwaben, in: Investiturstreit und Reichsverfassung 1973, S. 295-319.
- ____
- 29
- II.1.2. Die Gregorianische Kirchenreform in der Politik Lothars III.: Kaiser Lothar III. - ein Gregorianer?
- Vor diesem Hintergrund muß der Blick zunächst auf die Frage gelenkt werden, ob Lothar III. tatsächlich als treuer Gregorianer, allen Belangen der Kirchenreformer entsprechend, das politische Erbe der Salier antrat. Wozu ein solcher Exkurs, der das politische Zusammenspiel von Kirchenreform und Königtum als historischen Modellversuch beschreibt, mag der Kunsthistoriker einwenden? Doch nicht die Wahl der politischen Mittel oder die Bewertung kirchenpolitischer Einzelfragen stehen zur Diskussion, sondern vielmehr die Grundeinstellung Lothars III. zur Kirchenreform und zu seinen gregorianischen Parteigängem. Nur so können der Kaiser und seine politischen Vertrauten auch als Stifter und Bauherren ihrer Kirchen angemessen bewertet werden. Ähnlich wie beispielsweise Georg Dehio nur im Wissen um den historischen Kontext im monumental und ideologisch überhöhten Bau von Speyer II ein „Trutz-Cluny“ 48 sehen konnte, kann auch die Rezeption Hirsauer Bautraditionen, aber auch römisch-imperialer Ornamentformen, insbesondere in Königslutter, nur durch historisches Vorwissen als politische Aussage gedeutet werden.
- Lothar war, um das Ergebnis gleich als These voranzustellen, weder ein uneingeschränkter Anhänger der Kirchenreform, noch ein radikaler Verfechter des traditionellen Königtums 49. Seine Politik der Mitte resultierte vielmehr aus der Erkenntnis, dem im Investiturstreit begründeten Entsakralisierungsprozeß des Königtums entgegentreten zu müssen und trotzdem die Vorstellungen der gregorianischen Reformer mitzutragen. Ein in jedem Fall ambivalentes Unternehmen, denn zur Festigung der eigenen Machtstellung und zum Ausbau einer kaiserlichen Identität mußte Lothar die Primatstellung des Papstes anerkennen, gleichzeitig aber gegen dessen Vorherrschaft taktieren. Dieser politische Zwiespalt speiste letztlich die einseitig negative Beurteilung von Politik und Person Lothars III. seitens der älteren historischen Forschung 50. Verschiedene Autoren charakterisieren
- ____
- 48 G. Dehio/G. v. Bezold, Die kirchliche Baukunst des Abendlandes, Stuttgart 1892, Bd. 1, S. 463. Zur Relativierung dieses Urteils vgl. W. Sauerländer, Cluny und Speyer, in: Investiturstreit und Reichsverfassung 1973, S. 9-32.
- 49 Auch Petke 1985, S. 160 kann sich nicht entschließen, in Lothar einen Reformer zu sehen: „Daß sich Lothar freilich der kirchlichen Reformbewegung ganz verschrieben hätte, ist nicht nachweisbar.“
- 50 Erst die jüngere Historikergeneration vertreten durch Crone 1982 S. 30-36 oder Hildebrand 1986, S. 106 hat, angeregt durch die Forschungen Schmales 1968, in der kirchenfreundlichen und balancierten Politik Lothars eine Stärke des Sachsen erkennen können. Zu diesem Urteil der älteren Lotharforschung ausführlich Speer 1982, S. 5-35.
- ____
- 30
- Lothar als Anwalt oder devoten Verteidiger der Kirche („aecclesiae advocatus“ und „aecclesiastico iuri devotus“ 51) und deuten seine Reformnähe ausschließlich als Schwäche eines unterwürfigen, machtlosen und willigen Werkzeuges des gregorianischen Papsttums. Eine Einschätzung, die natürlich vom Scheitern des salischen Königtums im Investiturstreit geprägt war.
- Seit dem Mittelalter tradiert und selten in Zweifel gezogen hält sich die These, Lothar habe die Bestimmungen des Wormser Konkordats und die Forderungen nach der libertas ecclesiae bedingungslos anerkannt. Doch allein ein Vergleich der von Lothar III. und seiner Kanzlei ausgehändigten Diplome zeigt, daß die im Sinne der Reformer ausgestellten Schutzprivilegien äußerst selten sind. Nur 15 von insgesamt 78 Privilegien Lothars III. für deutsche Klöster und Stifte enthalten ausdrücklich reformgerechte Vereinbarungen wie beispielsweise das Recht auf freie Wahl des Abtes und freie Vogtwahl 52. Die Schutzprivilegien für Besitzungen der Hausklöster des Kaisers wie St. Ägidien in Braunschweig, Königslutter oder Formbach enthalten sogar Bestimmungen, der Vogt solle aus dem Stiftergeschlecht gewählt werden oder die Vogtei beim Kaiser selbst oder seinen Erben liegen und dann durch Ministerialen ausgeübt werden. Damit wurde gegen eine grundlegende Reformforderung, die nach dem Verbot der Untervögte, verstoßen. Auch hat Lothar bei den Erzbischofs- und Bischofserhebungen in der Regel seine Rechte geltend gemacht. Er favorisierte und unterstützte Kandidaten wie Norbert von Xanten, den Ordensgründer der Prämonstratenser im Erzbistum Magdeburg oder bewirkte die Erhebung Abt Adalberos von Nienburg und Prüm 1133 zum Bischof von Basel, allerdings mit Zustimmung Innozenz` II. 53. In Köln 1131 und in Cambrai 1136 widersetzte
- ____
- 51 Zu den Chronisten und ihren Urteilen vgl. K. Leßmann, Die Persönlichkeit Kaiser Lothars III. im Lichte mittelalterlicher Geschichtsanschauung, Greifswald 1912, S. 19.
- 52 A. Kraus, Reformideal und politische Wirklichkeit. Zur königlichen Klosterpolitik in Bayern von Lothar von Supplinburg bis Friedrich Barbarossa, in: Papsttum und Kirchenreform, Festschrift für Georg Schwaiger, St. Ottilien 1990, S. 193-221 hebt die Verstöße gegen die Bestimmungen des Wormser Konkordats hervor und resümiert, Lothar stehe „dem Reformgedanken fern, wenngleich er ihm Raum gewährt, wo es unmittelbar um seine eigenen Interessen geht“ Ebd. S. 204-205.
- 53 Die Bevorzugung Norberts von Magdeburg (zum Urteil vgl. Petke 1985, S. 303-322) beruhte vermutlich weniger auf dessen Verdiensten für den Prämonstratenserorden als vielmehr auf Lothars besonderem Interesse für das Erzbistum Magdeburg. Denn auch nach Norberts Tod 1134 lagen Lothar die Magdeburger Verhältnisse am Herzen, und er beförderte seinen Verwandten Konrad von Querfurt auf den Magdeburger Erzbischofsstuhl und erteilte ihm die Investitur (!). Vgl. Reg. Imp. Loth. Nr. 409. Zur Baseler Bischofswahl vgl. Reg. Imp. Loth. Nr. 378 und Crone 1982, S. 135-136.
- ____
- 31
- sich Lothar sogar den Grundsätzen des Wormser Konkordats, indem er die kanonischen Wahlen für ungültig erklärte und nach einer Wiederholung der Wahlvorgänge die vakanten Stellen mit seinen Wunschkandidaten besetzte 54. Zahlreich sind auch Lothars eigenmächtige Entscheidungen bei der Absetzung von Äbten, von welchen nur zwei Beispiele genannt seien, bei denen Lothar gegen die päpstliche Reformpartei entschied: 1135 setzte er gegen den Willen Ottos von Bamberg Abt Heinrich von Ilsenburg ab, nachdem dieser gemeinsam mit Anno von Lüneburg in Ilsenburg einen Reformversuch nach dem Vorbild von Fruttuaria durchsetzen wollte 55. 1136 besuchte Lothar die Abtei Montecassino und setzte - gegen den Willen der päpstlichen Partei und mit Androhung des Bruches zwischen Kaiser und Papst - Wibald von Stablo zum Abt ein. Allerdings gewährte er in diesem Falle dem Montecassiner Konvent das Recht auf freie Abtwahl, denn der hatte Wibald dem päpstlichen Kandidaten vorgezogen 56.
- Nachrichten dieser Art sind keine Seltenheit, und die Quellen berichten mehrfach von dem Versuch Lothars, das im Wormser Konkordat festgelegte Investiturrecht vom Papst zurückzugewinnen. So notiert beispielsweise die Vita des Norbert von Magdeburg zum Juni 1133, Lothar habe in Rom anläßlich seiner Kaiserkrönung im Lateran von Papst Innozenz II. zur Bekräftigung ihres Bündnisses die Investitur der Bistümer für sich und das Reich gefordert. Als der Papst gewillt war, dem Verlangen zu entsprechen, warnte Erzbischof Norbert in Anwesenheit zahlreicher Bischöfe und des Kaisers den Papst, die Freiheit der Kirche nicht preiszugeben, worauf Lothar auf seine Forderung verzichten mußte 57. Eine ähnliche Forderung hatte König Lothar schon 1131 auf einer Synode in Lüttich gewagt. Dort forderte er „zum Erschrecken der Kurie“ von Innozenz II. die Inve-
- stitur der Bischöfe ein, weil „das Reich durch die Liebe zu den Kirchen geschwächt worden sei“ 58, wurde aber auch dort, diesmal durch Abt Bernhard von Clairvaux, von seinem Verlangen abgebracht.
- ____
- 54 Reg. Imp. Loth. Nr. 290, 472 und Crone 1982, S. 57-59 und 75-78.
- 55 Reg. Imp. Loth. Nr. 427 und K. Hallinger, Gorze-Kluny. Studien zu den monastischen Lebensformen und Gegensätzen im Hochmittelalter, Bd 1, Rom 1950, S. 647-648.
- 56 Reg. Imp. Loth. Nr. 63l, 632 und U. Swinarski, Herrschen mit den Heiligen, Bern 1991, S. 127, 495.
- 57 Reg. Imp. Loth. Nr. 346.
- 58 Reg. Imp. Loth. Nr. 266; Otto von Freising, Chron. VII, 18, 3-6: „Qui nil cunctatus, exposito tamen prius modeste, in quantum regnum amore ecclesiarum attenuatum, investituram earum quanto sui dispendio remiserit, auxilium Romanae ecclesiae promittit.“ (Dieser [Lothar] versprach ihr [der römischen Kirche] ohne Zögern seine Hilfe, zuvor aber legte er in aller Bescheidenheit dar, wie sehr das Reich durch seine Liebe zu den Kirchen geschwächt worden sei und welchen schweren Verlust ihm der Verzicht auf deren Investitur gebracht habe.)
- ____
- 32
- Diese Lütticher Begegnung beschäftigt die Forschung aus noch einem anderen Grunde, da Historiographen ihr Augenmerk auf die folgende Begebenheit bei dem Zusammentreffen von Innozenz II. und König Lothar lenken:
- „Dem auf einem Schimmel reitenden Papst zieht Lothar mit Erzbischöfen, Bischöfen und Fürsten feierlich zum Empfang entgegen, leistet ihm auf dem Platz vor der Domkirche zu Fuß den Stratordienst, indem er das Pferd des Papstes am Zügel führt und in der anderen Hand das Szepter zur Abwehr der Menge trägt, und hält ihm beim Absteigen den Steigbügel (...) “ 59
- In vorbildlicher Weise belegt diese Quelle zur Lütticher Empfangszeremonie, wie Lothar Forderungen und Zugeständnisse an das Reformpapsttum zu verbinden verstand. Noch bevor er gegen das päpstliche Investiturverbot rebellierte, begrüßte er den Papst mit einer huldvollen Geste treuester Ergebenheit 60. Er leistete nicht nur den Zügeldienst, indem er das Pferd des Papstes führte und mit seinem Szepter durch die jubelnden Mengen zur Kirche geleitete, sondern er hielt dem Papst beim Absteigen auch den Steigbügel. Die Diskussion um Tradition und Bedeutung des Strator- und Marschalldienstes, als welchen man das Halten der Bügel bezeichnet, kann hier nicht erneut aufgegriffen werden, zumal es sich dabei um ein Empfangsritual handelt, das nur „Teil eines größeren Komplexes von kaiserlichen
- ____
- 59 Zum Empfang des Papstes berichtet Abt Suger, in: Vie de Louis VI le Gros, S. 136: „Cui [Innozenz] cum imperator Lotharius civitate Leodii, cum magno archiepiscoporum et episcoporum et theutonici regni optimatum collegio, celeberrime occurrisset in platea ante episcopalem ecclesiam humillime seipsum stratorem offerens, pedes per medium sanctae processionis ad eum festinat, alia manu virgam ad defendendum, alia frenum albi equi accipiens tanquam dominum deducebat. Descendente vero tota stacione, eum suppodiando deportans celsitudinem paternitatis eius notis et ignotis clarificavit.“ Die Textstellen weiterer Chronisten und die Übersetzung sind im Kommentar zu Reg. Imp. Loth. Nr. 266 zusammengestellt.
- 60 Huldvoll hier auch im wortetymologischen Sinne huld=sich neigen gemeint. Zum Phänomen der Huld in der mittelalterlichen Gesellschaft vgl. G. Althoff, Huld - Überlegungen zu einem Zentralbegriff der mittelalterlichen Herrschaftsordnung, in: Spielregeln der Politik im Mittelalter. Kommunikation in Frieden und Fehde, Darmstadt 1997, S. 199-229; zu größeren historischen Zusammenhängen der Untertanenhuldigung in ihrer Bedeutung für die mittelalterliche und neuzeitliche Verfassung vgl. A. Holenstein, Die Huldigung der Untertanen. Rechtskultur und Herrschaftsordnung (800-1800), Stuttgart/N.Y. 1991.
- ____
- 33
- Geleitfunktionen gegenüber dem Papst“ 61 war. Allein der Aspekt königlicher Dienstleistung war der mittelalterlichen, aber auch der neuzeitlichen Öffentlichkeit genug, in Lothar einen ergebenen Anhänger der Gregorianer zu sehen 62. Doch kann dieses Urteil hinsichtlich der Lütticher Begegnung nicht unkommentiert bleiben. Es ist in diesem Zusammenhang zu bedenken, daß ein Akt der Huld und damit der Unterwerfung nur scheinbar bedingungslos war. Vielmehr wurde genau ausgehandelt, was nach der Unterwerfung geschah, und es wurde streng darauf geachtet, daß die zuvor getroffenen Vereinbarungen (auf die sich möglicherweise die Unterwerfung bezog) eingehalten wurden 63. Eine solche Sichtweise symbolischer Dienstwilligkeit ändert zunächst wenig an dem Vorwurf, Lothar habe sich zum Werkzeug des Papstes gemacht, relativiert aber das Ritual des Strator- und Marschalldienstes in seiner Gesamtheit. Zeigt es doch, daß Lothars Unterwerfung vielleicht ein taktischer Vorwand war, um noch am selben Tag das verlorene Investiturrecht für das Königtum einzufordern. Schon in seiner Herzogenzeit hatte Lothar bei der Hochzeit Heinrichs V. mit der Tochter des englischen Königs Heinrich I. 1114 in Mainz durch einen Kniefall seine Unterwürfigkeit und Demut bezeugt, obwohl er zuvor und ein Jahr später gegen den Kaiser ins Feld zog und die kaiserlichen Truppen bei der Schlacht am Welfesholz 1115 vernichtend schlug 64. Als Unterwerfungsakt war dies eine aktuelle Demutsbekundung, die aber nicht auf eine bedingungslose Unterwerfung für alle Zeiten schließen ließ. Waren also
- ____
- 61 A. Hack, Das Empfangszeremoniell bei mittelalterlichen Papst-Kaiser-Treffen, Köln [u.a.] 1999, S. 504-534, ebd. S. 509, dort sämtliche Literatur zum Thema wie beispielsweise R. Holtzmann, Der Kaiser als Marschall des Papstes. Eine Untersuchung zur Geschichte der Beziehungen zwischen Kaiser und Papst im Mittelalter, Berlin/Leipzig 1928; ders.‚ Zum Strator- und Marschalldienst, in: Historische Zeitschrift 145, 1932, S. 301-350; E. Eichmann, Das Officium Stratoris et Strepae, in: Historische Zeitschrift 142, 1930, S. 16-40, J. Traeger, Der reitende Papst – Ein Beitrag zur Ikonographie des Papsttums, München 1970.
- 62 Hauck 1903, Bd. 4, S. 140 bewertet die Lütticher Begegnung folgendermaßen: „Indem Lothar dem Papste den Dienst eines Stallknechts leistete, lieferte er von neuem den Beweis, dass er für das Königtum die Stellung acceptiere [sic], die die Gregorianer ihm zuwiesen: er wollte nicht mehr sein als Unterthan des Papstes.“.
- 63 Althoff 1997, S. 213.
- 64 Otto von Freising, Chron. VII, 15, 14-16: „In ipsa nuptiarum sollempnitate Lotharius dux Saxonum nudis pedibus sago indutus coram omnibus ad pedes eius venit seque sibi tradidit. (Während der Hochzeitsfeierlichkeiten Heinrichs V. gewinnt Lothar die Gnade des Kaisers zurück, indem er sich vor ihm barfuß und im Wollmantel vor aller Augen zu Boden wirft). Zu Lothars Akt der Unterwerfung vgl. den Kommentar zu Reg. Imp. Loth. Nr. 24 und zur Schlacht am Welfesholz vgl. R. Holtzmann, Sagengeschichtliches zur Schlacht am Welfesholz, in: Sachsen und Anhalt 10, 1934, S. 71-105 und den Kommentar zu Reg. Imp. Loth. Nr. 36.
- ____
- 34
- Huldbekundigungen auch Akte der Diplomatie, um das Vertrauen des Gegners zu gewinnen? Im Einvernehmen mit Thomas Groß, der Lothar eine gewisse Berechnung in seinen Demutbekundungen zubilligt, um nach Zugeständnissen gewichtige Forderungen vorzubringen, trifft dies für Lothar wohl zu 65.
- In diesem Zusammenhang muß auch die Narratio de electione Lotharii Saxoniae ducis in regem Romanorum 66, eine minuziöse Schilderung der Wahlvorgänge von 1125, angeführt werden. Als einzigartiges Dokument für die Entstehung normativer Wahlprinzipien gilt die narratio deshalb als Hauptquelle für die Beurteilung der historischen Herrscherpersönlichkeit Lothars, weil ein Texteinschub - das pactum - Grundforderungen zum Verhältnis zwischen Kirche und Königsgewalt mit besonderer Betonung des Investiturproblems enthält. Laut diesem pactum hatte Lothar schon vor seiner Wahl gegenüber dem Reichsklerus auf das königliche Recht der Investitur verzichtet und erklärt, im Falle seiner Wahl das Königsamt nicht anzunehmen. Damit sind außergewöhnliche Zugeständnisse an die Kurie formuliert, die für eine Zustimmung zur Politik der gregorianischen Kirchenreformer und eine Unsicherheit gegenüber der eigenen Kandidatur sprechen würden 67.
- Einmal abgesehen von der angezweifelten Authentizität des pactums 68, hat Ludwig Vones die gesamte Wahlhandlung in ein neues Licht gerückt. Er hat die führende Rolle Adalberts von Mainz als Königsmacher insofern angezweifelt, als daß er die von Lothar zunächst ausgesprochene Weigerung, die Kandidatur anzunehmen, als übliche Demutsformel interpretiert und darin nicht, wie bisher üblich, einen Unwillen sah, das Königsamt zu übernehmen. Lothar habe sich immerhin mit Hilfe der ungetrübten Stärke der sächsischen Partei gegen den eigentlichen Favoriten
- ____
- 65 Groß 1990, S. 63, 137.
- 66 Das im Erzählstil handschriftlich verfaßte Dokument wurde wahrscheinlich von einem Mönch des Klosters Göttweig (Diözese Passau) zwischen 1150 und 1170 geschrieben. Zuletzt und mit lückenloser Auflistung der älteren Forschungsliteratur vgl. L. Vones, Der gescheiterte Königsmacher. Erzbischof Adalbert I. von Mainz und die Wahl von 1125, in: HJ 115, 1995, S. 85-124.
- 67 Beispiele für diese Ansicht bei Petke 1985, S. 272 Anm. 19.
- 68 Das pactum gilt in der Forschung als nachträglicher Einschub. Historiker wie beispielsweise H. Stoob, Die Königswahl Lothars des Sachsen im Jahre 1125, in: Festschrift für W. Schlesinger 1974, S. 438-461, ebd. S. 440 werten den Zusatz als späteren Versuch des reformstrengen Erzbischofs Konrad von Salzburg, die Wahlvorgänge nachträglich mit den Forderungen des Episkopats abzustimmen und datieren die Entstehung des pactums in die 30er Jahre des 12. Jahrhunderts. Dagegen möchte Vones 1995, S. 88 das Pergament in den Jahren 1150-1170 entstanden wissen.
- ____
- 35
- der Bayern, Leopold von Österreich, durchgesetzt, was nicht für eine anfängliche Zurückhaltung dem Königsamt gegenüber spricht 69. In diesem Sinne muß dann auch das frühzeitige Versprechen auf Investiturverzicht als taktischer Zug gedeutet werden, sich an die Spitze der Thronanwärter zu manövrieren. Daß Lothar diesem Zugeständnis nach der Wahl nicht mehr entsprach, belegt ein Brief Adalberts von Mainz an Otto von Bamberg, indem er sich über Lothars Eigenwillen beklagt, mit der Erzwingung kanonischer Wahlen die Freiheit der Kirche zu zerstören 70.
- Die hier ausgewählten Beispiele eigenmächtigen Handelns in Fragen der Bischofserhebungen, der Akzeptanz des königlichen Investiturverbots und des gezielten Einsatzes huldvoller Untergebenheit und vorgespielter Bescheidenheit haben Lothars gewandtes und zielgerichtetes Verhalten im gregorianischen Umfeld gezeigt. Keineswegs gab sich Lothar mit der Rolle zufrieden, die die Gregorianer dem neugewählten König und der Institution des Königtums zugedacht hatten. Mit Hartnäckigkeit verfolgte Lothar seinen Protest gegen die Bestimmungen des Wormser Konkordats. Indem er den verlorenen königlichen Handlungsspielraum in den Bistümem durch die persönliche Förderung gregorianisch gesinnter Erzbischöfe, Bischöfe und Äbte wieder geltend machte, gestaltete er selbst und nicht als „Mann des Papstes“ den Prozeß der Kirchenreformen aktiv mit.
- In jedem Fall sollte deutlich geworden sein, daß die Reformer in Lothar keinen Pfaffenkönig vor sich hatten, sondern einen selbstbewußten Taktiker, der die päpstliche Primatstellung zugunsten der kaiserlichen Machtrestituierung untergraben wollte. Reaktionen des Reformpapsttums, auch in Form bildlicher Propaganda, blieben nicht aus: So zielen beispielsweise die den Triumph des Reformpapsttums inszenierenden Wandbilder im Lateran, insbesondere das Krönungsbild Lothars III., nicht ohne Grund in tendenziöser Weise gerade auf die Hierarchie von König und Papst im Herrschaftsgefüge ab.
- ____
- 69 Nach Vones 1995, S. 93-94 bekräftige Lothar durch seine anfänglich geäußerte Weigerung, ein Votum zu seinen Gunsten anzunehmen, gerade seine Bereitschaft, das Amt anzunehmen. Er dokumentiere mit der humilitas sanctissima, der “heiligen Demut”, eine in der Zeit durchaus übliche Herrschertugend und bekunde damit den eigentlichen Willen, die Wahl zu gewinnen. In Bezug auf Adalberts Rolle zur Wahl von 1125 teilt auch Petke 1985, S. 269-302 die Ansicht Vones`, die Position des Mainzers am Hofe Lothars sei bisher maßlos überschätzt worden.
- 70 Vgl. Reg. Imp. Loth. Nr. 389.
- ____
- 36
- Das Krönungsbild Kaiser Lothars III. im Lateran
- In den ehemaligen päpstlichen Beratungsräumen im Lateranpalast konnte eine Reihe von Wandbildern rekonstruiert werden, deren triumphales Programm heute nur noch anhand von Skizzen des 16. und 17. Jahrhunderts zu erahnen ist 71. In zwei dieser Nachzeichnungen erkannte die Forschung die überlieferten Darstellungen der von Innozenz II. zwischen 1133 und 1143 72 in Auftrag gegebenen Fresken, die die Krönungszeremonie Kaiser Lothars III. im Lateran 1133 festhielten. Dabei handelt es sich einmal um die sogenannte Rasponi-Kopie (Abb. 2),
- einen von Cesare Rasponi 1656 veröffentlichten Stich eines Reiters mit Gefolge, der heute in der Biblioteca Vaticana 73 aufbewahrt wird und zum anderen um die sogenannte Panvinius-Skizze (Abb. 1),
- eine Nachzeichnung der Krönungszeremonie Lothars III. im Panvinius-Codex aus dem Jahre 1570, die ebenfalls in der römischen Biblioteca Vaticana liegt 74. Auf der Rasponi-Kopie reitet ein Kaiser mit Gefolge auf eine Stadt zu, an deren Toren er von einem Papst mit ausgestreckten Armen empfangen wird. Unter der Illustration steht folgender Text:
- ____
- 71 Zu den Bildern im Lateranpalast vgl. C. Walter 1970, S. 155-176 und 1971, S. 109-136; I. Herklotz, Die Beratungsräume Calixt II. im Lateranspalast und ihre Fresken. Kunst und Propaganda am Ende des Investiturstreits, in: ZKG 52, 1989, S. 145-214; zu den im 18. Jahrhundert zerstörten Räumen der Päpste Innozenz II. und Nikolaus II. vgl. J. Wilpert, Die Kapelle des hl. Nikolaus im Lateranpalast, ein Denkmal des Wormser Konkordats, in: Festschrift für Georg v. Hertling, München 1913, S. 225-233; G. B. Ladner, die Papstbildnisse des Altertums und des Mittelalters, Bd. 2, Rom 1970, S. 17; Traeger 1970, S. 46; zuletzt, erstmals die Anwesenheit der Kaiserin Richenza bei der Krönungszeremonie interpretierend, G. Pamme-Vogelsang, Die Ehen mittelalterlicher Herrscher im Bild, München 1998, S. 195-216 und U. Nilgen, Bilder im Widerstreit zwischen Regnum und Sacerdotium, in: Streit um Bilder: von Byzanz bis Duchamp, hrsg. von K. Möseneder, Berlin 1997, S. 27-47.
- 72 Die Datierung ergibt sich aus den Fixdaten der Kaiserkrönung Lothars 1133 und dem Todesjahr Innozenz` II. 1143. Vgl. Pamme-Vogelsang 1998, S. 201-202.
- 73 Barb. lat. 4423, fol. 25 r., zuerst veröffentlicht von Cesare Rasponi, De basilica et patriarchio Lateranensi, Band 4, Rom 1656, S. 271, vgl. auch Schramm 1928/21983, S. 256-257.
- 74 Barb. Lat. 2738, Fol. 104 v.: Die Identifizierung geht auf G. B. Ladner, I mosaici e gli affreschi ecclesiastico-politici nell`antico Palazzo Lateranese, in: Rivista d\'archeologia cristiana. 12, 1935, S. 265-292, ebd. S. 282-284 zurück. Auf die von Stroll 1991, S. 188 und Pamme-Vogelsang 1998, S. 199 Anm. 5 vorgenommene Zuschreibung des \'Panviniocodex\' an Alfonso Chacon (1530-1599) sei an dieser Stelle hingewiesen, doch ist die Autorschaft Onofrio Panvinios (1529-1568) oder Chacons für die folgenden Ausführungen nicht relevant.
- ____
- 37
- Rex venit ante fores Der König kommt vor die Tore,
- iurans prius Urbis honores beschwört zunächst die Rechte der Stadt,
- Post homo fit pape wird dann des Papstes Mann,
- sumit quo dante coronam von ihm erhält er die Krone.
- Die dargestellten Personen sind zwar nicht eindeutig als Lothar III. und Innozenz II. zu identifizieren, doch handelt es sich bei der Rasponi-Kopie vermutlich um den szenischen Auftakt für das so bekannte wie umstrittene Krönungsbild Lothars III.‚ das die Skizze im Panviniuscodex überliefert. Die Textunterschrift hatte sich ursprünglich wohl auf den Bildzusammenhang beider Darstellungen bezogen 75. Die querrechteckige Zeichnung des Panvinius\' schildert in einer dreiteiligen Darstellung ausgewählte zeremonielle Handlungen des Krönungsaktes: Auf der linken Seite schwört Lothar vor dem Portal zur Lateransbasilika als künftiger römischer Kaiser auf die Evangelien den Römereid 76. Im Zentrum der Komposition sind Lothar und Innozenz II. mit zueinander gebeugten Körpern in einer nur schwer lesbaren Geste abgebildet, die verschiedentlich als Akt der Kommendation (Handgang) und Empfang des Friedenskusses 77 oder als Investitur mit den Mathildischen Gütern 78 gedeutet wird. Die rechte Szene gibt den Krönungsakt wieder und zeigt die Übergabe der Kaiserkrone an den mit einem Krönungsmantel bekleideten Lothar durch Papst Innozenz. Alle drei Momente werden von einer Architektur umspannt, die in der ersten Szene den Platz vor der Lateransbasilika und in den beiden nachfolgenden den Innenraum der Lateransbasilika als Ort der Krönungszeremonie angibt 79. Kombiniert man also die Rasponi-Kopie mit der Panvinius-Skizze, dann entsprechen die insgesamt vier Bildinhalte auch den vier Stationen
- ____
- 75 Groß 1990, S. 110 sieht in der Darstellung des auf die Stadt Rom zureitenden Kaisers der Rasponi-Kopie den ersten Teil der dreiteiligen Skizze von Pavinius, die die darauffolgende Ankunft des Kaisers und die Begrüßung durch den Papst in Rom anläßlich der Kaiserkrönung 1133 thematisiert.
- 76 Eigentlich besteht der Römereid aus drei verschiedenen Eiden, von denen der erste vor den Toren der Stadt Rom am Monte Mario, der zweite an der Porta Collina/Engelsburg zu leisten war, und erst im dritten schwört der König vor der Basilika St. Peter, die päpstlichen Regalien zu verteidigen. Zum Römereid vgl. E. Eichmann, Die römischen Eide der deutschen Könige, in: ZRGKA 6, 1918, S. 154-196; ders., Die Kaiserkrönung im Abendland, Bd. 2, Würzburg 1942, S. 189-207.
- 77 Ladner 1970, S. 19-20; Groß 1990, S. 110; zuletzt U. Nilgen in Luckhardt/Niehoff 1995, Bd. 1, S. 144 (Kat. Nr. C 14) und dies. 1997, S. 28.
- 78 Groß 1990, S. 99.
- 79 Die traditionelle Krönungskirche St. Peter war wegen des Schismas von 1133 vom Gegenpapst Anaklet II. und seinen Anhängern besetzt.
- ____
- 38
- der Kaiserkrönung (Einzug-Eid-Friedenskuß-Krönung). Die später nur noch in Verbindung mit der Rasponi-Kopie überlieferte Inschrift, die ebenfalls vier Einheiten bildet, hätte dann ursprünglich die gesamte Wandmalerei kommentiert. In den Gesta Frederici des Barbarossa-Biographen Rahewin (1158-1160), die als zeitgenössische Quelle den Wortlaut der Bildunterschrift überliefern, wird auch von dem Skandal um die Bilder und dem dazugehörigen Text berichtet, der darin gipfelte, daß Friedrich Barbarossa auf der Synode von Sutri 1155 die Entfernung der Inschrift forderte 80. Verständlich, denn schon die Krönungsszene, in der Lothar die kaiserliche Insignie (Krone) aus den Händen des Papstes erhält, projizierte den Inhalt der Gregorianischen Reform auf die Wände des Lateran und demonstrierte den Angriff auf die sakrale Herrschaft des Königs. War doch seit den Ottonen und Saliern die Kaiserkrönung als göttlich inspirierte Handlung proklamiert und so auch in den zahlreichen kaiserlichen Krönungsbildern der Buchmalerei (z.B. die Sakramentare Karls des Kahlen, 9. Jh. und Heinrichs II., 1002/04; Codex Aureus Heinrichs III.‚ 1039/56) überliefert.
- Doch die königstreuen Gegenreformer nahmen eher Anstoß an der mittleren Szene, in der sich Lothar stehend und in leicht gebückter Haltung dem sitzenden Innozenz II. zuneigt und ihm mit ausgestreckten Händen seinen Kopf zuwendet. In Verbindung mit dem überlieferten Wortlaut Post homo fit papae wurde die Geste als vasallitische Treuebekundung gedeutet, mit der Lothar im Ritual der Kommendation, dem Ineinanderlegen der Hände (Handgang), eine auch im lehensrechtlichen Kontext gebräuchliche Handlung vollzog 81. Die Kombination aus Gestus und Bildtitulus legte eine lehenssymbolische Interpretation der Szene nahe, die aber von historischer
- ____
- 80 Gesta Frederici lib. III, c. 12, S. 416, 7-12: „Talis pictura talisque superscriptio principi, quando alio anno circa Urbem fuerat, per fideles imperii delata cum vehementer displicuisset, amica prius invectione precedente, laudamentum a papa Adriano accepisse memoratur, ut et scriptura pariter atque pictura talis de medio tolleretur, ne tam vana res summis in orbe viris litigandi et discordandi prebere posset materiam.“ (Von diesem Bild und dieser Unterschrift hatte der Kaiser, als er sich früher einmal in der Nähe der Stadt aufhielt, durch Getreue des Reiches Kenntnis erhalten; es hatte ihm heftig mißfallen, und nach vorausgegangener freundschaftlicher Vorstellung soll er von Papst Hadrian das Versprechen erhalten haben, daß diese Aufschrift zugleich mit dem Bild beseitigt würde, damit nicht eine so unwichtige Sache den höchstgestellten Männern des Erdkreises Anlaß zu Hader und Zwietracht geben könnte).
- 81 Zur Kommendation als Begründung einer Lehensbindung vgl. W. Kienast, Die fränkische Vasallität. Von den Hausmeiern bis zu Ludwig dem Kind und Karl dem Einfältigen, Frankfurt a. M. 1990, S. 74-79, 124-139.
- ____
- 39
- Seite nicht unwidersprochen blieb 82. Abgesehen von der Frage, ob Lothar mit dem vermeintlichen Lehenseid die Kaiserkrone und damit das Reich als päpstliches Leben oder aber die Mathildischen Güter aus dem Besitz des Papstes empfing, entbehrte ein Lehenseid an dieser Stelle jeder rechtskräftigen Grundlage, besonders für den von Gerhard B. Ladner für diese Darstellung vorgeschlagenen Ablauf nach dem Krönungsordo des Cencius (I) 83.
- Auch von kunsthistorischer Seite muß die Version der Darstellung einer Kommendation, als Teil einer ausschließlich lehenssymbolischen Deutung, angezweifelt werden. Die Ikonographie der commendatio ist mit dem Niederknien des Lehensmannes, dessen gefaltete Hände von denen des sitzenden Lehensherren umschlossen werden, klar definiert. Ein Beispiel aus der Buchmalerei des 14. Jahrhunderts, bei dem der kniende Vasall seine gefalteten Hände in die des Feudalherrn legt, stellt das Ritual der Kommendation unmißverständlich dar (Abb. 3) 84.
- In der Panvinius-Zeichnung hingegen ist Lothar in einer leicht gebeugten Haltung, aber eindeutig stehend wiedergegeben, während der Papst sitzend dargestellt ist. Lothar wendet Innozenz seinen rechten Arm zwar zu, doch werden seine Hände keineswegs von denen des Papstes umschlossen. Relativ unwahrscheinlich scheint der seitens der italienischen Forschung gemachte und von Groß vorsichtig übernommene Vorschlag, in der Szene einen lehensrechtlichen Akt zu sehen, der zudem die gregorianische Forderung nach Investiturvorrecht beinhalten würde 85. Ein derartiger Höhepunkt päpstlicher Machtdemonstration wäre hier nicht nur angedeutet, sondern vermutlich - auch vom Zeichner - unmißverständlicher umgesetzt worden.
- Als weitere Deutung der mittleren Szene wurde der Friedenskuß vorgeschlagen, der das gegenseitige Treueverhältnis zwischen Papst und Kaiser besiegeln und den „electus“ zum „filius ecclesiae“ 86‚ zum Sohn der Kirchen, machen sollte. Dieses Ritual vollzieht der Papst sitzend und dem Krönungsordo C zufolge vermutlich noch in der Gewandung des Empfangszeremoniells, dem Mantel und der Mitra 87. Allerdings läßt diese Deutung einen letzten Zweifel bestehen, denn der den Pakt zwischen Papst und Kaiser besiegelnde Friedenskuß findet nach dem Krönungsordo C
- _____
- 82 Gegen Ladner 1970. S. 19 zuletzt Stroll 1991, S. 189-191 und J. Laudage, Alexander III. und Friedrich Barbarossa, Köln [u.a.] 1997, S. 50-57.
- 83 Ladner 1970, S. 18-20; Eichmann 1942, Bd. 1, S. 150-222.
- 84 Constitutiones feudorum cum glossis, Avignon. Österreichische Nationalbibliothek Wien, Cod. 2262, fol. 164v., abgebildet bei Althoff 1997, S. 229.
- 85 Groß 1990, S. 110.
- 86 Eichmann 1942, Bd. 1, S. 192-193.
- 87 Eichmann 1942, Bd. 1, S. 188, 192.
- ____
- 40
- außerhalb der Basilika und nicht wie in der Pavinius-Skizze im Inneren der Lateransbasilika statt 88. Unmittelbar vor der Insignienübergabe schreibt der Ordo C hingegen die rituelle Salbung des Königs vor: Noch bevor der König die Salbung empfängt, wirft er sich zu Boden, während über ihm die Allerheiligenlitanei gebetet wird. Nach der Aufrichtung empfängt er die Salbung des Hauptes, der Brust und der Schulter sowie eine eigene Salbung des rechten Armes, dem Ort von Kraft und Tapferkeit 89. Dieser zeremonielle Ablauf beinhaltet m. E. eine dritte ikonographische Variante der zentralen Figurenkonstellation. Allerdings würde diese mit einschließen, im Ritual der Weihe bzw. der Salbung einen Rückgriff auf den Krönungsordo A der fränkischen Zeit zu sehen. Nur dort ist „die Salbung eigenhändig vom Papst und von ihm allein vollzogen worden“ 90, während den Ordines B und C der späteren Zeit zufolge dem Bischof von Ostia das Vorrecht zustand, die Salbung vorzunehmen 91. Angesichts der sehr deutlich skizzierten Kopfbedeckung des Pontifex, bei der es sich um die päpstliche Tiara und nicht die bischöfliche Mitra handelt, ist eine Deutung der Mittelfigur als Bischof von Ostia allerdings auszuschließen. Auch die betreffende Bildunterschrift homo fit papae, in der Lothar als Mann des Papstes bezeichnet wird, evoziert eine Gleichsetzung der sitzenden Person mit Innozenz, zumal - so Schramm - der Papst auch im Krönungsordo C „diese Handlung gelegentlich selbst ausgeführt hat“ 92.
- Indem der Papst nach dem rechten Arm Lothars zu greifen und ihn dabei gleichsam emporzuziehen scheint, folgt er einem gerade nach dem Investiturstreit reduzierten Handlungsmodus der rituellen Salbung. Wie Ernst H. Kantorowicz in seinem Buch „Die zwei Körper des Königs“ festhält, sorgte eine Abkehr von den alten Salbungsriten, die im König noch den vicarius Christi sahen, für die Abwertung der Königssalbung gegenüber den Priesterweihen. Sie äußerte sich darin, daß dem weltlichen Würdenträger die Salbung des Hauptes versagt wurde, „weil Christus, das Haupt der Kirche, die Hauptessalbung vom Heiligen Geiste erhalten hatte. Das heißt: um die Unähnlichkeit mit der Salbung Christi zu betonen, wurde die
- ____
- 88 Eichmann 1942, Bd. 1, s. 189, 192; Stroll 1991, S. 190.
- 89 Eichmann 1942, Bd. 1, S. 208-210; Stroll 1991, S. 141 Anm. 14, 146 und J. Ott‚ Krone und Krönung. Die Verheißung und Verleihung von Kronen in der Kunst von der Spätantike bis um 1200 und die geistige Auslegung der Krone, Mainz 1998, S. 211-216; zur ideologischen Bedeutung der Salbung für die Herrschaftslegitimierung des Reformpapsttums vgl. Koch 1972, S. 78-88.
- 90 Eichmann 1942, Bd. 1, S. 84.
- 91 Eichmann 1942, Bd. 1, S. 134-135, 139-142, 206-207.
- 92 Schramm 1930, S. 335 Anm. 3.
- ____
- 41
- Salbung des Fürsten auf die Arme und Schultern verlegt (...)“ 93. Der primatiale Anspruch des Reformpapstes Innozenz und der entsakralisierte Status des Königs forderten einen derart verminderten Salbungsakt geradezu heraus, in dem - so Kantorowicz - dem Fürsten (König) „ausdrücklich eine Repräsentation Christi oder der Charakter eines christus Domini verweigert wurde“ 94. Gerade die gewaltige Größe, mit welcher der Papst selbst noch sitzend wiedergegeben ist - stehend würde er die gesamte Komposition sprengen - deutet auf einen für den päpstlichen Primat höchst anspruchsvollen Inhalt des Rituals hin. Die schon vom Aufbau her zum Zentrum erklärte Handlung muß für die päpstliche Bildpropaganda im Lateranpalast auch inhaltlich die Schwächung des Königtums thematisiert haben, denn die Szene der Kaiserkrönung am Hauptaltar wurde vom Auftraggeber an den rechten Bildrand, d. h. als Nebenschauplatz in den Hintergrund gerückt. Was lag näher, als die Abwertung des Sakralkönigtums am liturgischen Zeremoniell der Salbung zu exerzieren, deren ursprüngliche Idee die Gottunmittelbarkeit der Krönung war. Den juristischen oder weltlichen Teil der Kaiserkrönung, die Übergabe der Reichsinsignien, vollzieht Innozenz am Altar stehend, barhäuptig, wie es die Krönungsordines verlangen und im Begriff, dem vor ihm stehenden Lothar die Krone aufs Haupt zu setzen. Ursprünglich war die Barhäuptigkeit von König und Papst bei der Krönung zum Ausdruck ihrer Gleichheit vor Gott gedacht. Im Lateranfresko ist diese Harmonie aber durch kompositorische Feinheiten aufgehoben: Der erhebliche Niveauunterschied zwischen Lothar und Innozenz, dessen erhobene oder erhabene Position hier tatsächlich die Szene sprengt, führt die aktuelle politische Distanz zwischen regnum und sacerdotium vor Augen. Auch im Bildmoment der Krönung, bei der nicht „der Träger der Krone [Lothar] sondern der Verleiher als eigentlicher Inhaber der Insignie gilt“ 95, manifestiert sich der Anspruch auf Dauerhaftigteit der päpstlichen Primatstellung. Interpretiert man nämlich wie Joachim Ott das Halten der Krone (im Gegensatz zum Aufsetzen) über dem Haupt Lothars als Zeichen „(...) für Permanenz, das im Grunde genommen den alten Gedanken der ewigen Gültigkeit triumphalen Siegertums transportiert“ 96‚ dann konzentriert sich auch in der Krönungsdarstellung die Abhängigkeit
- ____
- 93 Kantorowicz, The King`s two bodies. A study in mediaeval political theology. Princeton 1957. Die zwei Körper des Königs, (dt.) München 1990 (danach zitiert). S. 322.
- 94 Kantorowicz 1990, S. 323.
- 95 F. Kämpfer, Der mittelalterliche Herrscher zwischen Christus und Untertan, in: Hecker 1990. S. 203-223, ebd. S. 210-219.
- 96 Ott 1998. S. 30.
- ____
- 42
- des Königtums von der immerwährenden geistlichen Autorität im Gottesstaat.
- Offensichtlich hatte der Auftraggeber des römischen Wandbildes beabsichtigt, die Sakralität des Kaisers herabzuwürdigen und die päpstliche Macht unantastbar darzustellen. Hinzu kommt, daß die Kaisersalbung an einem Nebenaltar vollzogen wurde und damit im Gesamtzeremoniell der Kaiserkrönung zu einem Ritual zweiten Ranges herabsank, was eine klare Abschwächung der einstigen Priesterfunktion des Kaisers bedeutete. Hingegen zelebrierte man die Übergabe der politischen Machtzeichen am wichtigeren Hauptaltar und stellte damit die weltliche Würde des Kaisers in den Vordergrund, wodurch dieser, gewissermaßen seiner religiösen Funktion beraubt, allein auf seinen irdischen Charakter reduziert wurde 97. Weil Innozenz II. in den eigenen Gemächern aber nicht nur die Abwertung des Kaisertums, sondern gleichzeitig den Triumph des Papsttums feiern wollte, griff er möglicherweise auf ein für den Ordo C ungewöhnliches Weihegebaren zurück, das ihn den Akt der Salbung vollziehen ließ. Denn die Darstellung der Kaisersalbung nimmt auf dem Fresko gegenüber der Krönung die zentrale und beherrschende Stellung ein.
- Das Beispiel des Lateranfreskos hat gezeigt, daß die Gregorianer zur Zeit Lothars III. das Königtum nicht mehr in der politischen Vehemenz eines Gregors VII. attackierten, ihre Vorstellungen vom entsakralisierten Königtum aber noch immer mit Nachdruck zu vertreten und künstlerisch zu inszenieren wußten. Im Gegenzug dazu war Lothars Selbstdarstellung weder in seiner Baukunst noch in seiner Politik von provozierender Überlegenheit gekennzeichnet, sondern er trat den Kirchenreformern als kluger Diplomat entgegen, der immer die Stärkung des Königtums im Blick behielt. Sofern es ihm der geringe Spielraum erlaubte, der ihm nach der Herrschaft der Salier noch geblieben war, die im Investiturstreit nicht nur die sakrale Würde der Kaiserkrone, sondern nun auch diese selbst verloren hatten.
- Seine Triebfedern waren dabei weniger fromme Absichten, wie es beispielsweise Crone 1982 resümiert 98, als vielmehr politisches Kalkül. Sich weder als Kontrahent noch als großer Freund der Reformbewegung demütig, reformnah und romorientiert zu geben, wie der eigenmächtige Umgang mit den Bestimmungen des Wormser Konkordats und die gezielt eingesetzten Huldbekundungen dem Papst gegenüber belegen, zeugen von
- ____
- 97 In St. Peter, der eigentlichen Krönungskirche, fand die Salbung am Altar des Hl. Mauritius und die Übergabe der Insignien am Petersaltar statt. Vgl. Schramm 1930, S. 333-336.
- 98 Crone 1982, S. 247-248.
- ____
- 43
- Lothars Fähigkeiten, die durch die politische Vergangenheit gesetzten Grenzen anzuerkennen. Lothar war wohl ein Anhänger der Kirchenreformpartei, doch waren seine politischen Ziele keineswegs identisch mit denen der Gregorianer. Vielmehr hatte Lothar im Blick, durch eigene dynastische Ideen den Gedanken des Imperium Romanum zu erneuern. Daß er als einstiger Gegner der salischen Kaiser dabei die salische Herrschaftstradition so weit wie möglich zu überwinden versuchte, war nachvollziehbar. Zumal er zur Verwirklichung seiner sächsisch-dynastischen Vorstellungen vor allem die Unterstützung der antisalischen, sächsischen Adelsopposition benötigte, ohne die er 1125 nicht König geworden wäre. So setzte Lothar nicht nur politisch, sondern auch historisch eine Zäsur und konzentrierte seine Königsmacht nach mehr als einhundert Jahren wieder im ottonischen Sachsen. Die Perspektiven, die sich für ihn aus dem Rückgriff auf ältere ottonisch-kaiserliche Vorbilder ergaben, betrafen die Mittel und Wege seiner Herrschaftslegitimation ebenso wie sein Verständnis von repräsentativer Architektur, wovon im Folgenden die Rede sein wird.
- ____
- 44
- II.2. Aufbau und Ausbau der Herrschaftslegitimation Lothars III.:
- Der Umgang mit dem Erbe
- Als der heute sehr viel prominentere Enkel Lothars III., der Welfenherzog Heinrich der Löwe, 1188 im Vierungsbereich seiner Grablege St. Blasius in Braunschweig einen Marienaltar aufstellen ließ, versah er diesen mit der folgenden Inschrift: „Im Jahr des Herrn 1188 ist dieser Altar zur Ehre der seligen Gottesmutter Maria von Adelog, dem ehrwürdigen Bischof von Hildesheim, geweiht worden, durch Stiftung und auf Veranlassung des erlauchten Herzogs Heinrich, des Sohnes der Tochter des Kaisers Lothar, und seiner sehr frommen Gemahlin Mathilde, der Tochter Heinrichs II., des englischen Königs, des Sohnes der römischen Kaiserin Mathilde“ 99.
- Die Inschrift nennt neben Patronat, weihenden Bischof, Weihedatum und dem Stifterpaar Heinrich und Mathilde auch dessen gekrönte Vorfahren, Kaiser Lothar III. und König Heinrich II. von England. Vergleichbar dem Krönungsbild im etwa zeitgleichen Evangeliar Heinrichs des Löwen (Abb. 4)
- spiegelte die Inschrift über die Präsentation der verstorbenen Mitglieder der Stifterfamilie hinaus auch das familiäre und herrscherliche Selbstverständnis Heinrichs wider. Neben der komplexen Ikonographie und den vielfältigen Sinnbezügen im Krönungsbild läßt besonders ein Detail die Intention erkennen, dynastische Kontinuität aufzeigen und in den Dienst herrscherlicher Rechtfertigung stellen zu wollen: Obwohl das prachtvolle Krönungsbild einer strengen hierarchischen Ordnung folgt, die zu beiden Seiten des Herzogpaares die nächsten Familienmitglieder des deutschen und englischen Herrscherhauses präsentiert, stellte man seitens Heinrichs zusätzlich dessen kaiserliche Großeltern Lothar und Richenza dar. Wenngleich Heinrich nur den Titel eines Herzogs trug, konnte er sich über seine Ahnen als Nachfahre der deutsch-römischen Kaiser bezeichnen und demonstrierte dies im Bild auch durch den von Gottes Hand vollzogenen Krönungsakt.
- Die genealogischen Voraussetzungen machten Heinrich überlegen, sie bildeten die Basis für sein Selbstverständnis als sächsischer Herzog und prägten auch die politisch-imperialen Vorstellungen und sein Wirken auf
- ____
- 99 Die Weiheinschrift wurde 1966 bei der Umstellung des Altares auf dem Deckel einer Bleikapsel im Kapitell der Mittelsäule entdeckt. Übersetzung nach A. Boockmann, Die Inschriften der Stadt Braunschweig bis 1528 (Die deutschen Inschriften 35), Wiesbaden 1993, S. 29. Zur Datierung und Frage nach der gleichzeitigen Anbringung der figürlichen Gravuren im Zentrum der Bleiplatte und der umgebenden Inschrift vgl. zuletzt F. Niehoff in Luckhardt/Niehoff 1995, Bd 1, S.192-195 (Kat. Nr. D 26).
- ____
- 45
- den sächsischen Kunstkreis 100 entscheidend mit. Ein solches Privileg kam dem Sachsen Lothar von Süpplingenburg nicht zugute, als er zwei Generationen zuvor überraschend von den deutschen Fürsten zum König gewählt wurde. Er hatte einen weitaus mühsameren Weg, eine politische und ideologische Basis für sein Königtum zu schaffen, da keine vornehme Familienkonstellation seine Herrschaftsautorität per se legitimierte.
- II.2.1. Lothars Voraussetzungen
- Lothar entstammte einer hochadeligen sächsisch-bayerischen Verbindung, deren gesammelte Erbmasse den Grundstock für seine spätere Territorialmacht in Sachsen bildete. Sein Vater, der Querfurter Graf Gebhard von Süpplingenburg und seine Mutter, die bayerische Gräfin Hedwig von Formbach, verfügten über bedeutende Komitatsrechte und Allodialbesitztümer, vor allem im Harzgebiet 101. Insbesondere durch den Anteil seiner Großmutter mütterlicherseits, Gertrud von Haldensleben 102, konzentrierten sich die Stammgüter im mittleren Sachsen, wo Lothar später seine Stiftungen
- ____
- 100 Zurecht haben die Forschungen zum Kunstkreis Heinrichs des Löwen die herzöglichen Denkmale in ihrer Gesamtheit als Symbole politischen Anspruchs und ideologischer Manifestationen gedeutet. Noch immer grundlegend G. Swarzenski, Aus dem Kunstkreis Heinrichs des Löwen, in: Städel-Jahrbuch 7/8, 1932, S. 241-397 auch für die zuletzt in Luckhardt/Niehoff 1995 erschienenen Publikationen, die das Kunstschaffen des Welfenherzogs im politischen und gesamteuropäischen Kontext würdigen.
- 101 Die Herrschaftsrechte aus dem Erbe väterlicherseits erstreckten sich über einen verhältnismäßig engen Machtbereich im Harz-‚ Derlin-‚ Nordthüring- und Balsamgau und bezogen sich auf keinen spezifisch süpplingenburgischen Besitz. Vgl. Vogt 1959, S. 64-66. Zur Herkunft Gebhards aus dem Querfurter Grafengeschlecht vgl. Quellen wie beispielsweise die Disibodenberger Annalen (1075), zusammengefaßt in Reg. Imp. Loth. Nr. 1; weitere Exkurse über die Herkunft der Süpplingenburger bei Vogt 1959, S. 136-142 und Hildebrand 1986, S. 5-21. Die verwandtschaftlichen Beziehungen der Süpplingenburger zum älteren Walbecker Grafenhaus konnten bisher nicht überzeugend hergeleitet werden. Vgl. dazu die kontroversen Positionen bei W. Grosse, Lothar von Süpplingenburg und seine Beziehungen zum Harzgebiet, in: ZHarzV 70, 1937, S. 81-99 und Starke 1955, S. 3-4.
- 102 Gertrud von Haldensleben war in erster Ehe mit Friedrich I. von Formbach (†1059) und in zweiter Ehe mit dem sächsischen Herzog Ordung von Billung (†1072) verheiratet. So kamen bayerische Güter der Grafschaften Rottach, Neuburg, Windberg (Diözese Passau) und Haldenslebener Herrschaftsrechte in Teilen des Harz-‚ Derlin-‚ Balsam- und Ostergaus über Hedwig von Formbach an Lothar. Vgl. F. Jungmann-Stadler, Beiträge zur Genealogie und Besitzgeschichte der Formbacher, in: ZbayerLdG 41, 1978, S. 369-385 und zur älteren Geschichte der Grafen von Haldensleben vgl. Vogt 1959, S. 66-68 und R. Schölkopf, Die sächsischen Grafen (919-1024). Studien und Vorarbeiten zum Historischen Atlas Niedersachsens. H. 22, Göttingen 1957, S. 93-98.
- ____
- 46
- Süpplingenburg und Königslutter errichtete. Insgesamt waren in Lothars Eigengütern Allode und Besitzrechte der vornehmsten Adelshäuser des Landes vereint, doch gab es vor 1100 weitaus mächtigere Herrschaftsbereiche in Sachsen, wie die der Pfalzgrafen von Sommerschenburg oder der Grafen von Ballenstedt, von Northeim und von Stade 103. Erst die Eheschließung mit der Northeimer Grafentochter Richenza im Jahre 1100 war der territorialpolitisch entscheidende Schachzug, durch den Lothar seine Erhebung zum Sachsenherzog 1106 forcierte 104. Richenza brachte neben einem beträchtlichen Teil des Northeimer Erbes, das ihr durch ihren Vater Heinrich den Fetten und ihren Großvater Otto von Northeim zustand, auch brunonische und katlenburgische Besitz- und Herrschaftsrechte ihrer Mutter Gertrud von Braunschweig in die hochadlige Verbindung mit ein 105. Lothar standen dadurch die Vogteirechte über das Kloster St. Ägidien und die Stifte St. Blasius und St. Cyriakus in Braunschweig sowie über das Kloster Homburg an der Unstrut zu.
- Mit den Personen Ottos von Northeim und Gertruds von Braunschweig verbanden Lothar in der Folgezeit aber nicht nur besitzrechtliche Verflechtungen, sondern auch eine tiefe Verbundenheit im Kampf gegen das salische Königshaus. Otto von Northeim, einst Herzog von Sachsen und Bayern, hatte 1072 durch den Salier Heinrich IV. sein bayerisches Gebiet an Welf IV. verloren, was mit ausschlaggebend war für seine tiefe Feindschaft zu den salischen Herrschern 106. Seine Schwiegertochter Gertrud
- ____
- 103 G. Pischke, Herrschaftsbereiche der Billunger, der Grafen von Stade, der Grafen von Northeim und Lothars von Süpplingenburg. Quellenverzeichnis, Hildesheim 1984.
- 104 In der historischen Forschung dominiert mittlerweile die Ansicht, daß für die Vergabe des sächsischen Herzogtitels durch Heinrich V. 1106 an den damals verhältnismäßig unbedeutenden Lothar von Süpplingenburg nicht dessen Herrschaftsstellung ausschlaggebend war. Vielmehr sollte eine Machtkonzentration der billungischen Erbteile verhindert werden, die nach dem Tode des letzten Billungers Magnus eine für Heinrich V. territorialpolitisch gefährliche Ballung welfischer, askanischer und billungischer Besitztitel und Herrschaftsrechte bedeutet hätte. Vgl. zuletzt G. Althoff, Die Billunger in der Salierzeit, in: Die Salier und das Reich 1991, Bd. 1, S. 309-329.
- 105 Durch mehrere Ehen verfügte Gertrud von Braunschweig über zahlreiche Besitztümer: Die erste Ehe mit Graf Dietrich von Katlenburg brachte ihr das katlenburgische Herrschaftsgebiet um Einbeck und im Lis-‚ Ritti-, und Himmerveldungau ein, in der zweiten Ehe mit Heinrich dem Fetten gelangte sie an die northeimischen Herrschaftsrechte. Die dritte Ehe mit dem Wettiner Markgrafen Dietrich von Eilenburg setzte sie in den Besitz der brunonischen Erbmasse, die sich über den ostfälischen und thüringischen Komitatsbereich und den Helmegau erstreckte. Vgl. Vogt 1959, S. 39-42, 71-75.
- 106 Otto von Northeim, Richenzas Großvater war einer der mächtigsten Reichsfürsten des 11. Jahrhunderts. Als Herzog von Bayern war er zunächst engster Vertrauter des salischen Königs Heinrichs IV., bevor eine Intrige das Blatt wendete und Otto zum Anführer der sächsischen Adelsopposition gegen den Salier machte. Northeimer Vogteirechte des Haus- und Familienklosters Bursfelde gingen durch Richenzas Vater Heinrich den Fetten an Lothar. Northeimische Eigengüter konzentrierten sich im westlichen Harzvorland, im sächsischen Hessengau und in den Gebieten um Northeim, Gandersheim, Göttingen und Stadtoldendorf. Vgl. Vogt 1959, S. 61-64, 78-84; zu den Grafen von Northeim grundlegend K.-H. Lange, Der Herrschaftsbereich der Grafen von Northeim 950-1144, Studien und Vorarbeiten zum Historischen Atlas Niedersachsens 24, 1969; ders., Die Stellung der Grafen von Northeim in der Reichsgeschichte des 11. und 12. Jahrhunderts, in: NiedJbLG 33, 1961, S. 1-107; zuletzt eine dichte Zusammenfassung zum Leben und Wirken des Northeimers von Olaf B. Rader, Otto von Northeim, Herzog von Bayern (1061-1070), in: E. Holtz und W. Huschner (Hg.), Deutsche Fürsten des Mittelalters, Leipzig 1995, S. 152-163.
- ____
- 47
- von Braunschweig, die Mutter Richenzas, führte den Kampf fort, der in der Folge den territorialen Ansprüchen Heinrichs V. in Sachsen galt. In diesen Jahren eskalierte der Konflikt zwischen den Salierherrschern und dem sächsischen Hochadel, und „die lang andauernde Entfremdung zwischen Königtum und dem sächsischen Herzogsgeschlecht” 107 wandelte auch die Ziele der Adelsopposition. Diese konzentrierte sich nicht mehr, wie noch bei Otto von Northeim, vorwiegend auf personalisierte Besitzansprüche und territoriale Unstimmigkeiten, sondern formierte zunehmend eine geschlossene Front gegen das salische Herrscherhaus. Die Abkehr vom salischen Königshaus brachte es zudem mit sich, daß die beteiligten Fürsten wie Friedrich von Sommerschenburg, Rudolf von Stade, Wiprecht von Groitzsch, Lothar von Süpplingenburg oder Ludwig von Thüringen zu Anhängern der Kirchenreformkreise wurden und als starke gregorianische Fraktion in Sachsen ein Bündnis aus Reformgeist, Salierfehde und neuem sächsischen „Wir-Gefühl“ 108 begründeten. Das Selbstverständnis dieses Bündnisses gipfelte schließlich in der Nominierung eines Mannes aus ihrer Mitte zur Königswahl 1125, nachdem der letzte Salier Heinrich V. ohne Erben gestorben war.
- Lothar von Süpplingenburg, auf den die Wahl gefallen war, gehörte zwar Dank seiner Vorfahren, einer geschickten Eheschließung und dem Besitz des sächsischen Herzogstitels zu den vornehmsten Familien des Reiches, doch floß weder königliches noch gar kaiserliches Blut in seinen
- ___
- 107 Fenske 1977, S. 64. Dort auch Ausführungen zur personellen Zusammensetzung der Adelsopposition und zu den genealogischen Verflechtungen einzelner Adelsgeschlechter, ebd. S. 61-93, 340-351.
- 108 Diese Wendung bezieht sich auf eine Publikation von W. Eggert, Wir-Gefühl und Regnum Saxonum bei frühmittelalterlichen Geschichtsschreibern, Wien [u.a.] 1984, der insbesondere das Stammes- und Gruppenbewußtsein des reichstreuen sächsischen Adels als lokale, politische und gesellschaftliche Identifikationskategorie betrachtet.
- ____
- 48
- Adern. Auch war er nicht von seinem Vorgänger designiert worden - womit die Übergabe der Reichsinsignien verbunden gewesen wäre – und konnte infolgedessen auf keine Macht- und Legitimationsattribute kaiserlicher Herrschaftsfolge zurückgreifen. Bei der Wahl selbst hatte das anscheinend keine Rolle gespielt, denn immerhin hatte sich Lothar gegen die Thronkandidaten Friedrich II. von Hohenstaufen und Leopold III. von Österreich durchsetzen können 109. Der Mangel an dynastischer Kontinuität gewann erst in dem Moment an Bedeutung, als Lothar seine Herrschaft, d. h. sein Königtum, gegen die Geblütserben, die Staufer, verteidigen mußte. Denn diese krönten bereits 1127 in Monza Konrad von Hohenstaufen zum Gegenkönig und beanspruchten ein in der salischen Kontinuität stehendes staufisches Königtum. In diesem politischen Gegenspiel wird deutlich, daß Lothar durch eine Konstellation aus fehlender Berufung, Mangel an dynastischer Tradition und den im Investiturstreit ausgelösten Entsakralisierungprozeß des Königtums einmal mehr als seine Vorgänger dazu gezwungen war, seine Regierungsgewalt insbesondere über die Anknüpfung an vergangene Herrschertraditionen zu definieren.
- Um nun Überlegungen zur Auffassung des Herrscheramtes und der Herrschaftslegitimation - terminologisch als Kaiseridee gefaßt - anzustellen, wird in der Geschichtswissenschaft die kaiserliche Kanzleigeschichte und Publizistik nach Formeln, Wendungen, Schreibstil und bestimmten Schultraditionen hin untersucht 110. In der Regel können aus der Arbeitsweise der Kanzlei und den Interpretationen literarischer oder rhetorischer Stilelemente in Diplomen, Briefen und anderen Dokumenten Rückschlüsse auf politische und ideologische Grundvorstellungen der Kaiseridee gezogen werden. Auch dient in diesem Zusammenhang die zeitgenössische Historiographie und die Deutung betreffender Textstellen dem Erkenntnisgewinn kaiserlicher Herrschaftspraxis und der zugrundeliegenden
- ____
- 109 Den Prinzipien der Erbmonarchie zufolge hätte Friedrich II. von Hohenstaufen, als Sohn der Kaiserschwester Agnes aus erster Ehe mit dem Staufer Friedrich, ein Anrecht auf die Nachfolge Kaiser Heinrichs V. gehabt. In zweiter Ehe war Agnes mit dem Babenberger Leopold III. von Österreich verheiratet. Auch er hatte sich als Thronanwärter zur Wahl gestellt. Zur Wahl Lothars und seinen Konkurrenten vgl. U. Schmidt, Königswahl und Thronfolge im 12. Jahrhundert, Köln [u.a.] 1987, S. 34-59 und zuletzt U. Nonn, Geblühtsrecht, Wahlrecht, Königswahl: Die Wahl Lothars von Supplinburg 1125, in: GWU 44, 1993, S. 146-157.
- 110 Vgl. beispielsweise H. Appelt, Die Kaiseridee Friedrich I. Barbarossa, in: Kaisertum, Königtum, Landesherrschaft. Gesammelte Studien zur mittelalterlichen Verfassungsgeschichte, hrsg. von O. Hageneder und H. Weigl, Köln [u.a.] 1988, S. 7-151. Allgemeine Überlegungen zum Begriff Kaiseridee stellt H. M. Schaller, Die Kaiseridee Friedrichs II., in: Schaller 1993, S. 53-83 an.
- ____
- 49
- Reichs- und Kaiseridee. Im Falle der lotharischen Regierungsperiode hat die historische Forschung ernüchternde Ergebnisse verzeichnet. Von Petke, der in der Kanzleigeschichte Lothars das „episodenhafte seiner Herrschaft“ 111 bestätigt findet, bis zu Gottfried Koch, der in der lotharischen Kanzleitradition eine Unterbrechung der salisch-staufischen Entwicklung sieht 112‚ dominiert die Feststellung vom Fehlen einer imperialen Präsentation Kaiser Lothars. Die insgesamt dürftige Forschungslage läßt mit Ausnahme der jüngsten Publikation von Klaus Naß 113, die sich aber der sächsischen Publizistik des 12. Jahrhunderts insgesamt widmet und Beziehungen zu Lothar nur am Rande herstellt, eine die Kaiseridee Lothars III. betreffende Arbeit vermissen. Dieses Desiderat umfassend zu beseitigen, ist eine Aufgabe der historischen Mittelalterforschung. Sie kann an dieser Stelle nicht geleistet werden.
- Dennoch lassen sich beim begrenzten Studium der Quellen und der neuzeitlichen Forschungsliteratur Parallelen der lotharischen Herrschaftspraxis zur ottonischen Kaiseridee aufzeigen, die als Gedankenfragmente - mehr in Form eines Indizienbeweises - zur Konstruktion der Herrschaftslegitimation Kaiser Lothars III. dienen können. Die interdisziplinäre Arbeitsweise ermöglicht es, im Folgenden Einzelkenntnisse aus der zeitgenössischen Historiographie, der lotharischen Politik und Kanzleigeschichte sowie der Kunst des frühen 12. Jahrhunderts zu kombinieren und die herrscherliche Selbstdarstellung Lothars III. zu skizzieren.
- II.2.2. Die ottonischen Züge in Lothars Herrschaft
- Sind die Stimmen der zeitgenössischen Chronisten Sprachrohr der Gesellschaft, dann war die Zeit zwischen 1125 und 1137 eine Epoche des inneren Reichsfriedens, der Blüte der reformierten Klöster, des Lebens ohne Not und Verzicht - kurzum, ein „tempore pacem maximam tam saeculares quam aecclesiastici habuerunt” 114, realisiert von einem Kaiser, der schon kurz nach seinem Tod als gottesfürchtiger Friedensfürst und „rex iustus“ 115 in den Quellen verehrt wurde. Der Annalista Saxo eröffnet die
- ____
- 111 Petke 1985, S. 428f.
- 112 Koch 1972, S. 155.
- 113 K. Naß, Die Reichschronik des Annalista Saxo und die sächsische Geschichtsschreibung des 12. Jahrhunderts, Habil. Braunschweig 1994, Hannover 1996, S. 406-408, 419-427.
- 114 Zitiert nach Leßmann 1912, S. 20.
- 115 Leßmann 1912, S. 16-31 projiziert die literarische Konzeption des rex iustus nach augustinischen und sybillischen Anschauungen auf die gesamte Regierung Lothars. Exemplarisch deutet er eine Textstelle zu Lothars Regierungszeit der Paderborner Annalen, die alle Kriterien eines rex iustus enthält: die des äußeren (temperis aeris) und inneren (pace affluebat, concordia regnabat) Friedens, der Gerechtigkeit „iustitia“ (propter iustitiam) und der Ausübung der Herrschaft nach dem Willen Gottes (pater patriae, liberaliter), ebd. S. 26.
- ____
- 50
- Beschreibung der Epoche Lothars mit den Worten: „Hier beginnen die Friedensjahre“ 116 und streut bei jeder Gelegenheit die ausgezeichneten Tugenden des Kaisers wie Gerechtigkeit und Bescheidenheit, seine fromme und katholische Gesinnung und seine Mäßigung in den Bericht ein 117. Die erfolgreiche Militärführung des Kaisers kann sogar dem caesarischen Vergleich standhalten: „(...) Denn wohin er sich wandte, immer siegte er, wie Julius Cäsar eines besonderen Glückes sich erfreuend” 118. Zum Ende des Jahres 1137 beklagt der Chronist in aufrichtiger Trauer den Tod des Kaisers mit folgenden Worten: „(...) ach! Er der von Vielen als Frieden der Kirche und Freund des Glaubens und der Gerechtigkeit beklagt werden muß. Seine Zeiten sind lieblich gewesen. Denn durch gute Witterung und mannigfaltige Fruchtbarkeit des Landes war Fülle an allen Dingen, nicht allein im Reiche, sondern in der ganzen Welt. Mit Recht wird er von uns und unsern Nachkommen Vater des Vaterlandes genannt, weil er ein trefflicher Verteidiger und der tapferste Vorkämpfer war, der es für nichts achtete, um der Gerechtigkeit willen sein Leben gegen alles Unheil einzusetzen. Herrliches noch mögen wir von ihm erzählen: in seinen Tagen war das Volk des Landes ohne Furcht. Denn ein jeglicher besaß frei und friedlich das Seinige (...)” 119. Das Urteil des Annalista Saxo kann eine
- ____
- 116 Annalista Saxo, ad a. 1126, S. 763, 14-15: „Incipiunt anni pacifici.“.
- 117 Annalista Saxo, ad a. 1125, S. 762-763, 59-2 und S. 763, 5-6: “Erat enim vir tocius prudentie, sacerdotii et regni fidelissimus coadunatur, apud Deum summe devotionis, provius in consilio, strennuitate bellorum fortissimus, et nullius umquam timore pericoli perterritus (...) iste religiosus et catholicus princeps principalem animum gerens (...)“ (Denn er war ein Mann von ganzer Klugheit, der treueste Vereiniger des Papsttums und des Reiches, von größter Demut vor Gott, vorsichtig im Rate, der tapferste Streiter im Kriege und niemals durch Furcht vor irgend einer Gefahr bestürzt (...) da zeigte er als frommer und katholischer Fürst fürstliche Gesinnung).
- 118 Annalista Saxo, ad a. 1125, S. 762, 14-15: “Quocumque enim se verterat, speciali quodam fato quo Cesar Iulius usus, vincebat.“
- 119 Annalista Saxo, ad a. 1137, S. 775, 42-49: „(...) ille heu multis lamentabilis, utpote pax eclesie, amator religionis et iusticie, 3. Nonas Decembris a seculo migravit. Tempora ipsius iocunda fuerunt. Nam bona aeris temperie, omnigena terre fertilitate, cunctarum rerum copia, non solum per regnum, sed et per orbem exuberabat. Merito a nobis nostrisque posteris pater patrie appellatur, quia erat egregius defensor et fortissimus propugnator, nichili pendens vitam suam contra omnia adversa propter iusticiam opponere. Et ut magnificentius de eo dicamus, in diebus eius populus terre non pertimuit. Unusquisque enim sua liberaliter pacificeque possidebat.“. Die Formel “patre patriae“ ist der ottonischen Historiographie entlehnt. Widukind von Corvey beklagt den Tod Heinrichs I. in der berühmten Beschreibung der Königserhebung Ottos I. von 936 mit den Worten: “Nachdem nun also der Vater des Vaterlandes und der größte und beste König Heinrich, entschlafen war (...)“, vgl. Widukind, Res gestae Saxonicae lib. II, I, S. 63: „Defuncto itaque patre patriae et regum maximo optimo Heinrico (...)“
- ____
- 51
- ausgeprägte Stammestreue für den Sachsen Lothar nicht verbergen, doch auch ein durchweg prostaufisch gesinnter Geschichtsschreiber wie Otto von Freising rühmt das lotharische Königtum mit den Worten: „ (...) hätte ihn nicht der Tod vorzeitig abberufen, er wäre dazu geschaffen gewesen, durch seine Tüchtigkeit und Beharrlichkeit der Krone des Reichs das frühere Ansehen wiederzugeben” 120.
- Das Bild eines christlichen und tugendhaften Herrschers, der mit Milde, Klugheit, Gerechtigkeit und Demut regierte, hält sich also im Urteil seiner Zeitgenossen 121. Doch diese Charakterisierungen bleiben deskriptiv; sie wirken in ihrer Vorstellung vom Idealtyp eines Herrschers geradezu formelhaft. An keiner Stelle äußern sich die Autoren über einen Rückbezug Lothars auf vergangene Königsautorität, der Aufschluß über das politische Selbstverständnis des Sachsenkönigs geben könnte. Eine Ausnahme bildet der Pöhlder Annalist, der Lothar als Nachahmer (imitator et heres) der idealen Herrscher Konstantin, Karls und Ottos des Großen beschreibt 122. Erst die moderne Geschichtsschreibung apostrophiert vereinzelt ottonische Züge in Lothars Herrschaft. Diese Zuweisungen aber bleiben vage und sagen wenig über das Vergleichbare ottonischer und lotharischer Herrschaftspraxis aus 123 . Es gab zwar parallele Schwerpunkte der Innen- und
- ____
- 120 Otto von Freising, Chron. VII, 20, 18-20: „(...) nisi morte preventus foret, cuius virtute et industria corona imperii ad pristinam dignitatem, reduceretur.“.
- 121 So loben beispielsweise die Annales Palidenses ad a. 1125, S. 77, 48-52 Lothar als „König, der den Adel seines Geschlechts durch ehrende Thaten und Rechtschaffenheit des Charakters zierte, (...) [den] Frieden der Kirche und Ruhe den Gläubigen [sicherte] (...)“ Weitere Charakterisierungen der Regierungszeit und zur Person Lothars im Kommentar zu Reg. Imp. Loth. Nr. 92 und 654.
- 122 Annales Palidenses, ad a. 1125 S. 77, 50-52: „(...) Iusticie enim amator et tenax, precessorum suorum Constantini Karoli primique Ottonis imitator et heres, temporum suorum usque in finem seculi in benedictione memoriam reliquit.\" (Nämlich als ein hartnäckiger Verehrer der Gerechtigkeit, ein Nachahmer und Erbe seiner Vorgänger Constantin, Karl und Otto I., hinterließ er ein solches Andenken an seine Zeiten, welches bis an das Ende der Welt gesegnet werden wird).
- 123 Mit Ausnahme Schmales 1968, S. 131, der auf die Verankerung von Lothars Kaisertum im Herzogtum Sachsen, auf die starke Präsenz des Königtums im Norden wie im Süden und auf ein Anknüpfen an die ottonisch-frühsalische Tradition des Kaisertums hinweist. Die Notizen bei Hildebrand 1986, S. 108 und Maschke 1955 S. 204 beziehen sich auf Lothars sächsische Territorialpolitik, die sie als Versuch interpretieren, das Regnum Saxonum des ottonischen Königtums wiederbeleben zu wollen. Andere Bemerkungen zu ottonischen Zügen in Lothars Herrschaft bleiben ohne Bezug zu konkreten Beispielen. So beginnt Reinhold Schneider sein eher populärwissenschaftliches und mit Anekdoten angereichertes Buch „Kaiser Lothars Krone“, Hildesheim 1959 mit einer Lobpreisung des Domes von Magdeburg, ohne einen Zusammenhang zu Königslutter herzustellen.
- ____
- 52
- Außenpolitik, wie die Nord- und Ostpolitik 124, den Ausbau der staatlichen Beziehungen nach Ostrom und die Anerkennung der östlichen Kaiserwürde 125, die Machtzentrierung im Herzogtum Sachsen 126 sowie die Einbindung von Familienmitgliedern und Adelsangehörigen in die Herrschaft 127, doch überschneiden sich hier eher Motive oberster Herrscherpflichten zur Stärkung des Reiches, als daß eine gezielte Anlehnung an die ottonische Staatsführung beabsichtigt wäre. Einzig Lothars Motivation, auf Betreiben des Wendenmissionars Vizelin 1134 das Segeberger Stift St. Marien und wenig später 1136 das reformorientierte Benediktinerkloster in Chemnitz zu gründen und damit Missionsstandorte im Norden und Osten des Reiches einzurichten, kann als Wiederaufleben des ottonischen Missionsgedankens gedeutet werden.
- Für solche Überlegungen, die eine besondere Wertschätzung Lothars für das Königtum Ottos des Großen und das stark an die ottonische Dynastie gebundene Missionszentrum Magdeburg voraussetzten müßte,
- ____
- 124 Schon bei den Ottonen gehörte die Nord- und Ostpolitik zu den politischen und militärischen Kaiserpflichten und wurde aufgrund der ständigen Bedrohung durch aufständische slawische und nordische Grenzvölker auch vom Missionsgedanken getragen. Desgleichen versuchte Lothar durch gezielte politische Aktivitäten, wie die Verhandlungen mit dem Böhmenherzog Boleslaw und eigene Missionsgründungen, ein politisches Gegengewicht in den nur dürftig christianisierten Reichsgebieten zu schaffen. Allerdings gehörten Missionsbestrebungen ebenso ins politische Programm der Salier und hatten nicht spezifisch Ottonisches.
- 125 Lothar schickte 1135 und 1136 eine Gesandtschaft unter Vorsitz Anselms von Havelberg zu Verhandlungen mit Kaiser Johannes II. Komnenos nach Byzanz. Vgl. J. Langeheinecke, Die diplomatischen Beziehungen zwischen dem deutschen Reich und Byzanz unter Lothar III. und Konrad III.‚ Phil. Diss. (masch) Berlin 1921.
- 126 Lothar begünstigte den Landesausbau Sachsens vor allem durch die Schaffung von Landgrafschaften und die Gründung neuer Komitate im Harzgebiet. Zur Frage, ob unter Lothar von einer Grafschaftsreform gesprochen werden darf vgl. K.-H. Mascher, Reichsgut und Komitat am Südharz im Hochmittelalter, Köln [u.a.] 1982, S. 114. Doch kann auch hier keine ausschließlich an ottonische Traditionen anknüpfende Handlungsweise bemerkt werden, war es doch der Salier Heinrich III. der das Regierungszentrum nach Sachsen in den Harz verlagerte und insbesondere den Ausbau der Goslarer Pfalz vorantrieb.
- 127 Auch die frühen Ottonen zogen aus dem sächsischen Adel, aber auch aus ihrer Familie den Großteil ihrer Helfer und Vertrauten zur Bewältigung politischer Aufgaben heran. Vgl. W. Giese, Der Stamm der Sachsen und das Reich in ottonischer und salischer Zeit, Wiesbaden 1979, S. 128-131; W. Glocker, Die Verwandten der Ottonen und ihre Bedeutung in der Politik, Köln 1989.
- ____
- 53
- sprechen mehrere Gründe. Die exklusive Rolle Magdeburgs in der Herrschaftskonzeption Lothars III. wird darin deutlich, daß er seine Kaiserkrönung 1133 zum Anlaß nahm, um Magdeburg als Metropole des ganzen Ostens einschließlich Polens vom Papst bestätigen zu lassen 128.
- Auch beim Überblick über die Festtagsaufenthalte Lothars III. wird sein besonderes Interesse für das ottonische Reichszentrum deutlich. Für insgesamt drei hohe Kirchenfeste, das erste Osterfest seiner Herrschaft 1126, das Fest der Heiligen Peter und Paul (29. Juni) 1134 und das Pfingstfest 1135, wählt Lothar Magdeburg und begeht die liturgischen Feiern im Kaiserdom Ottos des Großen 129.
- Schon für die Ottonen war das erste Osterfest ihrer Herrschaft ein besonderer Anlaß. Sie verbrachten es in Quedlinburg bei den Gräbern ihrer Vorfahren Heinrich I. und Mathilde zwecks sakraler Familienverehrung und frommen Totengedenkens an die Dynastiegründer 130. Dieselben Motive müssen zu Lothars Entscheidung geführt haben, den ersten Osterhoftag in Magdeburg am Grabe seiner ottonischen Amtsvorgänger Otto I. und Edith zu verbringen. Denn in diesem Moment der Memoria propagierte Lothar eine unmittelbare Nähe zu Otto I. und betonte die Zugehörigkeit zum sächsischen Stamm, womit er sich zur ottonischen Tradition bekannte und diese zum Leitmotiv seiner Herrschaft erhob 131. Gerade die übergeordnete Bedeutung des Osterfestes als christliches Hauptfest der Auferstehung Christi war geeignet, um die Rechtmäßigkeit der Thronfolge zu unterstreichen. Die enorme Wichtigkeit des Osterfestes für den Kaiser zeigte sich auch darin, daß man den österlichen Festtagsort nicht dem Zufall überließ, sondern sehr gezielt ins Itinerar einband 132.
- ____
- 128 Vgl. Reg. Imp. Loth. Nr. 344.
- 129 Die Festtagsaufenthalte Lothars sind tabellarisch festgehalten bei Kuck 1947, S. 70.
- 130 Leyser 1984, S. 147.
- 131 Noch am selben Tag verhandelte Lothar über den vakanten Magdeburger Erzstuhl. Mit allen Mitteln versuchte er, Konrad von Querfurt, einen nahen Verwandten, ins Amt zu drängen, was das besondere Interesse Lothars am Erzbistums verdeutlicht. Zur Kandidatur kommt es zwar, doch wird der von Rom favorisierte reformtreue Norbert zum Erzbischof ernannt. Vgl. Crone 1982, Die Magdeburger Vakanz von 1126, S. 221. Nach Norberts Tod 1134 kommt es allerdings zur erneuten Wahl Konrads von Querfurt. Lothar nimmt wieder einen Hoftag in Magdeburg zum Anlaß, der Wahl Konrads zuzustimmen und ihn zu investieren. Vgl. Reg. Imp. Loth. Nr. 409.
- 132 G. Beyreuther, Die Osterfeier als Akt königlicher Repräsentanz und Herrschaftsausübung unter Heinrich II. (1002-1024), in: Feste und Feiern im Mittelalter 1991, S. 245-255 weist darauf hin, „daß die Festtagsorte offenbar jährlich vorausbestimmt worden sind, während sonst das Itinerar in der Regel auf einige Wochen, höchstens mehrere Monate im voraus geplant wurde“.. Ebd. S. 164.
- ____
- 54
- Vor diesem Hintergrund darf auch künstlerisch eine Vorbildfunktion des 1207 niedergebrannten Magdeburger Domes Ottos des Großen für den neuen Sachsenkaiser Lothar vermutet werden, verkörperte er doch durch seine bauliche Gestalt die Kaiseridee der frühen Ottonenherrscher. Durch die Verwendung kostbarer römischer Spolien aus Porphyr, Marmor und Granit, antiker Kapitellplastik und Stuck 133 waren in Magdeburg die karolingisch-kaiserliche Hofarchitektur wie auch die römische Antike als Repräsentant der spätantiken Kaiseridee vereint. In Rom und Magdeburg, den zwei Hauptstützen ottonischer Herrschaftslegitimation, lagen auch Lothars Wurzeln repräsentativer Herrschaftsdemonstration, die ihn über die Ottonen mit der Idee des spätantiken Kaisertums verbanden. Dies wird die Analyse der Architektur und Bauskulptur seiner Grablege in Königslutter zeigen 134.
- Eine direkte Mittlerschaft der Magdeburger Architektur und Bauzier für die Königslutterer Italienzitate ist durch keine schriftliche Nachricht belegt, doch spricht ein in beiden Kaisergrablegen erhaltener Ausstattungsgegenstand für eine ideologische und künstlerische Achse zwischen Magdeburg und Königslutter: Noch heute stehen zwei schlichte marmorne Osterleuchter von nahezu identischer Größe und Gestaltung, jeweils im Chor von Magdeburg und Königslutter (Abb. 5, 6).
- Ungeachtet der unklaren Datierung der Leuchter 135 ist der liturgische Kontext von Interesse, für den sie entstanden sind.
- ____
- 133 Über die Verwendung von Marmor und Reliquien im Dombau zu Magdeburg vgl. G. Binding, Zur Ikonologie des Magdeburger Domes Otto I., in: Ullmann 1989, S. 70-73.
- 134 Von Jürgen Petersohn als eher verspäteten Nachklang des ottonischen Mauritiuskultes bezeichnet, ist die Festkrönung Lothars 1136 am Mauritiustag in Italien (Reg. Imp. Loth. Nr. 508) auch Zeichen eines intensiven Festhaltens an ottonischen Traditionen durch Kaiser Lothar. Vgl. J. Petersohn, Kaisertum und Kultakt in der Stauferzeit, in: Politik und Heiligenverehrung 1994, S. 101-146, ebd. S. 103, Anm. 8. Wie ein Indiz post tempore für den stilistischen Zusammenhang zwischen Königslutter und dem ottonischen Dom zu Magdeburg wirkt die Tatsache, daß Architektur und Dekor des spätromanischen Kreuzgangs vom Magdeburger Dom in seinem Ornamentreichtum wiederum in der Nachfolge der Königslutterer Bauornamentik steht. Für v. a. E. Schubert, Stätten sächsischer Kaiser, Leipzig 1990, S. 93.
- 135 Die zeitliche Einordnung der beiden Osterleuchter hat die Forschung bisher nicht präzisiert. Gosebruch/Gädeke 1985, S. 14 und J. Luckhardt in Luckhardt/Niehoff 1995, Bd. 1, S. 146 (Kat. Nr. C 15) datieren den Königslutterer Leuchter in die Erbauungszeit der Abteikirche (um 1135). Für den Magdeburger Osterleuchter schlägt E. Schubert, Der Magdeburger Dom, Leipzig 1984 S. 203 und Abb. 94 eine Datierung ebenfalls in die erste Hälfte des 12. Jahrhunderts vor. Zutreffender hingegen ist Schuberts Datierung des Leuchters um 1170, mit der er die Abbildung des Leuchters in derselben Publikation untertitelt.
- ____
- 55
- Zunächst war der Osterleuchter fester Bestandteil der Osterliturgie. Er wurde verbunden mit der Lebensbaumsymbolik als Sinnbild des auferstandenen Christus gedeutet und nach altrömischem Brauch oft gemeinsam mit zwei begleitenden Leuchtern in der Mitte des Altarraumes oder in der Nähe des Ambo aufgestellt 136. Untersuchungen zum Magdeburger Dom-Ordinarius von Renate Kroos haben ergeben, daß der Magdeburger Osterleuchter, falls seine Kerze während der Osterprozession noch nicht ganz heruntergebrannt war, nachfolgend am Grab Kaiser Ottos I. aufgestellt und entzündet wurde: „(...) zwei Osterkerzen neben dem Kaisergrab und eine dritte, noch größere, zu Häupten des Grabes” 137. Durch den räumlichen Kontext zum Fundator-Grab wurde der Osterleuchter zum Totenleuchter und erfüllte eine Memorialfunktion im österlichen Totengedächtnis für Otto I. 138. Für König Lothar, der 1126 anläßlich seines ersten Osterfestes in Magdeburg zu den Anwesenden der Osterprozession gehörte, die vermutlich auch am Grabe Ottos I. vorbei führte, verbanden sich dort Totengedächtnis, genealogische Feier und die Hoffnung auf Auferstehung. Bedenkt man nun die heilssymbolische und memoriale Bedeutung, die dem Osterleuchter im Rahmen der Osterfeier zukommen kann, verdient es doch einige Beachtung, daß der Königslutterer Osterleuchter dem Magdeburger Beispiel so auffallend ähnelt 139. Vor allem angesichts der geringen
- ____
- 136 M. Schneider-Flagmeyer, Die mittelalterlichen Osterleuchter in Süditalien, Phil. Diss. Köln 1985; zuletzt K Seidel, Die Kerze. Motivgestalt und Ikonographie, Hildesheim 1996, dort speziell zur Osterkerze S. 99-108. Lexikon der Kunst, Leipzig 1993, Bd. V, S. 334-335.
- 137 R. Kroos, Quellen zur liturgischen Benutzung des Domes und zu seiner Ausstattung, in: Ullmann 1989, S. 88-97, ebd., S. 95 Anm. 57. Kroos` Forschungen beziehen sich auf ein Exemplar des Magdeburger Ordinarius (Staatsbibliothek Preußischer Kulturbesitz in Berlin, cod. theol. lat. qu. 113), eine Kopie des 16. Jahrhunderts nach einem Ordinarius des 13. Jahrhunderts, in dem Bemerkungen zur Einbeziehung der Stiftergräber Ottos I. und Edithas in verschiedene liturgische Zusammenhänge festgehalten sind.
- 138 In der bevorzugten ottonischen Osterpfalz Quedlinburg gehörte das Totengedächtnis am Grab Heinrichs I. und damit die Ehrung des Dynastiegründers fest in den liturgischen Ablauf der Osterzeremonie. Zu den Quellen bei den beiden Mathildenbiographen und beim Quedlinburger Annalisten vgl. L. Bornscheuer, Miseriae Regnum. Untersuchungen zum Krisen- und Todesgedanken in den herrschaftstheologischen Vorstellungen der ottonisch-salischen Zeit, Berlin 1968, S. 99-103.
- 139 Beide Leuchter sind etwa gleich hoch und bestehen aus zwei gedrehten, gedrungenen Säulenschaftfragmenten, zwischen welchen als oberer und unterer Abschluß eine wulstige und ornamentierte Basis sitzt. Den Leuchterteller bilden jeweils umgekehrte profilierte Basen, beim Magdeburger Leuchter allerdings mit einer oktogonalen Grundfläche schließend. Die Leuchterfüße sind jedoch komplett verschieden, der Königslutterer aus vier zentralbauartig zusammengefügten Tabernakeln auf rundem Piedestal, aber zum Original gehörend, der Magdeburger aus einer verzierten Nachbildung von 1958. Allerdings weisen die reich profilierten Kanneluren des Magdeburger Leuchters schon in die zweite Hälfte des 12. Jahrhunderts, sodaß eine Entstehung um 1160/70 nicht auszuschließen ist.
- ____
- 56
- Verbreitung dieses Leuchtertyps nördlich der Alpen möchte man beiden liturgischen Geräten mehr als nur formale Parallelen zusprechen 140. Vielmehr durchdringen sich in den Osterleuchtern kaiserliches Totengedenken und herrschaftstheologische Vorstellungen der kaiserlichen Imitatio Christi, die im Procedere der Osterfeier an den Kaisergräbern in Magdeburg und Königslutter Auferstehung und ewiges Leben symbolisierten. Auch wenn keine Quelle den Stifter oder den Anlaß der Stiftung weder des Magdeburger noch des Königslutterer Osterleuchters nennt, ist zumindest von wechselseitigen künstlerischen und theologischen Anregungen auszugehen. Schließlich bekäme die Rezeption eines für das österliche Totengedächtnis der Ottonenherrscher so bedeutsamen liturgischen Gegenstandes in Königslutter, gerade vor dem Hintergrund der von Lothar angestrebten ottonisch-sächsischen Herrscherkontinuität, eine herrschaftslegitimatorische Dimension.
- In diesem Sinne konnten die von der historischen Forschung beobachteten ottonischen Züge in Lothars Herrschaftskonzeption durch einen kleinen Teilaspekt von kunsthistorischer Seite ergänzt werden. Darüberhinaus ist anzunehmen, daß die architekturgeschichtlichen Parallelen zwischen dem Magdeburger Dom und der Königslutterer Kaisergrablege erheblich größer waren, als es die beiden Osterleuchter widerspiegeln. Da die Architektur von Königslutter reformbenediktinische und imperiale Gestaltungsprinzipien verbindet und der Konvent der Lotharstiftung aus dem Magdeburger Reformkloster Berge kam, ist nicht auszuschließen, daß Magdeburg auch für den kaiserlichen Charakter der Königslutterer Baugestalt Vorbild war. Von dem ottonischen Dom sind byzantinisierende Kapitelle und antike Säulenschäfte in den staufischen Neubau gelangt 141, die im ottonischen Kaiserdom einen mit der Rezeption antiker und italienischer Baukunst von Königslutter vergleichbar politisch intendierten Rückbezug auf legitimierende Zeichen kaiserlicher Macht bedeuteten. Doch bevor den Spuren von Antiken- und Italienrezeption in der sächsischen Baukunst Lothars III. nachgegangen wird, soll ein kurzer Exkurs zur
- ____
- 140 Ein weiterer Leuchter, der hinsichtlich der formalen Gestaltung eine Gruppe mit den Leuchtern in Königslutter und Magdeburg bildet, befindet sich in der Klosterkirche von Jerichow. Weitere Exemplare dieser Art außerhalb Sachsens sind nicht bekannt.
- 141 Vgl. C. Meckseper, Antike Spolien in der ottonischen Architektur, in: Poeschke 1996, S. 179-204 und E. Schubert, Imperiale Spolien im Magdeburger Dom, in: Althoff/Schubert 1998, S. 9-32.
- ____
- 57
- Idee des ottonischen Sakralkönigtums darlegen, weshalb der Reiz der ottonischen Herrschaftstradition für die Kaiseridee Lothars III. weit über die einfache Tatsache hinausging, daß mit Lothar wieder ein Sachse auf dem Herrscherthron saß.
- Das ottonische Sakralkönigtum
- Der Anspruch der ottonischen Herrschaft, das Königsamt durch Gottes Gnaden zu bekleiden, spiegelt sich nirgends deutlicher wider als in der Bildsprache der Kaiserdarstellungen und Dedikationsbilder ottonischer Buchmalerei. Erinnert sei an das Titelblatt des Aachener Liuthar-Evangeliars (um 980) sowie die Krönungsbilder vom Perikopenbuch (um 1007 oder eher um 1012) und Sakramentar Heinrichs II. (1002 oder wenig später) 142‚ auf welchen der König die Krone direkt aus der himmlischen Sphäre empfängt. Diese Zeugnisse sakraler Überhöhung der Kaiserwürde reflektierten das Selbstverständnis des Herrschers, der sich als irdischer Stellvertreter Gottes, durch göttliche Gerechtigkeit zum Träger des göttlichen Willens bestimmt, in den prunkvollen Bildern darstellte. Leider fehlen derartige Bildquellen für die Königs- und Kaiserzeit Lothars 143, die die Kaiseridee in vergleichbarer Anschaulichkeit zeigen. So ist man darauf angewiesen, über Verknüpfungen ottonischer und lotharischer Herrschaftsideologie zu mutmaßen. In diesem Zusammenhang sollen mit der individuellen und der sakralen Eigenschaft des Herrschers zwei zentrale Aspekte des komplexen Themas des frühmittelalterlichen Sakralkönigtums im Vordergrund stehen 144.
- ____
- 142 U. Kuder, Die Ottonen in der ottonischen Buchmalerei. Identifikation und Ikonographie, in: Herrschaftsrepräsentation im ottonischen Sachsen, hrsg. von G. Althoff und E. Schubert, Sigmaringen 1998, S. 137-234.
- 143 Dies liegt weniger in einer Überlieferungsproblematik begründet als darin, daß der durch den Investiturstreit hervorgerufene Bruch der sakralen Legitimierung von Königs- und Kaiserherrschaft, sich auch auf die Entwicklung des Herrscherbildes und den Kontext, in welchem es stand, auswirkte. H. Keller und H. Hoffmann erkennen mit Recht, daß im 12. Jahrhundert die Geschichtsschreibung zum Träger dieser Bildtradition wurde. Handschriften der Rechtssicherung beispielsweise stellen Herrscher als historische, rechtsetzende und dynastiebegründende Figuren dar. Vgl. H. Keller, Herrscherbild und Herrschaftslegitimation. Zur Deutung der ottonischen Denkmäler, in: Frühmittelalterliche Studien 19, 1985, S. 290-311 und H. Hoffmann, Buchkunst und Königtum im ottonischen und frühsalischen Reich, Stuttgart 1986, S. 36-37.
- 144 Für den historisch-theologischen Kontext dieses Abschnittes vgl. Leyser 1984, S. 124-173 und S. Weinfurter, Idee und Funktion des „Sakralkönigtums“ bei den ottonischen und salischen Herrschern (10. und 11. Jahrhundert), in: Gundlach/Weber 1992, S. 99-127. Zu den klassischen und immer aktuellen Autoren zu diesem Thema zählen H. Beumann, Die sakrale Legitimierung des Herrschers im Denken der ottonischen Zeit, in: ZRGGA 66, 1948, S. 1-45 und Kantorowicz 1957 (dt. 1990), S. 64-98.
- ____
- 58
- Die Vorstellung, daß beim Ableben eines Herrschers mit der Person auch das Königtum zu Ende ging und mit dem Nachfolger jedesmal neu entstand, war einer der Leitgedanken des ottonischen Sakralkönigtums. Analog zur Herrschaft Gottes verstand der jeweilige König sein irdisches Königtum als einmalige, exklusive und individuell geprägte Einrichtung, die sich weitgehend unabhängig von dynastischen Kontinuitäten behaupten konnte. Ausdruck dieses personalisierten Verständnisses ottonischen Individualkönigtums 145 ist die Wahl der Herrschergrablegen. Von Heinrich I. bis Heinrich II. wurden die Herrscher an verschiedenen Orten bestattet, zum Teil in eigens zu diesem Zweck gestifteten Memorialbauten: Heinrich I. in Quedlinburg, Otto I. in Magdeburg, Otto II. in St. Peter in Rom, Otto III. in Aachen, Heinrich II. in Bamberg. Im Gegensatz zur Begräbnispraxis der nachfolgenden salischen Dynastie, die ihre verstorbenen Herrscher gemeinsam im Dom von Speyer bestattete, konzentrierten die frühmittelalterlichen Herrscher Kult und Memoria dauerhaft auf ihre Person. Diese verstärkt personengebundene und von der Dynastie weitgehend unabhängige Vorstellung vom Königsamt verlangte nach einer überirdisch-theokratischen Legitimation der weltlichen Gewalt. Es ist bezeichnend, daß gerade bei den ottonischen Kaisern, die ihr Amt als „Göttliches Mandat“ 146 verstanden, die sakrale Eigenschaft zur obersten Herrscherqualität wurde. Dies trifft auch für das Königtum der Salier zu, doch nimmt hier die Autorität der Sippe und die dynastische Bindung den gleichen Raum ein.
- Diese Konstellation ottonischer Herrschaftslegitimation muß auf den Sachsen Lothar einen besonderen Reiz ausgeübt haben. In diesen beiden ideologisch-theokratischen Wurzeln ottonischen Herrschaftsverständnisses, der sakralen und der individuellen Eigenschaft der Königswürde, lagen für Lothar III. wesentliche Chancen, seine Person und sein Königtum umfassend zu legitimieren. Denn zwei Mängel kennzeichneten Lothars Herrscherpersönlichkeit: Das Fehlen einer dynastischen Gebundenheit und nicht von seinem Vorgänger Heinrich V. zum König designiert worden zu sein. In der Berufung auf das Vorbild des ottonischen Sakralkönigtums konnten diese Unzulänglichkeiten zwar nicht aufgehoben, aber zumindest entkräftet werden. Die fehlende Berufung löste sich in der Idee des göttlichen Mandats und der sakralen Würde des Königtums auf, Gott übernahm gewissermaßen die Funktion des Designators und widerlegte
- ____
- 145 Der Aspekt des ottonischen „Individualkönigtums“ wurde von Weinfurter in: Gundlach/Weber 1992 (wie Anm. 144), S. 104-113 umfassend erläutert.
- 146 Koch 1972, S. 61-78.
- ____
- 59
- dabei auch die Forderung nach einer dynastischen Erbfolge. Im Wissen um diese theoretische Voraussetzung vom Selbstverständnis des sächsisch-ottonischen Sakral- und Individualkönigtums konnte Lothar an eine sächsische Vergangenheit anknüpfen und sein Wahlkönigtum auf ein traditionelles Fundament stellen. Daß diese Thesen nicht vollständig realer Grundlagen entbehren, zeigen die folgenden Beispiele.
- Mit dem Bau der eigenen Grablege in Königslutter nahm Lothar III. die Tradition ottonischer Bestattungskultur auf und bekannte sich damit zum Gedanken des ottonischen Individualkönigtums. Er folgte in diesem Punkt der Vorstellung des individualisierten Auserwähltseins, das die Heiligkeit des Einzelnen, nicht aber - wie bei den Saliern - die der Dynastie und der transpersonalen Institution des Kaisertums betont. Auch sein besonderes Interesse für die Herrschergrablegen der Ottonen in Magdeburg und Quedlinburg unterstützt diese These. Die Sonderstellung Magdeburgs, vor allem auch in künstlerischer Hinsicht (Italienrezeption), wurde bereits angesprochen. In Quedlinburg, wo Lothar insgesamt vier hohe Kirchenfesttage verbrachte, wurde auf königliche Veranlassung zu Pfingsten 1129 die Stiftskirche St. Servatius geweiht. Dieser persönliche Eingriff Lothars in eine rein kirchliche Angelegenheit war vermutlich durch die Absicht motiviert, auch in Quedlinburg am Grab der ersten Ottonen die Kontinuität seiner Herrschaft und Dynastie in Sachsen zu legitimieren.
- Daß die Indienstnahme des ottonischen Individual- und Sakralkönigtums für die Herrschaftskonzeption Lothars III. nicht beliebig oder zufällig war, bezeugt auch der folgende Befund aus dem Bereich der Bestattungsgeschichte: Bei der Öffnung des Kaisergrabes in Königslutter wurden neben den kaiserlichen Grabinsignien (Inschriftentafel, Grabkrone, Szepter, Ringe und Fragmente vergoldeter Bronzesporen) zwei Bischofsinsignien entdeckt und ins Inventar aufgenommen 147. Patene und Kelch, wie sie eine Zeichnung von 1715 (Abb. 7)
- wiedergeben, sind als liturgisches Gerät geistliche Insignien und als Grabbeigaben im Kontext mittelalterlicher Kaiserbestattungen einmalig. Bereits Johannes Laudage hat in diesem Zusammenhang auf die theokratische Herrschaftsauffassung Lothars hingewiesen und deutet die irdischen Insignien Patene und Kelch als Zeichen seiner „apostelgleichen Auffassung von Kaisertum“. Laudage zieht gleichfalls den Schluß, Lothar verkörpere „den Typus des in seinem Jenseits-Bezug verankerten Sakralkönigs ottonisch-frühsalischer Prägung“ 148. Als liturgische Altargeräte dienten Patene und Kelch zur
- ____
- 147 Zur Öffnung des Grabes vgl. H. Rötting, Die Grablegung Kaiser Lothars III. in der Stiftskirche zu Königslutter, in: Kirchen, Klöster, Manufakturen 1985, S. 61-82.
- 148 Laudage in Luckhardt/Niehoff 1995 (wie Anm. 22), S. 102.
- ____
- 60
- Aufnahme der Hostie und des eucharistischen Weines. Als Grabbeigaben im Zusammenhang gerade mit der Königslutterer Bestattung symbolisierten sie den aktualisierten Anspruch Lothars III. auf die mit der ottonischen Vergangenheit verknüpfte und seit dem Investiturstreit verlorene Priesterfunktion des Herrschers, gewissermaßen dessen sakrale Eigenschaft. Dabei verschmolzen gleichermaßen politische und persönliche Motive, denn die in den Königslutterer Grabbeigaben fixierte göttliche Legitimierung des Königtums, die Herrschaft von Gottes Gnaden, richtete sich einmal gegen die von den Gregorianern beanspruchte päpstliche Autorität im Reich, war also ein Vorstoß gegen die vom Papst beschnittene priesterliche Eigenschaft des Königs und überwand gleichzeitig die Defizite des Wahlkönigs Lothar hinsichtlich seiner fehlenden dynastischen Herkunft.
- II.2.3. Die salischen Züge in Lothars Herrschaft
- Während im vorangegangenen Kapitel der mögliche ideologische Einfluß der ottonischen Kaiseridee auf die Herrschaftskonzeption Lothars III. untersucht wurde, stellt sich nun die Frage, wie sich Lothar zur Tradition der gottgewollten Erbmonarchie seiner salischen Amtsvorgänger und der daraus geborenen Utopie des salischen Universalkönigtums, dem Dom im Auge der gregorianischen Reformer, verhielt 149. Angesichts des vom Reichsfürstenstand zur Wahlversammlung von 1125 verfaßten Ladungsschreibens, in dem ein Kandidat gesucht wurde, der mit der Politik der letzten Salier brechen müsse 150, scheint diese Frage zunächst überflüssig.
- ____
- 149 Die salischen Herrscher verlangten über die sakrale Legitimierung ihrer Herrscherwürde hinaus einen dynastischen Rechtsanspruch auf das Königtum. Sie kreierten damit ein Erbrecht auf den Königsthron und schufen ein nicht mehr nur personengebundenes, sondern vor allem dynastiebezogenes König- bzw. Kaisertum. Zum salischen Herrschaftsverständnis vgl. H. Beumann, Zur Entwicklung transpersonaler Staatsvorstellungen, in: Das Königtum. Seine geistigen und rechtlichen Grundlagen, hrsg. vom Konstanzer Arbeitskreis für mittelalterliche Geschichte (Vorträge und Forschungen 3), Darmstadt 1969, S. 185-224; P. Millotat, Transpersonale Staatsvorstellungen in den Beziehungen zwischen Kirchen und Königtum der ausgehenden Salierzeit (Historische Forschungen 26), Rheinfelden [u.a.] 1989; Weinfurter, in: Die Salier und das Reich 1991 (wie Anm. 30); ders.‚ Herrschaftslegitimation und Königsautorität im Wandel: Die Salier und ihr Dom zu Speyer, in: Die Salier und das Reich 1991, Bd. 1, S. 55-96; T. Struve, Kaisertum und Romgedanke in salischer Zeit, in: DA 44, 1988, S. 424-454.
- 150 Mit dieser Forderung hatte der Reichsfürstenstand eine Absage an traditionelle Erbfolgeregelungen erteilt und eine freie Wahl des staufischen Kandidaten Friedrich II. von Hohenstaufen schon im Vorfeld verhindert. Im Ladungsschreiben heißt es, daß bei der Erhebung des neuen Königs die Kirche und das Reich „des schweren Jochs der Knechtschaft ledig sein sollen“ Zur Wahlladung vgl. Schmale 1968, S. 128; Nonn 1993, S.149 und zuletzt Vones 1995, S. 89.
- ____
- 61
- Doch berechtigen überraschende Details einen Exkurs zu den salischen Zügen in Lothars Herrschaft.
- Mit insgesamt 13 nachgewiesenen Aufenthalten in zwölf Regierungsjahren besucht Lothar III. Speyer weitaus häufiger als alle seine Vorgänger 151. Schon bald nach dem besagten ersten Osterfest in Magdeburg, im April 1126, begab sich Lothar im Juni zum ersten Mal nach Speyer und hielt dort den dritten Hoftag seiner Amtszeit ab 152, dem zwei weitere im September 1127 und im Dezember 1135 folgten. 1128 und 1129/30 belagerten Lothars Truppen die salische Hochburg Speyer zweimal für mehrere Monate, brachen im Dezember 1129 endlich den Widerstand der Bürger und unterwarfen die Stadt. Politisch gesehen war Speyer das entscheidende Terrain, auf welchem Lothar und die Stauferbrüder Friedrich und Konrad ihren Erbfolgestreit ausfochten. Für beide Parteien war der Besitz der Stadt nicht nur strategisch von Bedeutung, sondern symbolisierte vor allem durch die Grablegen der salischen Kaiser - zumindest aus staufischer Sicht - die Wahrung der dynastischen Kontinuität 153. Es wundert nicht, daß Lothar diese Insignie kaiserlicher Macht ebenso hart umkämpfte, wie es die Stauferbrüder taten, und den politischen Triumph über die Staufer mit einer Festkrönung an Epiphanias 1130 feierte. Für den gleichen Tag berichten die Disibodenberger Annalen von der Weihe eines Stephanus-Altars im südlichen Querhaus in Anwesenheit Lothars 154. Vor dem Hintergrund des Sieges in Speyer, der Lothar in den
- ____
- 151 Dieses Ergebnis veröffentlicht C. Ehlers, Metropolis Germaniae. Studien zur Bedeutung Speyers für das Königtum (751-1250), Göttingen 1996. Anhand sämtlicher Schriftquellen erfaßt der Autor die kaiserlichen Aufenthalte in Speyer. Die statistische Auswertung ist in drei Kategorien klassifiziert: Aufenthalte mit nachgewiesener Regierungstätigkeit (Kat. I), ohne vollzogenen Rechtsakt (Kat. II) und gemäß dem Itinerar wahrscheinliche Aufenthalte (Kat. III). Ehlers vergleicht die Aufenthaltsquotienten aller Herrscher zwischen 751 und 1250. Lothars Aufenthaltsfrequenz (1.08%) liegt weit über dem Durchschnitt seiner Vorgänger, erst Heinrich VI. übersteigt sie (2.43% mit 17 Aufenthalten). Ebd. S. 64, 70 (Diagramm 5).
- 152 Der erste Hoftag Lothars III. fand im November 1125 in Regensburg, der zweite im Dezember 1125 in Straßburg statt. Vgl. Petke 1985, S. 433-434.
- 153 So verweist Laudage in Luckhardt/Niehoff 1995 (wie Anm. 22), S. 100-101 auf die zentrale Bedeutung Speyers für Lothar und seine Kontrahenten Friedrich und Konrad: „Nur wer das Memorialzentrum des untergegangenen Kaisergeschlechts für sich gewann und dauerhaft behauptete, konnte sich als dessen legitimer Erbe und rechtmäßiger König bezeichnen.“.
- 154 Ob eine Altarweihe anläßlich der Festkrönung 1130 tatsächlich in Anwesenheit Lothars III. stattfand, ist bis heute umstritten. Die Annales s. Disibodi., ad a. 1130, S. 24, 21 und 29-32 berichten über Lothars Einnahme von Speyer: „Spira deditione subacta“. Weiter unten dann zur Altarweihe: „Dedicatum est altare sancti Stephani, quod in australi parte novi monasterii situm est, a domino Adelberto Moguntino archiepiscopo in honorem domini nostri Ihesu Christi, et beatae Mariae virginis, et omnium praecipue martyrum, et nominatim sancti Stephani prothomartyris, Laurentii, Vincentii, Albani“. Ehlers 1996, S. 285-288 weist darauf hin, daß zwischen der Eroberung Speyers und der Altarweihe mehrere Angaben zu anderen Orten stehen, also kein direkter Zusammenhang festgestellt werden kann.
- ____
- 62
- Besitz des geistigen Zentrums der salischen Kaiseridee gebracht hatte, gewann seine Gegenwart an staatspolitischer Bedeutung. Erst mit der Festkrönung und der Teilnahme an der Altarweihe hatte er weithin sichtbare Zeichen seines Sieges gesetzt, die Zäsur in der salischen Herrschaftsfolge demonstriert und gleichzeitig das staufische Dynastiedenken endgültig gebrochen. Lothar hatte erst an diesem Tag das letzte Hindernis auf dem Weg zur legitimen deutsch-römischen Kaiserwürde überwunden.
- Daß sein Interesse für Speyer ausschließlich ideeller Natur war, bezeugt auch die geringe Wertschätzung, die er der Stadt entgegenbrachte. Er ließ weder Urkunden und Diplome für die Stadt mundieren, tat trotz seiner vielen Besuche und Belagerungen nichts für die Besitzmehrung der Domkirche und unternahm nichts für die Totenseelsorge der Salier 155. Die Speyerer ließen dies nicht ungestraft und erwähnten auch den Sachsen Lothar nie im Nekrolog des Domkapitels! Dennoch sah Lothar keinen Widerspruch darin, sich trotz der Rivalität zur salisch-staufischen Dynastie deren herrschaftslegitimierender Symbole zu bedienen. Im Gegenteil! Mit der im Grab Kaiserin Richenzas 1978 entdeckten Grabkrone, der ein analoges Gegenstück im Grab Lothars III. entsprochen haben wird 156, bekundet das Kaiserpaar nicht nur seine transzendentale Herrschaftsauffassung, sondern aktiviert einen speziell salischen Bestattungsbrauch. Die Grabkrone Richenzas ähnelt in auffallender Weise den Grabkronen des Kaiserpaares Konrad II. und seiner Gemahlin Gisela, für die erstmals salische Grabkronen nachgewiesen sind 157. Wie Lothar Bornscheuer schlüssig resümiert, „weichen Grabkronen bewußt von der Gattung wirklich getragener Kronen ab und fungieren seit ihrem Aufkommen in salischer Zeit ganz offensichtlich zunächst nicht als irdische Repräsentationsstücke und können daher nur als Abbilder jener corona sancta
- ____
- 155 Ehlers 1996, S. 241.
- 156 Glücklicherweise wurde bei der gewaltsamen Graböffmmg von 1620 der Sarg Richenzas übersehen. Diesem Umstand verdankt man heute eine originale Befundermittlung der im Grab Richenzas erhaltenen Gegenstände. Vgl. Rötting 1985, S. 65.
- 157 Ebenso wie für ihre Nachfolger Heinrich III. und Heinrich IV.‚ abgebildet bei Schramm/Mütherich 1962, Nr. 149, 150, 158, 166. Zu den Kronen s. a. Kubach/Haas 1972, S. 932-933, 940, 942, 949.
- ____
- 63
- verstanden werden, die die Stellvertreter Christi im Leben trugen und im Himmel weiter zu tragen erhofften. Als Sinnbilder des Christus-Königtums erscheinen die salischen Grabkronen als eine Konsequenz der transzendentalen Vikaritastheologie. (...) In den Grabkronen der Salier wird man daher ausschließlich Chiffren des transzendentalen Herrschaftsgedankens erkennen können” 158. In diesem Sinne standen die in Lothars Grab versammelten Reichsinsignien (Szepter, Reichsapfel, Krone) neben der Vorstellung vom rex et sacerdos des ottonischen Königtums auch für die Rechtfertigung einer direkten Nachfolge der salischen Kaiserdynastie. Auch der seltene Befund der geistlichen Insignien von Patene und Kelch im Kontext eines Kaisergrabes findet in der salischen Begräbnistradition eine Entsprechung: Am Ringfinger seiner rechten Hand trug Heinrich IV. einen Ring, als dessen ursprünglicher Besitzer Bischof Adelbero III. von Metz anzusehen ist 159. Die Insignie eines bischöflichen Amtsträgers im Grab Heinrichs IV. zielte in gleichem Maße auf die einst priesterliche Funktion des Kaisers im Staat ab, wie Patene und Kelch im Grab Lothars III., denn immerhin war es Heinrich IV.‚ der das Recht auf die Einsetzung der Bischöfe im Investiturstreit verloren hatte.
- Der Erfolg von Lothars Königsherrschaft war letztlich eng mit der Idee der ottonischen Herrschaftstradition verknüpft, und es galt mit allen Mitteln, den dynastischen Kaiserkult der Salier zu überwinden. Aus diesem Grunde war Speyer zwar ein wichtiger Faktor für das Konzept des lotharischen Königtums, jedoch mehr, um die sächsische Autorität gegenüber den Stauferbrüdern zu behaupten, die ebenfalls die Kaiserkrone beanspruchten, sie gleichsam durch die militärische Präsenz zu demütigen, als sich konkret auf die salische Herrschertradition zu berufen.
- II.3. Ergebnisse
- Beim knappen Blick auf die herrschaftsideologischen, politischen und persönlichen Herausforderungen, denen Lothar nach seinem Wahlsieg 1125 gegenüberstand, wurde eines deutlich: Lothars Verwurzelung mit den Adelsoppositionellen in Sachsen verband ihn auch als König eng mit den sächsischen Reichsfürsten, und das reformpolitische Klima im Lande forderte ihn einmal mehr zu einer Definition der eigenen Herrschaftsauffassung heraus. Wie Lothar dies auf realpolitischem Terrain und im Umgang mit den Reichsfürsten umsetzte, hat jüngst Jutta Schlick in einer historischen Arbeit über den „Wirkverbund“ König, Fürsten und Reich
- ____
- 158 Bornscheuer 1968, S. 222.
- 159 Inventar Pfalz (Speyer) 1934, S. 376.
- ____
- 64
- umfassend dargestellt 160. Aufgrund dieser persönlichen und politischen Verzweigungen mit dem sächsischen Adel führte Lothar einerseits eine vor allem die territorialen Interessen des Reichsfürstenstandes wahrende Politik. Andererseits aber suchte er den Ausgleich zwischen Reich und Kirche durch eine diplomatische Politik der gregorianischen Partei gegenüber und gezielt eingesetzte, symbolisch belegte Handlungen seiner Herrschaftspraxis. Die antisalische Tradition, aus der er gemeinsam mit den führenden Adelsgeschlechtern des Reiches stammte, bestimmte geradezu den Beginn und den Verlauf seiner politischen Karriere. Denn der Kampf gegen das salische Herrschergeschlecht führte Lothar als Mitglied der sächsischen Adelsopposition geradewegs auf die Seite der gregorianischen Reformer, die in Sachsen den politischen und ideologischen Gegenpol zu den salischen Kaisern und ihrer hegemonialen Territorialpolitik bildeten. Wie das Beispiel des Lütticher Marschall- und Stratordienstes gezeigt hatte, versuchte Lothar, in geschickter Weise den Forderungen des Reformpapsttums zu entsprechen, ohne dabei die dem Kaiser nach dem Investiturstreit noch verbliebene Autorität gänzlich preiszugeben.
- Durch die Anknüpfung an die Praxis des ottonischen Sakralkönigtums versuchte Lothar, weithin unbeirrt von den Prämissen des revolutionären Reformpapsttums, ein bewußt traditionell orientiertes Herrscherbild von sich zu entwerfen. Dabei war sein ideologisches Wertesystem insbesondere vom sächsischen Stammesbewußtsein geprägt, wo für Lothar die Vorbilder im Herzogen- wie im Herrscheramt lagen. Lothar konnte sich zur Legitimierung seiner monarchischen Würde der dualistisch verstandenen Einheit (rex et sacerdos) vom christlichen (Individual-)Herrscher der Ottonen bedienen und auf diese Weise die Anerkennung und Stabilisierung der eigenen Kaiseridee finden. Dies demonstrierte er schon bald nach seiner Wahl, als er 1126 das erste Osterfest seiner Herrschaft in Magdeburg am Grabe der Ottonenherrscher feierte: In der mit diesem Anlaß verbundenen besonderen sakralen Memoria für das ottonische Herrscherhaus stellte er sich selbst in die Kontinuität der Ottonen. Nur einmal, bei der Auswahl der Beigaben für die kaiserliche Grabstätte, griff Lothar (oder nach seinem Tod Richenza?) auf die Tradition salischer Grabkronen zurück und instrumentalisierte Symbole einer transpersonal und institutional verstandenen Kaiserwürde von Gottes Gnaden. Diese Symbole/Grabkronen zielten im Falle Lothars auch auf die Etablierung einer zukunftsträchtigen, in seiner Nachfolge stehenden Kaiserdynastie ab, die es jedoch nie geben sollte.
- ____
- 160 J. Schlick, König, Fürsten und Reich (1056-1159). Herrschaftsverständnis im Wandel, Stuttgart 2001; zur Regierungsperiode Lothars ebd. S. 95-115.
- ____
- 65
- In der bereits erwähnten Studie hat Jutta Schlick unerwartet einige Überlegungen zur Herrschaftsauffassung Lothars angestellt, die ebenfalls Aspekte lotharischer Legitimationsansätze über das sakrale Verständnis der Ottonen berühren. Darüberhinaus stellt Schlick den dynastischen Gedanken des Wunsches und der Planung eines lotharisch-welfischen Königtums als ein wichtiges Moment des königlichen Selbstverständnisses heraus, der sich insbesondere in Lothars Verhältnis zu den sächsischen Klöstern zeige 161. Daß sich die dazu formulierten, auf Vogteirechte, Privilegien und Schenkungen bezogenen Thesen auch in der Architektur einiger von Schlick angeführter Klöster wie in St. Ägidien/Braunschweig und Königslutter widerspiegeln, wird sich im Verlauf dieser Arbeit bestätigen. Vorweggreifend sei an dieser Stelle bereits auf einen Aspekt des lotharischen Selbstverständnisses hingewiesen, der sich weniger aus schriftlichen Quellen und politisch relevanten Begegnungen erschloß, sondern eher in der Kaiserbaukunst zum Tragen kam. Der rückwärtsgerichtete Blick auf die ottonische Tradition, die starke Verwurzelung in Sachsen und die beide Aspekte gewissermaßen zusammenführende Tatsache, daß Lothar - neben Goslar und Magdeburg - ein drittes Kaiserzentrum in Sachsen errichten wollte, wird durch den romgerichteten renovatio-Gedanken, der sich insbesondere in der Anknüpfung an antike und italienische Kunstformen zeigt, ergänzt werden.
- Die theoretische Rekonstruktion der lotharischen Kaiseridee, die Aufschluß über das herrscherliche Selbstverständnis eines sächsischen Kaisers geben sollte, bildet m. E. ein wichtiges Fundament für das Verständnis der lotharischen Kaiserbaukunst und ihrer Rezeption in Sachsen. Ohne das Wissen um Lothars persönliche Voraussetzungen und die politischen Probleme zu Beginn seiner Herrschaft wäre die Betrachtung der kaiserlichen Stiftungen eine erneut auf stilgeschichtliche Phänomene konzentrierte Betrachtung sächsischer Architektur des 12. Jahrhunderts. Eine solche aber ist mit dieser Arbeit nicht intendiert. Vielmehr sollen vor dem Hintergrund des durch Einblicke in die mittelalterliche Historiographie und Geistesgeschichte gezeichneten Profils der Herrscherpersönlichkeit Lothars die Folgen seiner Baukunst und zuvor diese selbst im Blickpunkt stehen. Denn anders, als in den realen Folgen von Lothars Königsherrschaft, die mit dem Gegenkönigtum Konrads III. nicht den gewünschten Verlauf welfischer Nachfolge genommen hatten, endeten Lothars Spuren in der Kunstgeschichte nicht mit dem Jahr 1138, als die Reichsherrschaft an die Staufer überging. Zumindest bis um 1200, als auch die sächsische Architektur von der frühen Gotik beeinflußt wurde, sind
- ____
- 161 Schlick 2001, S. 115-129.
- ____
- 66
- Anklänge an die Baukunst Lothars III., insbesondere an die Ornamentsprache seiner Grablege in Königslutter, zu beobachten.
- ____
- 67
- III. Architektur im Umfeld Kaiser Lothars III.
- III.1. Die sächsische (Reform-)Architektur im frühen 12. Jahrhundert
- In der ersten Hälfte des 12. Jahrhunderts wurde die Architekturlandschaft Sachsens von zwei Gründungswellen bestimmt. Die erste umfaßte zahlreiche sächsische Klostergründungen, die noch unter salischer Herrschaft in den Jahren zwischen 1100 und 1120 entstanden waren. Eine zweite folgte unmittelbar auf die Gründung der sächsischen Kaisergrablege Lothars III. in Königslutter 1135 und umfaßte hauptsächlich die Stiftungen der lotharischen Parteigänger in Sachsen bis ins letzte Drittel des 12. Jahrhunderts.
- Unter den Saliern waren vorwiegend die Anhänger der sächsischen Adelsopposition und reformwillige Bischöfe für die zahlreichen Neugründungen oder Umgestaltungen bereits bestehender Konvente verantwortlich. Dies geschah zum einen, um die gesellschaftlichen Umwälzungen der Zeit nach dem Investiturstreit, die vor allem die Kloster- und Stiftsreformen betrafen, in Sachsen fest zu etablieren. Zum anderen wollte man sich der lokal ausbreitenden salischen Königsmacht durch Neugründungen entgegenstellen. Zu diesen Stiftungen gehörten beispielsweise die Neubauten des antikaiserlich(-salisch) gesinnten Bischofsklosters Ilsenburg (ab etwa 1080), des Halberstädter Bischofsklosters Huysburg (1121), die unter Bischof Reinhard von Halberstadt reformierten Augustinerchorherrenstifte in Stötterlingenburg (1108), Hamersleben (nach 1111), Kaltenborn (vor 1119) und Schöningen (1120), der Neubau des von Hirsau aus reformierten Benediktinerklosters Bosau (1119) und der Umbau der Hirsauer Filiation St. Peter in Erfurt (1103). Hinzu kamen die dynastischen Gründungen des sächsischen Hochadels, der auch schon zu Beginn des 12. Jahrhunderts entscheidend an der Verbreitung der kirchlichen Reformbewegung in Sachsen beteiligt war.
- Erwachsend aus dem gestärkten Selbstbewußtsein nach dem Investiturstreit, konnte die antisalische Fürstenpartei ihren Reformeifer mit dem Ausbau der eigenen territorialen Stärke verbinden. So gründete beispielsweise Ludwig der Springer in Thüringen das mit Hirsauer Mönchen besetzte Reformkloster Reinhardsbrunn (1085), Wiprecht von Groitzsch und die Adelsdame Paulina taten es ihm im östlichen Sachsen in Pegau (ab 1090) und Paulinzella (ab 1106) gleich. Weitere führende Köpfe der Fürstenopposition stifteten Hausklöster und schufen damit Reformniederlassungen unterschiedlichster Ausprägung: Die Grafen von Northeim in
- ____
- 68
- Bursfelde (1093), die Grafen von Stade in Harsefeld (1107/10), die Grafen von Ammensleben(-Hillersleben) in Ammensleben (1120), Lothars Großmutter Gertrud von Braunschweig mit St. Ägidien in Braunschweig (1115) und nicht zuletzt Lothar selbst in Süpplingenburg (vor 1125).
- Bedingt durch ihre konsequent antikaiserliche und damit antisalische politische Haltung orientierten sich diese Stifter an der durch Hirsau oder Siegburg verbreiteten Architektur der Reformorden, während die am Rhein dominierenden salischen Herrschaftsarchitekturen von Speyer, Limburg und Mainz im Sachsen des frühen 12. Jahrhunderts nicht rezipiert wurden. Bei diesen Bauten handelte es sich meist um Kirchenräume mit mehrschiffigen flachgedeckten Langhäusern, mit der Ausbildung eines chorus minor, einer Vielzahl von Altarstellen in mehrteiligen, mit teilweise zum Hauptchor hin geöffneten Nebenchören, ohne Krypten, aber mit mehrschiffigen Vorhallen im Westen. Mit diesen an reformmonastische Vorbilder wie Cluny und Hirsau anknüpfenden Raumgestaltungen ging auch eine einfache und im Detail sparsame Formensprache einher. Nur vereinzelt schmückten schachbrettartige Rechteckrahmungen die Arkadenwände (Hamersleben, Paulinzella) oder vereinfachte Varianten korinthisierender Kapitelle (Huysburg) die Langhausstützen der Kirchenräume.
- Scheinbar direkt im Zusammenhang mit dem Generationswechsel in der sächsischen Fürstenopposition stehend, konzentrierten sich die Kirchenstiftungen der nachsalischen Epoche um die in den Regierungsjahren Kaiser Lothars III. stark gewordenen sächsischen Adelshäuser. Fürsten wie Albrecht von Ballenstedt (Ballenstedt), Friedrich von Sommerschenburg (Mariental), die Grafen von Plötzkau (Hecklingen), von Beichlingen (Oldisleben, Volkenroda), von Katlenburg (Katlenburg), Widukind von Schwalenberg (Marienmünster), Siegfried von Boyneburg (Amelungsborn) oder die Markgrafen von Wettin (Petersberg/Halle) stifteten während oder kurz nach der Regierungszeit Lothars III. Bauten, die als territorialer Bezugspunkt und oft auch dynastisches Memorialzentrum ihres Herrschaftsbereiches errichtet wurden. Dabei orientierten sie sich hinsichtlich der baulichen Vorbilder einmal an sächsisch-regionalen Bautraditionen, insbesondere aber an der in diesen Jahren wohl prominentesten Baustelle Sachsens, an der Kaisergrablege in Königslutter. Hinsichtlich der verschiedenen Ordensobservanzen dominierten benediktinische Neugründungen oder in Benediktinerklöster umgewandelte Augustinerkonvente, seltener wurden eigens Kanonikerstifte gegründet oder Konvente anderer Orden, beispielsweise der Prämonstratenser, eingerichtet. Mit der Konzentration
- ____
- 69
- auf das benediktinische Mönchtum demonstrierte der sächsische Hochadel seine geschlossene Zugehörigkeit zu den gregorianischen Reformkräften 162.
- Auffallend und damit einen deutlichen Unterschied zur früheren sächsischen Kirchenarchitektur (z.B. Gernrode, Halberstadt, Hildesheim) darstellend, ist die intensivierte Rezeption italienischer Bau- und Ornamentformen. Möglicherweise ausgehend von Quedlinburg, wo italienische Bauleute für den 1129 geweihten Neubau herangezogen wurden, sicher aber in Verbindng mit der Italienrezeption in Königslutter, standen diese Bauvorhaben der Zeit nach 1135 bis um 1200 in Sachsen ganz im Zeichen einer richtungweisenden Italienrezeption. Von Kaiser Lothar III. in Königslutter in besonderer Weise zum Programm einer neuen rom- und reformorientierten Politik erhoben und auch als Anlehnung an den ottonischen Renovatio-Gedanken verstanden, etablierten sich aus Italien stammende Bau- und Ornamentformen ab 1135 (Grundsteinlegung von Königslutter) in der Sakralbaukunst Sachsens. Gleichwohl war Oberitalien nur eine künstlerische Quelle, die neben vielfältigen Einflüssen der Kunst des Rhein-Maas-Gebietes und Südwestfrankreichs gestalterische Maßstäbe in Sachsen setzte. Diese Strömungen auf die sächsische Architekturepoche nach 1135 im Einzelnen aufzuzeigen, kann dabei ebensowenig geleistet werden wie eine stilistische Analyse der sich in Sachsen an Beispielen oberitalienischer Bauplastik orientierenden Bauornamentik 163. Daß die Rezeption italienischer, vorwiegend römisch-antiker Gestaltformen, in der sächsischen Bauplastik der Zeit nach 1135 jedoch ohne die Kaiserbauten Lothars III. nicht zu denken ist und welche Rolle darüberhinaus die Architektur der kaiserlichen Parteigänger für die nachhaltige Wirkung der lotharischen Kaiserbaukunst einnahm, soll im Folgenden dargestellt werden.
- ____
- 162 Nach S. Weinfurter, Neuere Forschung zu den Regularkanonikern im Deutschen Reich des 11. und 12. Jahrhunderts, in: Historische Zeitschrift 224, 1977, S. 379-397 traten im frühen 12. Jahrhundert als Gründer regulierter Chorherrenstifte vor allem Ministerialen hervor, während im Bereich der adligen Familien, insbesondere der höheren Ränge, eine Verbundenheit mit dem reformierten benediktinischen Mönchtum zu beobachten war.
- 163 Zur Italienrezeption im 12. Jahrhundert als kunsthistorischem Forschungskomplex vgl. zuletzt Mertens 1995, S. 221-254, der das Problem deutsch-italienischer Abhängigkeiten in den Bereichen Bauplastik und Architektur unter lückenloser Aufzählung auch der italienischen Fachliteratur nachzeichnet.
- ____
- 70
- III.2. Lothar als Stifter und Bauherr
- Die von Lothar III. in Auftrag gegebenen Bauwerke in Süpplingenburg, Bad Segeberg, Königslutter und Chemnitz werden einzeln und in der Abfolge ihrer Entstehung vorgestellt. Mit Ausnahme von Königslutter ist kein Bauwerk bisher monographisch erfaßt, so daß die Bauten erst nach einem einleitenden Überblick zur Forschungs- und Baugeschichte, in größeren historischen und architekturgeschichtlichen Zusammenhängen betrachtet werden können. Umfang und Ausführlichkeit der Einzelkapitel orientieren sich jeweils an den für die Baukunst Lothars III. relevanten Bauphasen der Zeit um 1125 bis um 1137, so daß frühere und spätere Bauphasen unberücksichtigt bleiben. Allerdings können erst unter Einbeziehung der nachfolgenden Kapitel der Umbauten im kaiserlichen Kontext und der von Lothar privilegierten Bauten Aussagen zur Stiftungs- und Bautätigkeit des Kaisers getroffen und allgemeine Überlegungen zur Baupolitik Lothars III. angestellt werden. Ziel dieses Abschnittes ist es, die als Stiftungen Lothars geltenden Bauwerke erstmals in einer zusammenfassenden Werkschau darzustellen und vor dem Hintergrund des politisch-historischen Profils Lothars III. neu zu bewerten.
- III.2.1. Kaiserliche Stiftungen
- III.2.1.1. Süpplingenburg, St. Johannes
- Eine kunsthistorische Würdigung der ehemaligen Stiftskirche St. Johannes in Süpplingenburg gehört zunächst nur mit Vorbehalt in ein mit Kaiserliche Stiftungen überschriebenes Kapitel. Nicht nur das Fehlen einer Gründungsurkunde und das Schweigen der Quellen zu einer Bau- und Stiftertätigkeit Lothars III. auf dem Gelände der namengebenden Stammburg seines Grafengeschlechts verbieten konkrete Zuweisungen. Auch die seit dem Mittelalter in zahlreichen Bauphasen stark beeinträchtigte Gestalt der ehemaligen Stiftskirche läßt zweifelsfreie Angaben zur Bauchronologie und zur zeitlichen Einordnung nicht zu. Nach vielen Restaurierungen, An- und Umbauten sind nur noch Fragmente - strenggenommen Teile der Grundrißdisposition, die nördliche Querhausapsis, das nördliche Seitenschiff und Reste der Krypta - einer frühen Bauphase zuzurechnen, die Rückschlüsse auf die Zeit der Gründung erlauben. Besonders bedauerlich
- ____
- 71
- in diesem Fall, könnte es sich doch möglicherweise um eine kaiserliche Stiftung handeln.
- Die mittelalterlichen Quellen zu Süpplingenburg beschränken sich auf zwei um das Jahr 1150 datierte Urkunden, die das Bestehen eines Kollegiatstiftes in Süpplingenburg im frühen 12. Jahrhundert sichern 164. Sie berichten von Verhandlungen zwischen dem Magdeburger Domkapitel und den Süpplingenburger Pröpsten Heinrich und Ludolf, letzterer 1134 im Gefolge Kaiser Lothars nachweisbar 165, deren aufeinanderfolgende Amtszeiten in die Jahre 1135/36 bis 1150 fallen. Es handelt sich bei diesen Quellen nicht um spätere kaiserliche Privilegien, die oft die Urkunden des Stifters rezitieren und erneuern, sondern lediglich um einen Vertrag und ein Diplom zwischen zwei Pröpsten. Einen Hinweis darauf, wie lange das Stift zu diesem Zeitpunkt bereits unterhalten wurde und ob Lothar von Süpplingenburg die Gründung selbst veranlaßte, gibt es jedoch nicht 166. Dichter wird die Quellenlage, vor allem für die Historiker, erst nach 1245, als das Kloster in den Besitz des Templerordens gelangte und damit eine der frühesten Niederlassungen des Ordens in Niedersachsen wurde 167. Aus
- ____
- 164 Hierbei handelt es sich um ein Diplom des Halberstädter Bischofs Ulrich, ins Jahr 1150 datiert, das einen Henricus praepositus de Supplinburg nennt. Eine Abschrift der Urkunde ist bei Hans Prutz, Heinrich der Löwe. Herzog von Baiern und Sachsen, Leipzig 1865 (Urkundenanhang S. 471-472 Nr. 2) veröffentlicht. Vgl. hierzu Naß 1990, S. 134. Eine zweite, aber undatierte Urkunde (I nr. 1246, anno 1150), publiziert in: Regesta archiep. Magdeburgensis, hrsg. von G. A. von Mülverstedt, Band 1, Magdeburg 1876, bestätigt einen Freilassungsvertrag des Süpplingenburger Propstes Ludolf, den dieser in den Jahren 1135/36 mit dem Magdeburger Dompropst Gerhard geschlossen hatte. Vgl. Petke 1985, S. 85-86. Beide Urkunden stellen einen terminus post quem in Bezug auf das Gründungsjahr der Stiftskirche dar. Sie geben keinen Aufschluß darüber, ob die Pröpste Heinrich und Ludolf von Süpplingenburg schon Vorgänger im Amte besaßen.
- 165 Petke 1985, S. 85.
- 166 Zeitgenössische Chronisten wie der Annalista Saxo, ad a. 1106, S. 745, 22-24: „Ducatum Saxonie post Magnum ducem suscepit Lotharius sive Liuderus comes de Suplingeburch“ sprechen anläßlich der Herzogserhebung 1106 von Lothar von Süpplingenburg. Eine über die geschlechterbezogene Herkunftsbezeichnung hinausgehende Zuweisung Lothars als fundator des Klosters in Süpplingenburg ist hingegen erst eine Erfindung der jüngeren historischen Forschung. Vgl. Vogt 1959, S. 53; Kuhr 1976, S. 116; Knauf 1976, S. 330. Auch in kunsthistorischen Überblickswerken zur sächsischen Romanik wird Lothar III. vereinzelt als Gründer bezeichnet. Vgl. Gaul 1932, S. 53 und K. Eichwalder in: Dehio Bremen/Niedersachsen (Neubearbeitung) 1992, S. 1264.
- 167 Zur Niederlassung des Templerordens im Reich und seiner ersten Gründung in Süpplingenburg vgl. zuletzt Heutger 1997, S. 32. Hingegen vermuten Meier 1896, S. 274 und Hecht 1976/78, S. 21, Heinrich der Löwe habe die Templer nach seiner Jerusalemreise 1172 auf dem Stammsitz seines Großvaters in Süpplingenburg angesiedelt. Dieser Vorschlag überzeugt hinsichtlich Heinrichs gesteigertem Interesse für den geistlichen Ritterorden der Templer nach 1172, ist urkundlich aber nicht gesichert.
- ____
- 72
- dieser Zeit stammt auch der Umbau, der den Kirchenbau heute im wesentlichen bestimmt 168.
- Zur Rekonstruktion der Baugeschichte ist man mangels hinreichender Quellen und Baunachrichten auch jüngerer Zeit auf das Urteil des Auges angewiesen und muß die wenigen am Bau ablesbaren Indizien wie die Kapitell- und Stützenformen der Krypta, die Struktur des umlaufenden Sockels sowie die ursprüngliche Außengliederung der noch mittelalterlichen Teile des Sanktuariums interpretieren. Eine sich daraus ergebende ungefähre Bauchronologie der frühen Bauphasen wäre wünschenswert, steht hier aber nicht im Vordergrund. Die primäre Frage im Kontext dieserArbeit ist vielmehr, ob aufgrund stilistischer Ähnlichkeiten zu Königslutter für den Bau in Süpplingenburg der gleiche kaiserliche Auftraggeber vermutet werden darf. Daran anschließend bleiben Fragen nach der zeitlichen Abfolge beider Bauten, d. h. auch ihrer Priorität und Funktion innerhalb der lotharischen Stiftungen und der damit verbundenen kaiserlichen Herrschaftsauffassung zu erörtern.
- Zur Forschung
- Die frühe Geschichtsschreibung zu Süpplingenburg beginnt im 17. Jahrhundert mit den historischen Betrachtungen und kurzen Beschreibungen der gesamten Burg- und Stiftanlage bei Heinrich Meibom (1616) und Matthäus Merian (1653) 169. Auf dieser Grundlage entstanden ab der Mitte des 19. Jahrhunderts historische Studien wie beispielsweise die Arbeiten von Otto von Heinemann (1858) und Hilmar von Strombeck (1860) 170‚ die in erster Linie der Frühzeit der Burg und der Spätzeit des
- ____
- 168 Es sei erlaubt, diesen Teil der Geschichte der Süpplingenburger Johanniterkomturei und deren Geschichte bis ins 19. Jahrhundert mit einem Verweis auf die zusammenfassenden Darstellungen bei Meier 1896, S. 274-275 und Kretzschmar 1994, S. 40-41; ders. 1997, S. 51-53 auszusparen.
- 169 Henr. Meibomii (1616), Bericht von der Comturei zu Süpplingenburg, in: Joh. Letzneris Beschreibung des Stifts Königslutter, hrsg. von Joh. Fabricius, Wolfenbüttel 1715; M. Merian, Topographia und Eigentliche Beschreibung der Vornembsten Stäte, Schlösser und anderer Plätze und Orte in denen Herzogthümer Braunschweig und Lüneburg, Frankfurt 1653 (ND Kassel/Basel 1961).
- 170 O. v. Heinemann, Das Königtum Hannover und das Herzogthum Braunschweig in malerischen Original Ansichten, Darmstadt 1858 (ND Hildesheim 1976). Der Hinweis auf die bisher unveröffentlichten Schriften Hilmar von Strombecks (StAWf: VI Hs 14, 68, Bd. 3, fol. 115-139 und VII B Hs 387) ist den intensiven Recherchen Lars Kretzschmars im Wolfenbütteler Staatsarchiv zu danken. Vgl. Kretzschmar 1997, S. 35.
- ____
- 73
- Stiftes gewidmet sind. Erst mit dem Beitrag von Paul Jonas Meier in den Bau- und Kunstdenkmälern des Kreises Helmstedt wurde auch die Baugeschichte der Stiftskirche behandelt und eine kunsthistorische Einordnung vorgenommen 171. Meier unterscheidet drei Bauphasen und datiert die für unseren Zusammenhang relevante früheste Bauphase, zu der er die Krypta, sämtliche Außenmauern des Querhauses und die Fundamente der Vierungspfeiler rechnet, ins erste Drittel des 12. Jahrhunderts 172.
- Zu Beginn des 20. Jahrhunderts scheint das Interesse an der Stiftskirche von Süpplingenburg zu schwinden. Mit Ausnahme vereinzelter Beobachtungen zur Baugeschichte und vager Datierungsvorschläge bei Heinz Meyer-Bruck (1952) und Dieter Lange (1971) 173, die aber nie speziell den Gründungsbau betreffen, eröffnete erst die Publikation von Konrad Hecht (1976/78) neue Forschungsperspektiven und gab den Auftakt zu einer Kontroverse um Rekonstruktion und Gestalt des Gründungsbaus 174. Seine im Zuge der Grabungen des Lehrstuhls für Baugeschichte der TU Braunschweig zwischen 1966 und 1974 durchgeführten Forschungen bezogen sich überwiegend auf die Abschlüsse im Osten und Westen der Stiftskirche. Diese brachten im östlichen Bereich folgende Ergebnisse: Apsis und Krypta zeigen keine Fundamentausbuchtungen, die einen apsidialen Chorschluß vermuten ließen, so daß schon in der ersten Bauphase eine Krypta und ein Altarhaus mit geradem Abschluß entstanden war (Abb. 35) 175.
- Nach Fundamentuntersuchungen im Westen konnte ein an das Langhaus anschließendes dreischiffiges Emporenjoch, gefolgt von einem westwerkartigen Querriegel, rekonstruiert werden. Diese Raumfolge von Langhaus und Westbau sei - so Hecht - am ehesten mit dem Westbau des Essener Münsters (Damenstiftskirche) zu vergleichen, die damit dem karolingischen Westwerkgedanken wie auch den Emporenanlagen der
- ____
- 171 Meier 1896, S. 273-287.
- 172 Ebd.‚ S. 274 und S. 282-286.
- 173 H. Meyer-Bruch Die Stellung des Braunschweiger Domes in der sächsischen Baukunst des 12. Jahrhunderts, Phil. Diss. (masch.) Göttingen 1952, S. 92 datiert Süpplingenburg in die Jahre 1138-46, während D. Lange, Kirche und Kloster am Frankenberg. Eine baugeschichtliche Untersuchung, Goslar 1971, S. 114 die Süpplingenburger Ostteile, respektive die Krypta als ältesten Bauteil, aufgrund der stilistischen Nähe zur Quedlinburger Bauornamentik (vor 1129) in die zweite Dekade des 12. Jahrhunderts datiert.
- 174 K. Hecht, Ein Beitrag zur Baugeschichte der Stiftskirche in Süpplingenburg, in: Niedersächsische Denkmalpflege 9, 1976/78, S. 21-67.
- 175 Ebd. S. 28. Wie Herr Kretzschmar mitteilte, sind die originalen Grabungsunterlagen verschwunden, so daß eine neue Beurteilung der Grabungsergebnisse nicht vorgenommen werden kann. Allerdings deutete er an, daß wohl an der entscheidenden, für die Rekonstruktion des ursprünglichen Apsisverlaufs relevanten Anschlußstelle, die Grabung nicht fortgeführt wurde.
- ____
- 74
- sächsischen Nonnenklosterkirchen folge und Süpplingenburg somit „als einst kaiserlicher Bauwerk“ 176 auszeichne.
- Für die pultdachgedeckten Kryptenzugänge zwischen den Chorflanken und den Apsiden, die in ihrer heutigen Gestalt Ergebnis einer Restaurierung des späten 19. Jahrhunderts sind, wollte Hecht jeweils ein Obergeschoß rekonstruieren 177. Allerdings sind die Forschungen Hechts nicht unwidersprochen geblieben. Friedrich Berndt rekonstruiert - nach dem Vorbild sächsischer Vergleichsbauten der Zeit - einen Apsidialschluß für Chorraum und Krypta und sieht in den Kryptenzugängen Rudimente ursprünglicher Chorflankentürme nach dem Vorbild „cluniazensischer Baugewohnheiten“ 178. Seit dieser späten Auseinandersetzung mit den Hechtschen Grabungsergebnissen der frühen 80er Jahre wurde Süpplingenburg erst wieder in einer jüngst erschienenen Studie über Form und Funktion niedersächsischer Schunterburgen mit einem ausführlichen Kapitel bedacht. Ausgangspunkt der Arbeit von Lars Kretzschmar (1997) 179 ist der gesamte Burgkomplex, mit einem kunsthistorischen Seitenblick auf die Baugeschichte der Stiftskirche und ergänzt durch einen ausführlichen Anhang sämtlicher Fundmaterialien, Archivalien, Karten, gedruckter Quellen und Literatur.
- Die historische und kunsthistorische Forschung vertritt seit dem 17. Jahrhundert die These, Kaiser Lothar III. habe die Stiftskirche St. Johannes in Süpplingenburg in den Jahren 1130 bis 1135 gegründet Niemand hat
- ____
- 176 Hecht 1976/78, S. 60.
- 177 Kretzschmar 1994, S. 45-46 konnte die Skizzierung der Kryptenzugänge erstmals auf einer Lithographie der Stiftskirche von 1884 nachweisen und datiert ihre Aufmauerung anhand eines Werksteinquadervergleichs ins späte 19. Jahrhundert. Die von Hecht 1976/78, S. 22 vorgeschlagene Rekonstruktion der Obergeschosse basiert auf der Beobachttmg zweier an Nord- und Südwand im Inneren des Chores unter dem Putz vermauerter Türöffnungen, die einst in ein Obergeschoß geführt haben sollen.
- 178 F. Berndt, Die Stiftskirche und spätere Ordenskirche der Tempelritter auf der Stammburg Kaiser Lothars von Süpplingenburg, in: BraunschwJb 63, 1982, S. 31-48, S. 32. Leider kann der Autor den Grabungsbefunden Hechts keine eigenen Grabungsergebnisse entgegenstellen und argumentiert ausschließlich auf kunsthistorisch vergleichender Ebene mit sächsischen und salischen Bauten, die apsidial geschlossen waren. Seine Rekonstruktionszeichnung, die ein nach dem Vorbild Quedlinburgs in drei Apsiden endenden Chorraum, ergänzt durch zwei Chorflankentürme vorschlägt, vereint zwar sämtliche sächsische Bautraditionen der ersten Hälfte des 12. Jahrhunderts, entbehrt aber jeder argumentativen Grundlage.
- 179 Kretzschmar 1997. Das Kapitel zu Süpplingenburg stützt sich in großen Teilen auf die Magisterarbeit des Autors: L. Kretzschmar, Baugeschichtliche Überlegungen zur Krypta der Stiftskirche zu Süpplingenburg (Typenvergleich), Braunschweig 1994.
- ____
- 75
- bisher den Versuch unternommen, die begründeten Zweifel durch eine vergleichende Analyse der sicher zu bestimmenden Teile des Ursprungsbaus aus dem Weg zu räumen. Da Lothars einzig belegte und gut dokumentierte Stiftung die Abteikirche St. Peter und Paul in Königslutter ist, gilt der folgende Abschnitt der Frage, ob architektonische Parallelen zwischen der kaiserlichen Grablege und der möglicherweise von Lothar gestifteten Kirche in Süpplingenburg herzustellen sind. Von entscheidender Bedeutung dabei sind neben der bauhistorischen Einordnung der Krypta und ihrer Kapitellformen auch Beobachtungen am Außenbau sowie die Frage, ob die Anlage der beiden Querhausapsiden mit eingestellten Ecksäulen ebenfalls zum Ursprungsbau gehören.
- Beschreibung der mittelalterlichen Teile
- Die folgende Beschreibung und Analyse von St. Johannes in Süpplingenburg beschränkt sich auf die mittelalterlichen Teile des Sanktuariums, die Krypta und den Außenbau. Da die Querhauswölbung und die Errichtung des Langhauses der Zeit nach 1200 zuzurechnen sind, sollen sie in diesem Zusammenhang unberücksichtigt bleiben 180.
- Vierung, Chor und Querhaus
- Die dreischiffige, kreuzförmige Pfeilerbasilika gebundenen Systems ist im Langhaus zu drei Doppeljochen gewölbt (Abb. 8, 23).
- Bereits im östlichen Langhausjoch wird der Auftakt zum raumgliedernden System aus Stützen und Gewölben der anschließenden Vierung, des Querhauses und des Altarraumes gegeben. Zwei Dienste, die in die zum Langhaus gerichteten Ecken der westlichen Vierungspfeiler eingestellt sind, kündigen Struktur und Gliederung von Pfeilern und Gewölben an. Den im Kern kreuzförmigen Vierungspfeilern sind in allen Ecken dreiviertelrunde Säulen eingestellt, die als Auffänger der Gewölberippen von Mittel- und Querschiff dienen. Eine Ausnahme bildet das längsrechteckige Chorjoch. Dort tragen vier Kämpferkonsolen die rippenlosen Gurte des weitgespannten Kreuzgewölbes (Abb. 24, 25).
- Die vergleichsweise schlichte Gestaltung des Chorjochs wiederholt sich noch einmal in den Seitenschiffen (Abb. 26) und zeigt deutlich eine frühere Bauphase als die Kreuzrippenwölbung von
- ____
- 180 Zur Baugeschichte nach 1200 vgl. die Ausführungen bei Meier 1896, S. 283; Berndt 1982, S. 36-51 und Kretzschmar 1997, S. 54-58.
- ____
- 76
- Chor, Lang- und Querhaus an 181. In die Ecken der Querhausstirnseiten sind jeweils dreiviertelrunde Säulen eingestellt, die, in Entsprechung zu den Ecksäulen der Vierungspfeiler, ebenfalls die Gewölberippen aufnehmen (Abb. 27, 28). Den Stirnflächen der Vierungspfeiler sind halbrunde Säulen vorgelagert, die sich als Wulstunterzüge unter den Gurtbogen fortsetzen (Abb. 25) 182.
- Zu seiten des Sanktuariums liegen die Kryptenzugänge, die im Außenbau als pultdachgedeckte Anbauten, von den Apsiden angeschnitten, hervortreten (Abb. 14, 15, 27).
- Die östlichen Querhausapsiden öffnen sich in zweifach, gestuften Gewänden, in die Dreiviertelsäulen mit kleinen Kapitellen und wulstigen Basen eingestellt sind, auf denen breite, plastisch vortretende Eckblätter mit zweifach gestuften Plättchen sitzen. Ähnlich der Struktur eines Säulenportals werden die Stufen oberhalb der eingestellten Säulen durch Kämpferstücke gegliedert, die aber nicht im Apsisrund fortlaufen und den Gewänden der Querhausapsiden einen portalhaften Charakter verleihen (Abb. 28-30).
- Wie die folgenden Beobachtungen zur Außenbaugestaltung zeigen werden, umläuft ein Sockel fast nahtlos die Bauteile der ersten Bauphase, zu welchen auch Teile des Sanktuariums und des Querhauses - zumindest im Bereich der unteren Steinlagen - gehören. Das bedeutet, daß wahrscheinlich auch der untere Bereich der Querhausapsiden samt der Konzeption der Gewändestufen mit eingestellten Ecksäulen der ersten Bauphase angehören.
- Krypta
- Die Süpplingenburger Krypta läßt in ihrer heutigen Erscheinungsform nur noch erahnen, daß sie sich einst als dreischiffige, kreuzgratgewölbte Vierstützenkrypta unter dem Altarhaus erstreckte 183. Über zwei seitliche
- ____
- 181 Folgt man der von Meier 1896, S. 283 vorgeschlagenen Bauchronologie, so zerstörte ein Brand um 1200 den kreuzgratgedeckten Bau II, verschonte dabei die Gewölbe des Chores und der Seitenschiffe und nur das Lang- und Querhaus wurden um 1250 erneut gewölbt.
- 182 Parallelen zu diesem Vorlagenapparat sind erstmals in einer Gruppe westfälischer, um 1220 geweihter Bauten wie Lippstadt (1221), Marienfeld (1222), Langenhorst, Damenstiftskirche (vor 1230) nachzuweisen und geben damit einen Ansatzpunkt für eine ungefähre Datierung der Süpplingenburger Kreuzrippenwölbung, die im sächsischen Raum dieser Zeit kein Vorbild hat. Für wulstartige Gurtunterzüge als Fortführung von Säulenvorlagen in der Architektur des 12. Jahrhunderts sei auf die ehemalige Prämonstratenserstiftskirche in Knechtsteden (1138-1165) hingewiesen. Dort gliedert dieses System allerdings die jochtrennenden Quergurte im Langhaus.
- 183 Der Frage, ob der Ostabschluß ursprünglich gerade oder apsidial gestaltet war, soll hier nicht nachgegangen werden. Kretzschmar 1994, S. 74, der sich auf die unzureichenden Grabungsdaten beruft, nimmt am ehesten eine den Krypten von Warburg, Nordhausen und Goslar-Riechenberg vergleichbare Raumbildung an, die in einer wenig eingezogenen Halbrundapsis schließt.
- ____
- 77
- Treppen vom Querhaus zugänglich, führt ein stollenartiger, tonnengewölbter Gang um einen beim Abbruch der Gewölbe in den Raum gesetzten Mauerblock (Abb. 8a, 31) 184.
- Vom ursprünglichen Baubestand haben sich je vier Halbsäulen an der nördlichen und südlichen Längswand erhalten, die sich beidseitig, beginnend mit einer im Durchmesser schmäleren, in die Westwand eingebundenen Halbsäule, gefolgt von zwei breiteren Halbsäulen und einer wieder schmaleren östlichen Halbsäule, aneinanderreihen. Die Säulenschäfte sind aus einzelnen Trommeln zusammengesetzt und teilweise kaum sichtbaren Wandvorlagen vorgestellt (Abb. 32).
- Auf einer schmalen Plinthe ruhen wulstige, kissenartige Basen mit einfachen Eckzehen. Zwischen den Basen und den Säulenschäften vermitteln zwei abgestufte Plättchen, wie sie bereits an den Gewändesäulen der Querhausapsiden beobachtet wurden. Die gestauchten Würfelkapitelle sitzen auf einem schmalen Halsring und sind mit zwei nebeneinander liegenden, teilweise gedoppelten Halbkreisschilden gestaltet, von denen ein glatter hoher Abakus zum karniesprofilierten Kämpfer überleitet. Zwischen Wulst, Kehle und abschließender Platte sitzen ca. 1 cm hohe doppelte Leistchen (Abb. 33, 34).
- Hecht konnte an der Westwand der Krypta, die mit dem Fundament der Vierungspfeiler im Verbund steht 185, die Standorte der westlichen Wandvorlagen bestimmen. Daraus ergab sich, nach gedachten Verbindungslinien zwischen westlichen, nördlichen und südlichen Vorlagen, die Position der einstigen Freisäulen im Raum und der Grundriß einer ursprünglich dreischiffigen Hallenkrypta, deren mittleres Schiff breiter als die Nebenschiffe war (Abb. 36).
- Außenbau der Ostteile
- Mit Ausnahme des geraden Chorschlusses, der sich durch einen etwa 1,60m hohen, geraden Sockel mit schräg aufgesetztem Abschlußgesims vom übrigen Baukörper abhebt, umläuft ein profilierter Sockel die Ostteile und das nördliche Seitenschiff: Über einem nach oben abgeschrägten fundamentartigen Unterbau sitzt direkt und ohne Plinthe der Sockel mit attischem Profil. Der abschließende Wulst wird oben und unten von je
- ____
- 184 Die Krypta wurde bereits im Zuge der Neugestaltung des Chores im frühen 13. Jahrhundert (Bau II mit Kreugratwölbung) aufgegeben. Vgl. Meier 1896, S. 278.
- 185 Hecht 1976/78, S. 33-34, 37 konnte damit zusätzlich die gleichzeitige Entstehung von Krypta und Vierung nachweisen.
- ____
- 78
- einem Plättchen eingefaßt, während der untere Wulst direkt auf dem Postament aufsitzt (Abb. 9, 22a).
- Dieser Sockel beginnt, die gesamte Südseite der Stiftskirche aussparend, an der Ostwand des südlichen Querhauses, umspannt südliche Apsis und Kryptenzugang und endet am Sockel des geraden Chorhauptes (1200-1250), um auf der Nordseite die analogen Bauteile zu umlaufen 186.
- Die einzige Unterbrechung erfährt er an den Nebenapsiden, wo die Basen der heute nur noch unregelmäßig erhaltenen Lisenengliederung auf quadratischen Plinthen aufsitzen (Abb. 19, 22a).
- Noch an zwei weiteren Stellen ist der Sockel verkröpft: An der Nord- und Südseite des Chores befinden sich die Reste rechteckiger Wandvorlagen, unter denen der Sockel vorspringt (Abb. 17, 18).
- Bei Betrachtung des aufgehenden Mauerwerks der Ostteile wird deutlich, warum präzise Aussagen zur Bauabfolge gar nicht oder nur mit Einschränkungen möglich sind. Während die östliche Chorwand einer baulichen Veränderung des frühen 13. Jahrhunderts zuzurechnen ist, stammen auch von nördlicher und südlicher Chorseite nur der Sockel und die unmittelbar anschließenden Steinlagen aus der ersten Bauphase. Ebenso sind beide Nebenapsiden nachträglich erhöht. Dies wird durch das unterschiedliche Mauerwerk und die unvermittelt abbrechende Lisenengliederung bestätigt (Abb. 14, 15).
- Die südliche Querhausfront ist ungegliedert und vollständig geschlemmt, während ein Rundbögenfries in zwei Etagen mit Lisenen an der nördlichen Querhauswand auf die wohl ursprüngliche Gesamtgliederung schließen läßt (Abb. 12, 13).
- Nicht zu übersehen ist an dieser Stelle, daß auch das Querhaus im Zuge der Wölbung erhöht wurde. Die jäh abbrechenden Lisenen des Obergeschosses bezeugen dies ebenso wie die nachträglich höher und in unregelmäßiger Reihenfolge versetzten Werkstücke des oberen Rundbogenfrieses 187. Die Konsolen der südlichen Querhausfassade gelangten bei der Neuerrichtung des Sanktuariums in die nördliche Chorseitenwand, wo sie ungefähr 1m unterhalb des Abschlußgesimses friesartig versetzt wurden (Abb. 16).
- Im aufgehenden Mauerwerk
- ____
- 186 Dort schließt sich das nördliche Seitenschiff an, das zwar nicht den Originalzustand darstellt, aber im 19. Jahrhundert mit originalen Bauteilen wieder aufgebaut wurde (Abb. 10).
- Dies geschah, so Meier 1896, S. 283, im Zuge einer Restaurierung in den Jahren 1878-1883, was auch den nahezu bruchlosen Anschluß des Sockels vom Nordquerhaus zum nördlichen Seitenschiff erklärt.
- 187 Ein flüchtiger Blick genügt um zu bemerken, daß die Lisenenführung nicht mit den Konsolen des Rundbogenfrieses übereinstimmt. Allerdings sind unter den willkürlich versetzten Werksteinen genau vier Konsolen mit halbrundem Unterbau, die wohl einst mit den Lisenen im Verbund standen.
- ____
- 79
- wechseln sich Quader- und Bruchsteinmauerwerk unregelmäßig ab, was auf die Instandsetzungsmaßnahmen der letzten Jahrhunderte zurückzuführen ist 188. Einzig über dem umlaufenden Sockel können ein bis zwei einheitliche Steinlagen zusammenhängender Quaderschichten beobachtet werden, die relativ regelmäßig weite Teile des Ostbaus umlaufen.
- Die Beobachtungen zum Bestand der Süpplingenburger Ostteile haben gezeigt, daß für eine relative Datierung des Gründungsbaus zunächst nur die verbliebenen Reste der Krypta und Teile des Sockels am Außenbau in Betracht kommen. Hinzu kommen nach den Befunderhebungen Meiers und Hechts die Fundamente und Sockel der Vierungspfeiler. Ergänzt man diese Angaben durch die Beobachtung der einheitlichen Steinlagen oberhalb des Sockels am Außenbau, gehören wahrscheinlich auch die unteren Teile der Querhausapsiden mit ihren Gewändestufen und die Lisenenansätze an den Chorflanken zum ersten Bauschnitt.
- Vergleiche von Einzelmotiven
- Krypta
- Die Ornamentik der Süpplingenburger Kryptenkapitelle gilt als einzigartige Ausprägung oder Abwandlung des Pfeifen- oder Faltenkapitells, die so im sächsischen Raum des frühen 12. Jahrhunderts kein Beispiel findet 189.
- Kretzschmar kann nach typologischen Vergleichen verschiedener Varianten des gedrungenen Würfelkapitells mit gestaffelten Doppelschilden am ehesten die formale Verwandtschaft zu einer Gruppe rheinischer Kapitelle, wie sie in den Hallenkrypten der Benediktinerklosterkirchen von St. Vitus in Mönchengladbach (Abb. 37)
- und St. Pankratius in Oberpleis (Abb. 38) vorkommen, feststellen 190.
- Beide Bauten wurden kurz nach 1100 mit den Krypten begonnen. Sie zeigen nicht nur ähnliche Kapitell- und Basenformen, auch die Kämpferprofile können einem Vergleich standhalten. Die reduzierte Form der attischen Basen mit nur einem breitlagernden Wulst, der breite Halsring am Ende des Schaftes und das Karniesprofil, das in Süpplingenburg in umgekehrter Reihenfolge (erst Kehle, dann Wulst) vorkommt, ist mit den rheinischen Formen vergleichbar 191.
- ____
- 188 Bauliche Veränderungen des 19. Jahrhunderts dokumentierende Restaurierungsakten sind bis heute nicht auffindbar. Vgl. Kretzschmar 1994, S. 33.
- 189 Meyer-Bruck 1952, S. 73.
- 190 Kretzschmar 1994, S. 81-82.
- 191 Zu den Kirchen in Mönchengladbach und Oberpleis vgl. Kubach/Verbeek 1976, Bd 2, S. 783-789 und S. 893-896.
- ____
- 80
- Bezüglich der von Hecht rekonstruierten Stützenfolge, die ein breiteres Mittelschiff neben zwei schmaleren Seitenschiffen ausbildet, eine nicht nur in der sächsischen Bautradition ungewöhnliche Raumanordnung 192, kann zum Vergleich ebenfalls der Grundriß der Krypta von St. Pankratius in Oberpleis angeführt werden (Abb. 39b).
- Diese bildet zwar, als ausladende Hallenkrypta mit Querhausarmen, zwei östlichen Apsidiolen, einer dazwischen angelegten quadratischen Reliquienkammer und einer halbrunden Apsis, einen völlig anderen Grundriß aus, doch ist deutlich eine achsiale Betonung des breiter angelegten Mittelschiffs zu beobachten. Ihre formalen und stilistischen Wurzeln liegen vermutlich in der Krypta des Oberpleiser Mutterklosters St. Michael in Siegburg, das ab 1060 errichtet wurde und eine ähnliche Grundrißdisposition aufweist (Abb. 39a).
- In Sachsen selbst kann die Anlage der Krypta, die an den Längsseiten über zwei abknickende Treppengänge verfügt, nur mit dem Grundriß der einstigen Krypta von St. Simon und Judas in Goslar (Abb. 39c) verglichen werden. Wie in Süpplingenburg sind dort Fundamente von Treppentürmen ergraben, die am östlichen Außenbau ebenfalls zwischen Haupt- und Nebenapsiden angelegt waren und in eine dreischiffige Säulenkrypta hinabführten 193 . Angesichts der lokalen Nähe Süpplingenburgs zu dem salischen Königsort Goslar, ist für diesen Punkt die Vorbildfunktion der Krypta, der von Heinrich III. um 1050 als capella regia im Pfalzbezirk errichteten Stiftskirche, nicht auszuschließen.
- Außenbau
- An den Ostteilen des Süpplingenburger Außenbaus verdienen besonders zwei mutmaßlich aus der Gründungszeit stammende Spuren besondere Aufmerksamkeit, die Lisenenansätze an nördlicher und südlicher Chorflanke und das Profil des umlaufenden Sockels (Abb. 17, 18, 22a).
- Bei den Lisenen handelt es sich vermutlich um Reste einer dekorativen Chorgliederung, die als Gliederungsform am äußeren Sanktuariumsbereich im frühen 12. Jahrhundert nicht ungewöhnlich ist, in dieser vergleichsweise kräftig vorkragenden Ausprägung jedoch eher selten vorkommt. Die Süpplingenburger Lisenenansätze sind weder mit den zarten Halbrundstäben der Apsisgliederungen von Quedlinburg, St. Servatius (Nebenapsiden), vom Dom und von St. Godehard in Hildesheim, noch mit der
- ____
- 192 Zu diesem Ergebnis gelangt Kretzschmar 1994, S. 71 nach einem Vergleich mit zahlreichen Krypten im Rheinland und in Sachsen.
- 193 K. Eichwalder in: Dehio Bremen/Niedersachsen (Neubearbeitung) 1992, S. 526-528.
- ____
- 81
- Gliederung der Süpplingenburger Querhausfassaden selbst zu vergleichen. Ebensowenig gehören sie in die Tradition eckiger Mauervorlagen als Außenbaugliederung rheinisch-elsässischer Bauten des 11./12. Jahrhunderts, wie sie die Kirchen von Köln, St. Maria im Kapitol (1049-1065), Maria Laach, Lang- und Querhaus (um 1100), und Murbach (1145/55) ausbilden und auch einige sächsische Beispiele des 12. Jahrhunderts, wie Goslar-Riechenberg (Abb. 239) und Konradsburg (Abb. 204) zeigen.
- Zwar ist am Außenbau der doppeltürmigen Ostfront der Lorenzkirche in Schöningen eine vergleichbar starke Verkröpfung des Sockels zu beobachten (Abb. 252),
- doch handelt es sich hier um die Überbrückung zweier Niveauunterschiede an der Stelle, wo die Turmflanke in die Chorflanke übergeht. Eine derartige Funktion kommt den Süpplingenburger Lisenenansätzen nicht zu. Vielmehr läßt die Verkröpfung von Sockel und Basis in Süpplingenburg bereits die plastische Vielschichtigkeit dekorativer Außengliederung erahnen, die im feingliedrig schmückenden Dekorationssystem der Königslutterer Ostteile zur vollen Ausprägung gelangt. Ganz ähnlich ist dort das Sockelprofil als Auflager für die Lisene vor den Gebäudesockel gezogen worden (Abb. 51) und dokumentiert einen hohen gestalterischen Anspruch 194.
- Das gezielte Vorhaben, den Sockel möglichst ohne Unterbrechung den Bau umlaufen zu lassen, bezeugen auch die vorab als Ganzes gefertigten Ecksockelstücke, die beispielsweise an der Gebäudekante zwischen nördlicher Nebenapsis und Querhausflügel zu sehen sind und dort nicht als angepaßte Einzelwerkstücke aufeinanderstoßen (Abb. 19).
- Das Motiv des den gesamten Baukörper umschließenden attischen Sockelprofils, das in Süpplingenburg - mit Ausnahme der Schnitte durch spätere Bauphasen - ebenso wie in Königslutter an keiner Stelle unterbrochen wird, ist in beiden Bauten Ausdruck einer hohen bautechnischen Qualität. Doch nicht nur die Fertigung des Süpplingenburger und Königslutterer Sockelprofils, auch ihre differenzierten Strukturen zeigen unmittelbare Verwandtschaften. Hier wie dort erhebt sich über
- ____
- 194 Nur als These formuliert sei die Möglichkeit, daß für das Sanktuarium von Süpplingenburg eine Wölbung geplant war. Mit ihrer ungewöhnlichen Stärke könnten die Lisenenreste auch statische Verstärkungen zur Ableitung des Gewölbeschubes gewesen sein. Ausgehend von ihrer Positionierung in der Mitte der äußeren Chorseiten müßte man dann aber von einem doppeljochig gewölbten Chorquadrat ausgehen, eine mit Ausnahme von Neuenheerse, Damenstiftskirche (1100-1130), allerdings dort ohne Wölbung rekonstruiert, und Petersberg/Halle (um 1170) mit anschließender Halbrundapsis, im frühen 12. Jahrhundert unbekannte Chorlösung.
- ____
- 82
- einem blockhaften Fundament 195 ein feingliedriges attisches Profil; in Königslutter vermittelt zwischen Fundament und Sockel zusätzlich eine abgeschrägte Plinthe. Den oberen Abschluß des attischen Profils bilden in Königslutter zwei abgestufte doppelte Leistchen, denen in Süpplingenburg eine einfache Leiste entspricht (Abb. 20-22b).
- Angesichts dieser deutlichen Parallelen kann ein von Martin Gosebruch für die Sockelgliederung in Königslutter formulierter Satz auch auf Süpplingenburg angewandt werden: „Auf die Einheitlichkeit des Sockels und dessen einheitliche Überkröpfung sämtlicher Vorlagen (...) [ist] ein solcher Wert gelegt, daß man schon aufmerksam werden muß und die Absichtlichkeit eines Kontinuums dichter Anschlüsse würdigt“ 196. Bei aller Ähnlichkeit der beiden Sockelprofile bleibt auf die bedachte Steigerung der Formensprache in Königslutter hinzuweisen, auch wenn diese sich zunächst nur in der Doppelung der abschließenden Plättchen zeigt.
- Querhausapsiden
- Wenn der Grundriß der Ostteile von St. Johannes tatsächlich durch ein einheitliches Fundament von Beginn an festgelegt war, worauf auch einige Lagen glatter Quaderschichten oberhalb des durchgehenden Sockels hindeuten, liegt die Vermutung nahe, auch die Stufengewände im Inneren der Querhausapsiden gehörten dieser ersten Planung an. Zudem gleichen die wulstigen Basen der Halbsäulen in der Krypta mit ihren zungenartig ausladenden Ecknasen den Basen der Ecksäulen in den Gewändestufen der Querhausapsiden (Abb. 30, 34) derart auffallend, daß eine gemeinsame Entstehungszeit nicht auszuschließen ist.
- Getreppte Pfosten mit eingestellten Säulen als plastischer Auftakt einfacher Nebenapsiden sind in der sächsischen Architektur vor 1150 ohne Beispiel. Schlicht, scharf und ohne innere Stufung sind selbst die Königslutterer Querhausapsiden in die Wand geschnitten (Abb. 54).
- Allein die Nischenkanten sind mit Basis und Kämpfer andeutenden architektonischen Gliederungselementen hervorgehoben, was wiederum mit den Kämpferstücken der Süpplingenburger Querhausapsiden vergleichbar ist. Erst die Braunschweiger Grablege Heinrichs des Löwen bildet das Motiv eingestellter Säulen im Gewände der Nebenapsiden nach (Abb. 277, 278).
- Eine zeitliche Mittlerstellung zwischen Süpplingenburg und Braunschweig
- ____
- 195 Bei den südlichen Ostteilen von Süpplingenburg ist das Fundament zwar komplett im Boden versunken, doch schon durch einen kleinen Spatenstich wird der Fundamentblock sichtbar.
- 196 M. Gosebruch, Königslutter und Oberitalien, in: Gosebruch/Grote 1980, S. 32.
- ____
- 83
- nehmen die Nebenapsiden von Goslar-Riechenberg (Abb. 242, 243)
- und die verbliebene nördliche Nebenapsis der Wettinergrablege in Petersberg/Halle (ab 1174) ein, die ebenfalls ein gestuftes Gewände mit eingestellten Halbsäulen aufweist (Abb. 165).
- Allerdings sind sie stärker dem Gewände verhaftet und stehen schon in der Tradition der in Königslutter vorgebildeten Kantensäulen.
- Die Süpplingenburger Nebenapsiden, die aufgrund ähnlicher Basenformen vermutlich mit der Krypta zur ersten Bauphase gehören und damit - wie die Parallelen zu Krypten rheinischer Reformklöster zeigten - weit vor 1130 datiert werden müssen, sind die wohl frühesten Beispiele portalhaft gestalteter Querhausapsiden. Sie sind damit Voraussetzung für die Gestaltung der Querhausapsiden mit eingestellten Ecksäulen in die gestuften Gewände der Querhausapsiden sächsischer Bauten wie Riechenberg, Schöningen und vor allem für den Braunschweiger Dom Heinrichs des Löwen. Auch können sie als Vorstufen der in Königslutter erstmals auftretenden Ecksäulen im Gewände zwischen Sanktuarium und Apsisrund gelten, von wo aus sie als dekoratives Gliederungselement Einzug in die sächsische Architektur des 12. Jahrhunderts nahmen [vgl. Kap. III.2.1.3.].
- Als vorläufige Schlußfolgerung der Beobachtungen an Außenbau und Querhausapsiden von St. Johannes in Süpplingenburg ist von einer auffälligen künstlerischen Verbindung zur Kaisergrablege in Königslutter auszugehen. Nicht die architektonische Konzeption, vielmehr gestalterische Einzelmotive, wie die Struktur des Sockels, die Ausbildung der Lisenenverkröpfung und auch die in Ansätzen vergleichbare Durchformung der Nischengliederung der Nebenapsiden, haben einiges gemeinsam mit der weit entwickelten, in Königslutter viel beachteten Formensprache und ihrer Rezeption im sächsischen Raum. So scheint es in höchstem Maße verwunderlich, daß der Süpplingenburger Kirchenbau trotz seiner lokalen Tradition und Nähe - Süpplingenburg ist nur 7km von Königslutter entfernt - nie in einem Zuge mit Königslutter genannt und die Gründerschaft Kaiser Lothars III. aufgrund der fehlenden Quellen in Zweifel gezogen wird.
- Datierungsvorschlag - Fazit
- Bei der Analyse architektonischer Einzelformen in St. Johannes in Süpplingenburg haben sich in der Hauptsache zwei Einflußrichtungen ergeben. Einerseits konnten Parallelen zu den in Sachsen einmaligen Süpplingenburger Kryptenkapitellen in den Krypten von Oberpleis und Mönchengladbach aufgezeigt werden. Zum anderen haben sich direkte Bezüge motivischer Details zur Bauskulptur von Königslutter ergeben. Belegt man nun beide Befundkomplexe mit Jahreszahlen, dann ergeben
- ____
- 84
- sich zwei Eckdaten, die die Gründung von St. Johannes zunächst auf die Zeit zwischen 1100 und 1135 eingrenzen. Die Analogie prägnanter Einzelformen zu Königslutter speist den vom Großteil der Forschung vertretenen Vorschlag, die Gründung von St. Johannes in den Jahren 1130 bis 1135 anzunehmen. Allerdings muß dann die Frage aufgeworfen werden, warum Kaiser Lothar III. in einem Abstand von nur fünf Jahren zwei Bauten in unmittelbarer Nähe in Auftrag gegeben hat. Insbesondere, weil die Existenz einer Krypta in Süpplingenburg und der damit verbundene repräsentative Anspruch des Bauwerks den Schluß zuläßt, auch hier sei ursprünglich ein dynastisches Hauskloster geplant gewesen. Wenngleich in der Süpplingenburger Krypta kein Stiftergrab nachgewiesen ist, muß der Kryptenraum nicht unbedingt der Ort der Stifterbestattung gewesen sein, ebenso konnte eine andere Stelle in der Oberkirche dafür gedacht gewesen sein. Zumindest aber sicherte die Krypta, allerdings nur in Verbindung mit einem Altar oder Reliquiengrab, liturgische und kultische Handlungen, die in jedem Fall auch der Memoria des Bestatteten dienten 197. Gerade deshalb stellt sich die Frage, ob nicht eine größere zeitliche Spanne zwischen den beiden Gründungen Süpplingenburg und Königslutter wahrscheinlicher ist.
- Lothar von Süpplingenburg gehörte seit seiner Erhebung zum Herzog von Sachsen im Jahre 1106 zum führenden sächsischen Hochadel. In der Schlacht bei Welfesholz 1115 manövrierte er sich sogar an die Spitze der antisalischen Fürstenopposition. Zu dieser Zeit waren adlige Klosterstiftungen als Familiengrablegen im Umfeld Lothars keine Seltenheit: Ab 1091 entstand in Pegau das Familienkloster der Grafen von Groitzsch, ab 1100 das Kloster Ballenstedt des gleichnamigen Grafengeschlechts, um 1110 das Familienkloster der Grafen von Ammensleben,
- ____
- 197 Mit der Stiftung eines Hausklosters inklusive Grablege war nicht zwingend der Bau einer Krypta verbunden, denn auch andere Bauteile konnten als Bestattungsort dienen. Wie U. Rosner, Die ottonische Krypta, Phil. Diss. Köln 1991, S. 192 resümiert, differierte die Nutzung der Krypten von Fall zu Fall und als Sepulkral-, Kult- und Altarräume erfüllten sie Funktionen, die nicht an Krypten gebunden waren, sondern auch für die Oberkirchen nachgewiesen sind. Rosner räumt ein, daß „wenn in einer Adelsstiftung eine Krypta zur Planung gehörte, [man] vom Vorhaben dort ein Stiftergrab einzurichten ausgehen [kann]“. Allerdings sei „zu unterscheiden, ob die Nutzung als Grablege der ursprünglichen Bestimmung der Anlage entsprach oder ob eine nachträgliche Verwendung in diesem Sinne vorliegt“. Vgl. Rosner 1991, S. 190. Zur terminologischen Abgrenzung von Stiftergrablege und Gründergrab vgl. M. Borgolte, Stiftergrab und Eigenkirche - Ein Begriffspaar der Mittelalterarchäologie in historischer Kritik, in: ZAMA 13. 1985. S. 27-38. Bei den bisherigen Grabungen in Süpplingenburg ist man weder auf eine Stiftergrablege noch auf einen Altar in der Krypta gestoßen.
- ____
- 85
- vor 1124 gründete Dedo von Wettin ein Hauskloster auf dem Petersberg bei Halle, und auch die Familie von Lothars Frau Richenza hatte bereits 1093 das Northeimer Familienkloster in Bursfelde gegründet. Bezeichnenderweise bestätigen alle genannten klösterlichen Familiengründungen, durch die Herkunft des Konvents oder die jeweils gültigen (oft hirsauischen) consuetudines, eine enge Verbindung zur Reform und darüber hinaus die religiös-kirchliche Gesinnung ihrer Auftraggeber. So kann davon ausgegangen werden, daß Herzog Lothar nach dem Erfolg von 1115 als nunmehr führendes Mitglied des sächsischen Hochadels - ganz im gusto der Zeit - auf dem Stammsitz seiner Familie in Süpplingenburg ein dynastisches Hauskloster zur Herausbildung eines herzoglichen Herrschaftszentrums gegründet hatte. Möglicherweise verfolgte er dabei das Ziel, in der Kirche, vielleicht sogar in der Krypta, zunächst nur eine Grabstätte für seine Familie, noch keine kaiserlich-dynastische Grablege, einzurichten.
- Man könnte einwenden, daß eine Krypta dem Gestaltungswillen eines gregorianisch-kirchenreformerisch gesinnten Herzogs entgegenstünde, zumal ja gerade die Übernahme vereinzelter Grundzüge Hirsauer Reformarchitektur die spätere Königslutterer Grablege auszeichnet. Doch ist m. E. das Gegenteil der Fall, denn auch die herzögliche Stiftung in Süpplingenburg läßt deutliche Bezüge zur Architektur der Reformorden erkennen. Die Herleitung der Süpplingenburger Kryptenkapitelle aus der rheinischen Bautradition, vertreten durch Mönchengladbach und Oberpleis, führt mitten ins Zentrum der rheinischen Kirchenreform. Als Tochtergründungen des Reformklosters Siegburg sind sie dem cluniazensisch geprägten, vom italienischen Reformkloster Fruttuaria ausgehenden Siegburger Reformkreis zugehörig, der schon im frühen 12. Jahrhundert nachweislich auch im sächsischen Harzgebiet Fuß faßte 198. Lothars persönliche Beziehungen zum Siegburger Reformkreis sind durch Quellen nur über Umwege zu konstruieren, die Rezeption der in Sachsen einmaligen Kapitellformen der Siegburger Filiationsgründungen darf hingegen auch als Quelle gelten!
- Der Regensburger Bischof Kuno I., zwischen 1105 und 1126 zuerst Mönch und dann Abt in Siegburg, ist nach 1130 als Empfänger und Zeuge mehrerer Urkunden im Umkreis Lothars III. nachzuweisen 199. Desweiteren
- ____
- 198 Die monastischen Beziehungen zwischen Siegburg und Huysburg wurzelten in dem Überläufer Thiezelinus, der um die Mitte des 11. Jahrhunderts vom Magdeburger Johanneskloster - ganz entgegen dem Gelübde der stabilitas loci - der strengeren Regel wegen nach Siegburg zog. Später wurde er vom Halberstädter Bischof Burchard II (1059-1088) nach Huysburg gebeten. Vgl. J. Semmler, Die Klosterreform von Siegburg, 1959 S. 65-66.
- 199 Vgl. Reg. Imp. Loth. Nr. 143, 144, 191, 199, 242, 243, 267, 305, 384, 424, 429.
- ____
- 86
- urkundet Lothar 1133 und 1134 für das von ihm reformierte Kloster Münchsmünster in Bayern 200. Es könnte daher die für diese Jahre verbürgte Bindung zwischen dem Regensburger Reformbischof und dem Kaiser auch für die Zeit angenommen werden, als Kuno noch Abt im traditionell antisalischen Siegburg und Lothar noch Herzog von Sachsen war. Zudem pflegte das Reformkloster Siegburg enge Verbindungen zu den Kirchenobersten von Mainz, Minden und naturgemäß Köln 201, die nicht nur als strenge Gregorianer galten, sondern auch maßgeblich an Lothars Aufstieg zum deutschen König beteiligt waren.
- Aufgrund fehlender bauhistorischer Quellen kann der Süpplingenburger Stiftskirche nur unter Einbeziehung des baukünstlerisch, historisch und kirchenreformerischen Beziehungsgeflechtes eine ungefähre Entstehungszeit und ein Platz im Bauschaffen Lothars III. zugewiesen werden. So sind m. E. in Süpplingenburg die Reste einer Klosterstiftung Herzog Lothars von Sachsen erhalten, der als caput eines aufblühenden sächsischen Adelsgeschlechts schon um 1120 auf dem Stammsitz seiner Familie ein Stift (vermutlich zunächst ein Kloster) gründete und dieses zur Familiengrablege bestimmte. In dieser Zeit wird mit dem Bau der Krypta begonnen worden sein, deren Kapitelle mittels der vergleichbaren Beispiele von Mönchengladbach und Oberpleis in die ersten Jahrzehnte des 12. Jahrhunderts zu datieren sind. Vor diesem Hintergrund kann der Argumentation Kretzschmars gefolgt werden, der sich für eine Frühdatierung der Süpplingenburger Krypta um 1125 ausspricht und in Lothars Wahl zum König den Anlaß für die Stiftung vermutet 202. Darüberhinaus könnte der Vergleich mit den Kryptenkapitellen des Siegburgkreises (kurz nach 1100) die Stiftung und den Baubeginn von Süpplingenburg sogar noch vor 1125 rechtfertigen. Für den Aufschub dieses Bauprojektes waren dann die Wahl Lothars zum deutschen König 1125 und die Kaiserkrönung 1133 in Rom ausschlaggebend. Auf dem Kaiserthron sitzend und der sächsischen Herrschertradition verpflichtet, veranlaßte Lothar in der Nähe des Familienstammsitzes und auf dem Grund und Boden seiner Vorfahren in Königslutter einen Neubau, und Süpplingenburg wurde - zumindest in seiner Funktion als herzögliche Familiengrablege - aufgegeben. Ob die Präsenz italienischer Bauleute in Königslutter, die Lothar möglicherweise unter dem Eindruck seiner ersten Italienreise und auf Drängen eines berühmten und weitgereisten oberitalienischen Baumeisters (Nikolaus?) für
- ____
- 200 Vgl. Reg. Imp. Loth. Nr. 369 und 408.
- 201 Die Siegburger Reform ging um 1070 ursprünglich vom Kölner Erzbischof Anno II. aus.
- 202 Kretzschmar 1994, S. 50-51.
- ____
- 87
- die große kaiserliche Baustelle verpflichtet hatte, auch Einfluß auf den in Maßen betriebenen Fortgang der Bauarbeiten in Süpplingenburg hatte, ist nicht zu belegen. Zumindest sprechen einige auffallende Analogien bautechnischer Details in Süpplingenburg (Quadermauerwerk, Sockelprofil, kissenartige Säulenbasen mit Ecknasen), für eine ähnlich arbeitende Bauhütte wie in Königslutter.
- Daß der Kaiserbau in Königslutter im Kontinuum des Bauschaffens und in seiner Bedeutung als kaiserliches Herrschaftszeichen natürlich Priorität behielt, deutet vor allem die in Süpplingenburg zurückgenommene Formensprache an. Süpplingenburg erlangte trotz des anfänglich in den Hintergrund getretenen Interesses den Status einer Nebenstelle kaiserlicher Bautätigkeit und könnte hinsichtlich der vergleichbaren Architekturdetails als Vorstudie zu Königslutter bezeichnet werden. Im Verlauf des 12. Jahrhunderts teilte Süpplingenburg sogar ein weiteres Schicksal mit Königslutter, denn auch auf den halbfertigen Bau von Süpplingenburg trifft ein von Thomas Gädeke für Königslutter und weitere mutmaßliche Bauten des Nikolaus formulierter Satz zu: „Allerdings ist allen Bauten gemeinsam, daß sie nicht nach dem anfangs geplanten Entwurf fertiggestellt worden sind. Regelmäßig bricht ein großartig begonnenes Werk ab und wird einer späteren Zeit zur Vollendung überlassen“ 203. Königslutter wie auch Süpplingenburg wurden nach einiger Zeit des Baustillstandes auf Betreiben Heinrichs des Löwen fortgeführt, was sicherlich auch durch ihre Rolle im Herrschaftsdenken und für die Familienmemoria Heinrichs des Löwen motiviert war. Als Stiftungen seines kaiserlichen Großvaters waren Königslutter wie auch Süpplingenburg wichtige Stützen des herzoglich-sächsischen Dynastiedenkens, die zwar vom Herzog nicht zum eigenen Herrschaftsmittelpunkt bestimmt wurden, aber auch nicht dem Verfall überlassen werden konnten.
- III.2.1.2. Bad Segeberg, St. Marien
- Die Anfange des Augustinerchorherrenstiftes St. Marien in Bad Segeberg haben weniger mit Lothars dynastischen Bestrebungen im Zentrum Sachsens zu tun, sondern sind als politisch-strategisches Vorhaben eng mit der kaiserlichen Missionspolitik verknüpft. Schon während seiner Zeit als sächsischer Herzog hatte Lothar militär- und handelspolitische Maßnahmen im Norden des Reiches unternommen. Die Gründung der Otterndorfschen
- ____
- 203 Gädeke 1988, S. 16.
- ____
- 88
- Marktsiedlung 1100 und die Befestigung der Burg Bremervörde 1122 204 waren Vorboten seiner Christianisierungs- und Siedlungspolitik, die mit der Gründung des Segeberger Klosters im Erzbistum Hamburg-Bremen 1134 den ersten Höhepunkt fanden. Lange zuvor getroffene personalpolitische Entscheidungen und Bündnissicherungen, wie die frühe Belehnung seines Parteigängers Adolfs I. von Schauenburg mit der Grafschaft Holstein 1110 205, die militärische Unterstützung des christlichen Abotritenherrschers Heinrichs von Alt-Lübeck im Jahre 1125 206 und die auf dessen Tod 1127 folgende Krönung von Lothars Zögling Knud Laward zum neuen Abotritenherrscher 207 hatten die Ernsthaftigkeit der kaiserlichen Bemühungen um den deutsch-slawischen Grenzraum nördlich der Elbe angekündigt.
- Dritter im Bunde der Männer, die die Kolonisation im Norden des Reiches vorantrieben und eine bedeutende Rolle am Hofe Lothars III. einnahmen, war neben Adolf I. von Schauenburg und Knud Laward der Bremer Kanoniker Vizelin. Als Missionar der Wenden und Wagrier hatte Vizelin im Auftrag des Bremer Erzbischofs Adalbert (1123-1148) als Wanderprediger die Christianisierung der Slawenvölker in Gang gebracht. Vizelin war es auch, so die Cronica Slavorum des Helmold von Bosau 208, der Lothar bei einem Zusammentreffen in Bardowick auf die strategisch günstige Lage des Kalkberges in Segeberg hinwies und ihn zur Gründung einer Burg und eines Augustinerchorherrenstiftes am Fuße des Berges veranlaßte 209. Auch die Herkunft des Konvents aus dem von Vizelin selbst
- ___
- 204 Im Kreis Cuxhaven gelegen, vgl. R Karrenbrock in: Dehio Bremen/Niedersachsen (Neubearbeitung) 1992, S. 295 und S. 1081.
- 205 Vgl. Reg. Imp. Loth. Nr. 15; zu den Grafen von Schauenburg vgl. H. Ostertun, Die politische und kirchliche Entwicklung Ostholsteins unter den ersten Schauenburgern bis zum Ausgang des 12. Jahrhunderts, Hist. Staatsarbeit Kiel 1965; H. bei der Wieden, Schaumburgische Genealogie, Bückeburg 1966 und U. Lange, Grundlagen der Landesherrschaft der Schauenburger in Holstein, in: ZGSHG 99, 1974, S. 18-21.
- 206 Vgl. Reg. Imp. Loth. Nr. 86 und 87.
- 207 Vgl. Reg. Imp. Loth. Nr. 37 und 196; zum Aufstieg Knud Lawards am Hofe Lothars III. vgl. W. Lammers, Das Hochmittelalter bis zur Schlacht von Bornhöved - Geschichte Schleswig-Holsteins, in: O. Klose (Hg.) Geschichte Schleswig-Holsteins 4, 1., Neumünster 1981, S. 237-256 und Crone 1982, S. 207-210.
- 208 Helmoldi Presbyteri Bozoviensis Chronica Slavorum, im folgenden in der Übersetzung von Bernhard Schmeidler (1937), neu übertragen und erläutert von Heinz Stoob, Darmstadt 1963 verwendet.
- 209 Helmold chron. Slav. Kap. 53, 25-27: „Preterea intimavit ei, quia in Wairensi provincia mons haberetur aptus, cui propter tutelam terrae regale possit castrum imponi.\" (Ferner machte er ihn darauf aufmerksam, daß im Lande Wagrien ein Berg liege, der sehr geeignet zum Bau einer königlichen Burg für den Schutz [des Landes] sei). (...) Nec bis contentus ordinavit fundacionem novae ecclesiae ad radices eiusdem montis.. “ (Damit nicht zufrieden, ordnete er [Lothar] die Gründung einer neuen Kirche am Fuße des Berges an).
- ____
- 89
- gestifteten ersten holsteinischen Augustinerchorherrenstift Neumünster ist auf den Einfluß des Missionars zurückzuführen.
- Zwar wird die Echtheit der zu Segeberg in Abschriften des 17. Jahrhunderts erhaltenen Urkunden, ein Lothardiplom von 1137 und je ein Diplom Konrads III. und Heinrichs VI. von 1138 und 1192, hinsichtlich der Angaben zur Ausstattung und Rechtsstellung des Klosters angezweifelt 210, die Gründerschaft Lothars III. an der Kirche der Hll. Maria und Johannes am Fuße des Kalkberges 1134 aber nicht in Frage gestellt. Doch war dieser kaiserlichen Stiftung kein langer Bestand beschieden. 1138 brachen die Konflikte im Wendenland unter dem Slawenfürsten Pribislav erneut aus. Das um Segeberg gelegene Gebiet Wagrien wurde verwüstet, die lotharische Burgbefestigung und das Kloster zerstört, und der Segeberger Konvent mußte nach Neumünster fliehen. Vizelin veranlaßte eine Neugründung in Högersdorf, einem Ort westlich der Trave auf sicherem holsteinischen Boden und siedelte dort die Segeberger Chorherren erneut an 211. Nach der um 1156 durch den Oldenburger Bischof Gerold veranlaßten Rückverlegung des Stiftkonventes an den Ort seiner Gründung begann man zwischen 1156 und 1160 mit der Errichtung des noch heute bestehenden Backsteinbaus St. Marien in Bad Segeberg.
- Zur Geschichte des Bauwerks
- Über die bauliche Gestalt des 1138 niedergebrannten Gründungsbaus Kaiser Lothars III. ist nichts bekannt. Aus diesem Gnmde wird auf einen ausführlichen Forschungsbericht zum Nachfolgebau der Zeit ab 1150 (Abb. 40a-41)
- verzichtet. Dieser wurde von der kunsthistorischen Forschung als frühes Beispiel der mittelalterlichen Backsteinarchitektur in Norddeutschland besonders im Hinblick auf die bautechnischen Voraussetzungen, die geographische Herleitung der Backsteinbauweise und ihre Einordnung in den gesamteuropäischen Kontext mehrfach behandelt 212.
- ____
- 210 Die gegensätzlichen Positionen zusammengefaßt bei K. Jordan, Die Anfänge des Stiftes Segeberg, in: ZGSHG 74/75, 1951, S. 59-94 und im Kommentar zu Reg. Imp. Loth. Nr. 402.
- 211 Jordan 1951, S. 91-94; Helmold chron. Slav. Kap. 58; Zur Geschichte des Ortes Segeberg und der jüngeren Kirchengeschichte von St. Marien vgl. H. Unverhau: Die Entstehung und frühe Entwicklung der Stadt Bad Segeberg, in: JbSe 31, 1985, 25-41.
- 212 Unter diesen Aspekten wird der Segeberger Kirchenbau in den Überblickswerken zur norddeutschen Backsteinromanik behandelt Eine Monographie zu St. Marien ist bisher noch nicht erschienen. Vgl. R. Haupt, Die Erfindung der deutschen und nordischen Backsteinkunst und ihre Erfinder, in: ZGA 5, 1911/ 12, S. 72-80, 121-141; A. Kamphausen, Die Baudenkmäler der deutschen Kolonisation in Ostholstein und die Anfänge der nordeuropäischen Backsteinarchitektur, Neumünster 1938; H. J. Böker, Die mittelalterliche Backsteinarchitektur Norddeutschlands, Darmstadt 1988.
- ____
- 90
- Der Gründungsbau ist mit Ausnahme der zuletzt von Bettina Gnekow in einem Katalog zum mittelalterlichen Kirchenbau in Holstein erfaßten Baugeschichte nur selten Gegenstand der Forschung 213. Nur am Rande und hauptsächlich im Rahmen von Grabungsberichten des Denkmalamtes Schleswig-Holstein wird die Frage nach dem lotharischen Vorgängerbau aufgeworfen. So haben Dietrich Ellger und Wolfgang Teuchert vom Landesamt für Denkmalpflege Schleswig-Holstein in Kiel zwischen 1957/59 und 1967 Grabungen im Bereich des Fußbodens (innen) und der äußeren Chorfundamente unter verschiedenen Fragestellungen durchgeführt und haben keinerlei Fundamentpartien entdeckt, die einem Vorgängerbau der jetzigen Kirche zugewiesen werden könnten 214. Auch haben sie die von Alfred Kamphausen 1938 und 1952 215 geäußerte Vermutung, die in Feldstein errichtete Ostmauer (in situ) sei einziges Relikt der lotharischen Gründung, widerlegt 216. Weitere Mutmaßungen über die Baugestalt eines bis heute nicht nachgewiesenen Vorgängerbaus anzustellen, entbehrt jeder Grundlage und so kann die einstige Augustinerchorherrenstiftung in Bad Segeberg im Kontext der Kaiserbaukunst Lothars III. nicht berücksichtigt werden. Zwei Überlegungen zum Thema des Vorgängerbaus seien an dieser Stelle ergänzt, die in der Forschung vereinzelt angeschnitten, aber nie in einen historisch kausalen Zusammenhang gebracht wurden: Die Lage der lotharischen Stiftung und das ursprüngliche Baumaterial des Segeberger Gründungsbaus von 1134.
- ____
- 213 Allerdings konzentriert sich auch B. Gnekow, Der mittelalterliche Kirchenbau in Holstein 1150-1300, Münster/Hamburg 1994, S. 736-745 unter Berücksichtigung sämtlich zuvor erschienener Literatur in der Hauptsache auf die Baugeschichte der heutigen Segeberger Stiftskirche.
- 214 D. Ellger, Ergebnisse der Bauforschung. Segeberger Kirche als Gewölbebau ausgeführt. Aus der Anfangszeit der norddeutschen Backsteinbaukunst, in: Heimaterde 1960, 286-287; ders.‚ Bericht über neue Ergebnisse der Bauforschung des Landesamtes für Denkmalpflege Schleswig-Holstein, in: Nordelbingen 30, 1961 S. 153; ders.‚ Bauforschungsbericht I und II: Berichte über neue Ergebnisse der Bauforschung des Landesamtes für Denkmalpflege Schleswig-Holstein 1961-1968, in: Nordelbingen 38, 1969, S. 189-213 und W. Teuchert, Der gotische Stiftschor der Segeberger Kirche, in: Nordelbingen 36, 1967, S. 7-14.
- 215 Kamphausen 1938, S. 53 und ders.‚ St. Marien zu Segeberg, in: Gebaute Kleinodien, Tübingen 1952, S. 6.
- 216 Besagte Feldsteinmauer wurde auf Ziegelschutt, vermutlich im 17. Jahrhundert hochgezogen, nachdem eine spätgotische Chorverlängerung aufgegeben wurde. Vgl. Teuchert 1967, S. 10.
- ____
- 91
- Die in der kunsthistorischen Literatur schon fast zur historischen Wirklichkeit gewordene Ansicht, der Segeberger (Högersdorfer) Konvent habe nach seiner Rückkehr nach Segeberg 1156 den Wiederaufbau des zerstörten Stifts betrieben - sich also am ursprünglichen Ort erneut niedergelassen - wird quellengeschichtlich von der helmoldschen Überlieferung getragen. In der betreffenden Stelle heißt es, die Stiftsherren seien „ad locum primae fundacionis“ 217 zurückgekehrt. Ob es sich bei dem locum um die Siedlung Segeberg oder konkret um die nach 1138 verlassene Lotharstiftung – die man anstelle der heutigen Stiftskirche vermutet - handelt, ist ungewiß. Letzteres wird in der Hauptsache durch jene Forscher vertreten, die in der östlichen Feldsteinmauer der Segeberger Marienkirche ein „Überbleibsel der Lothar-gründung“ 218 erkennen wollen.
- Nun ist aber das ehemalige Augustinerchorherrenstift nicht die einzige für den Siedlungskern Segeberg bezeugte Kirchenstiftung des frühen Mittelalters. Helmold zufolge blieb nach Abzug der Chorherren und Zerstörung von Burg und Kloster um 1140/43 eine Marktsiedlung in Segeberg bestehen, für die nach Abzug des Konvents eine Pfarrkirche errichtet wurde: „porro forensis ecclesia in curam parrochiae ad radices montis posita est“ 219. Bis zum Ende des 12. Jahrhunderts ist diese Kirche in Segeberg bezeugt 220. Kamphausen nimmt an, „die Zerstörung des lotharischen Klosters sei so schwer gewesen, daß dort kein Gottesdienst mehr möglich war und man zum Weiterbestand des Segeberger Marktfleckens eine kleine Marktkirche an anderer Stelle errichtet habe“ 221. Doch muß es bei dieser Interpretation der helmoldschen Textstelle nicht bleiben. Mit gleicher Berechtigung darf angenommen werden, daß nach Abzug der Chorherren die ruinöse Stiftanlage zum Ausgangspunkt des für die Marktsiedlung benötigten Gotteshauses gemacht wurde und man an genau
- ____
- 217 Helmold chron. Slav. Kap. 84, 19-20: „(...) annuente duce fecit eos transmigare Segeberg ad locum primae fundacionis (...). („.an den Ort der ursprünglichen Gründung Segeberg übersiedeln...).
- 218 Kampbausen 1952 S. 6; Haupt 1912, S. 130; Jordan 1951, S. 91; Unverhau 1985, S. 33.
- 219 Helmold chron. Slav. Kap. 58, 1-2, Übersetzung ebd.: „Dann wurde an den Fuß des Berges eine Marktkirche zur Versorgung der Gemeinde gesetzt.“.
- 220 Nach Kamphausen 1952, S. 3, der sich auf ein 1199 von Innozenz III. ausgestelltes Privileg bezieht, sei die Marktkirche mit dem Johannespatrozinium ausgestattet gewesen. Vgl. dazu auch Jordan 1951, S. 92 und Gnekow 1994, S. 738. Hier liegt wohl ein Irrtum vor, denn das Privileg führt zwar die Pfarrkirche auf, aber ohne Angabe eines Patroziniums. Vgl. P. Hasse, Schleswig-Holstein-Lauenburgische Regesten und Urkunden, Bd 1, Hamburg/Leipzig 1886, S. 110.
- 221 Kamphausen 1952, S. 3.
- ____
- 92
- der Stelle die neue Pfarrkirche errichtete, wo sich einst die Lotharstiftung befand.
- Die bei Helmold mit identischem Wortlaut aufgeführte Lokalisierung beider Kirchen, der lotharischen Augustinerstiftung und der neuen Pfarrkirche, ad radices montis (am Fuß des Berges), ohne ausdrückliche Unterscheidung zweier Flecken, macht die Gründung der Pfarrkirche anstelle der Lotharstiftung möglich. Als der Konvent dann um 1156 erneut in Segeberg Einzug nahm und mit dem Bau der neuen Kirche begann, an der Stelle wo sie noch heute steht, wurde die provisorische Pfarrkirche und mit ihr der ursprüngliche Gründungsort der Lotharstiftung aufgegeben 222. Dieses Gedankenspiel hätte zur Folge, daß der Gründungsbau Lothars III. anstelle der alten Marktkirche vermutet werden muß, deren ursprünglicher Standort aber heute nicht bekannt ist 223.
- Mit dieser Version würde letztlich auch einer in der Forschung vereinzelt geäußerten notdürftigen Konstruktion widersprochen, die in Ermangelung steinerner Fundamente und Reste des Segeberger Gründungsbaus in der lotharischen Stiftung ein kleines Betoratorium, möglicherweise aus Holz bestehend, vermutet 224. Eine architekturhistorische Rückschau auf frühere Missionsgründungen im Holsteinischen wie Schenefeld und Meldorf (9./10. Jh.)‚ bringen den Nachweis der Feldsteinverwendung im Nordosten des Reiches. Ebenso sind die vizelinschen Missionsbauten der Zeit nach 1120 aus Feldstein und später aus Backstein errichtet 225. Auch in Alt-Lübeck (Liubice) muß um 1130 ein noch unter dem Abotritenherrscher Heinrich errichteter Königssitz bestanden haben, dessen 1852 in seinen Fundamenten nachgewiesener Apsidensaal aus Feldstein bestand 226. Diese Befunde sprechen zumindest dagegen, daß der Segeberger Gründungsbau, als erste kaiserlich initiierte Missionsbastion im nordischen Grenzraum, eine Holzkonstruktion gewesen sein soll. Ob die
- ____
- 222 Für die Siedlung Segeberg werden im frühen Mittelalter zwei Siedlungszentren vermutet. Der eine konzentrierte sich wohl schon um 1138 um die heutige Marktsiedlung, der andere befand sich im Bereich der heutigen Klosteranlage. Vgl. Unverhau 1985, S. 34-35 und Jordan 1966, S. 228.
- 223 J. Habich, Stadtkernatlas Schleswig-Holstein, Neumünster 1976, S. 18; Jordan 1951, S. 92.
- 224 L. Hein, in: Schleswig-Holsteinische Kirchengeschichte Bd. 1, S. 131 resümiert: \"(...) offenbar hatten die Gebäude der Segeberger Station aus Holz bestanden“. Ebenso Haupt 1912, S. 140 und Crone 1982, S. 215.
- 225 Diese folgten dem Typus einer Saalkirche mit apsidialem oder rechteckigem Chor und teilweise rundem Westturm, wie für St. Marien in Neumünster rekonstruiert und in Bornhöved, Oldesloe, Bosau und Süsel noch heute erhalten. Vgl. Gnekow 1994, S. 640-645.
- 226 Inventar Lübeck 1919, S. 1-8.
- ____
- 93
- Fundamente des Segeberger Gründungsbaus und mit ihnen die der alten Marktkirche nun tatsächlich anstelle des alten Segeberger Marktfleckens zu lokalisieren sind, ließe sich nur durch Probegrabungen im Bereich der heutigen Marktsiedlung bestätigen.
- Fazit
- Mit der Gründung eines Augustinerchorherrenstifts in Segeberg hatte Lothar seinen politischen Einfluß zu den im Norden angrenzenden Herrschaftsgebieten und zum Königreich Dänemark gesichert und dabei auch den missionarischen Forderungen der Gregorianer nach einer umfassenden Kirchenhoheit im gesamten Reichsgebiet Genüge getan. Unter Mitwirkung des Missionars Vizelin, der als strenger Anhänger der Reformkirche gelten darf, hatte Lothar erstmalig die Stiftung eines Augustinerchorherrenkonventes veranlaßt. Vizelin war vom Prämonstratenserbischof Norbert von Magdeburg zum Priester geweiht worden 227 und betrieb den kaiserlich geförderten Missionsprozeß mittels reformierter Chorherren, woran Lothar, der sonst hauptsächlich Benediktinerkonvente förderte, offensichtlich keinen Anstoß nahm.
- Daß der Missionsdienst im heidnischen Norden für Lothar ein vorrangiges politisches Ziel war, belegen nicht nur Helmolds trauernde Worte zum Tode des Kaisers, der Lothar als Herrscher lobt, „der seine Tugend in der Bekehrung der Heiden bewährt hatte“ 228. Auch der bereits erwähnte Königsort mit der Kirche in Alt-Lübeck, ein seit dem 11. Jahrhundert wichtiger Missionsstandort im nordöstlichen Grenzgebiet, wurde um 1130 auf Initiative Lothars geweiht und Vizelin und seinen Geistlichen anvertraut 229. Nachdem der Ort kurze Zeit später von Slawenstämmen verwüstet wurde, arrangierte Lothar ein weiteres Mal den Aufbau und die Weihe der
- ____
- 227 Helmold chron. Slav. Kap. 46, 1-5: „Eo itaque anno, quo Francia reversus est, accedens ad reverentissimum Northbertum Magdeburgensem presulem eius notitia perfrui et ad sacerdocii gradum promoveri meruit.“ (Im Jahr seiner Rückkehr aus Frankreich begab er sich zum ehrwürdigen Bischof Norbert von Magdeburg, durfte in dessen Umgebung bleiben und ward von ihm zum Priester geweiht.).
- 228 Helmold chron. Slav. Kap. 54, 8-9: „Imperiator enim bonus, cuius erga vocacionem gentium virtus probata (...)“
- 229 Helmold chron. Slav. Kap. 49, 7-9: „ Veniens quoque Lubeke dedicari fecit ecclesiam, quam construxerat Heinricus, astante venerabili/sacerdote Ludolfo et ceteris qui de faldera eidem loco mancipati fuerant.“ (Auch nach Lübeck kam er [Lothar] und ließ die von Heinrich erbaute Kirche einweihen in Anwesenheit des ehrwürdigen Priesters Ludolf und der übrigen [Geistlichen] aus Faldera, die für diesen Ort bestimmt waren).
- ____
- 94
- Kirche von Alt-Lübeck 230. Warum gerade diese alte westslawische Königsresidenz für Lothar so wichtig war, ist aus den Quellen nicht ersichtlich. Ein entscheidender Faktor war - neben der politischen und militärischen Bedeutung der Altlübecker Siedlung - sicherlich auch die Kontrolle über den Ostseefernhandel, der dort einen zentralen Stützpunkt hatte.
- Neben diesen strategisch und missionspolitisch bedeutenden Aspekten, die die Politik Lothars mit dem nordöstlichen Handelszentrum verbanden, existiert auch eine interessante Parallele aus dem kultischen Bereich, die wiederum die beiden Königsorte Königslutter und Alt-Lübeck betrifft: zu den Grabbeigaben in Königslutter zählt neben den kaiserlichen Herrschaftszeichen wie Szepter und Krone auch ein Ring, der von der Forschung aufgrund der Inschrift „+THEBALGVTGVTANI“ als Thebaldring bezeichnet wird (Abb. 42).
- Da die Bedeutung der Inschrift und die damit verbundene magische Symbolik des Ringes weder von archäologischer noch von kunsthistorischer Seite bisher eindeutig geklärt werden konnte, sei die zuletzt von Reinhold Michelly vorgenommene Interpretation der Inschrift „Mir möge gutes Los zuteil werden“ übernommen und der Ring als ein Zeichen der Abwehr gegen Krankheiten, Dämonen oder jegliche Verkörperung des Bösen gedeutet 231. Nun ist neben der apotropäischen Symbolik des Ringes vor allem bemerkenswert, daß der Königslutterer Ring im Grab des Slawenkönigs Heinrich in Alt-Lübeck ein Gegenstück besitzt (Abb. 43).
- Dies verwundert nicht weiter, wenn man, wie Michelly und zuletzt Michael Mülle-Wille, beide Ringe einer Fundguppe zuordnet, die sich im 11./ 12. Jahrhundert auf das slawisch-deutsche Christianisierungsgebiet beschränkte 232. Vor dem Hintergrund von Lothars personal- und territorialpolitischen Aktivitäten im Nordosten des Reiches, die hauptsächlich im Zeichen der Mission standen, könnten die Ringe als Objekte mit heilssymbolischer Schutzfunktion
- ____
- 230 Helmold chron. Slav. Kap. 53, 21-23: „Porro dispensacionem eiusdem basilicae commisit domno Vicelino, ut edificiis subrigendis et personis coadunandis instaret propensius. Idem quoque fecit de Lubicensi ecclesia“ (Übersetzung ebd.: Die Verwaltung dieser Kirche [St. Marien in Segeberg] übertrug er nun Vizelin, damit der um so eifriger die Bauarbeiten und die Heranziehung von Helfern betriebe. Ebenso verfuhr er hinsichtlich der Lübecker Kirche).
- 231 R. Michelly, Der Spandauer Thebal-Ring. Neues zum Problem der Thebal-Ringe, in: Ausgrabungen und Funde auf dem Burgwall in Berlin-Spandau, NF Bd. 5, 1987, S. 64-81 und H. Rötting in Luckhardt/Niehoff 1995, Bd. 1, S. 147-148 (Kat. Nr. C16b). Laudage in Luckhardt/Niehoff 1995 (wie Anm. 22), S. 96 weist mit Recht darauf hin, daß der Ring wegen des Kreuzzeichens in der Inschrift in jedem Falle dem christlichen und nicht dem heidnischen Kultbereich zuzuordnen ist.
- 232 Michelly 1987, S. 67-70 und Müller-Wille 1996, S. 26-29 und S. 44-48.
- ____
- 95
- möglicherweise die besonderen Missionstätigkeiten ihrer Träger gewürdigt haben. Auch Heinrich von Alt-Lübeck hatte die Christianisierung der nördlichen Slawenlande, wenn auch nicht mittels Kirchenstiftungen, aber durch anhaltende Kriegszüge gegen die Slawenvölker, unterstützt 233.
- Daß Lothars Verdienste um die Slawenmission unbestrittene Anerkennung fanden, belegen auch die späteren Bemühungen seines Enkels Heinrichs des Löwen um die Wiedererrichtung der Slawenbistümer: In zwei herzöglichen Urkunden für die Bistümer Ratzeburg und Lübeck von 1169 und 1170 betont er ausdrücklich, „die Bistümer in der transalbingischen Slauia u.a. zum Seelenheil seines Großvaters Kaiser Lothar ausgestattet zu haben.“ 234 Letztlich könnte auch die enge Verbindung Lothars zum Bremer Erzbistum, zu dem Alt-Lübeck und Bad Segeberg gehörten, die bislang ungesicherte Herkunft des Ringes erklären. Möglicherweise war der Thebaldring durch Vermittlung Adalberos von Bremen (1123-1148), der als wichtiger Reformanhänger häufig in Lothars Nähe nachzuweisen ist 235, in den Besitz des Kaisers und zu dessen Grabbeigaben gelangt 236.
- III.2.1.3. Königslutter, St. Peter und Paul
- Obwohl in einer Arbeit wie dieser, angelegt als kunsthistorische Studie zum Wirken Kaiser Lothars III. als Stifter und Bauherr, dem wohl prominentesten Bau, St. Peter und Paul in Königslutter, eine zentrale Rolle zukommen müßte, werden gerade ausführliche Beschreibungen, bauhistorische Einzelfragen und formgeschichtliche Stilanalysen in den Hintergrund treten. Es geschieht dies mit dem Hinweis auf die zahlreichen Studien zur sächsischen Architektur des Mittelalters, in denen Beiträge zu Königslutter einen hervorragenden Platz einnehmen. Neben den frühen Publikationen von Paul Jonas Meier (1896), Ferdinand Eichwede (1904)
- ____
- 233 Crone 1982, S. 206.
- 234 J. Petersohn, Die Kirchenpolitik Heinrichs des Löwen in der sächsischen Slawenmark, in: Luckhardt/Niehoff 1995, Bd. 2, S. 144-148, S. 148.
- 235 Neben seiner Anwesenheit bei den Hoftagen 1126 in Straßburg, 1131 in Lüttich, 1135 in Bamberg begleitete Adalbero Lothar auf seinem ersten Romzug 1133 und feierte mit dem Kaiser 1134 das Osterfest in Halberstadt. Vgl. Reg. Imp. Loth. Nr. 130, 221, 392, 428. Zu Adalberos Missionspolitik vgl. G. Glaeske, Die Erzbischöfe von Hamburg-Bremen als Reichsfürsten (937-1258), Hildesheim 1962, S. 126-145.
- 236 Es ist quellenkundlich nichts über einen speziellen, den Thebaldring verleihenden, Personenkreis bekannt. Doch schließt die Tatsache, daß ein dritter Ring im Grab Bischof Ulgers (†1148) in Angers gefunden wurde, nicht aus, daß es sich bei dem Thebaldring um eine - vielleicht durch einen Erzbischof verliehene - Grabinsignie aus dem klerikal-sakralen Bereich handelte.
- ____
- 96
- und Erwin Kluckhohn (1938/39) 237 zur Bauornamentik von Königslutter und ihren oberitalienischen Vorbildern hat die Königslutter-Forschung in den 80er Jahren durch den Braunschweiger Kreis um Martin Gosebruch wesentliche Impulse erhalten. Besonders Gosebruch selbst (1985) und Thomas Gädeke (1988) 238 haben aufschlußreiche Beschreibungen und Interpretationen der Architektur sowie Aspekte der Bau- und Rezeptionsgeschichte von Königslutter aufgegriffen und zu überzeugenden Ergebnissen gebracht. Beiden gebührt auch das Verdienst, das Königslutterer Architekturkonzept und sein Bauornament nicht ausschließlich im Kontext sächsischer Kunst des 12. Jahrhunderts beurteilt, sondern ebenso überregionale Beziehungen zu oberitalienischen, rheinischen und französischen Kunstlandschaften herausgearbeitet zu haben.
- So zahlreich bauliche und bildliche Vorbilder für Königslutter gefunden und Meisterfragen zur Person des lombardischen Künstlers Nikolaus diskutiert wurden, so unterschiedlich waren bisher auch die Methoden, sich dem Ensemble aus Architektur, Bauskulptur und Malerei in Königslutter zu nähern: In gleichem Maße wie einzeln veröffentlichte Studien von Harold Joachim (1935) oder Uvo Hölscher (1965) zur Baugeschichte und von Hartmut Rötting (1985) 239 zur Königslutterer Grabausstattung, haben vor allem die wissenschaftlichen Symposien und Ausstellungen in Braunschweig (1980 und 1983), Ferrara (1981) und zuletzt erneut in Braunschweig (1993 und 1995) den Dialog um den Kaiserbau vorangetrieben 240. Diese teilweise komplexen Darstellungen zur Architektur von Königslutter und die Tatsache, daß derzeit keine neuen Bauuntersuchungen den Stand der Forschungen zum mittelalterlichen
- ____
- 237 Meier 1896; F. Eichwede, Beiträge zur Baugeschichte der Kirche des kaiserlichen Stiftes zu Königslutter, Hannover 1904; E. Kluckhohn, Die Kapitellornamentik der Stiftskirche zu Königslutter, in: MarbJb 11/12, 1938/39, S. 527-79.
- 238 M. Gosebruch, Die Kunst des Nikolaus, in: NdtBeitrKG 19, 1980, S. 63-124; ders. und T. Gädeke, Königslutter - Die Abtei Kaiser Lothars III, Königstein 1985; T. Gädeke, Die Architektur des Nikolaus, Hildesheim 1988.
- 239 H. Joachim, Die Stiftskirche in Königslutter, Phil. Diss. Göttingen 1935; U. Hölscher, Die Stiftskirche in Königslutter. Eine baugeschichtliche Untersuchung, in: NdtBeitrKG 4, 1965, S. 9-40; Rötting 1985.
- 240 Königslutter und Oberitalien. Kunst des 12. Jahrhunderts in Sachsen, hrsg. v. M. Gosebruch und H.-H. Grote, Braunschweig 1980 (zitiert als Gosebruch/Grote 1980); Der Braunschweiger Burglöwe 1985; Nicholaus e l`arte del suo tempo, Atti del seminario Ferrara 21.-24. 9. 1981, Ferrara 1985; Romanik in Niedersachsen. Forschungsstand und Forschungsaufgaben Symposion an der Technischen Universität Carolo-Wilhelmina, Braunschweig 17.-20.3.1993, hrsg. v. Harmen Thies, Braunschweig 1997 (zitiert als Romanik in Niedersachsen 1997); Luckhardt/Niehoff 1995.
- ____
- 97
- Bauwerk erheblich erweitern können 241, erübrigen eine wiederholte Aufbereitung des Forschungsstandes und der Baugeschichte in einem eigenen Kapitel. Aus diesem Grunde sind die Positionen der Forschung hinsichtlich der Bauchronologie, der Grundriß- und Gewölbekonstruktion sowie zu den formalen Beziehungen zwischen Königslutter und der Hirsauer Reformarchitektur jeweils im Zusammenhang vorgestellt.
- In all diesen Studien fand bislang der von bauhistorischen und stilistischen Denkkategorien abweichende Ansatz kaum Berücksichtigung, Königslutter auch als Quelle lotharischer Herrschaftskonzeption zu sehen und in seiner Funktion als architektonisches Herrschaftssymbol und als kaiserliche Stellungnahme zu den politischen und kirchenpolitischen Ereignissen des frühen 12. Jahrhunderts angemessen zu würdigen. Den ersten Schritt in diese Richtung unternahm jüngst Ingo Pagel (1998) 242, der in Königslutter erstmals eine „kaiserliche Alternative“ zur ottonischen und salischen Repräsentationsarchitektur sehen konnte. Er erkennt die in Königslutter zusammenwirkenden kaiserlichen und reformmonastischen Gestaltelemente und würdigt die Grablege als „architektonische Absichtserklärung“ im politischen Konzept Kaiser Lothars. Pagel nimmt in seiner Dissertation wesentliche Argumentationen vorweg, die dieses Kapitel ursprünglich bestimmen sollten. So bleiben die folgenden Ansätze bewußt fragmentarisch und sind als Ergänzung zu den Pagelschen Thesen gedacht.
- Königslutter und Hirsau: Bemerkungen zum Grundriß der Ostteile
- Als Lothar III. 1137 im ersten Langhausjoch in Königslutter beigesetzt wurde, waren die Ostteile der Abteikirche bereits vollendet 243. Querhaus und anschließendes Sanktuarium gehören damit einer Bauphase an, die noch zu Lebzeiten und damit vermutlich unter maßgeblichem Einfluß des
- ____
- 241 Mit Ausnahme einer Publikation, die umfangreiche denkmalpflegerische Untersuchungen der Wandmalereien des 19. Jahrhunderts dokumentiert: Der Kaiserdom in Königslutter. Ein Kulturdenkmal auf dem Prüfstand, hrsg. v. Institut für Denkmalpflege Hannover u. a., Hannover 1996.
- 242 I. Pagel, Von imperialer Musterarchitektur zu territorialherrscherlichem Selbstbewußtsein. Kirchenbaukunst im Zeichen des Herrschaftswandels im norddeutschen Raum zwischen 1100 und 1300, Hildesheim 1998, dort insbesondere das Kapitel: Königslutter - Eine kaiserliche Alternative S. 145-178.
- 243 Die Forschungskontroverse hinsichtlich einer von Osten (Dehio/Bezold 1892, Eichwede 1904, Joachim 1935, Hölscher 1965) oder Westen (Meier 1896, Kluckhohn 1938/39) beginnenden Bauchronologie konnte durch vielfältige Stilvergleiche der Bauplastik und nicht zuletzt durch die Einordnung Königslutters in das architektonische Werk des italienischen Baumeisters Nikolaus durch Gädeke 1988 zugunsten einer Frühdatierung der Ostteile entschieden werden.
- ____
- 98
- Kaisers entstanden sind. Der Kaiser hatte gemeinsam mit Richenza erst zwei Jahre zuvor - Anfang August 1135 - die Grundsteinlegung vollzogen und konnte Königslutter bis zum Aufbruch zur zweiten Italienreise im September 1136, von der er nicht mehr lebend zurückkehrte, nur noch einmal besuchen: Für den Juli 1136 bestätigen die Quellen einen erneuten Aufenthalt des Kaiserpaares in Königslutter, was jedoch auf ein reges Interesse Lothars an der kaiserlichen Baustelle schließen läßt 244. Die den Ostteilen folgenden Bauabschnitte von Langhaus und Westbau sind erst nach 1150 und damit wahrscheinlich nicht mehr nach kaiserlichem Plan entstanden, weshalb sie im Folgenden ausgespart bleiben 245.
- Bereits die Gründungsumstände von Königslutter ließen Lothar als strengen Gregorianer und Anhänger der benediktinischen Kirchenreform erkennen. Ganz im Sinne der Reform des klösterlichen Lebens löste er ein seit 1110 in Königslutter ansässiges Kanonissenstift auf, dessen Stiftsdamen angeblich einem sittenlosen Lebenswandel verfallen waren 246. Er schickte sie in die strenge Zucht des benachbarten Klosters Drübeck und siedelte an ihrer Stelle Benediktiner aus dem Reformkloster Berge bei Magdeburg an 247. Diese reformorientierte Haltung der Kaisers bei der Einrichtung seines Dynastenklosters schlug sich auch in der Architektur nieder. Als Vorbilder für Raumanordnung und Baudekor der Ostteile dienten nicht die rheinischen Kaiserdome seiner salischen Amtsvorgänger, sondern die durch Cluny II und die süddeutschen Reformzentren verbreiteten Chorlösungen. Zwar werden diese mittlerweile zum geläufigen Formenkanon sächsisch-thüringischer Klostergründungen gezählt 248, doch geht ihre Bedeutung in Königslutter über einen funktionalen oder regionaltypisch-aktuellen Einfluß hinaus. Zu den in sächsischen Reformklöstern verbreiteten und in der Architektur von Königslutter aufgenommenen Gestaltungsprinzipien zählen:
- ____
- 244 Vgl. Reg. Imp. Loth. Nr. 489, 490.
- 245 Zur Baugeschichte nach 1150 und zum Problem der Einheitlichkeit von Ostbau und Langhaus (nach Gosebruch 1980) vgl. zuletzt mit Angabe des älteren Forschungsstandes B. Klein, Die Abteikirche von Königslutter, in: Luckhardt/Niehoff 1995, Bd. 2, S. 105-119 und Pagel 1998, S. 169-178.
- 246 Zum Urteil über die disziplinlosen Nonnen in Königslutter vgl. U. Andermann, Die unsittlichen und disziplinlosen Kanonissen. Ein Topos und seine Hintergründe, aufgezeigt an Beispielen sächsischer Frauenstifte (11.-13. Jh.)‚ in: Westfälische Zeitschrift 146, 1996, S. 39-63, ebd. S. 47.
- 247 U. Römer-Johannsen, Königslutter, in: Germania Benedictina 6, 1979, S. 273.
- 248 Zu kritischen Gegenstimmen, die in den reformspezifischen Bautraditionen der Hirsauer und anderer Orden eher formales Allgemeingut der romanischen Architektursprache sehen, vgl. zusammenfassend Berger 1995, S. 5-11.
- ____
- 99
- das dreischiffige Sanktuarium mit zum Chorquadrat durch eine Arkadenstellung geöffneten Chorseitenschiffen
- die flankierenden Querhausapsiden
- der Verzicht auf eine Krypta
- die Verwendung dekorativer Elemente wie besonders der Schachbrettfriese an Kämpfer- und Arkadengesimsen
- die gezielte Verwendung Hirsauer Kapitellformen im Chor
- der um die Portale geführte Sockel am Außenbau
- Analogien zu staffelchorartigen Ostanlagen mit dreiteiligen Sanktuarien, wie sie etwa die Hirsauischen Reformklöster Bosau, Paulinzella, Breitenau (Abb. 85)
- und Gengenbach ausbilden, sind in der Forschung wiederholt angemerkt und treffend interpretiert worden 249, doch können diese Vergleiche durch die Chorformen von St. Peter in Erfurt und St Godehard in Hildesheim ergänzt werden. Nicht nur wegen einiger Übereinstimmungen der äußeren Wanddekorationen, die den mehrfach gestuften Sockel, die vorgezogenen Dienstpostamente oder den Verlauf der Dienste an den Apsiden betreffen, „die [dort] in die Scheitel des Bogenfrieses statt an dessen Kämpfer [stoßen]“ 250, sondern auch wegen ihrer räumlichen Durchbildung, müssen die Ostteile dieser Kirchen in die Reihe der Königslutter-Vergleiche aufgenommen werden.
- Das Erfurter Peterskloster, kurz nach 1088 der Hirsauer Reform angeschlossen und als östliches Verwaltungszentrum der Mainzer Diözese unter dem Einfluß der Mainzer Erzbischöfe stehend, wurde mit der Grundsteinlegung 1103 unter Abt Burchard als dreischiffige, apsidial schließende Choranlage begonnen. Allerdings ist diese Raumanordnung nur durch Grabungen nachzuweisen. Bereits nach einer Bauplanänderung in der ersten Hälfte des 12. Jahrhunderts wurde die ursprüngliche Variante zugunsten eines gerade schließenden Chorquadrates mit Nebenschiffen aufgegeben (Abb. 45) 251.
- In dieser Anlage flankierten doppeljochige
- ____
- 249 Mit zahlreichen Abbildungen zuletzt Klein in Luckhardt/Niehoff 1995 (wie Anm. 245) und Pagel 1998, S. 154-158, der die Bedeutung Paulinzellas als geistig-religiöses Zentrum der Hirsauer in Sachsen und als wichtigen Pfeiler des ostsächsischen Adels im Kampf gegen das Königtum der Salier herausstellt. Mit Nachdruck hingegen spricht sich Berger 1997 S. 722-740 gegen einen Einfluß Hirsauer Bautraditionen auf Königslutter aus.
- 250 Klein in Luckhardt/Niehoff 1995 (wie Anm. 245), S. 109.
- 251 Vermutlich unter dem Hirsauer Abt Werner ab 1127. Vgl. Berger 1997, s. 372-415, der in der Hauptsache die Grabungsberichte von K. Becker, Ausgrabungen in der ehemaligen Peterskirche zu Erfurt, in: Die Denkmalpflege 22, 1920, S. 91-92 und ders. in: Inventar Sachsen 1929, S. 529-586 zusammenträgt.
- ____
- 100
- Chorseitenschiffe das Chorquadrat, und das Querhaus besaß die in der sächsisch-thüringischen Baukunst nur für Bosau, Paulinzella und Königslutter überlieferten kleinen Nebenapsiden. Überdies war in der ersten Bauplanung die zwischen Chorquadrat und Seitenschiffen vermittelnde Arkadenstellung als mauerartiger, breiter Pfeiler ausgebildet.
- In erster Linie resultierten die formalen Übereinstimmungen zwischen Erfurt und Königslutter aus den regionalen Baugewohnheiten, doch belegen die Quellen auch besondere politische Verbindungen Lothars zur thüringisch-mainzischen Reformmetropole Erfurt. Auch wenn Lothar selbst nur ein einziges Mal, noch während seiner Herzogenzeit 1115, in Erfurt war 252, hatte er für eine der wichtigsten Positionen am Hofe, den ersten Kanzleileiter, einen Erfurter Propst gewählt. Dieser, Embricho, stand einer der vornehmsten Kirchen der Mainzer Diözese, dem Marienstift in Erfurt, vor und nahm in der lotharischen Hofkapelle auch eine Mittlerposition zwischen dem Mainzer Erzstuhl und dem sächsischen Herzogtum ein. Von Lothar 1127 zum Bischof von Würzburg erhoben, wurde er als Stütze im Kampf gegen die Staufer ein wichtiger Parteigänger Lothars III. 253.
- Nun kann die personelle Begünstigung Embrichos durch den Kaiser nicht allein ausschlaggebend für mögliche architektonische Wechselwirkungen zwischen St. Peter in Erfurt und Königslutter gewesen sein. Die Petersberger Bauformen allerdings präsentierten die speziell von Hirsau geprägten Bautraditionen in Thüringen am reinsten und deutlichsten 254, so daß man in Königslutter sicherlich auch den Blick zur Architektur dieses bedeutenden Reform- und Bischofskloster richtete. Zumindest sollte dem Erfurter Peterskloster hinsichtlich einer Vorbildfunktion für die Königslutterer Chorlösung die gleiche Beachtung beigemessen sein, wie der in diesem Zusammenhang häufig genannten Klosterkirche in Paulinzella. Denn Berührungspunkte zwischen Lothar und den Mainzer Bischöfen, die sich häufig in ihrer Reformmetropole Erfurt aufhielten 255, gab es auf politischer Ebene reichlich, so daß Einflüsse des in Reformangelegenheiten richtungsweisenden thüringischen Klosters auf die Architektur von Königslutter nicht auszuschließen sind.
- Daß persönliche Beziehungen oder die Zugehörigkeit zu bestimmten Personenkreisen Einfluß auf die Wahl spezieller Bauformen haben könnten, zeigt, wenn auch als Negativbeispiel, die Chorlösung von
- ____
- 252 Vgl. Reg. Imp.Loth. Nr. 43.
- 253 Petke 1985, S. 17-19 und Crone 1982, S. 144.
- 254 Vgl. R. Berger, Die Peterskirche auf dem Petersberg zu Erfurt, Phil. Diss. Bonn 1994, S. 300.
- 255 Petke 1985, S. 18.
- ____
- 101
- St. Godehard in Hildesheim (Abb. 46).
- Die dort in Verlängerung der Chorseitenschiffe als tonnengewölbter Umgangschor um die Apsis gelegten Raumglieder haben in ihrer aufwendigen und einzigartigen Ausbildung zunächst wenig mit der Königslutterer Dreiapsidenanlage gemein. Doch entfernt man gedanklich den Chorumgang mit seinen Radialkapellen und ergänzt eine Apsis als Abschluß der gewölbten zweijochigen Chorseitenschiffe, ergäbe sich eine Anlage, die dem Königslutterer Sanktuarium und auch den Petersberger Ostteilen sehr ähnlich wäre. In allen drei Beispielen wird dann ein dreiteiliges Presbyterium mit doppelten Arkadenstellungen zwischen Sanktuarium und den Chorseitenschiffen von kleinen Querhausapsiden flankiert. Es ist bezeichnend, daß gerade die Hildesheimer Godehard-Kirche Bischof Bernhards (ab 1133 entstanden) dieser Raumanordnung nicht folgt, sondern einen neuen Chortypus in Sachsen verankert und damit in direkte Konkurrenz zu Königslutter tritt 256. Denn zwischen dem Bistum Hildesheim und Lothar herrschte ein gespanntes Verhältnis 257. So hatte Bischof Bernhard nie königliche Urkunden bezeugt und Lothar nie Privilegien für das Bistum ausgestellt oder erneuert. Daß Lothar weder die Bemühungen der Hildesheimer Bischöfe um die Heiligsprechung des großen Reformbischofs Godehard (1022-38) unterstützte noch den Feierlichkeiten zu dessen Kanonisation 1132 beiwohnte, deutet Marie-Luise Crone als klare politische Stellungnahme des Königs gegen das Bistum Hildesheim 258. Geht man mit Crone von einem regelrechten Wettstreit zwischen König und Bischof aus, einer Rivalität, die sich wegen konkurrierender territorialpolitischer Ziele im Bistum Hildesheim anbahnte, dann äußert sich dies m. E. auch im Entwurf und in der Ausführung der Ostteile von St. Godehard: Der Hildesheimer Bischof Bernhard wählte eine Form, die ganz bewußt sächsische Traditionen vernachlässigte und sich an französischen Umgangschören des frühen 12. Jahrhunderts orientierte.
- Auch wenn sich der Vergleich der Choranlagen von Erfurt und Hildesheim mit den Ostteilen von Königslutter auf gestalterische Aspekte beschränkt, die in erster Linie aufgrund regionaler Einflüsse verbreitet wurden, begünstigten auch andere Umstände die Rezeption reformgeprägter Bauformen in Sachsen. Wie Ernst Badstübner im Zusammenhang mit dem Einfluß Hirsauer Baugewohnheiten in Thüringen und im Harzgebiet
- ____
- 256 Zur Baugeschichte vgl. U. Hölscher, Die Godehardikirche zu Hildesheim, in: NdtBeitrKG 2, 1962, S. 9-44 und H. Reuther, St. Godehard in Hildesheim. Hildesheim 1969.
- 257 Crone 1982, S. 195.
- 258 Ebd S. 198, dagegen Petke 1985, S. 233-234.
- ____
- 102
- festhielt, sei bei der Verbreitung bestimmter Chorformen „ein junggorzischer [reformerischer] Personenkreis beteiligt gewesen, dessen politische Ziele gregorianisch und nachweislich gegen den kaisertreuen Episkopat gerichtet waren (...)“ 259. Dieser Ansicht folgend, orientierten sich vielleicht auch in Sachsen gregorianische Personenkreise, zu denen auch Lothar III. mit Königslutter gehörte, an den gestalterischen Vorbildern der Reformarchitektur, wie beispielsweise am Erfurter Peterskloster. Damit wurden reformarchitektonische Bauformen als politisches Sprachrohr genutzt und waren offenbar Ausdrucksmittel des von Lothar unterstützten und selbst auch den Kaiser unterstützenden reformorientierten Reichsadels. Denn auch im Umkehrschluß wurde am Beispiel St. Godeshards in Hildesheim deutlich, daß politische Differenzen auch eine bewußte Abkehr von bestimmten Architekturprägungen provozieren konnten.
- Bemerkungen zur Arkadenstellung im Sanktuarium
- Während die Chorlösungen vergleichbarer Reformklöster die offene räumliche Verbindung zwischen Chorquadrat und Chorseitenschiffen entweder durch schlichte Säulenstellungen (Cluny II, Paulinzella, St. Godehard in Hildesheim) oder ungegliederte Wandpfeiler (Prüfening, Breitenau, Bosau, Erfurt) erzielen, sind in Königslutter eben diese beiden gestalterischen Spielarten vereint. Den breiten und sehr massiv wirkenden Wandpfeilern, die noch die einst zum Chor hin geschlossenen eigenständigen Chorseitenkapellen andeuten, sind schwere Vollsäulen mit korinthisierenden Kapitellen vorgelagert (Abb. 55, 56).
- Gerade diese Pfeiler-Säulenkombination mit den korinthisierenden Kapitellen bestimmt den gestalterischen Charakter der gesamten Choranlage und gehört in seiner tektonischen Durchbildung zu einer der reichsten und aufwendigsten Ausprägungen im gesamten Kirchenraum. Da sich in dieser schmuckvollen Überhöhung des liturgisch wichtigsten Raumteils zugleich die repräsentative Idee des lotharischen Königtums zeigt, wird diesem Aufbau besondere Beachtung geschenkt. Hierbei ist besonders auf die Bedeutungsebene hinzuweisen, hinter der m. E. mehr steckt als der Erfindungsreichtum eines Baumeisters, der mit der Pfeiler-Säulenstellung eine repräsentative Abweichung vom Chortypus reformorientierter Kirchenbauten beabsichtigte 260.
- ____
- 259 Badstübner 1980‚S. 129.
- 260 Detailreiche Beschreibungen und die Herleitung der formalen Wurzeln der korinthisierenden Kapitelle im Chorbereich sind von verschiedenen Autoren wiederholt unternommen worden und sollen hier nicht im Vordergrund stehen. Vgl. Kluckhohn 1938/39, S. 543-544; E.-M. Bothe, Die Bauornamentik, in: Gosebruch/Grote 1980, S. 64-70; Gädeke 1988, S. 135-150 und S. 209-225.
- ____
- 103
- Daß die Rezeption antiker Kapitellformen und die Verwendung antiker Spolien in Kaiserbauten seit Karl dem Großen allen deutschen Kaisern, vor allem denen, die eine neue Dynastie zu begründen hatten, der Legitimation ihres Herrschertums dienten, darf als bekannt vorausgesetzt werden 261. Die antiken Vorbilder mehr oder weniger getreu nachbildend oder als echte Spolien importiert, war die Verwendung korinthisierender Kapitelle in den Herrscherbauten der Karolinger, Ottonen und Salier keine Seltenheit. Die Marmorsäulen mit korinthischen Kapitellen in Aachen (nur als Nachbildungen erhalten) stehen ebenso für eine bewußte und programmatische Antikenrezeption wie die Kapitelle in den Mauerkapellen und an den Säulenbaldachinen der Querarme in Speyer und die Spolien im Magdeburger Dom 262.
- Die Verbindung von Antikenzitat und Herrschaftslegitimation ist in Königslutter also weder einzigartig noch innovativ, gewinnt aber vor dem Hintergrund der kirchenpolitischen Situation im Reich nach dem Investiturstreit aktuelle Bedeutung. Diese Argumentation wird durch die Betrachtung der imposanten Pfeiler-Säulenstellung mit dem symbolstarken Antikenzitat gerade im Sanktuarium gestärkt. Ihre Positionierung im liturgisch bedeutendsten Bezirk des Kirchenraums war äußerst effektvoll, denn nirgends konnte die progregorianische Gesinnung des Kaisers besser transportiert werden als im Sanktuarium. Das Motiv des mauerdicken Pfeilers mit vorgestellter Vollsäule, gekrönt von einem korinthisierenden Kapitell, ist das beherrschende Element der sonst auf reformbenediktinische Bescheidenheit ausgelegten Choranlage. In seiner Konstruktion könnte es römisch-antiker Triumphbogenarchitekturen entlehnt sein und schafft damit ein imperiales Gegengewicht zur hirsauisch geprägten Architektur der Ostteile. Insbesondere die Kapitelle stehen für diesen Kontrast, denn die Kantensäulen am Gewände zur Hauptapsis tragen hirsauische Kapitellformen.
- In dieser Mischung aus reformbenediktinischer Zurückhaltung und imperial belegter Formensprache fand auf darstellerischer Ebene ein Dialog statt, den der Politiker und Diplomat Lothar auch auf realpolitischem
- ____
- 261 Bandmann 1951, S. 145. Zuletzt widmet sich ein verschiedene Beiträge sammelnder Tagungsband diesem Thema ausführlich: J. Poeschke (Hg.)‚ Antike Spolien in der Architektur des Mittelalters und der Renaissance, München 1996.
- 262 Vor allem aber belegt ein 1926 bei Grabungen im Magdeburger Dom gefundenes antikes Kapitell den Herrschaftsanspruch der Ottonen als rechtmäßige Erben des römischen Kaisertums. Zu dem Fund vgl. C. Meckseper, Zu den antiken Spolien in Magdeburg, in: Romanik in Niedersachsen 1997, S. 51-68.
- ____
- 104
- Terrain führen mußte: Einerseits strenger Gregorianer, der der Kirchenreform nahestand und die päpstliche Universalgewalt großenteils anerkannte, sah sich Lothar auch als Vertreter eines traditionellen und in seiner Kontinuität ungebrochenen Kaisertums. Als moderner Geist und keineswegs gregorianische Marionette schuf Lothar sowohl politisch als auch durch die Symbolik in seiner Baukunst, zumindest was die Königslutterer Choranlage betrifft, eine ausgewogene Kombination aus gregorianischem und kaiserlichem Anspruchsdenken. Dabei konnte er sich gleichzeitig von der monumental übersteigerten Darstellungsweise der Salierdynastie in Speyer distanzieren, ohne aber gänzlich darauf zu verzichten, die von Hirsau ausgehende architektonische Sachlichkeit durch Wölbung, ein aufwendiges Apsisprogramm und prachtvollen Kapitelldekor eindrucksvoll zu monumentalisieren.
- Bemerkungen zu den Ecksäulen
- Schon Thomas Gädeke hat darauf verwiesen, daß in Königslutter dem in die Wandpfeilersegmente der östlichen Chorecken eingelassenen Dienstpaar, im Hinblick auf die hierarchische Staffelung des Vorlagenapparates zur Apsis - dem im Presbyterium ranghöchsten Raumteil - hin, eine besondere Bedeutung zukommt (Abb. 52).
- Mit seiner imposanten Deutung, das östliche Dienstpaar als „kleines, feierliches Gewände“ 263 bezeichnend, hat er den gestalterischen Kern dieses Vorlagensystems zwar erkannt, doch blieb die für die sächsische Architektur des 12. Jahrhunderts motivbildende Wirkung der Königslutterer Ecksäulen ungewürdigt. Zuvor lieferte Heinz Meyer-Bruck (1952) eine nahezu lückenlose Auflistung aller sächsischen Ecksäulenmotive 264. Dabei unterschied er zwei grundlegende Qualitäten der Ecksäule: Die dekorative, als Auflösung des Pfeilerkerns entweder durch Eckrundstäbe (ohne Kapitell und Basis) oder Ecksäulen (mit Kapitell und Basis) und die konstruktive, die sich beim beginnenden Gewölbebau als Dienstsystem herausbildet. Die beiden Varianten, ihre vielfältigen Ausprägungen und ihre ebenso zahlreichen baustruktiven Verwendungen nehmen - so Meyer-Bruck ihren Anfang in den Ostteilen von Königslutter. Doch bereits vor 1135 konnten noch fast vollplastische Varianten von Ecksäulen im doppelstufigen Gewande der Süpplingenburger Nebenapsiden nachgewiesen werden, womit aber die Initialfunktion lotharischer Baukunst für das Ecksäulenmotiv nicht geschmälert wird.
- ____
- 263 Gädeke 1988, S. 212
- 264 Meyer-Bruck 1952. S. 82-98.
- ____
- 105
- Nun hat Meyer-Bruck ebenfalls herausgestellt, daß dieses Motiv nicht ohne dekorative Vorformen in die Innenraumgliederung eingeführt wurde und nennt dafür frühe Beispiele des 11. Jahrhunderts (die Krypten von Essen, Vreden/Westfalen und Köln-Deutz), die bereits quadratische Pfeiler mit eingelagerten Eckrundstäben zeigen 265. Als weitere Motivquelle aus dem sächsischen Gebiet wäre die ottonische Krypta des Merseburger Doms zu ergänzen, deren Stützen als Vierkantpfeiler ausgebildet sind und bereits die Auflösung der glatten Pfeilerflächen ankündigen (Abb. 61).
- Außerdem sei in diesem Zusammenhang auf die gemalten Ecksäulen im Corveyer Westbau hingewiesen, die den Wunsch nach struktureller Auflockerung massiver Pfeilerkanten schon in karolingischer Zeit bezeugen 266. Gerade in Corvey sind die gemalten Ecksäulen nur im obersten Geschoß nachgewiesen, in einem Raumteil also, in dem sich vermutlich die Herrscherloge befand (Abb. 62).
- Analog zu den Kantensäulen im Königslutterer Sanktuarium war also schon in Corvey die Kantensäule mit einer imperialen Konnotation belegt. Ohne die Genese der Ecksäulen erneut fortsetzen zu wollen 267, muß auf ihre Übernahme in zahlreichen Bauwerken der sächsischen Romanik hingewiesen werden. Besonders in Gründungen lotharischer Parteigänger, die in der Nachfolge Königslutters standen, wurde die Ecksäule als Gewände-‚ Pfeiler-, Apsiden- und Portalschmuck rezipiert. Damit kann das Motiv der Ecksäule, vorgebildet in Süpplingenburg und Königslutter, als ein wichtiges Merkmal lotharischer Baukunst angesehen werden. Zu dieser These trägt unterstützend die Tatsache bei, daß dieses gestalterische Thema, über viele Zwischenstufen hinweg, gerade im Braunschweiger Dom, der Grablege des Lotharenkels Heinrichs des Löwen, zur gestalterischen Vollendung gelangt [vgl. Kap.V.1.].
Königslutter - Ein Beispiel von Reformkunst? - Der Blick auf die formalen und historischen Zusammenhänge hat gezeigt, wie im Hauskloster Kaiser Lothars III. die Verbindung von monastischer
- ____
- 265 Ebd. S. 83.
- 266 Dies haben die Untersuchungen von Hilde Claussen ergeben, die im Emporengeschoß des Corveyer Westwerks die frühmittelalterliche Ausmalung teilweise freigelegt hat und dabei gemalte Ecksäulen an den Pfeilerkanten nachweisen konnte. Vgl. H. Claussen, Vorzeichnungen und Fragmente karolingischer Stuckfiguren. Neue Funde im Corveyer Westwerk, in: Stuck des frühen und hohen Mittelalters 1996, S. 61-71.
- 267 Zuletzt äußern sich Möhle 1995, S. 65-69 und Pagel 1998, S. 216-218 im Zusammenhang mit St. Blasius in Braunschweig zum Gestaltungsprinzip der Kantensäule.
- ____
- 106
- Reformarchitektur und antikisierenden Bau- und Schmuckformen mit imperialen Bedeutungen zu einer besonderen Prägung von Reformkunst in Deutschland gefunden hat. Darüber hinaus stellt sich nun die Frage, ob damit das Thema Reformkunst in Königslutter erschöpft ist, oder ob darüberhinaus auch künstlerische Leitmotive der römischen Reformer aufgegriffen wurden.
- Welches aber sind nun die Gestaltkonzeptionen der römischen Gregorianer, mit denen sie ihrem Sieg über das Kaisertum und ihrem Anteil an der imitatio imperii künstlerisch Ausdruck verliehen? Wie Hélène Toubert (1990) ‚in ihren ikonographischen Studien zu römischen Reformkunstwerken zeigte, wurde die Wiederentdeckung der frühchristlichen Kunst das künstlerische Parallelphänomen zum reformpolitischen Ideal der konstantinischen Ursprungskirche 268. Dabei wurden in erster Linie die Inhalte der propagandistischen Bildthemen, wie beispielsweise in den Beratungsräumen Calixus II. und in der Unterkirche von S. Clemente, als triumphale Darstellungen des Reformpapsttums herausgestellt, das dort seinen Sieg über die Kaisermacht feierte 269. Aber auch im dekorativen Aufbau und in den formalen Strukturen der Kunstwerke steckten Anzeichen des neuen päpstlichen Anspruchdenkens. So konnte Toubert nicht nur für Einzelmotive Vorbilder in römischen Mosaiken der Spätantike finden, sondern auch für den gestalterischen Gesamtkontext einzelner Reformkunstwerke eine Anlehnung an die monumentalen Dekorationsprogramme der frühchristlichen Kunst feststellen: Die Wandmalereien in S. Maria in Cosmedin und S. Clemente (frühes 12. Jh.) orientierten sich hinsichtlich des gestalterischen Aufbaus wahrscheinlich an den komplexen Bildprogrammen frühchristlicher römischer Basiliken wie beispielsweise von S. Maria Maggiore. Dort waren monumentale Bildthemen in zwei oder mehreren Registern übereinander an Triumphbögen und an Apsiden- und Langhauswänden
- ____
- 268 H. Toubert, Un an dirigé. Réforme grégorienne et Iconographie, Paris 1990, S. 239-255, 268-310 spannt erstmals einen Bogen zwischen einzelnen Reformkunstwerken und erhebt die gezielte Übernahme frühchristlichen Formenrepertoires (vegetabile Elemente, gemalte Flechtbänder, Girlanden, Gemmen und Oktogonmotive) zu einem übergreifenden künstlerischen Konzept der Gregorianischen Reformer. Ihre Beweisführung konzentriert sich v. a. auf die Ableitung des Apsismosaiks von S. Clemente (1128), als einem Hauptwerk der römischen Reformkunst, aus den Mosaiken des Lateransbaptisteriums.
- 269 Walter 1970/71; E. Kitzinger, The gregorian reform und the visual arts: a problem of method, in: Transactions of the royal historical society 5. ser. 22, London 1972 dort besprochen auch das Apsismosaik von S. Maria in Trastevere (1130-43), vgl. auch Pagel 1998. S. 151-153.
- ____
- 107
- zu sehen und wurden durch aufwendige gemalte oder stukkierte Architekturrahmungen rhythmisiert (Abb. 63a‚b) 270.
- Überträgt man diese Erkenntnisse Touberts nun auf das deutsche Reformkunstbeispiel Königslutter und verbindet sie mit dem Wissen, daß Lothar III. den gregorianischen Reformern nahe gestanden hat, so müssen auch im Kloster des Kaisers Gestaltungskonzepte gesucht werden, die Antikenkopien im Sinne der römischen Reformer verwirklichten und eindeutig nach Rom weisen. Zu diesem Zweck wird noch einmal der Blick auf die Königslutterer Apsisdekoration mit ihrem berühmten Jagdfries gerichtet. Zwar haben bereits zahlreiche Autoren stilistische und ikonographische Deutungen des Jagdfrieses vorgenommen, doch werden im Folgenden einige formale Aspekte gerade auch im Hinblick auf die Antikenrezeption 271 aufgegriffen.
- Die Tektonik der Hauptapsis lebt zunächst von der Etagenbildung (Abb. 65).
- Während die untere Zone, wehrhaft geschlossen durch Pilaster gegliedert, vom skulptierten Bogenfries bestimmt wird, ist die Wand im oberen Bereich in drei große Fenster aufgelöst. Entsprechend den Pilastern im Untergeschoß teilen Halbrundstäbe die Fensterzonen in drei gleich große Wandfelder. Zwischen Pilastern und Halbsäulen sind jeweils Rundbogenfriese gespannt, in deren Bögen sich die Szenen des Jagdfrieses befinden. Darüber sitzt ein abschließendes Gesims aus Akanthusblättern und Perlstab (Abb. 66).
- Trotz dieser beiden scharf getrennten und unterschiedlich akzentuierten Zonen muß das vor die Wand gesetzte Gliederungsgerüst als Einheit verstanden werden. Dieser Eindruck eines vorgeblendeten architektonischen Rahmenwerks vor die skulptierte, d. h. erzählerische Ebene der Wand (Jagdfries), entsteht durch die Verkröpfung der Pilasterpiedestale im Apsissockel, die erst in der Verkröpfung der Halbsäulenkapitelle im Abschlußgesims des Obergeschosses ihre Entsprechung finden (Abb. 50, 51).
- Sucht man nun nach gestalterischen Vorbildern für das dekorative Bildprogramm der Königslutterer Hauptapsis, können m. E. Parallelen zum Aufbau der Innenraumdekorationen römischer Basiliken gezogen werden. Die optische Differenzierung zweier Register, das untere ein dekoratives Bildprogramm tragend, das obere in großen Fenstern geöffnet und durch
- ____
- 270 Toubert 1990, S. 223f und 246.
- 271 Vgl. T. Weigel, Das Rätsel des Königslutterer Jagdfrieses. Zur Rolle von Tieren in der Bilderwelt des Mittelalters, in: Der Braunschweiger Burglöwe 1985, S. 155-187, der in der Ikonographie des Jagdfrieses eine versteckte Signatur des Baumeisters Nikolaus erkennen will und zuletzt Pagel 1998, S. 158-163, der im Thema der Jagd eine Metapher höfisch-adliger Kultur sieht, die als Skulptur am Bau zum Mittel der Rangerhöhung diente.
- ____
- 108
- rhythmisierende Architekturrahmungen gegliedert, erinnert an die Wand- und Obergadenzonen stadtrömischer basilikaler Langhäuser, wie beispielsweise in S. Maria Maggiore (Abb. 63a,b) oder an das rekonstruierte Dekorationsprogramm des frühchristlichen Zentralbaus von S. Costanza (Abb. 64).
- Bei beiden Beispielen waren die Wände durch Stuckrahmen aus kannelierten Lisenen, die in S. Maria Maggiore zusätzlich gedrehte Säulchen flankierten, plastisch vollkommen durchgliedert. Die in zwei Etagen geteilte Dekoration rahmte im Obergaden die großen Fenster der Langhausbelichtung und darunter einen alttestamentarischen Erzählzyklus 272. Wie in Königslutter teilte sich die Wand gewissermaßen in eine funktionale Zone der Beleuchtung und in einen erzählerischen Bereich, die geschlossene Wandfläche, die als Prospekt für szenische Darstellungen diente. Hinzu kommt, daß das architektonische Rahmenwerk von S. Maria Maggiore die Wandgliederung antiker Vorbilder nachbildete 273 und damit gleichzeitig die Rezeption antiker Schmuckformen als ein wichtiges künstlerisches Ausdrucksmittel der römischen Reformkunst zur Anwendung brachte.
- Neben diesen formalen Ähnlichkeiten zu Königslutter, wo die Etagen ebenfalls von einem architektonischen Rahmenwerk gebildet werden, die wie in den römischen Basiliken im oberen Geschoß die Fenster und im unteren Geschoß die Bildthemen umschließt, werden in Königslutter auch spätantike Dekorformen aufgegriffen: Der Akanthusfries am mittleren und oberen Gesims der Hauptapsis, der gleichzeitig die beiden Etagen abschließt, ist „vollkommen reinrassig antikischer Art“ 274 und entspricht mit dem Perlstab über den Akanthusblättern dem Motivschatz antiker Gliederungssysteme. Allerdings wurden die antiken Vorbilder mit leichten künstlerischen Abwandlungen übernommen, wie beispielsweise die Marmorfriesreste des Apollo-Tempels (20 v. Chr.), des Erotenfrieses vom Tempel der Venus Genetrix (2. Jh. n. Chr.) oder ein Gebälkstück der Basilika Nova zeigen (Abb. 67, 68).
- Dort ist das Grundschema des Akanthusfrieses mit Perlstab zwar vorgebildet, in Königslutter wird dieses allerdings umgekehrt, so daß die Blätterreihe nach oben hin vom Perlstab
- ____
- 272 Zur Rekonstruktion des spätantiken Zustands nach einer Zeichnung des 16. Jahrhunderts (Cod. Vat. Lat. 11257 Fol. 185v) vgl. R. Krautheimer, Some Drawings of Early Christian Basilikas in Rome, in: Art Bulletin 31, 1949, S. 211-215 und ders.‚ S. Corbett, W. Frankl, Corpus basilicarum christianarum Romae, Bd. 3, Città del Vaticano 1967.
- 273 B. Brenk, Die frühchristlichen Mosaiken in S. Maria Maggiore in Rom, Wiesbaden 1975, S. 3 zieht zum Vergleich die Wandgliederung des Thermensaals der Caracalla-Thermen heran.
- 274 Gosebruch/Gädeke 1985, S. 10.
- ____
- 109
- abgeschlossen wird. Es ist vielleicht eine zu vereinfachte Sichtweise, in Königslutter gleich von einer Übertragung römischer Innenraumdekorationen auf den Außenbereich einer sächsischen Apsis zu sprechen, jedoch sind konzeptuelle Parallelen nicht gänzlich auszuschließen. Überdies drängen sich noch weitere Bezüge zwischen der Königslutterer Apsisdekoration und Beispielen römisch-antiker Kunst auf, die für einen Direktimport antiker Vorbilder sprechen.
- Die einzelnen figürlichen Szenen des Jagdfrieses im unteren Register der Apsis werden von einem profilierten Bogenfries überfangen. In den so entstandenen Bildfeldern umschließt der Fries neben den Figuren eines springenden Hirsches, eines Ebers, eines Hundes, eines Jägers und mehrerer Hasen abwechselnd auch Rosetten, und seine Bogenfüße ruhen nicht auf einfachen Konsolen, sondern werden von maskenhaften Tierköpfen gehalten (Abb. 49).
- Sucht man in der antiken Kunst nach gestalterischen Parallelen für diese Mischung dekorativer Einzelmotive, insbesondere den alternierenden Tiermasken und Rosetten, drängt sich ein direkter Vergleich zur römisch-antiken Grabkunst auf. In der Gattung der Sarkophage gibt es als besondere Spielart die sogenannten Girlandensarkophage, die sich durch ein spezielles Dekorationsprinzip auszeichnen: An den Seiten der längsrechteckigen Stein- oder Marmorsarkophage ziehen sich Girlanden entlang, die oft von Eroten, Putten, Stierköpfen oder maskenhaften Fabelwesen getragen werden. In die dabei entstehenden Flächen in den Bögen der Girlandenwellen sind Rosetten, Masken, Löwenköpfe oder Tierkampfgruppen einbeschrieben. In der archäologischen Terminologie wird diese Friesform als Bukranion- (griech. Stierkopf) oder eben Girlandenfries bezeichnet, eine aus der griechisch-römischen Kunst stammenden Dekorvariante, die in der Wand- und Vasenmalerei vor allem aber in der antiken Grabkunst verbreitet ist (Abb. 70-72c) 275.
|
|
- Betrachtet man nun das Gesamtschema des Königslutterer Jagdfrieses, stellt man fest, daß hier genau diese Einzelmotive dominieren: Die im Bogenfries vorgegebene Welle wird von Stierköpfen und Masken getragen, die wie direkte Kopien der römischen Beispiele wirken. Das Innere der Bogenfelder ist abwechselnd mit den Tierkampfszenen des Jagdfrieses und den antiken Formen entlehnten Rosetten gefüllt. Unabhängig von den dekorativen Analogien sind auf den antiken Sarkophagwänden sogar Jagd- oder Tierkampfszenen zu sehen, die nicht ausschließlich in mythologischen Zusammenhängen auftauchen, sondern auch als zunächst beliebig gewählt erscheinende Motive die sepulkralen Szenarien
- ____
- 275 G. Koch, Sarkophage der römischen Kaiserzeit, Darmstadt 1993, S. 113-115.
- ____
- 110
- begleiten (Abb. 70, 71).
- Die im Wechsel mit Rosetten und Stierköpfen gestalteten Sarkophagflächen bilden teilweise sogar Architekturgliederungen römischer Gebälke nach (Abb. 74), wie ein Beispiel aus Modena zeigt (Abb. 73).
- Dort wird die im Außendekor antiker Baukunst weit verbreitete Friesform der Metopen und Triglyphen aufgegriffen, und in den Metopenflächen sind Rosetten und Stierköpfe abgebildet.
- Desgleichen können für die den Königslutterer Jagdfries rechts und links begrenzenden Hornbläser (Abb. 77)
- konkrete Parallelen auf antiken Sarkophagen gefunden werden: Die Szenen der Bildflächen auf antiken Grabdenkmälern werden oft von Randfiguren eingefaßt, bei denen es sich häufig um Widder, Masken oder Putten, vorwiegend aber um Hirten mit geschulterten Widdern handelt. Diese Figuren umspielen die Bildfelder wie sich gegenüberstehende Zwillingspaare (Abb. 78, 79).
- Sie gleichen damit in auffallender Weise den Königslutterer Randfiguren in den äußersten Ecken der Hauptapsis. Es handelt sich bei diesen Figuren, die beide in ein Horn blasen, vermutlich ebenfalls um Hirten oder Jäger. Gerade diese Analogie zwischen den Randfiguren antiker Sarkophage und dem die Szene umspannenden Randfigurenpaar in Königslutter zeigt m. E. die gestalterische Quelle für den Jagdfries in Königslutter am deutlichsten. Denn über die motivische Ebene hinaus könnten gerade die Königslutterer Jäger, die durch ihr Attribut (Horn) als Hornbläser (cornicen) ausgezeichnet sind, als Anspielung auf die antiken Hirtenpaare mit geschulterten Widdern, die gleichsam als Hornträger (cornuta) das gehörnte Wild tragen, gedeutet werden 276.
- Die vorgeschlagenen Beispiele für eine Herleitung einzelner Apsismotive, angefangen bei der Erzählstruktur römischer Dekorationsprogramme über die antiken Gesimsformen, die Vergleiche zu den
- ____
- 276 Der symbolische Hintergrund der antiken Hirtenpaare liegt im Bereich der Bukolik (von griech. bukolos Rinderhirt), einer antiken Textgattung, die Motive der volkstümlichen Hirtendichtung verarbeitet. Die wichtigste literarische Vorlage, Vergils Bucolica, thematisiert eine stark idealisierte Hirtenwelt, eine Paradieslandschaft, die als Vision einer friedvollen Gesellschaft gedeutet wird, in der spielende Hunde, gejagte Eber, Hirsche oder Jäger mit Beute dargestellt sind. Vergils Friedenslandschaft wird - bereits von antiken Rezensenten - auch als symbolische Anspielung auf die realen politischen und gesellschaftlichen Verhältnisse gedeutet. Vor diesem Hintergrund ist es auch möglich, den Einzelszenen des Königslutterer Jagdfrieses, Elemente der bukolischen Dichtung zugrunde zu legen, die hier, ebenfalls auf politische Realitäten bezogen, allegorischen Charakter besitzen. Zur Erforschung der antiken literarischen Bukolik vgl. N. Himmelmann, Über Hirten-Genre in der antiken Kunst, Opladen 1980. Ein Blick auf die antike bukolische Dichtung würde neben den für die Interpretation der Tierdarstellungen in der christlichen Bildwelt so bedeutenden Tierallegorien des Physiologos sicherlich weitere Deutungsquellen eröffnen.
- ____
- 111
- Bukranion- oder Girlandensarkophagen und den Metopen-Triglyphenfriesen bis hin zu den Hornbläsern genügen, um von einer Reflexion römisch-antiken Formenrepertoires in Königslutter auszugehen. In der offensichtlichen Übernahme antiker Sarkophagthemen ist sogar eine Anspielung auf die Gattung der antiken Grabkunst zu sehen, die in der zur Kaisergrablege bestimmten Abteikirche würdig und sinnfällig reflektiert wurde.
- So ist aus der als Frage formulierten Kapitelüberschrift, ob Königslutter auch ein Bauwerk der römisch-gregorianischen Reformkunst war, eine positive Gewißheit geworden. Denn für Lothar III. war die Italien- und Antikenrezeption in Königslutter nicht nur ein Ausdruck kaiserlicher Herrschaftslegitimation, gewissermaßen als imitatio imperii, sondern repräsentierte im selben Maße auch das Motto der Gregorianer. Deren reformerisches Ziel war es, in der imitatio apostoli das Ideal der apostolischen Ursprungskirche wiederzubeleben, wozu sie im Bereich der Kunst die Antikenrezeption instrumentalisierten. Für Lothar implizierte der Rückgriff auf künstlerische Ausdrucksformen der römischen Reformer gleichzeitig die Indienstnahme päpstlicher Propagandamittel seitens der weltlichen Macht, womit er indirekt den Kampf um die Autorität im Reich weiterführen konnte. Nicht anders hatte der Papst gehandelt, der mit Hilfe imperialer Herrschaftszeichen im Gegenzug seinen Primatanspruch zu verteidigen versuchte: Denn als Innozenz II. im September 1143 starb, wurde er in der Lateranskirche im Porphyrsarg Kaiser Hadrians bestattet; ein Beispiel päpstlicher imitatio imperii par excellence. Zuvor hatte sich schon Gregor VII. in einem antiken Sarkophag in der Kathedrale von Salerno bestatten lassen, der mit Girlanden-Bukranienmotiven besetzt war (Abb. 75).
- Daß die Wahl eines Girlandensarkophags für ein Papstbegräbnis kein Einzelfall war, belegt auch die Bestattung Papst Hadrians IV. (†1159), der ebenfalls einen antiken Marmorsarkophag mit Girlanden, Rosetten und Stierkopfimitationen wählte (Abb. 76) 277.
- Die Häufung dieser eher kleinen Gruppe antiker Girlandensarkophage in der Praxis mittelalterlicher Papstbegräbnisse könnte darauf hindeuten, daß mit ihnen eine für das Papsttum bedeutende Ikonographie verbunden war. Nicht anders sind die gestalterischen Analogien zwischen den Dekormotiven der Kaisergrablege und den von den Reformpäpsten favorisierten Bukranien- und Girlandensarkophagen zu verstehen, die darüberhinaus einmal mehr belegen, daß die
- ____
- 277 Die auffälligen Parallelen in der Wahl antiker Sarkophage bei mittelalterlichen Papstbestattungen beobachtete bereits I. Herklotz, „Sepulcra“ e „Monumenta“ del medioevo. Studi sull`arte sepocrale in Italia, Rom 1985, S. 100, 118.
- ____
- 112
- künstlerische Quelle der Königslutterer Apsisdekoration wohl tatsächlich in der antiken Grabkunst liegt.
- Aus kirchenpolitischer Sicht wird an diesem Beispiel deutlich, daß sich die Wogen im Kampf zwischen regnum und sacerdotium mit dem Wormser Konkordat (1122) offensichtlich noch nicht geglättet hatten. Denn sowohl die Königslutterer Apsisdekoration als auch die römischen Papstbestattungen zeigen, daß sich weder Papst noch Kaiser auf Symbole und Ausdrucksmittel ihrer eigenen Institutionen zurückzogen, sondern weiterhin gezielt die Herrschaftszeichen des jeweils Anderen benutzten und für sich in Anspruch nahmen.
- III.2.1.4. Chemnitz, St. Marien
- Bei der Gründung des Benediktinerklosters St. Marien in Chemnitz trat Lothar III. ein weiteres Mal als reformbewußter Expansions- und Personalpolitiker in Erscheinung. Sein Interesse galt diesmal dem im 12. Jahrhundert noch äußerst schwach besiedelten Gebiet des östlichen Sachsens zwischen Saale und Elbe. Dort fehlten nicht nur strukturierte Markt- und Handelszentren, auch die Kirchenlandschaft war, mit Ausnahme vereinzelter Pfarr- und Klostergründungen, die sich um die Bischofssitze Meißen, Naumburg und Merseburg entlang der Elbe gruppierten, noch nicht annähernd so weit ausgebaut, wie man es für diese Zeit aus dem westlichen Sachsen und dem Harzgebiet kennt. Dies lag wohl daran, daß der sächsisch-thüringische Adel seine Machtposition im Osten des Reiches verteidigt und ausgebaut hatte, ein von kaiserlicher Seite organisierter Landesausbau aber seit den Ottonenherrschern nicht mehr unternommen worden war. Dieses Versäumnis sollte Lothar III. aufholen 278. Sein Motto dabei könnte Siedlung und Reform gelautet haben, wobei nicht nur die Ansiedlung reformtreuer Mönche zwecks Christianisierung der östlichen Reichsteile im Vordergrund stand, sondern ihn gleichermaßen wirtschaftliche und expansionspolitische Interessen drängten.
- Von der Gründung des Chemnitzer Benediktinerklosters St. Marien durch Kaiser Lothar III. und dessen Frau Richenza berichten zwei mittelalterliche Quellen. Ein 1143 von Konrad III. ausgestelltes Fernhandelsprivileg
- ____
- 278 Nach W. Schlesinger, Kirchengeschichte Sachsens im Mittelalter, Bd. 2, Köln 1962, S. 5 war Lothar „der erste deutsche König seit langer Zeit, der eine tatkräftige, weitschauende deutsche Ostpolitik wiederum geführt hat; man darf sagen, daß er an das Werk Ottos des Großen anknüpfte und der deutschen Ostsiedlung des 12. Jahrhunderts die Bahn wies.“.
- ____
- 113
- für Chemnitz dokumentiert Lothar als Gründer ebenso wie ein Chemnitzer Nekrolog des 13. Jahrhunderts, der Lothar als „fundator Kemnizcensis ecclesie“ bezeugt und Richenza als Mitgründerin fundatrix aufführt 279. Zum Gründungsjahr fehlt in beiden Quellen jeder konkrete Hinweis. Erst die historischen Forschungen von Hubert Ermisch (1878) und Walter Schlesinger (1952) konnten glaubhaft machen, daß Lothar anläßlich eines Hoftages in Merseburg 1136 die Stiftung des Reichsklosters Chemnitz veranlaßt haben könnte 280. Ermisch ist auch der Nachweis zu danken, daß der Chemnitzer Gründungskonvent aus dem benachbarten Reformkloster Pegau, dem Familienkloster der Grafen von Groitzsch, stammte, mit dem ihn später eine enge Gebetsverbrüderung verband 281.
- Bereits Wiprecht von Groitzsch (†1124), ein enger Weggefährte Lothars noch aus Zeiten der sächsischen Adelsopposition, hatte durch die Ansiedlung deutscher, holländischer und slawischer Bauern die wirtschaftliche Entwicklung im östlichen Sachsen gefördert und über seine Grafschaftsgrenzen hinaus eine Politik im Sinne des Reichsinteresses betrieben 282. Mit der Stiftung von Kloster Pegau 1091 hatte er nicht nur eine Familiengrablege für sein Geschlecht geschaffen, sondern auch eine feste Bastion Hirsauer Reformkräfte in Ostsachsen eingerichtet. Von Pegau, dessen Konvent aus dem Reformkloster Schwarzach am Main kam, wurden Klöster gegründet (Lausick, Schkölen) oder reformiert (Goseck, Vitzenburg/Reinsdorf, Oldisleben), und nicht zufällig rekrutierte Lothar III. von dort die Konventualen seiner Chemnitzer Reichsstiftung. Die Vogtei über Chemnitz übertrug der Kaiser seinem Günstling und engen Verwandten Konrad von Wettin, der nach dem Tod des letzten Groitzscher Grafen Heinrich (†1135) die Markgrafschaft der Niederlausitz erhalten
- ____
- 279 Zum Privileg Konrads III.: DKo. III. (Diplome Konrads III.) 86 von 1143 (Februar): „locus Kameniz dicitur divino servitio sit mancipatus et a venerabili inperatore Lothario Romane ecclesie cum confiniis suit sit delegatus“, s. a. die Kommentare zu Reg. Imp. Loth. Nr. 481 und 483; zum Chemnitzer Nekrolog: codex diplomaticus Saxoniae regiae 2. Teil Bd. 6; Urkundenbuch der Stadt Chemnitz und ihrer Klöster, Hg. Hubert Ermisch 1879, 2.6, S. 481 und 2.4, S. 477: „II. non. (dec.) obiit pie memorie Lottarius imperator, fundator Kemnizcensis ecclesie“; der Eintrag für Richenza lautet: „IIII. Id. (iun.) obiit Richza imperatrix fundatrix Kemnizcensis ecclesie“.
- 280 H. Ermisch, Die Geschichte des Benediktinerklosters zu Chemnitz bis zum Ende des 14. Jahrhunderts, in: Archiv für Sächsische Geschichte N.F. 4 1878, S. 254-278, ebd S. 259; W. Schlesinger, Die Anfänge der Stadt Chemnitz und anderer mitteldeutscher Städte, Weimar 1952, S. 85; Crone 1982, S. 240.
- 281 Ermisch 1878, S. 262.
- 282 Schlesinger 1962, Bd. 2, S. 16 und S. 185.
- ____
- 114
- hatte 283. Ein geschickter Schachzug von Lothar, die beiden in diesem Gebiet mächtigsten Adelsfamilien gleichberechtigt in den ostsächsischen Standort Chemnitz und damit in die Ostpolitik miteinzubeziehen!
- Neben den Groitzscher und Wettiner Grafen fand Lothar auch bei den Naumburger Bischöfen Unterstützung. Dietrich I. (1112-1123) und Udo I. (1125-1148) von Naumburg waren kaisertreue und reformfreudige Klostergründer (Gründung von Riesa 1119 und Bosau 1118, Umwandlung von St. Georg in Zeitz vor 1148), die das gute Verhältnis zu Lothar auch für ihre eigene Diözese nicht ungenutzt ließen. So ging die Ansiedlung sächsischer Kaufleute in Altenburg (Diözese Naumburg) durch Lothar III. um 1135 wohl auf die Initiative Udos I. zurück 284. Bei der Realisierung seiner Expansionspolitik im östlichen Sachsen standen Lothar, anders als bei der Gründung von Segeberg, kaisertreue Vertreter der sächsischen Adelsschicht und Bistumsgrößen der Naumburger Kirche zur Seite, die aktiv an der Reichspolitik beteiligt waren und das kaiserliche Programm von Siedlung und Reform unterstützten und mittrugen.
- Zur Forschung
- Die Beobachtungen Richard Steches in den Bau- und Kunstdenkmälern des Königreiches Sachsen (1886) eröffnen die Forschungen zur Chemnitzer Klosterkirche seitens der Kunstgeschichte 285. Da bis zu diesem Zeitpunkt keine Grabungen, sondern ausschließlich Restaurierungen im Sinne von Rückbildungen in den gotischen Zustand vorgenommen wurden, fußten Steches Bemerkungen größtenteils auf Vermutungen. Er rekonstruiert St. Marien in Chemnitz als dreijochige Pfeilerbasilika mit Querhaus, Hauptapsis und Nebenapsiden und erkennt, daß Teile des romanischen Gründungsbaus - der heutige Chorraum, die südliche Nebenapsis (im 19. Jh. noch außen ummantelt 286)‚ der südliche Querschiffarm sowie die östlichen Vierungspfeiler mit vorgelagerten Halbsäulen - im gotischen Neubau des 15. Jahrhunderts erhalten blieben. Gegen die Meinung Steches gehört auch
- ____
- 283 Konrad von Wettin war als Vetter Richenzas von Lothar schon 1123 besonders begünstigt worden, als dieser ihm - gegen den Willen Heinrichs V. - die Mark Meißen übertragen hatte. 1136 erhielt er die Mark Lausitz, die 1131 Albrecht dem Bären aberkannt worden war. Vgl. Petke 1985, S. 225 und Crone 1982, S. 241.
- 284 Schlesinger 1962, Bd. 2, S. 406. Vgl. auch Kap. III.2.2.3.
- 285 R. Steche, Chemnitz, in: Inventar Sachsen 1886, S. 10-26.
- 286 Im Zuge einer beispielhaften Restaurierung in den Jahren 1991/92 wurde die Südkapelle teilweise rekonstruiert und von außen freigelegt.
- ____
- 115
- die nördliche Nebenapsis im Kern zum mittelalterlichen Baubestand 287. Eine 1928 entstandene Monographie von Arthur Sandner zur Chemnitzer Klosterkirche lieferte zu Fragen der Baufolge und zur Gestalt des romanischen Gründungsbaus zwar keine neuen Erkenntnisse, doch stellt der Autor die Anlage der zum Chor hin geschlossenen Nebenapsiden erstmals in den Kontext der von Cluny und Frankreich ausgehenden Reformarchitektur 288.
- Erst im Zusammenhang mit Grabungen und stratigraphischen Untersuchungen der 1980er Jahre hat die Forschung neue Erkenntnisse zum romanischen Gründungsbau gewinnen können: Da im Bereich des heutigen Langhauses keine romanischen Fundamentspuren, sondern als älteste Bauteile Pfeilersockel aus dem 13. Jahrhundert gefunden wurden, geht man davon aus, daß das romanische Langhaus wohl nie zur Ausführung kam und einzig das Chorquadrat und die beiden Chorseitenkapellen dem Bau des 12. Jahrhlmderts angehören 289. Zusätzlich rekonstruierte Heinrich Magirius 1972 auch den Verlauf des nördlichen Querhausarmes sowie den der südlichen Langhausflanke, der sich mit dem Grundriß der gotischen Baugestalt deckt 290. Hinsichtlich einer Datierung der verbliebenen Reste des romanischen Gründungsbaus wollten sich weder Volkmar Geupel, Friedrich und Helga Möbius noch Magirius auf die Zeit Kaiser Lothars III., also um 1136 festlegen. Vielmehr datieren sie den Gründungsbau anhand der 1987/88 freigelegten Basen der östlichen Vierungspfeiler und der in den Seitenkapellen erhaltenen Stuckreste in die Mitte oder gar in die zweite
- ____
- 287 Steche, in: Inventar Sachsen 1886, S. 11-12 schreibt die nördliche Nebenapsis einer Rekonstruktion von 1867 zu.
- 288 A. Sandner, Das Benediktinerkloster und seine Kirche in Chemnitz, Dresden 1928, S. 24.
- 289 Wiederholte Grabungen der Bodendenkmalpflege Sachsens zwischen 1976 und 1984 konnten durch Analysen des teilweise aus Pegau stammenden Siedlungsniederschlags (Keramik) aus dem Bereich der Chemnitzer Ostteile und des Kapitelsaales den bereits von historischer Seite vermuteten regen Austausch der Chemnitzer und Pegauer Konvente bestätigen. Vgl. V. Geupel und W. Stoye, Ausgrabungen in der Schloßkirche zu Karl-Marx-Stadt, in: Ausgrabungen und Funde 31, 1986, 40-43; V. Geupel, Weitere Ausgrabungen im ehemaligen Benediktiner-Kloster in Chemnitz/Karl-Marx-Stadt, in: Ausgrabungen und Funde 32, 1987, S. 34-36; zuletzt zusammenfassend ders., Archäologische Forschungen im ehemaligen Benediktiner-Kloster in Chemnitz/Karl-Marx-Stadt, in: Ausgrabungen und Funde, Bh. 19, 1990, S. 83-97.
- 290 H. Magirius, Die Baugestalt der romanischen Marienkirche (in Freiberg), in: Der Freiberger Dom, Weimar 1972, S. 171 Abb. 85. Im Hinblick auf eine von Heinrich Magirius angekündigte Monographie zur Chemnitzer Klosterkirche gab das Landesamt für Denkmalpflege Sachsen keine Auskünfte über jüngere, bisher unpublizierte Grabungsbefunde zum romanischen Fundamentbestand von St. Marien.
- ____
- 116
- Hälfte des 12. Jahrhunderts 291, obwohl die in den analysierten Kulturschichten nachgewiesenen Keramikfunde das Bestehen einer Klosteranlage schon vor der Mitte des 12. Jahrhunderts bestätigten 292.
- Insbesondere dieser relativen Spätdatierung soll im folgenden Kapitel durch eine vergleichende kunsthistorische Analyse entgegnet werden. Da aber die Quellen zur Frühzeit des Klosters weder eine Stiftungsurkunde noch Nachrichten zum Gründungsbau oder zu Bautätigkeiten des frühen 12. Jahrhunderts überliefern, können letztlich nur stilkritische Beobachtungen zur Stuckornamentik und ein Vergleich der Chemnitzer Choranlage mit verwandten Beispielen der zeitlichen Präzisierung dienen und entscheiden, ob es sich bei den baulichen Resten des 12. Jahrhunderts um Teile des kaiserlichen Gründungsbaus handelt.
- Baubeschreibung, Bauanalyse und Datierung der Ostteile
- Den Eindruck der ehemaligen Chemnitzer Klosterkirche bestimmen heute das in spätgotischer Zeit als dreischiffige Hallenkirche erbaute Langhaus und die bereits Ende des 13. Jahrhunderts errichtete rippengewölbte Chorpartie (Abb. 81, 82).
- Nur schwer ist der ursprüngliche romanische Zustand der Chemnitzer Ostteile zu erfassen, denn die geschlossenen Seitenwände des Chorquadrates wie auch die Außenwände der Chorseitenkapellen sind geschlemmt und durch verblendete Fensternischen gegliedert. Nur die Basen der östlichen Vierungspfeiler mit vorgelagerten Halbsäulen (Abb. 86),
- deren Kapitelle und Kämpfer aber in die zweite Hälfte des 12. Jahrhunderts datiert werden 293, und die in den tonnengewölbten Chorseitenkapellen erhaltenen Flechtbandfriese (Abb. 88-90c)
- bezeugen die mittelalterliche Bauphase. So kann beispielsweise das stark ausgeprägte attische Profil der Chemnitzer Vierungspfeilerbasen in ungefähre zeitliche Nähe zu den Königslutterer Vierungspfeilem gerückt werden: Wie bei den dortigen Basisprofilen erhebt sich auch in Chemnitz über einem Sockel mit abgesetzter Plinthe ein breit lagernder, kräftig proportionierter Wulst, darüber eine von zwei Stufen eingefaßte Kehle und ein schmalerer und fast spitz zulaufender oberer Wulst (Abb. 86, 87).
- Die Chemnitzer Vorlagenbasen
- ____
- 291 Geupel 1990, S. 87 und Möbius 1970, S. 197 datieren die Chemnitzer Ostteile in die Mitte des 12. Jahrhunderts, für deren Entstehung H. Magirius, Kurzberichte der Denkmalpflege, Chemnitz-Schloßkirche, in: Denkmalpflege in Sachsen 1997, S. 451 und Dehio Sachsen II (Neubearbeitung) 1998, S. 110 sogar die zweite Hälfte des 12. Jahrhunderts vorschlagen.
- 292 Geupel 1990, S. 93.
- 293 Die Kapitelle sind in einer Umzeichnung im Inventar Sachsen 1886, S. 13 publiziert.
- ____
- 117
- hingegen werden von Ecknasen umschlossen, die allerdings nicht wie in Königslutter als applizierte Eckornamente den unteren Teil der attischen Basis umfangen, sondern wie bei Beispielen der Zeit um 1150 häufig zu beobachten ist, gleichsam aus dem Sockel wachsen (vgl. Königslutter, Kreuzgang Südflügel, Hecklingen). Gerade diese, erst um die Mitte des 12. Jahrhunderts gebräuchliche, markante Baseneckdekoration rückt die Chemnitzer Ostteile aus der unmittelbaren zeitlichen Nähe der Königslutterer Chorpartie. Allerdings könnte der in Abb. 86
- sichtbare Steinschnitt zwischen Pfeiler und vorgelagerter Halbsäule aus der nachträglichen Anarbeitung der für die Wölbung vorgesehenen Stützen resultieren. In diesem Falle gehörten die Basisprofile der Vierungspfeiler einer früheren Bauphase an als die zu einem späteren Zeitpunkt als Auflager einer Chorwölbung hinzugefügten Halbsäulenvorlagen. Eine solche Planänderung würde dann nicht mehr in die Regierungsjahre Lothars III. fallen, sondern müßte im Hinblick auf den kaiserlichen Stifter als Reminiszenz an dessen nach 1135 wohl landesweit bekannten Gewölbebau in Königslutter gedeutet werden.
- Am Außenbau sind nur geringe Reste vom romanischen Baubestand erhalten. Während die nördliche Nebenapsis im 19. Jahrhundert eine rechteckige Ummantelung erhielt, konnte die Apsis der südlichen Nebenkapelle vor wenigen Jahren freigelegt werden (Abb. 83) 294.
- Diese erhebt sich über einem breiten Sockel mit attischem Profil, und das glatte Quadermauerwerk der Apsisrundung wird oben von einem profilierten Rundbogenfries abgeschlossen. Der Sockel zieht sich bis zum Ansatz des gotischen Chorpolygons die Chorflanken entlang und endet dort, wo einst die Hauptapsis ansetzte. Wie schon in Königslutter und Süpplingenburg umläuft das attische Sockelprofil den Außenbau ohne Unterbrechung, und die verwendeten Sockeleckstücke, die schon vorab als Kantenlösungen gefertigt wurden, belegen auch in Chemnitz das gezielte Vorhaben, den Sockel möglichst ohne Unterbrechung um den Bau herumzuführen.
- Die Chorlösung
- Auf den ersten Blick können zahlreiche vergleichbare Chorlösungen, vom Typus einer dreischiffigen, apsidial schließenden Choranlage mit abgetrennten Seitenkapellen der ersten Hälfte des 12. Jahrhunderts, besonders aus dem benachbarten Harzgebiet, angeführt werden. Parallelen zu separaten Chorseitenkapellen zeigen die Ostteile von Gröningen (erste
- ____
- 294 Zur Rekonstruktion von 1991/92 vgl. Magirius 1997, S. 12 und ders.‚ Kurzberichte der Denkmalpflege, Chemnitz-Schloßkirche, in: Denkmalpflege in Sachsen 1997, S. 452-453.
- ____
- 118
- Hälfte 12. Jh) und Hamersleben (um 1130), allerdings mit dem Unterschied, daß hier die Hauptapsiden mit den Apsiden der beigeordneten Seitenkapellen in einer Flucht liegen (Abb. 85a,c).
- In Chemnitz hingegen ragt die Hauptapsis nach Osten weit über die Flucht der Chorseitenkapellen hinaus 295. Desgleichen können die dreiteiligen Choranlagen mit flankierenden und teilweise zweijochigen Nebenchören, wie sie die Klosterkirchen von Ilsenburg (ergraben), Paulinzella, Bosau (ergraben), Ballenstedt und Königslutter (Abb. 85k,b,i,j,g) ausbilden, für Chemnitz nur bedingt vorbildhaft gelten.
|
|
- Wie in Chemnitz sind hier die Chorflankenräume als Weiterführung der Seitenschiffe über das Querhaus hinaus zu verstehen, doch sind Hauptchor und Chorseitenschiffe durch eine Arkadenstellung zu einer räumlichen Einheit verbunden und nicht wie in Chemnitz zum Sanktuarium hin geschlossen. Die Chemnitzer Lösung hingegen schafft durch die Akzentuierung der Hauptapsis und bei gleichzeitigem Rücksprung der Chorseitenkapellen eine Hierarchisierung innerhalb der Ostteile. Für gewöhnlich werden die geschlossenen Chorseitenkapellen als eine dem Vorbild von Cluny II und Hirsau folgende Bauform gedeutet, die den liturgischen Forderungen der Reformarchitektur nach Vermehrung der Altarstellen im Kirchenraum entspricht 296. Doch ist gerade in den letzten Jahren dieser einseitigen Herleitung mit dem Hinweis auf gesamtdeutsche Bautraditionen widersprochen worden 297.
- Es läßt sich nun festhalten, daß der Typus dreiteiliger Choranlagen gerade in den Bauten der sächsischen Reformarchitektur weit verbreitet ist, aber keineswegs eine homogene Gruppe darstellt. Vielmehr müssen drei Ausprägungen unterschieden werden, wobei die ersten beiden zu den am häufigsten auftretenden Typen gehören:
-
Doppelarkade zwischen Haupt- und Nebenchören (wie Königslutter, Prüfening, Breitenau)
-
eigenständige Seitenkapellen mit fluchtenden Apsiden (wie Gröningen, Paulinzella, Hamersleben)
-
eigenständige Seitenkapellen mit vorspringender Hauptapsis (wie Chemnitz)
- ____
- 295 Der Verlauf der Hauptapsis ist nicht als erhaltener Bestand überliefert. Jedoch gehören die Chorseitenwände, die allein schon bis über den Scheitel der Querhausapsiden erhalten sind, zum romanischen Baukörper und bilden die Grundlage für die Rekonstruktion der Hauptapsis.
- 296 Stellvertretend H. Kunze, Die kirchliche Reformbewegung des 12. Jahrhunderts im Gebiet der mittleren Elbe und ihr Einfluß auf die Baukunst, in: Sachsen und Anhalt 1, 1925, S. 388-476 und Badstübner 1980, S. 122-134.
- 297 Untermann 1984, S. 277; Berger 1994, S. 261-276 und zuletzt A. Schöne, Die romanische Kirche des ehemaligen Augustinerchorherrenstiftes in Hamersleben, Köln 1999, S. 242-252, 289.
- ____
- 119
- Die für Chemnitz zu rekonstruierende Variante, der Geschlossenheit der Seitenkapellen zum Chorquadrat bei gleichzeitiger räumlicher Akzentuierung durch den Vorsprung der Hauptapsis gegenüber den Querhausapsiden, stellt einen Einzelfall in der sächsischen Architekturlandschaft der ersten Hälfte des 12. Jahrhunderts dar. Allein die Chorlösung von Halberstadt, Liebfrauen (ab 1136) kann zum Vergleich mit den Chemnitzer Ostteilen herangezogen werden (Abb. 85d):
- Die Hauptapsis ragt zwar, wie die für Chemnitz zu rekonstruierende romanische Apsis, um einiges über den Scheitel der kleineren zum Chor hin geschlossenen Seitenkapellen und ihre Apsiden hinaus. Doch begleiten die tonnengewölbten Seitenkapellen das Chorquadrat in voller Länge bis zum Ansatz der Apsiden auf gleicher Höhe und haben insgesamt wenig mit den kleinen Anräumen des Chemnitzer Sanktuariums gemeinsam. Die Analogie liegt einzig in der Dominanz der mittleren Ostapsis gegenüber den Nebenapsiden, die in Halberstadt wohl eher formalen Bedürfnissen folgt, als daß hier eine bewußte Rangordnung der Ostteile beabsichtigt wäre.
- In der Stufung der zueinander abgeschlossenen Chemnitzer Ostapsiden kündigt sich vielmehr die staffelförmige Konzeption der apsidenreichen Ostpartien an, wie sie das benachbarte Thalbürgel (ab 1142, Abb. 85)
- „erstmalig in Deutschland ausbildet“ 298 und von dort den Staffelchor der zisterziensischen Baukunst mitprägt 299. Neben den erst um die Mitte des 12. Jahrhunderts häufiger auftretenden Basenformen könnte dies ein Argument für die Datierung der Chemnitzer Chorpartie in die Zeit um 1142 sein. Mit dem Jahr der Stiftung von Chemnitz 1136 und der Chorweihe von Thalbürgel 1150 könnte die Entstehung des Gründungsbaus auf den relativ engen Zeitraum zwischen 1136 und 1142/1150 eingegrenzt werden 300. In diesem Falle ist eine direkte Einflußnahme Lothars, der den Quellen zufolge auch nie in Chemnitz hofhielt, auszuschließen.
- Allerdings spricht die Planung dieser zukunftsweisenden Chorform für eine Bauhütte, die nicht nur lokale Reformtraditionen und regionale Baugewohnheiten aufgriff, sondern ähnlich innovativ und für das sächsische Baugeschehen zeichensetzend wirkte wie die Bauleute in Königslutter.
- ____
- 298 Berger 1997, S. 671.
- 299 Vgl. Georgenthal (1143), Altzella (ab 1162), Altenberg (ab 1133), Michaelstein/Harz (ab 1147).
- 300 Zur Baugeschichte und kunsthistorischen Stellung Thalbürgels vgl. zuletzt Berger 1997, S. 660-685.
- ____
- 120
- In Chemnitz allerdings Königslutterer Einfluß durch wandernde Bautrupps zu vermuten, ist weder anhand von Quellen noch durch hinreichende Detailvergleiche zu belegen. Daß aber ein Stück der Idee von Königslutter, die durch Lothars Weg der Herrschaftslegitimation in Sachsen etablierte Antikenrezeption, auch in der letzten kaiserlichen Stiftung nicht fehlte, zeigen einige Beobachtungen zu den Flechtbandfriesen in den Chemnitzer Seitenkapellen.
- Bauskulptur
- In der südlichen Seitenkapelle sind zwei am Apsisbogen in die Wand eingelassene Rankenfriese aus rötlichem Tuffstein erhalten und in der Nordkapelle drei Friesfragmente an der zum Langhaus hin gerichteten Wand, die ebenfalls mit stilisierten Ranken versehen sind (Abb. 88-90c).
- Charakteristisch für den an der Nordseite der Südkapelle erhaltenen Fries sind drei- und vierblättrige Palmettenfächer, aus deren Blattzungen kreisförmig um die Palmetten gelegte, zweisträhnige Ranken wachsen. Den zweiten Fries in der Südkapelle bestimmt ein Blattrankenornament aus gegenläufig sich ergänzenden Herzformen. Trotz der sehr einfachen Ausarbeitung lassen sich Ähnlichkeiten zu vergleichbaren Rankentypen im sächsischen Umkreis aufzeigen. So handelt es sich bei dem Palmettenfries um die grobe Vereinfachung einer im 12. Jahrhundert häufig angewandten Dekorform, wie sie beispielsweise als Umrandung der Grabplatte der Quedlinburger Äbtissin Beatrix (um 1129) oder am Tympanon des Hamerslebener Südportals (um 1150) vorkommt (Abb. 91, 92b).
- Auch der herzförmige Rankenfries ist in Quedlinburg, diesmal an der Grabplatte der Äbtissin Adelheid I. (um 1129), nachzuweisen und gehört ab der Mitte des 12. Jahrhunderts zu einer in Sachsen verbreiteten Dekorform, wie die Kämpferkapitelle der Jerichower (1150-1200) und der Petersberger (ab 1150) Langhauspfeiler zeigen (Abb. 92a, 93, 166).
- Die Dekorvarianten der anderen Rankenfriese sind in Sachsen verbreitet und werden oft in einem Zuge mit der kerbschnittartigen Ornamentstruktur des Kiliansportals in Bad Lausick, mit der Bauornamentik von St. Ulrich in Sangerhausen (um 1129), den Friesen am nördlichen Nebenchor von St. Servatius in Quedlinburg, (1070-1129) oder den Langhauskapitellen in Kloster Gröningen (um 1100) genannt 301.
- ____
- 301 Vgl. Magirius 1972, S. 158 und ders. 1994, S. 67, der die gestalterischen Quellen für die kerbschnittartige Ornamentstruktur der Chemnitzer Friese in oberrheinisch-elsässischen Traditionen vermutet.
- ____
- 121
- Gleichfalls aufschlußreich und nach den obigen Ausführungen zur Antikenrezeption als Stilmittel der römischen Reformkunst naheliegend, ist ein formaler Vergleich mit spätantiken Ornamentformen. Gerade bei Werken des römischen Kunstgewerbes, besonders auf spätantiken Elfenbeinen, sind mit den Chemnitzer Mustern vergleichbare Palmetten- und Rankenfriese als dekorative Einfassungen geläufig (vgl. Abb. 94, 95).
- Für das Palmettenherz gibt es Beispiele in der spätantiken Kunst: So zeigt die ornamentale Stuckdekoration im oberitalienischen Cividale herzförmige Palmettenfriese, wie sie der Chemnitzer Bauschmuck übernimmt (Abb. 96), und in einem frühchristlichen Grab bei Rom (2. Jh.) ist der Palmettenfries vorgebildet (Abb. 97).
- Auch für einen in der Chemnitzer Nordkapelle als Pfeilerkämpfer versetzten Palmettenfries mit gleichfalls stilisierten gegenläufig angeordneten Blättern (Abb. 90b) sind neben lokalen Vergleichsbeispielen wie den Langhauspfeilern in Ammensleben (Abb. 98) auch spätantike Motivquellen zu nennen: Das äußere Rahmenband eines Schreibtäfelchens in Angers (6. Jh.) zeigt die gleichen Blattranken wie der Chemnitzer Kämpfer (Abb. 99).
- Insgesamt ist über den Qualitätsunterschied zwischen den Chemnitzer Rankenfriesen und den zum Vergleich herausgegriffenen spätantiken Schmuckformen, wie auch den lokalen Beispielen, nicht hinwegzusehen. Dennoch sind die gestalterischen Anregungen durch antike Ornamentformen nicht zu übersehen und bieten auch in Chemnitz Anlaß, in dekorativen Einzelmotiven von bewußter Antikenrezeption zu sprechen.
- Die Beobachtungen zu den Chemnitzer Ostteilen haben eine ungefähre Datierung des Gründungsbaus in die Jahre zwischen 1136 und 1142/50 ergeben, so daß der Einfluß Lothars III. auf die bauliche Entwicklung von St. Marien in Chemnitz im Sinne einer Bauherrenschaft ausgeschlossen werden muß. Jedoch schien man sich in der Lotharstiftung bewußt für die Rezeption antiker Ornamentik entschieden zu haben, vielleicht um an die Baukunst des kaiserlichen Stifters anzuknüpfen.
- III.2.1.5. Ergebnisse
- Bei den Stiftungen Kaiser Lothars III., die in der Zeit zwischen 1120/25 und 1136 entstanden sind, handelt es sich um vier Bauten, die hinsichtlich ihrer Qualität, ihres Gründungsmotivs und ihrer Funktion innerhalb der kaiserlichen Politik und Herrschaftskonzeption nicht unterschiedlicher sein könnten. Während St. Johannes in Süpplingenburg (um 1120/25) mit der Zielgabe eines Familienklosters vom damaligen sächsischen Herzog Lothar errichtet wurde, sind die Kirchen von Bad Segeberg, Königslutter und Chemnitz als kaiserliche Stiftungen mit reichspolitischem Anspruch
- ____
- 122
- gegründet worden. Die Marienkirchen in Bad Segeberg (1134) und Chemnitz (1136) dienten als Grenzbastionen und christliche Missionszentren im Norden und Osten der weithin unbesiedelten Reichsgebiete Holsteins und Ostsachsens und waren gleichzeitig wichtige Markt- und Handelsplätze. Mit Hilfe der dort ansässigen Adelshäuser, den Schauenburgern in Holstein und den Grafen von Groitzsch im östlichen Sachsen, förderte Lothar die Ansiedlung des Reformmönchtums und reformorientierter Klerikergemeinschaften und verbreitete den Gedanken der Kirchenreform in diesen Gebieten. Doch erst mit der Gründung von St. Peter und Paul in Königslutter (1135), als zweitem und weithin bedeutenderen Hauskloster, etablierte sich ein staatlich-repräsentativer Anspruch in der lotharischen Baukunst. Der politische Aufstieg vom sächsischen Herzog zum deutschen König und das Vorhaben, eine neue Dynastie begründen zu wollen, verlangten schließlich ein neues Herrschaftszentrum und einen angemessenen Bestattungsort, dessen Gestalt auch die ideologischen Grundlagen der lotharischen Kaiseridee zur Schau stellen mußte.
- Bei den Einzeluntersuchungen der Lotharstiftungen wurde deutlich, daß die formale Gestaltung, d. h. die architektonischen Entwürfe, in erster Linie im Zeichen der Reformarchitektur standen. Der bewußte Anschluß beispielsweise an Hirsauer und Siegburger Baugewohnheiten zeigte sich in den Choranlagen von Königslutter und Chemnitz und bei den Kapitellformen der Süpplingenburger Krypta. Andere Einzelformen der Lotharstiftungen imitierten weder Reformarchitektur noch Lokaltradition, sondern schufen eigene, neue Ausprägungen. So traten in den Querhausapsiden von Süpplingenburg erstmalig die in das Stufengewände eingestellten Säulen auf, die sich zu den eleganten, dem Mauerwerk verhafteten Ecksäulen des Königslutterer Apsisgewändes entwickelten und von dort zu einem bestimmenden Dekorationsmotiv der sächsischen Architektur des 12. Jahrhunderts wurden. Desweiteren konnte der den Außenbau von Süpplingenburg ohne Unterbrechungen umlaufende und feingliedrig gearbeitete Sockel mit attischem Profil auch an den Außenbauten von Königslutter und Chemnitz beobachtet werden, wenngleich das attische Sockelprofil von Königslutter in seiner schmuckvoll differenzierten Machart in den Lotharstiftungen einmalig ist. Für Chemnitz konnten trotz gering erhaltener Originalsubstanz Antikenbezüge in der Ornamentik festgehalten werden, und eine Planänderung kündigte die Absicht an, eine nachträgliche Wölbung der Ostteile vorzunehmen. Gerade die Wölbung war einer der Aspekte, die dem Diktat der Reformarchitektur, den bescheiden flachgedeckten Kirchenräumen, entgegenstanden und den Anspruch einer kaiserlichen Architektur vermittelten. Dieser gewissermaßen politische Charakter der Lotharstiftungen äußerte sich, so haben die Beobachtungen zu Königslutter und Chemnitz gezeigt, verstärkt im ornamentalen Bauschmuck.
- ____
- 123
- Die Motivvergleiche der Chemnitzer Rankenmuster mit spätantikem und frühmittelalterlichen Formengut, aber vor allem die Antikenzitate in Königslutter, die von antiken Kapitellformen im Sanktuarium bis zur Rezeption von Gliederungssystemen römischer Basiliken und Erzählkuturen antiker Sarkophage am Apsisäußeren reichten, haben die Antikenrezeption als entscheidendes Stilmittel der Baukunst Lothars III. erkennen lassen.
- In diesem Sinn war Königslutter der einzige als Reichsarchitektur zu bezeichnende Bau der Lotharstiftungen, denn die eine Reichsarchitektur bestimmenden Kriterien, ein kaiserlicher Auftraggeber, eine im Bauwerk erkennbare Herrschaftssymbolik und eine dynastiebezogene Funktion, trafen nur auf die sächsische Kaisergrablege zu. Königslutter unterschied sich damit in seiner Bestimmung und Nutzung zunächst nicht von den karolingischen, ottonischen und salischen Herrschaftsbauten in Aachen, Speyer oder Magdeburg, begründete aber allein durch seine Funktion als benediktinische Klosterkirche eine ganz neue und eigene Form imperialer Herrschafts- oder Reichsarchitektur. Ähnlich wie die römischen Gregorianer ihre kirchenpolitischen Ideale mit einer Wiederbelebung und Neugestaltung frühchristlicher Kunst verknüpften, stellte auch Lothar seine kirchenreformerischen Ideale mittels seiner Baukunst zur Schau. Dabei gestaltete er die bekannte Interpretation der Antiken- und Italienrezeption als Rückbezug auf die römischen Cäsaren neu und konnte die damit ebenfalls verbundenen Ambitionen der römisch-gregorianischen Reformer und ihrer Propagandakunst miteinbeziehen.
- Die Stiftungen Kaiser Lothars III. als homogene und gleichwertigen architektonischen Prinzipien folgende Bautengruppe zu bezeichnen, ist angesichts der unterschiedlichen Qualität (Erhaltungszustand), differierender Gründungsmotive und ihrer voneinander abweichenden Funktionen innerhalb der kaiserlichen Herrschaftskonzeption nicht möglich. Dennoch wurden offensichtlich zwei politische Zielsetzungen Lothars, der Gedanke der Kirchenreform und die Darstellung seiner herrschaftslegitimatorischen Grundsätze, durch formale Bezüge zur Reformarchitektur und zur spätantiken Kunst, in Architektur und Baudekor, besonders von Königslutter, manifestiert und dürfen wohl als Leitfäden der Baukunst Lothars III. gelten. Dabei knüpfte man in Königslutter an den Topos vergangener Herrschaftsarchitekturen zwar an, brachte jedoch eine ganz neue Zurückhaltung zum Ausdruck, die sich erstmalig an monastischer Reformarchitektur und nicht an den großen Bischofskirchen maß.
- Betrachtet man die Chronologie der kaiserlichen Architektur, dann fällt auf, daß Lothar als sächsischer Herzog ein Familienkloster initiierte, als deutscher König ab 1125 keine Kirchengründung vornahm und erst
- ____
- 124
- nach der Kaiserkrönung 1133 wieder als Stifter tätig wurde. Die Gründe dafür sind wohl in erster Linie in den politischen Umständen zu suchen. Denn in den Jahren 1125 bis zur Kaiserkrönung hatten die innerdeutschen Konflikte um die staufischen Machtansprüche und ab 1130 die Italienpolitik (päpstliches Schisma) oberste Priorität. Erst nach 1133 war Lothars Autorität soweit gefestigt, daß er nicht mehr nur als Staatsmann, sondern auch als kaiserlicher Bauherr in Sachsen in Erscheinung treten konnte.
- ____
- 125
- III.2.2. Umbauten im kaiserlichen Kontext
- Für die drei im Folgenden vorzustellenden Bauwerke, das westfälische Benediktinerkloster St. Thomas und Nikolaus in Bursfelde, die Goslarer Pfalzkapelle St. Ulrich und die Altenburger St. Bartholomäikirche, ist eine Stiftertätigkeit Lothars III. durch Quellen nicht gesichert. Dennoch vertreten einzelne Forscher die Ansicht, das Kaiserpaar stünde entweder mit der Gründung dieser Bauwerke in Verbindung oder habe Bautätigkeiten, die in der ersten Hälfte des 12. Jahrhunderts vorgenommen wurden, zumindest angeregt. Aus diesem Grunde wird im Folgenden eine eventuelle Beteiligung des Kaiserpaares anhand der betreffenden Bauabschnitte diskutiert, bei denen es sich im Fall von Bursfelde um eine Erweiterung des Gründungsbaus und in Goslar und Altenburg um die Gründungsvorgänge selbst handelt. Um die Vermutung einer kaiserlichen Bauherrenschaft zu bestätigen oder zu entkräften, werden in Ermangelung schriftlicher Nachrichten zum Baugeschehen erneut historische und künstlerische Aspekte miteinander verknüpft.
- III.2.2.1. Bursfelde, St. Thomas und St. Nikolaus
- Im Jahr 1093 wurde das Benediktinerkloster der Hll. Thomas und Nikolaus in Bursfelde von Lothars Schwiegereltern Heinrich von Northeim (†1101) und Gertrud von Braunschweig (†1117) als Hauskloster der Grafen von Northeim gegründet 302. Als Sohn des großen sächsischen Saliergegners Otto von Northeirn, der zwischen 1061 und 1071 auch bayerischer Herzog war, stand Heinrich von Northeim in einer antikaiserlichen und gegenüber der Kirchenreform aufgeschlossenen Familientradition. Bereits bei der Gründung seines Klosters setzte Heinrich reformkirchliche Akzente, als er den Bursfelder Gründungskonvent aus dem nahegelegenen Reformkloster Corvey rekrutierte und den Corveyer Abt Markwart als Gründungsabt einsetzte, der in Corvey als „militanter Gregorianer“ 303 galt. Dennoch blieben die Vogteirechte in den Händen der Northeimer Adelssippe, an
- ____
- 302 Zu den Northeimern vgl. K.-H. Lange, Die Grafen von Northeim (950-1144), Phil. Diss. Kiel 1958; ders., Die Stellung der Grafen von Northeim in der Reichsgeschichte des 11. und frühen 12. Jahrhunderts, in: NiedJbLG 33, 1961, S. 1-107; O. B. Rader, Otto von Northeim Herzog von Bayern (1061-1070), in: Holtz/Huschner 1995, S. 152-162.
- 303 H. H. Kaminsky, Studien zur Reichsabtei Corvey in der Salierzeit, Köln/Graz 1972, S. 161f.
- ____
- 126
- denen auch Lothar durch seine Heirat mit Heinrichs Tochter Richenza beteiligt war 304.
- Unabhängig davon hielt sich das kaiserliche Interesse an Bursfelde zunächst in Grenzen. Mit Ausnahme zweier Diplome aus der Zeit um 1134, in welchen Lothar dem Kloster Güterübertragungen und das Markt- und Münzrecht bestätigte, sind keine kaiserlichen Privilegien für das Kloster oder Aufenthalte Lothars in Bursfelde belegt 305. Erst eine ungewöhnliche Baumaßnahme der ersten Hälfte des 12. Jahrhunderts rückt das Kloster ins Blickfeld der kaiserlichen Familie. Der ab 1093 entstandenen Klosterkirche, heute im dreischiffigen, flachgedeckten Langhaus - der sogenannten Westkirche (Abb. 101) -
- erhalten, wurde vermutlich ab 1130 ein ebenfalls dreischiffiger, ursprünglich apsidial geschlossener Chor angefügt. Querhauslos nimmt dieser langgestreckte, gleichfalls flachgedeckte Chorraum - die heutige Ostkirche (Abb. 102) - die Proportionen der Westkirche auf und führt die Dreischiffigkeit bis in die Apsiden fort (Abb. 100) 306.
- Die innere Raumstruktur der Ostkirche bestimmen hohe schifftrennende Sockelmauern, auf denen gedrungene Arkaturen in einfachem Stützenwechsel ruhen (Abb. 103).
- Die Kapitelle der kurzen, massiven Säulen haben doppelt abgesetzte Schilde und zeigen, ebenso wie das Schachbrettmuster der Kämpferplatten und des Rahmengesimses über den Arkaden, den Einfluß sächsisch-thüringischer Reformklöster (Paulinzella, Hamersleben).
- Nun ist die Kombination von Würfelkapitell und Kämpfer mit Schachbrettmuster keine seltene Dekorform des 12. Jahrhunderts, tritt in Sachsen aber erst nach 1130 vereinzelt auf (Hildesheim, St. Godehard, 1133 und Lippoldsberg, 1150). Auch die Chorsäulen des Königslutterer Sanktuariums und die vorgelagerten Halbsäulen der dortigen Chorseitenschiffe tragen Kämpfer mit Schachbrettmuster, allerdings nicht über Würfelkapitellen, sondern über korinthisierenden Kapitellen (Abb. 58).
- Desgleichen konnte das attische Profil mit doppeltem Leistenabschluß, das an den Bursfelder Chorpfeilern an Basen und Kapitellen eingesetzt wird, am Königslutterer Sockelprofil des Außenbaus, wie auch an den Basen sämtlicher Pfeiler im Innenraum, als besondere Detailform beobachtet
- ____
- 304 Vogt 1959, S. 61-64.
- 305 Reg. Imp. Loth. Nr. 405 und 406.
- 306 Der heute gerade ummantelte Abschluß der Ostkirche stammt aus dem späten 15. Jahrhundert, und die drei in die Mauer eingelassenen Apsiden sind Ergebnis einer Rückbaumaßnahme in den romanischen Zustand. Zur Gründung und Baugeschichte des Klosters Bursfelde vgl. W. Ziegler, Bursfelde, in: Germania Benedictina 6, 1979, S. 80-100; J. Fleckenstein, Die Gründung von Bursfelde und ihr geschichtlicher Ort, Göttingen 1983; H. Schmidt, Zur Baugeschichte des Klosters Bursfelde, in: Perlitt 1996, S. 25-34.
- ____
- 127
- werden. Die Profilbildung der Säulenbasen kann allein kein Hinweis auf die künstlerische Verbindung zwischen Bursfelde und Königslutter sein. Obwohl jedoch die sehr seltene Verbindung aus attischem Profil mit doppeltem Leistenabschluß, die zudem genau die Proportionen der Königslutterer Profile aufweisen (Abb. 21, 103),
- einen Einfluß aus dieser Richtung nicht ausschließt, insbesondere da die Northeimer Grafen zum engsten Familienclan des Süpplingenburgers gehörten. Hinzu kommt, daß die zeitliche Fixierung der Bursfelder Chorerweiterung in die Jahre zwischen 1130 und 1140 die Vorbildwirkung Königslutters unterstreicht 307. Inwieweit diese Baumaßnahmen im Hauskloster der Grafen von Northeim nun direkt mit Lothar III. und Richenza in Verbindung gebracht werden könnten, soll anhand einiger Überlegungen zur Grundrißdisposition von Bursfelde erörtert werden.
- In seiner Gesamtheit greift der Bursfelder Langchor, der mit der älteren Westkirche den Typus der querhauslosen Dreiapsidenanlage bildet, keine speziell sächsisch-thüringische Bautradition auf. Einzig die Arkaden der Trennwände zitieren lokale Formen und erinnern dabei an die Sockelmauern mit Bogenstellungen, die die Vierungen von den Querhausarmen wie beispielsweise in Hamersleben (Abb. 104) abgrenzen.
- Als liturgisch bedingtes, reformarchitektonisches Grundthema ist die Abschrankung zwischen Laien- und Mönchskirche in Bursfelde bis zu den Apsiden durchgehalten und erfährt in der Verlängerung gleichsam eine architektonische und symbolische Steigerung. Symbolhaft gesteigert, weil hier zwei reformgeprägte Chorformen zusammenschmelzen: Zum Einen erinnert Bursfelde mit den hohen schifftrennenden Schranken an die abgeschlossenen Nebenchöre von Paulinzella und Hamersleben, andererseits aber spiegelt sich in den lichten, wiederum raumvereinheitlichenden Arkadenstellungen die Variante der zum Chor hin geöffneten Nebenchöre von Hirsau und Allerheiligen in Schaffhausen und nicht zuletzt von Königslutter wider. Eine vergleichbar langgezogene Choranlage bildet auch das ab 1120 im Zuge der Kirchenreform umgebaute sächsische Benediktinerkloster Huysburg aus, allerdings in Verbindung mit einem ausladenden Querhaus und ohne Chorseitenschiffe (Abb. 105).
- ____
- 307 Trotz fehlender schriftlicher Nachrichten zu Bautätigkeiten im Kloster Bursfelde konnte sich die Forschung auf eine ungefähre Datierung der Chorerweiterung für die Zeit zwischen 1130 und 1150 einigen: H. Schmidt, in: Perlitt 1996, S. 26; G. Weiß in: Dehio Bremen/Niedersachsen (Neubearbeitung 1992), S. 328 und Schütz/Müller 1989, S. 163 datieren den Umbau um 1130-40, während Wulf 1996, S. 68 den Umbau aus nicht näher erläuterten stilkritischen Überlegungen in die Jahre 1140-50 verlegt.
- ____
- 128
- Die direkte Anbindung der dreischiffigen Choranlage an das ältere Langhaus von Bursfelde, läßt eher eine Gruppe querschiffloser, dreischiffiger Basiliken als Vorbild in Betracht kommen, die im süddeutschen Raum im frühen 12. Jahrhundert als Alpenländische Basiliken faßbar sind. Die dreischiffigen, querhauslosen Grundrisse von St. Jakob in Regensburg (ab 1075), den Hirsauer Prioraten Komburg bei Schwäbisch Hall (ab 1090) und Petersberg bei Eisenhofen/Oberbayern (1107 geweiht), sowie von der ebenfalls von Hirsau aus besiedelten Gründung Ottos von Bamberg in Aura/Unterfranken (1108) gehören zu einer von Hirsau ausgehenden Variante süddeutscher Reformarchitektur, die in Sachsen und Thüringen keine Verbreitung fand 308.
- Einziges als Vorbild in Frage kommendes Beispiel dieser Grundrißgestalt in Sachsen ist der rekonstruierte Gründungsbau von St. Ägidien in Braunschweig, bei dem es sich wohl nicht zufällig ebenfalls um eine Stiftung Gertrud von Braunschweigs, der Mitgründerin von Bursfelde, handelt 309. Nach den Untersuchungen Alfred Müllers könnte der erste Kirchenbau der Braunschweiger Ägidienkirche als ein dreischiffiges Langhaus mit querschifflos anschließendem Langchor, dessen Chorraum durch Mauern von den Chornebenräumen getrennt war, errichtet worden sein 310. Wie die Bursfelder Chorerweiterung war die 1115 gegründete Klosterkirche St. Ägidien, schließt man sich der Rekonstruktion Müllers an, in ihrer querschifflosen Dreischiffigkeit eine regionale Besonderheit, die ihre formalen Wurzeln in einigen der genannten süddeutschen Reformbauten fand. Beide Klöster verband nicht nur die gemeinsame Stifterin Gertrud von Braunschweig, sondern sie waren auch durch ihre Konventmitglieder, besonders Abt Heinrich von Bursfelde (um 1093-1117), personell miteinander verknüpft. Dieser war mit der Einrichtung des Braunschweiger Ägidienklosters betraut und soll auch am Fortgang der dortigen Bauarbeiten maßgeblich beteiligt gewesen sein [vgl. Kap. III.2.3.2.] 311.
- ____
- 308 Zum Typus der Alpenländischen Basilika vgl. S. Steinmann-Brodtbeck, Herkunft und Verbreitung des Dreiapsidenchors, in: ZSAK 1, 1939, S. 65-94 und Schütz/Müller 1989, S. 233-237; sämtliche Grundrisse abgebildet bei Binding/Untermann 1985, S. 126-130.
- 309 Ein drittes sächsisches Beispiel, das aber in der Nachfolge von Braunschweig und Bursfelde entstanden sein wird, ist St. Peter und Paul in Ammensleben. Vgl. Kap. IV.1.1.12.
- 310 A. Müller, Untersuchungen zur Baugeschichte von St. Ägidien in Braunschweig, Phil. Diss. (masch.) Braunschweig 1951, S. 11-14; K. Eichwalder in: Dehio Bremen/Niedersachsen (Neubearbeitung) 1992, S. 261.
- 311 Vgl. Römer-Johannsen, St. Ägidien in Braunschweig, in: Germania Benedictina 6, 1979, S. 34 und Reg. Imp. Loth. Nr. 410: „(...) Nach dem durch dessen [Abt Heinrich von Bursfelde] Eifer und den Aufwand der Stifterin das Bauwerk vollendet worden sei, habe Gertrud im Jahre 1115 (...) zur Weihe des Klosters [St. Ägidien] eingeladen.
- ____
- 129
- Es liegt also nahe, in den beschriebenen Beziehungen auch den Auslöser für die vermutlich bewußt in Anlehnung an die Grundrißdisposition von St. Ägidien in Braunschweig gewählte Bursfelder Chorform zu sehen. Doch warum wirkt gerade eine in Bayern heimische Bauform in Sachsen vorbildhaft? Unabhängig von der von Müller vorgeschlagenen Ableitung des Braunschweiger Chormotivs von süddeutschen Reformarchitekturen (St. Emmeram in Regensburg) 312, lag dies möglicherweise auch in der Bedeutung Bayerns für die northeimisch-lotharische Politik begründet. Denn sowohl der berühmte Ahne Otto von Northeim, als sächsischer und bayerischer Herzog, als auch Lothar III. waren Zeit ihres Lebens um die Vereinigung der Herzogtümer Sachsen und Bayern bemüht. Aus diesem Grunde könnten die Grafen von Northeim gezielt Einflüsse süddeutscher Reformarchitekturen in ihrem sächsischen Hauskloster reflektiert haben. Sicher nachweisen läßt sich ein derart persönlich-politisch motivierter Rückgriff auf bayerische Baugewohnheiten freilich nicht. Doch hängt die großzügige Chorerweiterung, die mit dem Aufschwung des monastischen Lebens in Bursfelde einherging, auch mit dem Gedanken der Northeimischen Memoria zusammen, denn ein größerer Konvent garantierte ein intensiveres Totengedenken.
- Dem Kloster Bursfelde, wie auch St. Ägidien in Braunschweig, muß durch die Verwandtschaft ihrer Gründer mit Richenza dieselbe Aufgabe kaiserlicher Memoria zugefallen sein, wie es die Kaisergrablege in Königslutter zu erfüllen hatte. Aus diesem Grunde wird Bursfelde im herrscherlichen Selbstverständnis Lothars III. eine Königslutter vergleichbare Wertschätzung zugekommen sein, lagen doch bei den Brunonen und Northeimern jene genealogischen Wurzeln, die Lothar mit den bedeutenden und teilweise königliche Ahnenlinien aufweisenden Adelshäusern Sachsens verband. Vor diesem Hintergrund dürfte die Förderung des Northeimer Hausklosters durch Lothar in eine Zeit gefallen sein, in der er sich gezielt um die eigene Familienmemoria sorgte. Dies ist unmittelbar für das Jahr 1135 belegt, als er wenige Zeit nach seiner Kaiserkrönung die Gründung von Königslutter vollzog. Auch die repräsentative Umgestaltung des Bursfelder Gründungsbaus könnte, als eine vom Kaiserpaar initiierte Baumaßnahme, unmittelbar in die Zeit nach 1135 fallen. Wie schon die Beschreibung der kaiserlichen Stiftungen gezeigt hatte, war Lothar um 1135 wieder mehr am sächsischen Baugeschehen interessiert und widmete
- ____
- 312 Müller 1951, S. 12.
- ____
- 130
- sich neben siedlungsbedingten Kirchenstiftungen (Chemnitz) verstärkt der Festigung seiner Dynastie. In diesem Zusammenhang wird die Rückbesinnung auf die Northeimische Familientradition Richenzas auch ein Motiv für den Umbau von Bursfelde gewesen sein 313.
- III.2.2.2. Goslar, St. Ulrich
- Ungeachtet aller die Forschung begleitenden und berechtigten Zweifel zur Datierung der Goslarer Pfalzkapelle St. Ulrich und einer damit verbundenen eventuellen Stiftertätigkeit Lothars III. darf eine Erwähnung des Bauwerks in diesem Kapitel nicht fehlen. Wie oft liegen keine schriftlichen Quellen vor, so daß bisher nur durch formale und typologische Überlegungen dem ungewöhnlichen Bauwerk ein Platz in der romanischen Architektur zugewiesen werden konnte. Die zahlreichen Versuche, den Goslarer Zentralbau (Abb. 107, 108)
- zeitlich einzuordnen, reichen von frühen Datierungen in die erste Hälfte des 11. Jahrhunderts bis um 1100 314, bis hin zu einer Spätdatierung ins frühe 13. Jahrhundert, wie sie zuletzt Matthias Haenchen 1993 315 vorschlägt. Zwischen diesen Extrempositionen nimmt ein Großteil der Forscher die Gründung der Pfalzkapelle im ersten oder zweiten Viertel des 12. Jahrhunderts an 316 und vermutet in Lothar
- ____
- 313 Bei aller Fixierung auf die Memoria der Stifterfamilie bleibt die Frage bestehen, warum Richenza nicht die Translation der Gebeine Ottos von Northeim nach Bursfelde veranlaßt hatte, der in dem von ihm gestifteten Benediktinerkloster St. Blasien in Northeim begraben lag.
- 314 O. Schürer, Romanische Doppelkapellen, eine typengeschichtliche Untersuchung, Marburg 1929, S. 25-32; C. Borchers, Die Ulrichskapelle der Kaiserpfalz Goslar. Eine vergleichende kunstgeschichtliche Forschung, in: Goslarsche Zeitung vom 3.1.1962 und H. Reuther, Studien zur Goslarer Pfalzkapelle St. Ulrich, in: NdtBeitrKG 7, 1968, S. 65-84.
- 315 M. Haenchen, Zur Architektur der Goslarer Pfalzkapelle St. Ulrich und ihrer Herkunft, in: Steigerwald 1993, S. 81-94; ders. ermittelt in einer Dissertation zur mittelalterlichen Baugeschichte von St. Ulrich (TU Braunschweig 1998) vier verschiedene Bauphasen zwischen der ersten Hälfte des 12. und dem frühen 13. Jahrhundert und identifiziert den Gründungsbau des zweiten Viertels des 12. Jahrhunderts als eingeschossiges Gebäude, das erst im weiteren Verlauf durch ein Obergeschoß erweitert wurde, ebd. S. 124.
- 316 Beispielsweise U. Hölscher, Die Kaiserpfalz Goslar, Berlin 1927, S. 124-125, der eine überlieferte Weihe von 1128 zum Anlaß für eine Datierung der Ulrichskapelle in die erste Hälfte des 12. Jahrhunderts nimmt und Parallelen zum Goslarer Georgenberg-Oktogon aufzeigt. Auch F. Arens, Die Königspfalz Goslar und die Burg Dankwarderode, in: Stadt im Wandel 1985, Bd. 3, S. 117-151, führt Stilformen wie das Quadermauerwerk, die schlichten Würfelkapitelle mit plastischen Stegen, die steilen attischen Basen, den Plattenbogenfries (Hirsau), die schlanken Halbsäulen ohne Rücklagen (Quedlinburg) und die treppenförmige Umrahmung der Querhausfenster durch das innen umlaufende Gesims für eine Datierung ins 12. Jahrhundert an. Zuletzt greifen Frontzek/Memmert/Möhle 1996, S. 115-121 den schon von Hoelscher 1927 vorgeschlagenen Zusammenhang zwischen dem Goslarer Georgenbergoktogon und der Ulrichskapelle auf und interpretieren die Kombination zweier verschiedener Grundrisse im Unter- und Obergeschoß der Ulrichskapelle als Rezeption der beiden den Gründungsbau von St. Georg bestimmenden Bauteile, der Basilika und des Oktogons. Sie datieren den Baubeginn in die Zeit um 1150.
- ____
- 131
- sogar den Auftraggeber der Ulrichskapelle 317. Diese Zuweisungen basieren zwar auf überzeugenden stilistischen und typologischen Argumentationen, doch sind die daraus abgeleiteten zeitlichen Präzisierungen durch keine schriftliche Quelle zu belegen. Einzig Ernst Schubert zieht für seinen Vorschlag, Lothar III. könne der Bauherr der Ulrichskapelle sein, die folgende Quelle heran. In der Prager Chronik Cosmae chronica Boemorum heißt es zum Jahr 1132: „Lothar hält einen Hoftag. Dabei stürzt der Saalbau der Pfalz ein, jedoch wird niemand verletzt“ 318. Schubert nimmt an, der Kaiser habe daraufhin den Wiederaufbau der zerstörten Pfalzräume veranlaßt und in diesem Zuge auch die neue Pfalzkapelle St. Ulrich gestiftet 319.
- Diese Vermutung Schuberts wird auch durch die Deutung einer zweiten Quelle getragen: Der erwähnte Prager Hofchronist beschreibt zum Jahr des Goslarer Pfalzeinsturzes (1132) zwei identische Vorfälle in den Pfalzen von Altenburg und Bamberg. Auch dort gab in Gegenwart Lothars III. der Saalbau bzw. der Boden des Saalbaus unter der Last der Versammelten nach und stürzte ein 320. Zu Bamberg ergänzt der Chronist den Bericht mit einem entscheidenden Zusatz: Lothar habe sich während dieses Unglück zwecks politischer Verhandlungen mit dem Herzog von Böhmen „abgesondert in einem Gemach neben dem Saalbau“ 321 aufgehalten. Daß es sich bei diesem abgesonderten Gemach um die Bamberger Pfalzkapelle St. Andreas gehandelt haben muß, belegt eine andere Quelle zum Bamberger
- ____
- 317 Wulf 1996, S. 131 und K. Eichwalder in: Dehio Bremen/Niedersachsen (Neubearbeitung) 1992, S. 530.
- 318 Can. Wissegrad. Cont. Cosmae ad a. 1132, S. 138, 5-6: „Eodem tempore Goslarii concilium a rege factum est, ubi cum palatium cum omnibus ruisset, nullum Dei gratia vulneravit.“ Übersetzung nach Reg. Imp. Loth. Nr. 293. Der Wyschehrader Kanoniker, Canonicus Wissegradensis, gilt als Fortsetzungsschreiber des ersten großen böhmischen Historiographen Cosmas von Prag (†1125) und hat in dessen Cosmae chronica Boemorum die Reichsgeschichte Böhmens zwischen 1126 und 1142 verfaßt. Vgl. hierzu die praefatio von R. Köpke in MGH SS 9, S. 11-14 und Hilsch 1969, S. 16.
- 319 Schubert 1990, S. 230.
- 320 Reg. Imp. Loth. Nr. 291 und 292.
- 321 Can. Wissegrad Cont. Cosmae ad a. 1132, S. 137, 46-47: „(...) rex Lotarius cum Sobezlao duce privatim in quadam camerula iuxta palatium posita sedisset (...)“‚ Übersetzung nach Reg. Imp. Loth. Nr. 291.
- ____
- 132
- Hoftag des Jahres 1130. Dort heißt es, Lothar habe seine Verhandlungen in der runden Kapelle zu St. Andreas in Bamberg geführt 322. Allem Anschein nach hatte man die politischen Geschäfte in Bamberg also nicht im Saalbau der Pfalz, sondern in der benachbarten Palastkapelle geführt. Ob von dieser Quelle zum Bamberger Hoftag und der beschriebenen Zusammenkunft der Verhandlungspartner allgemein eine Funktion der Pfalzkapelle als Versammlungsraum abzuleiten ist, läßt sich angesichts der zahlreich überlieferten Nutzungsmöglichkeiten nicht mit Bestimmtheit festhalten 323. Zumindest aber hatte Lothar offensichtlich die Pfalzkapelle auch als Versammlungsort genutzt; vielleicht um angesichts der Reichskleinodien, die während des Aufenthaltes in der Pfalzkapelle aufbewahrt wurden, seiner politischen Präsenz mehr Glanz zu verleihen.
- Es bleibt nun mit Vorsicht zu fragen, ob im Falle von Altenburg und Goslar, zu dessen Hoftagen der Chronist nicht gesondert zwischen dem eingestürzten Saalbau (Palas) und einer Kapelle unterscheidet, eine Palastkapelle möglicherweise noch gar nicht existierte oder aus anderen Gründen nicht nutzbar war. Zu den wahrscheinlich ab 1100 im Bereich des heutigen Bergerklosters in Altenburg errichteten Pfalzgebäuden ist jedenfalls für die Zeit Lothars keine Pfalzkapelle nachgewiesen 324.
- Wenn auch die Goslarer Pfalz zur Zeit Lothars noch ohne eine repräsentative Palastkapelle war, was den Hinweisen einer Entstehung um die Mitte des 12. Jahrhunderts zufolge möglich wäre 325, könnte man Lothar die
- ____
- 322 Diplom für das Bamberger Domkapitel (DLoIII. 25, vgl. Petke 1985, S. 441) „(...) ad sanctum Andream in rotunda capella (...)“, Übersetzung nach Reg. Imp. Loth. Nr. 228. Mit rotunda ist wahrscheinlich der Vorgänger des nach einem Brand 1185 neu entstandenen doppelgeschossigen Achteckbaus gemeint, der von Mayer in unmittelbarer Nähe des Domes, am südlichen Ende des Palas ergraben wurde. Vgl. H. Mayer, Bamberger Residenzen, München 1951, S. 16-18 und B. Schimmelpfennig, Bamberg im Mittelalter, Lübeck/Hamburg 1964, S. 13-14.
- 323 Binding 1996, S. 65 faßt die verschiedenen Funktionen folgendermaßen zusammen: „Die Pfalzkapelle [diente] als Verwahrort des königlichen Reliquienschatzes, als Oratorium des Herrschers und seiner Familie, als liturgischer Ort kirchlicher Feiern sowie als Ausdruck der Würde königlicher Macht und der Festigung der Herrschaft (...) Haenchen 1998, S. 89-90 zählt die Goslarer Palastkapelle zu den privat genutzten Räumen des Kaisers, wobei die Oberkapelle zur kaiserlichen Wohnung gehört haben könnte und ausschließlich von der kaiserlichen Familie betreten wurde, während das Untergeschoß, als „Repräsentationskapelle“, auch den kaiserlichen Beratern und den „Edlen des Reiches“ zwecks Amtsgeschäften oder Beratungen zugänglich war.
- 324 Nach M. Gockel, Die Deutschen Königspfalzen, Göttingen 2000, S. 39-70, ebd S. 44 kann mit dem für Altenburg durch Quellen gesicherten palatium „allein ein repräsentativer Saalbau gemeint sein“.
- 325 Zuletzt Binding 1996, S. 231 und M. Möhle, Die mittelalterliche Königspfalz, in: Frontzek/Memmert/Möhle 1996, S. 121-122.
- ____
- 133
- Initiative für den Bau der Goslarer Pfalzkapelle zuschreiben. Damit wäre allerdings lediglich ein terminus post quem für die Stiftung von St. Ulrich gegeben, denn die Formen der Innen- und Außenraumgestaltung sprechen dagegen, Lothar auch für den Bauherrn der Pfalzkapelle zu halten 326. Hinzu kommt, daß auch die sehr schlichte, auf tektonische Funktionen reduzierte Formensprache der Ulrichskapelle dem Vergleich mit den anderen lotharischen Bauten nicht standhalten kann: Allein das von der Wandstruktur losgelöste Ecksäulengeviert des Mittelraums, dessen Basen direkt auf ungegliederten postamentartigen Blöcken ruhen, die mit den Mauerkanten fluchten, ohne das attische Profil des umlaufenden Sockels aufzunehmen (Abb. 109, 119),
- hat wenig gemein mit vergleichbaren Raumsituationen in Königslutter. Dort ruhen beispielsweise die Vierungsdienste auf abgesetzten, dem Dienst zugeordneten Kanten, die dem Profil der Vierungspfeiler folgen (Abb. 87).
- Auch entspricht das rohe Durchbrechen der umlaufenden Kämpferprofile in St. Ulrich nicht den exakt gearbeiteten Anschlüssen des Königslutterer Sanktuariums. Dort wird der schachbrettartige Fries, der unmittelbar über dem Scheitel der Chorbogenstellungen die Wandfäche gliedert, ohne Unterbrechung elegant um die Eckdienste herumgeführt (Abb. 57).
- Im Hinblick auf eine Datierung der Kapelle in die zweite Hälfte des 12. Jahrhunderts und die Unterschiede zu einigen Königslutterer Dekordetails muß besonders das Fehlen antikisierender Schmuckmotive im Stile der Königslutterer Imperialdekorationen gegen eine Bauherrenschaft Lothars III. angeführt werden. Denn gerade in einer Pfalzkapelle, die in ihrer Funktion über Aachen hinaus auch in der Tradition spätantiker Herrscherkapellen stand, müßte mit Antikenbezügen als Zeichen imperialer Kontinuität besonders zu rechnen sein.
- ____
- 326 Bei der überlieferten Baugestalt handelt es sich vielmehr um eine Architektur der zweiten Hälfte des 12. Jahrhunderts. Denn allein in den abgeschnittenen Gesimsen und Kämpferprofilen mit vorgelagerten Diensten, wie sie im Inneren der Ulrichskapelle die Kanten der Hauptpfeiler zum quadratischen Mittelraum im Untergeschoß gliedern, ist eine Vorwegnahme der Formensprache des frühen 13. Jahrhunderts zu sehen. Vgl. auch Haenchen 1998, S. 122, der in diesem Zusammenhang die Chorhauptpfeiler des Magdeburger Doms zum Vergleich anführt (Abb. 111). Ähnlich argumentiert auch H. Wille, Die frühe Baugeschichte der Pfarrkirche St. Andreas zu Hildesheim, Phil. Diss. Göttingen 1952, S. 166, der in seinem Exkurs zur Geschichte des Sockels im Außensockel von St. Ulrich in Goslar eine in dieser Zeit in Niedersachsen einmalige Ausprägung sieht, die ein frühgotisches Motiv (Marburg, St. Elisabeth und Ostbau von Münstermaifeld) vorwegnimmt.
- ____
- 134
- III.2.2.3. Altenburg, St. Bartholomäi
- Die Aufenthalte Kaiser Lothars III. in Altenburg anläßlich zweier Hoftage in den Jahren 1132 und 1134 standen, neben der Notwendigkeit diplomatischer Verhandlungen, im Zeichen der kaiserlichen Siedlungs- und Reformpolitik im Gebiet des östlichen Sachsens. Wie bei der Gründung von St. Marien in Chemnitz waren die Schaffung von Handelsplätzen und Marktsiedlungen zwecks Handelsausbau mit Böhmen sowie die Etablierung des Reformmönchtums in Ostsachsen dabei vorrangige Ziele, die im Kapitel über Chemnitz bereits angeschnitten wurden. In diesem Zusammenhang schreibt Schlesinger die Ansiedlung Goslarer Kaufleute in Altenburg im Jahr 1135 den siedlungspolitischen Maßnahmen Lothars III. zu und datiert die Entstehung der Altenburger Marktkirche St. Bartholomäi, respektive den romanischen Gründungsbau, in diese Zeit 327. So zieht die historische wie kunsthistorische Forschung zu Altenburg Lothar III. als Gründer zwar in Betracht, datiert die mutmaßlich zum Gründungsbau des 12. Jahrhunderts zählenden baulichen Reste der Bartholomäikirche aber in staufische Zeit (1150-80) 328.
- Es handelt sich dabei um Teile einer romanischen Kryptenanlage, die unter der heutigen spätgotischen Hallenkirche von St. Bartholomäi erhalten sind. Der über das südliche Seitenschiff zugängliche, vierjochige, kreuzgratgewölbte Raum ist Teil einer weitaus größer geplanten, jedoch nie ausgeführten Kryptenanlage, die sich unterhalb einer Saalkirche mit leicht eingezogenem Chor, Apsis und Westturm erstreckte (Abb. 112) 329.
- In der Mitte des nahezu quadratischen Raumes mit östlicher Apsis steht ein von vier dreiviertelrunden Säulen umgebener Pfeiler, der, entsprechend den kräftigen halbrunden Wandvorlagen und Konsolen, die schweren und massiven Gurte und Schildbögen des Gewölbes trägt (Abb. 113).
- Die plastische Gestaltung der Stützen besteht aus attischen Basen mit Ecksporen und unterschiedlich verzierten Würfelkapitellen mit Halsringen
- ____
- 327 Schlesinger 1952, S. 110-122; ders. 1962, Bd. 2, S. 233, 406, 427 und H. Patze, Recht und Verfassung thüringischer Städte, Weimar 1955, S. 12-88.
- 328 Vgl. zuletzt H. Magirius, Der romanische Vorgängerbau der St.-Bartholomäi-Kirche in Altenburg und seine Krypta, in: Bau- und Bildkunst im Spiegel internationaler Forschung, Festschrift für Edgar Lehmann Berlin 1989, S. 52-71, ebd. S. 66 und S. 70 Anm. 37.
- 329 Die Ausführungen beziehen sich auf die zuletzt zusammengestellten Untersuchungsergebnisse von Magirius 1989, S. 64, der vermutet, daß die Krypta noch im frühen 12. Jahrhundert zu einer siebenschiffigen Anlage erweitert und im gleichen Zuge auch die Saalkirche in eine Basilika umgewandelt werden sollte.
- ____
- 135
- unter schmucklosen Kämpfern. Die Basen der Mittelstützen und der südlichen Wandvorlage tragen oberhalb des attischen Profils eine schmale Leiste. Nach Magirius erinnern die „kerbschnittartig stilisierten korinthischen Kapitelle“ und die „plastisch-glotzenden Masken“ in ihrer „archaischen Derbheit“ an oberrheinisch-elsässische Vorbilder 330‚ die der Autor auch für andere ostsächsische Skulpturen-Beispiele, wie das Westportal von Bad Lausick (erste Hälfte 12. Jh.)‚ zum Vergleich heranzieht. In diesem Zusammenhang schließt Magirius niedersächsische Vorläufer, wie die Bauskulptur von Königslutter oder Quedlinburg, als Quelle für den Altenburger Ornamentschatz aus und schlägt eine Datierung der Altenburger Krypta in die Zeit um 1150 vor.
- Jedoch lehnen sich die Altenburger Basisprofile m. E. trotz ihrer groben Fertigung bewußt an die von Magirius ausgeschlossenen sächsischen Vorbilder an. Gerade die Übersetzung struktureller Motive, wie es die fein profilierten attischen Basen mit dezenten Ecknasen und abschließendem Leistchen sowie die korinthisierenden Kapitelle in stark vereinfachten, fast verfremdeten Formen zeigen, sprechen für die Kenntnis der sächsischen Dekorformen. Die Absicht, in der Altenburger Marktkirche korinthisierende Kapitelle in das schlichte Kapitellprogramm einbinden zu wollen, bedeutete in einer Stadt, die ihre Gründung wahrscheinlich Lothar III. zu verdanken hatte, sicherlich mehr als nur ein beliebig gewähltes Motiv. Möglicherweise versuchte man auch dort den Anschluß an die durch Königslutter in Sachsen erneut aufgekommene Antikenrezeption zu finden. Auch ist in der ursprünglich großzügig angelegten und anfänglich mit Wölbung geplanten Kryptenanlage ein Wille zu baulicher und ornamentaler Repräsentation zu erkennen 331.
- So ist gegen die von Magirius vorgeschlagene Begründung, der Ausbau von St. Bartholomäi zu einer Stifts- oder Klosterkirche sei um 1165 zum Erliegen gekommen, als Kaiser Friedrich I. Augustinerchorherren in St. Marien auf dem Berge (in Altenburg) ansiedelte, zunächst nichts einzuwenden 332. Auch die unfertigen Kapitelle des mittleren Kryptenpfeilers belegen, daß zu diesem Zeitpunkt mit dem Stillstand der Bauarbeiten auch die bauplastische Ausstattung nicht fortgeführt wurde.
- ____
- 330 Magirius 1989, S. 65-66 vergleicht mit der kerbschnittartigen Skulptur der Kirchen von Dorlisheim, Lautenbach, Alspach oder Odilienberg, die zwischen 1130 und 1150 in der Nachfolge von Worms und Murbach entstanden sind.
- 331 Auch Gockel 2000, S. 64 vermutet, daß die Kirche auch von Herrschern für repräsentative Zwecke genutzt wurde.
- 332 Zur Aufgabe des Erweiterungsbaus von St. Bartholomäi zu einer Stifts- oder Klosterkirche zugunsten der benachbarten Neugründung St. Marien vgl. Magirius 1989 S. 66-68.
- ____
- 136
- Gleichwohl präzisierte Magirius, der den Altenburger Gründungsbau mit seiner vorgeschlagenen Datierung um 1150, in Anlehnung an Schlesinger, in die Nähe zu den lotharischen Siedlungmaßnahmen von 1135 in Altenburg rückte, seinen Vorschlag in einer jüngsten Publikation: „Die kürzlich untersuchte Bartholomäuskirche geht wohl noch in die dreißiger Jahre des 12. Jahrhunderts, also in die Zeit König Lothars III. zurück und diente als Pfarrkirche der Kaufmannssiedlung” 333. Die Vergrößerung der Krypta, auf die - so Magirius - wahrscheinlich auch der Ausbau der Saalkirche zu einer Basilika mit erweitertem Chor nach „Hirsauer Art“ 334 folgte, gehörte damit in die Reihe der zahlreichen Umbauten und Chorerweiterungen des Reformmönchtums in der Regierungszeit Kaiser Lothars.
- Ließe man sich nun, hinsichtlich der stilistischen Einordnung der Altenburger Kryptenornamentik und ihres trotz des groben und provinziellen Charakters doch um aufwendige Formen bemühten Ornamentreichtums, mit Magirius auf eine Entstehungszeit der Krypta vor 1150 bzw. um 1135 ein, dann wäre eine Beteiligung Lothars an der Gründung von St. Bartholomäi in Altenburg denkbar. Die in der Pfalz Altenburg verbrachten Hoftage des Kaisers 1132 und 1134 könnten den Anstoß gegeben haben, mit der Ansiedlung Goslarer Kaufleute um 1135 auch einen Kirchenbau in Altenburg zu beginnen. Dabei orientierte man sich offenkundig an der durch Königslutter verbreiteten repräsentativen Architektursprache und variierte einige im Niedersächsischen gehäuft auftretende, speziell von Königslutter ausgehende Formen (attische Basenprofile und die korinthisierenden Kapitelle), wenngleich in einer groberen, weniger präzise gestalteten Imitation.
- Ob dies in Anlehnung an den möglicherweise kaiserlichen Bauherrn geschah, ist nicht dokumentiert. Auf jeden Fall aber belegt die Altenburger Bauplastik, daß man zwischen 1130 und 1150 neben Lausick, Chemnitz und Wechselburg auch in den Randgebieten des ostsächsischen Baugeschehens antikisierende Schmuckformen aufgriff und damit an zeitgenössische Vorbilder anknüpfte, die vorwiegend von Königslutter beeinflußt
- ____
- 333 H. Magirius, Kathedrale, Stiftskirche, Klosterkirche, Burgkapelle, Stadtkirche und Dorfkirche. Zu Typologie und Stil der romanischen Steinkirchen in Ostsachsen, in: Frühe Kirchen in Sachsen 1994, S. 65-91, ebd. S. 76; desgleichen spricht sich R. Spehr, Christianisierung und frühe Kirchenorganisation in der Mark Meißen. Ein Versuch, in: Frühe Kirchen in Sachsen 1994, S. 8-63, ebd. S. 18 für die Gründung von St. Bartholomäi durch Kaiser Lothar III. aus. Er vermutet, Lothar habe mit Hilfe des Naumburger Bischofs Udo I. in der durch den brunonischen Erbteil an ihn gefallenen Altenburger Pfalz ein Stift einzurichten begonnen und in diesem Zusammenhang auch das für die königlichen Pfalzkapellen in Paderborn und Corvey überlieferte Bartholomäus-Patrozinium übernommen.
- 334 Magirius 1989, S. 64.
- ____
- 137
- waren. Als wichtiger Impuls für die künstlerische Strahlkraft Kernsachsens auf die Peripherie darf insbesondere die von Lothar III. betriebene Ostraum- und Missionspolitik und seine damit verbundene Chemnitzer Stiftung gelten.
- III.2.3. Kaiserlich privilegierte Bauten
- Im Zentrum des folgenden Abschnitts stehen fünf Bauwerke, die weder nachweislich noch mutmaßlich als Stiftungen Lothars III. gelten, denen aber durch eine besondere Form der Privilegierung eine bevorzugte Stellung zukam. Denn im Mittelalter war es üblich, daß der Kaiser neben seiner direkten Stiftertätigkeit Kirchen und Klöster auch durch eine gezielte Privilegienvergabe in seinen Schutz nahm. Es kam auch vor, daß er allein durch seine persönliche Anwesenheit bei einer Bauweihe bestimmten Auftraggebern und deren Kirchengründungen besondere Aufmerksamkeit schenkte. Aus der Reihe derjenigen Klöster, die Lothar im Laufe einer Regierungszeit besuchte und in denen er, wie in Magdeburg, Merseburg, Halberstadt oder Bamberg, wichtige Fest- und Hoftage abhielt, sind die Kirchen in Quedlinburg, Braunschweig und im niederrheinischen Elten besonders hervorzuheben. Dort nahm Lothar persönlich an einer Kirchweihe teil. In Drübeck und Speyer hingegen kamen andere Formen hohen kaiserlichen Ansehens zur Geltung: In das reformtreue und als besonders streng geltende Frauenkloster Drübeck versetzte Lothar die Nonnen des Königslutterer Konvents, um an ihrer Stelle reformierte Benediktiner anzusiedeln, und in Speyer nahm Lothar an zwei Altarweihen teil.
- Es sind im Folgenden die Beweggründe herauszuarbeiten, die Lothar dazu veranlaßten, diese Stiftungen durch seine Gegenwart bei einer Bauweihe oder durch Zuwendungen anderer Art zu privilegieren. Interessant dabei sind die Verhältnisse der Stifter zum kaiserlichen Hof, ihre kirchenpolitische Stellung zur Reform und im Falle Quedlinburgs und Speyers auch die Rolle der Bauwerke und ihre Bedeutung innerhalb der Reichsgeschichte. Keine Aufnahme in dieses Kapitel finden Klostergründungen und Orte, die in den Quellen durch kaiserliche Güterbestätigungen, Schenkungen in Form von Sachmitteln oder allgemeine finanzielle Zuwendungen zwar die Unterstützung des Kaiserpaares belegen, deren Architektur aber aufgrund fehlender mittelalterlicher Bausubstanz oder ausschließlich regional geprägter Bauformen nicht mit der lotharischen Baukunst in Verbindung gebracht werden kann 335.
- ____
- 335 Vgl. beispielsweise die Besitzbestätigungen für St. Florian in Linz 1125 (Reg. Imp. Loth. Nr. 192), St. Georg in Prüfening 1125 (Reg. Imp. Loth. Nr. 104), St. Paul in Regensburg 1125 (Reg. Imp. Loth. Nr. 143), Walkenried 1132 (Reg. Imp. Loth. Nr. 298), Benediktbeuern 1133 (Reg. Imp. Loth. Nr. 361), Hersfeld 1134 (Reg. Imp. Loth. Nr. 416), die Befreiung vom Verkehrszoll für die Stadt Lucca 1133 (Reg. Imp. Loth. Nr. 328), die finanzielle Unterstützung des Stiftes Steinfeld beim Erwerb eines Gutes durch Richenza 1133/34 (Reg. Imp. Loth. Nr. 374) und die Stiftung eines silbernen Weihrauchgefäßes an das bayerische Kloster Zwiefalten 1135 ebenfalls durch Richenza (Reg. Imp. Loth. Nr. 426).
- ____
- 138
- III.2.3.1. Drübeck, St. Veit
- Von Kaiser Lothar III. mit besonderem Vertrauen ausgestattet, aber nicht mit Privilegien bedacht, muß das ehemalige Benediktinerinnenkloster St. Veit in Drübeck hoch in der Gunst des Kaisers gestanden haben. Denn nach Drübeck versetzte Lothar 1135 die Königslutterer Stiftsdamen, um an ihrer Stelle Benediktiner aus dem Reformkloster Berge bei Magdeburg anzusiedeln. Das Drübecker Kloster, nach seiner Gründung im 10. Jahrhundert neben Quedlinburg, Gernrode und Gandersheim wahrscheinlich eines der wichtigen sächsischen Frauenklöster 336, gelangte erst im Zuge der Reformbewegungen des frühen 12. Jahrhunderts wieder zu größerer Bedeutung. Als Bischof Reinhard von Halberstadt (1107-1123) nicht nur die Verbreitung der Augustinerchorherren in Sachsen vorantrieb, sondern auch Nonnenklöster und Kanonissenstifte auf der Grundlage der Benediktregel erneuerte, zählte neben Hadmersleben, Stötterlingenburg und Gerbstedt auch Drübeck dazu 337. Daß Lothar die Königslutterer Konventualinnen nun ausgerechnet in das als besonders regelstreng geltende Kloster Drübeck schickte, bezeugt ein weiteres Mal seine reformorientierte Kirchenpolitik und spricht andererseits für eine - wenn auch späte - Anerkennung der Reformtätigkeiten Reinhards. Lothar und den Halberstädter Bischof verbanden bereits seit der Herzogenzeit des Süpplingenburgers ihre kirchenreformerische und antisalische Gesinnung 338. Bereits im September 1115 ist Reinhard im familiären Umfeld des späteren Kaisers bezeugt, als er in Anwesenheit des päpstlichen Legaten Dietrich, der Stifterin Gertrud,
- ____
- 336 Davon zeugen Urkunden Ottos I., Ottos II. und Heinrichs IV., die allerdings keine Rückschlüsse auf die Gründungsumstände des Drübecker Klosters erlauben. Hierzu vgl. E. Jakobs, Urkundenbuch des in der Grafschaft Werningerode gelegenen Klosters Drübeck, Werningerode 1977; W. Grosse, Vom Ursprung Drübecks, in: ders., Aus der Frühgeschichte der Grafschaft Werningerode (Schriften des Werningeröder Geschichtsvereins 7, 1929); C.-H. Seebach, Kloster Drübeck, in: NdtBeitrKG 7, 1968, S. 43-64; H. Brülls, Die Klosterkirche zu Drübeck, München/Berlin 1993.
- 337 Zu den Reformtätigkeiten Bischof Reinhards vgl. Bogumil 1972, S. 59-150; Fenske 1977, S. 164-194 und J. Diestelmann, Zur Klosterreform des 12. Jahrhunderts in Niedersachsen, in: JGNKG 53, 1955, S. 13-23.
- 338 Hildebrand 1986, S.43.
- ____
- 139
- ihrer Tochter Richenza und des Schwiegersohnes Lothar die Weihe des damaligen brunonischen Hausklosters St. Ägidien in Braunschweig vornahm 339. Die persönliche Bindung zu dem großen Kirchenreformer Reinhard, der exzellente Ruf seiner reformierten Frauenklöster und nicht zuletzt die lokale Nähe zu Königslutter werden Lothars Entscheidung beeinflußt haben, die Königslutterer Stiftsdamen nach Drübeck zu verlegen.
- Nun stellt sich die Frage, ob mit der Entsendung der Königslutterer Nonnen nach Drübeck dort auch Bautätigkeiten verbunden waren. Darüber allerdings schweigen die Quellen, und auch die Baugeschichte des Klosters spiegelt ein anderes Bild wider. Es wurden an dem ursprünglich dreischiffigen, flachgedeckten, mit einfachem Stützenwechsel, Querhausapsiden, einfachem Apsidenchor und einst fünfschiffiger Krypta versehenen Bauwerk unmittelbar nach 1135 keine wesentlichen Veränderungen vorgenommen (Abb. 114, 115) 340.
- Erst in der zweiten Hälfte des 12. Jahrhunderts wurde der Chor zu einer dreischiffigen Anlage ausgebaut und durch Erhöhung der Fußbodenniveaus in den Vierungs- und Südquerhausbereich hinein verlängert, ein Westriegel mit Westchor wurde ergänzt, die Einwölbung von Langhaus und Chorraum vorbereitet sowie der Anbau eines zweischiffigen Kreuzganges realisiert 341.
- Daß man sich für diesen Ausbau in vielfacher Hinsicht an der Königslutterer Architektur und Bauskulptur orientierte, diese in einigen Teilen gar zu übertreffen versuchte, ist nicht zu übersehen. Neben der Umgestaltung des Westabschlusses zu einem mächtigen Turmriegel mit gewölbtem Mitteljoch (Abb. 116),
- wo sämtliche Kanten mit schmalen dienstartigen Ecksäulchen versehen sind, wie sie im Chor von Königslutter erstmals als Gestaltungsmittel vorkommen, bilden der antikisierende Kapitell- und Friesdekor mit teilweise korinthisierenden Formen sowie die attischen Basen- und Sockelprofile Strukturen der Königslutterer Bauornamentik nach. Auch die über den Pfeilern vor die Langhauswände gesetzten Wandlisenen, die auf eine geplante, letztlich aber nicht ausgeführte Langhauswölbung hinweisen, tragen dekorative Ecksäulchen mit antikisierenden Rankenfriesen und kleinen Palmettenringbandkapitellen
- ____
- 339 Vgl. Reg. Imp. Loth. Nr. 46.
- 340 Zur Baugeschichte des 12. Jahrhunderts vgl. Inventar Sachsen 1883, S. 26-42; Seebach 1968, S. 48-52; zur Rekonstruktion einer fünfschiffigen Kryptenanlage in Drübeck vgl. H. Feldtkeller, Neue Forschungen zur Baugeschichte der Drübecker Stiftskirche, in: Zeitschrift für Kunstwissenschaft 4, 1950, S. 105-124, ebd. S. 113-116. Christoph Duntze (bei Dr. Klein an der Ruhr-Universität Bochum) arbeitet derzeit an einer Baumonographie zur Drübecker Klosterkirche.
- 341 Seebach 1968, S. 52; Schütz/Müller 1989, S. 164; Wulf 1996, S. 74.
- ____
- 140
- (Abb. 118),
- die in ihrem Variantenreichtum an die Tradition der Königslutterer Bauplastik anknüpfen. Nach dem Vorbild eines Palmettenfrieses in der Königslutterer Vierung (Abb. 59) wurde sicherlich auch der Fries einer Drübecker Wandlisene mit einem Palmetten-Ringbandfries besetzt (Abb. 119b).
- Am deutlichsten aber zeigen sich die Ähnlichkeiten, aber auch die Konkurrenz zum Königslutterer Kaiserbau an dem für Drübeck rekonstruierten Kreuzgang am südlichen Seitenschiff: Wie in Königslutter war der Drübecker Kreuzgang zweischiffig angelegt (Abb. 117)
- und übertraf mit einer Breite von 5,15m die Maße seines Vorbildes (4,70 m) 342. Die Ornamentik der verbliebenen Stützenfragmente (Kapitelle, verzierte Kämpfer und ein Säulenschaft) orientiert sich eindeutig an der Königslutterer Bauornamentik, geht allerdings dem Urteil von Konrad Maier zufolge „über eine allgemeine motivische Ähnlichkeit und über eine verwandte stilistische Grundhaltung nicht hinaus (...)“ 343. Angesichts der gezielten Verwendung Königslutterer Ornamentvorlagen, der Rezeption des in Sachsen in nur wenigen Beispielen überlieferten zweischiffigen Kreuzgangs, der Planung einer Langhauswölbung samt seines dekorativ aufgelösten Stützsystems (Wandlisenen) und des imposanten Westriegels zeigt sich jedoch in eben dieser stilistischen Grundhaltung das Bestreben, in Drübeck an die Tradition der lotharischen Kaiserbaukunst anzuknüpfen.
- Die von der Forschung vorgeschlagene ungefähre Datierung dieser ergänzenden Baumaßnahmen in die zweite Hälfte des 12. Jahrhunderts läßt sich nun m. E. auf einen noch engeren Zeitraum eingrenzen. Eine von Friedrich von Reinöhl als Fälschung identifizierte Königsurkunde Lothars III. für Drübeck wurde im Zusammenhang der Datierung bisher nicht berücksichtigt 344. Mit der nachträglich in die Regierungszeit Lothars datierten Urkunde, die eine Befreiung der auf dem Gut lastenden Pflichten
- ____
- 342 K. Maier, Zweischiffige mittelalterliche Kreuzgänge, in: Niedersächsische Denkmalpflege 15, 1991/92, S. 95-142, ebd. S. 95-100 und S. 115-116. Der Autor kann die Sonderform der „vom Üblichen abweichenden Verdopplung eines Kreuzgangarmes\", der unmittelbar am Langhaus einer Kirche entlanggeführt wird, hauptsächlich bei Zisterzienserklöstern (Walkenried I und II, Pforte, Kamenz, Michaelstein, Hardehausen, Trebnitz, Wienhausen) nachweisen. Der Benediktinerorden ist mit Königslutter (als dem frühesten Beispiel), Drübeck, Huysburg und Ilsenburg vertreten.
- 343 Maier 1991/92, S. 116.
- 344 F. v. Reinöhl, Die gefälschte Königsurkunde des Klosters Drübeck, in: Archiv für Urkundenforschung 9, 1926, S. 123-140. Die Argumente für eine Fälschung konzentrieren sich auf den Ausstellungsort der Urkunde, Braunschweig - Lothar weilte zum Datum der Ausstellung vor Speyer - und Überlegungen zu einigen vom Schreiber verwendeten Redewendungen die erst später gebräuchlich wurden.
- ____
- 141
- gegenüber dem König gewährt, beanspruchte das Kloster eine angeblich durch königliche Hand legitimierte Sonderzuwendung 345. Für die Verfassung der Urkunde schlägt Petke anhand der als Zeugen genannten Personen einen Zeitraum zwischen 1142 und 1164 vor 346. Diese Datierung ermöglicht m. E. über die für die Historiographie wichtige Neubeurteilung der Quelle hinaus, die baulichen Veränderungen im Kloster Drübeck in eben diese Jahre zu verlegen. Denn was liegt näher, als die Fälschung eines kaiserlichen Privilegs zu einem Zeitpunkt vorzunehmen, als der durch die Königslutterer Stiftsdamen stark angewachsene Konvent den Kirchenbau den veränderten Umständen auch baulich anzupassen versuchte? Man könnte sogar vermuten, daß Lothar der Initiator, Auftraggeber oder zumindest der Geldgeber für den Umbau gewesen ist, der um 1135, als die Königslutterer Stiftsdamen nach Drübeck kamen, allerdings noch nicht in die Wege geleitet wurde. Mit den Bautätigkeiten, zu denen vor allem die für die große Zahl der Nonnen notwendige Chorerweiterung zählte, hatte man nicht sofort beginnen können, vielleicht weil die Königslutterer Baustelle noch große Summen benötigte und als kaiserliche Grabstätte Priorität hatte, sondern erst in den Jahren 1142-1164, als in diesem Zuge dann auch das gefälschte Lothardiplom für Drübeck entstand. Diese Bauverzögerung, die möglicherweise durch verspätete Finanzierungshilfen zustande kam, versuchte man dann mittels eines nachträglichen Kaiserprivilegs zu überspielen und Drübeck trotzdem als ein mit kaiserlichen Sonderzuwendungen ausgestattetes Kloster auszugeben.
- Die Verlegung der aus Königslutter stammenden Nonnen ins regelstrenge Harzkloster Drübeck war vermutlich der Auslöser für die Baumaßnahmen im Chorbereich und die Planung zur Wölbung des Langhauses. Mit der Umgestaltung hatte man aber nicht schon um 1135, sondern erst einige Zeit später begonnen, wohl in Verbindung mit der Privilegienfälschung zwischen 1142 und 1164. Damit ist ein direkter Einfluß Kaiser Lothars III. auf das Baugeschehen in Drübeck auszuschließen. Allerdings suchte man in Drübeck auch noch nach dem Tode Lothars die Nähe zur kaiserlichen Baukunst, indem man sich beim Umbau der Klosterkirche am antikisierenden Dekorrepertoire, am Vorbild der Chor- und Langhauswölbung und am Kreuzgang der Kaisergrablege orientierte. Gleichzeitig darf dieser Rückgriff als retrospektive Würdigung Lothars III. gedeutet werden, der mit der Verlegung des Konvents nach Drübeck nicht nur sein Hauskloster von disziplinlosen Stiftsdamen befreite, sondern durch deren noble
- ____
- 345 Vgl. Reg. Imp. Loth. Nr. 254.
- 346 Petke 1985, S. 159 Anm. 270 und S. 404 Anm. 54.
- ____
- 142
- Herkunft einem schon in ottonischer Zeit florierenden Damenstift zu neuem Glanz verholfen hatte.
- III.2.3.2. Braunschweig, St. Ägidien
- Das ehemalige Benediktinerkloster St. Ägidien in Braunschweig zeigt nach dem Northeimer Hauskloster Bursfelde abermals, daß der Familientradition im Herrschaftsverständnis Lothars III. eine besondere Rolle zukam. Das Kloster wurde von Lothars Schwiegermutter, der Markgräfin Gertrud von Braunschweig (1060-1117), im Februar 1115 gegründet und bereits im September desselben Jahres, in Anwesenheit des späteren Kaiserpaares Lothar und Richenza, durch den päpstlichen Legaten Dietrich sowie Bischof Reinhard von Halberstadt geweiht 347. Nach dem Tod der Markgräfin 1117 fiel das Kloster zunächst zu gleichen Teilen an ihre beiden Töchter Gertrud und Richenza. Dieser Entscheidung war kein langer Bestand beschieden, denn noch im selben Jahr erwarb Lothar durch Gütertausch den Erbteil seiner Schwägerin Gertrud, um daraufhin alle Rechte an der brunonischen Stiftung in der Hand seiner Familie zu vereinen 348. Einige Zeit später unterstrich Lothar wiederholt die exklusive Stellung des brunonischen Hausklosters, als er 1134 in einem großen Diplom noch einmal dessen Status und seine Geschichte zusammenfaßte und den Eifer und Aufwand der Stifterin Gertrud und des Bursfelder Gründungsabtes Heinrich für St. Ägidien würdigte 349. Der in diesem Diplom erwähnte Bau von St. Ägidien bezeichnet wahrscheinlich den um 1115 geweihten Gründungsbau, der nach Grabungen 1937 und 1947/48 - allerdings nur fragmentarisch - als ein dreischiffiges, querhausloses Langhaus mit einem möglicherweise durch abgetrennte Chorräume in drei Apsiden schließenden Chor rekonstruiert werden kann (Abb. 120) 350.
- St. Ägidien ist diesem Grabungsbefund zufolge das für Bursfelde vorbildwirkende früheste Beispiel der im Süden Deutschlands beheimateten Grundrißform der Alpenländischen Basilika 351. Zur Gestalt
- ____
- 347 Vgl. Reg. Imp. Loth. Nr. 46; zur Gründung von St. Ägidien vgl. Bogumil 1972, S. 73f und Römer-Johannsen, in: Germania Benedictina 6, 1979, S. 33f.
- 348 Vgl. Reg. Imp. Loth. Nr. 57.
- 349 Vgl. Reg. Imp. Loth. Nr. 410.
- 350 Müller 1951, S. 3-6. Die Fundamente der romanischen Anlage wurden beim Bau des gotischen Chores wiederverwendet. Eine Rekonstruktionszeichnung des romanischen Zustandes wurde im Zuge der Grabungen 1937-1948 nicht erstellt. Müller veröffentlicht einen Grundriß (S. 17 Abbildungsteil, Tafel 3), der im Chorbereich alle Grabungsergebnisse darstellt.
- 351 Gegen K. Eichwalder in: Dehio Bremen/Niedersachsen (Narbearbeitung) 1992, S. 261 und Müller 1950, S. 3-4, 11-14 geben R. Dorn, Mittelalterliche Kirchen in Braunschweig, Hameln 1978 und H.-H. Grote, Das St. Ägidienkloster zu Braunschweig, in: Gosebruch/Grote 1980, S. 138 zu bedenken, daß die auf abgetrennte Chorräume hinweisenden Grundmauern auch Spannfundamente für Chorschranken sein könnten, „so daß auch ein kreuzförmiger Grundriß mit Querhaus und Chorjoch“ (Dorn 1978 S. 202) möglich wäre; so auch von Binding/Untermann 1985, S. 127 übernommen.
- ____
- 143
- und kunsthistorischen Würdigung der in Sachsen nur selten nachgewiesenen querschifflosen Dreiapsidenanlage wurden bereits im Kapitel zu Bursfelde [III.2.2.1] einige Überlegungen festgehalten. Die mit der dreischiffigen Chorform in Anbindung an ein querschiffloses Langhaus vergleichbare Bursfelder Chorerweiterung wurde in die Jahre 1130-1140 datiert und ist damit als architektonisches Vorbild für St. Ägidien auszuschließen; eher umgekehrt wird eine bauliche Beeinflussung stattgefunden haben. Dagegen können die mutmaßlichen Vorbilder für den braunschweiger Dreiapsidenraum direkt im bayerischen Herkunftsland des brunonischen Ahnenvaters Otto von Northeim vermutet werden. Für die sächsische Rezeption der in Bayern überwiegend im Bereich der Reformarchitektur verbreiteten Grundrißform wurden die politisch-territorialen Bestrebungen des Northeimers, die auch auf die Vereinigung der Herzogtümer Sachsen und Bayern abzielten, als ein möglicher Grund für den Formentransfer zwischen den Baugewohnheiten Süddeutschlands und Kernsachsens vorgeschlagen [vgl. Kap. IV.3].
- Über die skulpturale Ausstattung des Gründungsbaus von St. Ägidien und ihre Wirkung auf die Baukunst Lothars III. ist nichts bekannt. Erst der ab 1170 begonnene Nachfolgebau, von dem heute nur noch Teile der Konventsgebäude erhalten sind, scheint durch seine Bauplastik stärker der sächsischen Lokaltradition, speziell der Nachfolge von Königslutter, verpflichtet gewesen zu sein. Säulen mit ornamentierten Schäften, profilierten Basen, korinthisierenden Kapitellen und Palmettenfächerkapitellen, die im Kapitelsaal und im Parlatorium von St. Ägidien erhalten sind (Abb. 121, 122),
- stehen - einmal abgesehen von der Werkstattfrage - in enger stilistischer Verwandtschaft zu den antikisierenden Königslutterer Kreuzgangkapitellen und den dortigen variantenreich verzierten Säulenschäften 352. Als Auslöser für den fast vollständig von Königslutter übernommenen Ornamentstil in Braunschweig (II) kann wohl die familiäre Bindung zwischen der einstigen Klostergründerin Gertrud von Braunschweig zu Lothar III. angenommen werden.
- Für den Kaiser selbst war St. Ägidien von großer Wichtigkeit, was einmal an der Bedeutung Braunschweigs als Ort brunonisch-northeimischer
- ____
- 352 Zum Ornamentstil von St. Ägidien in Braunschweig vgl. Kluckhohn 1938/39, S. 553-554 und Grote 1980 (wie Anm. 351), S. 138-150.
- ____
- 144
- Familienverehrung lag, gleichzeitig aber war das Kloster auch ein wichtiges kirchenreformerisches Zentrum. Als solches nämlich darf St. Ägidien seit spätestens 1117 gelten, als Gertrud, die Tochter der Stifterin, das Kloster in eine streng kirchenreformerisch geprägte Richtung lenkte, indem sie Abt Goswin aus dem sächsischen Reformkloster Ilsenburg herbeiholte 353. Welchen Stellenwert St. Ägidien auch in der Folge für das dynastische Traditionsbewußtsein der brunonischen, lotharischen und später auch der welfischen Sippe einnahm, bestätigen von historischer Seite die Schutzbriefe von Heinrich dem Stolzen, Heinrich dem Löwen, Otto IV. und nicht zuletzt das Papstprivileg Alexanders III. (1179). Von kunsthistorischer Seite bekunden die eng an die Baukunst Lothars III. angelehnten Dekorformen der erst um 1170 erbauten Konventsgebäude, daß St. Ägidien seinen Status als Reformzentrum und als kaiserliche Memorialstätte in besonderer Weise der einstigen Fürsprache und Förderung Kaiser Lothars III. zu verdanken hatte.
- III.2.3.3. Quedlinburg, St. Servatius
- St. Servatius in Quedlinburg war bis in die Regierungszeit Lothars III. das bedeutendste Damenstift des Reiches und als einstiger Mittelpunkt des ottonischen Herrschaftsgebietes auch ein wichtiges Zentrum der sächsischen Kaiserdynastie. Auch Lothar ist nicht weniger als fünf Mal zu hohen Kirchenfesten in der Quedlinburger Stiftskirche bezeugt 354. Zwar verbrachte er das erste Osterfest seiner Herrschaft in Magdeburg und nicht in Quedlinburg, wo die sächsischen Herrscher vor ihm das höchste Fest des kirchlichen Festkalenders zwecks sakraler Familienverehrung gefeiert hatten, doch war sein erster Besuch in der Quedlinburger Reichsabtei 1129 von vergleichbar symbolischer Bedeutung. Auf Lothars Betreiben hin wurde am 3. Juni 1129 der Neubau von St. Servatius durch die Bischöfe Berthold von Hildesheim und Sigward von Minden geweiht 355. Die Bedeutung von Lothars persönlicher Anwesenheit bei diesem Festakt ist offensichtlich. Anders als der private Anlaß familiären
- ____
- 353 Bogumil 1972, S. 66, 73-74, 101.
- 354 Im Juni 1129 Pfingsten und zur Kirchweihe (Reg. Imp. Loth. Nr. 193); im Mai 1130 Pfingsten/Hoftag (Reg. Imp. Loth. Nr. 236); im April 1134 verlieh Lothar ein Marktschutzprivileg für die Quedlinburger Kaufleute (Reg. Imp. Loth. Nr. 394); im Februar 1135 anläßlich Mariä Lichtmeß (Reg. Imp. Loth. Nr. 423); im April 1135 zu Ostern (Reg. Imp. Loth. Nr. 436).
- 355 Das Jahr 1129 gilt als Schlußweihe des ab 1070 errichteten und in Teilen noch heute bestehenden vierten Kirchenbaus. Vgl. Inventar Sachsen 1922, S. 85-87; E. Schubert in: Dehio (Bezirk Halle) 1976, S. 363; Wulf 1990, S. 356.
- ____
- 145
- Totengedenkens im Northeimer Hauskloster Bursfelde oder in St. Ägidien in Braunschweig, war die Teilnahme an der Weihe des Neubaus über der Grabstätte des Ottonenherrschers Heinrich I. für Lothar ein Mittel der Herrschaftslegitimation und Bestätigung seines rechtmäßigen Anspruchs auf die Kaiserwürde. Zudem tat er es mit seiner Gegenwart bei der Weihe des Quedlinburger Damenstiftes seinen ottonischen Vorgängern gleich: Schon Heinrich II. hatte 1017 und 1021 an Kirchweihen von St. Servatius mit dem Ziel teilgenommen, seine rechtmäßige Herrscherfolge zu unterstreichen 356.
- Welche Priorität Quedlinburg für Lothar hatte, zeigt nicht nur die sich auf das gesamte Reich erstreckende Zollfreiheit, die er auf Bitten der Äbtissin Gerburg (1125-1137) den Quedlinburger Händlern gewährte 357. Vor allem die am Damenstift St. Servatius tätigen oberitalienischen Steinmetze, die in der Verbreitung italienischen Formengutes die erneute Hinwendung Sachsens zum Reichsgedanken zeigen sollten, fanden Lothars besondere Aufmerksamkeit. Bereits Martin Gosebruch formulierte die Vorbildwirkung Quedlinburgs für einige Königslutterer Formen, wie das Flechtwerk der Kämpfer in der Vierung und an den Kreuzgangkapitellen sowie das Thema der kämpfenden Fabelwesen der Friese 358. Hinzu kommen formale Ähnlichkeiten zu den Ecklisenen mit Rundstäben an den Querhausfassaden und den doppelschichtigen Bogenfriesen, den Obergadenfenstern mit eingestellten Säulen (Abb. 123)
- sowie zu dem mit attischem Profil versehenen Sockel, der die Basen der Halbrundstäbe am Quedlinburger Nordportal in vergleichbarer Weise umschließt wie der Königslutterer Apsissockel die Plinthen der Lisenengliederung (Abb. 124 und 21) 359.
- Mit der These, „Lothar (...) habe mit dem eigenen Bau den von Quedlinburg übertreffen wollen (...)“, treibt Gosebruch diese Abhängigkeiten sogar auf die Spitze 360. Tatsächlich aber rezipiert Quedlinburg die oberitalienische Bauplastik von S. Abbondio in Como, der Kathedrale von Modena oder von S. Ambrogio in Mailand und nicht römisch-antikes
- ____
- 356 K. J. Benz, Untersuchungen zur politischen Bedeutung der Kirchweihe unter Teilnahme der deutschen Herrscher im hohen Mittelalter, Kallmünz 1975, S. 176-186.
- 357 Vgl. Reg. Imp. Loth. Nr. 394 und zur Äbtissin Gerburg vgl. M. Kremer, Die Äbtissinnen des Stiftes Quedlinburg. Die Personal- und Amtsdaten. Phil. Diss. (masch.) Leipzig 1924, S. 27.
- 358 M. Gosebruch, Königslutter und Oberitalien, in: Gosebruch/Grote 1980, S. 29, 31, 34; s. a. T. Slabon, Der Kreuzgang, in: Gosebruch/Grote 1980, S. 80.
- 359 Man sieht sehr schön, daß dieser Anschluß bereits im voraus geplant war, da Plinthe und Basis des Halbrundstabes zu seiten des Quedlinburger Nordportals in einem Stück gearbeitet sind und nicht nachträglich angesetzt wurden.
- 360 Gosebruch in: Gosebruch/Grote 1980 (wie Anm. 358), S. 29.
- ____
- 146
- Formengut, das in der Bauplastik von Königslutter offenkundig nachgewiesen werden konnte. Gosebruch, der die italienischen Einflüsse in Königslutter auf die künstlerische Achse Nikolaus-Oberitalien und damit auf die Baumeisterfrage - wenn auch mit der schon von Adolph Goldschmidt beschworenen „größeren Plastik der Formen“ - reduziert, verliert dabei die politische Dimension der Italienrezeption für Quedlinburg und die der Antikenrezeption für Königslutter aus den Augen 361.
- Natürlich war die mit imperialer Symbolik behaftete Anlehnung an italienische oder speziell antike Bauornamentik kein Novum sächsischer Kunst oder gar etwas spezifisch Ottonisches. Auch die Salier hatten italienische Steinmetze an den Rhein gerufen . Doch ging die Italienrezeption in Sachsen erstmals im 10. Jahrhundert vom Magdeburger Dom Ottos des Großen aus, gefolgt von einer zweiten Welle des frühen 12. Jahrhunderts, vertreten durch das Reichsstift Quedlinburg und verwandte Bauten (z. B. Gröningen, Sangerhausen). Durch Kaiser Lothar III. und seinen Klosterbau in Königslutter manifestierte sich diese Tradition ein drittes Mal auf sächsischem Boden und bestimmte die sächsische Baukunst bis ins späte 12. Jahrhundert hinein. Allein in dieser Chronologie zeigt sich, daß die Italienrezeption in Sachsen, wie auch die künstlerischen Beziehungen zwischen Quedlinburg und Königslutter nicht allein stilgeschichtlich herzuleiten sind, sondern als etwas genuin Kaiserliches verstanden werden müssen. Während in Quedlinburg die bauplastischen Bezüge zu oberitalienischen Vorbildern den Anspruch auf die mit italienischer Skulptur verknüpfte römisch-imperiale Bedeutungsebene erfüllten, waren die Zitate spätantik-frühchristlicher Ornamentik in Königslutter speziell auf das Kaisertum Lothars III. zugeschnitten. Dort nämlich gaben in erster Linie die künstlerischen Prinzipien der römischen Gregorianer den Anstoß, erneut auf spätantike Gestaltungsprinzipien zurückzugreifen, womit die Italienrezeption beim Beispiel Königslutter eben über die politisch-imperiale Indienstnahme des italienischen Formenguts von Quedlinburg hinausgeht. Aus diesem Grunde liegt es näher, Lothars große Wertschätzung für das Reichsstift Quedlinburg hauptsächlich durch den dynastischen Memoriagedanken an die Ottonenherrscher als Vorgänger im Kaiseramt und als Väter der sächsischen Sippe zu erklären und nicht ausschließlich die künstlerischen Form- und Stilfragen der beiden Hauptorte sächsischer Italienrezeption des 12. Jahrhunderts zu bewerten.
- ____
- 361 Ebd.‚ S. 31 und A. Goldschmidt, Die Bauornamentik in Sachsen im 12. Jahrhundert, in: Monatshefte für Kunstwissenschaft 1910, S. 311.
- 362 Zur Rolle der italienischen Bauhütten („Comaciner“) in der nordalpinen imperialen Baukunst vgl. Bandmann 1951, S. 230-233.
- ____
- 147
- Daß Lothars Wertschätzung für das ottonische Quedlinburg, die sich bereits 1129 in seiner Anwesenheit bei der Bauweihe gezeigt hatte, tatsächlich stark an eine Traditions- und Stammestreue für die Ottonenherrscher gebunden war und darüber hinaus herrschaftslegitimatorischen Charakter besaß, spiegelt sich im Verhalten Richenzas nach Lothars Tod wider. Der Kaiserin oblag nach dem Tode Lothars im Dezember 1137 zunächst die Fortführung der Reichsgeschäfte, und zu diesem Zwecke berief sie ihre erste eigene Fürstenversammlung im Februar 1138 nach Quedlinburg ein 363.
- III.2.3.4. Hochelten, St. Vitus
- Das Quedlinburger Damenstift war nicht der einzige Bau, an dessen Weihe Lothar im Jahr 1129 teilgenommen hatte. In vergleichbarer Personenkonstellation wurde, wiederum auf Veranlassung Lothars, nur zwei Monate zuvor der Neubau von St. Vitus in Elten (heute Hochelten) geweiht 364. Im Bistum Utrecht, am Niederrhein gelegen, war das Kanonissenstift bereits 963 von einem Grafen Wichmann gegründet, mehrfach von den Ottonenherrschern privilegiert und wie die Damenstifte Quedlinburg, Gandersheim und Essen mit dem Status der Reichsunmittelbarkeit ausgestattet 365. Dieses Schutzprivileg bestätigte Lothar dem Stift in einer Urkunde vom Juni 1129 366.
- Von der historischen Forschung ist Lothars Interesse für das Eltener Damenstift hinsichtlich der königlichen Präsenz in dem entlegenen, jedoch traditionell reichstreuen Herzogtum Niederlothringen bereits behandelt worden 367. Auch in der Kunstwissenschaft ist Elten seit langem Thema, insbesondere in Bezug auf den Einfluß des Eltener Gliederungs- und Wölbsystems auf den sächsischen Gewölbebau, allerdings ohne die Person Lothars miteinzubinden 368.
- ____
- 363 Petke 1985, S.412.
- 364 In Anwesenheit von Bischof Andreas von Utrecht und Sigward von Minden, vgl. Reg. Imp. Loth. Nr. 181.
- 365 Die Gründung und Frühgeschichte von St. Vitus in Elten im 10. Jahrhundert, zusammenfassend besprochen bei G. Binding/W. Janssen/F. K Jungklaaß, Burg und Stift Elten am Niederrhein, Archäologische Untersuchungen der Jahre 1964/65, Düsseldorf 1970, S. 8-12 und S. 101-124.
- 366 Vgl. Reg. Imp. Loth. Nr. 186.
- 367 Crone 1982, S. 72-75, 78.
- 368 H. Rahtgens, Die Rekonstruktion der Stiftskirche zu Hochelten, in: ZGA 5, 1912, S. 161-203; A. Verbeek, Die ehemalige Stiftskirche Hochelten, in: Der Niederrhein, Rhein. Verein f. Denkmalpflege und Heimatschutz 1953, S. 85-93; W. Bader, Das im Jahre 1129 gewölbte Langmittelschiff von Hochelten, in: Bonner Jahrbuch 158, 1958, 15-28 und zuletzt H. Thies, Sächsische Gliederungs- und Wölbsysteme, in: Romanik in Niedersachsen 1997, S. 69, 72, 78.
- ____
- 148
- Die Gewölbestruktur der einst dreischiffigen, kreuzförmigen Basilika mit ausgeschiedener Vierung, leicht ausladendem Querhaus und einfachem Stützenwechsel hat sich in den drei westlichen Langhausjochen erhalten und ist Skizzen des 17. Jahrhunderts zufolge auch für das Sanktuarium zu rekonstruieren (Abb. 125-128) 369.
- Im Chor bildete es Gewölbegrate über kräftigen Winkeldiensten aus, die ein zwischen Gewölben und Chorseitenwänden vermittelndes Schildbogengeviert aufnahmen. Dieses Gliederungssystem gehört in seiner Durchbildung zum Gewölbetypus des Säulen-Bogen-Gerüstes 370, wie es auch die Ostteile der Königslutterer Abteikirche aufweisen. Bereits Harmen Thies hat auf die Parallelen zwischen Elten und Königslutter hingewiesen und die gemeinsamen Vorbilder dieser beiden frühen Gewölbebauten des westfälisch-sächsischen Raumes in der lombardischen Architektur vermutet 371. Es wäre an dieser Stelle von großem Interesse, Licht in die Kontroverse um die umstrittene Eltener Weiheinschrift und das damit überlieferte Weihedatum 1129 zu bringen 372. Denn mit einer Fokussierung auf das Jahr 1129 als Weihe für Chor und Langhaus wäre Elten nicht nur eine der frühesten Wölbarchitekturen östlich der Weser 373, sondern als solche noch vor den Königslutterer Ostteilen entstanden. Abgesehen von den Unsicherheiten um die Bauabfolge von Chorpartie und Langhaus, ist es zumindest bemerkenswert, daß ein früher westfälischer Gewölbebau 1129 in Gegenwart Lothars III. geweiht wurde; einem Herrscher, der nur wenige Jahre später in Königslutter einen zumindest in den Chorteilen sicher auf Wölbung angelegten Bau in Auftrag gibt. Die Tatsache, daß Lothar vor der Gründung von Königslutter zahlreiche andere frühe Wölbprojekte in Sachsen und Westfalen (die
- ____
- 369 Der gesamte Ostbau mit Vierung, Querhaus, Apsiden, östlichem Langhausjoch und das südliche Seitenschiff stammen aus dem 14. Jahrhundert. Zur Baugeschichte vgl. Kubach/Verbeek 1976, Bd. 1, S. 246-254; die Zeichnungen des Architekten Julius Vinckboon (um 1670) sind abgebildet und besprochen bei Rahtgens 1912, S. 168-180.
- 370 Auch mit dem Topos „Baldachinstruktur“ beschrieben, der von Thies in: Romanik in Niedersachsen 1997, S. 71 und S. 80 Anm. 17, 18 (wie Anm. 368) als Einheit von Kreuzgratgewölbe und vier dazugehörigen Winkelsäulen bezeichnet wird.
- 371 Ebd S.72, 74.
- 372 Binding/Janssen/Jungklaaß 1970, S. 122 beziehen das Weihedatum 1129 ausschließlich auf das Langhaus und setzen die gewölbten Ostteile (Chor und Querhaus) entsprechend nach 1130 an; so auch R. Funken, Die Bauinschriften des Erzbistums Köln bis zum Auftreten der gotischen Majuskel, Köln 1981, S. 109-111. Hingegen beziehen Bader 1958, S. 15-28 und Böker 1995, S. 26 die Weihe von 1129 auf den Gesamtbau.
- 373 Vgl. Böker 1995, S. 36.
- ____
- 149
- Krypta der Quedlinburger Stiftskirche, Elten, Marienmünster, Idensen) entweder besuchte und privilegierte oder an einer Weihe teilgenommen hatte, könnte als eine weitere wichtige und damit auf sächsisch-westfälische Vorbilder zurückgehende Anregung oder Inspirationsquelle für die Wölbung der Königslutterer Chorteile gedeutet werden.
- Wie läßt sich nun Lothars Teilnahme an der Weihe von Elten 1129 verstehen, während seine Motive, feierlichen Weiheakten beizuwohnen, zuvor ausschließlich von dynastischen Kontinuitätsbeteuerungen geleitet wurden? Möglicherweise erklärt sich sein Engagement aus den vielfältigen Beziehungen zum Bischof Sigward von Minden, der den Eltener Weiheakt vollzogen hatte. Von Lothar protegiert, der selbst über ausgedehnten Territorialbesitz im Bistum Minden verfügte, gehörte Sigward seit seiner Erhebung zum Bischof 1120 zu den engsten kirchenpolitischen Beratern des Königs 374. An der Seite Lothars war Sigward nicht nur ein antisalischer Parteigänger, sondern gleichfalls ein - wenn auch verhaltener - Anhänger der monastischen Reformbewegung 375. Die gemeinsame Förderung der Damenstifte Quedlinburg und Elten - letzteres pflegte schon seit seiner Gründung auch enge Beziehungen zum Siegburger Reformkloster Mönchengladbach - und zwei Lothar-Urkunden für den Kölner Reformträger St. Pantaleon, wo Sigward als Zeuge auftritt, dürfen als Belege für abgestimmte Aktivitäten im Bereich der Kirchenreform gelten 376.
- Hat ein solcher Dialog vielleicht auch zu einem Austausch auf künstlerischer Ebene geführt? In Anbetracht von Sigwards Interesse am frühen westfälischen Gewölbebau (Elten und Idensen) und am Kunstschaffen im Bistum Minden, ist von wechselseitigen Anstößen auszugehen. Hans J. Böker hat in den Studien zu Sigwards Kirchenbauten nicht nur die Bedeutung der bischöflichen Hofkapelle in Idensen [vgl. Kap. IV.1.2.1.] als frühesten vollständig gewölbten Kirchenbau Norddeutschlands herausgearbeitet 377, sondern auch das Projekt einer Langhauswölbung des Mindener
- ____
- 374 Sigward ist insgesamt zwölfmal bei Lothar bezeugt. Vgl. Petke 1985, S. 343-348. Zu Lothars Besitzungen im Bistum Minden vgl. Crone 1982, S. 81.
- 375 Sigward selbst hatte im Bistum Minden weder Klöster reformiert noch gegründet, sondern lediglich Neubauten konsekriert, so 1126 die St. Johanneskirche auf dem Krukenberg bei Helmarshausen oder zahlreiche nicht mit Namen bekannte Kirchen im Bistum Utrecht. Vgl. Böker 1995, S. 16.
- 376 Für die Beziehungen der Gründungskonvente von Elten und Mönchengladbach spricht auch das gemeinsame Vitus-Patrozinium. Vgl. hierzu Binding/Janssen/Jungklaaß 1970, S. 108. Zu den Lothar-Diplomen für St. Pantaleon vgl. Reg. Imp. Loth. Nr. 183, 295.
- 377 Böker 1995, S. 35-44.
- ____
- 150
- Doms (um 1130) Bischof Sigward zuschreiben können 378. Allerdings zielen seine Forschungen darauf ab, die Initialwirkung der Sigwardschen Bauvorhaben auf die norddeutsche Gewölbearchitektur (Lippoldsberg, Ratzeburg, Braunschweig) nachzuweisen, wobei Böker die Strahlkraft des Königslutterer Ostbaus weitgehend außer acht läßt. Dieses Vorgehen schränkt die Prämisse der Vorbildhaftigkeit Königslutters für die sächsische Gewölbearchitektur ein, läuft ihr gewissermaßen den Rang ab, um Elten bzw. Idensen als „früheste vollständig auf Wölbung angelegte Kirchenbauten“ 379 herauszustellen.
- Ohne dabei Prioritäten verteilen zu wollen, steckt vielleicht gerade in dieser Polarisierung der entscheidende Hinweis für den gegenseitigen Austausch im westfälisch-sächsischen Baugeschehen. Trotz aller Unterschiedlichkeit der Wölbsysteme in Anlage und Ausführung, gehen von Elten bzw. Idensen und Königslutter wichtige Impulse für die Großwölbung in Westfalen und Sachsen aus. Dabei handelt es sich um Bauten, die eng mit den Persönlichkeiten Sigwards von Minden und Kaiser Lothars III. verbunden sind und von ihnen als Grabarchitekturen in Auftrag gegeben wurden. Auch waren gerade die von Sigward geförderten oder initiierten Bauprojekte keine reformtragenden Klostergründungen, die in den jeweiligen Regionen politische und wirtschaftliche Zentren schufen oder die Bindung an das Bistum intensivierten, sondern es waren reine Prestigeobjekte. Die Bischofskirche in Minden sollte durch eine Gesamtwölbung anspruchsvoll umgestaltet werden, und in Idensen suchte sich Sigward mit der Stiftung einer eigenen Grabkirche selbst ein Denkmal in seinem Bistum zu setzen. Desgleichen wird die Weihe der Damenstiftskirche von Elten, die historisch in enger Beziehung zu der im Mittelalter bedeutenden Kirchenmetropole Utrecht stand und um 1130 als die wohl renommierteste Baustelle der Utrechter Kirchenprovinz gelten darf, für Sigward mit hohem kirchenpolitischem Ansehen verbunden gewesen sein. Diesen Kirchenbau in Anwesenheit Lothars III. zu weihen, war für ihn sicherlich auch ein Zeichen seiner zugleich reformkirchlich und kaiserlich orientierten Politik.
- Hinzu kommt, daß insbesondere die Bistümer Utrecht und Lüttich einst wichtige Stützen des salischen Herrscherhauses waren und Lothar III.‚ wie auch seine antisalischen Parteigänger, ein besonderes Interesse an diesen Gebieten zeigten. Noch Ende des 11. Jahrhunderts waren beispielsweise die Bischöfe von Lüttich und Utrecht enge Ratgeber Heinrichs IV. gewesen, und für Lothar herrschte dringender Handlungsbedarf, die
- ____
- 378 H. J. Böker, Bischof Sigward und der Mindener Dombau im 12. Jahrhundert, in: NdtBeitrKG 31, 1992, S. 23-37, ebd. S. 33.
- 379 Böker 1995, S. 41.
- ____
- 151
- Rheinprovinz wieder näher an seine auf Sachsen konzentrierte Politik zu binden. Vor diesem Hintergrund ist sicherlich auch der persönliche Einsatz des Kaisers bei der Ernennung des Kaplans Liethard von St. Marien in Utrecht zum Bischof von Cambrai 380 als ein politischer Schachzug dahingehend zu deuten, den Einflußbereich der salisch orientierten westlichen Kirchenprovinzen zurückzugewinnen. Denn gerade die Utrechter Marienkirche und ihr Konvent mußten als ein Symbol salischer Herrschaft den antisalischen Kräften am Rhein ein Dorn im Auge gewesen sein: Kaiser Heinrich IV. selbst hatte den Bau kurz vor 1088 gestiftet. Letztendlich ist nicht zu klären, ob die romanischen Teile der ehemaligen Utrechter Stiftskirche dem Gründungsbau des 11. Jahrhunderts oder dem nach einem Brand von 1131/32 errichteten Nachfolgebau angehören, der Ende des 19. Jahrhunderts abgerissen wurde 381. In jedem Falle aber handelte es sich um eine durchgehend gewölbte Emporenbasilika, die Vorbild für zahlreiche niederrheinische Bauten des 12. Jahrhunderts wie Knechtsteden und Liebfrauen in Maastricht war 382. Auch der Eltener Gewölbebau wird von der Utrechter Architektur beeinflußt worden sein, wenngleich die gestalterischen Parallelen zwischen Utrecht und Elten nicht über die Anlage eines basilikalen Langhauses mit Querhaus, Dreiapsidenchor und gebundenem System hinausgingen 383.
- Vor diesem Hintergrund der zur Regierungszeit Lothars III. das Bistum Utrecht noch immer politisch und architektonisch beherrschenden salischen Tradition muß gerade Lothars Teilnahme an der Weihe der Eltener Damenstiftskirche als bewußtes Zeichen der neuen sächsischen Kaiserherrschaft im vorwiegend salisch geprägten Westen des Reiches verstanden werden. Die kaiserliche Gegenwart bei der Weihe sollte nicht nur der Feier besonderen Glanz verleihen, sondern gleichzeitig die kaiserliche Autorität am Niederrhein demonstrieren. Aus ähnlichen Gründen der politischen Darstellung im Westen des Landes wird Lothar im April 1131 das Grab des Hl. Willibrord in Echternach besucht und dort die
- ____
- 380 Die Tatsache, daß es mit Liethard in Utrecht einen lotharischen Kaplan gab, der es neben dem Würzburger Kaplan Embricho als einziger zu bischöflichen Würden brachte, deutet Petke 1985, S. 84 als „Zeugnis für Lothars Interesse an den Herrschaftsbereichen der Grafen von Holland und an der Utrechter Kirche“.
- 381 Kubach/Verbeek 1976, Bd. 2, S. 1162-1166 und ebd. Bd. 4, S. 230-235.
- 382 Ein Gemälde des Holländers P. J. Saenredam von 1638 überliefert den mittelalterlichen Bestand, nach dem St. Marien als eindrucksvolle Wölbarchitektur nach dem Vorbild salischer Herrscherbauten (Speyer II) rekonstruiert werden kann. Zum Gemälde in der Hamburger Kunsthalle vgl. Kubach/Verbeek 1976, Bd. 2, S. 1162.
- 383 E. Gall, Die Marienkirche in Utrecht und Klosterneuburg, in: Jahrbuch an Kunstwissenschaft 1, 1923, S. 34-41, ebd. S. 36-37.
- ____
- 152
- Feier einer Messe veranlaßt haben 384: Der angelsächsische Missionar und Bischof hatte im 8. Jahrhundert vom Bistum Utrecht aus seine Missionstätigkeiten organisiert und war als Apostel der Niederlande auch ein wichtiger Reformpatron. Daß solche Aktivitäten keine von der Reichspolitik separierten Maßnahmen waren, bezeugt auch Lothars Initiative beim Ausbau der Stadt Duisburg, der in einem Kaiserprivileg von 1129 die Bürger dazu aufforderte, den Marktflecken durch den Bau von Häusern zu befestigen. Diese Art der Begünstigung einer Stadt ließe darauf schließen, so Bernhard Diestelkamp, daß „der Reichsort Duisburg von Lothar (...) als besonderer Stützpunkt des Königtums am Niederrhein vorgesehen gewesen sein [muß], wenn [er] seinem inneren Ausbau ein so starkes Interesse widmete.“ 385 In der von den Bischöfen Andreas von Utrecht, Sigward von Minden und Kaiser Lothar III. zelebrierten Eltener Stiftsweihe zeigt sich neben der Demonstration reformpolitischer Einigkeit in den traditionell salischen Reichsteilen auch eine den künstlerisch-architektonischen Bereich berührende Verbindung. Denn das gemeinsame Interesse an fortschrittlichen Wölbarchitekturen, wie beispielsweise an der Eltener Damenstiftskirche, spiegeln gerade die privatesten Kirchenstiftungen Sigwards und Lothars, Königslutter und die Idensener Grabkapelle wider, in denen die Wölbung - zu einem architektonischen Hauptthema erhoben - in unterschiedlichster Weise umgesetzt wurde 386.
- III.2.3.5. Speyer, St. Maria
- Speyer war nicht nur der Inbegriff des salischen Kaisertums, von Lothar durch freie Königswahl überwunden, sondern stand auch für die eigentlich rechtmäßigen Erben der Kaiserkrone, das Geschlecht der Staufer. Nach den Notizen in Kapitel II.2.3, die vom Gegenkönigtum des Staufers Konrad von Schwaben, von den Belagerungen der Stadt durch Lothars Truppen (1128 und 1129/30), der Einberufung zweier Hoftage in Speyer (1126 und 1135) und den verhältnismäßig häufigen Speyer-Aufenthalten Lothars berichteten, darf das politische Verhältnis Lothars III. zum Zentrum des salischen Kaisertums insgesamt als gespalten charakterisiert werden. So verwundert es nicht, daß der Kaiser weder für Speyerer Empfänger
- ____
- 384 Vgl. Reg. Imp. Loth. Nr. 274 und Swinarski 1991, S. 491.
- 385 B. Diestelkamp, Staufische Privilegien für Städte am Niederrhein, in: Königtum und Reichsgewalt am Niederrhein 1983, S. 103-144, ebd. S. 105.
- 386 vgl. Kap. III.2.1.3. und IV.1.2.1.
- ____
- 153
- urkundet noch Schenkungen an die Domkirche veranlaßt und dafür im Gegenzug auch nicht im Domnekrolog erwähnt ist 387.
- Um so bedeutender sind zwei Textstellen in den Disibodenberger Annalen zu den Jahren 1129 und 1135, die zwei Altarweihen im Speyerer Dom in Anwesenheit Lothars III. erwähnen. Anläßlich der Unterwerfung Speyers, die Lothar mit einem triumphalen Einzug und einer Festkrönung an Epiphanie (6. Jan.) 1130 feierte, habe kurz zuvor, an Weihnachten 1129, in Anwesenheit Lothars III. und vom Mainzer Erzbischof zelebriert, die Weihe eines Stephan-Altares im südlichen Querhaus stattgefunden 388. Desgleichen wird vom Weihnachtsfest 1134 und von Epiphanie 1135 berichtet, in dessen Anschluß der Kreuzaltar, wieder in Anwesenheit des Kaisers, vom Mainzer Erzbischof Adalbert I. geweiht wurde 389.
- Während die Bedeutung von Kirchweihen unter Beteiligtmg Lothars III. in den letzten Abschnitten mehrfach mit Motiven familiärer Gedenktraditionen belegt werden konnte, gebührt den Speyerer Altarweihen im Kontext imperialer Memorialpraxis ein ganz besonderer Platz. Die Gegenwart Lothars bei den Altarweihen in Speyer ist wohl auch als politisches Zeichen zu deuten, im politisch-ideologischen Zentrum salischer Herrschaft, in der Speyerer Kaisergrablege, die lotharische und damit sächsische Kaisermacht zu inszenieren. Ähnlich wie die Eltener Stiftsweihe für Lothar eine Gelegenheit bot, sächsische Präsenz in salisch geprägten Gegenden zu zeigen, war auch die Teilnahme an der Weihe zweier Altäre im Speyerer Dom ein politisches und persönliches Manifest in der salischen Hochburg.
- Gleichzeitig bedeutete die Teilnahme an einer solchen liturgischen Zeremonie auch, einem wichtigen Moment salischen Totengedenkens beizuwohnen, der die Ehrung des einstigen Herrschergeschlechtes implizierte. Nun kann eine so vermutlich auch von der Öffentlichkeit wahrgenommene Sichtweise von Lothars Gegenwart beim Weiheakt nicht beabsichtigt gewesen sein. Aus diesem Grunde spräche es eher für die von Hans Erich Kubach und Walter Haas geäußerte Vermutung, es habe sich Weihnachten 1135 nicht um die Weihe des Kreuzaltares im Langhaus, sondern um die des Petersaltares in der Querhauskrypta gehandelt 390. Im
- ____
- 387 Ehlers 1996, S. 242.
- 388 Vgl. Reg. Imp. Loth. Nr. 211, 212; kommentiert bei Ehlers 1996, S. 285-287.
- 389 Vgl. Reg. Imp. Loth. Nr. 459 und Ehlers 1996, S. 289.
- 390 Kubach/Haas 1972, S. 41, 46. Allerdings käme einer kaiserlichen Teilnahme am Weiheakt des Kreuzaltares eine größere Bedeunmg zu, da dieser nach den beiden Hauptaltären im West- und Ostchor der würdigste der Nebenaltäre war. Vgl. G. Bandmann, Früh- und hochmittelalterliche Altaranordnung als Darstellung, in: Das erste Jahrtausend, Kultur und Kunst im werdenden Abendland an Rhein und Ruhr, Bd. 1, Düsseldorf 1964; S. 371-411, ebd. S. 398-399 und S. 406-407.
- ____
- 154
- Weiheakt eines eher beigeordneten Altares, der zudem Petrus geweiht war, konnte Lothar seine besondere Verehrung für die beiden Apostelheiligen Petrus und Paulus ausdrücken, deren Patrozinium er auch für die eigene Kaisergrablege in Königslutter gewählt hatte. Gleichzeitig stellte er die bei den Saliern bevorzugte Verehrung Mariens in den Schatten 391.
- Im Vordergrund allerdings stand die staatspolitische Bedeutung von Lothars Teilnahme an den Altarweihen, die schon im Kapitel „Die salischen Züge in Lothars Herrschaft“ [Kap. II.2.3.] als bewußt gesetztes Siegeszeichen über das salisch-staufische Dynastiedenken interpretiert wurde. Geht man davon aus, daß die Teilnahme an der Weihe eines Petersaltars nicht zufällig gewählt war, sondern einen bewußt gesetzten politischen Akzent darstellte, dann konnte Lothar diesen Tag auch für die Demonstration seines gregorianisch und damit apostolisch geprägten Königtums genutzt haben. Denn Petrus war einer der von den Kirchenreformen bevorzugten Heiligen und wurde von den Gregorianern zur Legitimierung des päpstlichen Primats benutzt: Die von Gregor VII. auf den Petruskult konzentrierte Heiligenverehrung wurde von der Bedeutung Petri als oberstem Apostelfürsten, als dessen Nachfolger und Stellvertreter sich der Papst verstand, geleitet 392.
- Mit den Altarweihen waren keine kaiserlich geförderten Baumaßnahmen in Speyer verbunden, doch wird an diesem Beispiel deutlich, daß die Gegenwart des Kaisers bei Bau- oder Altarweihen nicht vom Zufall bestimmt war, sondern, einem abgewogenen diplomatischen Kalkül folgend, Bausteine einer gezielten Herrscherinszenierung darstellte.
- III.3. Ergebnisse
- Offenbar waren die Städte im Reich, in denen Lothar am feierlichen Akt einer Kirchweihe teilnahm, keineswegs willkürlich gewählt oder genossen dieses Privileg nur, weil sie zu diesem Zeitpunkt zufällig das kaiserliche Itinerar streiften. Vielmehr lassen sich drei verschiedene Beweggründe für
- ____
- 391 Zur salischen Marienverehrung vgl. K. Schmid, Die Sorge der Salier um ihre Memoria. Zeugnisse, Erwähnungen und Fragen, in: Schmid/Wollasch 1984, S. 666-726. Allerdings beziehen sich die Salier auf die schon von den Ottonen praktizierte politische Instrumentalisierung der Marienfrömmigkeit als Verknüpfung von Sorge um den Fortbestand der Dynastie und Königsherrschaft. Vgl. hierzu E.-D. Hehl, Maria und das ottonisch-salische Königtum. Urkunden, Liturgie, Bilder, in: HistJb 117, 1997, S. 271-310.
- 392 Zur Petrusverehrung der Kirchenreformer vgl. C. H. Brakel, Die vom Reformpapsttum geförderten Heiligenkulte, in: StudGreg 9, 1972, S. 241-311.
- ____
- 155
- die vermutlich geplante Anwesenheit des Kaisers zu diesen Anlässen festhalten: Motive der Familientradition, der Herrschaftslegitimation und Aspekte von politischer und kirchenpolitischer Aktualität. Letzteres kommt für die Weihehandlung von Elten in Betracht, da Lothars Interesse an den Herrschaftsbereichen der Utrechter Kirche von ihm eine starke Präsenz in den heute holländischen Reichsgebieten verlangte 393. Hinzu kommt die Tatsache, daß die Grafschaftsrechte der Grafen von Holland - einem Adelshaus, in das Lothars Halbschwester Petronella vor 1120 eingeheiratet hatte - in dieser Gegend gefährdet waren und Lothar auch wegen familiärer Belange in den westlichen Reichsgebieten politisch aktiv wurde (vgl. Kap. IV.1.3.].
- Vergleichbar mit den kaiserlichen Stiftungen war die politische Stabilisierung, verbunden mit christlicher Missionierung, insbesondere in den östlich der Elbe gelegenen Gebieten, ein weiterer Faktor für die kaiserlichen Bemühungen um ausgewählte Orte und Bauwerke. Schon mit der Gründung von Kloster Chemnitz 1136 war Lothar als gleichzeitig reform- und handelsorientierter Politiker im Osten des Reiches in Erscheinung getreten. So ist es nicht auszuschließen, daß er mit dem Ausbau Altenburgs zu einem Markt- und Handelszentrum, vor allem in Hinblick auf die Handelsachse von Sachsen nach Böhmen, vielleicht auch den Bau der Marktkirche St. Bartholomäi angeregt hatte. Zumindest schienen den Altenburger Bauleuten die Grundzüge der Kaiserbaukunst nicht unbekannt gewesen zu sein, denn trotz sehr bescheidener künstlerischer Qualität orientierte sich die Altenburger Bauplastik auch an der von Königslutter ausstrahlenden Antiken- und Italienrezeption.
- Von Gründen, die ausschließlich die genealogischen Verbindungen Richenzas betrafen, waren Lothars Privilegien für das Braunschweiger Hauskloster der Brunonen St. Ägidien geleitet. Wie schon beim Ausbau des Northeimischen Familienzentrums in Bursfelde, resultierten die kaiserlichen Zuwendungen aus der Absicht, die aus bedeutenden Familien stammenden Ahnen der Kaiserin - wegen fehlender eigener Bindungen an den sächsischen Hochadel - in das Legitimationskonzept der lotharischen Herrschaftsfolge einzubinden. Die Heirat mit der Northeimerin band Lothar an weitaus bedeutendere Adelskreise, als ihm dies die eigenen familiären Voraussetzungen durch die Grafen von Süpplingenburg und Formbach ermöglicht hätten. Hierin lag wohl auch der Grund, warum Lothar allem Anschein nach den klösterlichen Stiftungen der Familienrichtung Richenzas auch hinsichtlich großzügiger Privilegienvergabe den Vorzug gab und die Stiftungen des eigenen Elternzweiges diesbezüglich vernachlässigte.
- ____
- 393 Petke 1985, S. 84.
- ____
- 156
- In dem einzigen, für das bayerische Kloster Formbach, dem Herrschaftszentrum von Lothars Mutter Hedwig von Formbach, erhaltenen Kaiserprivileg, ist von der historischen Forschung eine Fälschung des späten 12. Jahrhunderts erkannt worden 394. Beim offenbar höheren Stellenwert der Klöster der Northeimer und Brunonen spielte neben dem Memorialgedanken sicherlich auch die Lage der Bauten eine Rolle. Sie befanden sich im Kern Sachsens, inmitten des lotharischen Herrschaftsbereiches, und waren damit auch für die lotharische Territorialherrschaft enorm wichtig.
- Ein drittes Motiv für das kaiserliche Interesse an speziellen Kirchenbauten führte in den Bereich der Herrschaftslegitimation. So konnten als treibende Kräfte für Lothars Initiative beim Neubau von St. Servatius in Quedlinburg stammes- und herrschaftsbezogene Beweggründe angeführt werden, die einen Anspruch Lothars auf die Kaiserwürde der Ottonenherrscher implizierten. Geleitet von dem Gedanken, die neue kaiserliche Autorität nach mehreren Generationen salischer Herrscher wieder in Sachsen zu verankern, schuf Lothar einerseits enge Bindungen zu sächsischen Zentren des Kaisertums (Magdeburg, Quedlinburg) und versuchte andererseits, Symbole salischer Macht zu unterwandern: Im Herrschafts- und Memorialzentrum der Salier in Speyer nutzte Lothar seine kriegs- und eroberungsbedingten Aufenthalte als Propagandamittel der neuen sächsischen Autorität auf dem Kaiserthron; so zumindest könnte eine Interpretation für seine Teilnahme an zwei Altarweihen im Speyerer Kaiserdom lauten.
- Auch fände die Vermutung, Lothar habe die Stiftung der Goslarer Pfalzkapelle St. Ulrich in die Wege geleitet, vor diesem Hintergrund eine Bestätigung. Denn bis zu seinen Regierungsjahren war Goslar als Hauptpfalz Heinrichs III. und Heinrichs IV. eine salische Residenz auf sächsischem Boden, die allen Anlaß dazu bot, um ein repräsentatives Bauprojekt erweitert zu werden. Zumindest käme Lothar als Initiator für die Goslarer Herrscherkapelle in Frage, wenngleich die Bauformen in spätere Zeit weisen.
- Was den architekturhistorischen Kontext der vorgestellten Bauwerke betrifft, so sind die Bau- und Ornamentformen zunächst in Anlehnung an jeweils regionale Vorbilder entstanden. Erst die speziellen Verbindungen der Stifterfamilien zum Herrscherhaus lassen vereinzelt Grundrißdisposi- tionen und ausgewählte Schmuckformen in einem anderen Licht erscheinen, wie dies für St. Ägidien Braunschweig und Bursfelde am Beispiel einer altbayerischen Basilikaform nachzuweisen war.
- ____
- 394 Vgl. Kommentar zu Reg. Imp. Loth. Nr. 480.
- ____
- 157
- Auf wesentlich dünnerem Boden stehen die Überlegungen zu einer eventuellen Stiftertätigkeit Lothars III. in Goslar und Altenburg. Für beide Orte, die Lothar auch anläßlich mehrerer Hoftage in den Jahren zwischen 1130 und 1135 aufsuchte, konnten in den Quellen unterschiedliche Ansatzpunkte für ein persönliches Engagement des Kaisers herausgearbeitet werden. In Goslar bestand um 1132 vermutlich noch keine kaiserliche Kapelle im Pfalzbezirk. Sie wurde erst in den Folgejahren begonnen, weist aber in ihrer Baugestalt keine Verbindungen zur lotharischen Baukunst auf. Für die Gründung von St. Bartholomäi in Altenburg, die Lothar III. im Zuge seiner ostsächsischen Siedlungspolitik veranlaßt haben könnte, bestätigten Verbindungen zur niedersächsischen Bauplastik die weitläufige Wirkung der antikisierenden Königslutterer Formensprache auch auf eher unbedeutende Baustellen Sachsens.
- Das Reichsstift Quedlinburg hingegen war gleichzeitig eine geistige und eine gestalterische Quelle für die lotharische Baukunst. Dort hatte Lothar der Weihe des Neubaus beigewohnt und mit dieser Zeremonie die dynastische Kontinuität zu den Ottonen bekundet, gleichzeitig aber gingen von hier auch die beiden künstlerischen Maximen aus, Reformbaukunst und Italienrezeption, die Lothar einige Jahre später in Königslutter mit neuer Qualität und Ausdrucksstärke, vor allem aber mit gezielteren und reineren Antikenbezügen umsetzte. In diesem formalen Entwicklungssprung, wenn man den Unterschied zwischen den allgemeinen Bezügen zu oberitalienisch-lombardischen Bauten in Quedlinburg und den deutlichen Zitaten römischer Reformkunst in Königslutter einmal so bezeichnen darf, zeigte sich auch Lothars neues Selbstverständnis als Sachsenherrscher gegenüber der ottonischen Tradition. Für seine Baukunst wählte Lothar, wie im prominentesten ottonischen Damenstift vorgegeben, die auch dort mit imperialem Anspruch belegten, aus Kunstkreisen stammenden Ornamentvorbilder, schuf aber durch die eigene, neue Art der Italienrezeption auch ein neues Bild seiner Politik. Mit Hilfe einer klaren und unmißverständlich auf spätantik-frühchristliche Schmuckformen zurückgreifenden Ornamentsprache löste sich Lothar auch ein Stück weit von der prunkvollen Idee des Imperium Romanum, die in der Rezeption italienischer Kunst steckte und vermittelte dabei die Kunstsprache der römisch-gregorianischen Kirchenreformer. Ausdruck dieses bewußten Gegensatzes zu der prächtig inszenierten ottonischen Hofkunst war auch der Verzicht auf wertvolle Materialien wie Porphyr oder Marmor, die in der lotharischen Baukunst nirgends eingesetzt wurden.
- Lothars Bemühungen um Quedlinburg, Elten und Drübeck standen sicherlich auch im Zeichen der gezielten Förderung von Damenstiften, die den Anhängern der Kirchenreform ein besonderes Anliegen war; wenngleich Lothars Interesse für sächsische Frauenklöster und Damenstifte als
- ____
- 158
- zwiespältig zu bewerten ist. Denn obwohl beim Blick auf die kaiserlichen Diplome im Grunde genommen fast jedes der im frühen 12. Jahrhundert bedeutenderen Frauenklöster und -stifte von Lothar in seinen Besitzungen bestätigt wurde, gründete er selbst nur Männerkonvente und löste in Königslutter sogar ein bestehendes Augustinerinnenstift auf. Um so bemerkenswerter sind die kaiserlichen Zuwendungen für das Frauenkloster Drübeck, wo Lothar wegen der Überführung der Königslutterer Stiftsdamen möglicherweise einen Umbau finanziert hatte. Zumindest konnten einige Bauformen dieser Bauphase (Kantensäulen im Westbau, antikisierende Rankenfriese und Kapitelle, Idee der Langhauswölbung) mit der Lothar-Baukunst in Verbindung gebracht werden.
- Die von Lothar mit Sonderrechten (Privilegien, Weihe, finanzielle Hilfen) ausgestatteten Bauwerke transportierten neben ihrer oft reichspolitischen Bedeutung auch speziell den Kaiser betreffende ideelle Inhalte, die auf unterschiedlichen Bindungen basierten. Diese Bindungen, oft politischer, familiärer oder ideologischer Art, brachten es mit sich, daß man sich im Gegensatz dazu in späteren Zeiten und anläßlich baulicher Veränderungen an diesen Bauwerken auch an den kaiserlichen Protegé erinnerte und teilweise Bezug zur lotharischen Baukunst nahm, wie auch dies am Beispiel Drübecks deutlich wurde. Sicherlich hat bei der Verbreitung der lotharischen Bau- und Ornamentformen gerade im engsten Umfeld Königslutters auch die lokale Verbreitung, das bloße formale Nachahmen eine Rolle gespielt. Doch muß neben der formalen Vergleichbarkeit auch die inhaltliche Aussagekraft eines Formzitats herangezogen werden. Vor allem wenn man - wie in den folgenden Kapiteln - sächsische Kirchenbauten aus dem Kunstkreis Königslutters auch deshalb als Spiegel und Träger der lotharischen Herrschaftsidee versteht, weil ihre Stifter mit dem kaiserlichen Hof in Verbindung standen.
- ____
- 159
- IV. Architektur der kaiserlichen Parteigänger
- IV.1. Lothar III. und der sächsische Adel im frühen 12. Jahrhundert
- Eine Arbeit über die Epoche Lothars III. zu schreiben, heißt auch und vor allem, den sächsischen Adel des frühen 12. Jahrhunderts in die Überlegungen miteinzubeziehen 395. Nicht nur, weil die Macht und das Gelingen einer Königsherrschaft immer maßgeblich von der politischen Unterstützung der Adelsschicht eines Landes abhängig war, sondern weil Lothar III. dem sächsischen Hochadel in besonderer Weise verpflichtet war. Abgesehen davon, daß er den führenden Vertretern - allen voran Erzbischof Adalbert von Mainz - die Königskandidatur zu verdanken hatte, verband ihn seine politische Vergangenheit unmittelbar mit den Großen des Landes.
- Eine Gruppe ostsächsischer Fürsten hatte sich von 1112 an mit Herzog Lothar geschlossen gegen die Politik Heinrichs V. gestellt. Grund dieser adligen Oppositionsbildung war ein Erbschaftsstreit zwischen dem Ballenstedter Grafen Siegfried und Kaiser Heinrich V., in den eine Vielzahl untereinander versippter sächsischer Adelsgeschlechter verwickelt waren 396. Schon unter Heinrich IV. bestimmten stammesfremde Herrschaftsansprüche und territoriale Machtrangeleien das konfliktgeladene Verhältnis des ostsächsischen Adels zum Kaiserhaus. Unter der Führung Ottos von Northeim hatten bereits eine Generation zuvor die Väter der sächsischen Aufständischen um Herzog Lothar eine antikönigliche Fürstenpartei gegen den Salier Heinrich IV. gegründet. Zu ihnen gehörten mächtige Reichsfürsten wie Bischof Burchard von Halberstadt, Lothars Vater Graf Gebhard, der Billungerherzog Magnus, Lothars Großmutter Gertrud von Braunschweig, Wiprecht von Groitzsch, Ludwig der Springer sowie die Grafen von Stade, Wettin und Ballenstedt. Einzelheiten zu Gestalt, Struktur und Verlauf der Fürstenopposition gegen Heinrich IV. sollen in diesem Zusammenhang nicht näher erläutert werden 397. Nur ein
- ____
- 395 Zum Stand der Adelsforschung vgl. zuletzt T. Biller, Der mittelalterliche Adel als Forschungsproblem, in: Die Adelsburg in Deutschland. Entstehung, Form und Bedeutung, München 1993, S. 49-51.
- 390 Den Verlauf des Orlamünder Erbschaftsstreits beschreibt zusammenfassend Hildebrand 1986, S. 16-23, 41-56.
- 397 Vgl. zum Thema H. Stoob, Über den Schwerpunktwechsel in der niederdeutschen Adelsführung während des Kampfes gegen den salischen Herrscher, in: Ecclesia et Regnum, Festschrift für F.-J. Schmale, Bochum 1989, S. 121-137; K. Jordan, Herzogtum und Stamm in Sachsen während des hohen Mittelalters, in: NiedJbLdG 30, 1958, S. 1-27; speziell zur Zeit Heinrichs IV. vgl. Fenske 1977, S. 13-45 und Schlick 2001, S. 26-48.
- ____
- 160
- wichtiger Aspekt sei genannt: Der in erster Linie lokalpolitische Interessen verfolgenden und aus dem Gefühl sächsischer Überlegenheit handelnden Gegnerschaft Heinrichs IV. schlossen sich zunehmend auch kirchliche Reformkräfte an. Beiden Parteien lag die Schwächung der Reichsgewalt am Herzen, so daß die antisalische Fürstenopposition zunehmend zum Podium weltlicher Kaisergegner und gregorianischer Kirchenreformer wurde 398.
- Dieser reformkirchliche Wesenszug war auch oberstes Leitmotiv der Oppositionsgruppe gegen Heinrich V., die im frühen 12. Jahrhundert unter der Führung Lothars von Süpplingenburg um die Unabhängigkeit Sachsens von der salischen Reichsgewalt kämpfte. Zu den Widersachern Heinrichs V. gehörten Markgraf Rudolf von Stade, Otto von Ballenstedt und Gertrud von Braunschweig, die jüngere Generation der Grafen von Groitzsch, von Thüringen, von Plötzkau und von Sommerschenburg 399, die sich gemeinsam mit führenden sächsischen Reformkräften wie Bischof Reinhard von Halberstadt, Erzbischof Adalgoz von Magdeburg und der kölnischen Reformgruppe um Erzbischof Friedrich gegen das salische Königtum auflehnte und in der Schlacht bei Welfesholz 1115 den militärischen Sieg davontrug 400.
- Den eigentlichen Triumph dieser Schlacht feierten die sächsischen Oppositionellen aber erst zehn Jahre später, als ein Mann aus ihrer Mitte - Herzog Lothar von Sachsen - zum König nominiert und 1125 auch in dieses Amt gewählt wurde. Durch den gemeinsamen politischen Kampf gegen die Salier im Geiste verbrüdert und durch vielfache Familienbindungen aufeinander angewiesen, war das Verhältnis Lothars zu den sächsischen Reichsfürsten auch nach dieser Wahl von gegenseitiger Anerkennung und Abhängigkeit gekennzeichnet. Möglicherweise stand Lothar sogar in der Pflicht, die aus der alten Oppositionsbindung resultierenden gesellschaftlichen Kräfte, die ihn an die Spitze des Reiches gebracht hatten, in besonderer Weise zu begünstigen. So wundert es nicht, daß die
- ____
- 398 W. Giese, Reichsstrukturprobleme unter den Saliern - Der Adel in Ostsachsen, in: Die Salier und das Reich 1991, Bd. 1, S. 302 spricht von einem Zweckbündnis zwischen Gregorianern und Oppositionellen und bezeichnet den ostsächsischen Adel als Träger wichtiger Reformideen und als einen nicht zu unterschätzenden Machtfaktor der gregorianischen Reformbewegung.
- 399 Zu den Mitgliedern der Fürstenopposition unter Lothar von Sachsen vgl. Vogt 1959, S. 12-30; Fenske 1977, S. 340-352.
- 400 J. Prinz, Der Zerfall Engerns und die Schlacht bei Welfesholz, in: Ostwestfälisch-weserländische Forschungen zur geschichtlichen Landeskunde, hrsg. von H. Stoob, Münster 1970, S. 75-112.
- ____
- 161
- oppositionellen sächsischen Adligen nach 1125 als königstreue Parteigänger oder persönliche Vertraute geschlossen an der Seite Lothars III. anzutreffen sind.
- Ein weniger mit der unmittelbaren politischen Geschichte verbundener Grund für die wachsende Bedeutung einzelner Reichsfürsten im Königtum Lothars III. ist die veränderte Rolle des Adels in der Gesellschaft nach dem Investiturstreit. Schließt man sich einer von der historischen Forschung wiederholt geäußerten Meinung zum Investiturstreit an, dann war der Adel als eigentlicher Gewinner aus dem Kampf zwischen Kaiser und Papst hervorgegangen 401. Der Adelsstand hatte durch den wachsenden Einfluß auf die Reichspolitik, als reale Gegenmacht zum Königtum, an Selbstbewußtsein und Eigenständigkeit gewonnen. Dabei war nicht mehr allein die politische Nähe zum König entscheidend, auch Herkunft und eigener Stammsitz, mit dem häufig ein Hauskloster als Grablege für die Familienmitglieder verbunden war, nahmen einen wichtigen Platz in der Politik und im Denken der Adligen ein. Und so suchte sich der aristokratische Ehrgeiz einer politisch und gesellschaftlich aufstrebenden Adelsschicht auch in der öffentlichen Darstellung seinen Weg: Die Stiftung eines Hausklosters wurde - neben dem liturgischen Totengedenken, d. h. der Memoria der Stifterfamilie durch den Konvent - auch zu einem wichtigen Faktor adliger Herrschaftsdemonstration 402. Wenn hohe Reichsfürsten wie beispielsweise die Grafen von Sommerschenburg in Mariental, die Grafen von Plötzkau in Hecklingen oder Bischof Sigward von Minden in Idensen Hausklöster mit Familiengrablegen oder persönliche Grabkapellen gründeten, dann begaben sie sich damit bewußt in die Sphäre des königlich-kaiserlichen Ahnenkultes 403.
- ____
- 401 Hechberger 1996, S. 252 Anm. 62 mit einer Zusammenfassung des Forschungsstandes und Laudage 1984, S. 24-32.
- 402 Zur Bedeutung und zum verstärkten Aufkommen des Memoriagedankens im 12. Jahrhundert vgl. H. Patze, Adel und Stifterchronik. Frühformen territorialer Geschichtsschreibung im hochmittelalterlichen Reich, in: BLDL 100, 1964, S. 8-81, 101 und 1965, S. 67-128 sowie die Forschungen von W. Sauerländer und J. Wollasch, Stiftergedenken und Stifterfiguren in Naumburg; O. G. Oexle, Memoria und Memoriabild; K. Schmid, Die Sorge der Salier um ihre Memoria, in: Schmid/Wollasch 1984 mit weiterführender Literatur.
- 403 Hierzu vermerkt Leyser 1984, S. 151: „Westliche Könige wurden gesalbt, ihre Großen aber nicht, sie hatten mit ihnen jedoch den Ahnenkult gemeinsam, und durch ihre Hausklöster und ihr geistliches Gefolge wollten die führenden adeligen Familien sich ebenfalls erhöhen. Die Grabstätten der Großen in ihren Hausklöstern, die oft zu ihren Wohnsitzen gehörten, entsprachen den großen königlichen Grablegen wie Quedlinburg und Speyer und Gedenkstätten wie Memleben und Nordhausen.“
- ____
- 162
- Gesellschaftliches Selbstbewußtsein, gepaart mit einem persönlichen Verhältnis zum König, hat zahlreiche Bündnispartner und Stammes- wie Standesgenossen Lothars III. motiviert, neben der politischen Parteigängerschaft auch als Stifter und Auftraggeber bedeutender Bau- und Kunstwerke eine Verbundenheit zur Politik und zur Person des Kaisers zu dokumentieren. So verschieden die Beweggründe einzelner Adelsstifter für ihre Nähe zum kaiserlichen Hof waren, so unterschiedlich gestalten sich auch die künstlerischen Bezüge ihrer Stiftungen zur sächsischen Kaiserbaukunst unter Lothar. Keineswegs geradlinig und einem kongruenten Schema entsprechend können Beziehungen zwischen dem Kaiser und seinen Parteigängern sowie den kaiserlichen Stiftungen und den Adelsklöstern hergestellt werden. Vielmehr beherrschen Variationen, Abwandlungen und Spielarten das Geflecht persönlich-politischer Verbindungen und somit auch die Bau- und Kunstformen im lotharisch geprägten Umfeld. Diese Vielfalt aufzuzeigen und ihren Ursprüngen nachzugehen, ist das Ziel der folgenden Kapitel.
- IV.1.1. Die adeligen Parteigänger und ihre Kirchenbauten
- Die Auswahl der im Folgenden vorgestellten Mitglieder des sächsischen Hochadels, die als politische Weggefährten Lothars III. durch ihre Kirchenstiftungen zu den vielfältigen künstlerischen Reflexionen der lotharischen Baukunst beigetragen haben, stützt sich hauptsächlich auf den bei Wolfgang Petke (1985) untersuchten Personenkreis im lotharischen Umfeld. Petke ermittelt anhand von Zeugenlisten der kaiserlichen Diplome und in ergänzenden Studien zu historiographischen Quellen zahlreiche, dem kaiserlichen Hof in besonderer Weise verpflichtete Parteigänger 404. Die dort getroffene Reihenfolge, die sich an der Häufigkeit der Aufenthalte eines jeden Adligen bei Hofe orientiert, wurde auch den folgenden Abschnitten über ausgewählte Parteigänger und ihre Stiftungen zugrundegelegt. Allerdings konnte dabei nicht jeder bei Petke erfaßte Ratgeber, Vertraute oder Helfer Lothars III. berücksichtigt werden. Die hier getroffene Auslese wurde durch ein zweites Kriterium bestimmt: Im Rahmen dieser kunsthistorisch und auf den architekturgeschichtlichen Umkreis von Königslutter ausgerichteten Arbeit wurden nur die Personen herausgestellt, die sich neben ihrer politischen Parteigängerschaft zu Lothar III. auch als Stifter, Bauherren oder Förderer von sächsischen Kirchenbauten in der Königslutter-Nachfolge erwiesen haben. Damit reduzierte sich der
- ____
- 404 Zur Erläuterung seines methodischen Vorgehens vgl. Petke 1985, S. 1-13 und S. 106-117.
- ____
- 163
- Personenkreis auf diejenigen Vertreter des sächsischen Adels, deren Familienklöster oder Grablegen in der Regierungszeit Lothars III. (1125-1137) oder kurz danach gegründet wurden und denen die Förderung bestimmter Bauwerke aus familiären, politischen oder reformkirchlichen Gründen besonders am Herzen lag.
- Keine Berücksichtigung fanden Personen, die die Schriftquellen besonders häufig in der Nähe des Kaisers erwähnen, deren Familienklöster aber erst von ihren Nachkommen weit nach dessen Regierungszeit gegründet wurden. So ist beispielsweise Graf Ludolf von Wöltingerode (†1153) verhältnismäßig oft am kaiserlichen Hof nachgewiesen. Das erst um 1174 vom Grafengeschlecht gestiftete Hauskloster St. Maria in Wöltingerode (bei Goslar) zeigt jedoch keine Elemente der Königslutter-Nachfolge 405. Desgleichen mußten bedeutende Berater des Kaisers wie die Grafen von Stade unberücksichtigt bleiben, deren Stifümgen (Heeslingen, Harsefeld, St. Georg in Stade) die Jahrhunderte nicht überstanden haben 406.
- Die im Anschluß vorgestellten kirchlichen Parteigänger Lothars III. kamen alle aus teilweise antisalisch geprägten Adelsfamilien und waren somit gleichsam adelige Parteigänger des Kaisers, so daß die Unterscheidung zwischen adeligen und kirchlichen Parteigängern zunächst irreführend erscheint. Dennoch wurde die Gliederung in zwei Gruppen der besseren Übersicht halber getroffen, und die Adelsmitglieder und die Vertreter der Hofgeistlichkeit werden mit ihren Kirchenstiftungen separat behandelt.
- IV.1.1.1. Albrecht der Bär
- Der Sachse Albrecht der Bär (1100-1170), Sproß des askanischen (später Ballenstedter) Grafengeschlechts, gehörte schon früh zum politischen Kreis um Kaiser Lothar. Bereits sein Vater Otto hatte als Mitglied der antisalischen Fürstenopposition an Lothars Seite gekämpft und eine Parteigängerschaft begründet, die nicht nur von treuer Ergebenheit gezeichnet war,
- ____
- 405 Petke 1985, S. 216 konnte insgesamt zehn Aufenthalte für Ludolf am kaiserlichen Hof nachweisen.
- 406 Auch werden die gotischen, barocken oder neuzeitlichen Bildzeugnisse Lothars III.‚ wie beispielsweise die Darstellung des Kaisers in einer Handschrift des 14. Jahrhunderts, wo er gemeinsam mit Innozenz II. dargestellt ist [Scriptum super apocalypsim cum imaginibus (Wenceslai Doctoris), Faksimile von 1873 in der Bibliothek des Prager Metropolitankapitels (Cim 5, S. 239)], das Deckengemälde des Cosmas Damian Asam in Osterhofen-Altenmark (Szenen aus dem Leben des Hl. Norbert, 1730/35) oder die Statue Lothars III. an der Fassade des Hamburger Rathauses (19. Jh.) in dieser Arbeit nicht behandelt.
- ____
- 164
- sondern eine gleichsam ambivalente Beziehung darstellte. Vermutlich seit 1112, als Kaiser Heinrich V. Lothar für wenige Monate die sächsische Herzogenwürde entzog und statt seiner Otto von Ballenstedt damit belehnte, schwelte zwischen beiden Adelshäusem ein Konkurrenzkampf um die Vormacht in Sachsen 407. Wohl nicht zuletzt aus diesem Grunde zog Albrecht der Bär sofort nach Lothars Tod gegen Richenza und ihre Verbündeten ins Feld, um die Position des sächsischen Herzogs erneut für seine Familie in Anspruch zu nehmen. In diesem Vorhaben sollte er aber gegen Lothars Schwiegersohn, Heinrich den Stolzen, scheitern 408.
- Den Herrschaftsmittelpunkt der Ballenstedter Grafen bildete das im Harzgebiet gelegene, vom Ahnenvater Esico um 1040 gegründete Augustinerchorherrenstift St. Pancratius und Abundus in Ballenstedt. Albrecht selbst wird in den Quellen nicht als Vogt dieser Stiftung bezeichnet, doch spricht seine Position als Klostervogt über die Prämonstratenserniederlassungen in Leitzkau, Jerichow und Kölbigk, die Reichsabtei Nienburg sowie die Klöster Hecklingen und Frose dafür, auch die Vogtei über St. Pancratius, dem Hauskloster des Ballenstedter Adelsgeschlechtes, in seiner Hand zu vermuten 409.
- In Ballenstedt entstand ab 1123 in mehreren Bauphasen ein groß angelegter Neubau, mit dem auch die Umwandlung des ottonischen Augustinerchorherrenstifts in ein vom Magdeburger Kloster Berge aus hirsauisch reformiertes Benediktinerkloster einherging 410. Dem Beispiel zahlreicher
- ____
- 407 Zu den Grafen von Ballenstedt und zur Rolle Ottos im antisalischen Fürstenbündnis vgl. H. Assing, Die Anfänge askanischer Herrschaft im Raum Köthen, in: Mitteilungen des Vereins für Anhaltische Landeskunde 1, 1992, S. 28-38; Fenske 1977, S. 342 und Petke 1985, S. 349-360.
- 408 L. Partenheimer, Albrecht der Bär, Konrad III. und die Partei Heinrichs des Stolzen im Kampf um das Herzogtum Sachsen (1138-1142), in: Mitteilungen des Vereins für Anhaltische Landeskunde 4, 1995, S. 78-112; vgl. auch ders., Albrecht der Bär - Gründer der Mark und des Fürstentums Anhalt, Köln 2001.
- 409 Zu den Klostervogteien Albrechts vgl. W. Korf, Ballenstedt. Kloster, Schloß und Schloßbezirk, München/Berlin 21996, S. 8; C. Römer, Orden und Klöster im Mittelelberaum 1076-1192, in: Erzbischof Wichmann (1152-1192) und Magdeburg im hohen Mittelalter, hrsg. v. M. Puhle, Magdeburg 1992, S. 65; K. Schulze, Adelsherrschaft und Landesherrschaft. Studien zur Verfassungs- und Besitzgeschichte der Altmark, des ostsächsischen Raumes und des hannoverschen Wendlandes im hohen Mittelalter, Köln [u.a.] 1963, S. 105-110.
- 410 Zur Gründungsgeschichte von Ballenstedt vgl. T. Stenzel, Urkundliches zur Geschichte der Klöster Anhalts, VII. Abtei Ballenstedt, in: MVAGA 4, 1885; zur Datierung und Baugeschichte vgl. F. Maurer, Die Schloßkirche St. Pancrati in Ballenstedt, in: ZBw 39/1889; A. Brinckmann, Die Ballenstedter Klosterkirche, das Vorbild für die Conradsburger, in: DpflHSch 29, 1927, S. 165-169; L. Lambacher, Untersuchungen zur Kapitellplastik und Baugeschichte der ehemaligen Benediktiner-Klosterkirche St. Pancratius und Abundus in Ballenstedt am Harz, in: Forschungen und Berichte 29/30, Berlin 1990, S. 167-196.
- ____
- 165
- sächsischer Reformklöster wie Drübeck, Gröningen oder Hamersleben folgend, hatte die dreischiffige flachgedeckte Säulenbasilika mit östlichem Pfeilerpaar (chorus minor) ein ausladendes Querhaus mit apsidial schließendem Sanktuarium und begleitenden Nebenchören mit kleinen Ostapsiden. Nach der Rekonstruktion von Lothar Lambacher trennten massive Pfeiler den Hauptchor von den doppeljochigen und kreuzgratgewölbten Nebenchören (Abb. 129) 411.

- Damit folgte die einstige Ballenstedter Choranlage der Gestalt des Königslutterer Sanktuariums mit seiner prägnanten Pfeilerstellung. Auch der doppeltürmige Westriegel mit einem mittleren Kapellenraum (St. Nicolai), der in seinen unteren Teilen noch zum romanischen Baubestand gehört, sowie der achteckige Turm über der Vierung erinnern an Königslutterer Bauformen 412.
- Zur Datierung des Ballenstedter Neubaus, von dem heute nur noch Teile der Krypta und des Westbaus erhalten sind, gehen die Forschungsmeinungen - abgesehen vom terminus post quem von 1123 für den Baubeginn - auseinander, pendeln sich aber in den 70er Jahren des 12. Jahrhunderts für den Abschluß der Bauarbeiten ein 413. Den jüngsten Forschungen zufolge ist Ballenstedt (III), so die Bezeichnung des Neubaus bei Lambacher, weitgehend einheitlich bis etwa 1175 entstanden und verarbeitet „unterschiedlichste Traditionslinien sächsischer Bauplastik“, die ihre „Voraussetzungen auch in den Königslutterer Ornamentformen finden“ 414.
- Dies läßt sich hauptsächlich anhand der Kapitellornamentik in der Krypta nachvollziehen 415. Besonders zwei Kapitelle, eines mit Palmetten-Lotusmotiv, ein anderes mit Diamantbogen-Palmettendekor (Abb. 131),
- sind wie die Kapitelle im Sanktuarium und in den Nebenchören von Königslutter (Abb. 56, 58) in Kombination mit Schachbrettkämpfern versetzt. Von Lambacher wurde auch auf die stilistische Nähe eines ehemaligen Langhauskämpfers verwiesen, der heute als Kämpfer eines im Westbau aufgestellten Würfelkapitells dient: Sein Palmettenfries (Abb. 132)

- ____
- 411 Lambacher 1990, S. 188.
- 412 Der achteckige Vierungsturm kann einer Stadtansicht von 1710 zufolge nachgewiesen werden Vgl. ebd., S. 170.
- 413 Ebd., S. 188-190 und H. J. Krause in: Dehio (Bezirk Halle) 1976, S. 22-23, wo der Neubau von Ballenstedt (III) in die zweite Hälfte des 12. Jahrhunderts gegen Brinckmann 1927, S. 168 (erste Hälfte des 12. Jahrhunderts) datiert wird.
- 414 Lambacher 1990, S. 182.
- 415 Die Krypta wurde bereits in der zweiten Planungsphase (vor 1123) als dreischiffiger Hallenraum errichtet, der im Zuge der Reformierung des Klosters zu einer fünfschiffigen Krypta umgebaut wurde. Vgl. ebd.‚ S. 187.
- ____
- 166
- gleicht in auffallender Weise demjenigen, der die Pfeiler der Königslutterer Vierung umläuft (Abb. 60),

- was für eine unmittelbare Vorbildwirkung der Königslutterer Bauskulptur auf die in Ballenstedt nach 1150 entstandenen Bauteile spricht 416. Desgleichen belegt die Verwendung von Ecksäulen an einem heute die Hauptstütze des kreuzgratgewölbten Refektoriums bildenden Freipfeilers (Abb. 130),

- daß man auch in Ballenstedt die am Königslutterer Apsisbogen vorgebildete Gliederung des Pfeilerkerns durch das Ecksäulenmotiv rezipierte 417.
- Offensichtlich stand also die Ballenstedter Bauplastik im Bereich der Krypta und die Grundrißdisposition im Chorbereich unter dem gestalterischen Einfluß der Königslutterer Kaisergrablege. Daß diese bau- und stilgeschichtliche Wechselwirkung zwischen Ballenstedt und Königslutter als ein Indiz für die politische Parteigängerschaft Albrechts des Bären zu Kaiser Lothar gelten kann, zeigen die folgenden Überlegungen.
- Die zeitliche Einordnung des Neubaus von Ballenstedt (III) in die Jahre 1150-1170, der eine Säulenbasilika mit östlichem Pfeilerpaar, Dreiapsidenchor nach Königslutterer Vorbild und die Erweiterung der dreischiffigen Krypta zu einer fünfschiffigen Unterkirche vorsah, spricht für die maßgebliche Beteiligung des 1170 verstorbenen Albrechts des Bären am Baugeschehen. Es ist anzunehmen, daß noch dessen Vater Otto von Ballenstedt die Stiftsreform von St. Pancratius und Abundus angeregt und in diesem Zuge auch einen, den Gründungsbau von 1046 (Ballenstedt I) ersetzenden, größeren Kirchenbau (Ballenstedt II) initiert hatte 418. Doch erst Albrecht veranlaßte nach dem Tod des Vaters und dem Einzug des
- ____
- 416 Ebd.‚ S. 178-180 werden in akribischer Weise die stilistischen Parallelen beider Kämpferfriese beschrieben und analysiert, so daß auf eine erneute Darstellung der gestalterischen Einzelheiten an dieser Stelle verzichtet wurde.
- 417 Lambachers Darstellung (ebd. S. 177), es handle sich bei dem Stützentyp Pfeiler mit Ecksäulen um eine Variante des in der Ballenstedter Krypta erstmals auftretenden Bündelpfeilers mit Ecksäulen (Abb. 133a), muß widersprochen werden. Die Bündelpfeiler in der Ballenstedter Krypta stehen mit ihren ausgeprägten Eckrundstäben in der Tradition einiger Krypten des 11. Jahrhunderts, wie beispielsweise der von Merseburg (Abb. 61) oder Hadmersleben, wo die Grundform der Pfeiler durch weniger filigran wirkende Eckrundstäbe mit fast stützenhaftem Charakter ausgebildet sind. In diesen typologischen und zeitlichen Zusammenhang gestellt, gehört der Ballenstedter Bündelpfeiler vielleicht zu der schon vor 1123 bestehenden Krypta und wurde in den Umbau zur fünfschiffigen Unterkirche integriert. Wie die eigene Entwicklung der dekorativen Eck- und Kantensäulchen ausgehend vom Königslutterer Ostbau zeigte, hat der Bündelpfeiler keine Auswirkungen auf das Ecksäulenmotiv.
- 418 Diese These korrespondiert mit dem Vorschlag Lambachers 1990, S. 187, in Ballenstedt (II) einen noch vor 1123 begonnenen Umbau der Gründungskirche zu vermuten.
- ____
- 167
- Reformkonvents aus Kloster Berge die aufwendige Umgestaltung und bestimmte Ballenstedt zur Familiengrablege. Zwar wurde entgegen Hirsauer Baugewohnheiten die dreischiffige Krypta vom Vorgängerbau (Ballenstedt II) übernommen und sogar zu einer fünfschiffigen Anlage ausgebaut, doch stand bei dieser Entscheidung vermutlich das Ziel im Vordergrund, in Ballenstedt ein Zentrum landesherrlicher Familienmemoria einzurichten. Die Krypta selbst diente vermutlich nicht als Sepulkralraum, da dort keine Grabstellen belegt sind 419. Jedoch sicherte eine Krypta, zumindest in Verbindung mit einem Altar oder einem Reliquiengrab, die Häufung liturgischer Handlungen (Votiv- und Totenmessen) und erhöhte die Anziehungskraft und den Status der Klosterkirche.
- Darüberhinaus stellte die mit ihrer Fünfschiffigkeit doch zu den aufwendigeren Beispielen in Sachsen zählende Krypta sicherlich auch den Anspruch dar, Vorbilder imperialer Herrschaftsarchitekturen (wie z. B. die Speyerer Krypta) in den Neubau von Ballenstedt (III) einzubinden 420. Denn beim Aufbau des memorialen Kultzentrums eines aufstrebenden sächsischen Adelsgeschlechtes spielten lokale Traditionen zwar eine Rolle, doch waren gerade diese im 12. Jahrhundert in Sachsen gleichsam von der Reform- und der Kaiserbaukunst geprägt. In diesem Zusammenhang erinnert die Tatsache, daß ein hirsauisch reformierter Konvent den Ausbau einer weitläufigen Unterkirche befürwortete, im Langhaus und Chor aber eine reformtreue Bauweise anstrebte (dreischiffiger Chor, chorus minor), an die Verknüpfung dynastischer und reformkirchlicher Gestaltungsprinzipien, die auch das große Vorbild dieser Jahre, die Kaisergrablege in Königslutter, bestimmte. Es stellt sich daher die Frage, ob dieser „innere Gegensatz“ 421, der die Architektur von Ballenstedt (III) ausmacht, als eine unmittelbare Reaktion auf die durch die Baukunst Lothars III. gesetzten künstlerischen Maßstäbe anzusehen ist. Dies ist angesichts Albrechts Unterstützung der progregorianischen und antisalischen Politik Lothars III. zu vermuten, da sich bereits im frühen Bündnis der Ballenstedter Grafen mit der sächsischen Adelsopposition und in der späteren Beteiligung Albrechts an der Politik Lothars (Italienzüge, Böhmenfeldzug, Unterstützung der Missionspolitik Ottos von Bamberg) zunächst einmal eine
- ____
- 419 Nach Lambacher 1990, S. 187, 195 Anm. 172 ist ein Doppelgrab in der Nikolauskapelle im Westturm nachgewiesen.
- 420 Fünfschiffige Krypten nördlich des Harzes sind in dieser Zeit nur noch für Drübeck und Konradsburg nachweisbar. Vgl. Lambacher 1990, S. 190.
- 421 So charakterisiert Lambacher 1990, S. 190 die Gegenüberstellung von dem hirsauisch geprägten Kirchenschiff und den repräsentativen Bauteilen des Westriegels und der großräumigen Krypta.
- ____
- 168
- gemeinsame politische und kirchenpolitische Marschrichtung abgezeichnet hatte 422.
- Bedenkt man nun weiter, daß der Ausbau des Ballenstedter Benediktinerklosters in die Zeit der Markgrafschaft von Albrecht dem Bären (1150/7-1170) fiel, der an der Seite Lothars vom Lokaladligen zu einem führenden Reformträger Sachsens aufgestiegen war, dann kann der Neubau von Ballenstedt (III) durchaus als architektonische Stellungnahme Albrechts zur Kaiserbaukunst Lothars gedeutet werden. Denn der Neubau verband insbesondere im Westbau, mit seiner Doppelturmfassade, dem dort vermuteten Stiftergrab und einer im Obergeschoß angenommenen Stifter- oder Herrscherempore 423, reformarchitektonisches und imperiales Bauen (sowohl in Hirsau als auch in Königslutter gab es Doppeltürme über den Westbauten) und setzte damit die wesentlichen Gestaltungsprinzipien der Kaisergrablege um. Auch die von Lambacher rekonstruierte Raumgestalt des Chores, der durch massive Wandpfeiler zwischen Sanktuarium und Chorseitenkapellen gleichermaßen trennt und verbindet, hat ihren gestalterischen Vorläufer in den Königslutterer Chorarkaden. Dabei adaptieren die Ballenstedter Chorstützen jedoch nicht den imperialen Stilgriff der vorgestellten Säulen mit korinthisierenden Kapitellen oder die Querhausapsiden des kaiserlichen Vorbildbaus, sondern belegen diesen bedeutenden Raumteil durch eine einfache Pfeilerstellung mit einem insgesamt bescheideneren Anspruch.
- Allerdings scheint man dieser Zurückhaltung gleichsam entgegenzuwirken. Denn für die einst im Ballenstedter Langhaus versetzten Kämpfer nahm man den aufwendigen Palmetten-Lotusdekor der Königslutterer Vierungspfeilerkämpfer nicht nur zum Vorbild, sondern kopierte diesen fast spiegelbildlich. Auch vermittelt die in der Krypta praktizierte Übernahme antikisierender Kapitellformen mit Schachbrettkämpfern, wie sie in Königslutter ausschließlich im Chorbereich vorkommen, einen ganz besonderen Anspruch, in dem sich vielleicht eine vom Bauherrn beabsichtigte Analogie zeigt. Denn gerade im Raumteil der Krypta konnte auf die parallele Funktion von Ballenstedt und Königslutter als Adels- und Kaisergrablege abgezielt werden und vielleicht vom Bauherrn gewünschte Korrespondenzen durch vergleichbare Bauskulptur zum Ausdruck gebracht werden.
- So bleibt abschließend festzuhalten, daß Albrecht der Bär, sofern er für den großangelegten Neubau von Ballenstedt (III) als Familiengrablege
- ____
- 422 Petke 1985, S. 356 gelangt sogar zu der Einschätzung, in Albrecht dem Bären „eine der wichtigsten Personen in der Umgebung des Herrschers“ zu sehen.
- 423 Korf 1996, S. 6.
- ____
- 169
- verantwortlich war, die Bau- und Schmuckformen aus gleichermaßen dynastischen und reformerischen Elementen kombinierte, die Reformierung Mönchen aus Kloster Berge anvertraute und damit in entscheidenden Punkten den Königslutterer Gegebenheiten folgte. Damit einher gehen Übereinstimmungen in Idee, Anspruch und Umstellung der beiden Dynastenklöster, deren Bauherren, Kaiser Lothar III. und Markgraf Albrecht, zeitweise in Rivalität um die sächsische Herzogenwürde standen und vielleicht auch deshalb die architektonischen Lösungen ihrer Grablegen in Konkurrenz stellten.
- IV.1.1.2. Friedrich II. von Sommerschenburg
- Mit der Gründung von St. Marien bei Helmstedt (Mariental) durch den sächsischen Pfalzgrafen Friedrich II. von Sommerschenburg (1120-1162) gelangt erstmals ein Bau des Zisterzienserordens in den Kontext der sächsischen Lotharbaukunst. Friedrich II. von Sommerschenburg gehörte als Sohn Friedrichs I. (1088-1120) zu einer der vornehmsten Adelsfamilien des Reiches, die traditionell antikaiserlich eingestellt war und seit dem Investiturstreit wiederholt die Nähe zu den führenden Reformkräften Sachsens gesucht hatte 424. Dies belegen Verbindungen zu den überwiegend in der Diözese Halberstadt gelegenen Reformklöstern Huysburg, Walbeck, Helmstedt und den Augustinerchorherrenstiften Hamersleben und Schöningen, denen die Sommerschenburger als Vögte vorstanden. Hinzu kamen Vogteirechte an den Reichsabteien Gandersheim und Quedlinburg, denen sogar eine Äbtissin aus dem Geschlecht der Sommerschenburger (Adelheid III., †1184) in Personalunion vorstand 425. Der Großteil der Sommerschenburger Grafenrechte und Besitzungen lag östlich des Elm, direkt an den Herrschaftsbereich Lothars grenzend, in unmittelbarer Nähe zu Königslutter 426. So wundert es nicht, daß Friedrich II., der mit 13 Aufenthalten an Lothars Hof zu den engsten Vertrauten des Kaisers zählte, nur wenige Kilometer von Königslutter entfernt das Sommerschenburger Hauskloster St. Maria gründete.
- ____
- 424 Zu den Grafen von Sommerschenburg vgl. H. D. Starke, Die Pfalzgrafen von Sommerschenburg (1088-1179), in: JbGMittel-Ostdtld 4, 1955, 1-71 und B. U. Hucker, Friedrich II. von Sommerschenburg Pfalzgraf von Sachsen - Reichsfürst und Klostergründer (1125-1169), in: Das Zisterzienserkloster Mariental 1138-1988, hrsg. v. Braunschweigischen Vereinigten Kloster- und Studienfonds, München 1989 (folgend zitiert als Festschrift Mariental 1989), S. 114-126.
- 425 A. Schulte, Der Adel und die deutsche Kirche im Mittelalter. Studien zur Sozial-‚ Rechts- und Kirchengeschichte, Stuttgart 1910 (ND Darmstadt 1966), S. 402.
- 426 Starke 1955, S. 52-64.
- ____
- 170
- Die zur Familiengrablege bestimmte Stiftung, neben St. Maria in Amelungsborn die früheste Niederlassung der Zisterzienser in Sachsen, wurde von Altenberg/Niederrhein (1133) aus besiedelt 427. Grund dafür wird die verwandtschaftliche Beziehung der Mutter Friedrichs II., Adelheid von Sommerschenburg, nach Altenberg gewesen sein, die in erster Ehe mit dem dortigen Klostergründer, dem westfälischen Grafen Adolf von Berg, verheiratet war 428. Trotz dieser Verbindungen zum Niederrhein lag das politische Herrschaftszentrum des Sommerschenburgers in Sachsen, und der mit hohem Ansehen verbundene Rang der sächsischen Pfalzgrafenwürde, wie auch die unmittelbare Nachbarschaft zum süpplingenburgischen Hausgut Lothars III., machten Friedrich zum wichtigsten Parteigänger des Kaisers 429.
- Die Stiftung Marientals, von Friedrich zwischen 1134 und 1138 zur Familiengrablege der Sommerschenburger bestimmt, fällt in genau den Zeitraum, in dem Lothar die Gründung Königslutters veranlaßt hatte 430. Doch können die Unterschiede der beiden nur wenige Kilometer voneinander entfernten Grablegen kaum größer sein. Mariental vertritt als flachgedeckte Pfeilerbasilika mit Querhaus, gerade geschlossenem Chorquadrat, zwei quadratischen Seitenkapellen (im 19. Jh. abgebrochen) und ohne aufwendigen Bauschmuck einen Typus zisterziensischer Raumgestalt, der an Schlichtheit kaum zu unterbieten ist (Abb. 134-136) 431.
- Einzige Bauzier des Kircheninneren sind die ohne erkennbares Prinzip alternierenden Kämpferprofile der Mittelschiffpfeiler, die von Varianten der Hohlkehle mit kräftigem Wulst über die einfache Schmiege bis zur Karnies- und attischen Profilierung reichen. Diese Formen haben zwar an den Kämpfern der Mittelschiffpfeiler in Königslutter formale Parallelen,
- ____
- 427 Der Konvent von Mariental kam zwar aus Altenberg, einer Filiation des französischen Reformklosters Morimond, der Gründungsabt aber - so vermutet Maier 1987/88, S. 32 - aus dem bereits um 1130 gegründeten ersten sächsischen Zistenienserkloster Amelungsborn.
- 428 Starke 1955, S. 9.
- 429 Starke 1955, S. 21 bezeichnet den Pfalzgrafen Friedrich neben Lothar und Albrecht dem Bären als die damals wichtigste Persönlichkeit Sachsens. Vgl. auch Petke 1985, S. 208-209.
- 430 Die Altenberger Mönche sind 1138 erstmals in Mariental nachzuweisen, können aber nicht vor 1133, dem Gründungsjahr der Zisterze Altenberg, nach Sachsen gekommen sein. Die Überlieferungen zum Gründungsdatum von Mariental diskutiert Hucker in: Festschrift Mariental 1989 (wie Anm 424), S. 119 Anm. 30.
- 431 Zur Baugeschichte vgl. C. Segers-Glocke, Die ehemalige Zisterzienserklosterkirche Mariental. Ein bauhistorischer Beitrag zu ihrer ursprünglichen Gestalt, Phil. Diss. Berlin 1977; K. B. Kruse, Erste Ergebnisse der bauarchäologischen Untersuchungen an der Zisterzienserkirche Mariental, in: Berichte zur Denkmalpflege in Niedersachen 6, 1986, S. 99-101.
- ____
- 171
- doch werden weder die fein gebildeten attischen Basisprofile von dort übernommen, noch sind irgendwo im Langhaus Spuren des variantenreichen antikisierenden Königslutterer Kapitellschmucks zu finden.
- Erst die der zweiten Hälfte des 12. Jahrhunderts zugeschriebenen Bauteile zeigen einige dezente Versuche, die Architektur mit bauplastischen Details zu gestalten und dabei auch an die künstlerische Tradition der Königslutterer Bauzier anzuknüpfen. Sowohl die spätromanische Wölbung des Sanktuariums mit den Palmettenfächer- und korinthisierende Kapitelle tragenden Diensten und Konsolen (Abb. 137)

- als auch der Klausurbereich stehen unter dem Einfluß der Königslutterer Bauschule. So können beispielsweise die Widderkopfkonsole und das Dienstkapitell im Marientaler Sanktuarium mit den an den Kapitellkanten aufeinanderstoßenden Voluten einfacher Diagonalblätter mit Vorbildern im Königslutterer Nordquerhaus in Verbindung gebracht werden: Besonders auffällig sind die Parallelen zwischen den äußeren Kapitellen am Nordquerhausportal und den, wenn auch weniger stilisierten, Tierkopfmasken des Königslutterer Apsisäußeren (Abb. 48, 69) 432.
- Im Klausurbereich sind es die Ecksäulen als Portalrahmungen oder an Halbpfeilervorlagen (Abb. 139, 140a) und einige Palmettenfächerkapitelle an den Kapitelsaalfenstern (Abb. 140b,c), die in engem Anschluß an Königslutter entstanden sind 433.
- Auch am Außenbau zeigt sich Königslutterer Einfluß: Das ebenfalls in die zweite Bauphase (nach 1150) zu datierende Stufenportal an der mit Lisenen, Bogenfries und profiliertem Sockel aufwendig gestalteten Westfront (Abb. 138)

- adaptiert zwar nicht in den tektonischen Einzelheiten, wohl aber im Gesamtcharakter, das Nordquerhausportal von Königslutter (Abb. 48).

- Dagegen fehlen in Mariental markante Details des Königslutterer Portals, wie beispielsweise die korinthisierenden Kapitelle und die reich profilierten Archivolten. Allein die Dreistufigkeit, die in die Laibung eingestellten Säulen mit sehr schlicht gestalteten Würfelkapitellen und der das Portal in Ansätzen (bis zur Kämpferzone) umlaufende leicht profilierte Sockel wurden übernommen. Doch scheint man bei der sehr sorgfältig ausgeführten Verkröpfung der Lisenensockel vor dem umlaufenden Sockelprofil der Westseite, der einzig dekorierten Front des Außenbaus, die elegant verkröpften Apsislisenen von Königslutter vor Augen gehabt zu haben. Auch ein letztes, winziges Detail führt noch einmal zur Lothar-Baukunst: Das am Süpplingenburger Außenbau und an
- ____
- 432 Auf diese stilistischen Ähnlichkeiten verweist schon M. Haenchen, Romanische Baukunst in Mariental, in: Festschrift Mariental 1939, S. 45-74, ebd. S. 56-59.
- 433 Zur stilkritischen Einordnung vgl. Kluckhohn 1938/39, S. 557-558 und Haenchen ebd., S. 53.
- ____
- 172
- der Apsis sowie den Sockeln der Vierungspfeiler von Königslutter beobachtete attische Sockelprofil mit abschließenden doppelten Leistchen wird auch in Mariental eingesetzt. An einer der nur noch in kleinteiligen Überresten erhaltenen südlichen Chorseitenkapellen befindet sich ein solches Kämpferprofil, ebenso in der Sakristei und im Inneren des Kapitelsaals 434.
- Der künstlerischen Wirkung Königslutters auf ein so nahegelegenes Bauprojekt wie Mariental kommt vor dem Hintergrund der in Sachsen in der zweiten Hälfte des 12. Jahrhunderts blühenden Königslutter-Nachfolge zunächst keine besondere Bedeutung zu. Doch geht im Falle der Zisterze Mariental die zunächst zurückhaltende künstlerische Reaktion auf die Kaisergrablege und die dann fast unvermittelt auftretende Freude am Ornament in den Bauphasen nach 1150 (Wölbung, Westfront, Klausurbereich), gerade im Hinblick auf den adligen Stifter und lotharischen Parteigänger Friedrich II. von Sommerschenburg, über das bloße Kopieren der zu dieser Zeit in Sachsen bedeutendsten Bauhütte hinaus.
- Als sächsischer Pfalzgraf hatte Friedrich stellvertretend für den König die Reichsgeschäfte in dessen Abwesenheit zu übernehmen; möglicherweise ein Grund dafür, warum er Lothar auf seinen Italienzügen nicht begleitete 435. Diese anspruchsvolle Stellung am kaiserlichen Hof motivierte Friedrich vermutlich auch, zeitgleich mit der Gründung von Königslutter und in unmittelbarer Nähe zur Kaisergrablege ein Adelskloster zu stiften und es dem damals strengsten Reformorden, den Zisterziensern, anzuvertrauen. Die Baustelle in Königslutter muß dem Sommerschenburger bekannt gewesen sein, insbesondere weil die Ostteile um 1137 wahrscheinlich bereits vollendet waren. Jedoch wurden in der ersten Bauphase, zu der das zunächst ungewölbte Sanktuarium und die schlichte Querhausarchitektur zählen, keinerlei für Königslutter typische Elemente wie beispielsweise die opulente Zier von Chor, Ostapsis und Kreuzgang oder der Wölbgedanke übernommen. Erst weit nach dem Tod des Kaisers (1137) wird in der zweiten Hälfte des 12. Jahrhunderts die bauliche Zurückhaltung der Marientaler Klosterkirche aufgegeben und der Bauschmuck, im Bereich der Chorwölbung (Dienstkapitelle), der Klausur und des Westabschlusses, dem Ornamentreichtum von Königslutter angepaßt. Dies bestätigen neben den erwähnten Einzelheiten auch die Kantenprofilierungen mit Ecksäulen im Kreuzgang oder am Armariumsportal und die an
- ____
- 434 Bei Haenchen (wie Anm. 432), S. 64 beschrieben und in einer Nachzeichnung (von Karl Bernhard Kruse, Hildesheim) abgebildet (ebd. S. 51).
- 435 Zum Amtscharakter der Pfalzgrafenwürde vgl. Starke 1955, S. 2 und Petke 1985, S. 378-379.
- ____
- 173
- verschiedenen Stellen eingesetzten antikisierenden Palmettenfächerkapitelle (Armariumsportal, Kapitelsaalfenster) 436.
- Trotz der unterschiedlichen Ordensausrichtungen ihrer Hausklöster in Königslutter und Mariental, die einmal von Reformbenediktinern und das andere Mal von Zisterziensern besetzt waren, bringen beide Dynasten ihre streng reformkirchliche Haltung auch im Architekturstil zum Ausdruck Das für Lothars Grablege in Königslutter beobachtete Prinzip der Bescheidenheit ist auch für die Stiftung seines Parteigängers in Mariental gültig: In Anlehnung an Fontenay, wo eben nicht der zisterziensische Staffelchor aufgenommen wurde, wählte der Sommerschenburger die wohl einfachste Grundrißvariante zisterziensischer Klosteranlagen (berhardinischer Plan) und reduzierte diese zu einer rechtwinkligen Gesamtanlage mit nur je einer Seitenkapelle 437. Damit nahm er weder die architektonische Grundidee des Mutterklosters Altenberg mit apsidialer Hauptapsis und je zwei apsidialen Seitenkapellen (außen rechteckig ummantelt) auf, noch orientierte er sich an anderen sächsischen Zisterzienserchören, wie der Dreiapsidenanlage von Amelungsborn oder dem apsidial schließenden Presbyterium mit je zwei Seitenkapellen und Querarmapsiden der ältesten sächsischen Zisterziensergründung von Walkenried 438.
- Vielmehr veranschaulicht die schlichte Grundrißgestalt und der zunächst sehr auffällige Verzicht auf üppigen Bauschmuck in erster Linie natürlich die streng reformerische Gesinnung des Konvents, könnte dann aber auch als eine gebührende Distanz und nicht mit dem kaiserlichen Nachbarn konkurrierende Position des Bauherrn gedeutet werden. Die in Königslutter mit antikisch-imperialen und reformkirchlich besetzten Inhalten durchdrungene Bauplastik wurde in Mariental erst in einer nach 1150 anzusetzenden Bauperiode aufgegriffen, in der man das Königslutterer Formenrepertoire dann aber auffallend intensiv nachahmte. Vielleicht ergingen vom Stifter selbst Anweisungen an die ausführende Bauhütte, den Stil der benachbarten Kaisergrablege nicht nachzubilden, nicht zu überbieten oder gar Steinmetze von dort herbeizuholen, um in keiner Weise mit dem kaiserlichen Bauwerk zu wetteifern. Und als der Sommerschenburger nach dem Tode des Kaisers seine Parteigängerschaft, nun zum Welfenherzog Heinrich dem Löwen, erneut unter Beweis stellen mußte, knüpfte er diesmal gezielt an die Baukunst Lothars III. an; auch um
- ____
- 436 Kluckhohn 1938/39, S. 557.
- 437 Zu dreischiffigen Kirchen mit nur je einer Seitenkapelle vgl. Untermann 2001, S. 327-329.
- 438 Der Befund des ersten Walkenrieder Baus ist auch nach mehreren Grabungen noch umstritten. Vgl. zuletzt Untermann 2001, S. 289.
- ____
- 174
- damit seine gegen die staufische Autorität in Sachsen gerichteten Vorstellungen kundzugeben.
- IV.1.1.3. Otto von Rheineck
- Otto von Rheineck († um 1150) war in seiner zweiten Ehe mit Gertrud von Northeim, der Schwester Kaiserin Richenzas verheiratet und gehörte damit zum engsten Familienkreis Kaiser Lothars. Seine Position als rheinischer Pfalzgraf mit Herrschaftsrechten im Gebiet von Rhein und Mosel hatte Otto seinem Schwager Lothar zu verdanken. Ottos Anwesenheit am Hof ist dreizehn Mal bezeugt und er begleitete den Kaiser auf beiden Italienzügen 439. Obwohl die Quellen nichts über eine eventuelle Bau- oder Stiftertätigkeit Otto von Rheinecks berichten und mit den Grafen von Rheineck weder die Gründung eines Hausklosters mit Familiengrablege noch eines anderen Kirchenbaus in Verbindung zu bringen ist 440, wird an ihm deutlich, wie ein lotharischer Parteigänger, der zudem zur kaiserlichen Familie gehörte, das kirchliche Reformprogramm Lothars III. auch außerhalb Sachsens vertrat und dafür vom Kaiser protegiert wurde.
- Otto von Rheineck hatte die Vogtei über zwei bedeutende Klöster des Rheinlandes, das Benediktinerkloster Maria Laach und das Benediktinerinnenkloster St. Maria in Nonnenwerth (Rolandswerth) inne 441. Die Vogtei von Nonnenwerth wurde Otto persönlich von Lothar auf Bitten der Äbtissin und Kaiserin Richenzas übertragen, was auf eine besondere Bedeutung des Rheinklosters an den Kaiser schließen läßt 442. Hierfür gibt es zwei mögliche Gründe: Die Förderung eines nahen Verwandten durch die Verleihung der lothringischen Pfalzgrafenwürde und die Zusprache der Vogtei über Nonnenwerth könnte als personalpolitische Maßnahme in den kaiserlichen Bemühungen um politischen Einfluß im Westen des Reiches gedeutet werden. Gleichzeitig verfolgte Lothar dabei auch kirchenreformerische Ziele, denn Nonnenwerth war als Stiftung Kunos I. von Siegburg und einziger von Siegburg abhängiger Nonnenkonvent ein idealer Ort, um erneut die Verbindung zum Siegburger Reformumfeld zu
- ____
- 439 Otto wurde von Lothar 1134 in Aachen zum lothringischen Pfalzgrafen erhoben. Vgl. Petke 1985, S. 209-210, 379-389 und O. Engels, Der Niederrhein und das Reich im 12. Jahrhundert, in: Stauferstudien 21996, S. 177-199, ebd. s. 180-181.
- 440 Die erste Burg Rheineck (Stadt Bad Breisig, Kr. Ahrweiler) wurde von den rheinischen Pfalzgrafen wahrscheinlich um 1115 gegründet. Vgl. Inventar Rheinprovinz 1938, S. 572-574; H. Caspary (u.a.) in: Dehio Rheinland-Pfalz/Saarland (Neubearbeitung) 1984, S. 861-862; Kossin 1995, S. 42-43.
- 441 Petke 1985, S. 383-384.
- 442 Vgl. Reg. Imp. Loth. Nr. 384.
- ____
- 175
- bekräftigen. Bereits die Lotharstiftung St. Johannes in Süpplingenburg, deren Kryptenkapitelle unter dem künstlerischen Einfluß Siegburgs und dessen Tochterklöstern Mönchengladbach und Oberpleis entstanden waren, belegte Kontakte sächsischer Klöster zu rheinischen Reformkreisen. Ob auch in Nonnenwerth Siegburger Kapitellplastik rezipiert wurde, ist nicht mehr nachzuweisen. Die Gestalt der Marienkirche des 12. Jahrhunderts, die nach alten Ansichten anscheinend einschiffig und mit einer Nonnenempore im Westbau versehen war, ist am barocken Neubau nicht mehr abzulesen 443. Auch muß eine Beteiligung des Vogtes Otto von Rheineck am Baugeschehen in Nonnenwerth und im kaisertreuen Benediktinerkloster Maria Laach ausgeschlossen werden 444.
- Vielmehr scheint Otto von Rheineck als Mitglied der kaiserlichen Familie eine diplomatische Mittlerfunktion für die lotharische Reformpolitik im Rheinland erfüllt zu haben. Gerade in den traditionell salisch geprägten westlichen Reichsteilen war ein Pfalzgraf wie Otto, dessen eigene Familientradition von nicht geringer Bedeutung für seinen Stand im Gefolge des Kaisers gewesen sein wird, der richtige Mann für die politische und kirchenpolitische Mission. Als Sohn Hermann von Salms, dem Nachfolger des einstigen Gegenkönigs Rudolf von Schwaben, gehörte er einem antisalisch geprägten und unter Otto von Northeim auf Seiten der sächsischen Oppositionellen kämpfenden Adelsgeschlecht an 445.
- IV.1.1.4. Heinrich von Groitzsch
- Schon seit dem frühen 12. Jahrhundert sind die Grafen von Groitzsch als königliche Gefolgsmänner und aktive Förderer der lotharischen Reform- und Siedlungspolitik bezeugt. Vor allem Graf Wiprecht II. von Groitzsch (†1124), Mitglied der antisalischen Adelsopposition, hatte durch zahlreiche Gründungen wie die der Siedlung und Burg Groitzsch (1073), des Benediktinerklosters St. Jakob in Pegau (1091), des Benediktinerpriorats St. Kilian in Bad Lausick (1104) und der Rundkapelle von Knautnaundorf (um 1100), ebenso wie durch die Reformierung der Nonnenklöster Vitzenburg (Reinsdorf) und Oldisleben, die reformorientierte Politik der Groitzscher vorgegeben. Dieses Erbe trat sein Sohn Heinrich von Groitzsch (1096-1135)
- ____
- 443 Kubach/Verbeek 1976, Bd. 2, S. 877.
- 444 Otto ist 1146 als Vogt von Maria Laach nachweisbar. Vgl. Petke 1985, S. 383. Dieser Zeitraum umfaßt nach Kubach/Verbeek 1976, Bd. 2, S. 744 die zweite Bauphase (1130-1156), in der die Kryptawölbung, das Ostquerschiff mit Gewölbe, der Vierungsturm und das Langhaus entstanden sind. Vgl. auch H. Caspary (u.a.) in: Dehio Rheinland-Pfalz/Saarland (Neubearbeitung) 1984, S. 632-638
- 445 Vgl. T. Schieffer, Hermann von Salm, in: NDB, Bd. 8, 1969, S. 628-630.
- ____
- 176
- zwar an, indem er die Groitzscher Herrschaftsrechte 446 und die Parteigängerschaft zu Lothar übernahm, als Klostergründer und Initiator von Kirchenbauten blieb er aber eher unbedeutend. Mit elf Besuchen beim Kaiser, darunter die Teilnahme an wichtigen Hoftagen und am ersten Romzug Lothars III., war Heinrich von Groitzsch eine der am häufigsten genannten Personen bei Hofe und ein wichtiger Berater des Kaisers 447. Doch sein Name steht nur mit zwei sächsischen Klosterbauten des 12. Jahrhunderts in Verbindung und dies nur peripher, ohne daß eine direkte Teilnahme am Baugeschehen nachzuweisen wäre.
- In der Naumburger Diözese, dem Zentrum der väterlichen Reformtätigkeit, waren Heinrich und seine Frau Berta von Groitzsch an der Stiftung des Augustinerchorfrauenstiftes Klosterlausnitz beteiligt. Sie stellten auf Bitten der Edelfreien Cunzia nach 1131 zum Zwecke der Klostergründung ein Stück Wald zur Verfügung 448. Heute sind in Klosterlausnitz weder Teile vom Gründungsbau aus der Zeit um 1135 noch von seinem Nachfolgebau der Jahre 1138 bis 1150 oder des Neubaus aus dem 13. Jahrhunderts erhalten 449. Der Besucher des Klosters findet vielmehr eine saubere, stilechte Nachbildung der romanischen Kirche des 12. Jahrhunderts vor (Abb. 141, 142),
- bei deren Anblick man die vermutlich zahlreich geflossenen Gelder eher einigen im Verfall stehenden mittelalterlichen Kirchen in Sachsen gewünscht hätte.
- Den bei Ursula Knoben diskutierten Zeichnungen und Beschreibungen des 19. Jahrhunderts entsprechend war Klosterlausnitz eine dreischiffige Querhausbasilika mit Stützenwechsel, doppeltürmigem Westbau mit Stufenportal und einer Choranlage, bei der zwei zum Sanktuarium hin geschlossene, tonnengewölbte Nebenkapellen das apsidial schließende Chorquadrat flankierten. Die durch Grabungen nachgewiesenen Pfeiler mit eingestellten Ecksäulen rhythmisierten den Kirchenraum, ebenso wie Palmetten- und Schachbrettfriese die aufgehenden Wandflächen. Diese tektonischen Details, wie auch ein mit eingestellten Säulen nachgewiesenes Stufenportal im Westbau und die geschlossenen Nebenkapellen, entstanden vermutlich unter dem Eindruck der benachbarten
- ____
- 446 So die Vogteien über das Erzstift Magdeburg und die Klöster in Pegau, Lausick u.a., vgl. Petke 1985, S. 368.
- 447 Ebd.‚ S. 213f.
- 448 Ebd, S. 370.
- 449 Zu den Chronisten und zur Baugeschichte vgl. U. Knoben, Die Kirche des ehemaligen Augustiner-Nonnenklosters in Klosterlausnitz, Phil. Diss. München 1969.
- ____
- 177
- Klosterkirchen in Paulinzella und Thalbürgel und stammen damit erst aus den Jahren nach 1140 450. Diese Vermutung wird auch von der Tatsache getragen, daß es sich bei den Stiftern des ehemaligen Benediktinerklosters St. Maria und Georg in Thalbürgel wiederum um Bertha und Heinrich von Groitzsch handelte. Die Gründung von Thalbürgel wurde schon 1133 vollzogen, während die erste Bauphase, der Bau der Choranlage, aber erst in die Jahre 1142-1150 und die Vorhalle mit Stufenportal (Abb. 143, 144) um 1150 datiert werden 451.
- Die spätromanischen Formen des heutigen Langhauses (Abb. 145a)

- stimmen mit dessen Weihe 1174 überein, so daß ein direkter Einfluß des schon 1135 verstorbenen Heinrich auf das Baugeschehen in Thalbürgel auszuschließen ist. Ebenso geht sein Engagement für die Lausnitzer Klosterkirche nicht über die Bereitstellung des zu bebauenden Bodens hinaus.
- So bleibt lediglich die Beteiligung der Groitzscher Grafen an zwei Klostergründungen im östlichen Sachsen zwischen 1130 und 1135 festzuhalten, die in einer Gegend und einer Zeit vorgenommen wurden, in der Kaiser Lothar III. seine politischen Ziele der Missionierung und der Reform durch die benachbarte Stiftung und den Bau von Kloster Chemnitz 1136 förderte. Es liegt nahe, in den Stiftungen Heinrichs nicht nur Instrumente des eigenen Herrschaftsausbaus, sondern auch gezielte Beiträge zur ostsächsischen Siedlungspolitik Lothars III. zu sehen. Im Gegenzug stand auch Lothar dem Reformwerk der Grafen von Groitzsch in Ostsachsen positiv gegenüber, denn für seine Chemnitzer ließ er den Gründungskonvent aus dem Groitzscher Hauskloster Pegau kommen, das im frühen 12. Jahrhundert nicht nur das bedeutendste Hirsauer Reformkloster im östlichen Sachsen war, sondern auch die 1096 mit großen Feierlichkeiten eingeweihte Grablege Wiprechts von Groitzsch und seiner Nachkommen 452. Unklar bleibt, warum Heinrich dieses Hauskloster nicht auch zur eigenen Grabstätte wählte, sondern wahrscheinlich zu diesem Zwecke 1133, gemeinsam mit seiner Frau Bertha, das Kloster Thalbürgel gründete 453. Vermutlich spielten dabei neben religiösem Antrieb auch
- ____
- 450 Die ab 1142 erbauten Ostteile von Thalbürgel wiesen gleichfalls zum Hauptchor geschlossene Nebenchöre auf und könnten dem Lausitzer Klosterbau als Vorbild gedient haben.
- 451 Zur Baugeschichte von Thalbürgel vgl. Inventar Thüringen 1888, S. 207-218; F. Möbius, Klosterkirche Thalbürgel, München/Berlin 1992; Berger 1997, S. 660-685; F. Jäger in: Dehio Thüringen (Neubearbeitung) 1998, S. 1220-1223.
- 452 Fenske 1977, S. 267, 269.
- 453 Allerdings sind weder Heinrichs noch Berthas Grabstätten quellenkundlich überliefert. Bertha zumindest hat wohl mit der Stiftung des Klosters und ihrem Wunsch, dort „als Inklusin ihr Leben zu beschließen\" (Berger 1997, S. 663) deutlich die Absicht bekundet, in Thalbürgel ein Memorialzentmm für sich und ihren Mann Heinrich einzurichten, von dem die Quellen jedoch nur berichten, daß er 1136 in Mainz starb. Vgl. Chron. Mont. Sereni, ad a. 1136, S. 144, 33-34 und Pegauer Nekrolog P. Mitzschke, Urkundenbuch von Stadt und Kloster Bürgel 1895, S.11 Nr. 6.
- ____
- 178
- Motive repräsentativer Selbstdarstellung einer unter Lothar III. zu hohem Ansehen gelangten Adelsfamilie eine Rolle. In jedem Fall aber handelte es sich bei dieser Groitzscher Stiftung um ein reich ausgestattetes Reformkloster von bedeutendem Rang, was sich auch im Lothar-Diplom für Thalbürgel von 1136 niederschlägt, worin der Kaiser - unmittelbar nach dem Tode Heinrichs - dem Kloster alle Besitzungen bestätigt und es durch den Modus der freien Abt- und Vogtwahl als Reformkloster anerkennt 454.
- Heinrich von Groitzsch zählt damit zu den lotharischen Parteigängern, die durch ihre missions- und reformgerichteten Aktivitäten auch als Stifter von Kirchenbauten die kaiserliche Reformpolitik unterstützt hatten. Die persönliche Ambition des Bauherrn, der besonderen Nähe zum kaiserlichen Hof auch durch das architektonische oder bauplastische Programm entsprechen zu wollen, läßt sich bei den Stiftungen Heinrichs mangels erhaltener Bausubstanz und aufgrund des frühen Todes des Stifters ( 1135) nicht mehr belegen.
- Allerdings knüpfte man im thüringischen Thalbürgel in der ersten Bauphase (1142-1150) auch an sächsische Architekturvorbilder an und griff bei der Gestaltung der Vorhalle auf die ohne Königslutter nicht denkbare Kantengliederung durch kleine, den Pfeilerkern auflösende Ecksäulchen zurück. In der Obergadenzone im Langhaus verwendete man im Bereich der Bandrahmungen antikisierenden Palmettendekor (Abb. 145b).

- Neben der auch in Thüringen in der zweiten Hälfte des 12. Jahrhunderts verbreiteten Tradition dieser bauplastischen Dekorformen (vgl. Paulinzella, Wechselburg) könnte man die Rezeption der in Königslutter maßstabsetzenden Ecksäulen und des antikisierenden Palmettendekors möglicherweise als Hinweis auf die politische Treue Heinrichs von Groitzsch zu Kaiser Lothar III. interpretieren.
- IV.1.1.5. Siegfried IV. von Boyneburg
- Auch Siegfried IV. von Boyneburg (†1144), dessen Anwesenheit am Hof Lothars ab 1126 zehn Mal bezeugt ist, nahm im Umkreis des Kaisers eine wichtige Position ein. Diese stützte sich weniger auf die gemeinsame politische Vorgeschichte innerhalb der sächsischen Adelsopposition als
- ____
- 454 Vgl. Reg. Imp. Loth. Nr. 481.
- ____
- 179
- vielmehr auf direkte familiäre Bande. Als Enkel Ottos von Northeim und damit Cousin Richenzas war Siegfried ein Mitglied der kaiserlichen Familie. Von seinem Vater Siegfried III. von Boyneburg (†1107) hatte er große Teile des Northeimer Besitzes geerbt und seine Territorialmacht im Bereich der Stammburg Homburg östlich der Weser konzentrieren und ausbauen können 455. Mit der Stiftung des Zisterzienserklosters St. Maria in Amelungsborn, das neben Walkenried (1129) die früheste und am weitesten östlich gelegene Missionsgründung des Zisterzienserordens war, entsprach der Boyneburger ganz dem Reformgeist seines kaiserlichen Verwandten.
- Die Nachrichten zur Gründungsgeschichte von Amelungsborn sind lückenhaft. Urkundlich gesichert sind allein der Einzug des ersten Konvents aus dem niederrheinischen Kloster Altenkamp im Jahre 1135 und eine zeitlich nicht zu fixierende Weihe des Klosters durch Bischof Bernhard I. von Hildesheim (1130-1153) 456. Geht man mit Herbert Caspers davon aus, daß der Altenkamper Abt und Konvent 1135 einen größenteils fertiggestellten Klosterbau vorfanden, dann ist mit einem Baubeginn noch vor 1135 zu rechnen 457. Dieser Gründungsbau ist heute in den flachgedeckten Mittel- und Seitenschiffen und im unteren Mauerwerk des Querschiffs der Basilika mit einfachem Stützenwechsel erhalten (Abb. 146, 150).
- Die Gestalt der romanischen Choranlage, die zwischen 1300 und 1350 durch einen gotischen Neubau ersetzt wurde, ist in der Forschung Gegenstand kontroverser Spekulationen. So nimmt beispielsweise Karl Steinacker ein im Osten flach geschlossenes Chorquadrat an 458, während Hans Thümmler einen dreischiffigen Chor mit Doppelarkade über einer Brüstungsmauer (wie im Chor von St. Maria und Georg in Lippoldsberg) vermutet 459.
- Einzig Caspers konnte mittels überzeugender Interpretationen baulicher Details und Beobachtungen zu den Befunden zweier Grabungen von 1980 und 1981 eine dreiapsidiale Choranlage rekonstruieren 460. Seine Ausführungen, denen in einigen Punkten von Konrad Maier 1990 461
- ____
- 455 Lange 1958, S. 151f und Karte 1; Petke 1985, S. 218f, 395-393; Fenske 1977, S. 178f.
- 456 K. Röckener, Das Zisterzienserkloster Amelungsborn, München/Berlin 1993, S. 2.
- 457 H. Caspers, Amelungsborn. Die baugeschichtliche Entwicklung der zisterziensischen Klosterkirche unter besonderer Berücksichtigung des romanischen Chores, Ing. Diss. Hannover 1985, S. 10.
- 458 K. Steinacker, Amelungsborn in: Inventar Braunschweig (Holzminden) 1907, S. 120.
- 459 Thümmler 1966, Bd. 1, S. 170-174.
- 460 Caspers 1985, S. 22-32 und S. 46-51.
- 461 Maier 1987/88, S. 31-57.
- ____
- 180
- widersprochen wurde, könnten als Ausgangspunkt für eine neuerliche baugeschichtliche Untersuchung der Klosterkirche von Amelungsborn dienen, die im Rahmen dieser Arbeit jedoch nicht unternommen wird. Das Augenmerk soll einzig auf die für Zisterzienserkirchen seltene dreiapsidiale Grundrißform gelenkt werden, die von Matthias Untermann als „Normalform romanischer Kloster,- Stifts-, Dom- und Pfarrkirchen besonders in Mittel- und Norddeutschland“ bezeichnet wird, die jedoch „für Zisterzienserabteikirchen nur selten gewählt worden [ist]“ 462. Auffallend dabei ist auch das im Verhältnis zur Vierung etwas größer dimensionierte Chorquadrat, das nach Caspers` Rekonstruktion den Auftakt zum Sanktuarium bildete. Dafür nennt er die vergleichbaren Chorformen von Fredelsloh (1155), Fischbeck (erste Hälfte 12. Jh.) und Wunstorf (Ende 12. Jh.) 463, die hier durch einige Bemerkungen ergänzt werden sollen.
- Abgesehen davon, daß in Fredelsloh und Fischbeck die Position der Querhausapsiden von der in Amelungsborn abweicht, sind die Bauten allesamt erst in der Nachfolge von Amelungsborn entstanden. Hingegen verzichtet Caspers auf den Vergleich mit der nahezu identischen Choranlage von St. Johannes in Süpplingenburg. Wie in Amelungsborn rekonstruiert, bildete auch Süpplingenburg ein ausgesprochen großes, apsidial schließendes Chorquadrat und Nebenapsiden am Querhaus aus, die ebenso wie in Amelungsborn direkt auf die Chorseitenwände stoßen. Zwar reichen diese spärlichen architektonischen Analogien nicht aus, eine Vorbildfunktion der Lotharstiftung für den Bau in Amelungsborn anzunehmen, doch scheint bei Erweiterung des Bezugssystems zwischen diesen beiden Bauten eine solche nicht mehr gänzlich ausgeschlossen.
- Zur Lotharstiftung in Süpplingenburg wurden folgende Ergebnisse festgehalten: Als Vorbilder der Kryptenkapitelle des vor 1125 gegründeten Klosters konnten Beispiele aus dem Umkreis der niederrheinischen Reformklöster Mönchengladbach und Oberpleis herangezogen werden. Auch in Amelungsborn gibt es Berührungspunkte mit niederrheinischen Reformklöstern. Zwar standen Gründungsabt und -konvent von Amelungsborn nicht, wie für Süpplingenburg angenommen, im Einflußbereich der Siegburger Reformbenediktiner, sondern waren durch Altenkamp dem Zisterziensergedanken verpflichtet. Doch scheinen Süpplingenburg wie auch Amelungsborn durch ihre Bauherren, Lothar von Süpplingenburg und Siegfried IV. von Boyneburg, gezielt als Zentren niederrheinischer Reformkräfte in Sachsen angelegt worden zu sein. Diese weitgehende Übereinstimmung reformerischer Ambitionen der Vettern Lothar und
- ____
- 462 Untermann 2001‚S. 291.
- 463 Caspers 1985, S. 48-50.
- ____
- 181
- Siegfried legt die Vermutung nahe, daß auch das Gründungsdatum ihrer Familienklöster nicht weit auseinanderliegen kann. Mit Caspers davon ausgehend, daß die Altenkamper Mönche 1135 in Amelungsborn einen weitgehend vollendeten Kirchenbau vorfanden, muß mit den Bauarbeiten weit vor dieser Zeit begonnen worden sein 464. Nimmt man weiterhin an, daß der Austausch zwischen rheinischen und sächsischen Reformkreisen in den 20er Jahren des 12. Jahrhunderts kein Einzelfall war, könnte Amelungsborn in etwa zeitlicher Nähe zu Süpplingenburg (1125) gegründet worden sein. Für diesen Datierungsvorschlag, den zunächst nur die Vermutung stützt, Siegfried IV. habe durch die Besetzung mit Mönchen aus dem niederrheinischen Altenkamp die Reformbestrebungen seines Vetters Lothar von Süpplingenburg unterstützen wollen, spricht auch die zu Süpplingenburg analoge und in sächsischen Querhausbasiliken ungewöhnliche Gestalt des langgestreckten Chorquadrates.
- Gerade vor dem Hintergrund lotharisch-boyneburger Familienbindungen hätte die Erklärung etwas für sich, in dem adligen Stifter Siegfried den Urheber für diese Grundrißanlage zu sehen. In Anlehnung an die Architektur einer lotharischen Stiftung hätte man mit einem „nichtzisterziensischen“ Kirchenentwurf bewußt gegen die „erklärten Absichten der Mönche und gegen die Regeln des Ordens“ 465 gehandelt. Dagegen gelten, den jüngsten Forschungen Untermanns zufolge, vom „bernhardinischen Idealplan“ zisterziensischer Kirchenbauten abweichende apsidiale Grundrißformen nicht mehr nur als „Sonderfall oder als regionale Prägung, die (...) auf einen Einfluß des lokalen Adels zurückgehen“. Vielmehr waren „nicht-bernhardinische“ Ostbauten „gerade in der Frühzeit charakteristisch zisterziensische Bautypen“ 466. Offenbar gehörte Amelungsborn zu den frühen und weitgehend eigenständig von der lokalen Zisterzienserarchitektur (Walkenried) entstandenen Kirchenbauten, die sich auch nicht an den neuen, durch die französischen Primarabteien (Citeaux, Clairvaux, Pontigny, Morimond, La Ferté) verbreiteten Bautypen orientierten. Dies wäre ein weiteres Argument für eine relative Frühdatierung des Baubeginns von Amelungsborn in die Jahre zwischen 1125 und 1130.
- Was den Verzicht auf „überflüssigen“ Dekor angeht, verhält es sich in Amelungsborn ähnlich wie in der Sommerschenburger Stiftung Mariental. Wie dort hatte man in der Frühphase der Klostergründung auf jeglichen
- ____
- 464 Zur Geschwindigkeit des Bauens zisterziensischer Kirchen, mit der oft häufige Planwechsel verbunden waren, vgl. Untermann 2001, S. 202-209.
- 465 Untermann 2001‚ S. 603.
- 466 Ebd.
- ____
- 182
- Schmuck im Kirchenraum und auch am Außenbau verzichtet, im weiteren Verlauf aber an die bauplastische Entwicklung in Sachsen angeknüpft. Gegen die zisterziensische Zurückhaltung rezipierte man in Amelungsborn die neue imperiale Kunstsprache, die mit der Königslutterer Ornamentvielfalt in Sachsen Einzug genommen hatte: Dies belegen sechs romanische Doppelpiscinen, deren Schäfte teilweise aus bündelpfeilerartig zusammengesetzten Rundstäben bestehen, die, wie die Säulen des Königslutterer Kreuzgangs, in unterschiedlichen Versionen mit floralen Elementen überzogen sind (Abb. 149) 467.

- Desgleichen wurden am Kreuzgangportal die bauplastisch eng mit Königslutter verwandten Ecksäulen eingesetzt (Abb. 150,151).
- Läßt man die zwischen Süpplingenburg und Amelungsborn gezogenen baugeschichtlichen Vergleiche und die Kontakte zu niederrheinischen Reformkreisen gelten, wären einige Argumente für einen Baubeginn von Amelungsborn in den Jahren 1125-1135 gefunden 468. Das Zisterzienserkloster Amelungsborn wäre damit die früheste Gründung des sächsischen Hochadels, deren Entstehung und bauliche Prägung im Kontext lotharischer Baukunst steht, wobei zunächst nicht auf Königslutter, sondern auf die herzögliche Stiftung in Süpplingenburg Bezug genommen wurde. Genauso erlaubt die Rekonstruktion des „unzisterziensischen“ Grundrißtyps, eine Datierung in die Frühzeit der Ordensverbreitung in Sachsen vorzunehmen. Obwohl Lothar in der Folge darauf verzichtete, dem Kloster durch kaiserliche Privilegien einen besonderen Status zu gewähren, muß Amelungsborn zumindest bei den lotharischen Parteigängern, ein hohes Ansehen genossen haben. Friedrich II. von Sommerschenburg vertraute beispielsweise einem aus Amelungsborn stammenden Abt den Konvent seines 1138 gegründeten Hausklosters in Mariental an 469.
- ____
- 467 Heute werden die Piscinen im Chorumgang und im Lapidarium des Klosters aufbewahrt und wurden, in der Literatur eher beiläufig erwähnt, bisher nicht bearbeitet. Vgl. Wulf 1996, S. 395, dort aber in die Nachfolge der Königslutterskulptur gestellt.
- 468 Dies würde sich mit den Ausführungen von J. Asch, Amelungsborn, in: Germania Benedictina 12, 1994, S. 29 decken, der die Zeit um 1130 „am wahrscheinlichsten“ für die Klostergründung ansieht. Auch Caspers 1985, S. 54 spricht sich für ein Gründungsdatum vor 1130 aus und führt dafür die sehr einfache Profilierung des Außensockels, bestehend aus einfacher Schräge-Gerade-Schräge und einige schlicht dekorierte Würfel- und Kelchblockkapitelle mit aufgesetzten Stegen und Palmettenfächern an.
- 469 Maier 1987/88, S. 32 und Röckener 1993, S. 2.
- ____
- 183
- IV.1.1.6. Ludwig I. von Thüringen
- Die Verbindung der thüringischen Grafen zu Kaiser Lothar III. hatte bereits während der sächsischen Adelsopposition gegen Heinrich V. ihren Anfang genommen. Schon der Vater Ludwigs I. (†1140), Ludwig der Springer (†1123), war als Repräsentant des antisalisch gesinnten thüringischen Adels zu Lothars Herzogenzeit in dessen politischer Nähe anzutreffen und hatte bedeutende Klostergründungen in die Wege geleitet. Noch im 11. Jahrhundert stiftete er das mit Mönchen aus Hirsau besetzte Reformkloster Reinhardsbrunn (1085/1097), ein wichtiges Reformzentrum in Thüringen und bestimmte es zum Hauskloster seines Geschlechts 470. Von diesem Bau sind weder die Grundrißdisposition noch bauliche Reste überliefert 471.
- Anders verhält es sich mit seiner zweiten Stiftung, der St. Ulrichskirche in Sangerhausen, die bis zum Tod des Grafen 1123 erfolgt sein wird 472. Es handelt sich bei dem einstigen Benediktinerkloster um eine dreischiffige, fünfjochige, kreuzgratgewölbte Pfeilerbasilika mit Querhaus, deren dreischiffige, apsidial schließende Choranlage mit Nebenapsiden an den Querhausarmen „vorhirsauischen Einflüssen der von Cluny II ausgehenden Reformbaukunst“ 473 folgte (Abb. 153, 154).
- Während die Gründung und ein erster Kirchenbau trotz fehlender Quellen vor 1123 denkbar sind, gehört der heutige Kirchenbau zu großen Teilen einer späteren Zeit an 474. Dafür sprechen in erster Linie die breiten Arkadenunterzüge,
- ____
- 470 Zur Genealogie der Thüringer Landgrafen und zur Gründung von Reinhardsbrunn (Friedrichsroda) zusammenfassend Fenske 1977, S. 241-255 und zuletzt H. Schwarz, Die Ludowinger. Aufstieg und Fall des ersten thüringischen Landgrafengeschlechts, Eisenach 1993. Weitere Gründungen Ludwig des Springers sind Schönrain am Main (um 1100), Zscheiplitz (1089) und die Burgen Wartburg und Neuenburg (nach 1085). Zu den Stiftungen der späteren Ludowinger Linie vgl. E. Badstübner, Die Ludowinger als Bauherren, in: Festschrift für H.-J. Krause 2001, S. 31-44.
- 471 S. Ortmann in: Dehio Thüringen (Neubearbeitung) 1998, S. 990-992.
- 472 Die umstrittene Gründungslegende sowie die Quellenlage von St. Ulrich werden bei K. Schaelow, Die Kirche St. Ulrich in Sangerhausen. Eine baugeschichtliche Untersuchung, Phil. Diss. München 1994, S. 26-33 ausführlich vorgestellt.
- 473 Badstübner 1980, S. 129-130.
- 474 Zur Baugeschichte von St. Ulrich in Sangerhausen scheiden sich die Meinungen bis heute. Während ein Teil der Forschung den Bau um 1120 datiert (Gaul 1932, Thümmler 1951, Schütz 1989), finden sich in neuester Literatur wie bei Schaelow und Köhler Vorschläge für eine insgesamt längere Bauzeit zwischen 1120 und 1135/40: Schaelow 1994, S. 33: „Der Bau, so kann man annehmen, wird von da an (1123) wohl noch in der ersten Hälfte des 12. Jhs. fertiggestellt worden sein, kaum aber vor 1131“. Köhler 1996, S. 26, datiert den Bau ebenso zwischen 1120 und 1135/40.
- ____
- 184
- die Vorlagen für Gewölbe im Langhaus 475, die attischen Profile der Langhauspfeiler und die in der Nachfolge von Quedlinburg stehende Bauornamentik, die trotz der dem Bau häufig nachgesagten rohen und primitiven Formen eine Fortschrittlichkeit verrät, wie sie für die Zeit vor 1123 untypisch ist.
- So wird folgerichtig vermutet, daß der Bau erst im Laufe einer längeren Bauzeit, bis in die vierziger Jahre des l2. Jahrhunderts hinein in den überlieferten Formen entstanden ist, was mit einer bei Mathias Köhler angeführten Weihe von 1135/40 korrespondiert 476. In diesem Fall hätte der Stifter Ludwig der Springer die reformmonastisch orientierte Grundrißgestaltung, vielleicht nach dem Vorbild des Mutterklosters Reinhardsbrunn 477, für Sangerhausen angeregt und den Bau in seinen Grundzügen angelegt. Die weiteren Bauarbeiten nach 1123, denen die Planung einer Gesamtwölbung und die Bauornamentik im Langhaus zeitlich zugeordnet werden, könnten dann durch den Sohn des Stifters, Ludwig I. von Thüringen, weitergeführt worden sein. Da Ludwig, der seit 1129 bei zahlreichen Gelegenheiten am kaiserlichen Hofe anzutreffen war, von Lothar 1131 den Landgrafentitel erhielt 478, ist es nicht auszuschließen, daß ihm als Mitglied eines unter Lothar zu lokaler Bedeutung gelangten Adelsgeschlechtes der Ausbau der väterlichen Stiftungen besonders wichtig war. Ob das Interesse am Baufortgang vom Vater auf den Sohn überging, der sich, bedenkt man die lange Bauzeit von 1123-1135/40, wohl zunächst nicht sonderlich intensiv um die Baustelle bemüht haben wird, läßt sich vielleicht anhand einiger Überlegungen zur Architektur, Bauplastik und zur Funktion von St. Ulrich in Sangerhausen darlegen.
- ____
- 475 Der Wölbung des 12. Jahrhunderts gehören die Gewölbeeinheiten der Seitenschiffe und Teile des südlichen Querhausarmes an, während die heutige Langhauswölbung und die Wölbung im Hochchor erst jüngeren Datums (13/14. Jh.) sind. Vgl. Schaelow 1994, S. 70 und U. Bednarz in: Dehio Sachsen-Anhalt II (Neubearbeitung) 1999, S.744-747. Ob für den Bau von Beginn an eine Gesamtwölbung geplant war, darüber herrscht in der Forschung bis heute keine Einigkeit. Schaelow diskutiert die einzelnen Positionen und spricht sich, mit dem Hinweis auf die hochgezogenen Wandvorlagen, für die ursprüngliche Wölbung des Langhauses aus. Vgl. Schaelow 1994, S. 51 und S. 70-73.
- 476 Köhler 1996, S. 26.
- 477 Nach Möbius 1970, S. 224 nimmt auch Schaelow 1994, S. 75-76 an, daß Sangerhausen und Reinhardsbrunn dem gleichen Grundriß folgten.
- 478 Ludwig ist insgesamt zehnmal am Hofe Lothars nachgewiesen und begleitete den Kaiser 1136 auf seinem zweiten Italienzug. Vgl. Petke 1985, S. 216 und Fenske 1977, S. 244 und Heinemeyer in: NDB, Bd. 15, 1987, S. 419-420.
- ____
- 185
- Karen Schaelows stilistische Vergleiche der Sangerhausener Bauplastik mit anderen sächsischen Beispielen der ersten Hälfte des 12. Jahrhunderts haben die Vermutung bestätigt, daß der Bau nicht vor 1123 entstanden ist 479. Dabei erwies sich ein Blick auf die Quedlinburger Dekoration der Langhauskämpfer in mehrfacher Weise als ergiebig. Einzelne Motive von Tier- und Flechtbandornamentik an den Sangerhausener Langhauskämpfern wie die Taube in Weinranke, das Palmettenbäumchen oder die doppelt laufende Achterschlinge (Abb. 155-159),
|
|
- gehen auf die Kämpferplastik des Reichsstiftes Quedlinburg zurück, und auch stilistisch knüpfte man in Sangerhausen an die eigenartig archaisch wirkende plastische Durchbildung der dortigen Kämpferblöcke an 480. Diesen Vergleich bestimmen zwar auch erhebliche Qualitätsdefizite, doch ist über eine bewußte Verankerung der Quedlinburger Formen in Sangerhausen nicht hinwegzusehen.
- Neben unmittelbaren Vergleichen mit Tier- und Pflanzenmotiven sind es auch einige durch Quedlinburg in Sachsen verbreitete oberitalienische Dekorformen, die sich in Sangerhausen vor allem in den abstrakten Ornamenten wiederholen. Verschiedene Varianten von Flechtwerk und einige figürliche Motive wie Löwen oder Tauben lombardischer Herkunft veranlassen Schaelow gar, von der Tätigkeit lombardischer Steinmetzen auszugehen, die direkt oberitalienische und in spätantiker Tradition stehende Motive nach Sangerhausen übertragen hätten 481. Diese These, wie auch die von Schaelow aufgeworfene Frage, ob der Bauherr von Sangerhausen Italien bereist haben muß, um lombardische Bauleute zu verpflichten, können in diesem Zusammenhang unberücksichtigt bleiben. Wichtig hingegen ist, daß man neben der freien Übernahme von Zierformen aus Quedlinburg und Oberitalien insbesondere den mit der Italienrezeption verbundenen Anspruch auf imperiale Traditionen aufgriff, den Quedlinburg als sächsisches Reichsstift vertrat. Dabei orientierte man sich in Sangerhausen offenbar an einem Gestaltungsprinzip, das in Sachsen in der ersten Hälfte des 12. Jahrhunderts nicht mehr allein durch Quedlinburg vertreten wurde. Die Baukunst Lothars III. hatte eine neue Dimension der Italienrezeption vorgegeben, die letztlich durch Königslutter auch zu einem Maßstab für Reform- und Kaisertreue in Sachsen wurde. Zwischen Sangerhausen und Königslutter fehlen, mit Ausnahme der dreischiffigen Choranlage, deren Schiffe durch Stützenstellungen zueinander geöffnet
- ____
- 479 Schaelow 1994, S. 87-97.
- 480 Ebd., S. 89: „Andererseits liegt die Ornamentik in Quedlinburg, Magdeburg und Gernrode (...) allem Anschein nach zeitlich vor Sangerhausen, so daß eine Übernahme der Formen von hier durchaus denkbar wäre.“
- 481 Schaelow 1994, S. 93-96 leitet das Motiv des Palmettenbäumchens von frühchristlichen Sarkophagen ab und stellt Bezüge zur Ornamentkunst der Comaciner her.
- ____
- 186
- sind und der Apsiden am Querhaus, jegliche gestalterische Berührungspunkte, doch könnte der Gedanke der Gesamtwölbung von der Kaisergrablege her angeregt worden sein, wenngleich die Durchbildung noch nicht die Reife der Königslutterer Konstruktion erreicht 482. Die Überlegung, daß Quedlinburg und Königslutter nicht allein stilistisch-formale Quellen für die Bauplastik und die Idee der Gesamtwölbung in Sangerhausen, sondern als Reichsarchitekturen auch Symbole einer reform- und italiengerichteten Politik waren, legt es nahe, erneut nach dem Anteil des lotharischen Parteigängers Ludwig I. am Baugeschehen zu fragen.
- Ludwig der Springer, der in Reinhardsbrunn bereits Ende des 11. Jahrhunderts eine Grablege für sich und seine Nachkommen gestiftet hatte, wollte mit Sangerhausen einen zweiten Stützpunkt ludowingischer Totenmemoria errichten 483. Als er 1123 als Mönch in Reinhardsbrunn starb, wurde er dort wahrscheinlich in einem vollendeten Kirchenbau beigesetzt. Seinem Sohn Ludwig oblag es nun, das reformpolitische Erbe der Ludowinger zu pflegen, das die Betreuung der Familienklöster Reinhardsbrunn und Sangerhausen, als Memorialzentren seiner Ahnen, miteinschloß. Dazu gehörte es auch, den begonnenen Kirchenbau in Sangerhausen zum Abschluß zu bringen. Es ist weiterhin anzunehmen, daß Ludwig, der erst nach der Verleihung des Landgrafentitels 1131 durch Lothar III. häufiger am Hof nachzuweisen ist, seinem neuen politischen Rang entsprechend, auch erst von dieser Zeit an seine repräsentativen Pflichten ernster nahm. Gestärkt durch die persönliche Verbindung zu Lothar III. hatte das Geschlecht unter Ludwig I. „einen Aufstieg vollzogen, der (...) in den Kreis derjenigen Familien führte, die reichsfürstlichen Rang besaßen und die Geschlechter von lokaler Bedeutung innerhalb kleinräumiger geographischer und politischer Einheiten deutlich überragten“ 484.
- Die verspätete Besinnung auf Familientraditionen könnte auch die lange Bauzeit von St. Ulrich erklären, die sich noch bis in die dreißiger Jahre des 12. Jahrhunderts hineinzog. Auch die Motive für den Rückgriff auf italienisch-spätantike Ornamentik und die Planung und Ausführung einer Gesamtwölbung, die der Bauphase dieser Jahre zeitlich zugeordnet werden können, zeichnen sich vor dem politischen Hintergrund Ludwigs I.
- ____
- 482 Damit wäre der vereinzelt geäußerten Ansicht widersprochen (Gaul 1932, Thümmler 1951, Schütz/Müller 1989), die Wölbung noch vor 1123 zu datieren, vermutlich um die Person des Stifters Ludwig des Springen (†1123) noch mit den Anfängen des Bauwerks in Verbindung zu bringen.
- 483 Ludwig soll Sangerhausen als Grablege für seine Eltern gestiftet haben, gewissermaßen als Ableger von Reinhardsbrunn. Vgl. Fenske 1977, S. 244 Anm. 121; Schaelow 1994, S. 32 und Köhler 1996, S. 21.
- 484 Fenske 1977, S. 241.
- ____
- 187
- deutlicher ab. Unter dem Eindruck der Kaiserbaukunst Lothars III., die sich grundsätzlich an der lokalen Reformbaukunst orientierte, den bescheidenen Charakter ihrer Bauten aber durch eine imposante Wölbung und antikisierenden Bauschmuck übertraf, wählte wohl auch Ludwig I. für Sangerhausen eine Formensprache, die er für die Architektur eines repräsentativen Adelsklosters als angemessen empfand. Die Rezeption italienisch-spätantiker Ornamentik, die sächsische Herrscherarchitekturen schmückte und als wichtiges Ausdrucksmittel der gregorianischen Reformer galt, war dabei ein geeignetes Mittel, die ludowingische Grablege aus dem architektonischen Kontext einfacher, flachgedeckter Reformbauten herauszustellen und die persönliche Treue zum Kaiser und dessen kirchlicher Reformpolitik zu demonstrieren. Durch seinen mittlerweile hohen reichspolitischen Rang bekam die Identikation mit der ludowingischen Familientradition neues Gewicht, und der noch unvollendete Sangerhausener Kirchenbau bot Ludwig die Möglichkeit, eigene Ansprüche in das Bauwerk einfließen zu lassen 485.
- Für diese Erwägungen, nach denen nicht Ludwig der Springer, sondern sein Sohn Ludwig I. von Thüringen, die Gestalt von St. Ulrich in Sangerhausen maßgeblich prägte, gibt es keine Quellen. Auch ist die Tatsache, daß die Chronik von St. Peter in Erfurt anläßlich des Begräbnisses Kaiser Lothars III. (1137) von der Anwesenheit sächsischer und thüringischer Grafen in Königslutter berichtet 486, unter denen Ludwig I. von Thüringen zu vermuten wäre, kein hinreichender Beweis für den Einfluß der Kaiserbaukunst auf Sangerhausen. Es ist aber davon auszugehen, daß Ludwig I. von Thüringen beim Staatsbegräbnis zugegen war. Anläßlich dieses Besuches in Königslutter könnte er die kaiserliche Baukunst studiert und von dort die Anregung für die Wölbung und die Rezeption italienisch-spätantiker Ornamentik übernommen haben. Zweifellos ist die Rückständigkeit der Bauplastik zum Vorbild Quedlinburg und der einfachen Kreuzgratwölbung der Seitenschiffe von St. Ulrich gegenüber dem Baldachin-Wölbsystem der Königslutterer Ostteile mit seinen schlanken Diensten nicht zu übersehen, so daß stilistische Bedenken bezüglich dieser Überlegungen bestehen bleiben.
- ____
- 485 Allerdings wird Ludwig I. nach seinem Tod 1140 nicht in Sangerhausen, sondern im Hauskloster Reinhardsbrunn begraben.
- 486 Cronica S. Petri Erfordensis ad a. 1137, S. 365, 21-22: „(...) apud Lutrensem abbaciam ab ipso constructam presentibus Saxoniae atque Thuringie principibus II. Kai. Ianuarii regio more sepelitur.“
- ____
- 188
- IV.1.1.7. Konrad von Wettin
- Der folgende Abschnitt zur Kirche des ehemaligen Augustinerchorherrenstifts St. Peter auf dem Lauterberg bei Halle und seinem Mitgründer Markgraf Konrad von Meißen (1098/99-1157) gehört streng genommen in das Kapitel Lothar III. und die Folgen seiner Baukunst in Sachsen, denn die romanischen Reste der Kirche auf dem heute so benannten Petersberg werden in das fortgeschrittene 12. Jahrhundert datiert. Da aber der politische Werdegang des Markgrafen und der damit verbundene Aufstieg des Hauses Wettin eng an die Parteigängerschaft Konrads zu Kaiser Lothar III. geknüpft ist, soll die Gründung auf dem Petersberg im Rahmen der im Umkreis Lothars entstandenen Adelsklöster behandelt werden.
- Konrad, der schon 1123 durch die Übertragung der Markgrafschaft Meißen durch Herzog Lothar begünstigt wurde 487, konnte als Vetter Richenzas auch während Lothars Zeit als Kaiser mit weiteren Privilegien rechnen. So erhielt er im Jahre 1136 neben der Mark Niederlausitz auch die Vogtei über die Reichsabtei Chemnitz, eine der wenigen Stiftungen des Kaiserpaares. Doch nicht nur im Bereich des östlichen Sachsen, wo Konrad den Siedlungsplänen Lothars zum Erfolg verhalf, trafen sich die Interessen von Kaiser und Markgraf 488. Mit der durch Konrad 1118 veranlaßten Neuorganisation Kloster Gerbstedts 489 bewies der Wettiner seine Parteigängerschaft auch hinsichtlich der gregorianischen Kirchenreform in Sachsen 490. Allerdings schien Konrad mit der Reformierung dieses noch bis 1146 als wettinische Familiengrablege genutzten Klosters 491 nicht die Vergrößerung des Konvents beabsichtigt zu haben, mit der eine Konzentration
- ___
- 487 Gegen den Willen Kaiser Heinrichs V.‚ der die Mark Meißen 1123 Wiprecht von Groitzsch zu Lehen geben wollte, opponierten Lothar und andere ostsächsische Adlige in der antisalischen Fürstenfront. Daß Lothar - damals noch Herzog - Konrad von Wettin eigenmächtig als Markgrafen von Meißen einsetzte zeigt, welche Eigenständigkeit ihn zu diesem Zeitpunkt bereits auszeichnete. Fenske 1977, S. 263, 338 und Helbig in: NDB, Bd. 12, 1980, S. 512-513.
- 488 Schlesinger 1962, Bd. 2, S. 5 vermutet, daß sämtliche siedlungspolitische Aktivitäten Lothars in Ostsachsen „im engsten Einvernehmen mit Markgraf Konrad“ erfolgt sind.
- 489 Zur Geschichte vgl. F. Buttenberg, Das Kloster zu Gerbstedt, in: Harz-Zeitschrift 52, 1919, 1-30 und zusammenfassend Bogumil 1972, S. 135-140.
- 490 Hierfür verpflichtet er den damals wichtigsten sächsischen Reformbischof Reinhard von Halberstadt. Vgl. Fenske 1977, S. 182-183 und 349.
- 491 Noch Markgräfin Lucardis wurde 1146 in Gerbstedt begraben. Auf Bitten Konrads fand im selben Jahr eine Translation ihrer Gebeine in das neugegründete Familienkloster auf dem Petersberg statt. Vgl. Bogumil 1972, S. 139 Anm. 417.
- ____
- 189
- des wettinischen Totengedenkens und der Ausbau der bestehenden Klosteranlage verbunden gewesen wäre. Denn sonst hätte er nicht gemeinsam mit seinem Bruder Dedo 1124 ein neues wettinisches Memorialzentrum auf dem Petersberg ausgestattet und damit zwangsläufig den Niedergang Gerbstedts herbeigeführt 492.
- Die Gestalt des Gründungsbaus aus der Zeit Markgraf Konrads ist bis auf die ergrabenen Fundamente eines Rechteckchores mit eingezogener Apsis unbekannt 493. Ein winziges Detail dieser Choranlage, das zweifach gestufte Gewände zwischen Chor und Apsis, läßt auf die Planung einer ursprünglich, wesentlich aufwendigeren Choranlage schließen (Abb. 160).

- Die räumliche Staffelung zur Apsis wäre für einen einfachen Langchor mit Apsis ungewöhnlich und spricht mit ihrer plastischen Qualität eher für die Planung eines komplexeren Raumgefüges. Vergleichbare „Gewändebildungen“ 494 zwischen Chorquadrat und Hauptapsis gehören mit Königslutter (1135), Riechenberg (um 1150), Fredelsloh (um 1170), Heiningen (Ende 12. Jh.), Hecklingen (zweite Hälfte 12. Jh.) und Braunschweig, St. Blasius (ab 1170) erst in die Zeit nach 1135. Geht man mit F. A. Ritter von der Fertigstellung des Petersberger Chores in den Jahren 1137-1146 aus, handelt es sich bei dieser Anlage um eines der frühesten Beispiele einer Gewändestufung zwischen Sanktuarium und Apsisrund 495.
- Unter Propst Ekkehard (1151-1192) wurde wegen des stetig wachsenden Konvents ein neuer, größerer Chor an das bestehende Langhaus gesetzt, der sich in dem ab 1174 entstandenen spätromanischen Nachfolger als breit ausladendes Querhaus, dem großen dreischiffigen Chor sowie einer kleinen Nebenapsis am Nordquerhaus erhalten hat (Abb. 161, 163, 166, 167) 496.
- ____
- 492 Immerhin knüpfte Konrad an die Gerbstedter Tradition an, indem er den ersten Propst für St. Peter von dort einberief. Vgl. Inventar Sachsen 1886, S. 554. Zur Gründung und Frühgeschichte von Petersberg bei Halle vgl. A. Nebel, Die Anfänge und die kirchliche Rechtsstellung des Augustinerchorherrenstiftes St. Peter auf dem Lauterberge, in: TSZGK 6, 1916, 113-176.
- 493 Der Fund geht auf eine Grabung des 19. Jahrhunderts zurück. Bereits F. A. Ritter veröffentlichte einen Grundriß, in dem die Grundmauern des Vorgängerbaus eingezeichnet sind. Ders., Die Klosterkirche auf dem Petersberge bei Halle, in: ZBw 8, 1858, S. 32-64; besprochen von H.-J. Krause, Die romanische Klausur auf dem Petersberg bei Halle, in: Kunst des Mittelalters in Sachsen, Festschrift für Wolf Schubert, Weimar 1967, S. 77 und S. 84 Anm. 62.
- 494 Diesen Begriff prägt Gädeke 1988, S. 59 und 212 für die gestaffelten Apsisgewände der Nikolausbauten in Oberitalien und Königslutter.
- 495 Ritter 1858, S. 34 vermutet, daß die von Propst Luderus (1128-1137) begonnene Stiftskirche ihre Choranlage erst durch dessen Nachfolger Propst Meinher (1137-1151) erhielt. Für den Abschluß der Bauarbeiten schlägt er die Bauweihe von 1146 durch Erzbischof Friedrich von Magdeburg vor.
- 496 Nur der Chor wurde unter Ekkehard neugebaut, während das Langhaus samt weniger originaler Partien in den Seitenschiffmauern wie auch der Westturm zur Bauphase der ersten Hälfte des 12. Jahrhunderts (zum sog. Luderbau, unter Propst Luderus 1128-1137 begonnen) gehört. Vgl. Krause 1998, S. 6. Zur Restaurierungsgeschichte vgl. zusammenfassend, H. J. Mrusek, D. Dolgner (Hg.), Geschichte der Denkmalpflege Sachsen-Anhalt, Berlin 1990, S. 64-71; zur Baugeschichte vgl. Dehio (Bezirk Halle) 1976, S. 348-351.
- ____
- 190
- Allein die Dreischiffigkeit des doppeljochig gewölbten Sanktuariums verbindet die Petersberger Ostteile mit den hirsauisch beeinflußten Choranlagen in Sachsen. Doch stellt Petersberg darüberhinaus einen seltenen Vertreter dieser Gruppe dar, denn die gerade geschlossenen Seitenschiffe des Sanktuariums tragen jeweils noch ein gewölbtes Obergeschoß. Als Ursache dieser Besonderheit wird man wohl den Wunsch nach zusätzlichen Altarstellen im Chorbereich nach hirsauisch-cluniazensischem Muster sehen können 497.
- Als Vorbild für die Gesamtkonzeption der Petersberger Ostteile führt die Forschung neben dem Schwarzwaldkloster Alpirsbach vereinzelt die Choranlage von St. Lorenz in Schöningen an 498. Das dortige Augustinerchorherrenstift bildet, wie in Petersberg, eine Flucht von Haupt- und Nebenchören aus und wird mittig von nur einer Apsis geschlossen (Abb. 161).

- Die Planung der Petersberger Ostfront muß einst, wie in Schöningen, zwei Türme über den östlichen Jochen der Nebenchöre vorgesehen haben, die allerdings nie zur Ausführung kamen. Wie in Schöningen deutet eine Verstärkung der östlichen Chorkanten (Abb. 162, 250) an,
- daß hier eine höhere statische Belastung, vielleicht für die ursprünglich projektierten Chortürme, eingeplant war. Bei beiden Bauten sind die doppeljochigen Nebenchöre zum Hauptchor hin geschlossen (Abb. 167, 253).
- Die Übereinstimmungen des Choräußeren von Petersberg und Schöningen reduzieren sich hingegen eher formelhaft auf die Doppelgeschossigkeit der Apsisdekoration, deren Durchbildung im Einzelnen von wesentlichen Unterschieden geprägt ist. Die Schöninger Apsisgliederung bildet ein schlichtes Lisenen- und Rundstabgerüst in beiden Geschossen, während in Petersberg eine Blendarkatur die untere Apsiszone überzieht (Abb. 250, 161).
- Die den Grundriß betreffende Vergleichbarkeit der Choranlagen von Petersberg und Schöningen, beide auch etwa im selben Zeitraum um 1160-1180 entstanden, steht erneut mit dem Namen Bischof Reinhard von Halberstadt in Verbindung. Als wichtiger Partner Konrads bei der Reform Gerbstedts in Aktion getreten, war Reinhard 1120 auch der Initiator der Umwandlung des Schöninger Benediktinerinnenkonvents in ein Augustinerchorherrenstift [vgl. Kap. IV.1.2.4.].
- ____
- 497 Zu doppelgeschossigen Nebenchören vgl. Kunze 1925, S. 467.
- 498 Kunze 1925, S. 430; Binding/Untermann 1985, S. 286; Krause 1998, S. 10.
- ____
- 191
- So kann es kein Zufall sein, daß sich der bauführende Propst Ekkehard beim Chorneubau der Wettinergrablege St. Peter an einem sächsischen Vorbildbau orientierte, der einst durch Reinhard reformiert wurde. Es könnte dies als Zeichen für die vormals von Konrad gepflegten Beziehungen zum Halberstädter Reformkreis gedeutet werden. Zumal die für Schöningen und St. Peter auffällige Chorform eines zu den Nebenchören durch geschlossene Wände getrennten Hauptchores, nur durch eine Tür untereinander verbunden, schon im frühen 12. Jahrhundert unüblich wurde und durch die offene Doppelarkade im Chor abgelöst worden war.
- Neben den Nachwirkungen alter Reformbeziehungen hat sich in der Architektur von St. Peter m. E. aber auch die Parteigängerschaft des Wettiners Konrad zu Lothar III. niedergeschlagen. Nicht anders sind Rückgriffe auf Königslutterer Gestaltungsformen, vor allem am Außenbau, zu bewerten. So ist die doppelgeschossige Apsisgliederung - letztlich auch die der Schöninger Apsis - in der Hauptapsis von Königslutter vorgebildet. Von dort sind auch die drei großen Fenster der oberen Apsiszone übernommen, zwischen denen Lisenen einen umlaufenden Bogenfries tragen. Nach oben ist der Fries durch einen antikisierenden Perlstab abgeschlossen. Das Apsisuntergeschoß gliedert eine Blendarkatur, die auch über die anschließende Ostwand des nördlichen Nebenchores läuft und sich im Untergeschoß wohl einst um die gesamte Chorostfront erstreckte. Die nördliche Querhausapsis ist, wie die Königslutterer Querhausapsiden, von der nördlichen Choraußenwand stark angeschnitten und wird von Lisenen umzogen, die die gleiche Profilierung mit seitlichen Kehlen aufweisen wie die Lisenen der Königslutterer Hauptapsis (Abb. 163).

- Ein vergleichbar markantes Detail der Petersberger Chorfront ist der profilierte Sockel, der, wie am Grabbau Kaiser Lothars, sämtliche Bauteile umläuft. Dabei schließt er nicht nur die Chorfront mit Haupt- und Nebenapsiden ein, sondern ist, wie auch am Königslutterer Löwenportal, um die Querhausportale an Nord- und Südseite herumgeführt. Bemerkenswert ist überdies die Durchbildung des attischen Profils, das die gängige Gliederung aus Wulst-Kehle-Wulst mit einem doppelten Plättchen abschließt (Abb. 21, 164).
- Diese Schmuckform wurde bisher nur an wenigen und durch ihre Stifter sehr eng mit der Kaiserbaukunst in Verbindung stehenden Bauten, wie in Bursfelde und Mariental, beobachtet. Was das Innere des Sanktuariums betrifft, gehen die zahlreich auftretenden Ecksäulen - alle Pfeilerkanten sind mit Ecksäulen besetzt, teilweise mit Kapitellen versehen, teilweise auch kielförmig endend (Abb. 167) -

- letztlich auf die Ecksäulen der Königslutterer Hauptapsisgestaltung zurück. Desgleichen scheint auch das gestufte Gewände der nördlichen Querhausapsis, in deren Stufen stark dem Gewände verhaftete Halbsäulen eingestellt sind (Abb. 165),

- direkt mit
- ____
- 192
- der lotharischen Baukunst in Verbindung zu stehen. Erstmals trat diese plastische Auflösung der Gewändekanten in den Nebenapsiden des Süpplingenburger Hausklosters St. Johannes und in der Nachfolge erst wieder in den Querhausapsiden des Braunschweiger Doms auf. In St. Peter sind die Gewändesäulchen gestreckter, mit attischen Basen und stilisierten Würfelkapitellen versehen, und das Kämpferprofil ist nicht, wie in Süpplingenburg, nur fragmentarisch angedeutet, sondern umläuft das innere Apsisrund vollständig.
- Faßt man die Beobachtungen zum Petersberger Chorneubau zusammen, spielen dort Zitate traditioneller Reformbauten eine ähnliche Rolle wie die Imitation der imperialen Baukunst von Königslutter. Damit wurde die Architektur in Petersberg zu einem Träger von Ansprüchen und Ideen, die auch den Grabbau Kaiser Lothars in Königslutter auszeichnen. Natürlich soll nicht der Eindruck erweckt werden, Lothars Parteigänger Konrad habe diese Analogien in Petersberg beabsichtigt, war er doch zum Zeitpunkt der Fertigstellung (Weihe 1184) bereits seit 25 Jahren verstorben und die angeführte Königslutter-Rezeption längst kein ausschließliches Zeichen politischer Parteigängerschaft zu Lothar III. mehr. Aber kann die aufwendige Chorerweiterung in Petersberg, die zu einem Zeitpunkt vorgenommen wurde, als auch die Söhne Konrads längst eigene Hausklöster in Altzelle (Otto v. Meißen), Wechselburg (Dedo v. Groitzsch) und Dobrilugk (Dietrich v. Landsberg 499 gegründet hatten, obwohl ein Bedarf an wettinischen Hausklöstern angesichts der traditionsreichen Grablege auf dem Petersberg gar nicht dringlich schien, nicht auch als Akt der Totenmemoria speziell der konradinischen Linie der Wettiner gewertet werden? Angesichts einer solchen Motivation wäre der mit der Königslutterer Ornamentsprache zusammenhängende Petersberger Chorschmuck kein landläufiges Beispiel der sächsischen Königslutter-Rezeption, sondern eine zum Zwecke der auflebenden Memoria errichtete Architektur, die an die politische Tradition Konrads von Wettin als Parteigänger und nahen Verwandten Kaiser Lothars III. anknüpft und diese programmatisch widerspiegelt 500.
- IV.1.1.8. Widukind I. von Schwalenberg
- Das Benediktinerkloster St. Marien (Marienmünster) in Westfalen wurde als einzige Stiftung des westlich der Weser begüterten Grafen Widukind I.
- ____
- 499 Schlesinger 1962, Bd. 2, S. 217-231 und ders., 1952, S. 35f.
- 500 Konrad war wie Richenza ein Enkel Ottos von Northeim und damit ein Vetter der Kaiserin.
- ____
- 193
- von Schwalenberg (1101-1137) im Jahre 1128 gegründet und mit Mönchen aus dem benachbarten Reformkloster Corvey besetzt 501. Am Gründungstag versammelten sich in Marienmünster neben dem Stifter, den Äbten Hamuco von Paderborn (Abdinghof) und Erkenbert von Corvey auch die Bischöfe Tithard von Osnabrück und Sigward von Minden sowie die Edelherren Bernhard und Hermann zur Lippe 502. Schon die Versammlung einflußreicher Kirchenmänner und bedeutender Reformäbte anläßlich der Gründung von Marienmünster zeigt, daß sich der Schwalenberger um ein hohes Ansehen seines Hausklosters bemühte.
- Seit 1116 bekleidete Widukind das Amt des Corveyer Vizevogts, das er sich mit Siegfried IV. von Boyneburg, einem Verwandten Lothars III. und dem Gründer des Zisterzienserklosters Amelungsborn, teilte 503. So scheint es angesichts der grundherrlichen Beziehungen Widukinds zum Kloster Corvey nicht zufällig, daß er einen Besuch Lothars III. in Corvey im August 1136 zum Anlaß nahm, sein Hauskloster auch von kaiserlicher Seite bestätigen zu lassen 504. Die bereits 1130 unternommene Inschutznahme seiner Stiftung von kirchlicher Seite durch ein Privileg von Erzbischof Adalbert I. von Mainz hatte der Schwalenberger im Oktober 1137 selbst übertrumpft, als er von Innozenz II. den päpstlichen Segen für Marienmünster erwirkte 505. Da die historische Forschung die Zusammenkunft von Papst und Graf während des Kriegszuges gegen Roger II. in Tivoli vermutet, kann von einer Teilnahme Widukinds am zweiten Italienzug Lothars III. ausgegangen werden 506. Diese Quelle unterstützt zwar die Ansicht Petkes, Widukind könne trotz seiner achtmaligen Nennung bei Hofe nicht zum Kreis der engsten politischen Vertrauten gezählt werden, da diese, wie beispielsweise Friedrich von Sommerschenburg, Siegfried von Boyneburg und Bischof Sigward von Minden, während der kaiserlichen Italienzüge zur kommissarischen Leitung der Reichsgeschäfte
- ____
- 501 Ein Quellen- und Literaturverzeichnis zur Geschichte Marienmünsters wurde von W. Knackstedt, Marienmünster, in: Germania Benedictina 8, 1980, S. 446-467 zusammengestellt.
- 502 G. Oldemeier, Die ältere Baugeschichte der Klosterkirche zu Marienmünster Heft 1 (Text), Ing. Diss. (masch.) Stuttgart 1942, S. 6.
- 503 Zur Vogtei über Corvey und zu weiteren Vogteirechten über das Hochstift Paderborn und die Klöster Arolsen, Barsinghausen, Gehrden sowie die Stifte Herford und Möllenbeck vgl. F. Forwick, Die staatsrechtliche Stellung der ehemaligen Grafen von Schwalenberg, Münster 1963, S. 31-47.
- 504 Vgl. Reg. Imp. Nr. Nr. 491.
- 505 Vgl. Reg. Imp. Loth. Nr. 640 und W. Knackstedt, Marienmünster, in: Germania Benedictina 8, 1980, S. 447.
- 506 Forwick 1963, S. 4.
- ____
- 194
- in Deutschland geblieben waren 507. Doch spiegeln die intensiven Bemühungen Widukinds um kaiserliche und päpstliche Privilegien für sein Hauskloster und die damit verbundene Anerkennung des Schwalenberger Adelshauses das Selbstbewußtsein eines gleichsam reformbewußten wie kaisertreuen Parteigängers wider.
- Vom Marienmünsterer Gründungsbau, der in den Jahren nach 1128 entstanden ist, haben sich nur das Mittelschiff, die Vierung, der nördliche Querhausarm mit dazugehörigen Gewölben und Teile der Westtürme erhalten (Abb. 168) 508.

- Den baugeschichtlichen Forschungen Gisbert Oldemeiers ist es zu danken, daß Marienmünster als dreischiffige Querhausbasilika mit sächsischem Stützenwechsel und in drei Apsiden schließender Chorpartie zu rekonstruieren ist 509. Abgesehen von der Frage nach der ursprünglichen Langhauswölbung muß mit Oldemeier und Thümmler von komplett gewölbten Ostteilen ausgegangen werden, deren Struktur noch heute an Vierung und nördlichem Querhausarm ablesbar ist 510. Jeweils vier in die Ecken der kreuzförmigen Vierungspfeiler eingestellte Säulen, von denen heute nur noch die östlichen der Vierung und die südöstlichen des nördlichen Querhausarmes erhalten sind, nahmen in Höhe der Kämpfergesimse die Gewölbegrate auf (Abb. 169).

- An dieser Stelle auf die Ausführungen zu St. Vitus in Elten [Kap III.2.3.4.] und die darin besprochene Typisierung sächsischer Wölbsysteme nach Harmen Thies verweisend, stoßen wir in Marienmünster erneut auf ein Beispiel des „isolierten baldachinartigen Stütz- und Wölbsystems“ 511. Vergleichbar den Gewölben der Quedlinburger Ostkrypta (1129 geweiht) und den Freckenhorster Ostteilen (1129 geweiht), handelt es sich um die frühe und vereinfachte Form des Baldachingestells, das die Gewölbegrate ohne begleitende Schildbögen auf die Runddienste führt. Erst in Elten (nach 1129)
- ____
- 507 Petke 1985, S. 231-232, 379.
- 508 Heute bestimmt das Bild des Benediktinerklosters ein Hallenumbau des 17. Jahrhunderts. Zur Baugeschichte vgl. Oldemeier 1942, S. 19-65 und S. 70-77; Thümmler 1951, S. 167-169; D. Kluge, W. Hansmann in: Dehio Westfalen (Neubearbeitung) 1977, S. 396-397.
- 509 Zuletzt schlägt P. Marx, Die Stuck-Emporenbrüstung aus Kloster Gröningen, Phil. Diss. Berlin 2000, S. 200, Anm. 851 im Anschluß an die Rekonstruktion der Klosterkirche Gröningen, die ebenso wie Marienmünster engstens mit dem Corveyer Konvent verbunden war, eine Chorform mit längsrechteckigen, das Sanktuarium flankierenden Nebenkapellen vor.
- 510 Während Oldemeier 1942, S. 40-42 ein zunächst flachgedecktes Langhaus rekonstruiert, spricht sich Thümmler 1951, S. 167 für eine von Baubeginn an geplante Langhauswölbung aus. Zur Chor- und Querhauswölbung vgl. Oldemeier 1942, S. 35 und S. 54-59.
- 511 H. Thies, Sächsische Gliederungs- und Wölbsysteme, in: Romanik Niedersachsen 1997, S. 73.
- ____
- 195
- und Königslutter (1135) vermitteln Schildbögen zwischen Hochschiffwand und Bogenarchitektur. Noch Thümmler (1951) hat den Marienmünsterer Kirchenbau als einen frühen Versuch westfälischer Gewölbearchitektur beschrieben, dessen Vorbilder er ausschließlich in der rheinischen Baukunst (Elten) zu finden glaubte 512.
- Tatsächlich aber liegt Marienmünster nicht nur geographisch im Spannungsfeld zwischen den Wölbarchitekturen der westlichen Reichsteile und dem Kernland Sachsen. Auch die politischen Bestrebungen des Stifters nach einer angesehenen Stellung am sächsischen Kaiserhof lenken den Blick auf das sächsische Baugeschehen. So können für Marienmünster zahlreiche Architekturzitate nachgewiesen werden, die ihre Vorbilder eher in Sachsen als im Rheinland haben. An erster Stelle steht der von Oldemeier rekonstruierte sächsische Stützenwechsel, der bei sächsischen Kirchenbauten wie beispielsweise St. Michael in Hildesheim, Stift Gandersheim, St. Servatius in Quedlinburg und in Hamersleben weit verbreitet, westlich der Weser jedoch allein in Marienmünster vorkommt 513. Etwas anders verhält es sich mit der „sonst so selten vorkommenden Turmart“ 514 des in Marienmünster die Vierung überspannenden achteckigen Turmes 515. Ursprünglich durch die salischen Kaiserbauten in Limburg an der Haardt, Speyer und Mainz vertreten, fand das Turmoktogon im Sachsen des frühen 12. Jahrhunderts nur spärlich Verbreitung. Neben St. Simon und Judas in Goslar, Kloster Gröningen und St. Ulrich in Sangerhausen hat vor allem der oktogonale Aufbau über der Vierung von Königslutter die Tradition der rheinischen Kaiserdome und die damit verbundene imperiale Vorstellung aufgegriffen 516. In diesen Zusammenhang imperialer Reflexionen gehört auch der Marienmünsterer Westbau, der von Oldemeier als mehrgeschossiger querrechteckiger Westriegel mit Herrscherempore rekonstruiert wird 517. Neben dem Corveyer Westbau, dem als Mutterkloster von Marienmünster sicherlich eine wichtige Vorbildwirkung zukam, standen auch die zahlreichen Westriegel sächsischer Klosterkirchen, wie in Goslar (Heinrich-Dom) und Gandersheim, formal Pate.
- ____
- 512 Thümmler 1951, S. 170.
- 513 Die Stützenfolge konnte Oldemeier 1942 durch Suchgrabungen nachweisen. Ebd. S. 37-40. Die Einzigartigkeit des sächsischen Stützenwechsels von Marienmünster westlich der Weser verzeichnet Thümmler 1966, Bd. 1, S. 174.
- 514 Ebd. S. 191.
- 515 Oldemeier 1942, S. 44-52.
- 516 Zur Verbreitung des achteckigen Vierungsturmes vgl. Schütz/Müller 1989, S. 127-131.
- 517 Oldemeier 1942, S. 19-23, S. 29.
- ____
- 196
- An Fragen zur Genese, Bedeutung und Funktion der riegelartigen Bauformen im Westen mittelalterlicher Klosterkirchen soll mit Verweis auf jüngst erschienene Literatur an dieser Stelle nicht angeknüpft werden 518. Lediglich eine Beobachtung Adolf Schmidts aus seinem grundlegenden Aufsatz zu Westwerken und Doppelchören sei wiederholt, nach der Westriegel überwiegend in bedeutenden Reichsklöstern und Bischofssitzen verbreitet waren und Herrschern und Klerus zur höfischen und liturgischen Repräsentation dienten 519. Vor diesem Hintergrund könnte der Marienmünsterer Westbau mitsamt Eingangshalle und Emporengeschoß, neben dem höfisch-repräsentativen Anspruch des Stifters und seiner Familie, vermutlich auch im Hinblick auf hohen kaiserlichen oder bischöflichen Besuch konzipiert worden sein. Zumindest hat Widukind mit der Architektur seines außerhalb des sächsischen Kernlandes gelegenen Hausklosters Marienmünster eine für die sächsische Baukunst typische Formensprache (Stützenwechsel und Wölbung) mit gezielten Anklängen an kaiserliche Herrschaftsarchitekturen (achteckiger Vierungsturm und Westbau) zusammengeführt. Wenn der Gründungsbau von Marienmünster auch keine sächsischen Zitate aus dem Bereich der Bauplastik überliefert, so zeigt sich mit Widukind von Schwalenberg, den die Historiker auf dem politischen Spielfeld als Randfigur charakterisieren, erneut ein lotharischer Parteigänger, der bei der Architektur seines Hausklosters die Wahl der künstlerischen Mittel in den Kontext einer repräsentativen und imperialen Formensprache stellte, um seine Position zu Kaiser und Kurie zu demonstrieren und durch bedeutendste Privilegien mit hohem Anspruch zu belegen.
- IV.1.1.9. Konrad von Plötzkau
- Als Konrad von Plötzkau (†1133) durch Lothar 1130 die Nordmark übertragen wurde, gehörte er weder zu einer traditionsreichen sächsischen Adelsfamilie noch zum engeren Beraterkreis des Königs 520. Die historische Forschung
- ____
- 518 D. von Schönfeld des Reys, Westwerkprobleme. Zur Bedeutung der Westwerke in der kunsthistorischen Forschung, Weimar 1999.
- 519 A. Schmidt, Westwerke und Doppelchöre. Höfische und liturgische Einflüsse auf die Kirchenbauten des frühen Mittelalters, in: Westfälische Zeitschrift 106, 1956, S. 347-438, ebd. S. 386. Für einen ähnlichen Symbolwert aufwendiger Westbauten, die „gesteigerte Repräsentation“ und „Machtdarstellung“ zum Ausdruck bringen, plädiert auch E. Lehmann, Die Westbauten der Stiftskirchen im deutschen Sprachgebiet zwischen 1150 und 1300, in: Zur Kunst des 13. Jahrhunderts in Mitteldeutschland, Festschrift für E. Schubert (Sachsen und Anhalt 19), Weimar 1997, S. 19-71, ebd S. 20.
- 520 H. Beumann, Zur Frühgeschichte des Klosters Hecklingen, in: Festschrift für F. v. Zahn I, 1968, S. 239-293.
- ____
- 197
- konnte das Plötzkauer Grafengeschlecht in Sachsen erst mit Konrads Urgroßvater Bernhard dem Älteren von Plötzkau (bezeugt um 1069) erfassen. Der Niedergang der Plötzkauer Grafen, denen es unter Lothar III. gelungen war, sich in den Kreis der einflußstarken sächsischen Adelsgeschlechter einzureihen, war bereits mit dem Tod von Konrads Bruder Bernhard (dem Jüngeren) 1147 und beider Schwester Irmengard (um 1160) besiegelt 521. Konrad von Plötzkau, der erstmals 1129 in einem Diplom Lothars III. erscheint und schon 1133 am Romzug teilnehmen konnte, hatte sich in einer politischen Blitzkarriere eine Vertrauensstellung am kaiserlichen Hof erarbeitet 522.
- Für den Kunsthistoriker wird die Parteigängerschaft Konrads zu Lothar III. allerdings erst nach dessen Tod in Architektur und Ausstattung der weit nach 1150 entstandenen Klosterkirche St. Georg und Pancratius in Hecklingen erkennbar. Trotz dieses zeitlichen Sprungs gibt es neben den in der Königslutter-Nachfolge stehenden Bauformen auch figurale Bauskulptur, die auf eine Verbindung der Plötzkauer zum Kaiserhaus hinweist. Mit dem Bau des Hausklosters, das schon von Bernhard (I.) dem Älteren an einem nicht bekannten Ort als Kanonikerstift initiiert und von Konrad als benediktinisches Nonnenkloster neu gegründet wurde, hat man erst in den Jahren um 1160 am heutigen Ort Hecklingen begonnen 523. Wie aus der Stifterchronik „Constructio Claustri Hackelinge vel Heckelinge“ 524 hervorgeht, wurde anstelle der Plötzkauer Stammburg, die Konrad niederreißen ließ, zwischen 1130 und 1132 ein Kloster errichtet und mit Nonnen aus dem Reformkloster Gelbstedt besetzt 525. Daß es sich bei diesem Bau aber nicht um die heutige Hecklinger Klosterkirche handeln kann, ist von der historischen Forschung durch Quellen belegt und von der
- ____
- 521 Fenske 1977, S. 86-91.
- 522 Lothar hatte den Plötzkauer 1129 mit der Nordmark belehnt und ihm damit den Markgrafentitel verliehen. Vgl. Petke 1985, S. 354f und Reg. Imp. Loth. Nr. 194, 236, 258, 326.
- 523 Es bleibt, nicht zuletzt wegen fehlender Quellen, äußerst fraglich, wer diesen Kirchenbau gestiftet hat, denn die Grafen von Plötzkau waren im Mannestamme mit Bernhard II. (†1147) ausgestorben. Das letzte weibliche Mitglied des Plötzkauer Adelshauses, die Hecklinger Äbtissin Irmengard, starb vor 1162 und ist damit die einzige mögliche Stifterin und Erbauerin der Klosterkirche.
- 524 Die Stifterchronik aus dem frühen 13. Jahrhundert wurde erstmals von J. C. Beckmann in der „Historie des Fürstenthums Anhalt“ 1710 veröffentlicht. Vgl. Beumann 1968, S. 424, 264, 280.
- 525 Beumann 1968, S. 274. Als einziger schriftlicher Beleg an einen bestehenden Kirchenbau zu dieser Zeit, der aber ebenfalls nicht zu lokalisieren ist, gilt ein auf 1140 datiertes Papstprivileg. Vgl. Heumann 1968, S. 250, 258f, 279 und F. Kowolik, Das alte Hecklingen und seine Klosterkirche St. Georg. Eine Bildersammlung zu einer mitteldeutschen Kleinstadt, Oschelsleben 1994, S. 15-20.
- ____
- 198
- kunsthistorischen Forschung durch Analysen von Architektur und Bauschmuck bestätigt worden 526. So nimmt insbesondere der Außenbau der dreischiffigen, flachgedeckten Basilika mit Querhaus, Chor und drei Apsiden unverkennbare Merkmale der erst in der Nachfolge von Königslutter stehenden sächsischen Architektur der Zeit nach 1150 auf (Abb. 170, 171).
- Die direkte Vorbildwirkung Königslutters zeigt sich, angefangen bei dem ausgesprochen qualitätsvollen, in regelmäßigen Quadern versetzten Mauerwerk, das an den Gebäudekanten aus weicherem Sandstein gehauene Ecksäulen ausbildet (Abb. 172),

- über den gestuften und um den gesamten Bau geführten Sockel 527, bis zur Gliederung von Hauptapsis und nördlichem Seitenportal. Insbesondere das in zwei Stufen versetzte Portal am nördlichen Seitenschiff (Abb. 173),

- um das sich der Sockel wie ein Rahmen herumlegt, ist hinsichtlich Aufbau und Dekor in enger Verbindung zum Königslutterer Nordquerhausportal entstanden, wenngleich dort ein aufwendiger gegliedertes Profil das Portalgewände belebt (Abb. 48) 528.

- In die Gewändestufen sind je zwei gedrungene Säulen, in Königslutter sind es drei, mit attischen Basen und Palmettenfächer- und korinthisierenden Kapitellen eingestellt. Über den Kapitellen und einer Reihe von Akanthusblättern lastet das massive Kämpfergesims, das hier, nicht wie in Königslutter bis über das Rahmenprofil hinausgezogen und in ein attisches Profil aufgelöst ist, sondern innerhalb des Portalrahmens bleibt und einen einfachen Perlstab ausbildet.
- Diese Kombination aus Akanthusblättern und Perlstab wurde als bestimmendes Gliederungsmotiv der Königslutterer Hauptapsis beobachtet, wo es als antikisierendes Dekor die vorgeblendeten Lisenen mit Rundbogenfriesen in zwei Geschosse teilte (Abb. 66).

- Die Geschoßgliederung der Königslutterer Apsis und die Rhythmisierung der einzelnen Etagen
- ____
- 526 Von Beumann 1968, S. 256f wurden die historischen Quellen kritisch zusammengefaßt. Auch in den vergleichenden kunsthistorischen Analysen von D. Honekamp und M. Köhler, Die Klosterkirche St. Georg und St. Pankratius in Hecklingen, München/Berlin 1993, S. 2-3.; Wulf 1996, S. 181-182 und Kowolik 1994, S. 29-40 wird der Baubeginn der heutigen Hecklinger Klosterkirche in der zweiten Hälfte des 12. Jahrhunderts vermutet; zuletzt von W. Schenkluhn, Die Klosterkirche in Hecklingen und der Goslar-Braunschweiger Architekturkreis, in: Hallesche Beiträge zur Kunstgeschichte 2, Halle 2000, S. 3-20, in die Jahre zwischen 1157 und 1162 datiert. Dem unbekannten Grundriß des Vorgängerbaus (ab 1130) wäre nur durch bisher noch nicht durchgeführte Suchgrabungen auf die Spur zu kommen.
- 527 Im Unterschied zum attischen Sockelprofil in Königslutter ist der Sockel in Hecklingen durch ein vereinfachtes Wulst-Kehle-Platte Profil gegliedert.
- 528 Zur Motivanalogie vgl. S. Lieb, Die Adelog-Kapitelle in St. Michael zu Hildesheim und ihre Stellung innerhalb der sächsischen Bauornamentik des 12. Jahrhunderts, Köln 1995, S. 101, 202, 231, gegen Kluckhohn 1939, S. 556, der die Hecklinger Kapitelle mit der Hildesheimer Werkstatt in Verbindung bringt.
- ____
- 199
- durch eine profilierte Pilastergliederung wurde für die Hecklinger Haupt- wie Nebenapsiden übernommen, insgesamt aber ohne zusätzliche Bauskulptur eher nüchtern vor den Baukörper appliziert (Abb. 171, 172).
- Ähnlich zurückhaltend verhält sich die Architektur des Innenraums, sieht man von dem Einbau der Nonnenempore (13. Jh.), den Stuckengeln über den Seitenschiffarkaden (13. Jh.) und der farbenkräftigen Ausmalung des 19. Jahrhunderts ab (Abb. 174).

- Die mit Ecksäulen besetzten Langhauspfeiler und deren reiche Kapitellornamentik spiegeln bereits die nach 1170 entstandenen Formen des Braunschweiger Domes wider, während die Gliederung der Chor- und Querhausarchitekur mit den Ecksäulen im Apsisgewände in die früheste Bauphase der 60er und 70er Jahre des 12. Jahrhunderts weisen. 529. Fast unscheinbar sind dort raumgliedernde Akzente gesetzt. Die unterschiedlichen Fußbodenhöhen, die in drei Stufen vom Langhaus ins Querhaus und von dort in einer Stufe zu Chor und Apsis hinaufführen, deuten eine vergleichbare räumliche Staffelung zur Apsis hin an, wie sie auch die hierarchisch organisierten Raumglieder der Königslutterer Ostanlage ausbilden. Als entsprechendes Königslutterzitat kann auch das gestufte Gewände am Eingang zur Hauptapsis gelten, das sein kaiserliches Vorbild durch die Ecksäulen mit Palmettenfächerkapitellen nachahmt. Doch erschöpft sich die Parteigängerschaft der Plötzkauer zum kaiserlichen Hof nicht in der Rezeption Königslutterer Bau- und Ornamentformen, sondern schlägt sich auch in der skulpturalen Ausstattung nieder.
- Unter den plastischen Werken in Hecklingen befinden sich fünf etwa 23 cm große Portraitköpfe, vermutlich aus Stuck, die über den Scheiteln der nördlichen Langhausarkaden angebracht sind (Abb. 175).

- Dabei handelt es sich um einen Frauenkopf, zwei Männerköpfe sowie um ein offensichtlich verwandtes, zumindest zusammengehörendes Paar, deren Attribute es als Herrscherpaar auszeichnet. Zwar kennzeichnet die stark stilisierten Portraitköpfe ein Höchstmaß an Gleichheit, sie sind aber dennoch nach Geschlecht und Alter unterschieden. So glaubt die Forschung, in dem durch Bart und mit greisenhaften Gesichtszügen gekennzeichneten „Alten“ (Abb. 178)

- entweder den Stifter von Hecklingen, Bernhard den Älteren, seinen Sohn Dietrich oder seinen Enkel Helperich (Vater Konrads), zu erkennen. Bei der jungen Frau (über der westlichsten Arkade) soll es sich um die
- ____
- 529 Die architektonisch-stilistischen Differenzen gehen auf eine von Honekamp/Köhler 1993, S. 12 vermutete Bauunterbrechung von 1170/80 zurück, an die ab 1210/20 in veränderter Planführung angeschlossen wurde.
- ____
- 200
- entsprechende Ehefrau handeln (Abb. 179).

- Der jüngere Mann (über der östlichsten Arkade) wurde als Konrad von Plötzkau erkannt (Abb. 180) 530.

- Die Diskussion um die Einzelzuweisungen kann auch an dieser Stelle zu keinem Abschluß führen, doch sei folgendes ergänzend angemerkt: Bei der durch Bart und Gesichtszüge als älteste Person ausgezeichneten Figur handelt es sich m. E. weder um den Vater (Helperich) oder Großvater (Dietrich) Konrads von Plötzkau, sondern um seinen Urgroßvater Bernhard den Älteren, dem als primus fundator, als „Erststifter“, eine Vorrangstellung vor den nachfolgenden Familienmitgliedern und Stiftern zukommt 531. In der jungen weiblichen Person dann aber auch die Ehefrau Bernhards zu vermuten, verbietet sich dagegen aufgrund der Alterscharakteristik; sie wäre wahrscheinlich auch als Greisin dargestellt. Auch muß der Vorschlag, es handle sich möglicherweise um die erste Äbtissin Irmengard von Plötzkau (um 1130/32 - um 1163) 532, eine der Schwestern Konrads, abgelehnt werden. Zwar spricht der von Helmut Beumann geäußerte Hinweis, Konrad von Plötzkau habe die Neugründung Hecklingens als Nonnenkloster zugunsten seiner Schwester veranlaßt, für die exponierte Stellung Irmengards in der Stifterreihe 533, doch ist die an anderer Stelle vom Autor geäußerte Begründung, „der Kopf [lasse] jegliches Zeichen einer geistlichen Würde vermissen“ 534, für die Zuweisung ausschlaggebender. Desgleichen läßt Beumann in seinem zweiten Vorschlag, in der jungen Frau das Portrait der Ehefrau des nebenstehenden jüngeren Mannes zu sehen, einen entscheidenden Aspekt außer acht: Die Frau ist mit einer unverhüllten Haartracht und langen geflochtenen Zöpfen dargestellt, womit offensichtlich auf ihre Jungfräulichkeit und ihren damit verbundenen gesellschaftlichen Status als unverheiratete Frau verwiesen werden sollte 535 .
- _____
- 530 Beumann 1968, S. 290f nach W. Schubart, Sachsenblume und Sachsenkaiser in der Klosterkirche zu Hecklingen, in: Bernburger Heimatkalender 9, 1934; S. 111-121; Kowolik 1994, S. 123 und Wulf 1996, S. 187.
- 531 Fleckenstein 1983, S. 11-12 führt zum Verständnis der Gründer eines Klosters und ihrer Bedeutung als Erststifter auch die Reihe der Stifterreihe im Chor des Naumburger Doms an, „die im übrigen auch erkennen läßt, daß den primi fundatores vor den nachfolgenden Stiftern ein deutlicher Vorrang zugebilligt wird“.
- 532 Zu den Lebensdaten der Äbtissin Irmengard vgl. die Ausführungen bei Beumann 1968, S. 264-267.
- 533 Ebd, S. 264.
- 534 Ebd.‚ S. 291.
- 535 Die zu herabfallenden Zöpfen gebundenen Haare sind im Mittelalter verbreitete Frisuren von zumeist unverheirateten Frauen. Vgl. hierzu den Hinweis von Spehr 1994, S. 18 Bildunterschrift zu Abb. 11; LMa, Bd. IV, Sp. 1813; Lexikon der Kunst, Bd. 3, 1991, S. 72-73 Art.: Haar- und Barttrachten. Motivische Parallelen sind auch in den Mariendarstellungen auf den Chorschranken von St. Michael in Halberstadt und Liebfrauen in Halberstadt (frühes 13. Jh.) zu sehen. Vgl. hierzu H.-J. Krause, Zur Geschichte und Funktion des spätromanischen Schranks im Halberstädter Domschatz, in: Zur Kunst des 13. Jahrhunderts in Mitteldeutschland, Festschrift für E. Schubert (Sachsen und Anhalt 19), Weimar 1997, S. 455-494.
- ____
- 201
- Nun belegt der bei Beumann auf der Grundlage der Stifterchronik und entsprechender Textstellen im Annalista Saxo veröffentlichte Stammbaum der Grafen von Plötzkau 536, daß die jüngste Generation neben den Brüdern Bernhard (†1147), dem unverheirateten Konrad (†1133) und der Äbtissin Irmengard (†1160), noch eine weitere Schwester, die Gräfin Mechthild, führt. Von dieser Mechtildis comitissa ist außer ihrer Nennung als Schwester Irmengards und der Tatsache, daß ihr in den Quellen kein Ehemann zur Seite gestellt ist, nichts bekannt. Deshalb wurde sie bisher wahrscheinlich auch nicht für das Bildnis der jungen Frau mit Zöpfen in Erwägung gezogen 537. Wenn man nun in dem bärtigen Mann den Erststifter Bernhard vermutet, der als Greis aus der Reihe der anderen Portraits hervorsticht, dann kann es sich bei den jüngeren Portraits nur um zwei der insgesamt vier Geschwister der jüngeren Plötzkauer Linie handeln. Die junge Frau könnte dann Mechthild und der junge Mann entweder Konrad oder Bernhard II. sein. In jedem Falle müßte man aber, falls es sich ursprünglich um die Stifterreihe der jüngsten Generation gehandelt hat, die Portraitköpfe eines weiteren Bruders und den der Äbtissin Irmengard ergänzen.
- Auch die Positionierung der Köpfe über den Langhausarkaden in ihrer heutigen Anordnung verrät einiges über die Bedeutung und Stellung der Dargestellten im Kontext der Neugründung: Der junge Mann, in dem wohl Konrad von Plötzkau als Gründer des Hecklinger Neubaus und Garant für die Memoria des Plötzkauer Adelshauses zu sehen ist, wird über der östlichsten Arkade in Nähe des Chorraums eingereiht, wo der die Messe lesende Priester für die Familie die Totenfürbitte abhält. Das Bildnis seiner Schwester Mechthild, die als Unverheiratete zu einem unbestimmten Zeitpunkt dem Konvent als Ordensschwester beigetreten sein wird, ist nahe der Nonnenempore über der westlichen Arkade angebracht und garantiert das Totengedenken für die Grafen von Plötzkau durch den Einschluß ins Gebet der Nonnen. Den Zyklus damit gleichsam umschließend, vertreten Konrad und Mechthild die Stiftergeneration der Hecklinger Neugründung, während Bernhard als primus fundator die Position des ersten Klosterstifters erfüllt. Gleichzeitig markieren diese beiden zeitlich weit entfernten Generationen den Beginn und das Ende des Plötzkauer Adelshauses.
- Neben diesen drei Köpfen Plötzkauer Adliger hat sich in Hecklingen ein weiteres Portraitpaar über den mittleren Arkadenscheiteln erhalten.
- ____
- 536 Beumann 1968, S. 272.
- 537 Ebd.‚ S. 245 und S. 274.
- ____
- 202
- Durch den identischen Kopfschmuck zweier Kronen als zusammengehöriges, aber keineswegs gewöhnliches Adelspaar gekennzeichnet, wurde erstmals von Schubart die Identifizierung der Köpfe als kaiserliches Paar, genauer als Lothar III. und Richenza vorgenommen (Abb. 176, 177) 538.
- Diese Zuschreibung wurde hinsichtlich Konrads politischer Nähe zu Lothar sowie der Verwandtschaft seiner Mutter mit Otto von Northeim von der historischen Forschung kaum angezweifelt 539. Desgleichen wurde auch von den Kunsthistorikern Schubarts vorgeschlagene Zuweisung ebenso wie dessen Beschreibung der Kronen als Bügelkronen übernommen 540. Dieser Vorschlag muß allerdings präzisiert werden, denn es handelt sich bei den Insignien der Hecklinger Königsköpfe nicht um Bügelkronen, sondern um eine aus der Tradition byzantinischer Kaisertrachten stammende Kronenform, das Kamelaukion. Die Bügelkrone besteht aus einem um den Kopf gelegten Kronreif und im Scheitel gekreuzten Metallbügeln, teilweise auch nur einem Bügel von hinten nach vorn führend. Im Unterschied zur Bügelkrone trägt der mit einem Kamelaukion Gekrönte unterhalb der Metallbügel eine Haube aus Stoff 541. Auch die Hecklinger Königsköpfe tragen über einer geschlossenen Stoffkappe, die die Struktur des Haares verdeckt, eine Krone mit einem von vorn nach hinten geführten Bügel, der am Kronenring befestigt ist.
- Doch wie ist diese spezielle Form der Krone hier in Hecklingen zu deuten? Die Forschungen zum Thema Kamelaukion sind vielfältig und
- _____
- 538 W. Schubart, Die Ornamente und Bildwerke der Hecklinger Klosterkirche aus dem Mittelalter, in: Bernburger Kalender 10, 1935.
- 539 Allein Beumann 1968, S. 292 äußert diesbezüglich Zweifel, da das Kaiserpaar in der Stifterchronik, die er dem Skulpturenprogramm zugrundelegt, nicht erwähnt wird Die Mutter Konrads von Plötzkau, Adela, war eine Enkelin Ottos von Northeim. Die Ahnentafel, zusammengestellt nach der constructio, ist bei Kowolik 1994, S. 20 publiziert.
- 540 Zuletzt von Schenkluhn 2000, S. 15 angezweifelt, der es für naheliegender hält, „in den drei ungekrönten Häuptern Mitglieder der askanischen und nicht der Plötzkauer Familie zu sehen“. Diese Ansicht, nach der die Königsköpfe Stauferherrscher darstellen müßten, beruht auf der Datierung der Köpfe in die 1170er Jahre und einer vorsichtigen Anzweifelung einer Zweitverwendung der Skulpturen sowie auf der Einreibung des Hecklinger Kirchenbaus in den Goslar-Braunschweiger Architekturkreis, von dem Königslutter m. E. jedoch nicht abzugrenzen ist. Die Abschlußbemerkung, warum zwei Königsköpfe dargestellt sind, „wo die Königszeit in der Königslandschaft Sachsen doch abgelaufen war“ (ebd. S. 20) scheint doch eher in die richtige Richtung zu weisen und hier ein Memorialzentrum der Plötzkauer zu sehen, die mit zwei Bildnissen der letzten sächsischen Könige diese in ihre Memoria einschlossen.
- 541 Zur Form der Bügelkrone vgl. Schramm 1955, Bd. 2, S. 395-401; zum Kamelaukion ebd. S. 383.
- ____
- 203
- können an dieser Stelle nur durch zwei Autoren stellvertretend resümiert werden. Im grundlegenden Aufsatz Gerhard B. Ladners wird das camelaucion als kaiserlich byzantinische Krone bezeichnet, die ihren zumindest terminologischen Ursprung in der päpstlichen Kopfbedeckung camelaucum, also im liturgisch-klerikalen Bereich hatte und von dort ins imperiale Zeremonien übernommen wurde. Schramm hingegen verweist bei der Unterscheidung zwischen der Bügelkrone und dem Kamelaukion, jeweils als imperiale Insignie einmal der westlichen Herrscher, das andere Mal der byzantinischen Patriarchen gedeutet, auf den Aspekt des Wetteiferns römischer und byzantinischer Herrscher um die prachtvollste Insignie 542. Diese schon stark verkürzten Ansichten Ladners und Schramms nochmals auf zwei Schlagworte verdichtet, könnten „kaiserlicher Anspruch auf päpstliche Herrschaftssymbole“ und „Byzanzrezeption“ als die mit dem Tragen des Kamelaukions verbundenen ideologischen Inhalte bezeichnet werden. Bezieht man nun eine weitere Herrscherdarstellung aus dem Bereich der Sepulkralkunst in die Überlegungen mit ein, steht dem politisch-programmatischen Kontext des Kamelaukions ein weiterer, weniger repräsentativer Aspekt zur Seite.
- Auf dem Grabmal Rudolfs von Schwaben, wohl bald nach seinem Tod 1080 entstanden, trägt der tote König neben einem herrscherlichen Gewand und königlichen Insignien auch ein Kamelaukion (Abb. 181) 543.

- Rudolf hatte im Investiturstreit nicht nur auf der Seite der Gregorianer gegen Heinrich IV. gekämpft, sondern wurde 1071 auch als Gegenkönig an deren Spitze gestellt. Es ist also zu vermuten, daß man für sein Grabmal im Dom von Merseburg bewußt eine „weniger offizielle“ Kronenform mit „geringerem Anspruch“ 544 wählte, um die untergeordnete Stellung des
- ____
- 542 G. B. Ladner, Der Ursprung und die mittelalterliche Entwicklung der päpstlichen Tiara, in: Tainia, Festschrift für Roland Hampe, Mainz 1980, S. 449-481; P. E. Schramm, Die Bügelkrone, ein karolingisches Herrschaftszeichen, in: Festschrift für K. G. Hugelmann 1959, Bd. 2, S. 561-578, ebd. S. 569. Vereinzelte Exkurse zum Kamelaukion als byzantinisches Herrschaftszeichen bei J. Deér, Der Ursprung der Kaiserkrone, in: Byzanz und das abendländische Herrschertum 1977, S. 11-41; ders., Der Kaiserornat Friedrichs II., Phil. Diss. Bern 1952, S. 19-24 werden im grundlegenden Werk zur Geschichte und Genese des Kamelaukions in Text und Bild von E. Piltz, Kamelaukion et mitra. Insignes byzantins impériaux et ecclésiastiques, Stockholm 1977 einer kritischen Beurteilung unterzogen.
- 543 Zur Grabplatte Rudolfs, die Krone allerdings auch nicht korrekt als Bügelkrone bezeichnend, zuletzt B. Hinz, König Rudolfs Grabmal im Merseburger Dom: Innovation aus dem Zusammenbruch, in: Beck/Hengevoss-Dürkop 1994, S. 515- 531.
- 544 Beide Signifikanzen findet Suckale 1993, S. 39 und S. 177 Anm. 119 für das Kamelaukion im Kontext der kaiserlichen Hofkunst Ludwigs des Bayern. Daß die kaiserlichen Grabkronen Heinrichs IV. (Speyer) und Friedrichs II. (Palermo) auch Kamelaukien waren, scheint in diesem Zusammenhang keinen Widerspruch zu bergen, waren sie doch als Hinweis auf die sakrale Würde ihres Kaisertums zu verstehen und als solche nur für das Grab bestimmt, während die Bildergrabplatte Rudolfs repräsentativ für jedermann zugänglich in einer Domkirche angebracht war.
- ____
- 204
- Gegenkönigs gegenüber einem kaiserlichen Träger der Reichsinsignien zum Ausdruck zu bringen. Projiziert man nun dieses Erklärungsmodell auf die Darstellungen Lothars und Richenzas in Hecklingen, dann ist die Wahl des Kamelaukions dort um so erstaunlicher, hatten doch beide rechtmäßig die Kaiserwürde erlangt. Erst wenn man auch Lothars Verständnis von Königsherrschaft und die Mittel seiner kaiserlichen Selbstinszenierung miteinbezieht, ist einer möglichen Bedeutung des byzantinischen Kamelaukions in der Hecklinger Skulptur auf die Spur zu kommen. Neben dem Rom- und Italienbezug in der Politik und den darstellenden Künsten galt auch die Byzanzrezeption als ein besonderes Kennzeichen der frühen Ottonenkaiser 545. Da die Herrschaftslegitimation Lothars ganz wesentlich vom ottonischen Herrschergedanken geprägt war, könnten die byzantinischen Kronenformen als ein Hinweis auf den in der Politik Lothars verankerten Ottonenbezug gedeutet werden. Die weniger offizielle und mit der Entwicklung der päpstlichen Kopfbedeckung verknüpfte Kronenform war vor diesem Hintergrund einmal als Bescheidenheitstopos gegen die übersteigerte Repräsentation des salischen Kaisertums zu deuten, gleichzeitig aber auch ein Hinweis auf die sakrale Würde des Königs nach dem Verständnis des ottonischen Sakralkönigtums. Natürlich war auch die päpstliche Bezugsebene von Interesse, gerade für einen gregorianisch gesinnten Herrscher wie Lothar, der durch die Neuregelungen hinsichtlich des Investiturrechts seine priesterliche Eigenschaft verloren hatte.
- Es soll nun gewiß nicht der Eindruck entstehen, die Hecklinger Stuckköpfe seien Beispiel einer kaiserlichen Selbstdarstellung. Erst die Familie des lotharischen Parteigängers Konrad von Plötzkau, der zum Zeitpunkt der Entstehung des Neubaus und dessen Ausstattung bereits lange tot war, kann als Auftraggeber der Stuckköpfe gelten. Wahrscheinlich hatte das letzte weibliche Mitglied des Plötzkauer Adelshauses, die um 1160 verstorbene Äbtissin Irmengard, den Bau der heutigen Klosterkirche in die Wege geleitet und in diesem Zusammenhang dem Kloster möglicherweise auch die Portraitköpfe gestiftet Auch kann die Analogie zur
- ____
- 445 Für die zahlreichen Veröffentlichungen zu diesem Thema sei stellvertretend auf die jüngsten Beiträge im Symposionsband zur Ausstellung, Otto der Große, Magdeburg und Europa, Magdeburg 2001, hrsg. von B. Schneidmüller und S. Weinfurter, Mainz 2001 hingewiesen.
- ____
- 205
- Grabplatte des gregorianischen Gegenkönigs Rudolfs von Schwaben nicht ausreichen, in ihr das ikonographische Vorbild für die Königsköpfe zu sehen. In ihnen ist vielmehr die Huldigung einer Familie zu sehen, die mit der speziellen Kronenform die Herrschaft ihres (entfernten) kaiserlichen Verwandten würdigte, interpretierte und als Bildquelle festhielt. Neben der tiefen Verehrung Lothars III. durch das Plötzkauer Adelshaus, die in der Einbeziehung des Kaiserpaares in die familiäre Totenmemoria zum Ausdruck kommt, erhöhte die kaiserliche Präsenz im Gegenzug zweifellos auch die Bedeutung der Grafen von Plötzkau und ihrer Hecklinger Grablege.
- IV.1.1.10. Adolf II. von Berg
- Der nach 1129 drei Mal als Zeuge lotharischer Urkunden nachgewiesene Adolf II. von Berg (†1152) war wie Otto von Rheineck ein wichtiger und einflußreicher Verbündeter des Kaisers am Niederrhein 546. Aus seiner Familie stammte der Kölner Erzbischof Bruno II. (1131-1137), der von Lothar in diese kirchenpolitisch bedeutende Position erhoben wurde, nicht zuletzt auch, um die kaiserliche Machtstellung am Niederrhein zu sichern 547.
- Trotz ihrer sachsentreuen, auch gegen die Staufer gerichteten Politik im Reichswesten errichten die Grafen von Berg mit dem Bau ihres Hausklosters St. Marien in Altenberg (1133-1137) 548 eine Architektur, die weder die sächsische noch die kaiserliche Baukunst Lothars III. reflektierte. Das von Morimond aus besiedelte Zisterzienserkloster war eine dreischiffige Pfeilerbasilika mit westlicher Vorhalle und Querhaus, apsidial schließendem Chor und je zwei zueinander geschlossenen, außen rechteckig ummantelten Chorseitenkapellen und folgte dem Vorbild französischer Zisterzienserbauten (Abb. 184) 549.

- So wird die romanische Zisterze Altenberg, die heute ein gotischer Neubau (ab 1259) ersetzt, Themen der rheinischen Kunstlandschaft wie auch der zisterziensischen Ordensbaukunst berührt haben, weshalb ihre Architektur für die auf das Kernland Sachsen konzentrierten Dynastenklöster dieses Kapitels nicht relevant ist 550.
- ____
- 546 F. J. Schmale, Die Anfänge der Grafen von Berg, in: Geschichte in der Gesellschaft, Festschrift für Karl Bosl, Stuttgart 1974, S. 370-392, ebd. S. 387.
- 547 Zum gemeinsamen politischen Auftreten der Grafen von Berg und Kaiser Lothar III. am Niederrhein vgl. Crone 1982, S. 58-61.
- 548 Vgl. Reg. Imp. Loth. Nr. 124, 183, 184, 295, 382.
- 549 Zur Baugeschichte von Kloster Altenberg vgl. Binding 1975, S. 7-41; Kubach/Verbeck 1976, Bd. 1, S. 31-36, Untermann 2001, S. 358f.
- 550 Kapitelle aus der Gründungszeit des Klosters sind auch im Zuge der Grabungen, die zahlreiche Fragmente von Bauplastik aus den 1230er Jahren zutage gebracht haben, nicht überliefert. Vgl. Bindung 1975, S. 12-24.
- ____
- 206
- Festzuhalten bleibt jedoch, daß die Berger Grafen mit der Gründung des zur Grablege bestimmten Hausklosters ihre besonders durch Lothar III. begünstigte Position hoher „Würdenträger des Reiches“ 551 zur Schau stellten. Dabei schufen sie auch einen wichtigen Reformstützpunkt für die Ausbreitung der von Frankreich kommenden Zisterzienser, der sich nicht nur auf die unmittelbare Nähe der Kölner Erzdiözese erstreckte. Bis in das ostsächsische Missionsgebiet reichten die von Altenberg aus besiedelten Klöster Lekno/Polen (1143), Lond (1144), Zinna (1170/71) und Haina (1183), und einer der engsten politischen Vertrauten Kaiser Lothars III., der Sachse Friedrich II. von Sommerschenburg, besetzte sein Hauskloster in Mariental mit Mönchen aus Altenberg. Auch die Vogteien der Grafen von Berg deuten monastische Verbindungen nach Sachsen an; neben der Kirchenvogtei über die Abtei Werden und das Prämonstratenserstift Kappenberg zählte auch die Vogtei über das Reformkloster Siegburg dazu 552. Folglich darf Adolf II. von Berg aufgrund seiner loyalen Haltung in Sachen Stauferopposition und Kirchenreform als wichtiger Parteigänger und Reformanhänger Lothars gelten, der wahrscheinlich auch die reformkirchlichen Verbindungen zwischen Sachsen und dem Rheinland förderte. Dabei spielten vielleicht auch persönliche Bindungen eine Rolle, denn die Mutter Adolfs, Gräfin Adelheid, war in zweiter Ehe mit Friedrich II. von Sommerschenburg verheiratet; ein Bruder des Grafen wurde Abt im thüringischen Georgenthal 553.
- So ist auch in Adolf II. von Berg ein die kaiserliche Reformpolitik unterstützender Parteigänger zu sehen, der sein Hauskloster in den Dienst des Reformgedankens stellte und sich dabei insbesondere für den Zisterzienserorden stark machte, denn Altenberg zählte zu den frühesten deutschen Niederlassungen des Reformordens.
- IV.1.1.11. Friedrich von Beichlingen
- Der nur zweimal als Zeuge in lotharischen Urkunden genannte Friedrich von Beichlingen (†1160) gehörte nicht nachweislich zu den politischen Weggefährten Lothars III., war aber aufgrund der weitverzweigten
- ____
- 551 Vgl. A. Zurstrassen, Altenberg im 12. Jahrhundert. Die Stellung des Zisterzienserklosters zu Kirche, Adel und Reich, in: Von Sacerdotium und Regnum, Festschrift für Egon Boshof, Köln [u.a.] 2002, S. 541-549, ebd. S. 541.
- 552 Crone 1982, S. 58 und Schmale 1974, S. 385-388.
- 553 Schmale 1974, S. 380.
- ____
- 207
- Verwandtschaftsverhältnisse der Kinder und Enkel Ottos von Northeim ein naher Verwandter der Kaiserin 554. Als Vetter Richenzas stammte er aus einer in Thüringen begüterten Familie, die der sächsischen Adelsopposition ebenso nahe stand wie den sächsischen Kirchenreformkreisen. Seine Eltern Kuno (†1103) und Kunigunde (†1140) von Beichlingen sind in den Zeiten der antisalischen Oppositionsbewegungen der ersten Hälfte des 12. Jahrhunderts politische Größen in Sachsen gewesen und traten auch als Klostergründer und Kirchenreformer in Erscheinung 555.
- Im Jahre 1089 gründeten sie das Benediktinerkloster St. Veit in Oldisleben (Thüringen), das im frühen 12. Jahrhundert mit Pegauer Mönchen besetzt und der Hirsauer Reform angeschlossen wurde (Abb. 185, 186) 556.
- Allein die Entsendung Pegauer Reformmönche und die Vogtei von Oldisleben in den Händen der Grafen von Groitzsch sprechen für eine offenbar bedeutende Rolle des Klosters und seiner Stifterfamilie im thüringischen Reformprozeß 557. Von dem ehemaligen Benediktinerkloster, dessen Grundriß unbekannt ist, sind nur wenige romanische Bauglieder erhalten, die kaum Aufschluß über die Gestalt des Gründungsbaus geben. Es handelt sich dabei um einen von zwei schlanken Ecksäulen mit Palmettenkapitellen eingefaßten Wandpilaster unter einem antikisierenden Gesims, ein Kapitell mit Schachbrettmuster und einen kannelierten Säulenschaft mit Perlschnur als Halsring (Abb. 187, 188).
- Aus welchem baulichen Kontext diese Fragmente stammen, ist unbekannt 558. Der ecksäulenbesetzte Wandpilaster war vielleicht im Langhaus als verkürzte Auflage für gewölbetragende Unterzüge gedacht, wie sie für die Gewölbe beispielsweise im Drübecker Langhaus (vor 1164) oder im Chorraum des Braunschweiger Doms (nach 1173) angelegt sind (Abb. 118, 275).
- Die Konstruktion einer Wölbung in Oldisleben über derart feingegliederten und plastisch ausgefeilten Auflagern spräche allerdings erst für eine Planung
- ____
- 554 Vgl. Reg. Imp. Loth. Nr. 398 und 401; Petke 1985, S. 194f.
- 555 Fenske 1977, S. 155 Anm. 313.
- 556 Zur Gründung von Oldisleben vgl. Inventar Thüringen 1891 (Heft 13), S 291; Fenske 1977, S. 269, 365 und H.-J. Schulze, Die Umwandlung des Stifts Harsefeld zu einem Benediktinerkloster und das Vordringen der Klosterreform in Sachsen bis zum Jahre 1100, in: Beiträge zur niedersächsischen Landesgeschichte, Festschrift für Hans Patze, Hildesheim 1984, S. 95-117, ebd. S. 101.
- 557 Nach dem frühen Tod Kunos von Beichlingen ging Kunigunde die zweite Ehe mit dem bedeutenden Reformpolitiker und Saliergegner Wiprecht von Groitzsch ein. Auf sein Bestreben hin wurde Oldisleben 1110 von Pegau aus reformiert. Vgl. Fenske 1977, S. 270.
- 558 Im Inventar Thüringen 1891 (Heft 13), S. 297, 298 skizziert bzw. mit den Angaben der modernen Fundorte (Stand 19. Jh.) versehen; F. Jäger in: Dehio Thüringen (Neubearbeitung) 1998, S. 941-942.
- ____
- 208
- der Zeit nach 1135 und setzt auch das Drübecker Langhaus als Vorbild voraus. Dabei griff man bei der Wahl der Schmuck- und Ornamentformen offensichtlich auf die in Königslutter vorgebildeten Varianten ornamentierter Säulenschäfte, antikisierender Kapitelle und Ecksäulenmotive zurück und positionierte sich dabei bewußt in der Nachfolge der sächsischen Kaisergrablege.
- Verlegt man nun die Planung einer Wölbung und den Entstehungszeitraum für die Bauplastik in die Zeit nach 1135, dann kann in diesen Jahren ein großangelegter Ausbau der Beichlinger Stiftung vermutet werden. Nicht auszuschließen ist es, daß diese Planung durch Friedrich von Beichlingen veranlaßt wurde. Möglicherweise den Tod seiner Mutter Kunigunde 1140 zum Anlaß nehmend, hätte Friedrich dann wahrscheinlich noch vor seinem eigenen Tod 1160 die Adelsstiftung seiner Eltern zu einem dynastischen Hauskloster ausgebaut, vielleicht auch mit der Absicht, dort die Grablege der Grafen von Beichlingen einzurichten 559.
- Vergleichbar spärlich sind die Reste der zweiten Beichlinger Stiftung, des 1131 gegründeten und von Altenkamp aus besiedelten Zisterzienserklosters St. Maria in Volkenroda (Thüringen). Als Stifter nennen die Quellen Friedrichs Frau Helinburg von Gleichen und ihren Bruder Lambert 560. Von der dreischiffigen, flachgedeckten Basilika mit Querhaus, Chorquadrat mit eingezogener Apsis und begleitenden einst tonnengewölbten und apsidial schließenden Nebenchören haben sich Teile der Choranlage, der Vierung, des Querhauses sowie der südlichen Langhauswand und des östlichen Kreuzgangflügels erhalten (Abb. 189, 190) 561.
- Unter den Resten von Bauornamentik befinden sich ein Kämpfergesims mit Schachbrettmuster am Bogen zur nördlichen Nebenapsis und sein Pendant an der Südseite mit einem Palmettenfriesdekor (Abb. 191, 192).
- Die stark ausgeprägten Basen der Vierungspfeiler mit attischen Profilen gehören vermutlich ebenfalls zum Gründungsbau, während die Sakramentennische im Chor mit einer kleinen, sich nur noch schwach abzeichnenden Ecksäule
- ____
- 559 Die Grablege der Grafen von Beichlingen, die bis ins 13. Jahrhundert nachzuweisen sind, ist nicht bekannt.
- 560 J. H. Möller, Die Geschichte des Zisterzienserklosters Volkenroda, in: ZVthürG 5, 1863, S. 371-396; Inventar Thüringen 1891 (Heft 10), S. 251-260.
- 561 Die Ergebnisse einer Grabung von 1991 und den dabei rekonstruierten Grundriß der Ostanlage publizierten A. Alexandridis (u.a.)‚ Zur Bau- und Ausstattungsgeschichte der ehemaligen Zisterzienserkirche in Volkenroda, Lkr. Mühlhausen, in: Alt-Thüringen 27, 1993, S. 291-334; s. a. M. Hertlein in: Dehio Thüringen (Neubearbeitung) 1998, S. 1270-1273. Heute befindet sich in den alten Klostermauern - nach einer denkmalpflegerischen Glanzleistung - ein europäisches Jugendbildungszentrum.
- ____
- 209
- wohl eher im späteren 12. Jahrhundert hinzukam (Abb. 193) 562.

- Da sich diese Fragmente nicht für eine Rekonstruktion der einstigen Klosterkirche von Volkenroda heranziehen lassen, können die Schlußfolgerungen hierzu nur allgemeiner Natur bleiben.
- Es handelte sich bei Volkenroda offensichtlich um einen Bau der Zeit nach 1131, der nicht unter dem aktuellen Einfluß Königslutters entstand 563, obwohl die spärlichen Reste der Bauskulptur (attische Basen, Palmettenfries, Ecksäulchen) einem auch in Königslutter verwendeten Formenkanon entsprechen. Eher ist von einer lokal bedingten Nähe zur Architektur benachbarter thüringischer Reformklöster wie Paulinzella (Schachbrettfries), Pegau oder Walkenried auszugehen. Auch kann dem Kloster Volkenroda kein besonderer Anteil an der Verbreitung des von Morimond ausgehenden zisterziensischen Reformgeistes zugesprochen werden, da sich die aus dem rheinischen Altenkamp stammenden Mönche von Volkenroda zuvor bereits in Walkenried (1129) niedergelassen und dort das erste thüringische Reformzentrum der Zisterzienser geschaffen hatten. Von hier wird die Besiedlung von Volkenroda mit Zisterziensern angeregt worden sein, denn in einem Lothar-Diplom für Walkenried taucht Friedrich von Beichlingen als Zeuge auf 564. Der Volkenrodaer Konvent entsandte bereits 1133 Zisterziensermönche ins bayerische Waldsassen, wo ein mittlerweile angeheirateter Beichlinger Verwandter und Parteigänger Lothars III., Markgraf Diepold von Vohburg, eine Niederlassung des Zisterzienserordens gegründet hatte 565.
- Friedrich von Beichlingen war weniger ein enger politischer Vertrauter Lothars III. als ein stiller Parteigänger des Kaisers in Fragen der Kirchenreform in Sachsen. Der Einsatz seiner Familie für die Reformbewegung in Thüringen, insbesondere für die Verbreitung des Zisterzienserordens durch die Stiftung des Klosters Volkenroda und der wahrscheinlich von Friedrich vor 1140 veranlaßte Um- und Ausbau von Oldisleben zur Beichlinger Familiengrablege, zeigen abermals, wie ein unter Lothar III.
- ____
- 562 Von M. Hertlein in Dehio Thüringen (Neubearbeitung) 1998, S. 1272 in die Zeit um 1150 datiert.
- 563 Schöne 1999, S. 249 datiert die bauplastischen Fragmente von Volkenroda weit nach 1135, in zeitliche Nähe zur Kapitellplastik von Hamersleben und führt als Beleg eine für 1150 überlieferte Weihe in Volkenroda an. Die von Untermann 2001, S. 303 und 630 gezogenen Parallelen zwischen Volkenroda und Chemnitz, in Bezug auf eine vergleichbare Grundrißgestaltung, sind auf aktuelle Baugewohnheiten zurückzuführen, zumal Chemnitz auch erst 1136 gegründet wurde.
- 564 Vgl. Reg. Imp. Loth. Nr. 298 und zur Identifizierung Friedrichs von Beichlingen im Lothar-Diplom von 1132 vgl. Petke 1985, S. 194.
- 565 Diepold von Vohburg hatte die Schwester Friedrichs von Beichlingen Kunigunde geheiratet. Vgl. Petke 1985, S. 251.
- ____
- 210
- zu lokaler Bedeutung gelangtes Adelsgeschlecht kirchliches Reformbewußtsein mit familiärer Totenmemoria zu verbinden verstand.
- IV.1.1.12. Grafen von Ammensleben(-Hillersleben)
- Dem Urteil der Historiker folgend, gehörten die Grafen von Ammensleben(-Hillersleben) nicht zu den führenden Adelsfamilien in Sachsen, sind aber auch nicht den kleinen „titellosen Edelfreiengeschlechtern“ 566 zuzuordnen. Am Hofe Kaiser Lothars III. sind Otto (†1154) und Hermann von Ammensleben einmal anläßlich eines Diploms, das Lothar dem Kloster Hillersleben ausgestellt haben soll und ein weiteres Mal als Zeugen für ein Goslarer Diplom erwähnt 567. Da es sich bei dem Diplom für Hillersleben wohl um eine Fälschung handelt, muß diese Begegnung unberücksichtigt bleiben und eine durch Quellen zu belegende Parteigängerschaft der Grafen von Ammensleben zu Lothar ausgeschlossen werden. Dennoch ist ihr Name eng mit der antisalischen Adelsopposition verbunden. Ihre Stiftungen in Ammensleben und Hillersleben gehörten zu den bedeutendsten Reformklöstern Sachsens und können teilweise mit der sächsischen Baukunst Lothars III. in Verbindung gebracht werden.
- Von Graf Dietrich II. von Ammensleben (†1120) zunächst als Augustinerchorherrenstift kurz vor seinem Tode gegründet, wurde St. Peter und Paul in Ammensleben 1129 von seinen Enkeln Otto und Hermann der Hirsauer Reformgruppe um das Magdeburger Kloster Berge angeschlossen 568. Gleichzeitig mit dem Einzug der Reformbenediktiner wurde das Kloster zum dynastischen Herrschaftsmittelpunkt ausgebaut und diente als Familiengrablege der Grafen von Ammensleben 569. Von den Bischöfen Konrad von Magdeburg und Anselm von Havelberg wurde 1140 die ab 1120 begonnene romanische Klosterkirche geweiht, die ursprünglich eine dreischiffige, flachgedeckte und querschifflose Pfeilerbasilika mit doppeltürmigem Westbau war 570. Die Ostteile sind heute nicht mehr
- ____
- 566 Fenske 1977, S. 228.
- 567 Vgl. Reg. Imp. Loth. Nr. 194 und 437; Petke 1985, S. 152.
- 568 Zur Frühgeschichte des Klosters Ammensleben vgl. O. Laeger, Zur Geschichte des Klosters Ammensleben, in: ZVKgS 28, 1932, S. 16-39; die genealogischen Voraussetzungen und die Angliederung an den Magdeburger Reformkreis fassen Bogumil 1972, S. 149f und Fenske 1977, S. 223-241 zusammen.
- 569 Fenske 1977, S. 233.
- 570 Notizen zur Baugeschichte im Inventar Sachsen 1910/11, S. 8-16; G. Herrmann in: Dehio Sachsen-Anhalt I (unveränd. Nachdruck von 1974) 1990, S. 117-120; A. Meyer, Die ehemalige Klosterkirche in Groß Ammensleben, München/Berlin, 1993 und Berger 1997, S. 713-722.
- ____
- 211
- eindeutig zu rekonstruieren, endeten aber wohl in einem Dreiapsidenschluß und waren ursprünglich mit Chorflankentürmen geplant (Abb. 194).

- Geht man davon aus, daß es sich bei dem heutigen Grundriß um den Zustand der Gründungszeit handelt, dann ist die nach dem Vorbild der Alpenländischen Basilika gestaltete querschifflose Pfeilerbasilika in Ammensleben zunächst recht ungewöhnlich. Vor allem wenn man bedenkt, daß die Bindung Ammenslebens an die Magdeburger Reformkreise um das Kloster Berge eher von dortiger Architektur geprägt sein müsste, als daß Beispiele der Halberstädter Diözese (St. Ägidien in Braunschweig, Bursfelde) rezipiert würden. Doch könnte die Wahl dieser Grundrißvariante die vom Stifter Dietrich gepflegte Verbindung zu den Halberstädter Bischöfen widerspiegeln, die eine besonders strenge Reformrichtung vertraten 571. So zumindest könnte der Rückgriff auf einen Grundrißtyp zu deuten sein, der, ursprünglich der süddeutschen Bautradition verpflichtet, in Sachsen nur durch Stiftungen im Bistum Halberstadt vertreten wurde, die eng an die antisalischen Oppositionskräfte in Sachsen gebunden waren. Denn beispielsweise St. Ägidien in Braunschweig stand als Klostergründung der oppositionellen Brunonin Gertrud unter dem Einfluß der reformstrengen Halberstädter Bischöfe und war auch der erste Kirchenbau, der den bayerischen Grundrißtyp in Sachsen übernahm.
- Die Nähe zu den adligen Reformkräften Sachsens schlägt sich in Ammensleben auch 1129 nieder, als das Kloster der Hirsauer Reformgruppe angeschlossen wurde, die „vornehmlich mit dem Adel zusammenarbeitete“ 572 und der Grundriß im Sinne der Hirsauer Baugewohnheiten verändert wurde: Das an den Abseiten vor der Vierung geplante Ostturmpaar gab man auf, und um 1140 wurde ein, allerdings zum Mittelschiff hin geschlossener, Westbau ergänzt 573. Dieser kann aber nicht zum „Reformbaukonzept“ 574 gezählt werden, denn wegen der fehlenden räumlichen Anbindung an das Langhaus ist eine liturgische Nutzung des Westriegels ausgeschlossen. Wie beispielsweise in Kloster Gröningen könnte der Westbau ursprünglich das Stiftergrab beherbergt haben 575. In jedem Fall aber kann die Wahl des Kirchengrundrisses, der in der Zeit des
- ____
- 571 Zum Anschluß Ammenslebens an den Halberstädter Reformkreis vgl. Bogumil 1972, S. 149f.
- 572 Bogumil 1972, S. 50.
- 573 Berger 1997 S. 714.
- 574 Badstübner 1980, S. 132 hält zum Königslutterer Westabschluß fest: „(...) der sächsische Westriegel mit zwei Turmaufsätzen gehörte nicht zum Reformbaukonzept“.
- 575 Als Stifterkapelle rekonstruierte Petra Marx 2000 die ursprüngliche Funktion des Westbaus der Gröninger Klosterkirche, ebd. S. 185-210.
- ____
- 212
- Baubeginns ab 1120 in Sachsen nur durch die Braunschweiger Stiftung der Gräfin Gertrud vertreten war, als ein reformpolitisches Zeichen gedeutet werden. Denn gerade Gertrud war die führende Kraft der antisalischen Adelsopposition, und die Anlehnung an die von ihr in Sachsen etablierten Architekturformen rückten die relativ unbedeutenden Grafen von Ammensleben zunächst in die Nähe sächsischer Reformgrößen; später avancierten sie auch zu lotharischen Parteigängern.
- Der Innenraum von St. Peter und Paul in Ammensleben zeichnet sich durch eine auffällige Schmucklosigkeit aus und zeigt nichts von der aufwendigen Ornamentfreude, die sonst an Adelsklöstern der Königslutter-Nachfolge zu beobachten ist. Im Gegenteil bestimmen schmucklose, fast ungegliederte Wände den Baukörper. Die Pfeilerformen mit einfachen Basen und schlicht verzierten Kämpfern vermitteln „den ärmlichsten und herbsten Eindruck, den man sich denken kann“ 576 (Abb. 195, 196).
- Erst das dreistufige Südportal mit eingestellten Ecksäulen, die verschiedene Kapitell- und Schaftformen zeigen (um 1170), steht offensichtlich unter dem Einfluß der Königslutterer Schmuckformen (Abb. 197, 198) 577.
- Doch rücken selbst die spärlichen Pfeilerdekorationen, bei denen es sich um schlichte Versionen antikisierender Palmettenranken handelt und der Anbau des Westriegels Ammensleben in den gestalterischen Kontext sächsischer Adelsklöster und dabei sogar in die Nähe der lotharischen Baukunst. Denn die ausgesprochen bescheidene Ausstattung im Kircheninnenraum orientiert sich offensichtlich am Bauschmuck lotharischer Stiftungen.
- In diesem Falle ist es aber nicht Königslutter, dessen Bauplastik rezipiert wurde, sondern die als Fragmente erhaltenen Palmettenkämpfer der südlichen Chemnitzer Seitenkapelle. Ein Ammenslebener Palmettenkämpfer ist in nahezu identischer Weise wie der teilweise vierblättrige Chemnitzer Palmettenfächer mit kreisförmig um die Palmetten gelegten Blattzungen (Abb. 196) strukturiert.

- Sogar die sich jeweils an den Seiten kreuzenden Blattzungen entsprechen der Chemnitzer Variante (Abb. 88).

- Auch ein zweiter Ammenslebener Palmettenkämpfer folgt dem Aufbau fächerförmiger und teilweise gegenläufig angeordneter Palmetten, wie es ein Kämpferprofil der nördlichen Seitenkapelle in Chemnitz zeigt (Abb. 90b, 98) 578.
- Am Ammenslebener Portal sind außerdem die gegenläufigen
- ____
- 576 So im Inventar Sachsen 1910/11, S. 11 charakterisiert.
- 577 G. Herrmann in: Dehio Sachsen-Anhalt I (unveränd. Nachdruck von 1974) 1990, S. 117 und Meyer 1993, S. 4.
- 578 Für den Hinweis zu diesem Vergleich sei Rainer Tippman vom Schloßbergmuseum Chemnitz gedankt.
- ____
- 213
- Herzmuster im Kämpfergesims eingesetzt, die gleichfalls in Chemnitz nachgewiesen wurden (Abb. 89, 198b).
- Die Herleitung der vegetabilen Ornamentik aus einem spätantik-frühmittelalterlichen Ornamentfundus hatte die Chemnitzer Stiftung in den Umkreis lotharischer Reformkunst gestellt. Die Tatsache, daß im Hauskloster der Grafen von Ammensleben Bauzier einer kaiserlichen Stiftung kopiert wurde, liegt neben lokalstilistischen Wechselwirkungen sicher auch im Reform- und Repräsentationsanspruch der Grafen von Ammensleben begründet, die, wie der Kaiser, ein einstiges Augustinerstift in die Grablege ihres Adelsgeschlechtes umwandelten und es zu diesem Zweck mit Hilfe von Mönchen aus dem Magdeburger Kloster Berge reformiert hatten.
- So ist es nicht erstaunlich, daß auch die zweite Stiftung der Ammenslebener Grafen, St. Laurentius in Hillersleben, eines der wichtigsten Reformklöster Sachsens war. Bereits im 10. Jahrhundert als Nonnenkloster gegründet, war das abwechselnd mit Kanonikern und Benediktinermönchen belegte Kloster keine Eigengründung der Grafen von Ammensleben(-Hillersleben)‚ sondern gelangte erst durch Heirat in ihren Besitz 579. Seit dem Ende des 11. Jahrhunderts wurde Hillersleben der von Ilsenburg geförderten Herrand-Reform angeschlossen und 1110 unter maßgeblichem Einfluß der Grafen Liudburga und Milo von Ammensleben dem Papst unterstellt 580. Ob sich die reformorientierte Förderung ihres Dynastenklosters auch auf die Architektur von St. Laurentius in Hillersleben niederschlug, ist nicht mehr zu ermitteln, da keine Baunachrichten für das 12. Jahrhundert überliefert sind und die baulichen Reste der im l9. Jahrhundert reromanisierten Klosterkirche aus den Jahren um 1170/80 und 1260 stammen 581. Es handelte sich vermutlich um eine Pfeilerbasilika mit Querschiff und dreischiffigem Apsidenchor mit zwei zum Chorquadrat geschlossenen Nebenchören (Abb. 199-201) 582.
- Allein der nordwestliche Vierungspfeiler ist neben einigen spärlichen Resten im Mauerwerk des Querhauses und im Westturm dem Bestand des 12. Jahrhunderts zuzurechnen. Der Pfeiler trägt einen Kämpfer mit Palmettenfries und zeigt die
- ____
- 579 H. Beumann, Zur Frühgeschichte des Klosters Hillersleben, in: Sachsen und Anhalt 14, 1938, S. 82-130 und Schulze 1963, S. 49-55.
- 580 Zu den Klöstern der Herrand-Reform vgl. Bogumil 1972, S. 63-102 und Fenske 1977‚ S. 233.
- 581 J. Lademann, St. Laurentius, St. Stephan und St. Petrus zu Hillersleben, München/Berlin 1995, S. 10-18.
- 582 So jedenfalls rekonstruieren Lademann 1995, S. 14 und G. Herrmann in: Dehio Sachsen-Anhalt I (unveränd. Neudruck von 1974) 1990, S. 192f. Vgl. auch Inventar Magdeburg 1961, S. 374-388.
- ____
- 214
- charakteristischen Kantensäulen, die auch die Vorlagen für den Schwibbogen am Übergang zur Apsis schmücken (Abb. 202) 583.

- Das Hillerslebener Dynastenkloster blieb im 12. Jahrhundert die Grablege für die weibliche Linie des Adelsgeschlechts und schien bereits in dieser Zeit als Reformkloster an regionaler Bedeutung verloren zu haben. Die Zweifel an der Echtheit eines Lothardiploms für Hillersleben zeigen, daß man dem Kloster nachträglich (wohl sogar erst im 13. Jahrhundert) die Verbindung zum sächsischen Reformadel und zu Lothar III. zu bestätigen versuchte, die das Kloster nach dem Tod des letzten Ammenslebener(-Hillerslebener) Grafen Otto 1154 nicht mehr erfolgreich gehalten hatte 584.
- Insgesamt wird deutlich, daß die Nähe der Klöster in Hillersleben und Ammensleben zu sächsischen Kirchenreformkreisen eng an ihre Stifter und Vögte, die Grafen von Ammensleben(-Hillersleben)‚ geknüpft war. Zumindest ist ihr aktiver Anteil an der sächsischen Kirchenreform belegt, denn sie hatten „über die Wahrung eigener Interessen hinaus am Reformwirken bedeutender Halberstädter Bischöfe Anteil“ 585, was nicht zuletzt die Bezüge zur Architektur der Braunschweiger Ägidienkirche belegen. Es ist davon auszugehen, daß diese zwar nicht am kaiserlichen Hof nachgewiesenen sächsischen Adligen dennoch Anhänger Lothars waren. Dafür sprechen die stilistischen Analogien der Bauplastik von Ammensleben zur lotharischen Missionsstiftung in Chemnitz und das - wenn auch erst nachträglich ausgestellte - Kaiserdiplom für Hillersleben, das, gerade durch den Prozeß der Fälschung, eine verspätete Inanspruchnahme adlig-kaiserlicher Verbindungen darstellt.
- IV.1.1.13. Die Grafen von Katlenburg
- Das Geschlecht der Grafen von Katlenburg starb bereits mit dem Tode Dietrichs III. (†1106) aus, doch gelangten die Besitzungen dieser traditionell antisalischen Adelsfamilie über die Erbschaft der Brunonin Gertrud von Braunschweig an Lothar von Süpplingenburg 586. Diese Rechte schlossen auch die Vogtei über das Katlenburgische Hauskloster St. Johannes in Katlenburg (Niedersachsen) ein, das Graf Dietrich III.
- _____
- 583 Scholke 1987, S. 126f und Lademann 1995, S. 12.
- 584 Mit Graf Otto starben die Grafen von Hillersleben in männlicher Linie aus, und das Kloster fiel über die weiblichen Mitglieder an die Grafen von Grieben und Regenstein. Vgl. Bogumil 1972, S. 87; Fenske 1977, S. 233. Die Fälschung des Diploms ist besprochen im Kommentar zu Reg. Imp. Loth. Nr. 437.
- 585 Borgolte 1976, S. 269.
- 586 Vogt 1959, S. 39f, 55f, 69f. Richenzas Mutter Gertrud war in einer Ehe mit einem Katlenburger Grafen verheiratet.
- ____
- 215
- gemeinsam mit seiner Frau Adela von Beichlingen (Enkelin Ottos von Northeim) kurz vor 1106 als Augustinerchorherrenstift gegründet und zur Grablege seiner Familie bestimmt hatte 587.
- Vom Gründungsbau auf dem Gebiet der alten Stammburg Katlenburg ist kein Bestand überliefert. Nur unter dem gotischen Neubau des 14. Jahrhunderts befinden sich noch Reste einer zweischiffigen Krypta: Dabei handelt es sich um zwei gedrungene, massive Freipfeiler mit Eckstäben, über denen ein allerdings jüngeres Kreuzgratgewölbe ruht (Abb. 203) 588.

- Es ist zu vermuten, daß diese Krypta im Zuge der Neuorganisation und Reformierung des Augustinerchorherrenstifts in einen Damenkonvent desselben Ordens entstanden ist. Diese wurde um 1135/40 durch den Riechenberger Reformer Propst Gerhard vollzogen und ging möglicherweise auf die Initiative Lothars III. zurück, der die Vogtei über Katlenburg innehatte 589.
- Die Reste dieser romanischen Krypta gehören m. E. nicht - wie Hans-Joachim Winzer und Birgit Schlegel vorschlagen - zum Gründungsbau der Zeit um 1105 590, sondern deuten in den sich an den Kanten der Kryptenpfeiler leicht abzeichnenden Eckrundstäben eine spätere Bauphase an. Wahrscheinlich mußte der Gründungsbau wegen des zugezogenen Damenkonvents einem größeren Neubau weichen, der unter dem Eindruck der Baukunst Kaiser Lothars III. in den Jahren ab 1135 entstanden ist. Dabei ist es weniger die bescheidene Anlage des ähnlich wie die Drübecker Krypta (frühes 12. Jh.) ohne Quergurte gewölbten Kryptenraumes, die die Orientierung an den kaiserlichen Bauten verrät. Vielmehr deutet die Form der Kryptenpfeiler mit Eckrundstäben an, daß man sich beim Neubau an höchsten Maßstäben zu orientieren beabsichtigte. Die Rezeption dieser aus Königslutter abzuleitenden Gliederungsstruktur, gerade in der Krypta, bestätigt die Ansicht Schlegels, hier die adlige Stiftergrabstätte zu vermuten 591, wachsen in ihr doch die Memorialpflichten gegenüber dem Gründer Dietrich III. von Katlenburg mit der Gegenwart des neuen Eigentümers und Vogtes des Katlenburger Erbes Lothars III. zusammen. Hinzu kommt, daß
- ____
- 587 Zum Katlenburgischen Grafengeschlecht vgl. H.-J. Winzer, Die Grafen von Katlenburg (999-1106), Phil. Diss. Göttingen 1974 und zur Klostergründung zusammenfassend und mit weiteren Literaturhinweisen ders., Das Kloster Katlenburg und sein Lagerbuch von 1525, Duderstadt 1997, S. 3-55; Engel 1991.
- 588 Dehio Bremen/Niedersachsen (Neubearbeitung) 1992, S. 791f.
- 589 Davon gehen Petke 1985, S.414 und Bogumil 1972, S. 148 aus.
- 590 Winzer 1997, S. 42 und B. Schlegel, Burgberg und Ortschaft Katlenburg - Eine Exkursion, in: Südniedersachsen 22, 1994, S. 114-118.
- 591 B. Schlegel, Eine alte Inschrift besagt: Graf Dietrich III. ist in der Katlenburger Klosterkirche begraben, in: Northeimer Jahrbuch 57, 1992, S. 50-59.
- ____
- 216
- Gerhard von Riechenberg, der die Reform in Katlenburg um 1135/40 durchsetzte, ein enger Vertrauter des Kaisers war und auch dessen eigenes Bauvorhaben, die Stiftskirche in Goslar-Riechenberg, ab 1130 unter dem architektonischen Einfluß der Kaisergrablege in Königslutter entstand. Sehr wahrscheinlich vermittelte er Anregungen zur Rezeption der kaiserlichen Baukunst auch nach Katlenburg.
- IV.1.1.14. Burchard von Konradsburg
- Die Kirche des ehemaligen Benediktinerklosters in Konradsburg (Sachsen-Anhalt) wird im Rahmen der Baukunst lotharischer Parteigänger nur mit einem kurzen Blick auf ein in der Kirche erhaltenes Relief mit der Darstellung eines Königspaares behandelt. Zwar waren die Grafen von Konradsburg (später von Falkenstein) im Mannesstamm mit den Grafen von Plötzkau verwandt, zählten aber im Unterschied zu diesen nicht zu den besonders beachteten Persönlichkeiten in der Reichspolitik Kaiser Lothars. Nur einmal wird ein Burchard von Konradsburg (1107/09-1144) auf dem Goslarer Hoftag 1129 in dessen Nähe erwähnt, wenngleich die Zeugenliste ihn erst im Anschluß an die weit bekannteren Namen sächsischer Adliger aufführt 592. Seine Ehe mit einer Tochter Milos von Ammensleben erhob ihn jedoch in den Kreis sächsischer Kirchenreformer und bringt ihn mit der Umwandlung des einstigen Kollegiatstiftes im Bereich der Konradsburg in ein Benediktinerkloster (1120) in Verbindung 593. Zwar wird als Bauherr der ab 1133 amtierende Abt Adalbert vermutet 594, doch käme dafür, gerade vor dem Hintergrund der zahlreichen Adelsstiftungen in der Regierungszeit Lothars III.‚ auch Burchard von Konradsburg in Frage. Zum Gründungsbau, dem ab 1160/70 ein kompletter Neubau folgte, von dem die Krypta und die Choranlage im Aufgehenden erhalten sind, ist wenig bekannt (Abb. 204-207) 595.
- Einziges Zeugnis dieser möglichen Adelsstiftung der Grafen von Konradsburg ist ein in der Nordwand des Sanktuariums erhaltenes romanisches Steinrelief (82 x 50cm), das zwei Personen in Gebetshaltung darstellt (Abb. 208-209b).
- Die rechte Figur ist durch einen Kronreif mit seitlich angesetzten Lilien und einen an Hals, Ärmeln, Gürtel und Gewandrändern mit Schmuckborten besetzten Mantel als männliche Herrscherperson wiedergegeben.
- ____
- 592 Vgl. Reg. Imp. Loth. Nr. 194.
- 593 Zu den Verwandtschaftsverhältnissen der Konradsburger vgl. Fenske 1977, S. 91 und Petke 1985, S. 154.
- 594 Wulf 1996, S. 401.
- 595 Vgl. Inventar Sachsen (Mansfelder Gebirgskreis) 1893, S. 22-32; R. Schmitt, Die Konradsburg, München/Berlin 1993.
- ____
- 217
- In der rechten Hand trägt der Herrscher einen Kreuzstab, während er seine Linke erhoben und mit der Innenfläche nach außen gerichtet hält. Dabei war der mittlere Finger möglicherweise nach vorn leicht abknickt, ist jedoch an einer Stelle abgestoßen, die auch eine aufrechte und gerade Position des Mittelfingers zuläßt (Abb. 209a).

- Die Proportionen des im Verhältnis zum Bildgrund mächtigen Kopfes zu den großen Händen und dem kurzen Oberkörper deuten auf das Niederknien der Königsfigur hin.
- Zu seiner Rechten ist eine ebenfalls kniend und in frontaler Ansicht dargestellte weibliche Person abgebildet, deren Gewandung mit den zierenden Schmuckborten der des Mannes entspricht. Auch die Frau hält beide Hände nebeneinander, mit den Handflächen nach außen gewendet, anders als beim König jedoch direkt vor die Brust, wobei ihre ineinander verschränkten Daumen einen Schnittpunkt bilden. Ihr Haupt ist vergleichsweise schlecht erhalten, eine weibliche Herrscherfigur mit Krone ist nicht zu erkennen, doch machen die Übereinstimmungen der Gewandung und die Gesamtkomposition des Paares eine Identifikation als Königin wahrscheinlich (Abb. 209b).

- Die als Gebetsgestus zu verstehende Handhaltung ermöglicht auch eine Lesart der Frau als Heilige. Jedoch scheint angesichts der nahezu identischen Frontalansicht der durch Überschneidungen der Gewänder angedeutete Paarcharakter, wie auch die vergleichbaren Obergewänder und das Fehlen eines Nimbus, die Darstellung einer Königin intendiert zu sein 596.
- Im Zusammenhang mit diesem Doppelbildnis drängen sich Vergleiche zum einen mit Stiftergrabplatten des Mittelalters auf, auch wenn es sich wegen der Insignien von Krone und Kreuz nicht um das Bildnis eines Adelspaares handeln kann, zum anderen, hauptsächlich wegen der Gewandung, mit byzantinischen Herrscherdarstellungen. Als besonders auffällig erweisen sich die Parallelen zu der in der ersten Hälfte des 12. Jahrhunderts entstandenen Grabplatte Herzog Widukinds (†807) in Enger (Abb. 210) 597.

- Auf dieser ist die Gestalt des Sachsenherzogs mit einem Gewand bekleidet, dessen schmückende Borten aus kleinen Vertiefungen
- ____
- 596 Mit vergleichbaren Gebetsgesten ist einmal eine mit Nimbus dargestellte Nonne auf dem Fragment einer Grabplatte in Kloster Drübeck (10./11. Jh.) erhalten. Vgl. Grzimek 1975, S. 43. Andere Beispiele zeigen überwiegend Marienfiguren mit diesem Gestus, so das Tympanon von St. Pantaleou in Köln (1170/75), der Fuß eines Leuchters in Jerichow, Stiftskirche, (um 1180) und der Türsturz von Petershausen/Konstanz (1173/80).
- 597 Die Datierung des Grabmals ist umstritten. Die hier angenommene Datierung folgt Bauch 1976, S. 19, der von einer Entstehung der Grabplatte im „mittleren, vielleicht ersten Drittel des 12. Jahrhunderts“ ausgeht.
- ____
- 218
- bestehen, wie sie auch die Mäntel des Konradsburger Königspaares zeigen. Sie waren ursprünglich für die Aufnahme von Bergkristallen gedacht. In gleicher Weise ist auch der Kronreif des Konradsburger Königs gestaltet, bei dem es sich jedoch nicht, wie bei Widukind, um ein Kamelaukion handelte, sondern um eine Krone. Die Haltung der erhobenen Hände unterscheidet sich hingegen in einigen Details: Während Widukind ein Lilienszepter in seiner linken, mit dem Mantel verdeckten Hand hält, übt seine Rechte den Segensgestus mit nach vorn abknickendem Mittelfinger aus. Wenngleich der stark fragmentarische Charakter des Konradsburger Reliefs wenig Spielraum für stilistische Vergleiche zur Engerer Grabplatte zuläßt, sind doch Übereinstimmungen im Bereich der Augenpartien zu beobachten, die beim Konradsburger Herrscherpaar offensichtlich ganz ähnlich wie bei Widukind als nahezu runde, sehr plastisch gestaltete und auffallend eingetiefte Linien angelegt wurden.
- In den Forschungen zum Grabmal des Sachsenherzogs wird der Gestus der Hand - hier mit abgespreiztem Mittelfinger - keineswegs eindeutig beschrieben. Während Gertrud Angermann in dieser Gebärde den byzantinischen Segensgestus vermutet, hält Hubert Schrade dieser Deutung entgegen, daß der Segensgestus - wenn auf Grabmälern überhaupt dargestellt - nur von Heiligen oder Geistlichen ausgeführt wird 598. Doch wurde Widukind weder als Heiliger verehrt, noch war er ein rechtmäßiger König, sondern wurde auf der Engerer Grabplatte durch Krone (Kamelaukion) und Lilienszepter wie ein König in Szene gesetzt. Da Widukind in der Vita Mathildis antiquior als ein im Dienste Gottes streitender Verteidiger des Glaubens beschrieben wurde 599, könnte seine erhobene Rechte auch als die Gebärde eines gottesfürchtigen Oranten gedeutet werden, zumal die Forschung vereinzelt auch die Interpretation als Gebets- oder Fürbittgeste, in Abwandlung des mit seitlich ausgestreckten Armen und erhobenen Händen Betenden, vorschlägt 600.
- ____
- 598 G. Angermann, Das Wittekindrelief in der Kirche zu Enger. Ein Kunstwerk aus der Zeit um 1000, in: 58. Jahresbericht des Historischen Vereins für die Grafschaft Ravensburg (1955), 1956, S. 173ff. und H. Schrade, Zur Frühgeschichte der mittelalterlichen Monumentalplastik, in: Westfalen 35, 1957, S. 33-64. Allerdings ist das Segnen kein ausschließlich geistliches Privileg.
- 599 „Des Irrtums ledig aber kam jener gläubig und reumütig von selbst zur Erkenntnis der Wahrheit, und wie er vordem ein erbitterter Feind und Vernichter der Kirche gewesen, so erschien er nunmehr als der christliche Verehrer der Kirchen und Gottes, (...)“. Übersetzung nach P. Jaffé, Vita Mathildis antiquior, 2. Auflage bearbeitet von W. Wattenbach, Leipzig 1925, Kap. 2, 7.
- 600 Vgl. H. Demisch, Erhobene Hände. Geschichte einer Gebärde in der bildenden Kunst, Stuttgart 1984, S. 143-146; J. Engemann, Artikel Geste, in: LMa, Bd. 4, Sp. 1412; G. Brühl, Artikel Orans, in: LthK, Bd. 7, Sp. 1083-1084 und O. Holl, Artikel Handgebärden, in: LCI, Bd. 2, Sp. 214-216.
- ____
- 219
- Im Falle der Grabplatte Herzog Widukinds stehen die Herrscherinsignien (Kamelaukion und Lilienszepter) für den Anspruch der sächsischen Herzöge auf die deutsch-römische Kaiserkrone. Dieser Anspruch war zu Lebzeiten Widukinds im 8./9. Jahrhundert so aktuell wie in der ersten Hälfte des 12. Jahrhunderts, in der die Grabplatte wahrscheinlich entstanden ist 601. Vor dem Hintergrund der politischen Ereignisse des frühen 12. Jahrhunderts bekommt die Ikonographie der Grabplatte, die Herzog Widukind mittels der Attribute als (Gegen-)König in seiner „Opposition zum römischen Imperator“ 602 darstellt, ein neues Gewicht. Denn der Übergang von der salischen zur sächsischen Königsherrschaft im Jahr 1125, in Sachsen personifiziert durch Lothar von Süpplingenburg, könnte eine erneute Rückbesinnung auf die sächsischen Wurzeln des deutschen Königtums hervorgerufen haben. Dies würde die posthume Würdigung des schon lange verstorbenen Widukind erklären und könnte ausschlaggebend für die Entstehung der Grabplatte in diesen Jahren gewesen sein.
- Doch wo zeigt sich nun die Verbindung zu dem von der Forschung bisher unbeachteten Steinrelief in Konradsburg? Walter Wulfs vorsichtige Umschreibung, das Steinrelief gehöre dem 12. Jahrhundert an, habe aber keinen Bezug zur Bauplastik der Konradsburger Krypta (ab 1160/70) könnte bedeuten, daß es viel früher entstanden ist und vielleicht ein Relikt aus dem Gründungsbau der Jahre 1120-1133 darstellt 603. Wäre es in diesem Zeitraum in Auftrag gegeben, erklärten sich daraus möglicherweise auch die stilistischen Verbindungen zur gleichzeitig entstandenen Widukindgrabplatte. Doch welcher Herrscher könnte in den Jahren 1120-1133 Anlaß geben, mit dem Kreuz als christlichem Hoheitszeichen, gleichsam als miles christi auf die sakrale Würde und Legitimation seines Königtums und auf seine unter dem christlichen Zeichen geführte Herrschaft verweisend, gezeigt zu werden? Welches Königspaar könnte durch das Niederknien als demuts- und ehrfuchtsvolle Personen im liturgischen Gebet abgebildet worden sein 604?
- ____
- 601 In die erste Hälfte des 12. Jahrhunderts datieren Bauch 1976, S. 19 und zuletzt G. Böhm, Mittelalterliche Grabmäler in Westfalen von den Anfängen bis 1400, Münster 1993, S. 31-40.
- 602 K. Niehr, „Sehen und Erkennen“ - Anspruch, Ästhetik und Historizität der Ausstattung der Stiftskirche St. Blasius zu Braunschweig, in: Luckhardt/Niehoff 1995 Bd 2, S. 272-282, ebd. S. 280.
- 603 Wulf 1996, S. 402.
- 604 Von der Forschung unterschiedlich als Reue-, Bitt- oder Bußgebärde oder als Zeichen der Huldigung und Verehrung gedeutet. Vgl. R. Suntrup, Die Bedeutung der liturgischen Gebärden und Bewegungen in lateinischen und deutschen Auslegungen des 9. bis 13. Jahrhunderts, München 1978, S. 153-166.
- ____
- 220
- Bei diesen Fragen trifft sich die politisch-ideologische Symbolik der Widukindgrabplatte mit der des Konradsburger Steinreliefs. Beide Darstellungen scheinen weniger Herrscher mit den üblichen geistlichen und weltlichen Machtsymbolen (Kreuz und Reichsapfel), wie es ottonische Herrscherbilder überwiegend zeigen, zu dokumentieren, als vielmehr mittels spezieller Oransgesten die Gottesfürchtigkeit und -nähe des Paares darstellen zu wollen. In Konradsburg wird diese Interpretation zusätzlich durch das Niederknien und das Kreuzzeichen gestützt. Es bietet sich natürlich an, zuerst die Ikonographie der Kreuzauffindungslegende Kaiser Konstantins‚ seiner Mutter Helena und Kaiser Herakleios`, der das Kreuz nach Jerusalem zurückführte, als Deutungsmöglichkeit für das Steinrelief zu wählen, zumal einige Miniaturen-Beispiele des frühen 12. Jahrhunderts beide Kaiser mit dem Kreuzzeichen darstellen (Abb. 211a,b) 605‚

- doch könnte genauso gut eine Anspielung auf ein mittelalterliches Herrscherpaar beabsichtigt sein.
- Durch das Kreuzzeichen steht die sakrale Komponente der Königsherrschaft im Konradsburger Steinrelief ganz offensichtlich im Vordergrund und zielt m. E. auf die im Investiturstreit umkämpfte theokratische Herrschaftsauffassung des Kaisers gegenüber dem päpstlichen Anspruch auf die kirchliche Universalgewalt ab. Diesen Ansatz auf die Spitze treibend, handelt es sich hier vielleicht um ein im Sinne der sächsischen Kirchenreformer formuliertes Propagandabild, das den weltlichen Herrscher als Inhaber beider Gewalten, imperium und sacerdotium, darstellt. Hinzu kommt der unübersehbare Byzanzbezug, der sich in der Gewandung des Herrscherpaares zeigt. Wahrscheinlich soll byzantinisches Kaiserornat imitiert werden, und die Schmuckborten an den Gewändekanten deuten möglicherweise auf den um den Körper gelegten und mit Edelsteinen besetzten Prachtgürtel (Loros) hin, der häufig auf byzantinischen Kaiserdarstellungen zu sehen ist (Abb. 212a,b) 606.

- Desweiteren ist auch der Kreuzstab auf byzantinische Herrscherdarstellungen zurückzuführen, wo er
- ____
- 605 Vgl. beispielsweise die Darstellungen im Chorbuch für die Prim, Salzburg, St. Peter 1147/49 (fol. 58r und fol. 86v) oder ein Emailkreuz aus dem maasländischen Umkreis von 1165/70. Zu diesen Arbeiten vgl. M. Pippal, Das Perikopenbuch von St. Erentrud, Wien 1997, S. 88-97, dort auch einige Überlegungen zur Ikonographie von „Kaiser und Kreuz“.
- 606 Zum Loros als Herrschergewand vgl. Reallexikon zur Byzantinischen Kunst Bd. 3, 1978; S. 428-444; J. Deér‚ Byzanz und die Herrschaftszeichen des Abendlandes, in: Byzanz und das abendländische Herrschertum 1977, S. 43-53.
- ____
- 221
- beispielsweise zur kaiserlichen Insignie Konstantins des Großen zählte 607, dort allerdings in der Regel als Kreuzszepter mit Kugel auch in Verbindung mit anderen Insignien verwendet 608.
- Vor dem Hintergrund der byzantinischen Herrscherikonographie und dem Vergleich mit der Grabplatte des mythischen rex Saxonie Widukind ist zumindest die Möglichkeit eröffnet, im Konradsburger Steinrelief die Darstellung des zur Gründungszeit von Konradsburg (1120-1133) regierenden Herrscherpaares Kaiser Lothars III. und seiner Frau Richenza sehen zu können. In diesem Falle wäre Lothar, der seine Politik auf die gregorianische Kirchenreform und den im ottonischen Sakralkönigtum verhafteten Gedanken der gottgewollten Herrschaft ausgerichtet hatte, als „ein in Christus überaus getreuer, aufrichtigen beständiger und friedensstiftender Mann“ 609 in Gebetshaltung dargestellt. Zusätzlich rief die Symbolik eines byzantinischen Kaisergewandes den Anspruch auf eine Ost- und Westrom umfassende Weltherrschaft hervor, die den politischen Idealen des römischen Papsttums und des deutschen Kaisers gleichermaßen entsprach. Auch die in der ottonischen Kunst verankerte Byzanzrezeption wäre im Abbilden des byzantinischen Kaiserornats aufgegriffen.
- IV.1.2. Die kirchlichen Parteigänger und ihre Kirchenbauten
- Die Parteigängerschaft von Erzbischöfen, Bischöfen oder Äbten zu Lothar III. läßt sich nicht in dem Maße durch private Kirchenstiftungen veranschaulichen, wie es die Hausklöster des sächsischen Adels ermöglicht hatten. Zur Zeit Lothars III. sind am kaiserlichen Hof bedeutende Kirchenmänner des 12. Jahrhunderts anzutreffen, deren Namen aber nicht
- ____
- 607 LCI, Bd. 4, S. 194. In diesem Zusammenhang darf nicht unerwähnt bleiben, daß auch Heinrich der Löwe auf dem Krönungsbild des Braunschweiger Evangeliars kniend und mit einem Kreuz in der Hand die Krone empfängt. Mathilde hingegen steht, trägt aber, wie alle anderen Begleitpersonen der Krönungsszene, auch ein Kreuz(-stab) in der Hand.
- 608 Darstellungen eines Kaisers mit Kreuzstab sind insgesamt sehr selten. Der Kreuzstab gehört als Herrscherinsignie vielmehr zur Christusikonographie und ist dort überwiegend verbreitet. Zu den vereinzelten Beispielen von Kaiserbildern mit Kreuzstab zählen die Darstellungen Ludwigs des Frommen als miles christi in der Prachthandschrift des Hrabanus Maurus, Rom Biblioteca Vaticana Reg. Lat. 124 (um 840) und eines Königs (Demetrius-Zvojnimir?) auf einem Steinrelief in der Taufkapelle von Split des (11. Jh.). Zu ergänzen wäre auch die Stifterdarstellung Herzog Ottos von Schwaben und Bayern (†982) auf dem Stamm des Mathildenkreuzes, Münsterschatz Essen, 11. Jh. und eine kreuztragende Herrscherfigur auf dem Tympanon von St. Petrus in Heselbach, 12. Jh. (Abb. 213a-214).
- 609 So auf der Bleitafel der Grabbeigaben Lothars III. zu lesen, vgl. Laudage in Luckhardt/Niehoff 1995, Bd. 1, S. 150f (Kat. Nr. C 16f) und Bd. 2, S. 92f.
- ____
- 222
- immer für Bau- und Stiftungstätigkeiten in ihren Diözesen stehen. So war beispielsweise Bischof Anselm von Havelberg (1099-1158) ein wichtiger Berater des Kaisers. Er nahm an beiden Italienzügen teil und wurde 1135/36 von Lothar in diplomatischer Mission nach Byzanz geschickt, um dort in theologischen Streitgesprächen mit dem griechischen Kaiser und Erzbischof Niketas von Nikomedien die römische Kirche und das Kaisertum zu verteidigen 610. Auch nach Lothars Tod war Anselm eher auf reichspolitischem Terrain aktiv, er zählte fortan auch zu den Ratgebern Konrads III., trat jedoch als Förderer von Kirchenbauten im Bistum Havelberg nicht in Erscheinung. Selbst mit dem Havelberger Dombau, der um 1150 begonnen und 1170 geweiht wurde, kann Anselm auch jüngsten Forschungen zufolge nicht in Verbindung gebracht werden 611.
- Auch der Salzburger Erzbischof Konrad I. (1106-1147) war als enger Verbündeter Lothars im Kampf gegen die Staufer und für die Kirchenreform tätig. Konrad, der seine reformpolitischen Wurzeln in Sachsen hatte 612, galt auch in seiner Diözese als „Initiator und Promoter der Regularkanonikerreform“ 613 und richtete dort mehrere Augustinerkonvente ein. Dabei erneuerte, reformierte oder gründete er hauptsächlich von den Reformzentren Salzburg (Dom und St. Peter) und Kloster Admont aus Stifte, wie etwa das Gurker Domstift (1123), Höglwörth (1129), Weyarn (1133), St. Zeno-Reichenhall (1136) oder Seckau (1140), die architektonisch aber der Salzburger Lokaltradition verpflichtet waren und keine Bezüge zur Kaiserbaukunst Lothars III. aufweisen 614. Ähnlich verhält es sich mit den Bischöfen Embricho von Würzburg und Thiethard von Osnabrück, die beide siebenmal bei Hoftagen des Kaisers anwesend waren, aber weder zum engen Beraterkreis zählten noch durch bedeutende Klostergründungen bekannt wurden 615.
- ____
- 610 Die Diskussionen um Fragen der abendländischen Religion legte Anselm selbst in einem Bericht (Anticimenon) über seine Reise nach Konstantinopel schriftlich nieder. Zur Byzanzreise Anselms vgl. Langeheinecke 1921 und Petke 1985, S. 327-329.
- 611 R. Schmitt, Jerichower Stiftskirche und Havelberger Dom im 12. Jahrhundert, in: Denkmalpflege in Sachsen/Anhalt 6, 1998, S. 106-116.
- 612 Dort ist er zwischen 1116 und 1121 in der Nähe Magdeburger und Halberstädter Reformkreise nachzuweisen. Nach seiner Rückkehr ins Erzbistum Salzburg förderte er die Augustinerchorherren seiner Diözese, indem er Kanoniker aus dem sächsischen Hamersleben (Osterwieck) und St. Johann in Halberstadt ansiedelte. Vgl. Bogumil 1972, S. 154-158; Fenske 1977, S. 357-361.
- 613 Weinfurter 1975, S. 11.
- 614 Jedoch vermuten Schütz/Müller 1989, S. 163, 237, daß der sächsische Stützenwechsel der Stiftskirche in Seckau und von St. Peter in Salzburg wahrscheinlich durch Konrad I. eingeführt wurde.
- 615 Vgl. Petke 1985, S. 235-238.
- ____
- 223
- Die Namen Norberts von Magdeburg (1126-1134) und Ottos von Bamberg (1102-1139) dürfen allein aufgrund ihrer missions- und reformpolitischen Verdienste in der Regierung Lothars III. nicht unerwähnt bleiben, wenngleich ihren Kirchenstiftungen keine tragende Rolle bei der Verbreitung der Lothar-Baukunst in Sachsen und in Bayern zukam. Das Fehlen von Motivverwandtschaften in den sächsischen Gründungen Erzbischof Norberts 1133 in Leitzkau und 1131 in Gottesgnaden (Calbe/Saale) lag sicherlich auch darin begründet, daß Lothar kein besonderer Förderer des Prämonstratenserordens und Norbert kein Parteigänger des Kaisers war 616. Die Prämonstratenser wirkten in erster Linie reformierend und besetzten bereits bestehende Konvente mit Kanonikern ihres neugegründeten Ordens. Als sächsisches Reformzentrum galt das Mutterkloster Liebfrauen in Magdeburg, von wo aus sich der Orden, in Seelsorge- und Missionsabsicht, in Sachsen vor allem nach Osten ausbereitete. Allerdings griff man in späteren Prämonstratenserneugründungen wie beispielsweise in Jerichow (ab 1144), neben dem von Norbert für Liebfrauen in Magdeburg angeregten „hoheitsvollen Dreiturmbau, (...) der die Gebäudegruppe von Kirche und Kloster hoch überragt und weithin sichtbar die ehrgeizige politische Zielstellung des Erzbischofs und seines Ordens verkündete“ 617, auch den durch die Lothar-Baukunst in Sachsen fest etablierten antikischen Ornamentschatz auf: In den Langhauskämpfern in Jerichow sind ornamentale Vorbilder aus Chemnitz und Quedlinburg verarbeitet, wie beispielsweise die herzförmigen Ranken mit Palmettenblättern (Abb. 89, 92a, 93).
- Anders verhält es sich mit Otto von Bamberg. Als Missionar, vorwiegend in den Ostgebieten (Pommern), aber auch in der eigenen Diözese aktiv, trieb der Bischof sein Reformwerk durch zahlreiche Kirchenstiftungen voran. So entstanden in Prüfening, Biburg, Aura/a.d.Saale oder St. Michael in Bamberg Kirchenbauten, die die Kunstlandschaft Bayerns entscheidend prägten, die jedoch nicht im Zeichen der sächsischen Antiken- und Italienrezeption standen. Beim Kaiser fand dies dennoch hohe Anerkennung, denn „kein Bischof hat von Lothar so viele Diplome erhalten wie Otto von Bamberg“ 618. Alexandra Fink hat Otto von Bamberg in einer umfassenden Studie als Stifter, Bauherrn, Architekten aber auch als machtorientierten Kirchenfürsten dargestellt, der bei aller Reformfreude
- ____
- 616 Zum Verhältnis Norberts zu Lothar III. vgl. Crone 1980, S. 222-233.
- 617 Badstübner 1980, S. 134.
- 618 Petke 1985, S. 223 mit dem Verweis auf die Diplome an das Bistum und Domstift Bamberg sowie für die Bamberger Eigenklöster Prüfening, Mallersdorf und Münchsmünster.
- ____
- 224
- hauptsächlich das politische und wirtschaftliche Ansehen seines Bistums Bamberg im Auge hatte. Weitaus interessanter als die sächsische Architektur waren dabei die regionalen, von der Reformarchitektur geprägten Grundrißtraditionen, die Otto in seinen Stiftungen aufgriff und modifizierte, ohne dabei explizit an die sächsische Kaiserbaukunst anzuknüpfen, weshalb dem Bamberger mit dem Verweis auf die jüngsten Forschungen Finks hier kein eigenes Kapitel zugedacht ist 619.
- Auch Bischof Egbert von Münster (†1132) war mit sechs Aufenthalten bei Hof, gemessen an der Kürze seines Pontifikats (1127-1131), recht häufig in Lothars Nähe bezeugt. Seine Parteinahme für Innozenz II. und die engen Kontakte zum Siegburger Reformkreis kennzeichnen ihn als reformaktiven Gregorianer in seiner Diözese Münster 620, wo er die Kanonissenstifte Überwasser/Münster und Liesborn reformierte, 1130 den ersten Abt des neuen Liesborner Benediktinerklosters und im Jahr zuvor (1129) den Neubau der Damenstiftskirche St. Bonifatius in Freckenhorst weihte 621. Die kunsthistorischen Forschungen zu Freckenhorst und die Datierungen einzelner Bauphasen und der Chorkapitelle gruppieren sich im wesentlichen um den mit 1129 fest datierten Freckenhorster Taufstein 622. Derselben Bildhauerwerkstatt wird neben zahlreichen Werkstücken auch ein lebensgroßer Sandsteinkopf zugeordnet, der 1959 bei Abbrucharbeiten im Mauerwerk der Sakristei gefunden wurde (Abb. 215).

- Bereits 1961 erfuhr der Fund eine umfassende Bearbeitung durch Hans Thümmler 623. Thümmler hat über stilistische Vergleiche hinaus auch die persönlichen und politischen Beziehungen zwischen Egbert von Münster, der wohl ein „Sachse nach Lothars Willen“ war und Lothar, dem nach seiner Königswahl daran gelegen war, „wichtige Stellen mit Männern seines Vertrauens zu besetzen“, für die Deutung des Freckenhorster Königskopfes herangezogen: „Bischof Egbert könnte wohl die Anbringung des Kopfes in der
- ____
- 619 Der Schwerpunkt der Arbeit von A. Fink, Romanische Klosterkirchen des Hl. Bischofs Otto von Bamberg (1102-1139), Petersberg 2001 liegt auf den Baugeschichten der bischöflichen Stiftungen in Prüfening, Bamberg (St. Michael), Aura, Heilsbronn, Biburg, Veßra, Windberg, Reinsdorf, Münchaurach. Darüber hinaus wird der gestalterische Einfluß des Bischofs auf die von ihm geförderten Bauvorhaben untersucht.
- 620 Petke 1985, S. 242-245.
- 621 W. Kohl, Geschichte des Klosters und Stifts Freckenhorst, in: Kirche und Stift Freckenhorst, Jubiläumsschrift zur 850. Wiederkehr des Weihetages der Stiftskirche in Freckenhorst am 4. Juni 1979, Warendorf 1979, S. 26-56, ebd S. 43
- 622 Zusammenfassend H. Thümmler und W. Ueffing, Die Stiftskirche in Freckenhorst, München/Berlin 1991; zum Taufstein vgl. S. E. Soltek, Der Freckenhorster Taufstein, Phil. Diss. Bonn 1987.
- 623 Thümmler 1961.
- ____
- 225
- seiner geistlichen Jurisdikation unterstellten Stiftskirche veranlaßt haben. Es wäre aber auch möglich, daß Vergünstigungen, die Lothar dem Stift Freckenhorst (...) gewährte, direkt und ohne Zutun des Bischofs zur Anbringung seines Bildnisses an der Kirche geführt hätten.“ 624. Zwar sind keine Privilegien oder Schenkungen Lothars für das Freckenhorster Damenstift bekannt, doch ist es nicht auszuschließen, daß die seit dem 9. Jahrhundert bestehende Adelsstiftung im Zuge der kaiserlichen Förderung von traditionsreichen sächsisch-ottonischen Damenstiften (Quedlinburg, Elten, Drübeck) auch von Lothar in besonderer Weise privilegiert wurde. Für eine Würdigung der bischöflich-kaiserlichen Beziehungen von bischöflicher Seite jedenfalls steht das ursprünglich wahrscheinlich mit komplexen Inhalten versehene plastische Bildprogramm in Freckenhorst, zu dem der Königskopf und der Taufstein als hochrangige Bildwerke des 12. Jahrhunderts zählen. Da diese Bezüge von Thümmler im Sinne der hier verwendeten Methode erschöpfend hergestellt wurden und darüber hinaus keine die Architektur oder Bauskulptur betreffenden Antikenzitate in Freckenhorst auftreten, ist auch dem Münsteraner Bischof an dieser Stelle kein eigener Abschnitt gewidmet.
- In Anbetracht dieser insgesamt als zurückhaltend zu bezeichnenden Reaktionen des kirchenpolitischen Umfeldes Lothars III. auf dessen kaiserliche Baukunst lassen sich nur wenige Personen erfassen, die ihre Parteigängerschaft auch in den eigenen Stiftungen erkennen ließen. Bischof Sigward von Minden, Erzbischof Adalbert I. von Mainz und Propst Gerhard von Riechenberg stechen als politische Mitstreiter im Bereich der Kirchenreformen, beim Kampf gegen die Staufer und als Stifter bedeutender Bauwerke hervor. Ihnen und ihren Stiftungen ist daher jeweils ein Abschnitt zugedacht. Außerdem konzentrierten sich im Bistum Halberstadt, nicht zuletzt wegen der unmittelbaren Nähe zu Königslutter, Kirchenbauten, die in enger formaler Verbindung zur Kaisergrablege entstanden und in besonderem Maße von der Lothar-Baukunst geprägt wurden. An den Kirchenbauten von Schöningen und Wimmelburg ist der Einfluß Königslutters besonders greifbar. Daher wird ihre Architektur, auch ohne daß die Stifter als Parteigänger Lothars nachzuweisen sind, vor dem Hintergrund ihrer Bedeutung als sächsische Reformklöster in diesem Kapitel behandelt.
- IV.1.2.1. Sigward von Minden
- Der Mindener Bischof Sigward (†1140) zählte zu den wichtigsten Ratgebern Kaiser Lothars III. und entstammte einer im Holsteinischen
- 624 Ebd, S. 362.
- ____
- 226
- begüterten und schon früh von Lothar protegierten Familie, den Grafen von Schaumburg 625. In den Schriftquellen ist mit dem Namen Sigwards aber weder die Stiftung großer Kirchenbauten verbunden noch läßt sich eine gezielte Reformtätigkeit in seinem Umkreis nachweisen. Seine anzunehmende Beteiligung am Ausbau der Mindener Domkirche kann durch Quellen nicht belegt werden, sicher hingegen ist die Stiftung der Grab- und Hauskapelle St. Ursula in Idensen/Wunstorf (Abb. 216),

- die Sigward kurz vor seinem Tod 1140 getätigt hatte. In diesem für seine Architektur und Ausmalung gleichermaßen bedeutenden Bauwerk hat Sigward nicht nur eine persönliche und politische Stellungnahme zur aktuellen Reformpolitik bezogen, sondern auch auf die in der Zeit wichtigen gestalterischen Herausforderungen wie die Wölbung von Kirchenräumen und gerade aufkommende Elemente der Bauornamentik Bezug genommen.
- Der umfassenden Monographie von Hans Josef Böker zu Idensen, die den Forschungsstand, die Funktion, die Architektur und die Ausstattung der Grabkapelle Sigwards kritisch beleuchtet und durch eigene Forschungen erweitert, bleibt an dieser Stelle nur wenig hinzuzufügen 626. Die Themenkomplexe Bautyp, Wölbung und ikonographisches Programm wurden vom Autor ausführlich behandelt und mit vergleichbar gewichtigen Inhalten belegt: Byzantinische und ottonische Vorbildarchitektur der Kölner Romanik für die Gestalt des Baukörpers, die Initialwirkung der Wölbung für den sächsischen Gewölbebau sowie Byzanzrezeption und spätottonisch-antike Reminiszenzen für den Stil der Freskenmalerei sind zusammengefaßt Bökers vorgeschlagene Erklärungsmodelle 627. Die Schlüsselstellung des kleinen Idensener Kirchenraums für den westfälischen und sächsischen Gewölbebau ist bereits im Kapitel über Hochelten [III.2.3.4] angesprochen und die Bedeutung für die Wölbung der Ostteile von Königslutter herausgestellt worden. Daß die Frage der Wölbung für die Sigwardstiftung eine der vordringlichsten und wichtigsten
- ____
- 625 Vgl. Petke 1985, S. 345.
- 626 Böker1995.
- 627 Die Ergebnisse von Böker 1995 zu den einzelnen Forschungskomplexen lassen sich folgendermaßen zusammenfassen: Sowohl in der Grundrißbildung (S. 23), dem Außenbau (S. 33) und der polygonalen Apsisform (S. 28/29) sieht der Autor traditionell byzantinische und ottonische Elemente, die bereits seit dem 11. Jh. in der Kölner Sakralarchitektur geläufig waren und von dort für Idensen vorbildhaft wirkten (S. 25). Das Wölbsystem habe in dieser Form keine Vorbilder, sondern leite sich eher aus französischen (Berzé-la-Ville ab 1093) und rheinischen (Elten 1129) Bauten ab (S. 35). Die Dekoration betreffend stehen dem „Byzantinismus“ und der Tendenz zur Monumentalität in den Einzeldarstelhmgen (S. 82) kompositorisch auch antike (S. 54) und spätottonische Vorbilder (Reichenauer Freskenzyklus) zur Seite.
- ____
- 227
- Herausforderungen an die Architektur darstellte, ist nicht nur eine Erkenntnis der Forschung, sondern spiegelt sich m. E. auch in der Wandmalerei des Innenraums wider. Gemeint sind die Architekturdarstellungen in drei Einzelbildern des Freskenzyklusses, die über ihre gestalterische Funktion als Rahmung des Geschehens hinaus auch gezielt Bezug auf statische Voraussetzungen von Langhauswölbungen nehmen.
- Zu diesen Darstellungen, der Arche Noah, der Taufe und dem Pfingstbild, in denen jeweils eine Kirchenabbreviatur zu sehen ist, können einige, die Erkenntnisse Bökers zu Stil, Ikonographie und theologischem Inhalt, ergänzende Beobachtungen gemacht werden: Die Darstellung der Pfingstszene (Abb. 217)

- ist in ein Bauwerk einbeschrieben, das, zwischen zwei Türme eingespannt, keine abbildhaften Züge oder besondere tektonische Details aufweist. Der linke Turm wird von einer Viererarkade und der rechte von einer Biforie unterbrochen, beide ruhen auf Pfeilern mit einfachen Würfelkapitellen zwischen Halsring und Kämpfer und deuten dabei das Innere eines Kirchenraumes an.
- Anders verhält es sich bei der Taufszene (Abb. 218a,b),

- in der die Kirchenabbreviatur detaillierter gekennzeichnet ist und zwar als ein „(...) langgestrecktes, mit einem Satteldach gedecktes Gebäude, das von vierzehn Dreierarkaden von Fenstern belichtet wird; eine größere Dreiergruppe befindet sich auf der rechten (östlichen) Giebelseite, die von zwei Türmen flankiert ist. Ein weiteres, größeres Turmpaar markiert den linken (westlichen) Gebäudeabschluß. Bekrönt wird der Bau, der sich als der Obergaden einer größeren romanischen Kirchenanlage zu erkennen gibt, von einem nach Osten verschobenen Dachreiter, der, in sich dreifach gestuft mit Giebelreihen und einer abschließenden Kuppel versehen ist“ 628. Böker glaubt, in diesem Kirchenmodell den Mindener Dom zu erkennen, was angesichts der baulichen Einzelheiten (östliche Chorflankentürme, zweitürmiger Westbau noch ohne die erhöhte Glockenstube der zweiten Hälfte des 12. Jhs.) nachvollziehbar ist. Darüber hinaus ließen sich möglicherweise Befunde zur dekorativen Gestaltung des Innen- und Außenbaus ergänzen: Die beiden die Szene umschließenden Türme werden zu dem das Langhaus andeutenden Innenraum hin jeweils von einer Säule mit korinthisierenden Kapitellen zwischen Halsring und Kämpfer flankiert. Als Gegengewicht zu diesen, selbst in der Miniatur repräsentativ gestalteten Kapitellvarianten stehen die Säulen auf ausgeprägten Postamenten, von denen nur noch das rechte als attische Basis über einem profilierten Sockel erkennbar ist. Bei genauer Betrachtung lassen sich auch die plastischen Einzelglieder bestimmen: Einer dreigestuften Piedestalzone
- ____
- 628 Böker 1995, S. 62.
- ____
- 228
- folgen die feingliedrigen Schwellungen der attischen Basis, zwischen denen jeweils eine kleine Abstufung (Plättchen) zum nächsten Glied überleitet. Diese Art der Profilierung wurde auch in der Architektur von Süpplingenburg und Königslutter beobachtet: Im Inneren der Königslutterer Ostteile und am Außenbau beider Kirchen bildeten, wie im Kirchenmodell der Taufszene schemenhaft angedeutet, eine oder zwei feine Stufen den oberen Abschluß des attischen Profils.
- Daß es sich hierbei wahrscheinlich um den Versuch handelt, an die Gestaltung eines realen Bauwerks anzuknüpfen, ob als „materieller Kirchenbau, in dem die Taufe stattfindet, [oder auch als] die Institution der Kirche, sodann allegorisch-übertragen zu verstehen“ 629 und dabei gleichzeitig aktuelle Bezüge zur Architektursprache des frühen 12. Jahrhunderts aufgreifen zu wollen, zeigt auch die folgende Beobachtung: Sorgfältig geschichtete Quader an den Türmen deuten auf eine Außenbaugliederung hin und spielen in den Unterbrechungen, die nicht auf Fehlstellen zurückzuführen sind, auf die dekorative Gestaltung an. So könnten die bandartigen Ornamentstreifen mit antikisierendem Palmettendekor, die oberhalb der gemauerten Zonen verlaufen, nach dem Vorbild realer Architektur, wie beispielsweise der Hauptapsis von Königslutter, die Geschoßgliederung einer Apsis darstellen.
- Einen vergleichbaren Hinweis auf konkrete tektonische Strukturen bietet der architektonische Rahmen im Bild der Arche Noah, den Böker als Bauwerk „mit Formen der romanischen Sakralarchitektur“ 630 bezeichnet (Abb. 219a,b).

- Die Bauglieder lassen sich aber noch genauer definieren: Den als Rumpf der Arche dargestellten Arkadenreihen sind Halbsäulen mit Kapitellen und Basen vorgelagert. Darüber erstreckt sich eine Dachkonstruktion, die, auf der linken Seite noch zu erkennen, von einer als Ecksäule in den tragenden Pfeiler eingelassenen Stütze gehalten wird und anscheinend als Auflager für einen Schildbogen dient. In jedem Falle handelt es sich bei allen beschriebenen Detailformen um Vorlagensysteme, die sich unmittelbar auf gewölbte Kirchenräume beziehen und damit eine aktuelle Herausforderung der Baukunst thematisieren. Auffallend dabei ist, daß die in den Fresken von Idensen aufmerksam und anspruchsvoll umgesetzten architektonischen Entwicklungen (Ecksäulen, Basisprofile, antikisierende Kapitelle, mehrzonige Apsidengliederung) auch und vor allem die Architektur von Königslutter auszeichneten.
- ____
- 629 R. Suckale, Kunst in Deutschland. Von Karl dem Großen bis Heute, Köln 1998, S. 87.
- 630 Böker 1995, S. 59.
- ____
- 229
- Plausibel scheinen diese Parallelen zwischen Königslutter und Idensen auch, bezieht man Anspielungen im Bildprogramm auf die aktuelle politische Realität in die Überlegungen mit ein: Die zweiteilige Komposition des Jüngsten Gerichts (Abb. 220)

- zeigt auf der linken Bildhälfte, auf der Seite der Gesegneten, gleich hinter dem Bischof stehend, einen mit Zepter, Reichsapfel, grünlicher Tunika und byzantinischem Kamelaukion ausgestatteten König (Abb. 221),

- dem auf der gegenüberliegenden Seite, der Seite der Verdammten, ein fast spiegelbildliches Pendant entspricht. Dort folgt dem die verfluchten Seelen führenden Bischof, an entsprechender Stelle, ein ebenfalls mit Kamelaukion und purpurner Tunika gekleideter König, allerdings ohne Reichsinsignien (Abb. 222).

- Einziger Unterschied beider Königsfiguren sind ihre verschiedenen Gebärden: Der linke König ist stolz und mit aufrechtem Haupt hinter dem Bischof in seiner ganzen Größe stehend dargestellt, während der König auf der rechten Seite mit gesenktem Kopf, schmerzhaft verzogener Mimik und mit einem verzweifelt an den Kopf geführten Handgestus, sich fast hinter dem Bischof zu verstecken scheint.
- Geht man mit Böker von dem propagandistisch-politischen Inhalt des gesamten Bildprogramms aus und folgt weiterhin dessen Deutungsvorschlag, in beiden Bischofsfiguren Sigward von Minden, gewissermaßen in moralisierender Doppelfunktion zu sehen 631, dann stellt sich die Frage, warum Böker diesen Ansatz nicht weiterverfolgt und auch die Königsfiguren in sein Erklärungsmodell einbindet. Denn wenn sich Sigward selbst als Auftraggeber und Bauherr der Kapelle und ihrer Ausstattung im Kontext eines Gerichtsbildes darstellen läßt, warum sollte nicht auch mit den beiden Königen eine Anspielung auf reale Personen beabsichtigt gewesen sein? Zwar sind Darstellungen von Herrschern unter den Seligen oder den Verdammten in Weltgerichtsdarstellungen nichts Ungewöhnliches (Bamberger Apokalypse (Abb. 223a),

- S. Angelo in Formis, Torcello), jedoch wurden bisher keine Zuweisungen an reale Personen vorgenommen. Peter Klein deutete die zweite Königsfigur im Jüngsten Gericht des Perikopenbuchs Heinrichs II. (Abb. 223b)

- als einen Ausdruck der Würdigung des königlichen Auftraggebers (Heinrich II.) und seiner aktuellen kirchenfreundlichen Politik, spielte dabei allerdings nur auf die Verdoppelung
- ____
- 631 Böker 1995, S. 68 geht hier von einer Deutung des Doppelbildes als gleichsam die gute und die schlechte Lebensführung thematisierende Darstellung aus. Ähnlich auch von M. Pfeiffer, Idensen ‘ecclesia ex quadratis lapidibus studiose murata‘. Die Eigenkirche des Bischofs Sigward von Minden (1120-40), Phil. Diss. Marburg 1993, S. 71-75 aufgrund vielfältiger Bezüge auf aktuelle theologische Schriften und die politische Situation nach dem Investiturstreit gedeutet, die aber ebenfalls keine Benennung der Königsfiguren vornimmt.
- ____
- 230
- der Königsfigur an und nahm keine ausdrückliche Zuweisung an eine Herrscherperson vor 632. Das zweifache Erscheinen Sigwards, der die guten und die schlechten Christen anführt, könnte allerdings auch die doppelte Visualisierung des Königs erklären. Auch er steht einmal für einen rechten, das andere Mal für einen falschen Weg der Herrschaftsausübung, was vor dem Hintergrund der politischen Bedeutung der Fresken nicht nur als Moralmetapher interpretiert werden muß.
- Bischof Sigward von Minden hatte als Mitglied des sächsischen Hochadels das Königtum des Sachsen Lothar von Süpplingenburg unterstützt und zählte mit zwölf nachgewiesenen Aufenthalten am kaiserlichen Hof zu dessen wichtigsten Ratgebern 633. Gemeinsamen gingen sie auch gegen die stammfremden Thronanwärter, die Brüder Friedrich und Konrad von Hohenstaufen, vor. Und Sigward schloß sich, als sich nach dem Tode Lothars III. die Staufer mit Konrad III. durchsetzten, der neuen Herrschaft nur widerwillig an 634.
- Vor diesem Hintergrund stellt sich die Frage, ob mit dem triumphierenden König auf der linken Bildseite eine Anspielung auf Sigwards Mentor und Favoriten im Königsamt, den Sachsen Lothar III, beabsichtigt war, der als Gesegneter von Christus der Gruppe der Erlösten zugewiesen wurde. Ließe man sich auf diesen Vorschlag ein, dann könnte der Gekrönte auf der Seite der Verdammten der von Sigward verachtete erste Stauferkönig Konrad III. sein, der, auch zum Zeichen der von Sigward verurteilten politischen Richtung, vom Teufel in die Hölle gezogen wird. Da zum Zeitpunkt der Stiftung, die Sigward in den Jahren unmittelbar vor seinem Tode 1140 vollzog, Konrad III. der Herrscher auf dem Königsthron war, ist er - als Zeichen des gegenwärtig Regierenden - mit dem Purpurmantel dargestellt. Ob im originalen Zustand der Fresken auch „Konrad“ wie „Lothar“ die Reichsinsignien trug, ist, aufgrund größerer Fehlstellen im Bereich seiner rechten Hand, nicht nachvollziehbar.
- Diese visuelle Parteinahme Sigwards zu dem in der ottonischen Tradition stehenden Kaisertum Lothars zeigt sich nicht nur in der Weltgerichtsdarstellung, sondern ist bereits im gesamten Bauwerk vorbereitet. Wenn Böker der Idensener Architektur und seiner Ausstattung wiederholt
- ____
- 632 P. Klein, Zum Weltgericht der Reichenau, in: Studien zur mittelalterlichen Kunst 800-1250, Festschrift für Florentine Mütherich, München 1985, S. 107-124, ebd. S. 121 Anm. 23.
- 633 Petke 1985, S. 210f.
- 634 Sigward ließ den ersten Hoftag des Staufers Ostern 1138 verstreichen und ist nur einmal anläßlich des Goslarer Reichstages Weihnachten 1138 in dessen Nähe nachzuweisen. Vgl. Ortmanns 1971, S. 63. Auch zuvor ist er nie am salischen Hof Heinrichs V. bezeugt. Vgl. Petke 1985, S. 344.
- ____
- 231
- ottonische Vorbilder zur Seite stellt, im Außenbau einen Rückgriff auf spätottonische Architektur sieht und für den Grundrißtyp das ottonische St. Pantaleon (Köln), die Grablege Theophanus, gleichsam als Steigerung ottonisch-byzantinischer Rezeption heranzieht, zeigt sich darin ein besonderes Bestreben, an die ottonische Kultur anzuknüpfen. Diese Richtung schlug auch Lothar ein, als er die Kontinuität zum ottonischen Sakralkönigtum und die Bekämpfung des staufischen Herrscheranspruchs zu seiner Herrschaftsidee machte. So kann auch die Rezeption ottonischer Kunst in der Grabkapelle Sigwards als eine persönliche Parteinahme des Mindener Bischofs zum Kaisertum Lothars III. und dessen antistaufischer Politik verstanden werden. Zumal die beiden Könige, ob man in ihnen nun Lothar III. und Konrad III. sehen möchte, in jedem Falle ein nach Sigwards Verständnis rechtes bzw. schlechtes, ein reformkirchlich-sächsisches (in der Folge welfisches) sowie ein staufisches Königtum verkörpern 635.
- IV.1.2.2. Adalbert I. von Mainz
- Der Mainzer Erzbischof Adalbert I. (1111-1137) galt als „Königsmacher“ 636 und Reichskanzler als einer der wichtigsten Verbündeten Lothars III, jedoch war sein Verhältnis zum Kaiser von einer entscheidenden Schattenseite geprägt. Während in Fragen der antisalischen Reichspolitik weitgehend Einigkeit zwischen dem Kaiser und seinem Kanzler herrschte, hatte Lothar in Fragen der Bistumsbesetzungen der Mainzer Erzdiözese Adalbert I. nicht die Handlungsfreiheit gewährleistet, die ihm nach dem Wormser Konkordat zugestanden hätte. Daß sich der Erzbischof vom Kaiser in kirchlichen Angelegenheiten offensichtlich bevormundet fühlte, kommt in zwei Briefen an Otto von Bamberg aus dem Jahr 1134 zum Ausdruck, in denen er sich bitterlich über die Situation der
- ____
- 635 Die historische Forschung konnte vergleichbare Bestimmungen von Gut und Böse und von gerechter und ungerechter Herrschaft bei mittelalterlichen Historiographen nachweisen, die sich durchaus auch auf Weltgerichtsdarstellungen übertragen lassen. So sieht Ehlers 1977, S. 45 ein politisch-propagandistisches Motiv bei den Chronisten (hier der Sächsische Annalist) „immer dort (...)‚ wo Herrschergestalten unter dem Gesichtspunkt von Gut und Böse ihrem Gott konfrontiert werden. Er kann dem gerechten Herrscher helfen und den ungerechten strafen,(...). Der politische Standort des Geschichtsschreibers bestimmt die Auswahl solcher Charakteristiken“. In Idensen könnte ein solches Urteil in der Weltgerichtsikonographie mitschwingen, und der Auftraggeber, Sigward von Minden, hätte mittels dieses moralisierenden Urteils eine politisch-propagandistische Stellungnahme, eine Herrscherkritik, abgegeben.
- 636 Der Begriff bezieht sich auf den Beitrag von Vones 1995, der Adalberts Rolle bei den Wahlvorgängen von 1125 untersucht.
- ____
- 232
- Kirche in der Regierungszeit Lothars beklagte 637. Auch kann die Tatsache, daß Lothar in der Privilegierung Mainzer Bischofsklöster weitgehende Zurückhaltung übte, einerseits auf die libertas moguntina 633 zurückgeführt, andererseits aber auch als gezielte Nichtachtung der die Mainzer Territorialgewalt stützenden Standorte verstanden werden 639. Was die Reformpolitik Adelberts in seiner Diözese betrifft, galt er als eifriger Förderer der Regularkanoniker, „soweit der Adel für sie Häuser gestiftet hatte“ 640, trat aber selbst nicht - wie beispielsweise Otto von Bamberg in Bayern - als Klostergründer oder Stifter bedeutender Bauprojekte in Erscheinung 641.
- Dennoch werden zwei Stiftungen, das Augustinerchorherrenstift St. Maria und St. Blasius in Fredelsloh und die Gotthardkapelle am Mainzer Dorn mit dem Namen des Erzbischofs in Verbindung gebracht 642. Während eine über die bloße Stiltertätigkeit hinausgehende Bauherren- schaft Adalberts I. für seine Mainzer Grabkapelle St. Gotthard ohne Zweifel ist, hat die Forschung zum Fredelsloher Kirchenbau hinsichtlich der Auftraggeberfrage noch keine befriedigende Antwort gefunden 643.
- Das in Urkunden von 1132, 1135 und 1137 von Adalbert als erzbischöfliche Stiftung bezeichnete Augustinerchorherrenstift in Fredelsloh
- _____
- 637 Die Vorwürfe Adalberts richteten sich dabei ebenso gegen das eigenmächtige Vorgehen Lothars bei der Vergabe von Vogteirechten wie gegen die mangelnde Achtung des erzbischöflichen Investiturrechts. Vgl Speer 1983, S. 137-140 und Petke 1985, S. 296.
- 638 Die Klöster der Mainzer Diözese waren von der Gewalt des Vogtes und anderer weltlicher wie geistlicher Institutionen befreit und unterstanden allein dem Mainzer Erzbischof. Adalbert hatte sogar für das Reichsstift Hilwartshausen - wie ein Kaiser oder Papst - ein Schutzprivileg erteilt. Vgl. L. Falck, Klosterfreiheit und Klosterschutz. Die Klosterpolitik der Mainzer Erzbischöfe von Adalbert I. bis Heinrich I. (1100-1153), in: AmrhKG 8, 1956, S. 21-75, zu Adalbert S. 23-42.
- 639 Petke 1985, S. 198.
- 640 F. Staab, Reform und Reformgruppen im Erzbistum Mainz, in: Reformidee und Reformpolitik 1992, S. 119-187, ebd. S. 142-145 und S. 160-163.
- 641 Jedoch vermutet Kautzsch, in: Inventar Mainz 1919, S. 124-128, daß ab 1120 unter Adalbert die Bautätigkeiten am Mainzer Dom (Ostteile und Langhaus) wieder aufgenommen wurden, und spricht ihm damit einen Anteil am Baugeschehen zu. Vgl. auch Dehio Rheinland-Pfalz/Saarland (Neubearbeitung) 1984, S. 584, 588.
- 642 Petke 1985, S. 298 bezeichnet neben Fredelsloh auch das Zisterzienserkloster St. Maria in Eberbach als Klosterstiftung, „zu der Adalbert sich verstanden hat“. Eine merkwürdige Umschreibung, die erst durch einige Anmerkungen bei Staab 1992, 144-146 deutlicher wird. Staab kennzeichnet besagtes Kloster als Ministerialen-Stiftung, die Adelbert mit Mitteln der libertas moguntia an den Mainzer Erzstuhl band. Insofern kann der Bau von Kloster Eberbach nicht als Gründung Adalberts bezeichnet werden.
- 643 Mit einer Datierung des Baubeginns ins Jahr 1132 wird der Fredelsloher Kirchenbau vereinzelt als Bauprojekt des Erzbischofs bezeichnet; so von Speer 1983, S. 172 Anm. 41 und in Dehio Bremen/Niedersachen (Neubearbeitung) 1992, S. 475f.
- ____
- 233
- soll bald nach 1132 begonnen worden sein 644. Der Bau folgt dem Grundriß einer dreischiffigen, kreuzförmigen Basilika mit Apsiden an Chor und Querhaus und schließt im Westen in einem doppeltürmigen Westbau (Abb. 224-226).
- Eine Restaurierung von 1970 konnte im Bereich der Ostteile Vorlagen mit eingestellten Ecksäulen über attischen Basen freilegen (Abb. 228, 229),
- die für eine ursprünglich vorgesehene Wölbung von Chor und Querhaus sprechen 645. Horst Gramatzki trug erstmals die Grabungsergebnisse zum Fredelsloher Gründungsbau zusammen und knüpfte an seine Beobachtungen einen Baubeginn um 1132. Seine Thesen werden im Folgenden mit einer anschließenden Stellungnahme referiert. Dabei bezeichnete Gramatzki Adalbert nicht namentlich als Bauherr von Fredelsloh, betont aber die „politische Zielsetzung“, mit der der Erzbischof am Rande des Mainzer Erzterritoriums seinen Einfluß ausdehnen und „diesen Machtanspruch auch in einem entsprechend eindrucksvollen Gebäude dokumentieren“ wollte 646.
- Gramatzkis Argumentationen für den Beginn des Fredelsloher Kirchenbaus um 1132 lauten folgendermaßen: (l) Für die an Chor- und Querhaustraufen auf kleinen Konsolen sitzenden, verdoppelten Bögen (Abb. 227)

- zieht er als vergleichbares Vorbild den Bogenfries des Außenbaus der 1133 fertiggestellten St. Godehardkirche in Hildesheim heran 647. (2) Da die Basen am Nordportal mit denen der Ecksäulen im südlichen Seitenschiff, im Querhaus und an den Vierungspfeilern übereinstimmen (Abb. 228-230)
- und Gramatzki das Vorbild für das Nordportal erneut in St. Godehard in Hildesheim und dessen Nordportal sieht, datiert er auch den Fredelsloher Ostbau in die Zeit bald nach 1133 648. (3) Die Eckvorlagen mit vorgestellten Ecksäulenresten (Basen und Schaftansatz), die sich in den vier Ecken des Sanktuariums, in allen Querschiffecken und in den Ostecken der Vierung fanden (Abb. 228, 229) und weder in den vergleichbaren Eckvorlagen des Mainzer Ostchors noch den Königslutterer Ecksäulen eine Parallele finden, zeichnen Fredelsloh als einen der „frühesten für eine Wölbung vorgesehenen Bau in Sachsen [aus], wenn es nicht sogar der erste Versuch gewesen ist“ 649. (4) Abschließend meint Gramatzki durch
- ____
- 644 Zur Chronologie der Urkunden von 1132, 1135 und 1137 und dem sich daran angeknüpften Baubeginn von 1132 vgl. H. Gramatzki, Stift Fredelsloh. Von der Gründung bis zum Erlöschen seines Konvents. Historische und baugeschichtliche Forschungen, Einbeck 1972, S. 20-26.
- 645 Ebd.‚ S. 139, 155.
- 646 Ebd.‚ S.167‚ 174.
- 647 Ebd.‚ S. 131, 172.
- 648 Ebd., S. 159.
- 649 Ebd., S. 139f, 169f‚ 172.
- ____
- 234
- „unzulängliche Erfahrungen in der Technik des Wölbens“ und im Fehlen von Steinmetzzeichen, das für das frühe 12. Jahrhundert spräche, den Baubeginn von Fredelsloh vor Königslutter, also noch vor 1135, annehmen zu können 650.
- Im Rahmen dieser Arbeit muß auf eine detaillierte Auseinandersetzung mit der interessanten und mit noch vielen offenen Fragen belegten Baugeschichte von Fredelsloh verzichtet werden. Doch können die Ausführungen Gramatzkis nicht unwidersprochen bleiben. (1) Die durch Verdoppelung akzentuierten Rundbögen in Hufeisenform treten in St. Godehard sehr früh auf, finden aber erst im späten 12. Jahrhundert, wie beispielsweise in Wunstorf (um 1200, Abb. 271),

- allgemeine Verbreitung. (2) Die weit über den Abschluß des Mauerblocks ragenden Basen der Ecksäulen, die nur andeutungsweise von den Ecksporen gefaßt werden, gehören in ihrer voluminösen Ausprägung, auch mit den glatten, ungewölbten oberen Wulsten, eher in die zeitliche Nähe zu denjenigen im südlichen Kreuzgangflügel des Magdeburger Doms (1170) oder am Portal von Liebfrauen in Magdeburg, um 1160 (Abb. 231, 232).
- Desgleichen werden gerahmte Portale sogar noch im frühen 13. Jahrhundert rezipiert, wie das Beispiel Veßra (1230) zeigt (Abb. 233).

- (3) Gerade der von Gramatzki beobachtete Unterschied in der Profilierung der Ecksäulen zum Profil der Pfeilersteinblöcke ist durch eine Bauunterbrechung zu erklären, von der auch auf ein nachträgliches Anarbeiten der für die Wölbung wichtigen Ecksäulen geschlossen werden könnte (Abb. 228, 229).
- Außerdem setzen die in die Querhausecken eingestellten Ecksäulenfragmente die nach 1173 erfolgte Querhauswölbung des Braunschweiger Domes, vielleicht sogar die fast vollplastischen Ecksäulen des Westbaus von St. Martini in Braunschweig (Anfang 13. Jahrhundert), voraus (Abb. 234).

- (4) Auch der zuletzt von Gramatzki geäußerte Hinweis zum Fehlen von Steinmetzzeichen im frühen 12. Jahrhundert muß mit einem Verweis auf Fundorte in Regensburg-Prüfening, St. Andreas (1125), im Regensburger Domkreuzgang (1130) und in Speyer II, Afrakapelle (frühes 12. Jahrhundert) zurückgewiesen werden.
- Der von Gramatzki vorgeschlagenen Frühdatierung von 1132/40 für den Baubeginn von Fredelsloh muß somit widersprochen werden. Vielmehr ist der Bau samt der wohl zunächst geplanten und begonnenen, dann aber aufgegebenen Wölbkonstruktion weit in die zweite Hälfte des 12. Jahrhunderts zu verlegen 651. Damit ist Adalbert I. von Mainz, der 1137 stirbt, als
- ____
- 650 Ebd., S. 168, 172.
- 651 Eine nur durch eine sekundär überlieferte Inschrift mit der Jahreszahl 1172 angenommene Weihe, die als Schlußweihe interpretiert wird, könnte sich dann vielleicht auf die gerade fertiggestellten Ostteile beziehen. Vgl. Gramatzki 1972, S. 221. Die hier vorgenommene zeitliche Einordnung deckt sich mit dem Vorschlag Thümmlers 1970, S. 261, der den Kirchenbau von Fredelsloh ebenfalls in die Zeit zwischen 1137 und 1172 datiert.
- ____
- 235
- Bauherr von Fredelsloh auszuschließen und die Behauptung, Fredelsloh habe als eine der frühesten Wölbarchitekturen Sachsen eine wegweisende Vorbildfunktion eingenommen, zurückzuweisen.
- Allein bei seiner 1137 geweihten Hauskapelle und Grablege, der Gotthardkapelle an der Nordseite des Mainzer Doms, wird der Erzbischof tatsächlich als Stifter und Bauherr aufgetreten sein 652. Das äußerst schlichte Bauwerk, eine Doppelkapelle über quadratischem Grundriß mit innerem Stützengeviert, einem östlich vorspringenden Altarraum mit Apsis und zwei begleitenden, in die Mauer eingelasseneu Nebenapsiden, ist vermutlich zusammen mit dem Mainzer Dom-Langhaus noch vor 1137 begonnen worden (Abb. 235-237) 653.
- Die Stützen, im Untergeschoß mächtige quadratische Pfeiler und im Obergeschoß gedrungene Säulen, stehen auf attischen Basen und tragen profilierte Kämpfer. Die Säulen im Obergeschoß schließen schmucklose Würfelkapitelle mit Halsring ab. Die um die quadratische Mittelöffnung gruppierten Gewölbeeinheiten bilden einfache Kreuzgratgewölbe aus, deren Grate auf die Kämpfergesimse und an den Außenwänden auf wenig filigrane Wandpfeiler stoßen und von massiven Gurtbögen getragen werden. Insgesamt ist der Raum ein nahezu gedrungen wirkender Baukörper, der die schlichte Gestaltung des Außenbaus mit Ausnahme der Zwerggalerie am Obergeschoß im Inneren widerspiegelt. In diesem Zusammenhang läßt sich eine von Georg Dehio für das Langhaus gefundene Beschreibung, „der Raumeindruck [sei] breiter, gelagerter, es fehle der mitreißende Höhenzug von Speyer“ 654 auch auf die Mainzer Doppelkapelle übertragen, als deren Vorbild gleichfalls ein Speyerer Bau gilt, nämlich die Taufkapelle St. Emmeran 654. Während der räumliche
- ____
- 652 Die Weihe der Gotthardkapelle durch den Wormser Bischof Bucco (1120-1143) ist für den 30. Juni 1137 überliefert. Da Adalbert nur wenige Tage zuvor, am 23. Juni 1137 starb, wird der Bau weitgehend fertiggestellt gewesen sein, als er in der noch nicht geweihten Kapelle beigesetzt wurde. Vgl. Inventar Mainz 1919, S. 495-504.
- 653 O. Schürer, Romanische Doppelkapellen, in: MarJb 5, 1929, S. 99-192, ebd. S. 111-117; W. Jung, Zur Bedeutung des Zentralbaus in der kirchlichen Baukunst von Mainz, in: Mainz und der Mittelrhein in der europäischen Kunstgeschichte, Festschrift für W. F. Volbach, Mainz 1966, 759-778, ebd. S. 762f; ders., Die Gotthardkapelle am Mainzer Dom. Zum Abschluß umfassender Restaurierungsarbeiten, in: Neues Jahrbuch für das Bistum Mainz 1983, S. 3-7; Dehio Rheinland- Pfalz/Saarland (Neubearbeitung) 1984, S. 591.
- 654 Dehio Rheinland-Pfalz/Saarland (Neubearbeitung) 1984, S. 588.
- 655 Vgl. H. E. Kubach, Zu den romanischen Doppelkapellen an den Domen von Mainz und Speyer, in: Mainzer Zeitschrift 67/68, 1972/73, S. 118-121.
- ____
- 236
- Eindruck der Doppelkapelle in Speyer von einer lichten, fast filigran wirkenden Durchlässigkeit geprägt wird, bestimmt den Mainzer Kapellenraum eine archaische Schwere.
- Womit könnte nun dieser Verzicht auf eine repräsentative Gestaltung, wie sie an der Grabkapelle des Reichskanzlers vielleicht zu vermuten wäre, zusammenhängen? Zuletzt hat Holger Mertens die Frage aufgeworfen, warum die von Speyer ausgehende und bewußt an die kaiserliche Ikonographie anknüpfende Antikenrezeption in den unter Adalberts Einfluß stehenden Klosterkirchen von Ilbenstadt, Disibodenberg, Lippoldsberg und Breitenau anzutreffen ist, solche Formen aber nicht an der von Adalbert selbst erbauten erzbischöflichen Hofkapelle oder im zeitnahen Langhaus des Mainzer Domes zu finden seien 656. Dieser Einwand, der letztlich den Stil und die Ikonologie des Bauwerks betrifft, läßt sich gewiß durch keine Deutung beseitigen, doch hat Dethard von Winterfeld, bezugnehmend auf das bauliche Verhältnis zwischen den Dombauten in Speyer und Mainz, eine m. E. schlüssige Antwort versucht. Er interpretiert die „archaisierenden Tendenzen in Mainz“, mit welchen er den Wandaufriß des Mainzer Langhauses beschreibt und zu denen man auch die schmucklose Gestaltung der Grabkapelle Adalberts rechnen kann, folgendermaßen: „(...) die Vereinfachung einerseits und die Eliminierung der besonders ausgeprägt antikischen Formen andererseits [würden] zurückführen zum Bau I [Speyer] und damit eine Kontinuität innerhalb der salischen Architektur darstellen“ 657. Winterfeld ist also so zu verstehen, daß der Verzicht auf repräsentative oder antikisierende Formen in der Architektur den bewußten Rückzug auf genuin salische Bautraditionen und damit auch die Abkehr vom kaiserlich-monumentalen, vom römisch-imperialen Geist von Speyer II demonstriere. Auch wurden die vielfältigen skulpturalen Schöpfungen (ornamentierte Säulenschäfte, Kämpfer, Kapitelle), die Speyer II und dann insbesondere Quedlinburg und dessen sächsische Nachfolge bestimmten, von den Baumeistem Adalberts nicht rezipiert. Läßt sich mit dieser Interpretation nicht gleichzeitig eine Ablehnung der von Lothar III. in Sachsen neubelebten und gerade im Bereich der Bauornamentik verbreiteten Antikenrezeption formulieren?
- Gleichwohl bleibt die Grabkapelle Adalberts nicht gänzlich ohne imperialen Anspruch, aber eben nicht im lotharischen Sinne. Allein im
- ____
- 656 Mertens 1995, S. 223f.
- 657 D. v. Winterfeld, Das Langhaus des Mainzer Domes. Baugeschichtliche Überlegungen, in: Die Bischofskirche Sankt Martin zu Mainz, Festgabe für Hermann Berg (Beiträge zur Mainzer Kirchengeschichte 1), Frankfurt 1986, S. 21-32, ebd. S. 31f.
- ____
- 237
- Bautyp der Doppelkapelle, samt seiner über das karolingische Westwerk oder die Aachener Pfalzkapelle Karls des Großen herzuleitenden Funktion der Herrscherkirche, steckt ebensoviel politisches Anspruchsdenken wie in der Verwendung antiker Spolien oder korinthisierender Kapitellformen in salischen oder sächsischen Herrscherbauten. Im Rückbezug auf die Aachener Palastkapelle bei gleichzeitigem Verzicht auf Schmuckformen mit imperialer Konnotation (korinthisierende Kapitelle) gibt sich Adalbert als selbstbewußter Kirchenfürst zu erkennen. Wie die Polemik gegen Kaiser Lothar gezeigt hatte, mußte Adalbert bis zum Ende seines Lebens dessen eigenmächtige Kirchenpolitik aufs Schärfste kritisieren und seine Rolle als ein caput ecclesiae gegen den Kaiser verteidigen. Unter diesen Umständen scheint es nachvollziehbar, daß Adalbert für seine Grabkapelle nicht auf sächsische Bauformen, die in diesen Jahren ganz unter dem Zeichen der von Lothar geprägten Antiken- und Italienrezeption standen, zurückgriff, sondern diese künstlerischen Entwicklungstendenzen im Rückgriff auf den Salierbau Speyer I einfach überging.
- IV.1.2.3. Gerhard von Riechenberg
- Obwohl die zeitgenössischen Quellen Gerhard von Riechenberg (1122-1150) als persönlichen Vertrauten Lothars III. und als „Mitwisser geheimster Entscheidungen, die das Seelenheil betrafen, Ratgeber, Tröster und Mittler zwischen ihnen [dem Kaiserpaar] und Gott“ 658 bezeichnen, wird eine derart exponierte Stellung des Riechenberger Propstes am Kaiserhof seitens der Geschichtswissenschaft bezweifelt. So vermutet Petke, daß Abt Gerhard II. von Steterburg (1163-1201/09)‚ der Verfasser der Gerhard-Vita, aus der die Textstelle stammt, als Verwandter des Riechenberger Propstes natürlich bemüht war, seinen Günstling besonders glanzvoll darzustellen und daß dessen Rang bei Hof also nicht der Schilderung entsprach.
- Ungeachtet dessen muß er wegen seines Reformeifers in der Hildesheimer Diözese, wo er die Klöster in Heiningen, Katlenburg, Steterburg, Riechenberg, Hahndorf/Stadt Goslar erneuerte, als treuer Anhänger des Kaisers und stützende Größe in der sächsischen Kirchenreform gelten. Diesen Einsatz lohnte ihm Lothar III. mit zwei königlichen Diplomen für
- ____
- 658 Annales Steterburgenses ad a. 1142, S. 205, 1-14: „Familiaritates etiam principum, Lotharii videlicet imperatoris et uxoris eius nobilissimae imperatricis Richense nec non et Heinrici senioris ducis et aliorum principum, ita plene assecutus est, ut consiliis eorum numquam deesset, et secretissimis eorum tractationibus, quae ad animare spectabant salutem, conscius immo consiliarius et consolator inter Deum et ipsos medius existere.“. Vgl. Petke 1985, S. 413.
- ____
- 238
- das Augustinerchorherrenstift St. Marien in Goslar-Riechenberg, dessen Ausbau ab 1130 unter Propst Gerhard intensiv betrieben wurde 659.
- In der Krypta der heute als Ruine erhaltenen Stiftskirche wurde Gerhard kurz nach 1150 beigesetzt. Dieses Datum gilt auch als ungefähre Orientierung für die Datierung der Kryptenornamentik, die der Forschung wiederholt Anlaß gab, die Vorbildfunktion der Königslutterer Ornamentik zu diskutieren. Jüngere Studien, die sich hauptsächlich auf Werkstattzusammenhänge und Meisterfragen beziehen, lehnen hingegen einen Einfluß aus dieser Richtung ab 660. Dies mag hinsichtlich technischer, formaler und qualitativer Vergleiche der Riechenberger Kapitelle mit anderen Kapitellgruppen in Sachsen (Hildesheim, Hamersleben) durchaus zutreffen, kann damit aber nicht auf die gesamte Anlage übertragen werden. Über den bauplastischen Dekor hinaus sprechen architektonische Detailformen, vor allem am Außenbau und im Chor von Riechenberg, für eine Übernahme Königslutterer Gestaltungsmotive.
- Entgegen allen berechtigten Einwänden hinsichtlich stilistischer Gemeinsamkeiten, ist ein motivisch-formales Verwandtschaftsverhältnis zwischen Riechenberg und Königslutter zu beobachten: Die ornamentierten Säulenschäfte, die attischen Profile mit Ecknasen an den Säulenbasen und als Kämpferprofile über den teilweise mit Tier- und Menschenmasken geschmückten Kapitellen sowie die palmettenverzierten Kämpferplatten der Riechenberger Krypta sind ohne die plastischen Vorbilder der nahegelegenen Kaisergrablege nicht denkbar (Abb. 80, 244).
- Nicht zu übersehen sind auch die Parallelen hinsichtlich der vorwiegend figürlichen Motive der Kapitelle zum Jagdfries der Königslutterer Hauptapsis, wie beispielsweise die Masken mit dem aus dem Maul wachsenden Drachen und anderen Tierfiguren (Abb. 69, 245a,b).
- Besondere Bedeutung erhält in diesem Zusammenhang der Hinweis von Stefanie Lieb, in erster Linie habe die figürliche Plastik des Jagdfrieses die Riechenberger Skulptur beeinflußt, weniger der Kreuzgang und die vorwiegend mit vegetabiler Ornamentik geschmückten Kapitelle der Ostteile und des Kreuzgangs 661. Denn die
- ____
- 659 Vgl. Reg. Imp. Loth. Nr. 198, 260, 262 und Crone 1982, S. 198. Die Baugeschichte wurde zuletzt von Lieb 1994, S. 172-175 kritisch zusammengefaßt.
- 660 Den Forschungsstand stellt ausführlich J. Salzwedel, Die Krypta der einstigen Stiftskirche zu Riechenberg bei Goslar und die oberitalienisch-französischen Wurzeln ihrer Ornamentik, in: Gosebruch/Grote 1980, S. 84-121, ebd. S. 86-89 zusammen und analysiert die stilistischen Abhängigkeiten zwischen Riechenberg und Königslutter, während Lieb 1994, S. 168-177, 246-248 die Riechenberger Plastik im gesamtsächsischen Kontext behandelt und den direkten Einfluß Königslutters relativiert.
- 661 Lieb 1994, S 175f.
- ____
- 239
- plastische Gestaltung der Hauptapsis, die - wie gezeigt - unter dem Einfluß römisch-antiken Formenrepertoires stand, war diejenige Stelle der Königslutterer Architektur, an der sich der politische Weg Lothars III., seine Idee der imitatio imperii und sein reformgregorianisches Programm bildlich darstellte. In der Übernahme insbesondere der Hauptapsismotive wurde Riechenberg in seiner Funktion als Grabstätte Gerhards auch künstlerisch zum Träger des lotharischen Programms.
- Auch bei der Gliederung des Riechenberger Außenbaus orientierte man sich vorwiegend an den Königslutterer Ostteilen: Wenn jedoch ungleich massiver als in Königslutter konzipiert, wird der mehrstufige Sockel von einem feingliedrigen attischen Profil abgeschlossen, das sich - wie in Königslutter - fundamentartig um den gesamten Bau zieht. Desgleichen orientieren sich die doppelgeschossige Apsisgliederung, von einem Gesims mit Rundbogenfries getrennt (Abb. 239)

- und die auf die Chorseitenwände und die Nebenapsiden ausgeweitete Lisenengliederung, die wie ein Netz den Außenbau umfangt, an der Königslutterer Außenbaugliederung. Die dort charakteristischen Ecksäulen sind zur Auflockerung der scharfen Gebäudekanten am Außenbau, wie beispielsweise am Rücksprung der Hauptapsis, eingesetzt (Abb. 240).

- Sie haben auch die einzelnen Bauglieder in dem heute nur als Ruine erhaltenen Innenraum geschmückt, wo sie an allen vier Kanten der Langhaus- und Vierungspfeiler, an den gestuften Gewänden beider Nebenapsiden, am Übergang von der Vierung zum Chorquadrat und von dort zur Apsis verarbeitet wurden (Abb. 241- 243).
- Mit dem Jahr der Beisetzung von Propst Gerhard in der Krypta von Riechenberg 1150 begannen spätestens die Bauarbeiten am Langhaus 662. Bei Riechenberg handelt es sich also um einen Bau der unmittelbaren Königslutter-Nachfolge, der sich gezielt an gestalterischen Strukturen der Königslutterer Ostteile und, für die Säulenschäfte, auch an der Ornamentik des ab 1140 entstandenen Kreuzgangs orientierte. Vergleicht man den Einsatz der Ecksäulen an nahezu allen Gebäudekanten beispielsweise mit dem ungefähr zwanzig Jahre später begonnenen Braunschweiger Dom, bei dem der Außenbau, die Vierungspfeilerkanten und die inneren Gewände der Nebenapsiden ebenfalls mit Ecksäulen besetzt sind, fallen erhebliche Unterschiede auf: Die Baumeister Heinrichs des Löwen positionieren das Motiv weniger demonstrativ und sichtbar, nur an den äußeren Gebäudekanten und setzten es hauptsächlich im Innenraum ein (Abb. 273, 274).
- Dagegen vermittelt der Riechenberger Baudekor ein additiv und überladen
- ____
- 662 Borchers 1955, S. 60f ordnet den Bau des Langhauses der dritten Bauphase (1150 bis zur überlieferten Schlußweihe 1173) zu.
- ____
- 240
- wirkendes Gesamtbild, das die Königslutterer Formensprache detailversessen zu imitieren und an jedem Bauteil einzusetzen versucht.
- Abgesehen vom Grundriß der ursprünglich flachgedeckten, kreuzförmigen Basilika mit drei Apsiden (Abb. 238),

- hatten sich die Riechenberger Baumeister, wahrscheinlich auf Betreiben des Bauherrn Propst Gerhard, am Stil der Königslutterer Ostteile und teilweise am dortigen Kreuzgang orientiert. Dabei ließ man aber jene Zurückhatung vermissen, die beispielsweise die Stiftungen der lotharischen Parteigänger Friedrichs II. von Sommerschenburg oder Siegfrieds IV. von Boyneburg auszeichneten. Eine interessante Analogie bietet in diesem Zusammenhang die maßlos übertreibende Schilderung des persönlichen Verhältnisses zwischen Propst Gerhard und Lothar III. durch den Steterburger Annalisten. Ähnlich wie dort in prahlerischen Tönen Gerhard als Berater und Beichtvater Lothars III. skizziert wurde 663, hat man in einer wenig pointierten Aneinanderreihung Königslutterer Dekorformen das kaiserliche Vorbild in Riechenberg zu kopieren versucht.
- IV.1.2.4. Die Bischöfe von Halberstadt
- Das in den Zeiten der antisalischen Politik Kaiser Lothars III. überwiegend als königstreu zu bezeichnende Mainzer Suffraganbistum Halberstadt stand in einer langen und bedeutenden reformkirchlichen Tradition. Angefangen bei Bischof Reinhard (1107-1123), der sich der Kloster- und Stiftsreform in der Halberstädter Diözese intensiv widmete und vor allem die Verbreitung der Augustinerchorherren vorantrieb, über Bischof Otto (1123-1135), der als persönlicher Favorit Lothars III. das Reformwerk Reinhards fortführte, bis hin zu Bischof Rudolf (1136-1149), der Lothar in Königslutter beisetzte, gehörten die Halberstädter Bischöfe in Fragen der Kirchenreform und der Missionspolitik zu den engsten Weggefährten Kaiser Lothars. Im Gegensatz zu Sigward von Minden und Adalbert von Mainz schmückten die Halberstädter Bischöfe sich und ihr Episkopat jedoch nicht mit privaten Stiftungen (Grablegen), sondern beschränkten sich hauptsächlich auf ihr aktives und umfassendes Reformwerk.
- Bischof Reinhard, der die Benediktinerklöster Ilsenburg, Huysburg, Wimmelburg, die Benediktinerinnenklöster Drübeck und Hadmersleben sowie die Augustinerchorherrenstifte Schöningen, Riechenberg und Heiningen reformierte 664, hatte einzig das Augustinerchorherrenstift Hamersleben gestiftet. Otto von Halberstadt gründete noch vor seiner
- _____
- 663 Vgl. Anm. 659.
- 664 Vgl. Bogumil 1972, S. 64-75.
- ____
- 241
- Erhebung zum Bischof 1123 als Mitglied der Adelsfamilie von Schkeuditz gemeinsam mit seiner Mutter das Haus- und Familienkloster Heusdorf (bei Apolda/Thüringen) 665. Während seines Episkopats trat er zwar nicht als Bauherr in Erscheinung, weihte aber 1131 die Hospitalkirche Unser Lieben Frauen in Ilsenburg 666. Ebenso verhält es sich mit Rudolf von Halberstadt, der an der Weihe des Klosters Walkenried 1136 beteiligt war und mit dem ab 1136 begonnenen Neubau von Liebfrauen in Halberstadt in Verbindung gebracht wird 667.
- Nun bilden insbesondere die unter Bischof Reinhard reformierten Klöster und Stifte eine Gruppe von Bauten, die vermehrt Königslutterer Bau- und Ornamentformen aufgreifen. Dies liegt zum einen vermutlich an der lokalen Nähe zu Königslutter, zum anderen wird auch die besondere Reform- und Kaisertreue der Halberstädter Bischöfe diese auffällige Präsenz im Bistum Halberstadt begünstigt haben. Oft zeigen sich Merkmale lotharischer Baukunst an fragmentarisch erhaltenen Einzelformen, die das einstige Gesamtprogramm nur noch erahnen lassen: So deutet beispielsweise das Pfeilerfragment mit Kantensäulen in der heutigen Marienkapelle des Klosters Huysburgs (nach 1150) ein weitaus komplexeres Raumgefüge im Chorbereich an, als bisher angenommen wurde 668. Wahrscheinlich öffnete sich das Sanktuarium zu mehrjochigen, vermutlich gewölbten, Nebenchören, zu denen die kurzen Kantenpfeiler einst gehörten (Abb. 106).

- Der reiche ornamentale Schmuck an Säulenschäften und Kapitellen im Refektorium von Ilsenburg (nach 1150, Abb. 270)

- und das bauplastische Ensemble des um 1170 entstandenen Gernroder Kreuzgangnordflügels (Abb. 269)

- gehen ebenfalls auf das Vorbild Königslutter zurück. Auch das Benediktinerkloster Wimmelburg und das Augustinerchorherrenstift Schöningen haben ausgeprägte Merkmale lotharischer Baukunst von Königslutter in Reinstform übernommen und bis heute erhalten können. Sie sollen exemplarisch für das Bistum Halberstadt vor dem Hintergrund ihrer Beziehungen zum Kaiser und zur Kirchenreform vorgestellt werden.
- ____
- 665 Bogumil 1972, S. 211 und Petke 1985, S. 332-342; zum Kloster Heusdorf vgl. Dehio Thüringen (Neubearbeitung) 1998, S. 38f: „Im Ortsteil Heusdorf nordöstlich des Stadtzentrums befand sich eines der bedeutendsten Nonnenklöster Thüringens. Zwischen 1123 und 1140 gegründet‚ wurde es im Bauernkrieg 1525 geplündert und wenige Jahre später aufgehoben. Seine Baulichkeiten sind heute fast vollständig verschwunden.“.
- 666 Bogumil 1972, S. 90.
- 667 Bogumil 1972, S. 231 und Dehio Sachsen-Anhalt I (unveränderter Nachdruck von 1974) 1990, S. 149.
- 668 Vgl. Mueller von der Haegen 1993, S. 12.
- ____
- 242
- St. Cyriakus in Wimmelburg
- In Wimmelburg entstand, vermutlich veranlaßt durch Abt Burchard von Wimmelburg (1140-50), einem Bruder des lothartreuen Halberstädter Bischofs Otto 669, ein Neubau der seit dem frühen 11. Jahrhundert bestehenden Gründung der Grafen von Mansfeld, der mit seiner Architektur und Bauplastik zweifellos gezielt an das Vorbild Königslutter anknüpfte.
- Die heute nur unzureichend gesicherte Ruine des ehemaligen Benediktinerklosters St. Cyriakus in Wimmelburg war eine dreischiffige Pfeilerbasilika mit Querhaus und dreischiffigem Chor und abschließenden Apsiden. Das Sanktuarium öffnete sich in einer Arkade zu den wohl kreuzgratgewölbten Nebenchören (Abb. 246, 247).
- Von diesem Bau sind das Chorquadrat mit Apsis, der zweijochige nördliche Nebenchor mit Apsis, Teile des nördlichen Querschiffs und die Vierungspfeiler erhalten 670. Neben der Grundrißdisposition, die wie Königslutter nach dem Vorbild Hirsauer Reformarchitektur die Seitenschiffe als Nebenchöre über das Querhaus hinausführt, diese durch eine Pfeilerstellung zum Chorquadrat öffnet und zu den drei Apsiden möglicherweise auch Querhausapsiden besaß, sind es vor allem dekorative Elemente, die die Vorbildfunktion Königslutters belegen: Die Hauptapsis ist außen durch ein breites Gesims in zwei Geschosse geteilt, die durch Längslisenen in wiederum drei Abschnitte gegliedert sind (Abb. 246).

- Im oberen Bereich sind drei große Fenster eingestellt, die von einem Bogenfries überfangen werden, im unteren Bereich bleiben die Felder leer. Diese Gliederung konnte bereits an den Hauptapsiden von Königslutter und Hecklingen nachgewiesen werden, auch in Hecklingen blieben die Nebenapsiden gänzlich ungegliedert (Abb. 171).

- Dagegen zeigen die nur noch auf einer Höhe von 1-2m erhaltenen Mauern des Nordquerhauses, daß die Gebäudekanten nicht scharf aufeinander zuliefen - sondern wie durch Königslutter angeregt und auch im Braunschweiger Dom Heinrichs des Löwen übernommen - mit dienstartigen Ecksäulen aufgelöst wurden. Desgleichen tauchen im Innenraum an zahlreichen Stellen Ecksäulen auf: An allen Kanten der Vierungspfeiler, an den gedrungenen Pfeilern zwischen Haupt- und Nebenchören und an den
- ____
- 669 Otto von Halberstadt war Petke 1985, S. 333 zufolge mit 14 Aufenthalten bei Hofe nicht nur „ein eifriger Anhänger Lothars, sondern eine der wichtigen Personen an Lothars Hof“. Zum Verhältnis zwischen Otto und Lothar vgl. Bogumil 1972, S. 210-227.
- 667 Mit zahlreichen Skizzen ist der Bestand wohl am ausführlichsten im Inventar Sachsen (Mansfelder Seekreis) 1895, S. 398-409 dokumentiert. Zur Baugeschichte vgl. Dehio Sachsen-Anhalt II (Neubearbeitung) 1999, S. 876f.
- ____
- 243
- eckigen Wandvorlagen, die den Triumphbogen tragen. Besonders erinnern die Ecksäulen am Übergang zum Apsisrund in ihrer gewändebildenden und gestaffelten Anordnung an die Königslutterer Lösung.
- Der Kapitell- und Kämpferschmuck an den Kantensäulen und den Gesimsen der Vierungspfeiler reicht von einfachen Würfelkapitellen mit Doppelschilden über verschiedene Varianten von Palmetten- und Palmettenringbandkapitellen bis hin zu einem Kreuzbogenfries mit einbeschriebenen Palmettenblättern (Abb. 248, 249).
- Die Häufung der dekorativen Details sowie die schmuckvolle und in ihrem Stil fortgeschrittene Bauornamentik veranlaßt die Forschung, den Bau erst um 1170 anzusetzen 671. In jedem Fall bezieht sich die Wimmelburger Kapitellplastik auf die Ornamentik des ab 1140 entstandenen Königslutterer Kreuzgangs, wie die Vergleiche der Kapitellornamentik in Wimmelburg mit den korinthisierenden Kapitellen des Kreuzgangnordflügels belegen (Abb. 80, 248, 249).
- Auch setzen der kannelierte Säulenschaft und die Basen mit ihren die gesamte Höhe der unteren Wulst umschließenden Ecknasen die Schmuckformen des Kreuzgangs voraus.
- Insgesamt zeugt die Wimmelburger Formensprache von einer Ausgewogenheit, wie sie erst der Braunschweiger Dom Heinrichs des Löwen vor Augen führt. Dies spricht für eine Spätdatierung um 1170. Bedenkt man aber, daß der zwischen 1140 und 1150 dem Kloster vorstehende Abt Burchard ein Bruder des lotharischen Parteigängers Bischof Ottos von Halberstadt war, wird auch er zu Lothars reformtreuen Anhängern gezählt haben. Vor diesem Hintergrund könnte die Rezeption der Königslutterer Grundrißdisposition und der Kreuzgangornamentik auch als Stellungnahme des Wimmelburger Abtes zur lotharischen und in der Folge welfischen (antistaufischen) Politik ausgelegt werden. Abt Burchard von Wimmelburg als Förderer des Neubaus von Kloster Wimmelburg anzusprechen, worüber die Quellen freilich schweigen, bedeutet auch, den Bau in dessen Amtszeit zu verlegen. Damit könnte Kloster Wimmelbmg etwas früher, als es zuletzt nach den stilkritischen Anmerkungen in Georg Dehios Handbuch der deutschen Kunstdenkmäler (Neubearbeitung 1999) vorgeschlagen wird 672, bereits in die Jahre zwischen 1140 und 1150 datiert werden.
- ____
- 671 Binding/Untermann 1985, S. 160; Dehio Sachsen-Anhalt II (Neubearbeitung) 1999, S. 876.
- 672 Neben den Autoren, die den Landkreis Mansfelder Land in Dehio Sachsen-Anhalt II (Neubearbeitung) 1999 bearbeitet haben, datieren auch Scholke 1987, S. 47, 211 und Binding/Untermann 1985, S. 160 die Reste des Wimmelburger Kirchenbaus in die 1170er Jahre.
- ____
- 244
- St. Lorenz in Schöningen
- Auch auf dem einstigen Königshof Schöningen reformierte der Halberstädter Bischof Reinhard ein bestehendes Nonnenkloster und führte es 1120 den Augustinerchorherren zu 673. Mit zunächst geringer finanzieller Ausstattung war an einen Neubau nicht zu denken. Erst die für die Zeit nach 1150 zahlreicher überlieferten Privilegien wie auch die architektonische Gestaltung der Ostanlage von St. Lorenz in Schöningen sprechen für einen Umbau der heutigen Stiftskirche zwischen 1160 und 1180 674.
- Der mittelalterliche Bestand der Ostteile läßt die ursprüngliche Planung einer kreuzförmigen, flachgedeckten Basilika mit Apsiden an Chor und Querarmen kaum noch erkennen. Ergebnis dieses Umbaus war ein Querhaus mit ausgeschiedener Vierung, ein Sanktuarium mit abschließender Hauptapsis sowie ursprünglich zum Chor geöffnete, doppelgeschossige Nebenchöre, die gerade schließen (Abb. 250, 251).
- Alle Teile der Choranlage und des Querhauses sind kreuzgratgewölbt.
- Neben der Grundrißdisposition ist es insbesondere die für die nachträgliche Wölbung eingeführte Binnengliederung der Ostteile, die deutlich die Beeinflussung durch Königslutter belegt: Wie in der Vierung der Kaisergrablege nehmen in Schöningen schlanke, dienstartige Säulen, die in alle Ecken der kreuzförmigen Vierungspfeiler eingestellt sind, die Gewölbegrate auf (Abb. 253).

- Im Bereich der Basen übernehmen sie wie in Königslutter das attische Sockelprofil, ihre Kapitelle allerdings stoßen über die Grenzlinie der Vierungspfeilerprofile hinaus und bilden nicht den eleganten, auf gleichem Niveau gehaltenen Abschluß der Königslutterer Eckdienste (Abb. 52, 55).
- Ähnliches gilt für den Übergang vom Chorquadrat zum Apsisrund: Während in Königslutter ein Dienst und eine fast gleichbreite Ecksäule die Stufung zur Apsis umspielen, wurde diese Grundgliederung in Schöningen nur teilweise übernommen: auf die Ecksäulen am Eingang zur Apsis, die die scharfen Gewändekanten auflösen, wurde verzichtet. Hingegen sind die Pfeilerkanten der einst geöffneten Doppelarkaden zwischen Chor und Chorseitenschiffen, dort wo in Königslutter Säulen mit korinthisierenden Kapitellen zu den Nebenchören führen, mit Ecksäulen gegliedert.
- ____
- 673 Bogumil 1972, S. 123-128.
- 674 Inventar Braunschweig (Kreis Helmstedt) 1896, S. 299-309; Wulf 1990, S.428; G. Böttger-Bolte, Die Lorenzkirche zu Schöningen, München/Berlin 1990, S. 6; Dehio Bremen/Niedersachsen (Neubearbeitung) 1992, S. 1178; M. Braune, Untersuchungen im ehemaligen Kloster St. Lorenz in Schöningen, in: Berichte zur Denkmalpflege Niedersachsen 15, 1995, S. 2-6.
- ____
- 245
- Auch der Außenbau zeigt eindeutige Königslutterzitate: Vor der gewaltigen Doppelturmfassade im Osten lagert mittig die Hauptapsis, deren Doppelgeschossigkeit die nahegelegene Kaiserkirche zum Vorbild nimmt. Neben dem Bogenfries, der im unteren Register zwischen den feinprofilierten Lisenen auf kleinen Konsolen aufliegt, erinnert besonders das umlaufende attische Sockelprofil an das kaiserliche Vorbild. Wie in Königslutter an den Apsislisenen und am Querhaus verkröpft, ist der Sockel auch in Schöningen elegant vor die Eckverstärkungen der Fassadentürme gezogen und um das südliche Querhausportal herumgeführt (Abb. 21, 252).
- Auffallend sind auch hier die das attische Profil abschließenden doppelten Leisten, die überwiegend an Bauten beobachtet wurden, die entweder lotharische Hausklöster waren (Süpplingenburg, Königslutter, Bursfelde) oder einem hohen dynastischen Anspruch folgten (Wettinergrablege Petersberg/Halle).
- Der relativ späte Rückbezug auf Königslutterer Bauformen beim Umbau von Schöningen 1160/80 ist nicht an die persönliche Parteigängerschaft eines Abtes oder eines Stifters gebunden, sondern könnte mit den kirchenpolitischen Auseinandersetzungen im Bistum Halberstadt in den Jahren zwischen 1149 und 1180 in Zusammenhang stehen. Auslöser für die Spaltung des Klerus` in Anhänger der kaiserlichen und der päpstlichen Partei war ein erneutes Papstschisma in Rom (zwischen Alexander III. und Viktor IV.)‚ das auch im Bistum Halberstadt spürbar wurde: Die Augustinerchorherren der Halberstädter Diözese hielten mit Unterstützung von Heinrich dem Löwen an Alexander III. fest und stellten sich gegen die Gruppierungen des von Barbarossa favorisierten Gegenpapstes Viktor IV. 675. In dieser Situation könnte die Rezeption der Lothar-Baukunst in Schöningen auch als kirchenpolitische Absichtserklärung eines sich zur päpstlichen Partei bekennenden Chorherrenstiftes gedeutet werden. Denn im Rückgriff auf die Architektur Königslutters bekannte man sich beim Umbau von Schöningen zur reformkirchlichen Vergangenheit im Bistum Halberstadt und ergriff gleichzeitig Partei gegen die aktuelle kaiserlich-staufische Führung in Sachsen.
- IV.1.3. Richenza und andere Familienmitglieder
- Kaiserin Richenza kam unter den politischen Vertrauten Lothars III. eine Schlüsselstellung zu, denn als wichtigste Beraterin des Kaisers hatte sie regen Anteil an den Reichsgeschäften. In insgesamt 33 kaiserlichen
- ____
- 675 Zu den Auseinandersetzungen im Bistum Halberstadt unter den Bischöfen Ulrich und Gero (1149-1180) und ihrer Stellung zum Schisma vgl. Bogumil 1972, S. 235-252.
- ____
- 246
- Diplomen trat sie als Intervenientin auf, und ihre Teilnahme an beiden Italienzügen ist ebenso bezeugt wie ihre Rolle als Mittlerin zwischen Lothar und Anaklet II. im Papstschisma von 1130 676. Neben tagespolitischen Pflichten, die der Kaisergattin als consors regni 677 zukamen und die von Dotationsanordnungen an Klöster wie Zwiefalten, Deutz oder Montecassino 678 bis hin zur Stellvertretung der kaiserlichen Gerichtbarkeit reichten 679, trat Richenza auch als aktive Klosterreformerin in Erscheinung. Gemeinsam mit Lothar veranlaßte sie die Umwandlung der Kanonissenstifte von Homburg (Thüringen) und Oldenstadt (Niedersachsen) in Benediktinerklöster.
- In Homburg lagen die Gründe für den persönlichen Einsatz des Kaiserpaares auf der Hand. Das Kloster war zwischen 1100 und 1117 von Richenzas Mutter Gertrud von Braunschweig gegründet worden und gelangte somit zu den Erbgütern Lothars und Richenzas 680. Für die Reformierung des Stiftes 1136 wurden Benediktiner aus Kloster Corvey herangezogen. Bedeutende Kirchenfürsten wie die Erzbischöfe von Mainz, Köln und Magdeburg, die Bischöfe von Worms, Bremen und Bamberg und zahlreiche Reichsfürsten bezeugten die Stiftung eines wahrscheinlich mit der Umwandlung verbundenen Neubaus in Homburg 681. Auch hier war, wie in Königslutter, der disziplinlose Wandel des Konvents ausschlaggebend für die Reform gewesen 682. Allerdings ist über die Gestalt der romanischen Klosterkirche nichts bekannt, und selbst der ursprüngliche
- ____
- 676 Petke 1985, S. 407-413 und Fößel 2000, S. 308-310.
- 677 Als letzte Kaisergattin des Mittelalters, der der Status der Mitherrscherin zuteil wurde, so ausdrücklich bezeichnet von T. Vogelsang, Die Frau als Herrscherin im hohen Mittelalter. Studien zur „consors regni“ Formel, Göttingen 1954, S. 58-61.
- 678 An Zwiefalten stiftet Richenza ein silbernes Weihrauchfaß (Reg. Imp. Loth. Nr. 426), in Köln-Deutz spenden Lothar und Richenza bei jedem Besuch zwei Mark Silber (Reg. Imp. Loth. Nr. 95), und in Montecassino spendet Lothar ein Pluviale, eine Kasel, zwei Silberleuchter, und Richenza legt auf dem Altar eine Stola mit Manipel und eine Mitra nieder (Reg. Imp. Loth. Nr. 627).
- 679 Während des zweiten Italienfeldzuges wurde 1136 unter Vorsitz Richenzas ein Hofgericht in Reggio nell`Emilia abgehalten, in dessen Verlauf die Kaiserin mehrere eigenständige Entscheidungen fällte. Vgl. Reg. Imp. Loth. Nr. 533, 541 und Fößel 2000, S. 161-164.
- 680 Vgl. die Kommentare zu Reg. Imp. Loth. Nr. 501, 502.
- 681 Die Zeugen sind vollständig in Reg. Imp. Loth. Nr. 501 aufgeführt. Aufgrund einer bei Vogt 1959, S. 59-61 angeführten Quelle des frühen 13. Jahrhunderts, in der ein Abt Berthou Richenza „als Gründerin seiner Kirche anspricht“, könnte die Kaiserin einen Neubau veranlaßt haben.
- 682 Vgl. Parisse 1991, S. 495 zu Homburg: „Das Nonnenkloster war reich ausgestattet worden, aber in Folge des Verfalls der Klosterzucht und aufgrund von Besitzverschleuderung war ein allgemeiner Niedergang eingetreten.“.
- ____
- 247
- Standort war schon Ende des 19. Jahrhunderts kaum mehr zu lokalisieren 683.
- Desgleichen können Lothar und Richenza bei der Umwandlung des schon in ottonischer Zeit (970) durch Bischof Bruno von Verden gegründeten Nonnenklosters St. Maria und Johannes in Oldenstadt nur als Initiatoren der Reformierung von 1133 und nicht als Stifter angesprochen werden 684. Der in Folge der Reformierung zwischen 1133 und 1137 entstandene romanische Neubau von St. Johannes war vermutlich eine dreischiffige, kreuzförmige und flachgedeckte Feldsteinbasilika mit einfachem Stützenwechsel, deren östlicher Abschluß nicht mehr eindeutig rekonstruiert werden kann 685. Auch ist kein Bestand von Bauornamentik überliefert, der hinreichend Auskunft über mögliche Bezüge zur sächsisch-lotharischen Bauplastik geben könnte. Mit der Reformierung von Oldenstadt scheint das Kaiserpaar gleichzeitig auch in die innerklösterlichen Angelegenheiten eingegriffen zu haben: Der neue Konvent kam aus Corvey, doch als Abt stand mit dem „Kleriker Siegfried von Plötzkau (...) vermutlich ein Bruder jenes Konrad von Plötzkau, der 1130-1133 auf Geheiß König Lothars als Markgraf der Nordmark die Nachfolge der Grafen von Stade angetreten hatte“ 686, dem umgewandelten Kloster vor. Die Entscheidung, nicht auf einen Abt aus Corvey zurückzugreifen, sondern ein Mitglied des Plötzkauer Grafenhauses als Reformabt einzusetzen, ging möglicherweise auf Initiative des Kaiserpaares zurück, das die Familie eines wichtigen Parteigängers protegieren wollte.
- Richenza trat also trotz ihres persönlichen Einsatzes für die Klosterreform in keinem Fall als alleinige Klostergründerin auf, sondern war an der Seite ihres Mannes Mitstifterin kaiserlicher Bauprojekte. Dies bezeugen auch die Quellen zur Gründung von Chemnitz und Königslutter, in denen Richenza ausdrücklich als solche aufgeführt wird. Für Bad Segeberg und Süpplingenburg läßt sich ihr Anteil an den Gründungsvorgängen mangels überlieferter Urkunden nicht nachweisen. Vielleicht war die Kaiserin als
- ____
- 683 Vgl. Inventar Sachsen (Kreis Langensalza) 1879, S. 17 mit Anm.*** (sic). Dehio Thüringen (Neubearbeitung) 1998, S. 83 geht außer der Erwähnung eines „nahegelegenen Klosters Homburg“ auf den Bau überhaupt nicht mehr ein.
- 684 Vgl. Reg. Imp. Loth. Nr. 396, wo es in der Übersetzung heißt: \"Lothar und Richenza raten und gestatten dem Bischof Thietmar von Verden (...) die Umwandlung des Kanonissenstifts Uelzen [Oldenstadt] in ein Benediktinerkloster.“.
- 685 Zur Baugeschichte vgl. R Manger, Die Klosterkirche in Oldenstadt nach den vorläufigen Grabungsergebnissen der Jahre 1970 und 1971, in: G. Osten (Hg.)‚ 1000 Jahre Oldenstadt, Oldenstadt 1972, S. 72-79 und die unpublizierten Nachgrabungsberichte von 1973 und 1979, die im Archiv des Landesamtes für Denkmalpflege Niedersachsen (Hannover) aufbewahrt werden.
- 686 G. Osten, Oldenstadt, in: Germania Benedictina 6, 1979, S. 389-400, ebd. S. 390.
- ____
- 248
- aktive Mitinitiatorin der Kaiserstiftungen auch maßgeblich an den dortigen Bauvorgängen beteiligt; ihre starke persönliche Präsenz auf reichspolitischem Terrain, als eine auch rechtlich anerkannte Mitregentin, eben eine consors regni, unterstreicht zumindest eine solche Vermutung. Denn daß ihr politisches Urteil schwer wog, zeigen auch ihre Bemühungen bei den staatspolitisch äußerst relevanten Thronstreitigkeiten Lothars mit den Stauferbrüdern 687.
- Auch von der Öffentlichkeit wurde das Herrscherpaar als politische Einheit wahrgenommen, wie die Bildnisse des Kaiserpaares in der Hecklinger Klosterkirche zeigten. Zu ihnen resümiert Heike Drechsler in einer Studie zu den mittelalterlichen Herrscherinnenkronen: „ (...) die beiden gleichen von Byzanz übernommenen Kronen in Hecklingen [zeigen], daß Richenza nicht hinter Lothar zurückstand, sondern gemeinsam mit ihm das Herrscheramt bekleidete“ 688. Trotz aller Präsenz Richenzas in den Quellen und ihrer nicht zu unterschätzenden politischen Wirksamkeit wurde die Kaiserin nicht, wie einst Theophanu von Otto II., als coimperatrix von Lothar politisch instrumentalisiert und gezielt mit besonderen rechtsstaatlichen Privilegien ausgestattet. Dies hätte sich sicherlich auch in einer eigenen Stiftungstätigkeit, verbunden mit einem persönlichen Repräsentationsbedürfnis, niedergeschlagen.
- Desgleichen ist nichts über eine Stiftungstätigkeit von Lothars Tochter Gertrud bekannt. Sie findet in den Quellen, mit Ausnahme ihrer Intervention für das Lüneburger Welfenkloster St. Michael 689, keine besondere Erwähnung. Ihre Ehe mit dem Bayernherzog Heinrich dem Stolzen [vgl. Kap. IV.3.] wurde durch dessen frühen Tod (1139) beendet. 1142 heiratete sie ein zweites Mal, diesmal den Babenberger Heinrich II. Jasomirgott (†1177), einen Sohn Markgraf Leopolds III. von Österreich. Während die Babenberger mit bedeutenden Kirchengründungen in romanischer Zeit, wie beispielsweise den Stiftskirchen in Klosterneuburg (1114-1136), Heiligenkreuz (ab 1133) und dem Wiener Schottenkloster (ab 1155), in Verbindung stehen, hat sich das kurze Intermezzo der sächsischen Kaisertochter Gertrud nicht in der babenbergischen Architektur niedergeschlagen. Gertrud starb 1143 in Klosterneuburg, und die Ehebindung nach
- ____
- 687 Fößel 2000, S. 273-276.
- 688 H. Drechsler, Die Krone der Herrscherin. Das Herrschaftszeichen im literarischen und biblischen Symbolsystem des Früh- und Hochmittelalters 751-1254, Phil. Diss. Heidelberg 1994, S. 186.
- 689 Vgl. Reg. Imp. Loth. Nr. 404 und C.-P. Hasse in Luckhardt/Niehoff 1995 Bd. 1, S. 129 (Kat. Nr. C 4).
- ____
- 249
- Österreich brachte es mit sich, daß sie auch dort und nicht im sächsischen Königslutter begraben wurde 690.
- Ebenso muß die Stiftungstätigkeit engster Mitglieder der kaiserlichen Familie als eher zurückhaltend bezeichnet werden. Lothar hatte keine leiblichen Geschwister, nur drei Halbgeschwister, die aus der zweiten Ehe seiner Mutter Hedwig von Formbach mit dem oberlothringischen Herzog Dietrich II. (†1115) stammten. Darunter war auch die mit Floris II. von Holland (†1121) verheiratete Petronella (1078/85-1144), die als einzige Verwandte Lothars eine Verbindung zwischen ihrem in den Niederlanden gelegenen Herrschaftsgebiet und dem kaiserlichen Sachsen herstellte 691. Als politisch aktive Regentin, die nach dem Tod ihres Mannes die Herrschaft der holländischen Grafschaft weiterführte, wurde sie von Lothar bereits während dessen Zeit als sächsischer Herzog im Kampf gegen Heinrich V. besonders im Bistum Utrecht unterstützt 692.
- Ihre Stiftungstätigkeit beschränkte sich ausschließlich auf holländische Reichsgebiete und die dortigen Familienklöster der Grafen von Holland, Rijnsburg und Egmond, doch schuf sie eine Achse zum kaiserlichen Sachsen, als sie 1133 die Neugründung von St. Laurenz in Rijnsburg (bei Den Haag/Prov. Südholland) mit Nonnen aus dem niedersächsischen Stötterlingenburg (heute Lüttgenrode/Harz) besetzte 693. Das nahe Halberstadt gelegene Kloster St. Laurentius war eines der von Bischof Reinhard von Halberstadt in seiner Diözese Anfang des 12. Jahrhunderts reformierten Benediktinerinnenklöster und gehörte auch noch um 1133 zu den wichtigen Zentren der Kirchenreform in Sachsen 694. Mit den Stötterlingenburger Nonnen gelangte der sächsische Reformgeist nach Rijnsburg, doch wurden mit ihm keine sächsischen Bauformen in die westlichen Reichsteile getragen. Der um die Mitte des 12. Jahrhunderts zu einer dreischiffigen Querhausbasilika mit Dreiapsidenchor und mächtigem Westbau erweiterte Kirchenbau von St. Laurentius zeigt markante Details sächsischer Bauplastik, wie Kantensäulen an den Langhauspfeilem und im Apsisgewände, sowie Palmetten- und Schachbrettornamente und Tierreliefs
- ____
- 690 Auf Veranlassung Herzog Friedrichs II. wurden die Gebeine Gertruds um 1240 nach Heiligenkreuz überführt. Vgl. Lechner 1976, S. 147, 351 Anm. 20 und W. Petke, Gertrud v. Supplingenburg, in: LMa 4 (1989) S. 1355.
- 691 Zu Petronella und Floris von Holland vgl. Petke 1985, S. 252, 261f und K. v. Eickels, Die Grafen von Holland und das Reich im 12. und 13. Jahrhundert, in: RheinVjbl 60, 1995, S. 65-87, ebd. S. 70f.
- 692 Petke 1985, S. 84 und Reg. Imp. Loth. Nr. 74, 82.
- 693 Zur Geschichte Rijnsburgs vgl. M. Hüffer, De adellijke vrouwenabdij van Rijnsburg 1133-1574, Nijmwegen 1922, S. 9-22.
- 694 Zur Reform in Stötterlingenburg vgl. Bogumil 1972, S. 131f.
- ____
- 250
- an den Arkadenkämpfern (Abb. 254-259).
- Hingegen ist über den Vorgängerbau der Zeit um 1133, als die Nonnen nach Rijnsburg abwanderten, nur wenig bekannt 695. Die von Lothars Halbschwester zur Grablege ihrer Familie bestimmte Stiftung von St. Laurenz in Rijnsburg übernahm das Patrozinium des Hl. Laurentius aus Stötterlingenburg, orientierte sich hinsichtlich der Formen aber an rheinischen Bautraditionen: Der romanische Kirchenbau von Rijnsburg wird als dreischiffige Basilika mit östlicher Dreikonchenanlage rekonstruiert und läßt sich nicht mit sächsischen Baugewohnheiten in Verbindung bringen 696.
- Auch wenn eine Rezeption kaiserlich-imperialer Bauformen, wie sie für die Stiftungen einiger sächsischer Parteigänger Lothars III. nachgewiesen werden konnte, auszuschließen ist, bleibt die bewußte Anbindung an sächsische Reformkreise ein bemerkenswerter Aspekt. Petronella, die nie in Sachsen Hof gehalten hatte, wählte mit Stötterlingenburg nicht nur ein bedeutendes Reformkloster für den Gründungskonvent ihrer Stiftung, sondern knüpfte mit der Übernahme des Patroziniums auch an den die sächsische Kirchenreform des 12. Jahrhunderts wesentlich bestimmenden und von ihrem kaiserlichen Halbbruder Lothar III. geförderten Missionsgedanken an: Das Patronat des Hl. Laurentius war seit Otto I. eng mit dem Gedanken der Missionierung der östlichen Reichsteile verbunden, und Laurentius war neben Mauritius einer der Hauptheiligen des ottonischen Herrscherhauses 697.
- Der zweite Bau, dem Petronellas Aufmerksamkeit galt, war die schon im 10. Jahrhundert gegründete Benediktinerabtei St. Peter und St. Marien in Egmond (bei Haarlem/Prov. Nordholland), die als Grablege der Grafen von Holland eine der bedeutendsten Kirchenbauten der Provinz war. Von Petronella anläßlich des Todes ihres Mannes Floris von Holland
- ____
- 695 Drei heute vermauerte Pfeilerarkaden im Ostteil des Mittelschiffs gehören wahrscheinlich zum Vorgängerbau des 11. Jahrhunderts. Vgl. Inventar Sachsen 1902, S. 131-141; B. Becker in: Dehio Sachsen-Anhalt I (unveränd. Nachdruck von 1974) 1990, S. 258f.
- 696 Einziges Zeugnis des romanischen Kirchenbaus sind Reste des Südturms einer westlichen Doppelturmfassade, die allerdings einem ab 1157 entstandenen Neubau angehören. Vgl. Kubach/Verbeck 1976, Bd. 2. S. 962f.
- 697 Schlesinger 1962, Bd. 1, S. 23, 26, 34. Zugleich untermauerte die Wahl eines für die Ottonen bedeutenden Patroziniums auch die politische Komponente ottonischer Züge in Lothars Herrschaftslegitimation; auch von historischer Seite wurden die politischen Aktivitäten des Kaisers „als erneute Aufnahme ottonischer Zielsetzung im Westen“ erkannt. Vgl. H. Stoob, Westfalen und Niederlothringen in der Politik Lothars III., in: Tradition als historische Kraft. Interdisziplinäre Forschungen zur Geschichte des frühen Mittelalters, hrsg. von N. Kamp und J. Wollasch, Berlin [u.a.] 1982, S. 350-371, ebd. S. 371.
- ____
- 251
- im Jahr 1121 wohl kurz darauf neugegründet 698, wird der Bau als flachgedeckte Basilika mit durchgehendem Querhaus, apsidial schließendem Chorquadrat und seitlichen Nebenchören, die sich nicht zum Hauptchor hin öffneten, rekonstruiert 699. Von diesem Bau hat sich allein ein Tympanon aus rotem Sandstein erhalten, das seit 1842 im Rijksmuseum von Amsterdam aufbewahrt wird. Es befand sich ursprünglich im Bogenfeld des Westportals und zeigt neben der Figur des Hl. Petrus die zwei Stifterfiguren, Petronella und ihren Sohn Dirk (Abb. 260).

- Durch die Inschrift am unteren Bildrand „hic Thidericus orat, opus hoc Petronilla decorat“ wird Petronellas Anteil am Baugeschehen gewürdigt, wenn auch nur auf eine „schmückende“ oder „ausstattende“ Tätigkeit reduziert 700.
- Dieser Umstand findet Bestätigung in der Tatsache, daß die Regentin dem traditionellen Hauskloster der Grafen von Holland in Egmond anläßlich des Todes ihres Mannes durch die Neugründung zu neuem Glanz verhalf, für ihr persönliches Totengedenken aber die Eigenstiftung in Rijnsburg favorisierte. Denn obwohl Kloster Egmond, das seit dem 10. Jahrhundert die Grablege der Grafen von Holland war, von Petronella noch anläßlich der Bestattung ihres Mannes ausgebaut wurde, fanden ihr Sohn Floris (†1132) und sie selbst 1144 nicht dort, sondern im Rijnsburger Nonnenkloster ihre letzte Ruhestätte 701. Es scheint, als habe Petronella damit die holländische Familientradition pflegen und aufrechterhalten wollen, für ihr persönliches Totengedächtnis aber den Ort bevorzugt, mit dem sie ihre persönliche und mit kaiserlicher Reputation behaftete Familienbindung nach Sachsen in den Vordergrund stellen konnte. Dabei hatte Petronella mit der sächsischen Herkunft des Rijnsburger Gründungskonvents und dem Laurentiuspatrozinium auch zu den reformkirchlichen und an ottonische Herrschertraditionen anknüpfenden Gedanken der Politik ihres Halbbruders Lothars III. Bezug nehmen können.
- IV.2. Ergebnisse
- Bei den Kirchenbauten der Parteigänger Lothars HI. handelte es sich überwiegend um Familienklöster sächsischer Adeliger, die zugleich der Zur-Schau-Stellung ihrer dynastischen und territorialen Stärke dienten. Zudem sicherten die Klöster als Grablegen die Memoria des Geschlechtes
- 698 Kubach/Verbeek 1976, Bd 1, S. 238f.
- 699 E. H. P. Cordfunke, Opgravingen in Egmond, Zutphen 1984, S. 81-84.
- 700 Zum Egmonder Bogenfeld vgl. R. Ligtenberg, Die romanische Plastik in den nördlichen Niederlanden, Freiburg 1916, S. 16-38 und Cordfunke 1984, S. 80.
- 701 Cordfunke 1984, S. 101.
- ____
- 252
- und repräsentierten die Kontinuität der Familie. Als Reform- oder Missionsstandorte waren sie schließlich auch Ausdruck der besonderen Frömmigkeit ihrer Stifter und deren Nähe zu den sächsischen Kirchenreformkreisen. Erst vor dem Hintergrund der Einzelbiographien konnten in den Stiftungen der Parteigänger auch Zeugnisse künstlerischer Reaktionen auf die Person und Politik Lothars III. und die kaiserliche Baukunst gesehen werden.
- So zeigte die Betrachtung ausgewählter Kirchenstiftungen deutlich, daß die für die Baukunst Lothars III. formulierten architektonischen Prinzipien der Antiken- und Italienrezeption, des Einflusses reformmonastischer Grundrißformen und die ausgeprägte Ornamentfreude im Baudekor auch von den Parteigängern aufgenommen, keineswegs aber in uniformer oder gleichwertiger Weise umgesetzt wurden. Die vielleicht vorsichtiger als Reflexionen denn als Rezeptionen zu bezeichnenden Motivverwandtschaften zwischen den Kaiserstiftungen, insbesondere von Königslutter, und den Stiftungen der lotharischen Parteigänger, waren grundverschieden und folgten keinem einheitlichen Schema.
- Es fanden Einzelformen, wie beispielsweise die Ecksäulen im Apsisgewände von Königslutter, in den Choranlagen von Petersberg/Halle, Oldisleben und Schöningen Verbreitung; in Hecklingen, Wimmelburg, Riechenberg dienten sie zusätzlich der Dekoration des Außenbaus. Die im dreischiffigen Chor von Königslutter zwischen Sanktuarium und Nebenchören vermittelnde Arkadenstellung wurde in den Ostanlagen von Ballenstedt, Sangerhausen und Wimmelburg übernommen und, der achteckige Vierungsturm von Königslutter wurde in Ballenstedt, Marienmünster und Sangerhausen aufgegriffen.
- Kennzeichnend für die in unmittelbarer Nachfolge von Königslutter entstandenen sächsischen Stiftungen von Parteigängern ist auch die markante Apsisaußengliederung einer von Pilastern und Bogenfriesen getragenen Zweigeschossigkeit, die den Außenbauten von Hecklingen, Petersberg/Halle, Wimmelburg und Schöningen das Gepräge der Lothar-Baukunst verlieh. Mariental, Petersberg und Schöningen kopierten schließlich auch das feine attische Sockelprofil mit dem Abschluß der Doppelleiste, den in dieser besonderen Kombination zuvor nur die Kaiserbauten in Süpplingenburg und Königslutter aufwiesen. In Schöningen ahmte man zusätzlich die Feingliederung durch Pilaster und die Verkröpfung der Pilasterbasen am umlaufenden Sockel nach. Obwohl der Leser in einigen Kapiteln vielleicht eine Untersuchung der Werkstattzusammenhänge, der Händescheidungen einzelner Steinmetze und damit verbundene stilistische Detailvergleiche erwartet hätte, stand diese Arbeit nicht im Zeichen einer wiederholten Aufarbeitung der Stilzusammenhänge zwischen den einzelnen Königslutterer Kapitelltypen
- ____
- 253
- (Chorsäulen- und Kreuzgangkapitelle) und der Bauplastik der Königslutter-Nachfolge 702. Aus diesem Grunde blieben Motivbezüge wie die Anlehnung des Hecklinger Stufenportals mit eingestellten Ecksäulen, antikisierenden Kapitellformen und Kämpfergesims mit Akanthusblättem und Perlstab, die Gesimsfragmente mit antikisierenden Ornamenten von Oldisleben oder der Vergleich der Riechenberger und Ballenstedter Kapitelltypen mit dem Königslutterer Kapitellprogramm eher allgemeiner Natur. Es ging weniger um stilistische Abhängigkeiten einzelner Ornamente, als vielmehr um den Vorschlag, in der Übernahme der in der kaiserlichen Baukunst Lothars so einzigartig verbundenen Reform- und Herrschaftsarchitektur sowie der antikisierenden Bauplastik auch eine politische Intention zu sehen und dabei die durch Quellen erwiesene Parteigängerschaft einzelner Gefolgsleute auch an ihren Stiftungen sichtbar zu machen.
- Kritiker mögen an dieser Stelle die reduzierte Auswahl der auf die Ornamentsprache von Königslutter fixierten Vergleiche beanstanden und einen Blick auf die Bauwerke im Ganzen vermißt haben. Es waren jedoch keine monographischen Darstellungen sächsischer Bauwerke der Romanik gewollt. Die Befürwortung der antisalischen und romnahen Politik Lothars III. durch den sächsischen Adel war auch an der Auswahl und der Einbindung motivischer Einzelphänomene in der Architektur der Parteigänger sichtbar. Schon Richard Krautheimer belegte in seinem Aufsatz „Einführung zu einer Ikonographie der mittelalterlichen Architektur“ Architekturkopien mit weitaus weniger augenfälligen Merkmalen: Die abstrakteste und gleichzeitig immateriellste Form der Architekturkopie kann - nach Krautheimer - sogar der Weihname eines Kirchenbaus sein, der „eine Stellvertreterrolle für alle anderen Kennzeichen übernommen zu haben [scheint]. (...) Sogar die besondere Art und Weise, in welcher der Bau einer Kirche begonnen wurde, konnte als tertium comparationis dienen\" 703. In diesem Sinne erfüllen Königslutterzitate bei den Bauten der Parteigänger gewiß auch die Funktion eines Stellvertreters und weckten - als visuelles
- ____
- 702 Die Forschung zur Königslutter-Nachfolge, insbesondere die bauplastische Wirkung der Kaisergrablege auf die Skulptur Sachsens im 12. Jahrhundert, wurde im Königslutter-Kapitel [III.2.1.3.] einleitend vorgestellt. Von den jüngsten Einzeluntersuchungen zur Architektur des 12. Jahrhunderts, die sich im Rahmen ihrer Stilvergleiche auch mit der Bauplastik von Königslutter und dessen Umkreis auseinandersetzen, sind Müller 1992 (Murbach), S. 263-265; Lieb 1995 (Hildesheim), S. 175-177, 192-198; Mertens 1995 (Speyer, Mainz), S. 221-247 und Schöne 1999 (Hammleben), S. 163-236 hervorzuheben.
- 703 R Krautheimer (1942), Einführung zu einer Ikonographie der mittelalterlichen Architektur, zuletzt mit allen Postscripts veröffentlicht in: R. Krautheimer, Gesammelte Aufsätze zur Europäischen Kunstgeschichte, Köln 1988, S. 142-197, S. 160.
- ____
- 254
- Echo auf das Vorbild Königslutter - Assoziationen hinsichtlich persönlicher oder politischer Verbindungen zwischen der jeweiligen Adelsfamilie und dem Kaiser. Denn gerade vor dem Hintergrund der politischen Komponente der Italien- und Antikenrezeption, als einem Ausdrucksmittel lotharischer Herrschaftslegitimation, war die Rezeption der Lothar-Baukunst kein ausschließlich stilgeschichtliches Phänomen mehr. Die Antikenzitate in Königslutter, von Lothar gewissermaßen zum politischen und künstlerischen Programm erhoben, spiegelten in ihrer Wiederverwendung und Aufbereitung an den Stiftungen der Parteigänger deren Einverständnis mit der lotharischen Kaiseridee.
- Besonders deutlich zeigte sich dies am Beispiel der Grabkapelle Sigwards von Minden. Der enge politische Weggefährte Lothars III. hatte im Bildprogramm des kleinen Kirchenbaus nicht nur in den Architekturbreviaturen die aktuellen architektonischen Herausforderungen der Zeit, wie Wölbung, Zweigeschossigkeit des Apsisäußeren und Andeutung von Ecksäulen darstellen lassen, sondern in den zahlreich nachgewiesenen Byzanzbezügen (Monumentalstil und Ikonographie) wohl auch das von Lothar für sein Königtum entworfene ottonische Herrschaftsideal reflektiert. Mit der Simultandarstellung Lothars III. und Konrads III. im Jüngsten Gericht, die die Polarität des lotharisch-sächsischen und staufischen Königtums thematisierte, trieb Sigward seine politische Bindung zu Lothar III. sogar auf die Spitze.
- In vergleichbarer, wenn auch nicht derart wertender Weise sind die Bildnisse im Hecklinger Hauskloster der Grafen von Plötzkau und das Königspaar von Konradsburg zu verstehen, bei denen es sich m. E. um politisch intendierte, wenn auch posthume, Würdigungen des Kaiserpaares handelte. Bewußt gewählte Herrscherattribute wie die byzantinische Kronenform des Kamelaukions, im Gegensatz beispielsweise zur mächtigen Bügel- oder Doppelbügelkrone, als Kennzeichen „bescheidener“ Herrscher in Hecklingen, der Kreuzstab in der Hand des Konradsburger Königs und der formale Vergleich mit der Grabplatte Herzog Widukinds, als Hinweis auf die stammesgeschichtliche Bindung Lothars zu einem Leitbild des sächsisch-ottonischen Königtums, können als Indizien der Wertschätzung eines reformerischen und in der ottonischen Herrschertradition stehenden Kaisers gedeutet werden.
- Vor diesem Hintergrund kommt den Bauten der Parteigänger eine unverzichtbare Mittlerfunktion für das herrscherliche Selbstverständnis Lothars III. zu. Als Stiftungen der politischen Stützen des Reiches waren ihre Hausklöster und Familiengrablegen repräsentative Träger der lotharischen Herrscheridee. In gewisser Weise transportierten die Parteigänger mit ihrer Architektur den Gedanken des lotharischen Kaisertums, indem sie die in Königslutter intensivierte Antiken- und Italienrezeption in vielgestaltigen,
- ____
- 255
- ideenreichen Varianten umsetzten. Dabei folgten sie einem wichtigen Grundsatz, der das wahrscheinlich einzig Verbindende zwischen den sonst so unterschiedlichen Beispielen lotharischer „Parteigängerkunst“ war: Für die Rezeption der Lotharbaukunst könnte ein hierarchisches Prinzip gegolten haben, denn man orientierte sich zwar an den kaiserlichen Vorbildbauten, überbot aber nie deren spezielle, imperial besetzte Formensprache. Am eindringlichsten wurde dies am Beispiel des nur wenige Kilometer von den kaiserlichen Stiftungen Süpplingenburg und Königslutter entfernten Hausklosters der Pfalzgrafen von Sommerschenburg, im Zisterzienserkloster Mariental, deutlich. Dort stand der Verzicht auf üppigen Bauschmuck und repräsentative Raumgestaltung nicht nur für die zisterziensische Ausrichtung des Konvents, sondern dokumentierte gleichzeitig eine angemessene Zurückhaltung zur benachbarten Kaisergrablege.
- Während die Gruppe der Adligen um Lothar III. in einem weitestgehend einheitlichen Vorgehen die Architektur und Bauskulptur ihrer Familienklöster zu Trägern ihrer politischen (antisalischen und reformorientierten) Ausrichtung machten, folgten die kirchlichen Parteigänger mit ihren Stiftungen oder der Förderung bestimmter Kirchenbauten keineswegs einem homogenen Muster.
- Die sächsischen Kirchenmänner, die ihre Position am Hofe Lothars III. überhaupt durch eine künstlerische Reaktion auf die Lothar-Baukunst veranschaulichten, haben ihre Verbundenheit mit der politischen Linie Lothars sehr individuell auf ihr Verhältnis zum Kaiser zugeschnitten. Adalbert von Mainz belegte sein von Konkurrenz um die erzbischöfliche Handlungsfreiheit bestimmtes und daher eher gespaltenes Verhältnis zum Kaiser mit einer bewußten Distanz zur sächsischen Baukunst, die sich in den Entstehungsjahren der Mainzer Gotthardkapelle (1137) m. E. in einer gezielten Abkehr von der durch Lothar in Sachsen etablierten Italien- und Antikenrezeption äußerte. Ganz anders ist der Ausbau von Goslar-Riechenberg durch Propst Gerhard von Riechenberg zu bewerten, wo die überladene und demonstrativ zur Schau gestellte Königslutter-Rezeption offensichtlich aus dem Bedürfnis Gerhards resultierte, seine persönliche Nähe zum Kaiser besonders augenfällig darzustellen.
- Im Unterschied dazu waren die baulichen Analogien zweier Bauwerke in der Halberstädter Diözese, der Kirchen von Wimmelburg und Schöningen, zu Königslutter, nicht auf den persönlichen Beitrag ihrer Stifter zurückzuführen. Hier spielten vielmehr familien-, lokal- und kirchenpolitische Voraussetzungen innerhalb der konventualen Ausrichtung eine Rolle bei der Übernahme Königslutterer Bauformen. Allein in Idensen thematisierte Bischof Sigward von Minden seine Kooperation mit der lotharischen Politik auch in Architektur und Bildprogramm,
- ____
- 256
- durch Anspielungen auf die aktuelle politische Situation des Konfliktes zwischen Lothar und den staufischen Thronanwärtern. An diesen vier Beispielen wurde deutlich, daß die kirchlichen Parteigänger in Sachsen zwar Stiftungen entweder zur Verbreitung des Reformgedankens oder als Memorialbauten (Grablegen) zur Repräsentation ihres eigenen Episkopats getätigt, dies aber keineswegs im selben Ausmaß wie die untersuchte Adelsgruppe betrieben haben.
- Gleichwohl kann die Stiftungstätigkeit der im Umkreis Lothars III. politisch aktiven Adelsschicht nicht ausschließlich zugunsten kaiserlicher Ideenträgerschaft interpretiert werden. Der Nutzen für die adlige Selbstdarstellung und die Schaffung einer Konstante für die familiäre Totenmemoria waren gleichbedeutende Triebfedern. Dabei war es für diese Gruppe ranghoher Stifter sicherlich von Vorteil, daß sich die in Sachsen etablierenden neuen Formen imperialer Baukunst nicht mehr an dem übermächtig gesteigerten und damit für sie entrückten Stil der rheinischen Kaiserdome orientierten. Die in ihren Ausmaßen sehr bescheidene, aber an höchster Qualität gemessene Variante kaiserlicher Reichsarchitektur in Königslutter, die zudem der Grablege eines Mannes diente, der nicht kaiserlichen Geschlechts war, sondern als sächsischer Herzog aus ihrer Mitte stammte, kam dem Repräsentationsbedürfnis des sächsischen Adels vermutlich näher als die symbolisch überhöhte salische Monumentalarchitektur.
- Insofern greifen im Anspruch der lotharischen Baukunst und der Bauten seiner Parteigänger ideologische und künstlerische Ebenen ineinander, die ein gegenseitiges Verlangen befriedigten: Auf Lothars Seite dominierte das Bedürfnis nach Anerkennung seines Königtums, wofür er eine Adelsschicht gewinnen mußte, die gerade nach dem Investiturstreit auch eine partielle Zugehörigkeit zur kaiserlichen Machtsphäre einforderte. Der Adel hingegen konnte, ohne sich dem Vorwurf der Hoffart auszusetzen, einen Kaiserstil imitieren. Denn Lothar hatte mit seiner nicht monumental-pompösen, sondern eher zurückhaltend-diffizilen Kunstsprache einen Stil geschaffen, dessen Rezeption die geistige Nähe zum kaiserlichen Hof anzeigte, ohne daß Assoziationen unangemessener oder nicht standesgemäßer Bezüge zu imperialer Baukunst entstanden.
- IV.3. Exkurs: Lothar III. und Bayern
- Nachdem die Adelsstiftungen und Hausklöster lotharischer Parteigänger als wichtige Faktoren für die Verbreitung der Italien- und Antikenrezeption in Sachsen erkannt wurden, stellt sich die Frage, ob das reiche und exklusive Formengut der Kaisergrablege auch über die sächsischen Grenzen hinaus, in den südlichen Reichsteilen, Beachtung und Verbreitung fand.
- ____
- 257
- Anfangs ließen Lothars familiäre Bindungen zu den bayerischen Grafen von Formbach sowie seine steten Bemühungen um eine Allianz der beiden Herzogtümer Sachsen und Bayern, die er seit der Vermählung seiner Tochter Gertrud mit dem Welfenherzog Heinrich dem Stolzen (1127) mit Nachdruck betrieben hatte, eine starke Präsenz der sächsischen Königsmacht in Bayern erwarten. Desgleichen könnte angesichts der zahlreichen Kaiserurkunden für süddeutsche Reformklöster 704 und der immerhin acht Fest- und Hoftagsaufenthalte in Regensburg, Würzburg und Bamberg mit einer großen Zahl bayerischer Parteigänger zu rechnen sein. Doch ergeben die Forschungen Petkes zur Hofgesellschaft Lothars III. ein anderes Bild. Danach zählte mit Ausnahme Ottos von Bamberg kein bayerischer Fürst dauerhaft zum engeren Kreis des Kaisers 705, auch wurde Bayern nicht von einer den sächsischen Verhältnissen des frühen 12. Jahrhunderts vergleichbaren Gründungs- und Bautätigkeit der kaiserlichen Parteigänger erfaßt.
- Einzig Diepold von Vohburg, ein fünfmal im Umfeld Lothars genannter bayerischer Markgraf 706, der 1133 das Zisterzienserkloster in Waldsassen gründete, hatte durch die Besetzung mit Mönchen aus dem thüringischen Volkenroda einen sächsischen Reformkonvent in Bayern angesiedelt. Mögliche sächsische Baumerkmale in Waldsassen lassen sich nicht mehr ermitteln, da der Gründungsbau Diepolds bereits 1179 einem Neubau weichen mußte 707.
- Größeres gegenseitiges Interesse hingegen bekundeten Lothar III. und die bei Passau reich begüterten Grafen von Formbach 708. Lothar stattete das bereits 1040 gestiftete, 1094 neugegründete und wahrscheinlich bis 1125 vollendete Hauskloster seiner Familie mütterlicherseits, St. Maria und St. Benedikt in Formbach, mit Privilegien aus und nahm es in kaiserlichen Schutz 709. Der barocke Neubau des 17. Jahrhunderts hat Teile der
- ____
- 704 Vgl. Reg. Imp. Loth. Nr. 428 (Mallersdorf); Reg. Imp. Loth. Nr. 369, 408 (Münchsmünster); Reg. Imp. Loth. Nr. 361, 460 (Benediktbeuern); Reg. Imp. Loth. Nr. 243 (Indersdorf); Reg. Imp. Loth. Nr. 108 (Pfäffers); Reg. Imp. Loth. Nr. 104 (Prüfening).
- 705 Petke 1985, S. 303-425, 429 gelangt aufgrund der Überzahl sächsischer Fürsten am Hofe Lothars III. zu dem Schluß „daß Sachsen die Kernlandschaft für die Königsherrschaft des Süpplingenburgers gewesen ist“.
- 706 Petke 1985, S. 251.
- 707 Inventar Bayern 1908, S. 86-102 und J. Drexler in: Dehio Regensburg und die Oberpfalz (Neubearbeitung) 1991, S. 779.
- 708 Zu den Besitzverhältnissen des Formbacher Grafengeschlechts zuletzt R. Loibl, Der Herrschaftsraum der Grafen von Vornbach und ihrer Nachfolger. Studien zur Herrschaftsgeschichte Ostbayerns im Hohen Mittelalter, München 1997.
- 709 Vornbach, in: Germania Benedictina 2, 1970, S. 318-322; zum Kaiserprivileg vgl. Reg. Imp. Loth. Nr. 480.
- ____
- 258
- Außenmauern und Westtürme der einst querschifflosen, flachgedeckten Dreiapsidenanlage mit Doppelturmfassade des 12. Jahrhunderts erhalten, doch sind diese vollständig in das barocke Raumgefüge integriert und lassen keine Rückschlüsse auf eventuelle Bau- oder Stiltraditionen zu 710.
- Daß im Gegenzug auch der Formbacher Konvent die Nähe zum kaiserlichen Ahnen der Stifterfamilie veranschaulichte, zeigen zwei Miniaturen einer Bildfolge des Formbacher Traditionsbuches, das in der ersten Hälfte des 12. Jahrhunderts angelegt wurde 711. Ein erst zwischen 1150 und 1170 entstandenes Doppelbild 712 (Abb. 261, 262)
- illustriert die beiden Initiatoren der Formbacher libertas ecclesiae, Lothar III. und Innozenz II., die durch das Kaiserprivileg von 1136 und eine Papsturkunde von 1139 713 dem Kloster Kaiserschutz und Freiheit von der bischöflichen Diözesangewalt garantiert hatten. Die als Pendants angefertigten Bildnisse zeigen Papst und Kaiser mit Schriftstücken, auf denen Auszüge aus den Schutzbestimmungen verzeichnet sind, die sie jeweils einem Mönch überreichen. In der Gegenüberstellung der beiden sitzend, aber ohne Thron dargestellten Herrscherpersonen läßt sich deutlich eine der mittelalterlichen Bedeutungsperspektive entsprechende Gewichtung erkennen. Während Kaiser Lothar III. mit seiner voluminösen Gestalt fast das gesamte Bildfeld einnimmt, mit dem rechten Arm und der Krone den Rahmen berührt und stehend die Komposition sprengen würde, beschränkt sich die Figur Innozenz` II. auf die rechte Bildhälfte und ist von den Gesamtproportionen deutlich kleiner wiedergegeben. Allem Anschein nach hatte der Federzeichner in der Anlage der Blätter, einem hierarchisierenden Prinzip folgend, den historischen Wert der kaiserlichen Privilegienvergabe mit der persönlichen Memoria des Kaisers verknüpft und Lothar in der Bildüberlieferung eine größere Präsenz beigemessen als dem Gegenbild des Papstes. Dieser ist, wie der Kaiser, namentlich genannt und in voller Amtstracht abgebildet, doch scheint er ausschließlich als Überbringer des die Rechtshandlung bestätigenden Urkundentextes zu fungieren, da der Inhalt seiner Urkunde in weitaus größerer Ausführlichkeit zitiert ist.
- ____
- 710 M. Brix in: Dehio Bayern II: Niederbayern (Neubearbeitung) 1988, S. 750-756.
- 711 E. Chrambach, Die Traditionen des Klosters Formbach, Altendorf 1987, S. 126 und O. G. Oexle, Memoria und Memorialbild, in: Schmid/Wollasch 1984, S. 396. Der Traditionscodex liegt heute im Hauptstaatsarchiv München unter der Signatur KL 1.
- 712 Zur Datierung der dem Formbacher Traditionsbuch vorangestellten Illustrationen vgl. Chrambach 1987, S. 32-35 und C. Sauer, Traditionsbücher und ihre Stifterbilder im historischen Kontext, München 1986, S. 47-49.
- 713 Zur Urkunde Lothars III. vom 14. Mai 1136 vgl. Reg Imp. Loth. Nr. 480. Das Privileg von Innozenz II. vom 29. März 1139 (Germania Pontifica 1, Berlin 1911, Nr. 1, S. 186) stellt Formbach unter päpstlichen Schutz.
- ____
- 259
- Die besondere Größe der Lotharfigur ließe sich aus der Miteinbeziehung der Formbacher Memorialpflichten gegenüber dem Kaiser in den dokumentarischen Charakter des Bildes erklären. Hinzu kommt, daß die Darstellung auch als Parteinahme des Formbacher Abtes (als mutmaßlicher Auftraggeber) zu deuten ist, die Lothar als Imperator und Reformer über die Person und damit auch die Position des Papstes erhebt. Auf keinen Fall aber können, wie Eva Chrambach vermutet, der Größenstaffelung der Figuren allein künstlerische Defizite des Federzeichners, der „die Figur [Lothars] etwas zu groß begonnen [habe] (...) “ 714 zugrundegelegt werden. Für die Bewertung im Sinne einer gezielten Hierarchisierung spricht auch der Einsatz der Farbe Gold im Bild Lothars III., die für die mit Pendilien geschmückte Krone verwendet wurde, nicht aber für die zweispitzige Mitra, die mitra bicornis, des Papstes.
- Die im Formbacher Codex beobachtete Hervorhebung der Person Lothars III. ist in der Zeit zwischen 1150 und 1170, in der die Miniaturen entstanden sind, im Kreis Passauer Reformklöster kein Einzelfall geblieben. Etwa im selben Zeitraum (um 1160) verfaßte ein Mönch des benachbarten Klosters Göttweig, von wo auch der zweite Formbacher Abt Wirnto (1108-1127) stammte, die berühmte Narratio de electione Lotharii, die schriftliche Fixierung der Wahlvorgänge von 1125 715. Von diesen beiden in Bild und Text festgehaltenen Dokumenten auf ein Zentrum lotharischer Memoria in der Passauer Kirchenprovinz zu schließen, ist sicherlich übereilt, doch werden in ihnen zwei Fixpunkte des Gedenkens an Lothar III. in Bayern faßbar.
- Offensichtlich hatte die süddeutsche Adelsschicht keine den sächsischen Bündnispartnern vergleichbare Stellung am Hofe Lothars eingenommen. Damit ist auch die für das sächsische Baugeschehen der Zeit Lothars III. angewandte Methode, in Familienzugehörigkeiten oder Parteigängerschaften einzelner Bauherren eine Quelle stilistischer Verwandtschaften zu sehen, nicht auf das zeitgleiche Baugeschehen im süddeutschen Raum zu übertragen. Lediglich über allgemeine Beobachtungen zu vergleichbaren Grundrißdispositionen, dem in Sachsen wie Bayern ausgeprägten Ornamentreichtum, der stellenweise üppigen vegetabilen und figürlichen Bauplastik sowie den aufwendig gestalteten Portaleinfassungen könnten Wege gegenseitiger Einflußnahmen nachgezeichnet werden.
- So ist es vorerst nicht abwegig, Form- und Motivparallelen sächsischer und bayerischer Bauskulptur anzunehmen, zumal in der ersten Hälfte
- ____
- 714 Chrambach 1987, S. 28.
- 715 L. Vones in Luckhardt/Niehoff 1995, Bd. 1, S. 134-136 (Kat. Nr. C 8); vgl. auch Kap. II.1.2.
- ____
- 260
- des 12. Jahrhunderts in beiden Kunstlandschaften italienische Bauhütten tätig waren. Auch forderte die für St. Mang in Stadtamhof (ab 1138/39) durch Quellen bestätigte und für einige Regensburger Kirchen und Bauten außerhalb Regensburgs rekonstruierte Verbindung zu oberitalienischen (comasker) Bauleuten zu einem Vergleich mit der Antiken- und Italienrezeption in Sachsen heraus 716. Diese wird in Bayern jedoch von eigenen genuinen Baugewohnheiten und Dekorationsformen bestimmt, die mit den sächsischen Traditionen und den dortigen Italienbezügen des frühen 12. Jahrhunderts nur bedingt in Einklang zu bringen sind.
- In Bezug auf die Bautypen beherrschten die bayerische Klosterlandschaft zwei nebeneinander bestehende Grundrißvarianten, die Alpenländische Basilika und die in zahlreichen Abwandlungen von St. Peter und Paul in Hirsau entwickelte Querhausbasilika mit mehreren, unterschiedlich kombinierten Apsidenfolgen. Beide Bauformen wurden auch in Sachsen übernommen, jedoch als an die lokalsächsischen Traditionen angepaßte Lösungen. Für drei im Kontext lotharischer Baukunst stehende Kirchenbauten (St. Ägidien in Braunschweig, Bursfelde, Ammensleben) konnte, als Rekonstruktion entweder des Gründungsbaus (Braunschweig, Ammensleben) oder als Folge von Umbauten (Bursfelde), der Typus des querschifflosen Dreiapsidenraumes nachgewiesen werden. In Bursfelde wurde die lichte Transparenz des dreischiffigen Raumgefüges bayerischer Dreiapsidenbauten (Petersberg/Eisenhofen, Fischbachau) durch Abtrennung der Abseiten mittels einer hohen Brüstung aufgegeben und als Umdeutung der Scheidarkaden (Hamersleben) zwischen Vierung und Querhausarmen sächsischen Bauformen eingepaßt. Die um 1160/80 über dem letzten Westjoch des Langhauses errichtete Zweiturmfassade widersetzte sich dann gänzlich dem Raumkompositum der Alpenländischen Basilika, bei der die Westfront ohne besondere Akzentuierung gestaltet ist. Im Falle von Bursfelde konnte die Rezeption des bayerischen Grundrißtyps durch die im Northeimer Hauskloster praktizierte Familienmemoria, die auch den sächsisch-bayerischen Herzog Otto von Northeim miteinschloß, als eine über bekannte Vorstellungen von Stilvermittlung hinausgehende Reminiszenz erklärt werden.
- Die regionale Verbreitung der durch die Reform und ihre neuen liturgischen Erfordernisse bedingten Bauformen war im Süden des Reiches,
- ____
- 716 Zur Italienrezeption in der mittelalterlichen Architektur im Umkreis Regensburgs (Niedermünster, St. Georg und Afra, Allerheiligenkapelle, St. Michael in Altenstadt, St. Peter in Kastl, St. Maria in Walderbach) vgl. E. Kluckhohn, Die Bedeutung Italiens für die romanische Baukunst und Bauornamentik in Deutschland, in: MarbJb 16, 1955, S. 1-120, ebd. S. 58-61 und R Strobel, Romanische Architektur in Regensburg. Kapitell-Säule-Raum, Nürnberg 1965, S. 93-108.
- ____
- 261
- wo sich die Zentren der Reform (Hirsau, Schaffhausen, St. Blasien, Prüfening, Alpirsbach) befanden, ein selbstverständliches Phänomen. Nicht zuletzt, weil reformaktive Äbte wie Wilhelm von Hirsau oder Bischöfe wie Otto von Bamberg als eifrige Klostergründer und Bauherren in Erscheinung traten und dabei für eine weite Streuung reformierter Konvente sorgten. Daß der Hirsauer Reformgeist durch die Klöster Paulinzella, Berge bei Magdeburg und das Erfurter Peterskloster auch nach Sachsen gelangte und von dort Einzug in die Baukunst der ersten Hälfte des 12. Jahrhunderts (Halberstadt, Liebfrauen, Michaelstein/Harz, Hildesheim, St. Godehard) nahm, ist bekannt und wurde zuletzt von Berger (1995/97) unter bau-, stil- und kirchengeschichtlichen Kriterien in einer lexikalisch angelegten Studie zusammengestellt 717.
- Nicht die Baukunst Lothars III. war also stilbildend für Bayern, sondern umgekehrt wurden einige Bauformen der frühen bayerisch-schwäbischen Reformklöster zu Vorbildern sächsischer Reformbaukunst. Der von Süden nach Sachsen betriebene Formentransfer wurde hauptsächlich durch den hirsauischen Reformgeist vermittelt und getragen. Architektonisch manifestieren konnte er sich in Sachsen erst durch Kirchenbauten, darunter auch Königslutter, die als Mitträger süddeutscher Reformgedanken zu Symbolen der Kirchenreform in Sachsen wurden.
- Vor diesem Hintergrund müssen dann auch andere Bedeutungsschwerpunkte für die Italienrezeption in Bayern gesetzt werden, als sie für die sächsische Italienrezeption Geltung besaßen. Die in Süddeutschland herrschende Präsenz italienischer Bau- und Ornamentformen kann, trotz ihrer erst nach 1160 beginnenden Verbreitung, nicht über den Umweg der sächsischen Italienrezeption von Königslutter erklärt werden, der künstlerische Austausch folgte vielmehr eigenen Regeln. Denn Bayern war zwischen 1150 und 1200 keine Königslandschaft wie Sachsen in dieser Zeit, und es machte einen Unterschied, ob italienische Architektur und Bauskulptur in einer „natürlichen, nachbarschaftlichen Überlieferung“ 718 in die nordalpinen Architekturlandschaften gelangte oder ob ein Herrscher wie Lothar III. lombardische Bauhütten oder gar einen namentlich gesicherten Baumeister (Nikolaus) für seine kaiserliche Baustelle verpflichtete. Allein schon die korinthisierenden Kapitelle von Königslutter (Sanktuarium und Kreuzgang) und dessen Nachfolge und die hohe Qualität der figürlichen und ornamentalen Bauplastik der Apsis (Jagdfries und Akanthusfries) stehen wegen ihrer Art der Architekturbindung und der
- ____
- 717 Berger 1995-1997.
- 718 H. Schindler, Große Bayerische Kunstgeschichte, Teil I: Frühzeit und Mittelalter, München 41997, S. 134.
- ____
- 262
- künstlerischen Ausfertigung in starkem Gegensatz zu vergleichbarem Bauschmuck im Süden Deutschlands. Man denke nur an die seltenen Beispiele korinthisierender Kapitelle an den Portalen von Straubing und Windberg (Abb. 263, 264)
- oder die Menschen- und Tierkopfkonsolen an den Apsiden von Weißendorf und Tholbath (Abb. 265, 266),
- die in ihrer fast naiven, blockhaften Ausführung in keiner Weise mit der sorgfältig gearbeiteten Bauplastik von Königslutter und seiner sächsischen Nachfolge zu vergleichen sind.
- Lothar reihte sich mit dem Vorhaben, in der sächsischen Baukunst die Rezeption italienischer (antiker) Formen als imperiales Stilmittel einzusetzen, in eine Tradition ein, die seine ottonischen und salischen Amtsvorgänger bereits in Magdeburg, Mainz und Speyer begründet und angewandt hatten, doch füllte er diesen Symbolwert mit einer neuen und ihr sächsische Verhältnisse originären skulpturalen und bautechnischen Qualität (Wölbung, Quaderbau), die gerade im Hinblick auf die bayerische Italienrezeption hervorsticht. Damit können die kaiserlichen Auftraggeber in Sachsen bis einschließlich Lothar III. als Garanten für ein hohes künstlerisches Niveau der sächsischen Architektur und Bauplastik gelten, und umgekehrt könnte dies ein Grund dafür sein, weshalb die bayerische Romanik „die Qualitätshöhe anderer Landschaften durchschnittlich nicht erreicht“ und „die meisten bayerischen Kapitelle wie primitive Versuche [wirken], denen die freie und überlegene Lösung versagt geblieben ist“ 719.
- Zuletzt führte auch ein weiterer Aspekt, der hinsichtlich der Rezeption Königslutterer Formen in Bayern vorstellbar gewesen wäre, nämlich die Mittlerfunktion durch die lotharischen Erben, zu einem negativen Ergebnis. Seitens Heinrichs des Stolzen und Heinrichs des Löwen, die aus alten welfischen Ansprüchen um eine Restitution Bayerns bemüht waren, hätte man an eine Ausbreitung des sächsischen Kunst- und Architekturschaffens in den südlichen Reichsgebieten denken können. Doch schien dies nicht in ihrem Interesse gelegen zu haben. Beide Herzöge sicherten ihre Macht in Bayern auf ausschließlich politischer Ebene und etablierten sächsische Traditionen durch Klostergründungen oder Bauprojekte weder auf missionarischem, reformerischem oder künstlerischem Gebiet 720.
- ____
- 719 Kluckhohn 1955, S. 81, 83.
- 720 Das lag wohl zum einen daran, daß trotz der Machtbestrebungen im Süden noch immer Sachsen der Herrschaftsmittelpunkt der sächsischen Welfenlinie war und zum anderen am fehlenden Besitz (Hausgut) der sächsischen Herzöge in der bayerischen Klosterlandschaft. Vgl. A. Schmid, Heinrich der Löwe als Herzog von Bayern, in: Luckhardt/Niehoff 1995, Bd. 2, S. 173-179, ebd. S. 174, 177. Als weitaus aktiver hinsichtlich einer Stiftungs- und Bautätigkeit erwies sich die schwäbische Welfenlinie. Welf VI. (†1191), ein Onkel Heinrichs des Löwen, baute Sindelfingen zum Herrschaftszentrum aus und gründete 1147 das Prämonstratenserkloster St. Johannes in Steingaden mit einem zur Grabkapelle bestimmten Zentralbau. In diesem Zusammenhang muß auf die Stiftskirche St. Martin in Sindelfingen hingewiesen werden, die in einem Bauabschnitt in der Zeit nach 1130, wahrscheinlich im Auftrag Welfs VI.‚ ein dreischiffiges Langhaus erhielt, dessen Stützen Pfeiler mit Ecksäulen ausbilden. Möglicherweise wurde hier bewußt an Bautraditionen angeknüpft, die an die sächsische Welfenlinie erinnern sollten. Die im Süden Deutschlands im frühen 12. Jahrhundert einmalige Stützenform wird noch einmal, um 1200, in der Johanniskirche in Schwäbisch-Gmünd aufgegriffen. Vgl. H. Schäfer, Zur Baugeschichte der ehemaligen Stiftskirche St. Martin in Sindelfingen, in: Forschungen und Berichte der Archäologie des Mittelalters in Baden- Württemberg 4, 1977, S. 77-128.
- ____
- 263
- Während Heinrich der Stolze sich noch durch den Bau einer Brücke in Regensburg um Städtebau und Handelspolitik verdient gemacht harte 721, war für Heinrich den Löwen Bayern nur noch ein politischer Nebenschauplatz 722.
- Die Durchsicht der erhaltenen romanischen Bauten in Bayern zwischen 1150 und 1200 hat gezeigt, daß in den südlichen Reichsteilen nichts von der sächsischen Ornamentsprache der Kaiserbaukunst Lothars III. und seinen Parteigängern wahrzunehmen ist. Weder wurden die in Königslutter beobachteten Ecksäulen im Chorgewände, die von dort als Kantensäule an Portale und Langhausstützen gelangten, in Werken der bayerischen Romanik rezipiert, noch konnten die hohe Qualität und die Plastizität der antikisierenden Kapitelle, Säulenschäfte, Bauskulpturen und Sockelprofile der Baukunst Lothars III. im Süden Deutschlands erreicht werden. Selbst die auf den ersten Blick an Sachsen erinnernde Rezeption oberitalienischer Bauplastik, die für die Verbreitung auch antikisierender Ornamentik im Reich sicherlich bedeutend war, konnte sich nicht mit den symbol- und bedeutungsstarken Neuschöpfungen der zeitgleichen sächsischen Entwicklung messen.
- ____
- 721 Zum Bau der zwischen 1135 und 1146 auf die Initiative des Welfenherzogs begonnenen Donaubrücke zuletzt H.-E. Paulus, Anmerkungen zur steinernen Brücke in Regensburg, in: Romanik in Regensburg 1996, S. 50-53.
- 722 Heinrich der Löwe hielt sich nur siebenmal, anläßlich von Landtagen, jeweils für kurze Zeit in Bayern auf und ließ sich in der übrigen Zeit durch den Pfalzgrafen Otto von Wittelsbach, der später auch seine Position als sächsischer Herzog einnahm, vertreten. Nicht verschwiegen werden darf an dieser Stelle die auf Initiative Heinrichs des Löwen durchgeführte Verlegung der Isarbrücke bei Freising 1157/58 flußaufwärts an eine Stelle, an der sich schon um 1170 ein ummauerter Marktflecken bildete, aus dem sich später die Handelssiedlung München entwickelte. Heinrichs Motivation für diese Maßnahme waren allerdings die Kontrolle des Salzhandels von Salzburg ins übrige Reich und die damit verbundene Erhebung eigener Zölle, die zuvor an den Bischof von Freising gegangen waren. Vgl. Schmid in Luckhardt/Niehoff 1995 (wie Anm. 720), S. 176f.
- ____
- 264
- Im Grunde genommen bestätigt sich durch dieses negative Resultat hinsichtlich der Rezeption Königslutters in der süddeutschen Klosterlandschaft die eingangs formulierte These, daß bestimmte Personenkonstellationen zwischen Lothar III. und seinen Familienmitgliedern, politischen Bündnispartnern und Parteigängern das Nachwirken und letztendlich die Wertschätzung der Lothar-Baukunst im Baugeschehen des 12. Jahrhunderts sicherten. Denn in einem Gebiet, das zwar mit Regensburg, Passau und Salzburg gregorianische Reformzentren besaß, in dem aber eine adlige Parteigängerschaft wie auch der im sächsischen Henschaftszentrum mit Königslutter ständig vor Augen stehende künstlerische Maßstab als Orientierungspunkt fehlte, konnte sich die Baukunst Lothars III. nicht durchsetzen.
- ____
- 265
- V. Resümee
- V.1. Lothar III. und die Folgen seiner Baukunst in Sachsen
- Die im ersten Teil formulierte Fragestellung nach dem Reformgeist Lothars III. und der in der historischen Forschung geläufigen Anschauung, in ihm einen Gregorianer nach päpstlichen Vorstellungen zu sehen, konnte auch von kunsthistorischer Seite bestätigt werden: Lothar war ein Anhänger der gregorianischen Kirchenreformpartei, der die politischen Ziele der römischen Reformer auch für die eigene dynastische Idee, den Gedanken das Imperium Romanum zu erneuern, einsetzte. Dies spiegelt sich in der Wahl seiner baukünstlerischen Ausdrucksmittel wider.
- Die gregorianische Reformkunst des 12. Jahrhunderts wurde in besonderem Maße von Rückgriffen auf antike Dekorationsformen bestimmt, die in Rom in erster Linie Verbindungen zur konstantinischen Urkirche, zum Urchristentum evozierten. Nördlich der Alpen war die Antiken- und Italienrezeption gleichzeitig Ausdruck imperialer Repräsentation. In dieser Funktion war sie für Lothar ein willkommenes Stilmittel, seine fehlende dynastische Herkunft auf eine legitime und vor allem für die Öffentlichkeit sichtbare Basis zu stellen. Vor diesem Hintergrund war die Rezeption italienischer/antiker Kunst durch Lothar III. ganz persönlich, aus dessen Herrschergeschichte heraus motiviert, stand aber gleichzeitig in der Tradition sächsischer Kaiserbaukunst. Diese Verknüpfung aus Zitat, Tradition und Neuerung war es, was Königslutter und in der Folge die Bauten der kaiserlichen Parteigänger zu politischer Architektur werden ließ.
- Beurteilt man nun die baugeschichtlichen Folgen der Lothar-Baukunst in Sachsen im Überblick, kann man sich nicht allein auf die Königslutterer Bauplastik oder die Pionierleistung der Königslutterer Chorwölbung für den Gewölbebau der sächsischen Romanik beschränken. In gleichem Maße wie formale Neuerungen hat auch die „Idee Königslutter“, die Neuschöpfung aus „Regionalstil“ und „Reformstil“, verbunden mit dem Profil der Herrscherpersönlichkeit Lothars III., wichtige Maßstäbe gesetzt.
- Doch zunächst zusammenfassend zu den Formen: Dabei sind insbesondere die Ecksäulen des gestuften Apsisbogens von Königslutter in den dekorativen Formenschatz der sächsischen Baukunst, als Kantengliederung unterschiedlicher Bauteile, eingegangen. Dekorativ ist durchaus im Sinne des schmückenden Beiwerks gemeint, denn im Chor von Königslutter kam
- ____
- 266
- der Säule keine wirklich stützende Funktion zu, obwohl ihr statischer Wert dort noch angedeutet ist: Als einer aus dem Pfeiler- oder Pilasterkern modellierten schmückenden Eckdekoration, wie am Übergang vom Chorquadrat zum Apsisrund, erwecken die Ecksäulchen zumindest noch den Eindruck, als würden sie die Gurte und Schildbögen der Gewölbe tragen. In dieser Weise rezipierte man in der Folge die einstige Gestaltquelle beispielsweise in den Apsiseinzügen der Stiftskirche von Wechselburg (1160/80) oder in St. Peter und Paul in Heiningen. In der Folge entwickelte sich die Ecksäulendekoration immer mehr zu einem überwiegend applizierten Dekorationselement, das eine statische Funktion - etwa die der Ableitung von Gewölbegraten oder Scheid- und Gurtbogenkanten - nicht einmal mehr andeutete. So entstand beispielsweise in der zweiten Hälfte des 12. Jahrhunderts eine Pfeilerform, die die Kanten des blockhaften Pfeilerkerns mit schlanken, dienstartigen Säulen auflockerte, die mit kleinen Basen und Kapitellen aus dem Stützenmassiv herauswuchsen. Die Langhauspfeiler der Kirchenbauten in Lippoldsberg, Hecklingen, Braunschweig (Dom), Landsberg (Doppelkapelle)‚ Goslar (Marktkirche), Gehrden oder die Stützen im Kreuzgang-Nordflügel von Gernrode (1170, Abb. 269)

- haben diese Gliederungsform umgesetzt. Teilweise wurde sogar ganz auf die Kantensäule verzichtet, wie an den Langhausstützen der Wechselburger Stiftskirche (1160/80), wo neben Ecksäulchen auch abgeschrägte Kanten, die am oberen Ende höchstens durch eine verspielte Volute ornamentiert sind, den Pfeilerkern schmücken (Abb. 268).

- Parallel dazu fand die Ecksäule an Stufenportalen wie in Goslar, Domvorhalle (ab 1150), Paulinzella, Vorhalle (nach 1163) und Thalbürgel, Vorhalle (vor 1200) Verbreitung und wurde als Portalschmuck sowie als Pfeilergliederung bald auch außerhalb Sachsens rezipiert 723. Eine weitere Spielart war die Ecksäule an der Choraußenfront, wie beispielsweise in Braunschweig (Dom), Goslar-Neuwerk, Riechenberg wo sie - als Pendant zum Innenraum - die Außenkanten des Chorquadrates auflockerte.
- Die enorme Verbreitung der Königslutterer Kapitellplastik wird dadurch deutlich, daß kaum ein Bau in Sachsen, der bis 1200 entstanden ist, nicht in irgendeiner Weise unter dem Einfluß der Kapitelltypen von Königslutter stand. Hauptsächlich das Palmettenfächer- und korinthisierende Kapitell wurde, oft in einer Kombination beider Typen, zu einem in den 1170er Jahren beliebten Motiv 724‚ so daß man sich an dieser Stelle
- ____
- 723 Vgl. einige Beispiele im Elsaß wie Lautenbach, St. Michael und St. Gangolf (Westvorhalle 1140/50), Prioratskirche Alspach (1149), Dorlisheim (1160) oder Rosheim, St. Peter und Paul 1150/60.
- 724 Lieb 1995, S.209.
- ____
- 267
- fragen muß, inwieweit der Stil Königslutters auch zu einem gestalterischen Selbstläufer in Sachsen wurde. Gerade das Ornamentprogramm des um 1150 entstandenen Königslutterer Kreuzgangs, mit seinen ornamentierten Säulenschäften und den verschiedenen Kämpfer- und Kapitelldekorationen, fand rege Verbreitung in Sachsen, besonders im Harzgebiet. Man orientierte sich dabei entweder am ganzen Ensemble und nahm die verzierten Säulenschäfte und die Kapitellformen auf, oder man übernahm einzelne Kapitellformen. Die Ausrichtung nach dem bauplastischen Gesamteindruck von Königslutter vermitteln beispielsweise der Kapitelsaal von St. Ägidien in Braunschweig (ab 1180, Abb. 121, 122),
- die Krypten von Riechenberg und Konradsburg (1150/70), das Refektorium in Ilsenburg (zweite Hälfte 12. Jh.). In Konradsburg (Abb. 207),

- der Stiftung eines entfernten Parteigängers Lothars III., ruhen schwere Kreuzgewölbe im Wechsel auf Pfeilern mit Ecksäulen und Säulen mit ornamentierten Schäften. Die mit skulptiertem Block und ornamentiertem Kämpfer versehenen Kapitelle erinnern, zumindest im Aufbau, an die Vorbilder im Kreuzgang von Königslutter. Ganz ähnlich tragen im Ilsenburger Refektorium kannelierte Säulenschäfte Palmetten- und korinthisierende Kapitelle in verschiedenen Variationen nach Königslutterer Vorbild (Abb. 270).

- Auch sind ecksäulenbesetzte Pfeilerkanten in Ilsenburg am östlichen Kreuzgangflügel zu finden. In beiden Fällen spielte vermutlich die antisalische und auf das ottonische Sachsen konzentrierte Tradition der beiden Klöster eine entscheidende Rolle bei dem - wenn auch spät erfolgten - Rückgriff auf Königslutterer Bauplastik. Die heute nur noch vereinzelt erhaltenen Kapitell- oder Schaftfragmente in Querfurt (Säulen aus Kloster Eilwardsdorf (Marienzell), nach 1150), Huysburg (Bibliothek um 1170) oder Walbeck (Palmettenringbandkapitell 1170/80) belegen auch dort Einflüsse des von Königslutter ausgehenden Ornamentreichtums, der noch bis ins 13. Jahrhundert (Wechselburg, Abb. 267

- und Freiberg, Goldene Pforte) hinein nachwirkt.
- Desgleichen fand die Außenbaugliederung von Königslutter eine rege Nachfolge, beispielsweise in der Etagenbildung der Ostapsis der Wunstorfer Stiftskirche und der ebenfalls in zwei Register gegliederten, fast manieristisch verspielten Ostapsis von Goslar-Neuwerk. In beiden Bauten sind auch fein ausgearbeitete Ecksäulen an verschiedenen Stellen der Außenbaugliederung eingesetzt (Abb. 271, 272).
- Was die Rezeption der Königslutterer Grundrißkonzeption betrifft, ist keine auffällige Nachfolge zu beobachten. Die in Königslutter zwischen Sanktuarium und Nebenchören verbindende Säulenstellung wird von einer Konstruktion aus Schrankenmauern mit Säulenarkatur abgelöst (Petersberg, Lippoldsberg, Gehrden). Vorherrschend in der sächsischen Architektur der zweiten Hälfte des 12. Jahrhunderts wird die dreischiffige Querhausbasilika
- ____
- 268
- mit Haupt- und Nebenapsiden (Braunschweiger Dom, Hecklingen, Wunstorf).
- Daß die von Lothar für seine Kaisergrablege gewählte Grundrißform, als seltene Mischung reformmonastischer und imperialer Vorbilder, nicht im selben Maße wie die Bauplastik rezipiert wurde, ist nicht nur architekturgeschichtlich zu erklären. Auch die politische Situation im Reich hatte sich verändert, und die Wogen zwischen Kirche und Kaiser, zwischen reformkirchlichem und imperialem Anspruch, hatten sich geglättet. Diese beiden Seiten gleichermaßen in der Reichsarchitektur zu repräsentieren, wie es der Baukunst Lothars III. gelungen war, galt nicht mehr als Herausforderung. Auch hatte die weitgehende Einigkeit zwischen Reich und Kirche die Notwendigkeit verdrängt, mit der Italienrezeption den römischen Kaisergedanken und mit monastischer Architektur den Reformgedanken in der Kunst und Architektur Sachsens zu behaupten. Es wurde in Sachsen keine Reichsgeschichte mehr geschrieben, sondern eine nicht minder bedeutende Regional- und Bistumsgeschichte.
- Daß Königslutter aber trotz dieser in der Folge fehlenden ideologischen Basis in Sachsen stilbildend wurde, selbst noch als nach Konrad III. mit Friedrich I. bereits der zweite staufische Herrscher das sächsische Königtum abgelöst hatte, liegt nicht nur an der herausragenden Qualität oder an der prominenten Stellung der letzten sächsischen Kaisergrablege. Nach dem Dynastiewechsel von der sächsischen Herrschaft Lothars III. zu den Staufern hatten sich die Kräfteverhältnisse zugunsten einer gestärkten Herzogsgewalt verschoben, und Lothars Enkel Heinrich der Löwe bestimmte Politik und Kunstgeschehen in Sachsen bis ins frühe 13. Jahrhundert hinein. Auch er muß neben den Parteigängern Lothars als eine wichtige Figur für die intensive Königslutter-Rezeption erwähnt werden. Allerdings sollte sein Anteil am Fortleben der Baukunst Lothars III. nicht überschätzt werden, denn in gleichem Maße läutete er auch deren Ende ein. Hierzu seien noch einige kritische Abschlußbemerkungen erlaubt.
- Heinrich der Löwe galt in vielen Bereichen als Innovator. Als sächsischer und bayerischer Herzog behauptete er sich zunächst erfolgreich gegen das staufische Kaisertum, intensivierte die Missionspolitik im Ostseeraum, verfolgte eine planmäßige Städtepolitik in Sachsen und tat sich besonders als Förderer von Wissenschaft und Künsten am heimischen Hof in Braunschweig hervor 725. Nur in einem Punkt war Heinrich Traditionalist.
- ____
- 725 Um nicht allzu weit auszuholen und von der Forschung bisher Zusammengetragenes zu wiederholen, sei hier auf die zahlreichen Beiträge in Luckhardt/Niehoff 1995 verwiesen, die den Stand der Kenntnisse zu Politik und Kunst Heinrichs des Löwen auf der Basis älterer Literatur wesentlich erweitert haben. Vgl. besonders die Beiträge von E. Schubert, M. Kintzinger, V. Mertens, F. Niehoff, L. v. Wilckens, U. Mende, R. Suckale und B. Klössel.
- ____
- 269
- Bei der Legitimation seines dynastischen Selbstverständnisses legte er großen Wert auf seine kaiserliche Abstammung, die väterlicherseits auf Kaiser Lothar III. zurückging. Man denke nur an das Krönungsbild im Heinrichs-Evangeliar, den Ausbau der Braunschweiger Pfalz nach Goslarer Vorbild oder an den Dombau St. Blasius mit Grablege nach dem Vorbild von Königslutter, womit Heinrich seine Abstammung und seinen Herrschaftsanspruch weit über seinen herzöglichen Stand hinaus erhöhte. Gerade die Braunschweiger Familiengrablege war als Teil seines sächsischen Herrschaftszentrums eine ideale Bühne, um der politischen Öffentlichkeit den brunonisch-sächsischen Ursprung zu vermitteln. Nichts lag also näher, als die Stiftskirche von Königslutter zum historischen wie baugeschichtlichen Vorbild zu wählen.
- Von dort stammen neben den Anregungen für Gliederungs- und Wölbsystem vor allem der spezielle dynastische Anspruch des Bauwerks als Herrschergrablege. Doch so unbestritten die architektonischen Voraussetzungen für Braunschweig in Königslutter zu finden sind, so groß sind m. E. auch die Unterschiede beider Bauwerke: Wo in Königslutter ein System von Diensten, Schild- und Gurtbögen die Gewölbestruktur bildet, kann die Braunschweiger Wölbkonstruktion, zumindest im Langhaus, auf diese „Hilfsmittel“ verzichten. Eine geschlossene Binnengliederung, die ohne Schild- und Gurtbögen und damit ohne stützende Dienste auskommt, bestimmt das Raumkontinuum von Westen bis in den Domchor hinein (Abb. 274).

- Auch wurden markante Merkmale aus dem Bereich reformmonastischer Vorbildarchitekturen, wie der Verzicht auf eine Krypta und die Anlage von doppeljochigen Nebenchören, nicht aufgegriffen. Zugleich fehlen dem Außenbau in Braunschweig (Abb. 273)

- die Etagengliederung der Hauptapsis und die aufwendige ornamentale Gestaltung der Lothargrablege. Einige konkrete Zitate Königslutters hingegen finden sich im Inneren. Die Struktur der Langhauspfeiler, an jeder Kante mit einer Ecksäule versehen, führt in konsequenter Weise die Kantengliederung des Königslutterer Ostbaus weiter (Abb. 274).

- Gleichzeitig erreicht die Ecksäule durch die vollständige Entwertung ihrer statischen Funktion ein Höchstmaß an dekorativem Charakter und bildet den Übergang zu den abgeschrägten Pfeilerecklösungen des frühen 13. Jahrhunderts. Nur die Sockel der Langhauspfeiler wiederholen - als einziges Detail unmodifiziert - die Struktur des Königslutterer Apsisprofils aus attischer Basis mit doppeltem Leistenabschluß (Abb. 276),

- ein wie es scheint exklusives Detail
- ____
- 270
- der Kaisergrablege, das an nur wenigen Beispielen in Sachsen zu beobachten war (Bursfelde, Schöningen, Petersberg/Halle) 726.
- Den Dombau Heinrichs des Löwen bestimmen also neben direkten Königslutterzitaten auch formale Abwandlungen seines Vorbildes, und Heinrich ist keineswegs derart ehrfürchtig mit dem Vorbild umgegangen, wie es ein Großteil der lotharischen Parteigänger getan hatte, die, dem Original weithin treu bleibend, einzelne Elemente von Königslutter übernommen hatten. Sie waren es, die durch gezielte Königslutterzitate auch noch um 1170/80 die eigentliche Blüte der lotharischen Baukunst in Sachsen gewährleisteten. Mit den Anfängen Heinrichs des Löwen schien die Lothar-Baukunst große Teile ihrer Strahlkraft, Eigendynamik und Dominanz zu verlieren, und der Kaiserenkel hatte nicht im gleichen Maße an ihr festgehalten wie die lotharischen Parteigänger. Damit war es letztlich der Kaiserenkel selbst, der sich mit seiner Braunschweiger Grablege zuerst von der Baukunst Lothars III. in Sachsen abwendete. Er hatte zwar die „Idee Königslutter“ als Repräsentationsarchitektur übernommen, für die „Form Königslutter“ aber eine eigene moderne Neuformulierung gefunden. Gleichzeitig zeigte das relativ lange Nachleben der Lothar-Baukunst in Sachsen, selbst in eine Zeit hinein, als Königslutter „architektonisch kein führendes Gebäude mehr war“ 727, daß die Lothar-Baukunst ihrerseits eine starke und ausgewogene Kombination aus Idee und Form war.
- Die dritte bedeutende Italienrezeption auf sächsischem Boden war, nach den zwei großen Wellen italienischer Kunst in Sachsen unter Otto dem Großen (Magdeburg) und zu Beginn des 12. Jahrhunderts (Quedlinburg), wieder eine genuin kaiserliche Sache gewesen, die zugleich die letzte maßstabsetzende Kaiserbaukunst in Deutschland war. Sie bezog sich dabei zu einem nicht geringen Teil auf die genannten Vorstufen (Ottonen, Byzanzrezeption), da das ottonische Sakralkönigtum für Lothar ein wichtiger Legitimationsfaktor war. In weitaus größerem Maße schuf die lotharische Kaiserbaukunst eine eigene und neue Architektur- und Bildsprache, die als eine Synthese aus Elementen der traditionellen kaiserlichen Repräsentationskunst, der gregorianischen Reformkunst und regionalen Gewohnheiten zu beschreiben ist.
- Zu den eingangs gestellten Fragenkomplexen nach den künstlerischen, politischen und vor allem ideologischen Wurzeln der Antiken- und Italienbezüge in der Baukunst Lothars III., den daraus zu ziehenden Rückschlüssen auf eine bewußt inszenierte Herrschaftsrepräsentation
- ____
- 726 Den Versuch, das attische Profil mit doppelter Abschlußplatte in den Backsteinbau zu übertragen, zeigt das Sockelprofil der Ostteile der Klosterkirche in Jerichow.
- 727 Pagel 1998, S. 223.
- ____
- 271
- und deren Wirkung auf die Parteigänger und ihre Bauten, sind einige Antworten versucht worden. Natürlich bleibt bei der angewandten These vom Sinngehalt bestimmter Bau- und Ornamentformen das Problem vom Wahrheitsgehalt, von der Beweisbarkeit, bestehen. Daher sollte diese Arbeit, auch mit den kleinen Fragezeichen am Ende einer jeden ikonologischen Auseinandersetzung, als ein Beitrag zur Debatte vom Quellenwert mittelalterlicher Architektur und Bildkunst verstanden werden.
- ____
- 272
- VI. Abkürzungen
- AmrhKG Archiv für mittelrheinische Kirchengeschichte
- BLDL Blätter für deutsche Landesgeschichte
- BraunschwJb Braunschweigisches Jahrbuch
- DA Deutsches Archiv für Erforschung des Mittelalters
- DpflHSch Denkmalpflege und Heimatschutz
- GWU Geschichte in Wissenschaft und Unterricht
- HistJb Historisches Jahrbuch der Görresgesellschaft
- JbGMittel-Ostdtld Jahrbuch für die Geschichte Mittel- und Ostdeutschlands
- JbSe Heimatkundliches Jahrbuch für den Kreis Segeberg
- JGNKG Jahrbuch der Gesellschaft für niedersächsische Kirchengeschichte
- MarbJb Marburger Jahrbuch für Kunstwissenschaft
- MVAGA Mitteilungen des Vereins für Anhaltinische Geschichte und Altertumskunde
- NdtBeitrKG Niederdeutsche Beiträge zur Kunstgeschichte
- NiedJbLG Niedersächsisches Jahrbuch für Landesgeschichte
- QFIAB Quellen und Forschungen aus italienischen Archiven und Bibliotheken
- RheinVjbl Rheinische Vierteljahresblätter. Mitteilungen des Instituts für geschichtliche Landeskunde der Rheinlande an der Universität Bonn
- Südniedersachsen Südniedersachsen. Zeitschrift für Heimatpflege und Kultur
- Stud Greg Studi Gregoriani
- TSZGK Thüringisch-sächsische Zeitschrift für Geschichte und Kunst
- ZAMA Zeitschrift für Archäologie des Mittelalters
- ZbayerLdG Zeitschrift für Bayerische Landesgeschichte
- ZBw Zeitschrift für Bauwesen
- ZGA Zeitschrift für Geschichte der Architektur
- ZGSHG Zeitschrift der Gesellschaft für Schleswig-Holsteinische Geschichte
- ZKG Zeitschrift für Kunstgeschichte
- ZRGGA Zeitschrift der Savigny-Stiftung für Rechtsgeschichte, Germanistische Abteilung
- ZRGKA Zeitschrift der Savigny-Stiftung für Rechtsgeschichte, Kanonistische Abteilung
- ZSAK Zeitschrift für schweizerische Archäologie und Kunstgeschichte
- ZVKgS Zeitschrift des Vereins für Kirchengeschichte der Provinz Sachsen
- ____
- 273
- VII. Lexika
- NDB Neue Deutsche Biographie
- LCI Lexikon der christlichen Ikonographie
- LMa Lexikon des Mittelalters
- LthK Lexikon für Theologie und Kirche
- VIII. Quellen
- Abt Suger
- Abt Suger: Vie de Louis le Gros, Suger: Oevre complètes, hrsg. von Albert Lecoy de la Marche, Hildesheim/N.Y. 1979; Nachdruck der Ausgabe Paris 1867
- Annalisa Saxo
- Der sächsische Annalist, hrsg. von Georg Waitz, Hannover 1844, unveränderter Nachdruck Stuttgart/N.Y. 1963 (MGH SS 6; S. 542-777); dt. Übersetzung nach Eduard Winkelmann, in Neubearbeitung von Wilhelm Wattenbach, Leipzig 31941
- Annales Palidenses
- Annales Palidenses auctore Theodoro monacho, hrsg von Georg Heinrich Pertz, Hannover 1859, unveränderter Nachdruck Stuttgart/N.Y. 1963 (MGH SS 16. S. 48-98); dt. Übersetzung nach Eduard Winkelmann, in Neubearbeitung von Wilhelm Wattenbach, Leipzig 31941
- Annales s. Disibodi.
- Annales Sancti Disibodi. (anno 891-1200), hrsg. von Georg Waitz, Hannover 1871, unveränderter Nachdruck Stuttgart/N.Y. 1963 SS 17, S. 4-30)
- Annales Steterburgenses
- Annales Steterburgenses auctore Gerhardo praeposito, hrsg. von Georg Heinrich Pertz. Hannover 1859, unveränderter Nachdruck Stuttgart/N.Y. 1963 (MGH SS 16, S. 197-231); dt. Übersetzung nach Eduard Winkelmann, in Neubearbeitung von Wilhelm Wattenbach, Leipzig 31941
- Can. Wissegrad. Cont. Cosmae
- Canonici Wissegradensis continuatio (anno 1126-1142)‚ hrsg von Rudolf Köpke, Hannover 1851, unveränderter Nachdruck Stuttgart/N.Y. 1963 (MGH SS 9, S. 132-148)
- ____
- 274
- Chronicon Montis Sereni
- Chronicon Montis Sereni (anno 1124-1225), hrsg. von Ernst Ehrenfeuchter, Hannover 1874, unveränderter Nachdruck Stuttgart/N.Y. 1963 (MGH SS 23, S. 130-226)
- Cronica S. Petri Erfordensis
- Cronica S. Petri Erfordensis moderna (anno 1136-1140), hrsg. von Oswald Holder-Egger, Hannover 1896, unveränderter Nachdruck Stuttgart/N.Y. 1964 (MGH SS 30,1, S. 335-457)
- Gesta Frederici
- Gesta Frederici: Bischof Otto von Freising und Rahewin, Die Taten Friedrichs oder richtiger Cronica, übersetzt von Adolf Schmidt, hrsg. von Franz-Josef Schmale (Ausgewählte Quellen zur deutschen Geschichte des Mittelalters 17), Darmstadt 42000
- Helmold Chronica Slavorum
- Helmoldi Presbyteri Bozoviensis: Helmold von Bosau, Slawenchronik, neu übertragen und erläutert von Heinz Stoob (Ausgewählte Quellen zur deutschen Geschichte des Mittelalters 19), Darmstadt 1963
- Otto von Freising Chronica
- Ottonis Episcopi Frisingensis: Otto Bischof von Freising, Chronik oder die Geschichte der zwei Staaten, übersetzt von Adolf Schmidt, hrsg. von Walther Lammers (Ausgewählte Quellen zur deutschen Geschichte des Mittelalters 16), Darmstadt 1961
- Widukind von Corvey
- Widukind von Corvey: Rerum gestarum saxonicarum, hrsg. von Paul Hirsch und Hans-Eberhard Lohmann, Hannover 1935 (MGH SS rer. Germ. 60); dt. Übersetzung nach Paul Hirsch Leipzig 51931
- IX. Regesten
- Reg. Imp. Loth.
- Regesta Imperii IV,1: Die Regesten des Kaiserreiches unter Lothar III. und Konrad III.‚ Teil 1: Lothar III 1125 (1075) - 1137, hrsg. von Johann Friedrich Böhmer (Kommission für die Neubearbeitung der Regesta Imperii bei der Österreichischen Akademie der Wissenschaften und der Deutschen Kommission für die Bearbeitung der Regesta Imperii bei der Akademie der Wissenschaften und der Literatur zu Mainz, Neubearbeitung von Wolfgang Petke, Köln/Weimar/Wien 1994
- ____
- 275
- X. Inventare
- Georg Dehios: Handbuch der Deutschen Kunstdenkmäler:
- Thüringen, bearbeitet von Stephanie Eißing, Franz Jäger (u.a.), hrsg. in Zusammenarbeit mit dem Thüringischen Landesamt für Denkmalpflege, München/Berlin 1998
- Bayern II: Niederbayern,
- bearbeitet von Michael Brix mit Beiträgen von Franz Bischoff, Gerhard Hackl und Volker Liedke, München/Berlin 1988
- Bayern V: Regensburg und die Oberpfalz, bearbeitet von Jolanda Drexler, Achim Hubel unter Mitarbeit von Astrid Debold-Kritter u.a.‚ München/Berlin 1991
- Bezirk Halle, bearbeitet von der Abteilung Forschung des Instituts für Denkmalpflege, München/Berlin 1976
- Bremen/Niedersachsen, bearbeitet von Gerd Weiß unter Mitarbeit von Karl Eichwalder, Peter Hahn, Hans Christoph Hoffmann, Reinhard Karrenbrock und Roswitha Poppe, München/Berlin 1992
- Rheinland-Pfalz/Saarland, bearbeitet von Hans Caspary, Wolfgang Götz, Ekkart Klinge, überarbeitet und erweitert von Hans Caspary, Peter Karn, Martin Klewitz, München/Berlin 1984
- Sachsen II: Regierungsbezirke Leipzig und Chemnitz, bearbeitet von Barbara Bechter, Wiebke Fastenrath, Heinrich Magirius (u.a.), München/Berlin 1998
- Sachsen-Anhalt I: Der Bezirk Magdeburg, bearbeitet von der Abteilung Forschung des Instituts für Denkmalpflege, unveränderter Nachdruck der Ausgabe von 1974, München/Berlin 1990
- Sachsen-Anhalt II: Regierungsbezirke Dessau und Halle, bearbeitet von Ute Bednarz, Folkhard Cremer, Hans-Joachim Krause (u.a.), München/Berlin 1999
- Nordrhein-Westfalen II: Westfalen, bearbeitet von Dorothea Kluge und Wilfried Hansmann München/Berlin 1977
- ____
- 276
- Denkmälerinventare
- Inventar Bayern (1908)
- Die Kunstdenkmäler von Bayern: Oberpfalz und Regensburg, Bezirksamt Tirschenreuth, bearbeitet von Felix Mader (Heft 14), München 1908
- Inventar Braunschweig (Kreis Helmstedt) 1896
- Die Bau- und Kunstdenkmäler des Herzogtums Braunschweig: Kreis Helmstedt (Band 1), bearbeitet von Paul Jonas Meier, Wolfenbüttel 1896
- Inventar Braunschweig (Holzminden) 1907
- Bau- und Kunstdenkmäler des Herzogtums Braunschweig: Kreis Holzminden (Band 4), bearbeitet von Karl Steinacker, Wolfenbüttel 1907
- Inventar Lübeck 1920
- Die Bau- und Kunstdenkmäler der Freien und Hansestadt Lübeck: Kirche zu Alt-Lübeck, Dom, Jakobikirche, Ägidienkirche (Band 3), bearbeitet von Johannes Baltzer und F. Bruns, Lübeck 1920.
- Inventar Magdeburg 1961
- Die Kunstdenkmale im Bezirk Magdeburg: Kreis Haldensleben, bearbeitet von Marie-Luise Harkens (Heft 1), Fortsetzung der Kunstdenkmale der Provinz Sachsen, Leipzig 1961
- Inventar Mainz 1919
- Die Kunstdenkmäler der Stadt und des Kreises Mainz, Band II: Die kirchlichen Kunstdenkmäler der Stadt Mainz, Teil I: Der Dom zu Mainz, bearbeitet von Rudolf Kautzsch und Ernst Neeb, Darmstadt 1919
- Inventar Pfalz (Speyer) 1934
- Die Kunstdenkmäler von Bayern, Die Kunstdenkmäler der Pfalz: Stadt und Bezirksamt Speyer (Band 3), bearbeitet von Hermann Röttger, München 1934
- Inventar Rheinprovinz 1938
- Die Kunstdenkmäler der Rheinprovinz: Kreis Ahrweiler (Band 17), bearbeitet von Joachim Gerhardt (u.a.)‚ Düsseldorf 1938
- ____
- 277
- Inventar Sachsen (Kr. Langensalza) 1879
- Beschreibende Darstellung der älteren Bau- und Kunstdenkmäler der Provinz Sachsen und angrenzender Gebiete: Kreis Langensalza (Heft 2), bearbeitet von Gustav Sommer, Heinrich Otte, Halle 1879
- Inventar Sachsen 1883
- Beschreibende Darstellung der älteren Bau- und Kunstdenkmäler in der Provinz Sachsen und angrenzender Gebiete: Die Grafschaft Werningerode (Heft 7), bearbeitet von Gustav Sommer und Eduard Jacobs, Halle 1883
- Inventar Sachsen 1886
- Beschreibende Darstellung der älteren Bau- und Kunstdenkmäler des Königreichs Sachsen: Chemnitz (Heft 7), bearbeitet von Richard Steche, Dresden 1886
- Inventar Sachsen (Mansfelder Gebirgskreis) 1893
- Bau- und Kunstdenkmäler der Provinz Sachsen: Der Mansfelder Gebirgskreis (Heft 18), bearbeitet von Hermann Grössler und Adolf Brinkmann, Halle 1893
- Inventar Sachsen (Mansfelder Seekreis) 1895
- Bau- und Kunstdenkmäler der Provinz Sachsen: Der Mansfelder Seekreis (Heft 19), bearbeitet von Hermann Grössler und Adolf Brinkmann, Halle 1895
- Inventar Sachsen 1902
- Beschreibende Darstellung der älteren Bau- und Kunstdenkmäler der Provinz Sachsen: Die Kreise Halberstadt Land und Stadt (Heft 23), bearbeitet von Oskar Doering, Halle 1902
- Inventar Sachsen 1910/11
- Bau- und Kunstdenkmäler der Provinz Sachsen: Kreis Wolmirstedt (Heft 39), bearbeitet von Heinrich Bergner, Halle 1911
- Inventar Sachsen 1922
- Beschreibende Darstellung der älteren Bau- und Kunstdenkmäler der Provinz Sachsen: Kreis Stadt Quedlinburg (Heft 33), bearbeitet von Adolf Brinkmann
- Inventar Sachsen 1929
- Die Kunstdenkmale der Provinz Sachsen: Die Stadt Erfurt (N.F.1)‚ bearbeitet von Karl Becker, Margarethe Brückner, Ernst Haetge, Lisa Schürenberg, Burg 1929
- ____
- 278
- Inventar Thüringen 1888
- Bau- und Kunstdenkmäler Thüringens: Großherzogtum Sachsen-Weimar-Eisenach Amtsgerichtsbezirk Jena, bearbeitet von Paul Lehfeld, Jena 1888
- Inventar Thüringen 1891
- Bau- und Kunstdenkmäler Thüringens: Herzogthum Sachsen-Coburg und Gotha Amtsgerichtsbezirk Tonna (Heft 10) und Großherzogtum Sachsen-Weimar-Eisenach, Amtsgerichtsbezirk Allstedt (Heft 13), bearbeitet von Paul Lehfeld, Jena 1891
- XI. Untersuchungen und Darstellungen
- Althoff 1997
- Althoff, Gerd: Spielregeln der Politik im Mittelalter. Kommunikation in Frieden und Fehde, Darmstadt 1997
- Althoff/Schubert 1998
- Althoff, Gerd; Schubert, Ernst: Herrschaftsrepräsentation im ottonischen Sachsen (Vorträge und Forschungen 46), Sigmaringen 1998
- Andermann 1996
- Andermannn, Ulrich: Die unsittlichen und disziplinlosen Kanonissen. Ein Topos und seine Hintergründe, aufgezeigt an Beispielen sächsischer Frauenstifte (11.-13. Jh.), in: Westfälische Zeitschrift 146, 1996, S. 39-63
- Assing 1995
- Assing, Helmut: Albrecht der Bär, Markgraf von Brandenburg (1150/57-1170), in: Holtz/Huschner 1995, S. 221-233
- Aufgebauer 1994
- Aufgebauer, Peter: Der tote König. Grablege und Bestattungen mittelalterlicher Herrscher (10. bis 12. Jahrhundert), in: Geschichte in Wissenschaft und Unterricht 45, 1994, S. 680-693
- Bader 1958
- Bader, Walter: Das im Jahre 1129 gewölbte Langhausmittelschiff von Hochelten in: Bonner Jahrbuch 158, 1958, S. 15-28
- ____
- 279
- Badstüber 1980
- Badstübner, Ernst: Kirchen der Mönche: Die Baukunst der Reformorden im Mittelalter, Berlin/Wien 1980
- Bandmann 1951
- Bandmann, Günter: Mittelalterliche Architektur als Bedeutungsträger, Berlin 1951
- Bauch 1976
- Bauch, Kurt: Das mittelalterliche Grabbild - figürliche Grabmäler des 11. bis 15. Jahrhunderts in Europa, Berlin [u.a.] 1976
- Beck/Hengevoss-Dürkop 1994
- Beck, Herbert; Hengevoss-Dürkop, Kerstin (Hg.): Studien zur Geschichte der europäischen Skulptur im 12./13. Jahrhundert, 2 Bände, Frankfurt 1994
- Benz 1975
- Benz, Karl Josef: Untersuchungen zur politischen Bedeutung der Kirchweihe unter Teilnahme der deutschen Herrscher im Mittelalter, Kallmütz 1975
- Berger 1994
- Berger, Rolf: Die Peterskirche auf dem Petersberg zu Erfurt. Eine Studie zur Hirsauer Baukunst (Beiträge zur Kunstgeschichte 10), Bonn 1994
- Berger 1995/1997
- Berger, Rolf: Hirsauer Baukunst - ihre Grundlagen, Geschichte und Bedeutung (Beiträge zur Kunstgeschichte 12), Band I (1995), Band II/1, II/2, Bonn 1997
- Bernhardi 1879
- Bernhardi, Wilhelm: Lothar von Supplinburg (Jahrbücher der deutschen Geschichte 15), Leipzig 1879 (ND Berlin 1975)
- Einfügung:
- Bernheim 1874
- Bernheim, Ernst: Lothar III und das Wormser Concordat, Strassburg [u.a.] Karl J. Trübner 1874
- Berndt 1982
- Berndt, Friedrich: Die Stiftskirche und spätere Ordenskirche der Tempelritter auf der Stammburg Kaiser Lothars von Süpplingenburg, in: Braunschweigisches Jahrbuch 63, 1982, S. 31-51
- Beumann 1938
- Beumann, Helmut: Zur Frühgeschichte des Klosters Hillersleben, in: Sachsen und Anhalt 14, 1938, S. 82-130
- ____
- 280
- Beumann 1948
- Beumann, Helmut: Die sakrale Legitimierung des Herrschers im Denken der ottonischen Zeit, in: Zeitschrift für Rechtsgeschichte, Germanistische Abteilung 66, 1948, S. 1-45
- Beumann 1968
- Beumann, Helmut: Zur Frühgeschichte des Klosters Hecklingen, in: Zur Geschichte und Volkskunde Mitteldeutschlands, Festschrift für Friedrich von Zahn I, 1968, S. 239-293
- Binding 1975
- Bindung, Günther: Das ehemalige romanische Zisterzienserkloster Altenberg, Köln 1975
- Binding 1996
- Binding, Günther. Deutsche Königspfalzen. Von Karl dem Großen bis Friedrich II. (765-1240), Darmstadt 1996
- Binding/Untermann 1985
- Binding, Günther; Untermann, Matthias: Kleine Geschichte der mittelalterlichen Ordensbaukunst in Deutschland, Darmstadt 1985
- Binding/Janssen/Jungklaaß 1970
- Binding, Günther; Janssen, Walter; Jungklaaß, F. K.: Burg und Stift Elten am Niederrhein, Archäologische Untersuchungen der Jahre 1964/65 (Rheinische Ausgrabungen 8) Düsseldorf 1970
- Bock 1958
- Bock, Emil: Romanische Baukunst und Plastik in Württemberg, Stuttgart 1958
- Boeck 1988
- Boeck, Urs: Stiftskirche Wunstorf (=Große Baudenkmäler 249), München/Berlin 21988
- Böker 1992
- Böker, Hans Josef: Bischof Sigward und der Mindener Dombau im 12. Jahrhundert, in: Niederdeutsche Beiträge zur Kunstgeschichte 31, 1992, S. 23-37
- Böker 1995
- Böker, Hans Josef: Idensen. Architektur und Ausmalungsprogramm einer romanischen Hofkapelle, Berlin 1995
- ____
- 281
- Böttger-Bolte 1990
- Böttger-Bolte, Gertrud: Die Lorenzkirche zu Schöningen (=Große Baudenkmäler 406), München/Berlin 1990
- Bogumil 1972
- Bogumil, Karlotto: Das Bistum Halberstadt im 12. Jahrhundert. Studien zur Reichs- und Reformpolitik des Bischofs Reinhard und zum Wirken der Augustiner-Chorherren (Mitteldeutsche Forschungen 69), Köln/Wien 1972
- Borchers 1955
- Borchers, Günther. Die Kirche des ehemaligen Stiftes Riechenberg (Beiträge zur Geschichte der Stadt Goslar 15), Goslar 1955
- Borgolte 1976
- Borgolte, Claudia: Studien zur Klosterreform in Sachsen im Hochmittelalter, Phil. Diss. Braunschweig 1976
- Bornscheuer 1968
- Bornscheuer, Lothar: Miseriae regum. Untersuchungen zum Krisen- und Todesgedanken in den herrschaftstheologischen Vorstellungen der ottonisch-salischen Zeit (Arbeiten zur Frühmittelalterforschung 4), Berlin 1968
- Brinckmann 1927
- Brinckmann, A.: Die Ballenstedter Klosterkirche, das Vorbild für die Conradsburger, in: Denkmalpflege und Heimatschutz 29, 1927, S. 165-169
- Einfügung:
- Büntig 1584
- Büntig, M. Heinricum: Braunschweigische und Lüneburgische Chronica Teil 2 Seiten 11-12, Gedruckt 1584 Magdeburg bey Paul Donat, in Verlegung Ambrosij Kirchners.
- Für Interessierte ist die gesamte Veröffentlichung auch als Internetressource unter folgendem LINK verfügbar: http://www.digibib.tu-bs.de/?docid=00024537
- Byzanz und das abendländische Herrschertum 1977
- Byzanz und das abendländische Herrschertum. Ausgewählte Aufsätze von Josef Deér hrsg. von Peter Classen (Vorträge und Forschungen 21), Sigmaringen 1977
- Caspar 1920
- Caspar, Erich (Hg.): Das Register (Registrum) Gregors VII., 2 Bände, Berlin 1920/1923
- Caspers 1985
- Caspers, Herbert: Amelungsborn. Die baugeschichtliche Entwicklung der zisterziensischen Klosterkirche unter besonderer Berücksichtigung des romanischen Chores, Ing. Diss. Hannover 1985
- Chrambach 1987
- Chrambach, Eva: Die Traditionen des Klosters Formbach, Altendorf 1987
- ____
- 282
- Cordfunke 1984 Cordfunke, Erich Heinz Pieter: Opgravingen in Egmond. De abdij van Egmond in historisch-archeologisch perspectief, Zutphen 1984
- Crone 1982
- Crone, Marie-Luise: Untersuchungen zur Reichskirchenpolitik Lothars III. (1125-1137). Zwischen reichskirchlicher Tradition und Reformkurie, Frankfurt [u.a.] 1982
- Deichmann 1967
- Deichmann, Friedrich Wilhelm: Repertorium der christlich-antiken Sarkophage, Band 1: Rom und Ostia, bearbeitet von Giuseppe Bovini und Hugo Brandenburg, Wiesbaden 1967
- Denkmalpflege in Sachsen 1997
- Denkmalpflege in Sachsen 1894-1994, hrsg. vom Landesamt für Denkmalpflege Sachsen, Heinrich Magirius; Angelica Dülberg (Red), Band 1, Weimar 1997
- Der Braunschweiger Burglöwe 1985
- Der Braunschweiger Burglöwe, Bericht über ein wissenschaftliches Symposien in Braunschweig 12.-15.10.1983 (Schriftenreihe der Kommission für Niedersächsische Bau- und Kunstgeschichte bei der Braunschweigischen Wissenschaftlichen Gesellschaft), hrsg. v. M. Gosebruch, Göttingen 1985
- Die Salier und das Reich 1991
- Die Salier und das Reich, Publikationen zur Ausstellung „Die Salier und das Reich“ veranstaltet vom Land Rheinland-Pfalz in Speyer 1991, Band 1: Salier, Adel und Reichsverfassung, hrsg. von Stefan Weinfurter, Sigmaringen 1991
- Dorn 1978
- Dorn, Reinhard; Mittelalterliche Kirchen in Braunschweig, Hameln 1978
- Drechsler 1991
- Drechsler, Heike: Die Krone der Herrscherin. Das Herrschaftszeichen im literarischen und biblischen Symbolsystem des Früh- und Hochmittelalters (751-1254), mit einem Katalog der erhaltenen Kronen aus dem fränkisch-deutschen Reichsverband, Phil. Diss. Heidelberg 1994
- ____
- 283
- Ehlers 1977
- Ehlers, Joachim: Gut und Böse in der hochmittelalterlichen Historiographie, in: Die Mächte des Guten und Bösen. Vorstellungen im XII. und XIII. Jahrhundert über ihr Wirken in der Heilsgeschichte (Miscellanea Mediaevalia 11), Berlin/New York 1977, S. 27-71.
- Ehlers 1996
- Ehlers, Caspar: Metropolis Germaniae. Studien zur Bedeutung Speyers für das Königtum (751-1250), Göttingen 1996
- Eichmann 1942
- Eichmann, Eduard: Die Kaiserkrönung im Abendland. Ein Beitrag zur Geistesgeschichte des Mittelalters mit besonderer Berücksichtigung des kirchlichen Rechts, der Liturgie und der Kirchenpolitik, 2 Bände, Würzburg 1942
- Eichwede 1904 Eichwede, Ferdinand: Beiträge zur Baugeschichte der Kirche des kaiserlichen Stiftes zu Königslutter, Hannover 1904
- Engel 1991
- Engel, Hartmut: Die Katlenburg (=Große Baudenkmäler 191) München/Berlin 31991
- Fenske 1977
- Fenske, Lutz: Adelsopposition und kirchliche Reformbewegung im östlichen Sachsen. Entstehung und Wirkung des sächsischen Widerstandes gegen das salische Königtum während des Investiturstreits, Göttingen 1977
- Feste und Feiern im Mittelalter 1991
- Feste und Feiern im Mittelalter, Paderborner Symposion des Mediävistenverbandes, hrsg. von Detlef Altenburg, Jörg Jarnut, Hans-Hugo Steinhoff, Sigmaringen 1991
- Festschrift für K. G. Hugelmann 1959
- Festschrift für Karl Gottfried Hugelmann, zum 80. Geburtstag 1959, 2 Bande, hrsg. von Wilhelm Wegener, Aalen 1959
- Festschrift für W. Schlesinger 1974
- Festschrift für Walter Schlesinger: Historische Forschungen, hrsg. von Helmut Beumann, Köln [u.a.] 1974
- ____
- 284
- Festschrift für H.-J. Krause 2001
- Festschrift für Hans-Joachim Krause: „Es thun iher viel fragen“. Kunstgeschichte in Mitteldeutschland, Beitrage zur Denkmalkunde in Sachsen-Anhalt 2, Petersberg 2001
- Festschrift Mariental 1989
- Das Zisterzienserkloster Mariental bei Helmstedt 1138-1988, hrsg. vom Braunschweigischen Vereinigten Kloster- und Studienfonds, Christof Römer (Red.), München 21989
- Einfügung:
- Fink 1915
- Fink, August: Die figürliche Grabplastik in Sachsen von den Anfängen bis zur zweiten Hälfte des dreizehnten Jahrhunderts. Inaugural-Dissertation an der Friedrich-Wilhelms-Universität zu Berlin vom 24.02.1915
- Fink 2000
- Fink, Alexandra: Romanische Klosterkirchen des Heiligen Bischofs Otto von Bamberg (1102-1139): Studien zu Bauherr und Architektur, Petersberg 2001
- Fleckenstein 1983
- Fleckenstein, Josef: Die Gründung von Bursfelde und ihr geschichtlicher Ort, Göttingen 1983
- Fößel 2000
- Fößel, Amalie: Die Königin im mittelalterlichen Reich. Herrschaftsausübung, Herrschaftsrechte, Handlungsspielräume, (Mittelalter-Forschungen 4), Stuttgart 2000
- Forwick 1963
- Forwick, Friedhelm: Die staatsrechtliche Stellung der ehemaligen Grafen von Schwalenberg, Münster 1963
- Frontzek/Memmert/Möhle 1996
- Frontzek, Wolfgang; Memmert, Torsten; Möhle, Martin: Das Goslarer Kaiserhaus. Eine baugeschichtliche Untersuchung, Hildesheim [u.a.] 1996
- Frühe Kirchen in Sachsen 1994
- Frühe Kirchen in Sachsen. Ergebnisse archäologischer und baugeschichtlicher Untersuchungen (Veröffentlichungen des Landesamtes für Archäologie mit Landesamt für Vorgeschichte 23), hrsg. von Judith Oexle, Stuttgart 1994
- Fuhrmann 1978
- Fuhrmann, Horst: Deutsche Geschichte im Hohen Mittelalter. Von der Mitte des 11. bis zum Ende des 12. Jahrhunderts, Göttingen 1978
- ____
- 285
- Gädeke 1988
- Gädeke‚ Thomas: Die Architektur des Nikolaus. Seine Bauten in Königslutter und Oberitalien (Studien zur Kunstgeschichte 49), Hildesheim [u.a.] 1988
- Gaul 1932
- Gaul, Otto: Die romanische Baukunst und Bauornamentik in Sachsen, Magdeburg 1932
- Germania Benedictina 2
- Germania Benedictina, Die Benediktinerklöster Bayerns, Band 2: Bayern, bearbeitet von Josef Hemmerle, Augsburg 1970
- Germania Benedictina 6
- Germania Benedictina, Die Benediktinerklöster in Niedersachsen, Schleswig-Holstein und Bremen, Band 6: Norddeutschland, bearbeitet von Ulrich Faust, St. Ottilien 1979
- Germania Benedictina 8
- Germania Benedictina, Die Benediktinerklöster in Nordrhein-Westfalen, Band 8: Nordrhein-Westfalen, bearbeitet von Rhaban Haacke, St. Ottilien 1980
- Germania Benedictina 12
- Germania Benedictina, Die Männer- und Frauenklöster der Zisterzienser in Niedersachsen, Schleswig-Holstein und Hamburg, Band 12: Norddeutschland, bearbeitet von Ulrich Faust, St. Ottilien 1994
- Einfügung:
- Gervais 1841/1842
- Gervais, Eduard: Politische Geschichte Deutschlands unter der Regierung der Kaiser Heinrich V. und Lothar III., 1. Teil. Kaiser Heinrich V., Leipzig 1841; 2. Teil. Kaiser Lothar III., Leipzig Brockhaus 1842
- Einfügung:
- Gervais 1839
- Gervais, Eduard: Friedrich Barbarossa, Heinrich der Löwe und die teutschen Fürsten in ihren Verhältnissen zu einander. Neue Jahrbücher der Geschichte und Politik 1839, S. 321-368, S. 405-422, S. 481-542, hrsg. von Friedrich Bülau, Leipzig 1839, erster Band.
- Geuenich/Oexle 1994
- Geuenich, Dieter; Oexle, Otto Gerhard (Hg): Memoria in der Gesellschaft des Mittelalters (Veröffentlichungen des Max-Planck-Instituts für Geschichte 111), Göttingen 1994
- Geupel 1990
- Geupel, Volkmar: Archäologische Forschungen im ehemaligen Benediktiner-Kloster in Chemnitz/Karl-Marx-Stadt, in: Ausgrabungen und Funde Beiheft 19, Berlin 1990, S. 83-97
- Giese 1979
- Giese, Wolfgang: Der Stamm der Sachsen und das Reich in ottonischer und salischer Zeit: Studien zum Einfluß des Sachsenstammes auf die politische Geschichte des deutschen Reiches im 10. und 11. Jahrhundert und zu ihrer Stellung im Reichsgefüge mit einem Ausblick auf das 12. und 13. Jahrhundert, Wiesbaden 1979
- ____
- 286
- Gnekow 1994
- Gnekow, Bettina: Der Mittelalterliche Kirchenbau in Holstein 1150-1300, Münster [u.a.] 1994
- Gockel 2000
- Gockel, Michael: Die Deutschen Königspfalzen, Repertorium der Pfalzen, Königshöfe und übrigen Aufenthaltsorte der Könige im deutschen Reich des Mittelalters, hrsg. von Caspar Ehlers, Lutz Fenske, Thomas Zotz, Band 2 (Thüringen), Göttingen 2000
- Einfügung:
- Goldschmidt 1900
- Goldschmidt, Adolph: Die Stilentwicklung der romanischen Skulptur in Sachsen. Jahrbuch der preussischen Kunstsammlungen, Bd. 21, Berlin 1900
- Einfügung:
- Goldschmidt 1910
- Goldschmidt, Adolph: Die Bauornamentik in Sachsen im XII. Jahrhundert. Monatshefte für Kunstwissenschaft, III. Jg. 1910, Heft 8/9, S. 299-314
- Gosebruch 1980
- Gosebruch, Martin: Die Kunst des Nikolaus. Von Königslutter aus in den Blick genommen, auf ihre provenzalischen Wurzeln hin untersucht und im Verhältnis zur Kathedralgotik erläutert, in: Niederdeutsche Beiträge zur Kunstgeschichte 19, 1980, S. 63-124
- Gosebruch 1980 (2)
- Gosebruch, Martin: Der Braunschweiger Dom und seine Bildwerke (Die Blauen Bücher), Königstein im Taunus 1980
- Gosebruch/Gädeke 1985
- Gosebruch, Gädeke, Thomas (Hg.): Königslutter - Die Abtei Kaiser Lothars III. (Die Blauen Bücher), Königstein im Taunus 1985
- Gosebruch/Grote 1980
- Gosebruch, Martin; Grote, Hans-Henning (Hg.): Königslutter und Oberitalien. Kunst des 12. Jahrhunderts in Sachsen, Braunschweig 1980
- Gramatzki 1972
- Gramatzki, Horst: Stift Fedelsloh. Von der Gründung bis zum Erlöschen seines Konvents. Historische und baugeschichtliche Forschungen, Einbeck 1972
- Groß 1990
- Groß, Thomas: Lothar III. und die Mathildischen Güter, Frankfurt [u.a.]1990
- Grzimek 1975
- Grzimek, Waldemar: Deutsche Stuckplastik 800 bis 1300, Frankfurt [u.a] 1975
- Gundlach/Weber 1992
- Gundlach, Rolf; Weber, Hermann (Hg.): Legitimation und Funktion des Herrschers. Vom ägyptischen Pharao zum neuzeitlichen Diktator, Stuttgart 1992
- Einfügung:
- Guth 1932
- Guth, Albert: Die Stiftskirche zu Hamersleben. Diss. Phil. Fak. I. Abt. Uni Gießen vom 22.VII.1930, Bd. I der Schriften des Kreis-Heimatmuseums Oschersleben 1932.
- ____
- 287
- Haas/Pfistermeister 1985
- Haas, Walter; Pfistermeister, Ursula: Romanik in Bayern, Stuttgart 1985
- Hack 1999
- Hack, Achim Thoms: Das Empfangszeremoniell bei mittelalterlichen Papst-Kaiser-Treffen, (Forschungen zur Kaiser- und Papstgeschichte des Mittelalters 18), Köln [u.a.] 1999
- Haenchen 1998
- Haenchen, Matthias: Die mittelalterliche Baugeschichte der Goslarer Pfalzkapelle St. Ulrich, Phil. Diss. Braunschweig 1998
- Hauck 1903
- Hauck, Albert: Kirchengeschichte Deutschlands, Band 4, Leipzig 1903
- Haupt 1912
- Haupt, Richard: Die Erfindung der deutschen und nordischen Baukunst und ihre Erfinder, in: Zeitschrift für Geschichte der Architektur 5, 1912, S. 121-141
- Hechberger 1996
- Hechberger, Werner: Staufer und Welfen (1125-1190). Zur Verwendung von Theorien in der Geschichtswissenschaft (Passauer historische Forschungen 10), Köln [u.a.] 1996
- Hecht 1976/78
- Hecht, Konrad: Ein Beitrag zur Baugeschichte der Stiftskirche in Süpplingenburg, in: Niedersächsische Denkmalpflege 9, 1976-1978, S. 21-67
- Hecker 1990
- Hecker, Hans (Hg.): Der Herrscher, Leitbild und Abbild in Mittelalter und Renaissance (Studia humaniora 13), Düsseldorf, 1990
- Hemmerle 1951
- Hemmerle, Josef, Die Benediktinerkloster Bayerns (Bayerische Heimatforschung 4), München 1951
- Herdejürgen 1996
- Herdejürgen, Helga: Stadtrömische und italische Girlandensarkophage, Band 1: Die Sarkophage des ersten und zweiten Jahrhunderts, Berlin 1996
- ____
- 288
- Herklotz 1985
- Herklotz, Ingo; „Sepulcra“ e „Monumenta“ del medioevo. Studi sull`arte sepocrale in Italia, Rom 1985
- Hermann 2000
- Hermann, Oliver: Lothar III. und sein Wirkungsbereich. Räumliche Bezüge königlichen Handelns im hochmittelalterlichen Reich (1125-1137), Bochum 2000
- Heutger 1997
- Heutger, Nicolaus: Die geistlichen Ritterorden in Niedersachsen. Zum 40. Jahrestag der Reaktivierung des Templerordens in Niedersachsen (Forschungen zur niedersächsischen Ordensgeschichte 1), Hannover 1997
- Hildebrand 1986
- Hildebrand, Ruth: Herzog Lothar von Sachsen (Beiträge zur Geschichte Niedersachsens und Westfalens), Hildesheim 1986
- Hilsch 1969
- Hilsch, Peter: Die Bischöfe von Prag in der frühen Stauferzeit. Ihre Stellung zwischen Reichs- und Landesgewalt von Daniel I. (1148-1167) bis Heinrich (1182-1197) (Veröffentlichungen des Collegium Carolinum 22), München 1969
- Hölscher 1927
- Hölscher, Uvo: Die Kaiserpfalz Goslar (Denkmäler deutscher Kunst. Die deutschen Kaiserpfalzen 1), Berlin 1927 (ND Bielefeld 1996)
- Hölscher 1962
- Hölscher, Uvo: Die Godehardikirche zu Hildesheim. Eine baugeschichtliche Untersuchung, in: Niederdeutsche Beiträge zur Kunstgeschichte 2, 1962, S. 9-44.
- Hölscher 1965
- Hölscher, Uvo: Die Stiftskirche zu Königslutter. Eine baugeschichtliche Untersuchung, in: Niederdeutsche Beiträge zur Kunstgeschichte 4, 1965, S. 9-40
- Hoffmann 1986
- Hoffmann, Hartmut: Buchkunst und Königtum im ottonischen und frühsalischen Reich (Schriften der Monumenta Germaniae Historica 30), Stuttgart 1986
- ____
- 289
- Holenstein 1991
- Holenstein, André: Die Huldigung der Untertanen. Rechtskultur und Herrschaftsordnung (800-1800) (Quellen und Forschungen zur Agrargeschichte 36), Stuttgart [u.a.] 1991
- Holtz/Huschner 1995
- Holtz, Eberhard; Huschner, Wolfgang (Hg.): Deutsche Fürsten des Mittelalters. Fünfundzwanzig Lebensbilder, Leipzig 1995
- Holtmann 1928
- Holtzmann, Robert: Der Kaiser als Marschall des Papstes. Eine Untersuchung zur Geschichte der Beziehungen zwischen Kaiser und Papst im Mittelalter (Schriften der Strassburger Wissenschaftlichen Gesellschaft in Heidelberg 8), Berlin [u.a.] 1928
- Honekamp/Köhler 1993
- Honekamp, Dorothee; Kühler, Mathias: Die Klosterkirche St. Georg und St. Pankratius in Hecklingen (=Große Baudenkmäler 454), München/Berlin 1993
- Hüffer 1922
- Hüffer, Maria: De adellijke vrouwenabdij van Rijnsburg 1133-1574, Nijmwegen 1922
- Investiturstreit und Reichsverfassung 1973
- Investiturstreit und Reichsverfassung (Vorträge und Forschungen 17), hrsg. v. Josef Fleckenstein, Sigmaringen 1973
- Joachim 1935
- Joachim, Harold: Die Stiftskirche zu Königslutter. Ein Beitrag zur deutschen Kunstgeschichte des 12. Jahrhunderts, Göttingen 1935
- Jordan 1951
- Jordan, Karl: Die Anfänge der Stiftes Segeberg, in: Zeitschrift der Gesellschaft für Schleswig-Holsteinische Geschichte 74/75, 1951, S. 59-94
- Jordan 1966
- Jordan, Karl: Burg, Stift und Stadt Segeberg. Entstehung und erste Zeit, in: Schleswig- Holstein 29, 1966, S. 227-229
- ____
- 290
- Kamphausen 1938
- Kamphausen, Alfred: Die Baudenkmäler der deutschen Kolonisation in Ostholstein und die Anfänge der nordeuropäischen Backsteinarchitektur (Studien zur Schleswig- Holsteinischen Kunstgeschichte 3), Neumünster 1938
- Kamphausen 1952
- Kamphausen, Alfred: St. Marien zu Segeberg, in: Gebaute Kleinodien, Tübingen 1952
- Kantorowicz 1957
- Kantorowicz, Ernst H.: Die zwei Körper des Königs, The King`s Two Bodies. A Study in Mediaeval Political Theology, Princetown, N.J. 1957, Deutsche Erstausgabe München 1990
- Kienast 1974
- Kienast, Walther: Deutschland und Frankreich in der Kaiserzeit (900-1270). Weltkaiser und Einzelkönige (Monographien zur Geschichte des Mittelalters 9), Stuttgart 21974
- Kienast 1990
- Kienast, Walther: Die fränkische Vasallität. Von den Hausmeiern bis zu Ludwig dem Kind und Karl dem Einfältigen, Frankfurt 1990
- Kirchen, Klöster, Manufakturen 1985
- Klöster, Kirchen, Manufakturen. Historische Kulturgüter im Lande Braunschweig, Braunschweigischer Vereinigter Kloster- und Studienfonds (Hg.)‚ Uwe Kampfer (Red.), Braunschweig 1985
- Kluckhohn 1938/39
- Kluckhohn, Erwin: Die Kapitellornamentik der Stiftskirche zu Königslutter. Studien über Herkunft, Form und Ausbreitung, Dissertation an der Universität Göttingen 1937, in: Marburger Jahrbuch für Kunstwissenschaft 11/12, 1938/39, S. 527-579
- Kluckhohn 1955
- Kluckhohn, Erwin: Die Bedeutung Italiens für die Romanische Baukunst und Bauornamentik in Deutschland, in: Marburger Jahrbuch für Kunstwissenschaft 16, 1955, S. 1-120
- Knauf 1976
- Knauf, Tassilo: Bildende Kunst, in: Braunschweigische Landesgeschichte im Überblick, hrsg. von Richard Moderhack, Braunschweig 1976, S. 327-358
- ____
- 291
- Knoben 1969
- Knoben, Ursula: Die Kirche des ehemaligen Augustiner-Nonnenklosters in Klosterlausnitz. Die romanischen Teile und der Restaurationsbau des 19. Jahrhunderts, Phil. Diss. München 1969
- Koch 1972
- Koch, Gottfried: Auf dem Wege zum Sacrum Imperium. Studien zur ideologischen Herrschaftsbegründung der deutschen Zentralgewalt im 11. und 12. Jahrhundert (Forschungen zur Mittelalterlichen Geschichte 20) Wien [u.a.] 1972
- Koch/Sichtermann 1982
- Koch, Guntram; Sichtermann, Hellmut: Römische Sarkophage, München 1982
- Köhler 1996
- Köhler, Mathias: St. Ulrici in Sangerhausen - eine Kirche im Spannungsfeld hochmittelalterlicher Ordensbaukunst, in: Mitteilungen des Vereins für Geschichte von Sangerhausen und Umgebung 5, 1996, S. 20-36
- Königtum und Reichsgewalt am Niederrhein
- Königtum und Reichsgewalt am Niederrhein, Referate der 2. Niederrhein-Tagung des Arbeitskreises niederrheinischer Kommunalarchive (12.-13. März 1982 in Nimwegen), (Schriftenreihe des Stadtarchivs Kleve 4), Klaus Fink, Wilhelm Janssen (Hg.), Kleve 1983
- Korf 1996
- Korf, Winfried: Ballenstedt. Kloster, Schloß und Schloßbezirk, (=Große Baudenkmäler 468), München/Berlin 21996
- Kossin 1995
- Kossin, Wilhelm, Die Herrschaft Rheineck. Wirtschaftliche Grundlagen einer Adelsfamilie im 15. Jahrhundert, Köln 1995
- Kowolik 1994
- Kowolik, Franz: Das alte Hecklingen und seine Klosterkirche St. Georg. Eine Bildersammlung zu einer mitteldeutschen Kleinstadt, Oschersleben 1994
- Krause 1998
- Krause, Hans-Joachim: Die Stiftskirche auf dem Petersberg bei Halle (=Schnell Kunstführer 1907), Regensburg 31998
- ____
- 292
- Kretzschmar 1994
- Kretzschmar, Lars: Baugeschichtliche Überlegungen zur Krypta der Stiftskirche zu Süpplingenburg (Typenvergleich). Unveröffentlichte Staatsexamensarbeit, Braunschweig (Hochschule für Bildende Künste Braunschweig) 1994
- Kretzschmar 1997
- Kretzschmar, Lars: Die Schunterburgen. Ein Beitrag der interdisziplinären Forschung zu Form, Funktion und Zeitstellung, Wolfenbüttel 1997 (Beihefte zum Braunschweigischen Jahrbuch 14), Wolfenbüttel 1997
- Krumbholz 1993
- Krumbholz, Hans: Kaiser Lothar III. - Auf den Spuren eines deutschen Kaisers. Ein Reiseführer, Hannover 1993
- Kubach/Haas 1972
- Kubach, Hans Erich; Haas, Walter: Der Dom zu Speyer (Die Kunstdenkmäler von Rheinland-Pfalz 5), 3 Bände, München/Berlin 1972
- Kubach/Verbeek 1976
- Kubach, Hans Erich; Verbeek, Albert: Romanische Baukunst an Rhein und Maas, Katalog der vorromanischen und romanischen Denkmäler, 4 Bände, Berlin 1976
- Kuck 1945
- Kuck, Charlotte: Das Itinerar Lothars von Supplingenburg, Phil. Diss. (masch.) Greifswald 1947
- Kuhr 1976
- Kuhr, Hermann: Kirchengeschichte, in: Braunschweigische Landesgeschichte im Überblick, hrsg von Richard Moderhack, Braunschweig 1976, S. 111-128
- Kunze 1925
- Kunze, Hans: Die kirchliche Reformbewegung des 12. Jahrhunderts im Gebiet der mittleren Elbe und ihr Einfluß auf die Baukunst, in: Sachsen und Anhalt 1, 1925, S. 388-476
- Lademann 1995
- Lademann, Jördis: Das ehemalige Kloster St. Laurentius, St. Stephan und St. Petrus zu Hillersleben (=Große Baudenkmäler 482) München/Berlin 1995
- ____
- 293
- Ladner 1970
- Ladner, Gerhart B.: Die Papstbildnisse des Altertums und des Mittelalters, Band 2, von Innozenz II. zu Benedikt XI., Rom 1970
- Lange 1958
- Lange, Karl-Heinz: Die Grafen von Northeim (950-1144). Politische Stellung, Genealogie und Herrschaftsbereich, Phil. Diss. (masch.), Kiel 1958
- Langeheinecke 1921
- Langeheinecke, Johannes: Die diplomatischen Beziehungen zwischen dem Deutschen Reich und Byzanz unter Lothar III. und Konrad III., Phil. Diss. (masch) Berlin 1921
- Lambacher 1990
- Lambacher, Lothar: Untersuchungen zur Kapitellplastik und Baugeschichte der ehemaligen Benediktiner-Klosterkirche St. Pancratius und Abundus in Ballenstedt am Harz, in: Forschungen und Berichte 29/30, 1990, S. 167-196
- Einfügung:
- Landsberg 1917
- Landsberg, Anna: Die romanische Bauornamentik in Südbayern. Diss. Frankfurt 1917, München Wolf 1917
- Lechner 1976
- Lechner, Karl: Die Babenberger. Markgrafen und Herzöge von Österreich 976-1246 (Veröffentlichungen des Instituts für Österreichische Geschichtsforschung 12), Wien [u.a.] 1976
- Leßmann 1912
- Leßmann, Karl: Die Persönlichkeit Kaiser Lothars III. im Lichte mittelalterlicher Geschichtsanschauung, Phil. Diss. Greifswald 1912
- Laudage 1993
- Laudage, Johannes: Gregorianische Reform und Investiturstreit (Erträge der Forschung 282), Darmstadt 1993.
- Laudage 1984
- Laudage, Johannes: Priesterbild und Reformpapsttum im 11. Jahrhundert (Beihefte zum Archiv für Kulturgeschichte 22), Köln/Wien 1984
- Laudage 1997
- Laudage, Johannes: Alexander III. und Friedrich Barbarossa (Forschungen zur Kaiser- und Papstgeschichte des Mittelalters 16), Köln [u.a.] 1997
- ____
- 294
- Leyser 1984
- Leyser, Karl J.: Herrschaft und Konflikt. König und Adel im ottonischen Sachsen (Veröffentlichungen des Max-Planck-Instituts für Geschichte 76), Göttingen 1984
- Lieb 1995
- Lieb, Stefanie: Die Adelog-Kapitelle in St. Michael zu Hildesheim und ihre Stellung innerhalb der sächsischen Bauornamentik des 12. Jahrhunderts, Köln 1995
- Loibl 1997
- Loibl, Richard: Der Herrschaftsraum der Grafen von Vornbach und ihrer Nachfolger. Studien zur Herrschaftsgeschichte Ostbayerns im hohen Mittelalter, München 1997
- Luckhardt/Niehoff 1995
- Luckhardt, Jochen; Niehoff, Franz: Heinrich der Löwe und seine Zeit. Herrschaft und Repräsentation der Welfen 1125-1235, Katalog der Ausstellung Braunschweig 1995, Band 1 (Katalog), Band 2 (Essays), Band 3 (Nachleben), München 1995
- Magirius 1972
- Magirius, Heinrich: Die Baugestalt der romanischen Marienkirche (in Freiberg), in: Der Freiberger Dom, Forschungen und Denkmalpflege, hrsg. von Heinrich Magirius, Weimar 1972
- Magirius 1989
- Magirius, Heinrich: Der romanische Vorgängerbau der St. Bartholomäikirche in Altenberg und seine Krypta. Ergebnisse archäologischer Untersuchungen der Jahre 1981-1982, in: Bau- und Bildkunst im Spiegel internationaler Forschung, Festschrift für Edgar Lehmann zum 80. Geburtstag‚ hrsg. vom Institut für Denkmalpflege der DDR, Zentraler Bereich Dokumentation und Publikation, Berlin 1989, S. 52-71
- Magirius 1994
- Magirius, Heinrich: Kathedrale, Stiftskirche, Klosterkirche, Burgkapelle, Stadtkirche und Dorfkirche. Zu Typologie und Stil der romanischen Steinkirchen in Obersachsen, in: Frühe Kirchen in Sachsen 1994, S. 65-91
- Magirius 1997
- Magirius, Heinrich: Die Klosterkirche in Chemnitz (=Große Baudenkmäler 509), München/Berlin 1997
- ____
- 295
- Maier 1987/88
- Maier, Konrad: Die Klosterkirche Amelungsborn, in: Niedersächsische Denkmalpflege 13, 1987/88, S. 31-57
- Maier 1991/92
- Meier, Konrad: Zweischiffige mittelalterliche Kreuzgänge, in: Niedersächsische Denkmalpflege 15, 1991/92, S. 95-142
- Marx 2000
- Marx, Petra: Die Stuck-Emporenbrüstung aus Kloster Gröningen. Ein sächsisches Bildwerk des 12. Jahrhunderts und sein Kontext, Phil. Diss. Berlin 2000
- Maschke 1955
- Maschke, Erich: Der Kampf zwischen Kaisertum und Papsttum, Konstanz 1955
- Meier 1896
- Meier, Paul Jonas: Süpplingenburg, in: Inventar Braunschweig (Kreis Helmstedt) 1896, S. 273-287 und Königslutter, ebd., S. 203-243
- Einfügung:
- Meier 1900
- Meier, Paul Jonas: Der Meister von Königslutter in Italien. Kunstchronik: Wochenschrift für Kunst und Kunstgewerbe. Neue Folge 12. Jahrgang 1900/1901 Nr. 7 vom 29.11.1900 S. 97-100
- Mertens 1995
- Mertens, Holger. Studien zur Bauplastik der Dome in Speyer und Mainz. Stilistische Entwicklung, Motivverbreitung und Formrezeption im Umfeld der Baumaßnahmen des frühen 12. Jahrhunderts, Mainz 1995
- Meyer 1993
- Meyer, Angelika: Die ehemalige Klosterkirche in Groß Ammensleben, (=Große Baudenkmäler 440), München/Berlin 1993
- Meyer-Bruck 1952
- Meyer-Bruck, Heinz: Die Stellung des Braunschweiger Domes in der sächsischen Baukunst des 12. Jahrhunderts, Phil. Diss. (masch.) Göttingen 1952
- Michelly 1987
- Michelly, Reinhold: Der Spandauer Thebal-Ring. Neues zum Problem der Thebal-Ringe, in: Ausgrabungen und Funde auf dem Burgwall in Berlin-Spandau (Archäologisch-historische Forschungen in Spandau 2), hrsg. von Adriaan von Müller und Klara Müller-Muci, NF Bd. 5, 1987, S. 64-81
- ____
- 296
- Möbius 1970
- Möbius, Helga und Friedrich: Sakrale Baukunst. Mittelalterliche Kirchen in der Deutschen Demokratischen Republik, Berlin 31970
- Möhle 1995
- Möhle, Martin: Der Braunschweiger Dom Heinrichs des Löwen. Die Architektur der Stiftskirche St. Blasius von 1173-1250 (Beihefte zum Braunschweigischen Jahrbuch 11), Braunschweig 1995
- Müller 1951
- Müller, Alfred: Untersuchungen zur Baugeschichte von St. Ägidien in Braunschweig, Ing. Diss. (masch.), Braunschweig 1951
- Müller 1992
- Müller, Joachim: Die Klosterkirche Murbach im Elsaß, Köln 1992
- Müller von der Haegen1993
- Müller von der Haegen, Anne: Das Benediktiner-Kloster Huysburg (=Große Baudenkmäler 481), München/Berlin 1993
- Müller-Wille 1996
- Müller-Wille, Michael: Mittelalterliche Grabfunde aus der Kirche des slawischen Burgwalls von Alt-Lübeck. Zu dynastischen Grablegen in polnischen und abodritischen Herrschaftsgebieten (Abhandlungen der Geistes- und Sozialwissenschaftlichen Klasse 6), Stuttgart 1996.
- Naß 1990
- Naß, Klaus: Die älteren Urkunden des Klosters Königslutter, in: Archiv für Diplomatik 36, 1990, S. 126-167
- Einfügung:
- Nickel 1953
- Nickel, Heinrich L.: Untersuchungen zur spätromanischen Bauornamentik Mitteldeutschlands, Wissenschaftliche Zeitschrift der Martin-Luther-Universität Halle-Wittenberg, Jahrg. III, 1953/54, Gesellschafts- und sprachwissenschaftliche Reihe, Heft 1, S. 25-74
- Nilgen 1997
- Nilgen Ursula: Bilder im Widerstreit zwischen Regnum und Sacerdotium, in: Streit um Bilder. Von Byzanz bis Duchamp, hrsg. von Karl Möseneder, Berlin 1997, S. 27-47.
- Nonn 1993
- Nonn, Ulrich: Geblühtsrecht, Wahlrecht, Königswahl: Die Wahl Lothars von Süpplingenburg, in: Geschichte in Wissenschaft und Unterricht 44, 1993, S. 146-157
- ____
- 297
- Oldemeier 1942
- Oldemeier, Gisbert: Die ältere Baugeschichte der Klosterkirche zu Marienmünster, Heft 1 (Text), Heft 2 (Zeichnungen), Ing. Diss. (masch.) Stuttgart 1942
- Ortmanns 1972
- Ortmanns, Kurt: Das Bistum Minden in seinen Beziehungen zu König, Papst und Herzog bis zum Ende des 12. Jahrhunderts, Bensberg 1972
- Ott 1998
- Ott, Joachim: Krone und Krönung. Die Verheißung und Verleihung von Kronen in der Kunst von der Spätantike bis um 1200 und die geistige Auslegung der Krone, Mainz 1998
- Pagel 1998
- Pagel‚ Ingo: Von imperialer Musterarchitektur zu territorialherrscherlichem Selbstbewußtsein. Kirchenbaukunst im Zeichen des Herrschaftswandels im norddeutschen Raum zwischen 1100 und 1300, Hildesheim [u.a.] 1998.
- Pamme-Vogelsang 1998
- Pamme-Vogelsang, Gudrun: Die Ehen mittelalterlicher Herrscher im Bild. Untersuchungen zu zeitgenössischen Herrscherdarstellungen des 9. bis 12. Jahrhunderts (Forschungen zur Geschichte der älteren Literatur 20), München 1998
- Parisse 1991
- Parisse, Michel: Die Frauenstifte und Frauenklöster in Sachsen vom 10. bis zur Mitte des 12. Jahrhunderts, in: Die Salier und das Reich, Band 2, Speyer 1991, S. 465-501
- Perlitt 1996
- Perlitt, Lothar (Hg.): Kloster Bursfelde, Göttingen 61996
- Petke 1985
- Petke, Wolfgang: Kapelle und königliche Kurie unter Lothar III. 1125-1137 (Forschungen zur Kaiser- und Papstgeschichte 5) Köln [u.a.] 1985
- Pfeiffer 1993
- Pfeiffer, Marita: Idensen ‘ecclesia ex quadratis lapidibus studiose murata‘. Die Eigenkirche des Bischofs Sigward von Minden (1120-40), Phil. Diss. Marburg 1993
- ____
- 298
- Piltz 1977
- Piltz, Elisabeth: Kamelaukion et mitra. Insignes byzantins impériaux et ecclésiastique, Stockholm 1977
- Pischke 1984
- Pischke, Gudrun: Herrschaftsbereiche der Billunger, der Grafen von Stade, der Grafen von Northeim und Lothars von Süpplingenburg. Quellenverzeichnis, Hildesheim 1984
- Poeschke 1996
- Poeschke, Joachim (Hg.): Antike Spolien in der Architektur des Mittelalters und der Renaissance, München 1996
- Politik und Heiligenverehrung 1994
- Politik und Heiligenverehrung im Hochmittelalter, hrsg. von Jürgen Petersohn (Vorträge und Forschungen 42), Sigmaringen 1994
- Probleme des 12. Jahrhunderts 1965/67
- Probleme des 12. Jahrhunderts, Reichmann-Vorträge 1965-1967, hrsg. vom Konstanzer Arbeitskreis für mittelalterliche Geschichte 12, Konstanz 1968
- Rahtgens 1912
- Rahtgens, Hugo: Die Rekonstruktion der Stiftskirche zu Hochelten, in: Zeitschrift für Geschichte der Architektur 5, 1912, S. 161-203
- Ranke 1887
- Ranke, Leopold von: Weltgeschichte, Band 8 (Kreuzzüge und päpstliche Weltherrschaft - 12. und 13. Jahrhundert), München/Leipzig 1887
- Rauda 1917
- Rauda, Fritz: Die Baukunst der Benediktiner und Zisterzienser im Königreich Sachsen und das Nonnenkloster zum Heiligen Kreuz bei Meißen, Meißen 1917
- Reformidee und Reformpolitik 1992
- Reformidee und Reformpolitik im spätsalisch-frühstaufischen Reich, hrsg. von Stefan Weinfurter (Quellen und Abhandlungen zur mittelrheinischen Kirchengeschichte 68), Mainz 1992
- Ritter 1858
- Ritter, F. A.: Die Klosterkirche auf dem Petersberge bei Halle und ihre Restauration in den Jahren 1853 bis 1857, in: Zeitschrift für Bauwesen 8, 1858, S. 32-64
- ____
- 299
- Romanik in Niedersachsen 1997
- Romanik in Niedersachsen. Forschungsstand und Forschungsaufgaben Symposion an der Technischen Universität Carolo-Wilhelmina, Braunschweig 17.-20.3.1993, hrsg. v. Harmen Thies, Braunschweig 1997
- Romanik in Regensburg
- Romanik in Regensburg - Kunst, Geschichte, Denkmalpflege. Beiträge des Regensburger Herbstsymposions zur Kunstgeschichte und Denkmalpflege vom 18. bis 20. November 1994, hrsg. von Helmut-Eberhard Paulus, Hermann Reidel, Paul W. Winkler, Regensburg 1996
- Röckener 1993
- Röckener, Kurt: Das Zisterzienserkloster Amelungsborn, (=Große Baudenkmäler 338), München/Berlin 1993
- Einfügung:
- Römer 1985
- Römer, Christof: Sonderdruck aus Germania Benedictina, Band VI: Norddeutschland – Königslutter, hrsg. von der Bayerischen Benedictiner-Akademie München in Verbindung mit dem Abt-Herwegen-Institut Maria Laach
- Rötting 1985
- Rötting, Hartmut: Die Grablege Lothars III. in der Stiftskirche zu Königslutter, in: Kirchen, Klöster, Manufakturen 1985, S. 61-82
- Rosner 1991
- Rosner, Ulrich: Die ottonische Krypta, Phil. Diss. Köln 1991
- Schaelow 1994
- Schaelow, Karen: Die Kirche St. Ulrich in Sangerhausen. Eine baugeschichtliche Untersuchung, Phil. Diss. München 1994
- Schaller 1993
- Schaller, Hans Martin: Stauferzeit. Ausgewählte Aufsätze (Schriften der Monumenta Germaniae Historica 38), Hannover 1993
- Schenkluhn 2000
- Schenkluhn, Wolfgang (Hg.): Zur Architektur und Plastik des Mittelalters in Sachsen-Anhalt (Hallesche Beiträge zur Kunstgeschichte 2), Halle 2000
- Schöne 1999
- Schöne, Anne-Christin: Die romanische Kirche des ehemaligen Augustinerchorherren-Stiftes in Hamersleben, Phil. Diss. Köln 1999
- ____
- 300
- Schlesinger 1952
- Schlesinger, Walter: Die Anfänge der Stadt Chemnitz und anderer mitteldeutscher Städte. Untersuchungen über Königtum und Städte während des 12. Jahrhunderts, Weimar 1952
- Schlesinger 1962
- Schlesinger, Walter: Kirchengeschichte Sachsens im Mittelalter, 2 Bände (Mitteldeutsche Forschungen 27), Köln/Graz 1962
- Schlick 2001
- Schlick, Jutta: König, Fürsten und Reich (1056-1159). Herrschaftsverständnis im Wandel (Mittelalter-Forschungen 7), Stuttgart 2001
- Schmitt 1993
- Schmitt, Reinhard: Die Konradsburg (=Große Baudenkmäler 442), München/Berlin 21993
- Schmitt 1996
- Schmitt, Reinhard: Konradsburg-Ermsleben (Straße der Romanik), Halle 1996
- Schmale 1968
- Schmale, Franz-Josef: Lothar III. und Friedrich I. als Könige und Kaiser, in: Probleme des 12. Jahrhunderts (Vorträge und Forschungen 12) 1968, S. 33-52, wiederabgedruckt in: Friedrich Barbarossa (Wege der Forschung 390), hrsg. v. Gunther Wolf, Darmstadt 1975, S. 121-148
- Schmale 1974
- Schmale, Franz-Josef: Die Anfänge der Grafen von Berg, in: Geschichte in der Gesellschaft, Festschrift für Karl Bosl, hrsg. von Friedrich Prinz, Franz-Josef Schmale, Ferdinand Seibt, Stuttgart 1974, S. 370-392
- Schmid/Wollasch 1984
- Schmid, Karl; Wollasch, Joachim (Hg): Memoria. Der geschichtliche Zeugniswert des liturgischen Gedenkens im Mittelalter (Münstersche Mittelalter-Schriften 48), München 1984
- Schneider 1986
- Schneider, Reinhold: Kaiser Lothars Krone. Herrschaft Lothars von Supplingenburg, Leipzig 1937 (ND Zürich 1986)
- ____
- 301
- Schneider-Flagmeyer 1986
- Schneider-Flagmeyer, Michael: Die mittelalterlichen Osterleuchter in Süditalien (Europäische Hochschulschriften 28), Frankfurt [u.a.] 1986
- Schneidmüller 1995
- Schneidmüller, Bernd (Hg.): Die Welfen und ihr Braunschweiger Hof im hohen Mittelalter (Wolfenbütteler Mittelalter-Studien 7), Wiesbaden 1995
- Scholke 1987
- Scholke, Horst; Romanische Architektur am Harz, Leipzig 1987
- Schulze 1963
- Schulze, Hans K.: Adelsherrschaft und Landesherrschaft. Studien zur Verfassungs- und Besitzgeschichte der Altmark, des ostsächsischen Raumes und des hannoverschen Wendlandes im hohen Mittelalter (Mitteldeutsche Forschungen 29), Köln/Graz 1963
- Schramm 1930
- Schramm, Percy Ernst: Die Ordines der mittelalterlichen Kaiserkrönung. Ein Beitrag zur Geschichte des Kaisertums, in: Archiv für Urkundenforschung 11, 1930, S. 285-390
- Schramm 1955
- Schramm, Percy Ernst (Hg.): Herrschaftszeichen und Staatssymbolik. Beiträge zu ihrer Geschichte vom dritten bis zum sechzehnten Jahrhundert (Schriften der MGH 13), 3 Bände, Stuttgart 1954-1956
- Schramm/Mütherich 1962
- Schramm, Percy Ernst; Mütherich, Florentine: Denkmale der deutschen Könige und Kaiser. Ein Beitrag zur Herrschergeschichte von Karl dem Großen bis Friedrich II. 768-1250, Band 1, München 1962
- Schramm 1958
- Schlamm, Percy Ernst: Sphaira, Globus, Reichsapfel. Wanderung und Wandlung eines Herrschaftszeichens von Caesar bis Elisabeth II. - Ein Beitrag zum „Nachleben“ der Antike, Stuttgart 1958
- Schramm 21983
- Schramm, Percy Ernst: Die deutschen Kaiser und Könige in Bildern ihrer Zeit 751-1190, Neuauflage des 1928 in Berlin erschienen Werks, Die deutschen Kaiser und Könige in Bildern ihrer Zeit 751-1152, überarbeitet und hrsg. von Florentine Mütherich, München 1983
- ____
- 302
- Schubert 1990
- Schubert, Ernst: Stätten sächsischer Kaiser, Leipzig [u.a.] 1990
- Schütz/Müller 1989
- Schütz, Bernhard; Müller, Wolfgang (Hg): Deutsche Romanik. Die Kirchenbauten der Kaiser, Bischöfe und Klöster, Freiburg [u.a.] 1989
- Schulze-Dörrlamm 1991
- Schulze-Dörrlamm, Mechthild: Die Kaiserkrone Konrads II. (1024-1039), Sigmaringen 1991
- Seibt 1987
- Seibt, Ferdinand: Glanz und Elend des Mittelalters. Eine endliche Geschichte, Berlin 1987
- Seebach 1968
- Seebach, Carl-Heinrich: Kloster Drübeck, in: Niederdeutsche Beiträge zur Kunstgeschichte 7, 1968, S. 43-64
- Speer 1983
- Speer, Lothar: Kaiser Lothar III. und Erzbischof Adalbert I. von Mainz. Eine Untersuchung zur Geschichte des deutschen Reiches im frühen 12. Jahrhundert, Köln/Wien 1983
- Spehr 1994
- Spehr, Reinhard: Christianisierung und frühe Kirchenorganisation in der Mark Meißen. Ein Versuch, in: Frühe Kirchen in Sachsen 1994, S. 8-63
- Stab 1992
- Staab, Franz: Reform und Reformgruppen im Erzbistum Mainz. Vom ‘Libellus de Willigisi consuetudinibus‘ zur ‘Vita domnae Juttae inclusae‘, in: Reformidee und Reformpolitik 1992, S. 119-187
- Stadt im Wandel 1985
- Stadt im Wandel. Kunst und Kultur des Bürgertums in Norddeutschland 1150-1650, Landesausstellung Niedersachsen 1985, hrsg. von Cord Meckseper, Band 3, Stuttgart 1985
- Starke 1955
- Starke, Heinz-Dieter: Die Pfalzgrafen von Sommerschenburg (1088-1179), in: Jahrbuch für die Geschichte Mittel- und Ostdeutschlands 4, 1955, 1-71
- ____
- 303
- Stauferstudien 21996
- Engels, Odilo: Stauferstudien. Beiträge zur Geschichte der Staufer im 12. Jahrhundert, hrsg. von Erich Meuthen und Stefan Weinfurter, Sigmaringen 21996 (1. Auflage Sigmaringen 1988 als Festgabe zum 60. Geburtstag von Odilo Engels)
- Steigerwald 1993
- Steigerwald, Frank (Hg.): Goslar-Bergstadt, Kaiserstadt in Geschichte und Kunst, Bericht über ein Wissenschaftliches Symposion in Goslar vom 5. bis 8. Oktober 1989, Göttingen 1993
- Stroll 1991
- Stroll, Mary: Symbols as power. The papacy following the investiture contest, Leiden [u.a.] 1991
- Stuck des frühen und hohen Mittelalters 1996
- Stuck des frühen und Mittelalters. Geschichte, Technologie, Konservierung. Eine Tagung des deutschen Nationalkomitees von ICOMOS und des Dom- und Diözesanmuseums Hildesheim in Hildesheim, 15.-17. Juni 1995, hrsg. von Matthias Exner, München 1996
- Suckale 1993
- Suckale, Robert: Die Hofkunst Kaiser Ludwigs des Bayern, München 1993
- Swinarski 1991
- Swinarski, Ursula: Herrschen mit den Heiligen. Kirchenbesuche, Pilgerfahrten und Heiligenverehrung früh- und hochmittelalterlicher Herrscher (ca. 500-1200), Bern [u.a.] 1991
- Tellenbach 1936
- Tellenbach, Gerd: Libertas. Kirche und Weltordnung im Zeitalter des Investiturstreits (Forschungen zur Kirchen- und Geistesgeschichte 7), Stuttgart 1936
- Tellenbach 1985
- Tellenbach, Gerd: „Gregorianische Reform“. Kritische Besinnungen, in: Reich und Kirche vor dem Investiturstreit, Vorträge beim wissenschaftlichen Kolloquium aus Anlaß des 80. Geburtstags von Gerd Tellenbach, hrsg. von Karl Schmid, Sigmaringen 1985, S. 99-113
- Tellenbach 1988
- Tellenbach, Gerd: Die westliche Kirche vom 10. bis zum frühen 12. Jahrhundert, Göttingen 1988
- ____
- 304
- Teuchert 1967
- Teuchert, Wolfgang: Der gotische Stiftschor der Segeberger Kirche, in: Nordelbingen 36, 1967, S. 7-14
- Thümmler 1951
- Thümmler, Hans: Die Anfänge der monumentalen Gewölbebaukunst in Deutschland und der besondere Anteil Westfalens, in: Westfalen 29,1951, S. 154-171
- Thümmler 1961
- Thümmler, Hans: Ein romanisches Königshaupt aus Freckenhorst (Westfalen), in: Miscellanea Bibliothecae Hertzianae, München 1961, S. 97-103
- Thümmler 1966
- Thümmler, Hans: Die mittelalterliche Baukunst im Weserraum, in: Ausstellungskatalog „Kunst und Kultur im Weserraum 800-1200“, Teil I: zur Geschichte und Kunst, Corvey 1966, S. 166-191
- Thümmler 1970
- Thümmler, Hans; Kreft, Herbert: Weserbaukunst im Mittelalter, Hameln 1970
- Thümmler 1998
- Thümmler, Hans: Zur Architektur und Skulptur des Mittelalters. Gesammelte Aufsätze (Beiträge zur Kunstgeschichte des Mittelalters und der Renaissance 7), hrsg. von Joachim Poeschke, Münster 1998
- Toebelmann 1923
- Toebelmann, Fritz (u.a.): Römische Gebälke, Heidelberg 1923
- Toubert 1990
- Toubert, Helene: Un an dirigé. Réforme grégorienne et Iconographie, Paris 1990
- Traeger 1970
- Traeger, Jörg: Der reitende Papst. Ein Beitrag zur Ikonographie des Papsttums (Münchner kunsthistorische Abhandlungen 1), München [u.a.] 1970
- Ullmann 1989
- Ullmann, Ernst (Hg.): Der Magdeburger Dom. Ottonische Gründung und staufischer Neubau, Bericht über ein wissenschaftliches Symposion in Magdeburg 7.10.-11.10.1986‚ Leipzig 1989
- ____
- 305
- Untermann 1984
- Untermann, Matthias: Kirchenbauten der Prämonstratenser. Untersuchungen zum Problem einer Ordensbaukunst im 12. Jahrhundert, Phil. Diss. Köln 1984
- Untermann 2001
- Untermann, Matthias: Forma Ordinis. Die mittelalterliche Baukunst der Zisterzienser (Kunstwissenschaftliche Studien 89), München/Berlin 2001
- Unverhau 1985
- Unverhau, Henning: Die Entstehung und frühe Entwicklung der Stadt Bad Segeberg, in: Heimatkundliches Jahrbuch für den Kreis Segeberg 31, 1985, S. 25-41
- Vogt 1959
- Vogt, Herbert W: Das Herzogtum Lothars von Süpplingenburg 1106-1125 (Quellen und Darstellungen zur Geschichte Niedersachsens 57), Hildesheim 1959
- Vones 1995
- Vones, Ludwig: Der gescheiterte Königsmacher. Erzbischof Adalbert I. von Mainz und die Wahl von 1125, in: Historisches Jahrbuch 115, 1995, S. 85-124.
- Einfügung:
- Wackenroder 1907
- Wackenroder, Ernst: Das Heilige Grab in der Stiftskirche zu Gernrode. Dissertation Phil. an der Vereinigten Friedrichs-Universität Halle-Wittenberg. 1907
- Walter 1970/71
- Walter, Christopher: Papal political imagery in the medieval Lateran Palace, in: Cahiers Archéologiques 20, 1970, S. 155-176 und 21, 1971, S. 109-136
- Walz 1993
- Walz, Josef: Das Kloster zu Ilsenburg (=Große Baudenkmäler 474), München/Berlin 21993
- Weinfurter 1975
- Weinfurter, Stefan: Salzburger Bistumsreform und Bischofspolitik im 12. Jahrhundert. Der Erzbischof Konrad I. von Salzburg (1106-1147) und die Regularkanoniker (Kölner historische Abhandlungen 24), Köln [u.a.] 1975
- Winterfeld 2000
- Winterfeld, Dethard von: Die Kaiserdome Speyer, Mainz, Worms und ihr romanisches Umland, Regensburg 2000
- Winzer 1997
- Winzer, Hans-Joachim: Das Kloster Katlenburg und sein Lagerbuch von 1525, Duderstadt 1997
- ____
- 306
- Wischermann 1987
- Wischermann, Heinfried: Romanik in Baden-Württemberg, Stuttgart 1987
- Wulf 1996
- Wulf, Walter: Romanik in der Königslandschaft Sachsen, Würzburg 1996
- ____
- 307
- XII. Abbildungsnachweis
- Luckhardt/Niehoff 1995: 1, 4, 5, 42, 54, 116, 215, 234, 261, 262, 273; Scholke 1987: 118, 157c, 232, 246a, 269; Schütz/Müller 1989: 39c, 44, 46, 100, 101-103; Dorn 1978: 120; Ladner 1970: 2; Althoff 1997: 3; Rötting 1985: 7; Meier 1896: 8; Müller-Wille 1996: 43; Gosebruch/Gädeke 1985: 22b, 48, 50-52, 55, 56-60; Gosebruch/Grote 1980: 49, 66, 77, 121, 122; Hecht 1976/78: 35, 36; Kubach/Verbeek 1976: 37-39, 184; Berger 1994: 45; Berger 1995/97 (II/2 1997): 145; H.-J. Mrusek; Romanik, Leipzig 41991: 61, 91, 115, 124, 161, 167, 267, 268; Stuck des frühen und hohen Mittelalters 1996: 62; H.-J. Fischer, DuMont Kunstreiseführer Rom, Köln 71994: 63a, 64; E. Kitzinger, Byzantinische Kunst im Werden, Köln 1984: 63b, 94, 95; Toebelmann 1923: 67, 74; Propyläen Kunstgeschichte, Das römische Weltreich: 68, 97; Universum der Kunst (Band 12, 1968): 96, 99; Herdejürgen 1996: 70, 72a; Koch/Sichtermann 1982: 71, 72b,c‚ 73, 78; Herklotz 1985: 75, 76; Deichmann 1967: 79; Magirius 1997: 81, 82, 84; Magirius 1994: 83, 86; Magirius 1989: 112; Fotoarchiv Marburg: 87b; Rauda 1917: 90; Schubert 1990: 65, 92, 107, 109, 231; Badstübner 1980: 93, 144; Hölscher 1927: 108; Steigerwald 1993: 110, 111; Maier 1987/88: 148; Maier 1991/1992: 114, 117; Rahtgens 1912: 125-127; Böker 1995: 128, 216-222; Lambacher 1990: 129, 131-133; Korf 1996: 130; Festschrift Mariental 1989: 134-140c; Inventar Thüringen 1888: 143, 185-188; Alexandridis 1993 (wie Anm. 561): 189; Röckener 1993: 146, 147, 149, 150, 151; Wulf 1996: 158, 159, 244, 272; Oldemeier 1942: 168; Honekamp/Köhler 1993: 170, 173, 174; Grzimek 1975: 176-180; A. Legner, Deutsche Romanik, München 21996: 181, 210, 226; Schramm 1958: 212, 213c; Piltz 1977: 182, 183; Foto Andreas Huth (Konradsburg): 205; Foto Janos Stekovics (Konradsburg): 204, 207, 208; M. Pippal, Das Perikopenbuch von St. Erentrud, Wien 1997: 211; Schulze-Dörrlamm 1991: 213b; Bock 1958: 214, 265, 266; R. Ligtenberg, Die romanische Plastik in den nördlichen Niederlanden, Freiburg 1916: 260; Gramatzki 1972: 224, 225, 227-230; Winterfeld 2000: 235, 237; Inventar Mainz 1919: 236; Dehio Bremen/Niedersachsen 1992: 238; Inventar Sachsen (Mansfelder Seekreis) 1895: 246b-249; Inventar Sachsen 1902: 254; Inventar Sachsen 1883: 119; Haas/Pfistermeister 1985: 263-264; Gosebruch 1980 (2): 274, 275, 277, 278; Große Baudenkmäler Nr. 164 (Bad Segeberg): 40, 41; Nr. 382 (Königslutter): 47; Nr. 481 (Huysburg): 105, 106; Nr. 458 (Sangerhansen): 153-157; Nr. 442 (Konradsburg): 206; Nr. 191 (Katlenburg): 203; Nr. 406 (Schöningen): 250, 251; Nr. 474 (Ilsenburg): 270; Nr. 249 (Wunstorf): 271; Peda-Kunstführer 393/1997: 104, 194, 195, 199-202; Schnell-Kunstführer Nr. 1907 (Petersberg/Halle): 160, 166; Archiv der Verfasserin: 6, 9, 10-21, 22a, 23-34, 53, 69, 80, 85, 88, 89, 98, 113, 123, 141, 142, 162-165, 169, 171, 172, 175, 190-193, 196-198, 209, 213a, 223, 233, 239-243, 245, 252, 253, 255-259, 276
- XIII. Abbildungsverzeichnis
- Abb. 1 Wandgemälde, ehem. Rom Lateran (Nachzeichnung aus dem Pavinius Codex 1570)
- Abb. 2 Wandgemälde, ehem. Rom Lateran (Nachzeichnung von C. Rasponi 1656)
- Abb. 3 Kommendation (Handgang) zur Begründung einer Lehensbindung, Constitutiones feudorum cum glossis, Avignon 14. Jh., Wien, Österr. Nationalbibliothek, Cod. 2262, fol. 174v.
- Abb. 4 Evangeliar Heinrich des Löwen, Krönungsbild, 1185/88
- Abb. 5 Königslutter, Osterleuchter, 1. Hälfte 12. Jh.
- Abb. 6 Magdeburg, Dom Osterleuchter, 1. Hälfte 12. Jh.
- Abb. 7 Grabbeigaben Lothars III., Skizze nach Graböffnung 1620, Patene, Kelch, Reichsapfel, Grabkrone (aus: Letzner-Fabricius, Wolfenbüttel 1715)
- Abb. 8a, b Süpplingenburg, St. Johannes, Grundrisse, Kirche und Krypta, nach Meier 1896
- Abb. 9 Süpplingenburg, St. Johannes, Ansicht von Süd-Ost
- Abb. 10 Süpplingenburg, St. Johannes, Ansicht von Süden
- Abb. 11 Süpplingenburg, St. Johannes, Ansicht von Norden
- Abb. 12 Süpplingenburg, St. Johannes, Südquerhaus
- Abb. 13 Süpplingenburg, St. Johannes, Nordquerhaus
- Abb. 14 Süpplingenburg, St. Johannes, nördliche Querhausapsis
- Abb. 15 Süpplingenburg, St. Johannes, südliche Querhausapsis
- Abb. 16 Süpplingenburg, St. Johannes, südliche Chorwand
- Abb. 17 Süpplingenburg, St. Johannes, Sockel der südlichen Chorwand
- Abb. 18 Süpplingenburg, St. Johannes, Sockel der nördlichen Chorwand
- Abb. 19 Süpplingenburg, St. Johannes, Anschluß der nördlichen Nebenapsis zum Nordquerhaus
- Abb. 20 Süpplingenburg, St. Johannes, Sockel, Nordseite, Detail
- Abb. 21 Königslutter, St. Peter und Paul, Hauptapsis, Sockel, Detail
- Abb. 22a Süpplingenburg, St. Johannes, Hauptapsis, Sockelprofil
- Abb. 22b Königslutter, St. Peter und Paul, Hauptapsis, unterer Teil
- Abb. 23 Süpplingenburg, St. Johannes, Langhaus nach Osten
- Abb. 24 Süpplingenburg, St. Johannes, Sanktuarium
- Abb. 25 Süpplingenburg, St. Johannes, Konsole im Sanktuarium
- Abb. 26 Süpplingenburg, St. Johannes, südliches Seitenschiff
- Abb. 27 Süpplingenburg, St. Johannes, nordöstlicher Vierungspfeiler mit Zugang zur Krypta
- Abb. 28 Süpplingenburg, St. Johannes, südliche Querhausapsis
- Abb. 29 Süpplingenburg, St. Johannes, Gewände der südlichen Querhausapsis
- Abb. 30 Süpplingenburg, St. Johannes, Basen der Ecksäulen im südlichen Querhausgewände
- Abb. 31 Süpplingenburg, St. Johannes, Krypta, Stützen in der Nordwand
- Abb. 32 Süpplingenburg, St. Johannes, Krypta, Detail
- Abb. 33 Süpplingenburg, St. Johannes, Krypta, Kapitell einer Halbsäule
- Abb. 34 Süpplingenburg, St. Johannes, Krypta, Basis einer Halbsäule
- Abb. 35 Süpplingenburg, St. Johannes, Grundriß, Ansicht von Norden (Rekonstruktion nach Hecht 1976/78)
- Abb. 36 Süpplingenburg, St. Johannes, Krypta, Grundriß und Querschnitt (Rekonstruktion nach Hecht 1976/78)
- Abb. 37 Mönchengladbach, St. Vitus, Krypta
- Abb. 38 Oberpleis, St. Pankratius, Krypta
- Abb. 39a-d Krypten-Grundrisse, a) Siegburg, St. Michael, b) Oberpleis, St. Pankratius, c) Goslar, St. Simon und Judas, d) Mönchengladbach, St. Vitus
- Abb. 40a,b Bad Segeberg, St. Marien, Südseite und Grundriß
- Abb. 41 Bad Segeberg, St. Marien, Langhaus nach Osten
- Abb. 42 Thebal-Ring Lothars III., Braunschweig, Braunschweigisches Landesmuseum, Inv. Nr. 78:7/267
- Abb. 43 Thebal-Ring Alt-Lübeck, Kirche, Fingerring A, Museum für Kunst und Kulturgeschichte der Hansestadt Lübeck, Inv. Nr. AL 6
- Abb. 44 Königslutter, St. Peter und Paul, Grundriß
- Abb. 45 Erfurt, St. Peter, Grundriß
- Abb. 46 Hildesheim, St. Godehard, Grundriß
- Abb. 47 Königslutter, St. Peter und Paul, Ansicht von Osten
- Abb. 48 Königslutter, St. Peter und Paul, nördliches Seitenportal
- Abb. 49 Königslutter, St. Peter und Paul, Hauptapsis, Jagdfries von oben: linker Teil, Mitte, rechter Teil
- Abb. 50/51 Königslutter, St. Peter und Paul, Hauptapsis, obere und untere Zone
- Abb. 52 Königslutter, St. Peter und Paul, Sanktuarium
- Abb. 53 Königslutter, St. Peter und Paul, Langhaus nach Westen
- Abb. 54 Königslutter, St. Peter und Paul, Nebenapsis und nördliches Chorseitenschiff
- Abb. 55 Königslutter, St. Peter und Paul, Chornordwand und Nordquerhaus
- Abb. 56 Königslutter, St. Peter und Paul, Kapitell der nördlichen Chorsäule
- Abb. 57 Königslutter, St. Peter und Paul, Blick vom Chor ins Nordquerhaus
- Abb. 58 Königslutter, St. Peter und Paul, südlicher Nebenchor
- Abb. 59 Königslutter, St. Peter und Paul, Vierung, Palmettenfries
- Abb. 60 Königslutter, St. Peter und Paul, nördlicher Vierungspfeiler, Palmettenfries
- Abb. 61 Merseburg, Dom, Krypta
- Abb. 62 CorveyWestwerk, sog. Johanneschor, Blick nach Nordwesten, Pinselzeichnung mit schematischer Angabe der ehemals bemalten Wandpartien (nach Claussen 1996)
- Abb. 63a Rom, S. Maria Maggiore, Langhaus
- Abb. 63b Rom, S. Maria Maggiore, ursprünglicher Zustand von Langhaus, Apsis und Wandsystem (Rekonstruktion nach Krautheimer)
- Abb. 64 Rom, S. Constanza, Stich von G. B. Piranesi
- Abb. 65 Königslutter, St. Peter und Paul, Hauptapsis
- Abb. 66 Königslutter, St. Peter und Paul, Hauptapsis, Akanthusfries
- Abb. 67 Rom, Basilika Nova, Gebälkstück mit Akanthusfries
- Abb. 68 Rom, Apollo-Tempel am Marcellus-Theater, um 20 v. Chr., Ausschnitt Reiterschlacht, Triumpfzug
- Abb. 69 Königslutter, St. Peter und Paul, Jagdfries (Detail)
- Abb. 70 Girlandensarkophag, Djursholm, Kat. 38
- Abb. 71 Girlandensarkophag, Rom Museo Nazionale
- Abb. 72a Girlandensarkophag, 1. Jh. Berlin, Pergamonmuseum, Inv. Nr. SK 843a
- Abb. 72b Girlandensarkophag, Hierissos (aus Akanthos), Dorfplatz
- Abb. 72c Girlandensarkophag, Istanbul, Archäologisches Museum
- Abb. 73 Sarkophag der Peducaea Hilara, Modena
- Abb. 74 Rom, Basilika Aemilia, Gebälk der äußeren Halle
- Abb. 75 Salerno, Kathedrale, antiker Sarkophag von Papst Gregor VII.
- Abb. 76 Rom, Vatikanische Grotte, antiker Sarkophag von Papst Hadrian IV.
- Abb. 77 Königslutter, St. Peter und Paul, Jagdfries, Randfiguren, Hornbläser
- Abb. 78 Rom, Vatikanische Museen, antiker Sarkophag (Weinlese)
- Abb. 79a Rom, Vatikanische Museen, antiker Striegelsarkophag 4. Jh.
- Abb. 79b Rom, S. Prassede, Krypta, Marmorsarkophag 4. Jh.
- Abb. 80 Königslutter, St. Peter und Paul, Kreuzgang
- Abb. 81 Chemnitz, St. Marien, Langhaus nach Osten
- Abb. 82 Chemnitz, St. Marien, Grundriß
- Abb. 83 Chemnitz, St. Marien, südliche Nebenapsis von Südosten
- Abb. 84 Chemnitz, St. Marien, südliche Chorkapelle nach Osten
- Abb. 85a-l Grundrisse romanischer Kirchen, a) Gröningen, St. Cyriakus b) Paulinzella, Klosterkirche c) Hamersleben, Stiftskirche d) Halberstadt, Liebfrauen e) Naumburg, Dom f) Chemnitz, Schloßkirche g) Königslutter, Stiftskirche h) Prüfening, Klosterkirche i) Breitenau (grau Bosau) j) Ballenstedt, St. Pancratius k) Ilsenburg, Klosterkirche l) Thalbürgel, Klosterkirche
- Abb. 86 Chemnitz, St. Marien, Basis eines Vierungspfeilers
- Abb. 87 Königslutter, St. Peter und Paul, Basis eines Vierungspfeilers
- Abb. 88 Chemnitz, St. Marien, Palmettenfries der südlichen Chorkapelle
- Abb. 89 Chemnitz, St. Marien, Palmettenfries der südlichen Chorkapelle
- Abb. 90a-c Chemnitz, St. Marien, Palmettenfriese (Skizzen von Rauda 1917)
- Abb. 91 Hamersleben, Stiftskirche, Südportal, Tympanon
- Abb. 92a,b Quedlinburg, Grabplatten der Äbtissinnen Adelheid I. (†1044), Beatrix (†1062)
- Abb. 93 Jerichow, Stiftskirche, Langhaus, Kämpfer
- Abb. 94 Berlin, Staatsbibliothek, Stift. Preuß. Kulturbesitz, Elfenbeindiptychon des Probianus, um 400
- Abb. 95 London, Victoria and Albert Museum, Elfenbeindiptychon, Priesterin bei heidnischen Riten, um 400
- Abb. 96 Cividale, Tempietto, Detail vom Türsturz
- Abb. 97 Rom, Grab bei S. Sebastiano an der Via Appia, 2. Jh., ornamentale Stuckdekoration
- Abb. 98 Ammensleben, St. Peter und Paul, Langhauspfeiler
- Abb. 99 Angers, St. Martin Kapelle, Schreibtäfelchen mit Bandgeflecht, italo-langobardisch 6./7. Jh.
- Abb. 100 Bursfelde, St. Thomas und Nikolaus, Grundriß (um 1180)
- Abb. 101 Bursfelde, St. Thomas und Nikolaus, sog. Westkirche
- Abb. 102 Bursfelde, St. Thomas und Nikolaus, sog. Ostkirche
- Abb. 103 Bursfelde, St. Thomas und Nikolaus, Ostkirche, Arkaden zum Seitenschiff
- Abb. 104 Hamersleben, Stiftskirche, Arkade zum Querhaus
- Abb. 105 Huysburg, Klosterkirche, Mittelschiff nach Westen
- Abb. 106 Huysburg, Klosterkirche, Südwand der Marienkapelle
- Abb. 107 Goslar, St. Ulrich, Ansicht von Osten
- Abb. 108 Goslar, St. Ulrich, Grundriß, Ober- und Untergeschoß (nach Hölscher)
- Abb. 109 Goslar, St. Ulrich, Innenraum nach Osten
- Abb. 110 Goslar, St. Ulrich, Sockel im westlichen Kreuzarm
- Abb. 111 Magdeburg, Dom, Chorhauptpfeiler
- Abb. 112 Altenburg, St. Bartholomäikirche, Grundriß mit geplanter Kryptaanlage, Grundriß der Krypta, Ost-West-Schnitt und Nord-Süd-Schnitt durch die Krypta (nach Magirius 1989)
- Abb. 113 Altenburg, St. Bartholomäikirche, Krypta, Mittelpfeiler
- Abb. 114 Drübeck, St. Veit, Grundriß (nach Maier 1991/92)
- Abb. 115 Drübeck, St. Veit, Mittelschiff nach Osten
- Abb. 116 Drübeck, St. Veit, Ecksäulen im Westteil
- Abb. 117 Drübeck, St. Veit, ehem. südlicher Kreuzgangflügel nach Osten
- Abb. 118 Drübeck, St. Veit, Wandlisenen im Langhaus
- Abb. 119a-c Drübeck, St. Veit, Skizzen der Bauplastik im Langhaus (nach Inventar Sachsen 1883)
- Abb. 120 Braunschweig, St. Ägidien, Grundriß
- Abb. 121 Braunschweig, St. Ägidien, Parlatorium nach Osten
- Abb. 122 Braunschweig, St. Ägidien, Kapitelsaal nach Süden
- Abb. 123 Quedlinburg, St. Servatius, Langhaus nach Osten
- Abb. 124 Quedlinburg, St. Servatius, südliches Seitenportal
- Abb. 125 Elten, St. Vitus, Grundriß-Rekonstruktion (nach Rahtgens 1912)
- Abb. 126 Elten, St. Vitus, Sanktuarium (Zeichnung von J. Vinckboon, 1656)
- Abb. 127 Elten, St. Vitus, Blick in den südlichen Kreuzarm nach Westen (Zeichnung von J. Vinckboom, 1656)
- Abb. 128 Elten, St. Vitus, Mittelschiffarkaden
- Abb. 129 Ballenstedt, St. Pancratius, Grundriß-Rekonstruktion (nach Lambacher 1990)
- Abb. 130 Ballenstedt, St. Pancratius, ehem. Refrektorium nach Südwest
- Abb. 131 Ballenstedt, St. Pancratius, Kapelle in der Krypta
- Abb. 132 Ballenstedt, St. Pancratius, ehem. Langhauskapitell, -kämpfer
- Abb. 133 Ballenstedt, St. Pancratius, Grundriß, Krypta (nach Lambacher 1990)
- Abb. 133a Ballenstedt, St. Pancratius, Pfeiler in der Krypta
- Abb. 134 Mariental, Klosterkirche, Grundriß
- Abb. 135 Mariental, Klosterkirche nach Osten
- Abb. 136 Mariental, Klosterkirche, Mittelschiff nach Osten
- Abb. 137 Mariental, Klosterkirche, Kapitelle im Sanktuarium (von links: Dienstkapitell, Nord- und Südkonsole)
- Abb. 138 Mariental, Klosterkirche, Westportal
- Abb. 139a,b Mariental, Klosterkirche, Portal zum Laienrefrektorium, Halbpfeilervorlage im ehem. Kreuzgang
- Abb. 140a-c Mariental, Klosterkirche, Palmettenfächerkapitell des Armariumportals, Kapitelle des nördlichen Kapitelsaalfensters
- Abb. 141 Klosterlausnitz, Ansicht von Westen
- Abb. 142 Klosterlausnitz, Langhaus nach Osten
- Abb. 143 Thalbürgel, Klosterkirche, Grundriß
- Abb. 144 Thalbürgel, Klosterkirche, Vorhalle
- Abb. 145a,b Thalbürgel, Klosterkirche, Nordarkade im Langhaus und Simsmotive der Nordwand
- Abb. 146 Amelungsborn, St. Maria, Grundriß
- Abb. 147 Amelungsborn, St. Maria, nördliches Seitenportal
- Abb. 148 Amelungsborn, St. Maria, südliches Querhaus mit ehem. Kreuzgangportal
- Abb. 149 Amelungsborn, St. Maria, ehem. Kreuzgangportal
- Abb. 150 Amelungsborn, St. Maria, Mittelschiff nach Osten
- Abb. 151 Amelungsborn, St. Maria, Piscina im Chorumgang
- Abb. 152 Amelungsborn, St. Maria, Kapitelle und Piscinien (Foto: Inventar Braunschweig/Holzminden 1907)
- Abb. 153 Sangerhausen, St. Ulrich, Grundriß
- Abb. 154 Sangerhausen, St. Ulrich, Ansicht von Süden
- Abb. 155 Sangerhausen, St. Ulrich, südliches Seitenschiff
- Abb. 156 Sangerhausen, St. Ulrich, Mittelschiff nach Osten
- Abb. 157a-c Sangerhausen, St. Ulrich, Kämpferrelief am nordöstlichen Chorpfeiler, am nordöstlichen Vierungspfeiler und am nördlichen Langhauspfeiler
- Abb. 158a,b Quedlinburg, St. Servatius, südliche Nebenapsis, Langhauskapitell
- Abb. 159 Quedlinburg, St. Servatius, Westseite
- Abb. 160 Halle, Petersberg, Grundriß
- Abb. 161 Halle, Petersberg, Ansicht von Osten
- Abb. 162 Halle, Petersberg, Ostseite, südöstliche Chorecke
- Abb. 163 Halle, Petersberg, nördliche Nebenapsis
- Abb. 164 Halle, Petersberg, Ostseite, Sockelprofil
- Abb. 165 Halle, Petersberg, nördliche Nebenapsis, Gewände, Ecksäulenbasen
- Abb. 166 Halle, Petersberg, Mittelschiff nach Osten
- Abb. 167 Halle, Petersberg, Chor und südlicher Nebenchor
- Abb. 168 Marienmünster, Klosterkirche, Grundriß-Rekonstruktion nach Oldemeier 1942
- Abb. 169 Marienmünster, Klosterkirche, Langhaus nach Osten
- Abb. 170 Hecklingen, St. Georg und Pancratius, Grundriß
- Abb. 171 Hecklingen, St. Georg und Pancratius, Ansicht von Osten
- Abb. 172 Hecklingen, St. Georg und Pancratius, Haupt- und nördliche Nebenapsis
- Abb. 173 Hecklingen, St. Georg und Pancratius, nördliches Seitenportal
- Abb. 174 Hecklingen, St. Georg und Pancratius, Mittelschiff nach Osten
- Abb. 175 Hecklingen, St. Georg und Pancratius, nördliche Langhausarkade
- Abb. 176 Hecklingen, St. Georg und Pancratius, Kopf über der nördlichen Langhausarkade, Kaiser Lothar III. (?)
- Abb. 177 Hecklingen, St. Georg und Pancratius, Kopf über der nördlichen Langhausarkade, Kaiserin Richenza (?)
- Abb. 178 Hecklingen, St. Georg und Pancratius, Kopf über der nördlichen Langhausarkade, Bernhard I. (d. Ä.) von Plötzkau (?)
- Abb. 179 Hecklingen, St. Georg und Pancratius, Kopf über der nördlichen Langhausarkade, Mechthild von Plötzkau (?)
- Abb. 180 Hecklingen, St. Georg und Pancratius, Kopf über der nördlichen Langhausarkade, Konrad von Plötzkau (?)
- Abb. 181 Merseburg Dom, Grabplatte Rudolf von Schwaben (†1080)
- Abb. 182 Berlin, Münzkabinett, Münze aus Rom oder Ravenna, Kaiser Theoderich, 6. Jh.
- Abb. 183 Palermo, Kathedrale, Grabkrone Kaiser Friedrichs II., Kamelaukion mit Pendilien, Anfang 13. Jh.
- Abb. 184 Altenberg, St. Marien, Grundriß und Grabungsplan nach Kubach/Verbeek 1976
- Abb. 185 Oldisleben, St. Veit, Grundriß
- Abb. 186 Oldisleben, St. Veit, Ansicht von Süd-Ost
- Abb. 187 Oldisleben, St. Veit, Wandpilaster aus dem ehem. Kloster (heute im Kammergut aufbewahrt)
- Abb. 188 Oldisleben, St. Veit, Pfeilerreste aus dem ehem. Kloster (heute in der Mühle vermauert), Skizzen aus: Inventar Thüringen 1888
- Abb. 189 Volkenroda, St. Maria, Grundriß-Rekonstruktion nach Alexandris 1993
- Abb. 190 Volkenroda, St. Maria, Ansicht von Nord-Ost
- Abb. 191 Volkenroda, St. Maria, südöstlicher Vierungspfeiler, Kämpfer mit Schachbrettmuster
- Abb. 192 Volkenroda, St. Maria, Vierungspfeiler, Palmettenkämpfer
- Abb. 193 Volkenroda, St. Maria, Chor, Sakramentennische mit Ecksäule
- Abb. 194 Ammensleben, St. Peter und Paul, Grundriß
- Abb. 195 Ammensleben, St. Peter und Paul, Langhaus nach Osten
- Abb. 196 Ammensleben, St. Peter und Paul, Langhauspfeiler, Kämpfer mit Palmetten
- Abb. 197 Ammensleben, St. Peter und Paul, südliches Seitenportal
- Abb. 198a,b Ammensleben, St. Peter und Paul, südliches Seitenportal, Kapitelle und Kämpfer (Detail)
- Abb. 199 Hillersleben, St. Laurentius, Grundriß
- Abb. 200 Hillersleben, St. Laurentius, Ansicht von Osten
- Abb. 201 Hillersleben, St. Laurentius, Langhaus nach Osten
- Abb. 202 Hillersleben, St. Laurentius, nordwestlicher Vierungspfeiler
- Abb. 203 Katlenburg, St. Johannes, Krypta
- Abb. 204 Konradsburg, ehem. Klosterkirche, Ansicht von Südosten
- Abb. 205 Konradsburg, ehem. Klosterkirche, Schnitt- und Grundrißzeichnungen nach Schmitt 1996
- Abb. 206 Konradsburg, ehem. Klosterkirche, Sanktuarium
- Abb. 207 Konradsburg, ehem. Klosterkirche, Krypta
- Abb. 208 Konradsburg, ehem. Klosterkirche, Nordwand des Sanktuariums, Steinrelief, Herrscherpaar (?)
- Abb. 209a,b Konradsburg, ehem. Klosterkirche, Nordwand des Sanktuariums, Steinrelief, Herrscherpaar (?), männliche und weibliche Figur (Details)
- Abb. 210 Enger, Stiftskirche, Grabplatte Herzog Widukind, 1. Hälfte 12. Jh.
- Abb. 211a,b München, Bay. Staatsbibliothek, Clm 15903, fol. 58r: Kaiser Konstantin und Helena mit dem Kreuz Christi; Clm 15903, fol. 86v: Kaiser Herakleios mit dem Kreuz vor den Toren Jerusalems, Salzburg, St. Peter 1147/49
- Abb. 212a,b Berlin, (ehem. Kaiser-Friedrich Museum), byzantinisches Elfenbein, Kaiser Leo, Maria, Gabriel, 9. Jh.; Kaiserdarstellung, Steinplatte, byzantinisch, 11. Jh.
- Abb. 213a-c Ludwig der Fromme als christlicher Streiter, Wien, Österreichische Nationalbibliothek, Cod. 652, fol. 3v, 9. Jh.; Mathildenkreuz, Essen, Münsterschatz, 11. Jh.; König Demetrius-Zvojnimir (1076-88) oder sein Vorgänger, Steinrelief, Split, Taufkapelle, 11. Jh.
- Abb. 214 Heselbach, St. Peter, Tympanon, 12. Jh.
- Abb. 215 Freckenhorst, St. Bonifacius, Fragment eines Königskopfes, um 1130
- Abb. 216 Idensen, Grabkapelle, Innenraum nach Osten
- Abb. 217 Idensen, Grabkapelle, mittleres Schiffsjoch, Nordhälfte, Pfingstszene
- Abb. 218a,b Idensen, Grabkapelle, östliches Schiffsjoch, Nordhälfte, Taufszene, Gruppe der Diakone (Detail)
- Abb. 219a,b Idensen, Grabkapelle, östliches Schiffsjoch, Südhälfte, Arche Noah, Obergeschoß der Arche mit Taube und Geretteten (Detail)
- Abb. 220 Idensen, Grabkapelle, westliches Schiffsjoch, Nordhälfte, Jüngstes Gericht
- Abb. 221 Idensen, Grabkapelle, Jüngstes Gericht, Gruppe der Gesegneten (Detail)
- Abb. 222 Idensen, Grabkapelle, Jüngstes Gericht, Gruppe der Verdammten (Detail)
- Abb. 223a Bamberg, Staatsbibliothek, Msc. Bibl. 140, fol. 53r., Jüngstes Gericht
- Abb. 223b München, Bayer. Staatsbibliothek, Clm. 4452, fol. 202r., Jüngstes Gericht
- Abb. 224 Fredersloh, St. Maria und St. Blasius, Grundriß
- Abb. 225 Fredersloh, St. Maria und St. Blasius, Ansicht von Nordosten (Zeichnung von C. W. Hase, 19. Jh.)
- Abb. 226 Fredersloh, St. Maria und St. Blasius, Langhaus nach Osten
- Abb. 227 Fredersloh, St. Maria und St. Blasius, Traufenprofile von Quer- und Langhaus, Nordwestecke
- Abb. 228a,b Fredersloh, St. Maria und St. Blasius, Sanktuarium, nord- und südöstliche Ecksäulenbasis
- Abb. 229a,b Fredersloh, St. Maria und St. Blasius, Sanktuarium, nord- und südwestliche Ecksäulenbasis
- Abb. 230a Fredersloh, St. Maria und St. Blasius, Nordportal
- Abb. 230b Fredersloh, St. Maria und St. Blasius, Nordportal, östliche und westliche Basis (Detail)
- Abb. 231 Magdeburg, Dom, südlicher Kreuzgangsflügel
- Abb. 232 Magdeburg, Liebfrauen, Säulen am Portalgewände
- Abb. 233 Vessra, Klosterkirche, Klostertor mit spätromanischer Fassade
- Abb. 234 Braunschweig, St. Martini, Ecksäule im Westriegel
- Abb. 235 Mainz, Dom, Nord-West-Seite, St. Godehard-Kapelle
- Abb. 236 Mainz, Dom, Grundriß mit St. Godehard-Kapelle
- Abb. 237 Mainz, St. Godehard, Innenraum nach Osten
- Abb. 238 Goslar-Riechenberg, St. Marien, Grundriß
- Abb. 239 Goslar-Riechenberg, St. Marien, Ansicht von Osten, Hauptapsis
- Abb. 240 Goslar-Riechenberg, St. Marien, Südostecke
- Abb. 241 Goslar-Riechenberg, St. Marien, ehem. Langhauspfeiler
- Abb. 242 Goslar-Riechenberg, St. Marien, nördliche Nebenapsis
- Abb. 243 Goslar-Riechenberg, St. Marien, Blick in den Chor
- Abb. 244 Goslar-Riechenberg, St. Marien, Krypta
- Abb. 245a,b Goslar-Riechenberg, St. Marien, Krypta, Kapitelle
- Abb. 246a,b Wimmelburg, St. Cyriakus, Ansicht von Osten mit Nachzeichnung aus Inventar Sachsen (Mansfelder Seekreis) 1895
- Abb. 247 Wimmelburg, St. Cyriakus, Grundriß Ostteile
- Abb. 248 Wimmelburg, St. Cyriakus, Pfeilerfragment, Zeichnung nach Inventar Sachsen (Mansfelder Seekreis) 1895
- Abb. 249 Wimmelburg, St. Cyriakus, Kapitelle, Zeichnungen nach Inventar Sachsen (Mansfelder Seekreis) 1895
- Abb. 250 Schöningen, St. Lorenz, Grundriß
- Abb. 251 Schöningen, St. Lorenz, Ansicht von Osten
- Abb. 252 Schöningen, St. Lorenz, Hauptapsis, Lisene und Sockelprofil (Detail)
- Abb. 253 Schöningen, St. Lorenz, Sanktuarium
- Abb. 254 Stötterlingenburg, St. Laurentius, Grundriß
- Abb. 255 Stötterlingenburg, St. Laurentius, Ansicht von Osten
- Abb. 256 Stötterlingenburg, St. Laurentius, Innenraum nach Osten
- Abb. 257 Stötterlingenburg, St. Laurentius, Ecksäulen im Chorgewände
- Abb. 258 Stötterlingenburg, St. Laurentius, ehem. Langhausstütze vom Mittelschiff aus fotografiert
- Abb. 259 Stötterlingenburg, St. Laurentius, ehem. Langhausstütze von der Nordseite aus fotografiert
- Abb. 260a,b Amsterdam Rijksmuseum, ehem. Abtei St. Peter und St. Marien in Egmond, Tympanon, 12. Jh., Nachzeichnung (van Wijn, 19. Jh.)
- Abb. 261 München, Bayerisches Hauptstaatsarchiv, Abt. 1, Bestand Kl. Formbach, Lit. 1, fol. 2v, Kaiser Lothar III. händigt einem Mönch des Klosters Vornbach ein Diplom aus, Kopialbuch des Klosters Vornbach (Formbach), 2. Hälfte 12. Jh.
- Abb. 262 München, Bayerisches Hauptstaatsarchiv, Abt. 1, Bestand Kl. Formbach, Lit. 1, fol. 3r, Papst Innozenz II. händigt einem Mönch des Klosters Vornbach eine Urkunde aus, Kopialbuch des Klosters Vornbach (Formbach), 2. Hälfte 12. Jh.
- Abb. 263 Straubing St. Peter, Westportal, um 1200
- Abb. 264 Windberg, St. Maria, Sabinus und Serena, Nordportal, 2. Hälfte 12. Jh.
- Abb. 265 Tholbath, Kapelle St. Leonhard, Ostapsis, um 1200
- Abb. 266 Weißendorf, St. Margaretha, Apsis (Detail), um 1200
- Abb. 267 Wechselburg, Stiftskirche, Nordportal, 2. Hälfte 12. Jh.
- Abb. 268 Wechselburg, Stiftskirche, Mittelschiff nach Osten, 2. Hälfte 12. Jh.
- Abb. 269 Gernrode, St. Cyriakus, Kreuzgang, um 1170
- Abb. 270 Ilsenburg, ehem. Kloster, Refrektorium, 2. Hälfte 12. Jh.
- Abb. 271 Wunstorf, St. Cosmas und Damian, Ansicht von Südost, 2. Hälfte 12. Jh.
- Abb. 272 Goslar, Neuwerk-Kirche, Ostapsis, vor 1186
- Abb. 273 Braunschweig, St. Blasius, Ansicht von Osten
- Abb. 274 Braunschweig, St. Blasius, Mittelschiff nach Osten
- Abb. 275 Braunschweig, St. Blasius, nördliche Chorwand mit Vierungspfeiler
- Abb. 276 Braunschweig, St. Blasius, Basis eines Mittelschiffpfeilers
- Abb. 277 Braunschweig, St. Blasius, südöstliche Querhausapsis
- Abb. 278 Braunschweig, St. Blasius, südöstlicher Vierungspfeiler vom Südquerhaus aus
Die Veröffentlichung auf dieser Internetseite erfolgt mit freundlicher Genehmigung von Cornelia Lawrenz.
Die Autorin Cornelia Lawrenz studierte Kunstgeschichte, Archäologie und Religionswissenschaft in Würzburg, Bologna und Berlin. Sie promovierte 2002 an der Technischen Universität Berlin. Zusätzlich zum Text stellte sie auch die Originale ihrer Abbildungen zur Verfügung, so dass die Scans in den Text eingearbeitet werden konnten. Zur Verbesserung der Lesbarkeit sind die Abbildungen nicht am Ende der Arbeit sondern direkt dort eingefügt, wo sie im Text besprochen werden. Das Abbildungsverzeichnis und einzelne Literaturstellen unter Pkt. XI. Untersuchungen und Darstellungen sind ergänzt.
Vielen Dank für die Bereitstellung der Unterlagen und Klärung der rechtlichen Fragen für die Veröffentlichung dieser großartigen Arbeit über Lothar III. auf dieser Internetseite an die Autorin.

















































































































































































































